Проектирование строительства
Любое строительство должно заранее планироваться. Во-первых, постройка любого типа должна соответствовать законодательно утвержденным нормам – тем более, если это касается домов для постоянного проживания. Практически любая постройка должна иметь проект, который должен следовать СНИП, что регламентируются соответствующими госслужбами.
Во-вторых, любое дело нужно начинать, имея в голове план его выполнения, а лучше не в голове, а на бумаге.
Проектирование дома включает в себя основные параметры будущего строения:
- Привязка к земле, участку на которой будет построен дом
- Особенности грунта и климатические особенности региона
- Общие характеристики здания – объем, жилая площадь, этажность, форма и т.д.
- Технологии строительства
- Материалы для строительства, их количество, общая стоимость
В проекте заложены долговечность здания, его тепловые характеристики, особенности построения инженерных сетей и многое другое. Первое правило строителей – выполнение всех работ проводить в соответствии с проектом. Главная задача застройщика – следить, чтобы строительство шло по проекту.
Особенность проекта каркасного дома состоит в первую очередь в его вариативности. Каркасные технологии позволяют строить дома со значительно большим разнообразием формы, методов утепления, пароотведения и проч. Каркасники можно строить там, где невозможно строительство монолитных домов – например на склонах. Но и требования к узлам каркасных домов, отраженные в проектах, могут быть выше, чем к домам из монолитных материалов.
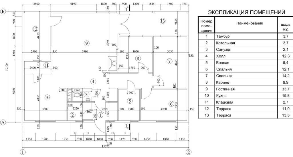
Одно из приложений к проекту — план здания
Монтаж нижней части стены
Деревянный каркас для крепления к нему стен, собирается так:
Согласно схеме сборки зданий, на земле соберите стену, которая затем крепится к обвязке и крепится гвоздями и уголками к основанию. Рамные стойки необходимо скрепить к верхним и нижним элементам стены. В углах дерево фиксируется врезкой, все остальные стойки фиксируются стальными углами.
Расстояние между вертикальными опорами определяется в зависимости от ширины выбранного изолирующего слоя. Если используется минеральная вата, это расстояние стоит уменьшить на пару сантиметров, чтобы укладка изоляции была плотнее в пространстве стены.
Для дополнительной жесткости конструкции горизонтальные перемычки устанавливаются в шахматном порядке между стойками стен. Процесс установки проемов окон и проемов для дверей одинаков. По краям отверстия стойки, а также верхняя и нижняя перемычки.
Внутренние перегородки монтируются и фиксируются аналогично. Готовая стена сверху соединяется балкой, что придает ей дополнительную устойчивость. Далее стены облицовывают материалами ДСП.
Шаг за шагом приближается завершение стройки дома. Остались работы с крышей и отделка. Чтобы прикрепить балки пола в верхней деревянной панели, необходимо сделать пазы. Из соображений надежности балки крепятся металлическими креплениями. Потолок прибивается к балкам с рифленой доской.
Монтаж крыши
Перед началом сооружения кровли, людям, которые решили построить деревянный дом своими руками, опытные строители советуют выполнять работы в следующем порядке:
- Определить необходимый уклон крыши и ее тип. Для простых зданий лучше использовать уклон 35-45 градусов. Для плоских крыш устанавливаются только наклонные варианты. Крыша здания с верандой может быть совмещена: один уклон над крыльцом и двойной уклон над домом.
- Выберите желаемое поперечное сечение стропил в зависимости от параметров изоляции. Изолирующий материал должен храниться между ними.
- Затем соедините две доски (длиной 6 м.) Буквой «Л» подняв их на крышу, где они крепятся к верхней панели, так чтобы края стропил на 30–50 см свисали. Фиксация данной конструкции производится болтом и используется в качестве модели для стропил. Далее стропила располагаются на расстоянии 70 см друг от друга.
- Стропила фиксируются методом «вполовину» лапы в самом коньке. Сначала они крепятся на фронтонах. Между внешними перекладинами протягивается трос, который указывает высоту оставшихся элементов кровли.
Утепление дома
Теперь перейдем к последней части сборки. Технология строительства и строительства таких зданий предполагает выполнение работ по их утеплению. Вспененный пенополистирол, минеральная вата и пенопласт являются наиболее часто используемыми для этой цели. Толщина изоляционного слоя подбирается с учетом климата в Вашем регионе и назначения помещения. Для проживания в доме, толщина изоляции должна быть не менее 5 см.
Изоляция плотно размещается между вертикальными балками рамы, так что каждый последующий слой покрывает точки соединения предыдущих. К стенкам прикрепляется пароизоляционный материал, после чего они крепятся с помощью OSB плит. Снаружи фасад герметично закрыт и снабжен тонкими направляющими, которые служат основой для наружной облицовки и обеспечивают вентиляцию здания.
Отделка
Когда строительство закончено, вы можете перейти к отделке. Вид внутренней отделки стен зависят исключительно от навыков и пожеланий хозяина. Помните что материал не должен сильно нагружать стены.
Наружные панели также могут быть выполнены в различных вариантах. Для этого чаще всего используется фасадная доска, фасадная плитка или другие декоративные материалы. Например, дом в стиле модерн предполагает использование простых материалов. В этом случае можно использовать штукатурку. Для любителей прованса хорошо впишутся материалы под вид кирпича и натурального камня.
Почему технологию считают «бедной»
Человек сам по себе отличается большой инерцией мышления. Если многие поколения наших соотечественников привыкли к тому, что качественный дом может быть только каменным, то, как правило, переубедить их очень сложно.
Современный каркасно-щитовой домИсточник t-dom124.ru
Второй фактор – появления каркасно-щитовых домов на нашем строительном рынке произошло в «лихие девяностые» когда все старались купить чего подешевле, дома строились «на глазок» и без всяких проектов. Разумеется, что в таких условиях первые каркасно-щитовые постройки не выдерживали никакой конкуренции. Да и сегодня, если покупатель просто хочет «дом подешевле», то вряд ли он станет вникать в то, как влияет толщина бруса в каркасе на комфорт проживания, и просто закажет минимальную комплектацию.
По факту, как и в случае с любой другой технологией, каркасно-щитовой дом может быть как элит класса, так и классическим дачным домиком – с ощутимой разницей в качестве, количестве, а соответственно, и стоимости используемых стройматериалов.
Правильный каркасный дом
Каркасное здание представляет собой жесткую раму из дерева или металла с заполнением эффективными утеплителями. Чаще всего используется минеральная вата как близкий по свойству к древесине материал. Его неоспоримое преимущество перед пенопластовой изоляцией — абсолютная негорючесть и экологическая безопасность.
Наружная обшивка выполняется из влагостойких материалов — ОСП, фанеры, сайдинга, фасадных панелей и т.д. Внутренняя — из гипсокартонных, гипсоволокнистых плит, дерева.
https://youtube.com/watch?v=tbRyV8g4G10
Каждый узел каркасного дома должен собираться правильно и обеспечивать прочность и устойчивость всей системы, отсутствие мостиков холода. Нормативы, которые регламентируют все детали технологии, — СП 31-105-2002. Каркасные здания позиционируются как энергоэффективные, и это действительно так, но при условии соблюдения всех требований их строительства.
Финская технология
Данная методика каркасного строительства выглядит приблизительно так:
- в качестве основы используется ленточный либо плитный фундамент;
- внешние стены и несущие перегородки (при их наличии) устанавливаются на ребра;
- монтируются кровельные фермы;
- проводится внешняя обшивка каркаса и монтаж кровли.

В итоге создаётся подобие ангара на фундаменте без каких-либо дополнительных перегородок внутри. После этого выполняются все внутренние работы. Специалисты заканчивают работы с фундаментной плитой, монтируют теплый пол, устанавливают перегородки, укладывают утепляющие материалы и проводят отделочные работы.
Финская технология предполагает использование домокомплектов заводской сборки, уровень готовности которых может быть разным. Может также монтироваться каркас из отдельных составляющих, которые уже подготовлены и пронумерованы. Необходимо лишь собрать их на месте в соответствии с проектом.
Виды каркасных построек
Существуют следующие разновидности каркасных сооружений:
- фахверковые или стоечно-балочные;
- панельные или каркасно-щитовые;
- каркасно-стоечные системы;
- дома, построенные по канадской технологии, или каркасно-бревенчатые;
- каркасные с неразрезными стойками.
Каркасно-щитовые дома делают в заводских условиях, а сооружения по канадской технологии возводят из СИП-панелей. Это готовый модуль из ОСП с утеплителем внутри. Отличие каркасно-рамочной технологии строительства от панельной в том, что каркас возводят из рамок, которые впоследствии обшивают листовыми материалами. Во всех случаях каркас не обязательно делают из древесины. Иногда применяют стальные тонкостенные конструкции.
Фундамент для постройки каркасного дома: требования к основанию
Утепление стен каркасного дома своими руками
Для устройства стен в каркасном доме делают следующее. Внутри и снаружи каркаса делается облицовка, а теплоизоляция крепится внутри этой облицовки. Между внутренней отделкой и утеплителем для пароизоляции производят монтаж фольгированного полиэтилена.
Снаружи утеплитель должен быть защищен от влаги, дождя и снега с помощью хорошей гидроизоляции. Для этого используют рубероид либо другие материалы. Здесь, с наружной стороны дома, также делают пароизоляцию. Если строитель взял минеральную вату для утепления дома, то это должен быть плитный стройматериал. Утеплитель нужно подбирать со всей ответственностью, чтобы дом был теплым.
Ошибки при строительстве частного дома своими руками
Примечание. Любое изменение материалов несущих конструкций должно быть внесено в проект.
выбор фундамента без геологического исследования участка. Неучет типа грунта и глубины его промерзания повлияет на надежность фундамента. Устройство мощного фундамента, на простом или скальном грунте, влечет за собой необоснованное расходование средств;
отсутствие схемы инженерных сетей. Наличие схемы обязательно, т.к., часть коммуникаций закладывается в стену, цоколь или фундамент. А это сложно сделать без схемы.
отсутствие полной сметы на строительство дома. Даже если на данный момент вы не располагаете нужной суммой средств, это не значит, что можно обойтись без сметы
Важно понимать, что сколько стоит, и в какие сроки должно быть оплачено, чтобы иметь представление о том, как долго будет длиться строительство и с какой периодичностью должны поступать средства на продолжение работ. К полученной сумме следует прибавить еще 10-15% на непредвиденные расходы
Смета нужна даже в том случае, если строительство частного дома ведется своими руками. Фиксирование расходов поможет оценить стоимость дома по завершению стройки.
Заключение
Пошаговая инструкция описывает основные этапы планирования частного строительства. На основании этой информации понятно, с чего начать строительство дома на своем участке. Если придерживаться норм, правил и соблюдать технологию, особенных сложностей возникнуть не должно. Желаем, чтобы возведенный дом или коттедж прослужил не одному поколению.
Этап №1. Установка фундамента
Основа основ – фундамент. К данной технологии применимы ленточный и свайный фундаменты. Первый фундамент является бетонным монолитом, который заливается под несущие стены. С этой целью сперва устанавливаются границы будущего дома путем вбитых в землю колышков, которые соединяются между собой веревкой. По этой линии вырывается углубление, туда устанавливается опалубка. Ее необязательно делать самому на один раз, опалубку можно приобрести в магазине, арендовать или позаимствовать у соседа.
Обязательно проводить гидроизоляцию дерева с помощью пленки, затем заливаем смесь для фундамента. После полного ее высыхания опалубка снимается для того, чтобы проверить точность углов. При кривизне – подравнять это место дополнительным слоем смеси.
Свайный (столбчатый) фундамент – это система свай (столбов), устанавливающихся в точках опоры по краям фундамента и по периметру. Между сваями расстояние не должно быть больше двух метров, иначе конструкция в течение эксплуатации может начать разрушаться. Материалом для свай может быть цемент или сборные блоки. В первом случае установка проходит аналогично ленточному основанию.
Фундаменты, проходящие с заливкой, требуют установки укосин, поскольку цемент в жидком виде имеет очень большой вес, и порой раздвигает опалубку, которая собрана самостоятельно.
Для того чтобы понять, на каком фундаменте остановить свой выбор, следует принять во внимание такие факторы, как свойства почвы, ее степень промерзания, количество и расположенность грунтовых вод, вес постройки. Заранее продумать необходимо материалы, из которых будет состоять основание, их количество, состав бетонного раствора
Если ваш выбор пал на свайный фундамент, следует рассчитать, какое расстояние будет между сваями, глубину вхождения в землю, количество столбцов.
Интересный пример того, как строится каркасный дом поэтапно, смотрите фото ниже. Здесь предоставлены отличные изображения фундамента.
Минусы каркасной технологии строительства
Чтобы быть объективными, следует отметить не только плюсы, но и минусы, характерные для технологии каркасного строительства своими руками. Причем минусы эти по большей части относятся не к самой технологии, а к способу её, так сказать, воплощения. Поэтому каждому, кто решил строить каркасный дом, отнюдь не помешают наши советы о том, как минимизировать влияние минусов на процесс строительства.

Другим достаточно серьезным минусом является низкое качество и несоразмерная цена материалов, предназначенных для каркасного домостроения. Нет, конечно, экспортные материалы хорошего качества на рынке присутствуют, но все они не просто стоят дорого, но что более печально – они в разы дороже реальной стоимости за границей. А более экономичные варианты отличаются таким низким качеством, что об успешной стройке говорить не приходится. Более того, отсутствие качественной доски, плитных утеплителей, пленок и тому подобное вряд ли может способствовать надежности каркасного дома. Что остается делать застройщику? Правильно – искать самому и постараться приобрести заранее материалы от проверенных поставщиков. Выиграть на цене можно, зная о том, что весной цены немного ниже летних.
В отличие от домов каменных или бревенчатых, брусовых, конструкции каркасного дома состоят из разных материалов и в процессе строительства допущенные ошибки станут очевидны лишь в течение эксплуатации. Узнать, спустя годы, что строители за гипсокартоном спрятали поврежденную пароизоляцию, будет весьма неприятным сюрпризом в виде разрушенного парами влаги утеплителя. Именно поэтому следует осуществлять своевременно контроль выполнения наиболее важных этапов: например, на этапе монтажа гипсокартона, можно потратить каких-то 15 минут на проверку целостности пароизоляции, чтобы впоследствии не получить массу проблем, больших и малых.
Технология строительства каркасного дома содержит определенные требования к вентиляции, в отличие от бруса или бревна, где вопрос не стоит так жестко. Вентиляция в таких домах не роскошь, а необходимость, так как использование пароизоляции и утеплителя требует выведения пара наружу. Поэтому оптимальным решением проблемы станет заказ проекта системы вентиляции и её монтаж. Ещё лучше будет, если совместить с вентиляцией систему кондиционирования и отопления – совсем как в Канаде или США.

В большинстве стран для проведения электропроводки в стойках каркаса делаются отверстия и запилы, куда безо всяких труб проводятся провода. В отечественном варианте к очевидным минусам каркасной технологии строительства можно отнести проведение скрытой проводки в металлических каналах с коробками и подрозетниками. Такая проводка вызывает некоторые проблемы с внутренней отделкой. Дело в том, что в Америке при внутренней отделке гипсокартон сразу крепится к стойкам каркаса, собранным из калиброванной доски (это ещё более ускоряет сроки строительства). В наших условиях гипсокартон не получится крепить к стойкам из простой доски обрезной. Это значит, что к стоимости отделки придется добавить стоимость профилей, необходимых для монтажа гипсокартона.
Из вышесказанного следует, что перечисленные минусы технологии строительства каркасного дома не касаются самого принципа, а в большей степени связаны с тем, что канадская технология, к сожалению, не применяется у нас с точным соблюдением требований и нормативов. А ведь только точное следование им во всем – от качества материала до качества исполнения – может быть гарантией того, что построен надежный, прочный, теплый дом.
Нижняя обвязка и пол
Обвязкой или лежнем называется брус из березы сечением 100х150 мм. Также применяют обрезную доску шириной 15 см. и толщиной 5 см. Древесина должна быть хорошо просушенной. У правильного каркасного дома нагрузка передается обвязке, затем фундаменту, и равномерно распределившись грунту.
Инструкция по устройству лежня включает следующие этапы:
- После обрезки по размерам все детали обрабатывают биозащитными составами и антипиренами, а затем выкладывают на свои места.
- Чтобы отметить места для болтового крепления (анкера монтируют в фундаментные опоры), ставят вмятины, ударяя над ними по доске молотком.
- Просверливают отверстия под болты. Для этого нужна мощная дрель со сверлом соответствующей длины и диаметра.
- Сначала прокладывают периметр утеплителем, поверх которого уже кладут комплектующие детали обвязки.
- Закручивают на болты гайки, предварительно установив широкие шайбы. Это можно сделать ударным шуруповертом или обычным гаечным ключом.
Каждый брус устанавливают по уровню. При наличии пользуют нивелиром. А угловую связку делают по технологии «вполдерева» или «коренным шипом».
Ставим обвязку и лаги
Конструкция каркасного дома, а именно полов, может отличаться. Их укладывают на грунт, лаги или плиту. Здесь решающим фактором для выбора технологии является тип фундамента. Лаги делают из брусов высотой 110, а толщиной 60 миллиметров. Максимальное сечение – 220 на 180. Их монтируют параллельно друг другу с шагом порядка 0,6 метра по осям. Когда пролет больше 2,5 метров, между лагами монтируют распорки. Цель – добиться, чтобы каркас не давал полам прогибаться. Распорки крепят при помощи гвоздей или саморезов.
Утепление и настил пола
Через неутепленный пол теряется до 20% тепла. Поэтому утеплитель – обязательный элемент конструкции дома по канадской технологии. Эти материалы классифицируют по типам:
- Насыпные. Это может быть керамзит, вермикулит или граншлак.
- Рулонные. Любые типы минваты, продаваемые в рулонах (бобинах).
- Плитные. Минвата в плитах, пенополиэтилен, ДСП, ОСП и т.д.
- Жидкие. Специальные составы – полиуретаны или эковата.
А вот пенополистирол для утепления полов лучше не использовать. Все дело в том, что при нагревании он, пусть и не критично, но токсичен, так как выделяет вредные для человека вещества.
Сначала подготовленную и обработанную антисептиками поверхность покрывают двойным слоем пароотводящей пленки. Полосы укладывают внахлест. Поверх кладут утеплитель, заполняя всю полость перекрытия. Для этого подбирают соответствующую толщину плиты минеральной или базальтовой ваты. Слой должен получиться по толщине около 20 см. Когда строят каркасный дом своими руками с применением керамзита, делают так, чтобы толщина засыпанного слоя приближалась к 30 см.
Сверху должен быть зазор до 5 сантиметров. А весь пирог накрывают пароотводящей пленкой, которую крепят к направляющим. Только после этого можно настилать полы из фанеры, ДСП, ламинированных материалов и т.д. Декоративное напольное покрытие может быть любым: ламинат, линолеум, паркет, плитка любого вида
Такое устройство каркасного дома наиболее предпочтительно, и не важно, будет ли зашиваться цоколь или нет. Главная задача – обеспечить минимальную теплопотерю, чтобы затраты на энергоносители были соответствующие
Разметка стен
После того как я подготовил план стоек дома наступил следующий этап – возведение каркасных стен. Начинаем это делать с разметки стоек в натуре.
Для разметки стен я применял шаблон и отбивочную нить. Шаблон изготовил самостоятельно, выглядит он вот так вот:
Шаблон для разметки
На брусок прибил две рейки, шириной 4 см, расстояние между реек 58 см, это стандартный шаг стоек в моем доме. А ширина реек обусловлена толщиной доски, в каркасе я применял доску 40х150 мм.
Для разметки стоек в натуре вначале размечаются стойки дверных и оконных проемов, их мы двигать и убирать не будем. Затем размечаются места примыкания внутренних стен к внешним, и места соединения внутренних стен между собой. Основные типы соединений изображены на этом рисунке.
Соединения в каркасных стенах
После разметки недвижимых и обязательных частей каркасных стен, я приступил к разметке стоек. Начал от угловой стойки и с помощью шаблона прошелся по всем стенам. Таким образом отметил места расположения стоек на верхней и нижней обвязке.
Подобрал фото, где видно несколько отметок, все метки оказались снаружи дома, под сайдингом )))
Отметить необходимо обязательно на обоих досках, так как собирая каркасные стены, принцип построения которых производится по технологии платформа, вы обеспечите обязательное выполнение условия прямоугольности всех стен. Останется стену только выровнять по уровню.
Преимущества и недостатки каркасных домов
По надёжности и прочности каркасные дома не уступают постройкам из других материалов. Их основные преимущества:
- Невысокая стоимость и короткие сроки строительства.
- Прочность соединения строительных элементов между собой. За счёт этого здание менее подвержено повреждениям в результате усадки на проблемных грунтах. Ошибки при строительстве и повреждения не вызывают серьёзных последствий.
- Сложных технологических процессов при отделке не требуется, отделочные работы можно производить круглый год.
- Конструкция имеет небольшой вес, это даёт возможность обойтись без мощного фундамента.
- Хорошая теплоизоляция стен позволяет быстро прогревать помещения и экономить на отоплении.
- Конструкция стен позволяет скрыть все коммуникации.
- Архитектурные возможности ограничены только фантазией, можно создавать практически любые конфигурации.
Современные каркасные дома часто строят в стилях модерн или хай-текИсточник houzz.com
Но есть у «каркасников» и определенные слабые стороны. Но «предупрежден – значит вооружен» – на каждый недостаток есть успешный пример решения проблемы:
- Небольшой срок службы. В ГОСТе указано, что срок службы каркасных домов – 75 лет. Но, если каждые 25 лет делать ремонт и аккуратно относиться к строению, оно прослужит больше века.
- Невысокая экологичность. Не все материалы, используемые при строительстве, производятся из натуральных компонентов. К примеру, СИП-панели изготавливаются с использованием синтетических клеев, в качестве утеплителя внутри них используется пенополистирол. Этот момент довольно спорный, найти в настоящее время полностью экологичный дом вряд ли получится. В итоге все зависит от качества используемых материалов, а значит и от добросовестности строительной компании.
- Низкая звукоизоляция. Про это следует помнить, если строительство планируется вблизи железнодорожных путей, автомагистралей или аэропортов. Проблема решается просто – необходимо до начала строительства подобрать подходящий шумоизолирующий материал.
- Подверженность гниению. При повышенной влажности дерево начинает разрушаться, появляются плесень и грибок. Своевременная обработка антисептиками полностью решает эту проблему.
Первоначальная обработка материалов проводится еще на этапе производства Источник bg.decorexpro.com
Пожароопасность. Любое строение из дерева способствует распространению огня. На помощь приходят специальные противопожарные составы, которыми обрабатываются деревянные поверхности.
Монтаж перекрытия
Установка потолочных балок осуществляется на верхнюю обвязку с помощью врубки либо с использованием крепежных уголков из металла. Величина врубки может составлять не более половины от толщины бруса обвязки. Выбор шага установки и размера балок определяется с учетом особенностей второго этажа.
- При необходимости обустройства полноценных жилых помещений либо мансарды перекрытие монтируют по тому же принципу, что и пол на первом этаже.
- При сооружении обычного чердака можно использовать балки меньшего размера.

Для комфортного и безопасного выполнения работ используют черновой пол, настил которого выполняют из доски 100х25 мм.
Если второго этажа не будет, установка верхних балок проводится с 300-миллиметровым выпуском за стены каркаса, что необходимо для дальнейшей установки стропильной системы.
Выводы
Строительство каркасных домов пользуется всё большей популярностью. Оперативность возведения и минимальные затраты – значительные достоинства данного выбора. Но при выполнении работ необходимо в обязательном порядке придерживаться различных правил строительства, в результате чего можно получить действительно достойный результат.
Еще статьи о строительстве и ремонте:
- Наружная и внутренняя отделка бани
- Защищаем деревянный дом: антисептик, масло, воск
- Чем и как правильно конопатить сруб дома: материалы и технологии
- Зачем нужна шлифовка сруба и обработка бревенчатого дома
- Советы: как правильно сделать баню этапы строительства
- Герметик для дерева, какой выбрать?
- Покраска деревянного дома. Применяемые материалы и технологии
- Дом из сруба ручной рубки
- Мансарда в деревянном доме
- Деревянные дома. Достоинства и недостатки материалов для строительства.
- Виды свай для фундамента, классификация, как их делают
- Бетонный септик из колец в доме, виды, технология установки
- Кровля для крыши виды, классификация, материалы
- Сборные дома: виды, преимущества, недостатки, особенности строительства
- Обустройство участка загородного дома, практические советы



































