Как построить металлический гараж для машины на даче своими руками
Металлические гаражи для дачи давно хорошо себя зарекомендовали благодаря невысокой стоимости, а также простому и удобному монтажу. Каркас нужного размера сваривают по месту из профильной трубы сечением не меньше 30 х 30 мм или уголка с ребром 40 мм.
Нижнюю раму, на которой собраны стойки каркаса, можно выполнить из той же трубы или использовать швеллер и заводить стойки внутрь его полок. Затем каркас обшивают листовым металлом толщиной 2—3 мм. Листы обшивки можно закрепить саморезами (в таком случае стоит использовать оцинкованный метиз, чтобы избежать коррозии) или приварить к каркасу.
Как показано на фото, при строительстве металлического гаража своими руками все листы конструкции желательно соединять между собой внахлест, что повышает водонепроницаемость помещения:


Двускатную крышу укладывают на поперечные сварные балки-фермы, которых должно быть не менее трех (два фронтона и одна — посредине). В верхней точке фермы скрепляют с помощью конька из того же уголка или трубы, которые использовались для создания стен. Для устройства односкатной крыши по длине гаража крепят поперечные несущие балки, которые затем обшивают стальными листами или профлистом.


Все металлические конструкции грунтуют с обеих сторон и два раза окрашивают масляной краской.


Преимущество металлического гаража, возводимого своими руками, заключается в том, что для такой конструкции не обязателен мощный фундамент. Ленты шириной 30 см и глубиной 30—40 см вполне достаточно. Чтобы ускорить работы, полы и фундамент выполняют одновременно. Для этого по периметру будущего гаража выкапывают траншею, а снаружи выставляют опалубку, чтобы залитый бетон выступал над уровнем грунта минимум на 10 см. Укладывают бетон сразу по всей площади. Размеры бетонной площадки вместе с фундаментами принимают такие, чтобы снаружи гаража выступало 10 см бетона.


Впрочем, чтобы построить металлический гараж своими руками, как показывает практика, даже такую ленту делать не обязательно. Вполне достаточно просто заасфальтировать площадку нужного размера или уложить бетонную плиту толщиной не менее 100 мм. Можно залить площадку слоем бетона такой же толщины, предварительно уложив для прочности металлическую сетку. Но в любом случае площадка должна быть приподнята над уровнем окружающей местности, чтобы дождевая вода не заливала пол гаража.
Металлические конструкции гаража крепят к бетону с помощью анкеров. Проще всего анкеры изготовить из арматуры диаметром 12—14 мм и длиной 15—20 см. Их забивают в просверленные перфоратором отверстия, диаметр которых точно соответствует размерам анкера. К забитому стержню электросваркой приваривают нижний пояс металлического гаража. Полтора десятка таких анкеров, установленных по периметру, способны надежно фиксировать гараж размером 6×4 м.
Далее описано, как сделать ворота для металлического гаража своими руками.
дом + гараж вместе или порознь?
раздел про фундамент потому и вопрос собственно о фундаменте стоит ли делать фундамент для дома и гаража как единое целое? размещение дома и гаража
собственно что смущает: 1. фундамент общий. Дом – помещение отапливаемое, теплое, фундамент дома нужно теплоизолировать от внешнего холода, гараж – помещение холодное (ну или с редким отоплением, скажем для проведения работ)соответственно если сделать фундамент один то холод из гаража пойдет в дом что не есть хорошо 2. фундаменты раздельно. крыша над гаражем предполагается как крыша крыльца и должна быть связана с домом, соответственно как поведут себя отдельные фундаменты – непонятно
и в 1-м и во 2-м случае далее встает вопрос – а как утеплять фундаменты, по поводу стен дома все понятно – читаем стандарт на МЗУФ, но как его отрезать от фундамента холодных помещений? пока вижу два варианта: 1. при цельном фундаменте утепление класть на фундамент под холодным помещением сплошным слоем и увеличивать площадь опирания стены с целью снижения давления на ЭППС, а далее -армирующая стетка и стяжка как пол по-грунту 2. при отдельных фундаментах между ними проложить 5-10 см ЭППС вертикально на глубину промерзания на всю ширину отмостки
- Регистрация: Nov 2009
- Сообщений: 250
Ответ: дом + гараж вместе или порознь?
А что Вам мешает сделать нормально отапливаемый гараж? Это копейки будет стоить как при строительстве так и при эксплуатации. У меня сейчас гараж на одном фундаменте с домом размером 9х5 (на две нормальные машины), в гараже четыре регистра длиной по 2 метра, температура примерно 15 градусов, ворота секционные – очень часто открываются, и стоят открытые (снег чищу, ребёнок гуляет и т.д.). при закрытии гараж набирает тепло за час. Холод из гаража в дом не идёт. Холодный гараж себе никогда не построю. ПС: Если поздно придешь жена не пустит – где спать?
Лучшие проекты размещения домов и гаражей под одной крышей
Существует три основных принципа возведения гаража, относительно частного дома, который строится первым и его расположение зависит от множества факторов, к этим принципиальным положениям относятся:
Расположение гаража под домом. Помогает компактно разместить обе постройки и сэкономить придомовую территорию и избавиться от необходимости повторного проведения дорогостоящих земляных работ.
Под гараж отводится первый этаж. Второй этаж, расположенный над гаражом, с обустроенными жилыми комнатами и функциональными помещениями, помогает максимально компактно использовать земельный участок.
Двухэтажный дом, с гаражом на первом этаже смотрится солидно и оригинально, дополнительное оформление и обустройство подъездной дорожки дает возможность подчеркнуть уникальность ландшафтного дизайна.
Гараж пристраивается к дому сбоку. Боковые, надземные постройки можно расположить по обе стороны от входа дома, это дает возможность не строить еще одну стену, используя одну из стен дома для возведения пристройки.
Практичная и удобная пристройка может быть возведена уже после строительства и эксплуатации частного дома, общая крыша требует тщательного подхода к обустройству кровли и подбору кровельных материалов.
Тщательно продумав проектное решение можно обеспечить удобное и практичное размещение обеих построек, объединенных одной крышей, дизайнеры и строители предлагают несколько наиболее удачных вариантов.
Планировка дома с пристроенным гаражом
Как правило, гаражную пристройку делают на уровне земли или на уровне первого этажа. Такой вариант не предусматривает общей кровли гаража с основным зданием, поэтому подходит как для одноэтажных, так и для двухэтажных домов.
Одноэтажный дом с пристроенным гаражом
Такой вариант позволяет обзавестись автогаражом, пристроив его к уже стоящему зданию. Так как отталкиваться приходится от существующей планировки, бокс нередко соседствует с жилыми комнатами. Поэтому необходимо серьезно подойти к вентиляции и звукоизоляции.

Одноэтажный дом с пристройкойИсточник moskva.dom-oi.ru
Двухэтажный дом с гаражной пристройкой
Дом в 2 этажа с гаражом, возведенным по типу пристройки – практичный и удобный вариант, позволяющий свободно планировать пространство второго этажа, независимо от расположения автомобиля. Пристраивая техническое крыло к двухэтажному зданию, можно не только получить место для хранения машины, но и увеличить площадь второго этажа. Если кровлю гаража сделать плоской и пригодной для эксплуатации, то из помещения второго этажа на нее можно сделать выход, тем самым дополнив дом просторной террасой.

План 1 этажаИсточник dniprobud.com.ua

2 этаж. Выход на террасу из спальниИсточник dniprobud.com.ua

Терраса, устроенная над гаражным помещениемИсточник просто-дом.com
Примеры домов с гаражом можно просмотреть в видео:
Пристроенный гараж
Фактически это небольшая пристройка сбоку от дома, отделенная от него внешней стеной дома. Теоретически ее можно сделать после завершения строительства основной части, но желательно спланировать его заранее
Важно, чтобы у гаража был удобный въезд. Его основной элемент — ворота, минимальная ширина — два с половиной метра (хотя многие предпочитают делать с небольшим запасом), а высота — 2 метра и 10 сантиметров. Если автомобиля два, ворота должны быть в два раза шире
Удобнее всего использовать автоматизированные системы для гаражей
Если автомобиля два, ворота должны быть в два раза шире. Удобнее всего использовать автоматизированные системы для гаражей.
Еще один вариант такого решения — парковочное место с крышей в пристройке к дому, не имеющее входа изнутри. То есть гараж и жилые помещения разделяет глухая стена. Фактически такой гараж мало чем отличается от отдельно стоящей постройки на участке, только расположен впритык к дому. При этом хозяева экономят пространство, но избегают возможности попадания в дом неприятных запахов. Попасть в гараж можно только с улицы — зачастую вход туда расположен рядом со входом в жилую часть дома
Другой вариант — когда из гаража проектируют выход во внутренний двор, где хранят крупногабаритные вещи — например, велосипеды, тележки и другой садовый инвентарь. Если таких вещей много, лучше оборудовать гараж дополнительными полками.
Расположение и размеры
Оптимальные габариты гаража – вдвое или втрое меньше размеров здания. Такое обстоятельство позволяет устанавливать одну или две перегородки, которые будут поддерживать перекрытие. Устраивать техническое помещение можно как в центральной части цокольного пространства, так и ближе к одной из наружных стен.
Для соединения с другими помещениями сооружают внутренние лестницы. Более популярны прямые пролеты. Их просто возводить, если лестницы достаточно большая, ее можно разрядить лестничными пролетами. Чтобы не допустить проникновения неприятных запахов в жилые помещения снизу и сверху лестницы устанавливается по одной двери.
Высоту цоколя выбирают с учетом размеров автомобиля. Стоит предусмотреть неокторый запас на случай покупки минивэна или внедорожника. Въездные ворота должны иметь максимальную высоту. Они выполняются в соответствии с разными схемами: распашные, раздвижные, поднимающиеся.

Строительство бассейна в качестве пристройки к жилью
Сделать бассейн или сауну при уже эксплуатируемом доме не составит труда, если учесть ряд особенностей данных конструкций. Решить вопрос с помещением можно благодаря возведению пристройки к дому
Поскольку бассейн является сложной гидротехнической системой, большое внимание следует уделить правильности монтажа конструкции и её последующему обслуживанию. Совмещённые проекты такого плана пользуются популярностью, так как на установку неглубоких ванн не нужно специальное разрешение
Бассейн иногда является пристройкой к дому
Главная задача на этапе планирования — создание качественной гидроизоляции. Поскольку внутри помещения будет создаваться высокая нагрузка на стены, то именно слой гидроизоляции должен выдерживать оказываемое давление на протяжении нескольких десятилетий. Проект дома в этом случае должен предполагать круглогодичное использование бассейна или сауны, что требует постоянной подачи чистой воды, а также дополнительного пространства под обслуживающее оборудование.
В бассейне под крышей можно купаться и зимой
Благодаря обустройству помещений в отдельной пристройке снижается риск перегрузки фундамента дома.
Можно выбрать и проект дома с цокольным этажом и совмещёнными гаражом, бассейном и сауной. Но тогда придётся укреплять фундамент и выдерживать нужную высоту подвала.
При желании дом можно одновременно совместить с бассейном и гаражом
При планировании дома со встроенным бассейном учитывайте:
- насколько глубокой будет ванна;
- какой формы планируется бассейн;
- вид системы фильтрации — скиммерная или переливная;
- варианты отделки помещений.
Не менее важным при строительстве дома с пристроенным гаражом, бассейном или сауной считается поддержание нужного для каждого помещения микроклимата с вентиляционной системой и отоплением.
Резюме: гараж во дворе многоквартирного дома – утопия
Итак, чтобы обрести право собственности на участок и разрешение на строительство, потенциальному собственнику нужно пройти круги бюрократического ада. Или располагать связями в местной администрации, что куда более реально. Советы, написанные в интернете, в том числе на площадках уважаемых юридических компаний, выглядят комичными. Но без помощи правоведов не обойтись – это факт.
За соблюдением законодательства в крупных городах бдительно следят Комиссии по пресечению самостроев, которые в шутку называют КПСС. Сложный порядок и фактическая невозможность узаконить здание демонстрирует, что в мегаполисах обзавестись подобной недвижимостью практически нереально.
Но выход есть: можно взять в аренду гараж в кооперативе неподалёку от дома. Или отказаться от машины и пользоваться каршерингом.
Планировка
Процесс планирования и создания проекта занимает важное место
Правильно планируем подземный гараж
Проект подземного гаража будет зависеть от того, как высоко находятся грунтовые воды. От их уровня будет зависеть, как глубоко под землей будет строиться гараж. Его можно разместить, как полностью под землей, так и частично (погрузить в грунт на 1/2 или 2/3 высоты).
Чаще всего используются частично утопленные гаражи, т.к. их возведение экономичнее и проще. Кроме того, построить гараж полностью под землей обычно не позволяет уровень грунтовых вод.
Как построить подземный гараж? Условия, правила и требования для такого строительства можно найти в нормативных документах (СНиП 21-02-99).
При выборе проекта для будущего дома с гаражом следует помнить, что помещение над подземкой никак нельзя использовать в качестве жилого, но в любом случае перекрытие между ними должно быть дополнительно усилено.
Проект коттеджа с подземным гаражом
Однако, как показывает практика, в большом количестве готовых проектов не соблюдаются нормы и над гаражом проектируются СПАЛЬНИ. Гараж – помещение взрывоопасное, и такое грубое нарушение может повлечь за собой человеческие жертвы.
Стены и ворота подземного гаража должны быть выполнены из материала с высокой степенью огнестойкости.
Составляя план подземного гаража, внимание стоит уделить и проектированию заезда
При экономии места, важно не перестараться. Конечно, если въезд будет крутым, он займет минимум площади
Летом такой подъем не создаст особых проблем, но зимой он может стать непреодолимым препятствием. Кроме того, чем круче склон, тем больше вероятности, что в дождливую погоду вода будет заливаться в гараж
Конечно, если въезд будет крутым, он займет минимум площади. Летом такой подъем не создаст особых проблем, но зимой он может стать непреодолимым препятствием. Кроме того, чем круче склон, тем больше вероятности, что в дождливую погоду вода будет заливаться в гараж.
Подземный гараж своими руками, особенности строительства
Наиболее рациональным решением обустройства гаража под землей является подземная пристройка к ленточному фундаменту жилого здания. Непосредственно под жилым помещением дома гаражную коробку располагать запрещено. В этом случае над хранилищем потребуется устройство технологического этажа, вспомогательной территории или нежилой террасы.

Какой вариант устройства подземного гаража выбрать
На первый взгляд, наиболее дешевый способ построить подземный гараж – это сделать его частью фундаментной системы будущего здания. Но транспортные средства, как и хранящиеся ГСМ, создают определенные риски для строений, находящихся над гаражным помещением. Например, возгорание проводки или утечка газообразного топлива из баллонной системы питания автомобиля. В этом случае приходится использовать специальные системы автоматического пожаротушения, тамбуры с дымоуловителями и вентиляционными выводами и несгораемые противопожарные перекрытия.


Чаще всего гараж располагается в подземном строении, отдельно от основного здания, при этом въезд можно сделать рядом с крыльцом дома или на границе придомовой территории. В этом случае удобство пользования автомобилем сочетается с невысокой стоимостью строительства помещения и отсутствием потребности в капитальной перестройке жилого здания.
Особенности обустройства подземного гаража
При планировании подземной постройки стоит обратить внимание на несколько самых важных проблемных вопросов, которые предстоит решить:
- Для любого заглубленного варианта строительства наибольшей проблемой является гидроизоляция подземного гаража. Кроме привычного дренажа в основании фундамента, потребуется обустройство дренажной системы кровли гаража и усиленная гидроизоляция всех несущих конструкций;
- Потолочное перекрытие и каркас крыши должны выполняться в виде сварных стальных балок или бетонных плит, с обязательным устройством опорной системы, независимой от боковых стен;
- Кроме основного выезда, в подземном гараже должен быть дополнительный выход, через который можно покинуть помещение в условиях аварии или пожара. Подземное гаражное помещение должно иметь сдвоенную систему вентиляции – естественную и принудительную;
- Территория участка земли, под которой находится подземный гараж, не должна использоваться под монтаж конструкций или построек с глубиной залегания фундамента более 40см.
Важно! Кроме технических проблем возведения подземной коробки гаража, необходимо правильно спланировать выезд из помещения таким образом, чтобы боковые стены проезда не разрушались от снега и дождя, и тем самым не создавали аварийную ситуацию при заезде внутрь помещения. На участках, где нет возможности построить отдельный длинный заезд с приемлемым углом наклона проезжей части, зачастую устраивают лифт, позволяющий поместить машину в гараж практически не сходя с места
На участках, где нет возможности построить отдельный длинный заезд с приемлемым углом наклона проезжей части, зачастую устраивают лифт, позволяющий поместить машину в гараж практически не сходя с места
На участках, где нет возможности построить отдельный длинный заезд с приемлемым углом наклона проезжей части, зачастую устраивают лифт, позволяющий поместить машину в гараж практически не сходя с места.

Наиболее удобным для постройки подземного гаража является склон холма или горы. При этом основную часть грунта просто отрезают от склона, и после сборки готового бетонного каркаса, обустройства гидроизоляции и дренажных систем, снятый ранее дерн, кустарники, плодородный слой, остатки грунта возвращают на место, осыпая крышу и пазухи под боковыми стенами гаража.
К достоинствам подземного хранения относят возможность постройки конструкции практически неограниченного размера. В этом случае часть помещения выстраивают из кирпича и дерева, что дает более комфортные условия пребывания человека. Таким образом, на относительно небольшом загородном участке можно построить комфортабельное помещение в 300 м2, которое заменит дачный домик с гаражной постройкой и хозблоком, а землю отвести под насаждения и деревья.

К недостаткам устройства подземного гаража на крутом склоне относят высокий риск сползания оползня, способного деформировать или раздавить каркас помещения. В таком случае специалисты рекомендуют строить каркас не из блоков ФБС, а по технологии возведения тоннелей метро, с заливкой высокомарочного бетона в опалубку с армирующим каркасом.
Материалы для строительства

Возведением домов из дерева занимаются многие компании. Использование дерева как строительного материала возможно и при одноэтажном, и при многоэтажном строительстве.

Техника постройки дома из бруса имеет несколько отличительных черт. Весь комплект модулей изготавливается на предприятии при помощи современного оборудования.

При помощи высокоточного оборудования производятся элементы с нужными допусками. Одновременно происходит изготовление основания. Собирая дом на готовом основании можно сэкономить значительную часть времени.

Дом с пространственным каркасом это тоже один из вариантов использования древесины. Данная технология успешно завоёвывает российский рынок в связи с не дорогой ценой.

Каркасы таких домов производят на промышленных предприятиях.

Незначительный вес таких сооружений допускает использовать облегчённые виды фундаментов. Утеплить каркасный дом с гаражом можно брикетами из минеральных волокон либо пенопластом.
Кроме дерева в постройке коттеджей используют так же кирпич и блоки. Частные дома из пеноблоков отлично зарекомендовали себя, особенно в условиях Крайнего Севера. Сбережение тепла и электроэнергии находятся на самом высоком уровне. Пеноблоки имеют малый вес и огромную прочность.


Проект
Несмотря на то что главное предназначение гаража очевидно, существует очень много вариантов его проектирования. Для составления проекта лучше обратиться к услугам профессиональных опытных дизайнеров, которые учтут все пожелания хозяев. Нужно указать количество автомобилей, приоритетное размещение гаража относительно дома и цели, для которых еще будет использоваться гаражное помещение.
Основные проекты домов с гаражом для среднестатистического небольшого участка предусматривают три основных варианта расположения:
Подземный. Располагается под самим домом, в подвале или на цоколе. Такой проект экономит территорию на участке и позволяет не тратить средства на дополнительные грунтовые работы. Гараж на цокольном этаже станет идеальным решением для владельцев компактных участков, расположенных под уклоном.




Помещения, находящиеся сверху надземного гаража, могут образовывать целый мансардный комплекс.

Нередко на участке возводят отдельное здание, которое включает не только гараж, но и баню с бассейном, сауну, мансарду, организовывая таким образом целый двух-трехэтажный комплекс для отдыха.
При отсутствии соседей с какой-либо стороны участка можно организовать отдельные ворота для заезда автомобиля. Это будет актуально, если гараж находится довольно далеко от главного входа или если имеющийся въезд слишком узкий.


Выездная дорога
Выездная дорога и въезд в подземный гараж
Чтобы в период эксплуатации дорога не разрушалась из-за проседания почвы, необходимо избегать подсыпки грунта при формировании пути. Землю нужно аккуратно срезать до необходимого уровня, который заранее отмечают метками.
Затем будущую дорогу засыпают щебнем и хорошо трамбуют. Слой такого покрытия должен быть не меньше 15 см.
На щебень кладут слой бетона толщиной минимум 12 см. Раствор для несущего слоя должен получиться вязким и достаточно густым.
После полного высыхания бетона кладется финишное покрытие.
Чтобы избежать проблем с выездом, при обустройстве въездной дороги нужно соблюдать некоторые требования:
- Наклон выездного пути не должен превышать 25%.
- Длина пути зависит от того, насколько глубоко находится гараж. Например, при утоплении подземки на 140 см, въездная дорога должна составлять 14,5 м. Но при тщательных расчетах его можно уменьшить до 8,5 м.
- Путь должен состоять из участков:
- Зона старта (горизонтальный участок не менее 3 м);
- Основная зона (наклонная);
- Зона перед воротами (горизонтальный участок 120 см).
- Для въездного пути нужно использовать материал, препятствующий скольжению. Можно дополнительно применять полоски для торможения.
- Желательно устроить пешеходную дорожку с поручнями.
- Непосредственно перед воротами устанавливают
ливневку
, на расстоянии не менее 50 см от начала подъема. Канализацию стоит оснастить кабелем для обогрева, для защиты ее от замерзания. - По сторонам въездной дороги строят стену (по аналогии со стенами гаража), для предотвращения обвалов грунта.
Преимущества и недостатки подвала
Дом с подвалом и гаражом, удобный для владельцев небольших земельных участков, обладает следующими достоинствами:
- Позволяет проектировать коммуникации, общие с домами.
- Уменьшает расходы на строительство.
- Обеспечивает доступ хозяев к авто и специнструменту в течение круглого года.
- Не требует прогревать автомобиль зимой.
- Придает зданиям уникальный внешний вид.
- Дает возможность обустроить кладовую и мастерскую под землей.
Подвальные помещения, используемые в качестве гаража, имеют следующие недостатки, связанные с необходимостью обустройства:
- дополнительной вытяжки из-за скопления выхлопных газов;
- более сложного фундамента;
- дополнительной гидроизоляции основания;
- специального подъемника.
Последний пункт обусловлен тем, что подземный гараж обладает меньшей высотой, чем обычный. Обустраивать гараж ниже уровня земли следует с учетом всех этих недостатков. Если они могут всецело устроить хозяина участка, то можно приступить к проектированию.
При обустройстве гаража в подвале необходимо помнить о качестве проектирования. Проблема состоит в оформлении въездного пути. Если не соблюдать требования к строительству дома, то эксплуатация всех помещений в нем будет невозможной.
Из чего лучше построить двухэтажный дом из пеноблоков или кирпича
В использовании материалов для строительства двухэтажного дома есть два момента.
- Несущая способность – если она соответствует заложенным в проект параметрам, то вы можете использовать понравившийся вам материал, сейчас на рынке большой выбор стеновых блоков. Нюансы могут быть в узлах. Для того, чтобы принять правильно решение проконсультируйтесь с нашими специалистами. Мы подскажем как правильно использовать пеноблок или газобетон, как заменить кирпич на поризованную керамику или любой другой материал.
- Теплотехнические свойства – в проекте дома заложена конструкция стены которая позволяет эксплуатировать коттедж с минимальными затратами энергии. Если вы решили изменить проектное решение например заменить стену из пеноблоков на стену из кирпича, то желательно проверить соответствует ли выбранный вам материал необходимым параметрам. Возможно изменения не нужны или потребуется дополнительное утепление дома.
Предлагаем вам дополнительно ознакомиться с проектами домов другой этажности:
- Проекты одноэтажных домов;
- Проекты трехэтажных домов;
- Проекты домов с цокольным этажом;
Мы готовы предложить вам индивидуальный проект если вы не нашли подходящий вариант в нашем каталоге проектов. Так же мы вносим любые изменения в проекты представленные в нашем каталоге, например уменьшить или увеличить этажность дома.
Типы гаражных ворот
Распашные. Традиционный вариант. Это достаточно громоздкие сооружения, которые можно дополнить автоматическим открывающим устройством. В таком случае, открыть массивные ворота сможет даже хрупкая женщина;

Секционные. Наиболее приемлемое решение. Ворота состоят из отдельных секций, которые поднимаются в верхнюю часть гаража. Они занимают немного места при открывании. Как правило, изготавливают такие ворота из специальных сендвич-панелей. Конструкция очень легкая и не требует мощного электромотора для открывания;

Подъемно-поворотные. Они состоят из одной сплошной секции и полностью перекрывают въезд в гараж. Такие ворота занимают определенную часть пространства гаража. Это нужно учитывать при парковке автомобиля. Его нельзя слишком близко ставить к воротам.

Рулонные. Самый дешевый и вполне надежный вариант. Несколько секций, имеющие гибкое соединение наматываются на барабан, расположенный в верхней части гаража. Этот вариант чаще всего снабжается устройством дистанционного управления. Въезд будет открыт ровно в тот момент, когда вы подъедете к дому.

Нужен ли вам такой гараж ?
Конечно, казалось бы, чего проще. Загнал машину и прошел в дом. Так то оно так, но в этом решении есть несколько больших минусов
Итак, каковы же они? Как уже сказано, их несколько. Если подробно разобраться, их будет больше, но пока ограничимся этими:
- Нужно устраивать подъездной путь (да, да, и это тоже должно быть).
- Гараж должен быть правильно устроен (в большинстве случаев это не соблюдается).
Давайте разберем их подробно
Минус первый в том, что гараж-то есть, но стоит ли он такого решения. В том применении, как он есть в уже устроенных гаражах — не стоит.
Вспомните, какие машины имеют самое большое распространение? Седаны или Хетчбеки. В общем-то, это машины, разработанные для езды по асфальту городских дорог и основные достоинства— они сравнительно дешевы, сравнительно распространены, экономичны,такой список можно продолжить, но остановимся на одном пункте — экономичности. За счет чего она достигается? Как многие скажут, за счет нового экономичного мотора, за счет новых ходовых и прочего обновленного оборудования. Все это так, но для использования такого гаража этого недостаточно. Для такого гаража нужен мотор не автомобильный, а по крайней мере самолетный. Причем хорошего пассажирского лайнера. И минус таких гаражей в том, про что никто из хозяев таких домов не подумал.
Для того, чтобы машина въехала, а главное, выехала из такого гаража, требуется уклон не больше 15 градусов. Или, чтобы было понятнее, 1:8. Для того, чтобы съехать на один метр вниз, требуется 8 (ВОСЕМЬ. ) метров в длину. Хороший подъездной путь. Примерно на треть участка. А если заглублять на два метра? Соответственно удвоим расчеты. Дальше считайте сами.
Допустим, автомобиль типа отечественной Нивы за счет своего мощного мотора в такой гараж может и въехать, и выехать. Для тех, кто не знает, заметим, что потребление Нивы в городском цикле достигает 14 литров. Впрочем, съехать под уклон сможет любой автомобиль. А вот выехать… Вот и приходится использовать гараж как сарай или погреб, а железному коню
ночевать под открытым небом. Нет, как говорится, если хозяин желает заниматься физкультурой, никто не против, но для физкультуры существуют оборудованные залы.
Минус второй — в гараж, являющийся подвалом,часто опускают трубы канализации или воды. И, съезжая в гараж, водитель может взять чуть в сторону, или дом слегка осядет — случится авария, снесет такую трубу. Что будет дальше, описывать не стоит, наверное. К этому же минусу стоит отнести вентиляцию, банальную вентиляцию, так как, как бы вы в гараж не въезжали, передом или задом, запахи бензина и выхлопа все равно будут. Со временем, если гараж имеет внутренний ход в дом — ароматы
могут пропитать весь дом.
Частный случай, когда дом стоит близко к дороге, гараж не имеет внутреннего перехода в дом, и загнав машину, вы вынуждены по улице переходить в дом. Может быть, это и ничего, до первой непогоды, ливня или хорошего снегопада. Вылезать из теплой машины в дождь может понравится разве что морскому котику, но такие гаражи котики не строят.
Мы разобрали только самые частые минусы такого гаража. Любой владелец сможет вам назвать ещё десяток. Поэтому, если вы планируете покупать участок или дом за городом — а выбор их большой, обязательно задайте себе вопрос: Как и где вы будете хранить свою машину?
Красивый и комфортный дом с гаражом под одной крышей
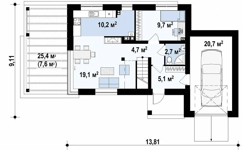
Мода на дома с совмещённым гаражом зародилась в США, где огромное количество людей проживают в собственных усадьбах и имеют личный транспорт. Любой владелец автомобиля знает, каких неудобств доставляет утренний поход за автомобилем в ненастную погоду, особенно, если идёт сильный дождь. Но когда собственное авто находится в сухом тёплом гараже, попасть в который можно не выходя на улицу, вы всегда имеете комфортный доступ к личному транспорту. Такой частный дом с гаражом под одной крышей имеет свои преимущества и недостатки, предлагаем рассмотреть их подробнее.
Преимущества совмещения дома с гаражом под одной крышей:
- Экономия средств на постройке отдельного гаража;
- Экономия площади участка;
- Общие коммуникации с домом позволят завести в гараж как отопление, так и кран с водой;
- Комфортный доступ к автомобилю в любую погоду
Недостатки совмещения дома с гаражом под одной крышей:
- Возможные запахи нефтепродуктов от автомобиля;
- Возможность попадания выхлопных газов в дом;
- Шум от работающего двигателя может быть слышен в доме;
- Поскольку гараж является как взрыво-, так и пожароопасным помещением, поэтому необходимо делать усиленные несущие конструкции и дополнительную вентиляцию.
Также читайте: Проекты домов с гаражом в виде навеса
Если же проект дома с совмещённым гаражом выполнен грамотно, и гараж отделяется от жилых помещений дверями, то о большинстве недостатков можно забыть.
Для того, чтобы построить красивый и комфортный частный дом, в первую очередь, необходимо создать проект здания. Наилучшим решением будет нанять профессионального дизайнера, который создаст шикарный проект дома с гаражом под одной крышей. На этапе проектирования дома хозяева могут вносить свои пожелания по дизайну. Необходимо указать количество имеющихся автомобилей, будет ли в гараже самостоятельно ремонтироваться авто, а также что будет храниться в нём кроме автомобиля.
Один из главных моментов, которые стоит решить — это расположение гаража в доме. Существует всего три варианта размещения бокса для автомобиля в доме:
































