Оптимальная площадь дома
Планировка всегда начинается с определения размеров дома. На основе располагаемой площади определяются с комнатами и их габаритами. Иногда приходится отказаться от первоначальных замыслов. В других случаях хозяин просто увеличивает финансовые траты и воплощает все желания.
Требования к размерам комнат в деревянном доме:
Кухня, гостиная и столовая в совокупности должны составлять 60 м2. Это минимальные размеры, которые могут изменяться в зависимости от предпочтений хозяина. Спальня. Для двоих потребуется 10 м2. Но опять нужно учитывать собственные желания и возможности. Детская. Размеры выделяются стандартно для спальни
Для ребенка важно иметь место, чтобы организовать спальную, игровую и учебную зону. Коридоры и тамбур в ширину должны иметь не меньше 1,8 м
Планировка комнат внутри загородного дома
Для того чтобы жилье было удобным и комфортным, а также полностью соответствовало нормативным требованиям, рекомендуется провести планировку помещений следующим образом:
Кухня – ширина помещения должна составлять не менее 1,7 метра, площадь – 6 и более квадратных метров. Если здесь планируется прием пищи, то площадь комнаты должна составлять не менее 10 квадратных метров, альтернативное решение – совмещение кухни и гостиной, где вместо стен будут использоваться раздвижные перегородки или барная стойка. Расположить комнату нужно поближе к санузлу, обеспечив ее системой вентиляции.

Гостиная – минимальная площадь составляет 12 квадратных метров. Помещение можно совместить с кухней, но в этом случае его площадь должна быть в три раза больше, чем площадь кухни. При правильной планировке прихожая ведет к гостиной, служащей центральной комнатой загородного дома.

Спальная комната – помещение, площадь которого должна составлять не менее 8 квадратных метров.

Ванна и туалет. Согласно стандартам, ширина ванной должна составлять не менее 1,5 метра, туалета – от 0,8 метра, глубина помещений – от 1,2 метра. Конечно, лучше разделить эти функциональные зоны на два помещения, но если это невозможно, то допускается создание совмещенного санузла
Из эстетических соображений важно, чтобы комнаты располагались в центральной части дома, вход в них не должен просматриваться из гостиной

Хозяйственные помещения – площадь комнат и их расположение определяют в зависимости от их предназначения. Например, кладовую лучше расположить возле кухни, гардеробную – в гостиной или спальне, гладильную – в гостиной.















































































Инженерно-технический раздел: чертежи комнат и коммуникаций
Инженерный раздел содержит схемы и чертежи электрообеспечения, систем водопровода, канализации, вентиляции и отопления. Таблицы-расшифровки включают данные о спецификации оборудования и общие расчеты. Это отдельные составляющие здания, размещенные внутри будущего дома.
Проект дачного дома 6х8 с мансардой: (прочитать подробнее)
Раздел по водопроводу содержит план расположения коммуникаций в подвале и на каждом этаже. Схема системы канализации выполняется в аналогичном порядке. Иногда эти два плана изображают в одном чертеже. Здесь также находится аксонометрическая схема монтажа холодного и горячего водоснабжения.
Чертежи электрообеспечения, систем водопровода, канализации, вентиляции и отопления изготавливаются на инженерном этапе.
В разделе монтажа отопления представлены поэтажные чертежи, начиная с подвала, и общая схема теплоснабжения всего дома. Системы газового оборудования и электрообеспечения изображены отдельными чертежами с индивидуальными схемами расположения газовой и электрической установок.
С целью предотвращения громовой опасности в моделирование домов необходимо включить монтаж громоотводного устройства, так как отсутствие подобной защиты может не только привести к разрушениям, но и создать угрозу жизни и здоровью обитателей дома. Установку громоотвода производят по отдельной схеме с привлечением квалифицированных специалистов.
Плюсы и минусы
Из достоинств деревянных домов с мансардой можно выделить:
- Дерево является экологически чистым и безопасным материалом.
- Дом с мансардой, построенный из дерева, хорошо сочетается по стилю с мебелью и другими элементами интерьера из этого же материала.
- В помещениях преобладает приятный микроклимат, благодаря устойчивому уровню влажности.
- Великолепные эстетические свойства дерева не вынуждают выполнять дополнительную декоративную отделку.
- Экономичность, так как нет необходимости строить полноценный этаж, а также отсутствует надобность в наружной отделке.
- Простота строительства.
- Мансарда увеличивает жилую площадь.
- Строительство из дерева не создает большую нагрузку на фундамент дома.
- В основном дома с мансардой отличаются хорошей теплоизоляцией.
- Большое количество вариантов красивого и неповторимого дизайна, можно дополнить мансарду террасой.
- В мансарде может располагаться спальня, рабочий кабинет, зона отдыха или детская комната.
- Долгий срок службы деревянного дома.

Из недостатков может быть отмечена сложность монтирования окон. Чаще всего используются специальные окна для мансард, которые стоят значительно дороже обычных. Стекла в них обладают противоударными свойствами. Использование обычных окон может привести к попаданию осадков внутрь помещения.
Немаловажным моментом является безопасное размещение электропроводки.

Также древесина подвержена воздействию влаги, поэтому необходимо заранее позаботиться о ее защите с помощью специальных обработок.
По способу обработки различают такие виды дерева:
- Клееный брус – обладает прекрасной прочностью и влагостойкостью, имеет длительный срок службы.
- Профилированный брус – обладает похожими свойствами и позволяет значительно минимизировать расходы при строительстве.
- Оцилиндрованное бревно – не требует дополнительной облицовки.
- Материалы для перекрытий и отделки.
Появление пятен серо-синего цвета говорит о том, что древесина начала гнить. Такой материал непригоден для строительства.

Проекты двухэтажных дачных домов
Строительство двухэтажного дома не такая уж дорогая затея. Фундамент то все равно нужен один, пусть и более мощный, но его стоимость возрастает не в два раза, а процентов на 60%. Размеры и утепление кровли от этажности вообще не зависят, так что тут увеличения вложений не требуется. Добавляются расходы на стены — их площадь в два раза больше, но в целом стоимость квадратного метра площади получается дешевле, чем при строительстве аналогичного одноэтажного жилища. Потому многие ищут проекты двухэтажных дач.
Проект небольшого двухэтажного дома для дачи с пристроенным гаражом: жилая площадь 100 кв. м, общая 127 кв. м, гараж на одну машину
Приведенный выше проект разработан для газобетонных или керамических строительных блоков. Подходит для вытянутых в длинну участков. Пристроенный гараж очень удобен при использвоании — из гаража стазу можно попасть в дом. Еще плюс: такой вариант экономит место на участке, а его на даче всегда мало, какой бы величины участок у вас ни был.
В данном варианте планировки с тыльной стороны дома предполагается просторная терраса. В общую площадь дома она не входит. Интересный дизайн делает дом непохожим на другие: большое окно на полтора этажа, кубической формы гараж и навес перед домом — не слишком влияют на ценник, но делают дом уникальным.
Проект двухэтажного дачного дома с пристроенным сбоку гаражом
Еще один проект дачи на два этажа с пристроенным сбоку гаражом представлен выше. Этот вариант больше подходит для квадратных или широких участков. Пятно застройки в плане — 10*10 метров, жилая площадь — 108 квадратных метров. Необычный облик этому дому придают высокие окна второго этажа. Свою лепту вносит и подбор отделочных материалов, сочетание светло-бежевого и коричневого цветов. В общем и целом интересный проект.
Проект дачи с балконом по периметру второго этажа
Нестандартного вида двухэтажный дом с балконом, который опоясывает все здание. С тыльной стороны находится обширная открытая терраса. Кровля четырехскатная, что усложняет конструкцию, но придает постройке особый колорит.
Отделка
В русском стиле деревенского направления основной закон стилистического характера утверждает «практичность взамен излишеств», но это не означает, что про красоту и дополнительные украшения забывают.
В стилистике преобладает нарочитая грубость: внутренняя отделка свободно имеет балки перекрытия, стены в топорной штукатурке и собственноручно сколоченную мебель. Все эти элементы превосходно гармонируют в стиле и придают самобытности интерьеру.
Для облицовки дома используют натуральное дерево (деревянные панели, цельные брёвна, сруб), или обрабатывают фасады декоративным камнем. Русский деревенский стиль незамысловат, но не лишён привлекательности.
Русский деревенский стиль
При словосочетании «деревенский домик» в подсознании произвольно возникает образ деревянной избы, типичного жилья средневековья на Руси, но нынешние деревенские дома не имеют практически ничего общего со своими предшественниками.
Современный дом в деревне внешне имеет облик обычного частного жилья, которое можно увидеть даже в ближних загородных посёлках. Как правило, пригородные дома походят на роскошные коттеджи с дорогой облицовкой и строительными материалами, а деревенский дом выглядит намного проще и скромнее.
Деревенский стиль предполагает чаще всего классическую постройку дома из камня или древесных материалов, а основной характеристикой стиля выступает наличие дополнительного места для отдыха, естественность, простота и уют.
Дорогие загородные коттеджи имеют чистые, ухоженные газончики или нестандартные декоративные клумбы. Простые дома в деревне предполагают наличие простых растений и кустарников, которые приносят пользу в хозяйстве и особо не выделяются из общего пейзажа.
Современное жилищное помещение деревенского типа имеет обязательные для человека бытовые элементы: санузел, обогревательные устройства (в зависимости от возраста здания это электрические обогреватели или стандартные печи), горячую воду и другие блага цивилизации, которые в простых народных избах отсутствовали.
Канализационная система оборудуется в обязательном порядке, когда хозяин проводит водоснабжение в жилье.
Чтобы обустроить удобства в деревенском жилье, достаточно только желания владельца, но в таком случае дополнительные построения будут считаться незаконными и могут оспариваться представителями архитектурно-строительных организаций. Для правильной перепланировки и установки дополнительной площади рекомендуется проконсультироваться с архитекторами.
Особенности проектирования жилья с печным отоплением
Русская печка – яркая характеристика деревенской избы. Раньше большие печки устанавливали с целью отопления всего здания и использовали для приготовления пищи. В нынешнее время термическая обработка еды производится на плите, которая есть в каждом жилье.
Проектирование может быть настолько многогранным, насколько хватит фантазии архитектора. Иногда они предстают перед глазами в совсем неожиданных вариантах и выступают в роли неординарных строительных декораций, но нередки и случаи, когда хозяин устанавливает печную топку в деревенском доме с отопительной целью.
Проектирование жилья, в котором обогревательную функцию будет нести печка, должно предусматривать расположение жаровни в центре всех смежных помещений, при этом топка выводится на кухню или в прихожую.
Иногда печное отопление предполагает строительство нескольких тепловых артерий, что требует отдельных дымоходов и увеличивает расход топливных материалов. Выгодней иметь один тепловой узел на все помещения.
Проектный план одного большого помещения (избы) обязательно предусматривает расположение отопительной конструкции таким образом, чтобы она визуально разделяла пространство на небольшие зоны. Оформление современной печки осуществляется огнеупорной плиткой.
Двухэтажный коттедж с баней и гаражом
Проект двухэтажного дома с баней на первом этаже и гаражом на 2 автомобиля.
Строение классических форм дополняют и украшают разные материалы фасадов и большие панорамные окна. Площадь 1 этажа — 149 м2.
Планировка:
- прихожая — 6,4 м2;
- холл — 13,0 м2;
- гостиная-столовая — 35,7 м2;
- кухня — 10,4 м2;
- ванная комната — 5,8 м2;
- парная (или сауна) — 9,3 м2;
- прачечная — 3,5 м2;
- гараж — 39,8 м2;
- хозяйственное помещение — 13,5 м2;
- студия — 5,6 м2
- терраса — 4,7 м2.
Второй этаж (площадь — 112 м2):
- холл — 9,1 м2;
- спальня— 20,3 м2;
- спальня — 18,4 м2
- спальня — 19,9 м2;
- ванная комната — 12,3 м2;
- спальня —15,2 м2;
- гардеробная — 9,9 м2
- ванная комната — 7,1 м2.
Строительная технология:
- стены — газобетон, керамические/пеноблоки, пенобетон;
- фундамент— ленточный сборно-монолитный;
- материал кровли — цементно-песчаная, керамическая или металлочерепица;
- технология строительства — каменный;
- перекрытия — монолитные.
Деревенский сруб 6х9
Эти цифры означают размеры дома. Дома 6х9 — это дома старого стиля и сельского плана. Простые проекты деревенских домов, без излишеств. Чаще встречаются проекты одноэтажных домов. Если средства позволят, то возможно и планировка и строительство второго этажа дома.
Планировка деревенского сруба 6х9
Планировка внутри дома 6х9 простая — дизайн кухни в доме, планировка ванной и пару комнат. Ничего лишнего. Это очень практично. Пару метров у дома можно сделать пристройкой — своеобразная прихожая. Там будет находиться вся верхняя одежда и обувь. Пристройкой считается и небольшая площадь с лесенкой у парадной двери в дом. Это все делается под отдельной крышей. Особенно красиво смотрятся такие дома с террасой. Дома 6х9 очень просты в строительстве или сборке, поэтому их чаще выбирают.
Особенности проектов деревянных домов
Лучший способ создания комфортного и уютного домашнего очага с учетом своих предпочтений – строительство деревянных домов под ключ. Проекты и цены, размещенные на сайте, помогут сориентироваться в выборе и найти свой, единственный вариант, который будет идеальным воплощением желаний и мечты своего его будущего собственника.
Выбирая проекты деревянных домов стоит ориентироваться на:
этажность – от 1 до 3 этажей;
наличие, отсутствие мансарды;
наличие пристроенного к дому гаража;
наиболее приемлемая площадь;
стоимость.
Можно подобрать проекты деревянных домов и коттеджей в определенном стилистическом исполнении, с оригинальной кровлей (вальмовой, двускатной, полуовальной и др.), в наиболее подходящем цвете. Или остановить свой выбор на оригинальной природной структуре.
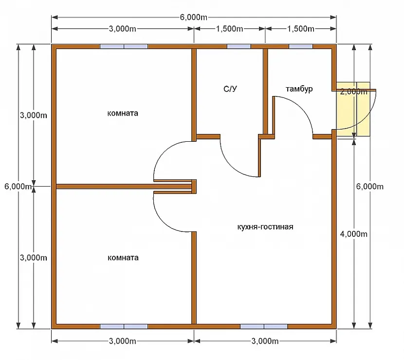
Особенности планировки
В одноэтажном доме размером 6 на 6 вариантов планировки не так много. На площади 36 м. кв. нужно разместить жилые и подсобные помещения, разделив их перегородками.
В доме для супружеской пары без детей достаточно сделать просторную кухню (около 10 м2 ) и одну жилую комнату ( 16 м2 ). В кухне оборудуется столовая, а комната используется как спальня и гостиная. При таком расположении остается место для устройства санузла и тамбура возле входной двери.
Но в этом случае лучшим вариантом является строительство дома в два этажа или с утепленной мансардой. В планировке двухэтажного дома детская комната и спальня для взрослых устраивается на втором этаже.
В малогабаритном доме не стоит сбрасывать со счетов подвальное помещение. Сделав высокий фундамент, можно устроить цокольный этаж и применить его под подсобные помещения или гараж. Этот вариант особенно актуален на маленьком земельном участке, где нужно экономить каждый клочок земли. Кроме гаража, в подвале устраивается мастерская, кладовая для хранения заготовок на зиму.
Ванная и туалет делаются совмещенными. Во-первых, малочисленность семьи не создаст неудобств во время пользования совместным санузлом, а во-вторых, даже короткий простенок занимает место. Сделать ванную комнату лучше в веранде.
Одна ее часть полностью отгораживается перегородкой с дверью, и в получившемся помещении размещают всю сантехнику. Другой вариант местоположения санузла прихожая. Он устраивается между входной и кухонной дверью, или между кухней и гостиной.
Частный дом: преимущества в сравнении с квартирой
Собственное, презентабельное, уютное и комфортное жилье без назойливых и шумных соседей – мечта любого современного человека. Каждый из нас после утомительного трудового дня мечтает о полноценном отдыхе, получить который в многоквартирном панельном доме практически невозможно. Индивидуальная планировка частного дома, напротив, позволяет зонировать пространство, создать собственную территорию отдыха для каждого члена семьи. Современный дом из деревянного бруса
Почему же частные домовладения пользуются такой популярностью в наше время?
- Стоимость строительства частного дома вполне доступна: благодаря использованию инновационных технологий и современных материалов, цена частного дома вполне может конкурировать с городской квартирой, как на рынке вторичного жилья, так и в новостройке.
- Расположение: будущий домовладелец может выбрать под застройку участок, который будет находиться в месте, которое максимально комфортно для проживания и соответствует потребностям всех членов семьи.
- Автономность коммуникаций: отопление и горячая вода в частном доме, в отличие от тех, которые обслуживаются коммунальными службами, будут всегда в свободном доступе и в необходимом объеме.
- Безопасность: на территории, прилегающей к частному дому, всегда найдется место, где можно обустроить детскую игровую зону, разбить небольшой сад, огород или клумбу, а также обеспечить безопасную парковку, на которой сохранность автомобиля будет гарантирована даже в условиях отсутствиях гаража.
Технология строительства
Строить дом можно из:
- панелей;
- деревянного сруба;
- кирпичный дом;
- газобетонных блоков;
- опилкобетонных блоков;
- керамзитобетонных блоков.
Выбор действительно большой. Цена тоже очень разная. Каждый материал для строительства дома очень отличается по структуре, качеству и характеристикам, но еще одно отличие — в технологии строительства дома. Многие любят дерево, поэтому будет рассмотрена технология строительства деревянного дома.
Дерево для стройки дома бывает двух видов: брус и бревно. Тут необходимо считать — брус дешевле бревна, но сколько его понадобится, неизвестно.
Бревно смотрится намного массивнее и эксклюзивнее. Когда фундамент готов к дальнейшей постройке, под первый ряд укладывается утеплитель, после чего выкладывается сам ряд. Весь лишний утеплитель, торчащий из-под стены, можно удалить. Дальше постепенно возводятся стены дома из бруса.
На стыках в бревнах делаются пазы, которые кладутся на предыдущее бревно. Для большей устойчивости вдоль всех бревен делается небольшая выемка. Выходит, что бревно как бы ложится в предыдущее, что дает большую устойчивость стен. Бревна связывают между собой на стыках. Каждое бревно необходимо обрабатывать антисептиком от гниения, плесени и остального. Есть биосептик и антипиреном — все эти средства помогут избежать или избавиться от всего, что может испортить дерево.
После окончания сбора, когда процесс дошел до крыши, возникает проблема щелей. Они могут появиться, даже если бревна самые ровные и стыковались, как детали конструктора. Для решения проблемы в любом строительном магазине продается пакля. В старину пользовались мхом, но столько его сейчас нет. С паклей часто используют липкую ленту с теплоизоляционным жгутом. При утрамбовывании в щели ленты между собой нужно переплести и шпателем затолкать в щель.
Потом тщательно промазать этот шов, а после убрать лишнее. Проблема утечки тепла будет решена.
Варианты крыши различны. Нужно подобрать тот, какой больше нравится. Чаще всего пользуются самым простым и надежным вариантом. Собрать его по чертежу не составит проблем. А вот чем покрыть крышу деревянного дома — необходимо сравнивать цены, качество и возможности.
Начало планировки
Планировка дачного дома является одним из самых процессов в строительстве, к которому необходимо подойти со всей внимательностью, терпением и аккуратностью. Главное, что стоит усвоить для себя – это бюджет, который может быть потрачен на строительство дома и его планировку и конечная цель, достижение которой стоит в приоритете
Также очень важно трезво оценивать возможность самостоятельной планировки дома. В некоторых случаях лучше воспользоваться услугами профессионала. Обязательно при планировке необходимо смотреть в будущее, так как вполне возможно появление новых членов семьи, для которых место тоже понадобится
Поэтому, чтобы не подвергать дом через несколько лет глобальной перепланировке, лучше выполнить все сразу
Обязательно при планировке необходимо смотреть в будущее, так как вполне возможно появление новых членов семьи, для которых место тоже понадобится. Поэтому, чтобы не подвергать дом через несколько лет глобальной перепланировке, лучше выполнить все сразу.

При планировке дачных домов учитываются следующие условия:
- Максимальная полезная площадь дома.
- Количество проживающих человек.
- Наличие и количество маленьких детей.
- Периоды проживания в доме (на сезон или на круглый год люди селятся в доме).

Варианты дизайна
В интерьере частного рубленого дома, в основном присутствуют массивные неокрашенные лестницы. Помимо функциональной нагрузки, они выполняют роль украшения помещения и являются связующим звеном между разными этажами.
Особой колоритностью наполнят дизайн лестничные перила, декорированные при помощи резьбы или позолоты. Для увеличения полезной площади в домах с мансардой, чердачное помещение часто оборудуют под жилую комнату.
На фото ванная комната в интерьере дома, выполненного из бревна большого диаметра.
Площадь небольшого загородного коттеджа из бревна можно визуально увеличить за счет панорамных окон или второго света. Благодаря открытым конструкциям во всю стену от пола до потолка, получается наполнить пространство объемом и придать ему солидности.
На фото дизайн загородного бревенчатого дома с лестницей на второй этаж.
Практически традиционным элементом бревенчатого дома, считается камин. Для его облицовки выбирают такие материалы, как керамика, фарфор, камень, кирпич или металл. Иногда применяют специальную деревянную отделку, превращающую очаг в главный арт-объект комнаты.
На фото интерьер дома с камином, выполненный в классическом стиле.
На фото гостиная в доме из бревна, оформленная панорамными коричневыми окнами.
Особенности и преимущества
Сейчас довольно распространены дома небольшого размера. Они выглядят привлекательно, и каждый человек внутри чувствует комфорт и уют теплого домашнего очага.
Рассмотрим основные преимущества таких построек:
- Экономия расходов. Именно компактные домики позволят вам сэкономить семейный бюджет. Вам не нужно будет приобретать много материалов, чтобы построить комфортное жилище.
- Простой фундамент без усиления. Это тоже является явным преимуществом.
- Строительство не затянется по срокам. Поэтому вы сможете осуществить ваш проект в минимальное для вас время и наслаждаться проживанием в красивом доме.
- Приятно удивят людей и расходы на отопление и кондиционирование помещений. Так как дом небольшой, то вы не будете затрачивать много ресурсов.
- Простота в уходе. Этот немаловажный показатель оценят все рачительные хозяева. Вам не нужно будет убирать большую площадь. Небольшой компактный дом будет легко мыть и чистить в нужное для вас время, в отличие от большого помещения.
- Стильный вариант. Зачастую именно мини-модели довольно простые и при этом стильные и красивые. Вы сможете создать привлекательный интерьер вашего домика, чтобы порадовать не только себя, но и своих гостей.
- Практичность и долговечность. Использую при строительстве качественные материалы, вы сможете создать прочное и надежное жилище. Ваш дом прослужит вам долгое время. При этом можно создать самому удачный проект для частных сельского домика, который полюбится вам с первого взгляда.
Внутренняя планировка дома

Строительство является важным и во многом ключевым этапом в обустройстве дома. Но его качественность напрямую зависит от правильно составленного проекта. Именно поэтому самостоятельно заниматься этой работой без соответствующих навыков не рекомендуется.
Что включает в себя внутренняя планировка:
- Выбор местоположения комнат;
- Отвод места для коммуникаций;
- Разновидности и количество окон и дверей;
- Наличие и размеры пристроек, их расположение;
- Материалы для стен и их итоговая толщина.
Самостоятельно разработать проект можно с помощью специальных программ. Но при отсутствии знаний в данной отрасли лучше обратиться за помощью к специалистам. Это поможет сэкономить время.
Проекты домов из бруса 6 х 6 с мансардой: чертежи и внутренняя планировка
Когда встает вопрос о планировке дома с площадью 6 на 6, следует учитывать, для каких целей он строится. Если это домик для летнего загородного отдыха, то основную часть дома отводят для комнат жилого назначения, а для отдыха оставляют минимальное количество места. Как правило, зону отдыха в дачных домах обустраивают на террасе или рядом с домом на специальной площадке.

Правильное расположение комнат с террасой для отдыхаИсточник Skpomestie.ru
А вот если дом предназначен для проживания в нем круглый год, то площадь для жилых комнат остается небольшая. Ведь нужно место для общих помещений, таких как кладовая или гардеробная, которые помогут содержать дом в чистоте и порядке.

Рациональное расположение комнат с площадью для технического помещения или гардеробнойИсточник Domostroev.com
При планировании двухэтажного дома с такой площадью есть один существенный недостаток. Места для лестницы на второй этаж или мансарду остается очень мало. Как итог – она будет очень крутой, что значительно затруднит по ней подъем пожилых людей и детей.
Для одноэтажного дома
Одноэтажный дом площадью 6х6 имеет не так много вариантов планировки, как двухэтажные дома. Ведь на одной площади необходимо расположить все необходимые помещения и разделить их тонкими перегородками.
Если в доме будет проживать семья из двух человек, то можно сделать просторную кухню, спальню и санузел. Тогда каждое из помещений будет иметь достаточную площадь для комфортного проживания.

Планировка дома для семьи из двух человекИсточник Ooo-skp.ru
Когда строительство планирует семья с ребенком, то необходимо будет оборудовать детскую комнату. Для нее следует отнимать площадь от кухни и родительской спальни.

Планировка дома площадью 6х6 с двумя изолированными комнатами для родителей и ребенкаИсточник Dobrodom75.ru
Не стоит забывать и об обогреве дома. При планировании одноэтажного проекта предусматривается установка печи посередине дома. Такое расположение позволит одинаково обогревать все помещения, а так же разделит кухню и помещения для отдыха.
Для двухэтажного дома
Если предусматривается планировка дома 6х6 с мансардой, то жилая площадь будет уже не 36 кв.м, а 40-44 кв.м. При выборе крыши стоит заранее определиться с количеством спален на чердаке. Если будет одна большая спальня, то крышу можно сделать двухскатную.

Правильное расположение комнат в доме с мансардой и одной комнатойИсточник Daromdoma.ru
А когда в плане указывается две или три небольших комнаты, то стоит остановить выбор на вальмовой крыше. Под такой крышей можно сделать дополнительные помещения, например, гардеробную.

Расположение комнат на первом и втором этаже с отведением места для гардеробнойИсточник Domikbani.ru
На первом этаже здания располагаются кухня, гостиная, санузел и прихожая. А так же уделяется место и для лестницы. А в мансарде уже обустраиваются спальные комнаты.
Планировка такого дома имеет значительные преимущества. Спальные комнаты закрыты от посторонних людей, так как располагаются этажом выше. К тому же расширение жилой площади за счет строительства мансарды позволяет поставить дом для небольшой семьи в ограниченном пространстве.
Чтобы получить дополнительное пространство для отдыха, то следует на втором этаже сделать небольшой балкон или лоджию. Там можно поставить пару кресел и стол, и таким образом получить дополнительное помещение.

Рациональное расположение комнат дома с мансардой и отведением места для оборудования балконаИсточник Banivsem.ru
Специалисты рекомендуют проводить строительство домов такой площади именно с мансардой. Тогда само строение будет выглядеть пропорциональным, а на несущую конструкцию не будет создаваться большая нагрузка, а это защитит от сильной усадки.
При планировании места установки лестницы стоит помнить, что ее минимальная ширина составляет 1 метр. Тогда по ней можно будет безопасно передвигаться и избежать травм.
Для санузла отводится небольшое помещение, в нем лучше располагать не ванную, а душевую кабину: тогда места понадобится меньше.

Рациональная планировка санузла на первом этаже дома с мансардойИсточник Autogear.ru
Если один из членов семьи имеет надомную работу, то на первом этаже можно расположить изолированный кабинет в дальнем углу дома.
Внутренняя планировка
Для семьи с 2 детьми со среднестатистическим бюджетом размахнуться на большое и просторное жилье трудно, поскольку здания больше 150 квадратов относятся к разряду элитных и облагаются налогами. Вопрос отопления и вовсе станет первоначальной проблемой.
Чтобы таких проблем не возникало, наиболее подходящий вариант – планировка одноэтажного дома средних размеров 8х8, также возможна перепланировка уже возведённого жилья.
Необходимые помещения для стандартного дома с предварительными расчётами:
- спальня – 12 квадратов;
- детская – 18 квадратных метров;
- гостиная – 20 квадратов;
- кухня;
- санузел;
- коридорчик.
Наибольшее пространство выделяется именно под детскую комнату, поскольку дети будут расти, нуждаться в дополнительных предметах быта и мебели. Поэтому изначально дизайн комнаты для детей будет напоминать многофункциональное помещение, что очень практично в деревенских зданиях.
Прихожая должна иметь 3 основных выхода: в туалет, кухню и в гостиную, из которой уже будет идти проход к опочивальням. При этом спальня должна располагаться в самом крайнем углу жилья на северной стороне.
Остаток площади распределяется по собственному усмотрению на остальные жилищные помещения. Если строительство или перепланировка предусматривает наличие русской печи, тогда расчёт метража комнат уменьшается в 2 раза. При правильной распланировке, этих помещений вполне достаточно для жизни среднестатистической семьи.




































