Простой туалет на участке без выгребной ямы –пошаговая инструкция
Копка выгребной ямы может доставить серьезные трудности
В таком случае стоит обратить внимание на конструкцию без таковой
В этом случае строительство выполняется в следующей последовательности:
1. Возводится каркас и производится его обшивка;
2. Монтируется кровля;
3. Выполняется внутренняя отделка. Застилается сплошной пол, без какого-либо отверстия;
4. Монтируется стульчак либо устанавливается уже готовый биотуалет. В первом случае предусматривается способ обеззараживания отходов.
Чаще всего для дачных туалетов выбирается зола и торф, емкости с которым устанавливают непосредственно на полу туалета либо помещают под стульчак. Сидение в таком случае выполняют подъемным.
Особенности строительства туалета на даче своими руками из разных материалов: чертежи и фото готовых строений
Построить туалет на участке можно из любых материалов, кроме того, это прекрасный способ утилизировать остатки, которые остались после возведения жилого дома.
Как построить туалет на даче своими руками из металла
Для каркаса клозета из металла можно взять уголки, а обшивку выполнить из древесины или любых иных надёжных аналогов. Строительство состоит из следующих этапов.
- Для жёсткого каркаса нам понадобятся асбестоцементные трубы, обработанные с внешней стороны битумной мастикой, которая защитит поверхность от разрушения. Их необходимо вкопать по углам строения на глубину до 70 см.
- Заполнить трубы на треть бетоном.
- Вставить по центру каждой трубы металлические уголки строго вертикально и дополнить трубы бетоном для надёжной фиксации.
- Сварить каркас из вертикальных опор и горизонтальных перемычек. Для них подойдут стальные уголки 50×50 мм². Необходимо предусмотреть уклон крыши от 10º до 30º.
- Установить на основание каркас и соединить сваркой или болтами все элементы.
- Обработать весь металл от коррозии.
- Обшить каркас и кровлю профнастилом при помощи саморезов по металлу с прорезиненными шайбами.
- Можно дополнительно утеплить каркас пенопластом толщиной до 30 мм.
- Внутреннюю отделку можно выполнить любым материалом, в том числе и деревом.
- Для пола подойдёт шлифованная доска толщиной до 50 мм. Обязательно следует сделать подиум.
- Для дверного каркаса подойдут стальные уголки или брус.
- Обработать древесину защитными пропитками.
ФОТО: apsheronsk.reklama-kuban.com
ФОТО: tosno-stroy.ru
ФОТО: ua.all.biz
ФОТО: krov-torg.ru
На видео можно более подробно ознакомиться с процессом строительства туалета из профнастила:
Watch this video on YouTube
Туалет на даче своими руками из кирпича: чертежи, размеры
Если вы решите использовать туалет не только летом, но и в холодный период, кирпич – это лучшее решение. Кроме того, он, в отличие от древесины, прослужит не один десяток лет. При желании, клозет можно дополнительно утеплить. Получится настоящее капитальное строение.
Туалет, построенный из кирпича, чертежи, схемы и фото которого представлены в нашей галерее, имеет крышу с небольшим уклоном. Её обязательно нужно вывести за периметр каркаса на расстояние около 150 мм.
ФОТО: rukozhopim.ru
ФОТО: rukozhopim.ru
ФОТО: beton021.ru
ФОТО: svoimi-rykami.ru
Весь процесс строительства ямы и туалета из кирпича можно посмотреть на видео:
Watch this video on YouTube
Деревянный туалет для дачи своими руками: чертежи и размеры
Если вы планируете построить отхожее место из древесины, её обязательно следует обработать защитной пропиткой. Брус сечением не менее 40×60 мм используют для каркаса, в качестве обшивки подойдёт любой материал. Мы подобрали несколько интересных чертежей с размерами, которые можно взять на вооружение.
ФОТО: hozferma.ru
ФОТО: beton021.ru
ФОТО: vashbiotualet.ru
ФОТО: pinterest.ru
Как своими руками сделать основание из бетона для туалета на даче: размеры, чертежи
Многие владельцы предпочитают покупать готовые кабинки из дерева, для которых потребуется сделать фундамент с ямой самостоятельно. Основание из бетона – это лучшее решение, оно прослужит не один десяток лет. В зависимости от размета туалета, наличия дополнительных пристроек и типа грунта, можно выбрать один из наиболее удобных вариантов.
ФОТО: remontiruj-info.ru
ФОТО: stroypomochnik.ru
ФОТО: nedvigdom.ru
Формы туалетов
К основным формам дачных туалетов относятся следующие конструкции:
- «Скворечник»;
- «Избушка»;
- «Шалаш»;
- «Домик».
«Скворечник» – самый простой тип с односкатной крышей, для создания которого не потребуется много времени и сил. Представляет собой шаткую деревянную конструкцию, легко продуваемую ветром. Лучшее решение, если туалетом пользуются только в теплое время года.
Дачный туалет Скворечник
«Избушка» – более сложна постройка. Благодаря граненой форме сохраняет тепло даже в мороз, но предполагает значительный расход материалов из-за немалого числа подрезок. Популярность таких строений на дачах обусловлена огромным количеством вариантов дизайнерского оформления, позволяющих вписать сооружение в интерьер любого участка. Другое название такого туалета – «теремок».
Дачный туалет Избушка
«Шалаш» – прочная двухскатная конструкция, имеющая защиту от ветра. Читается наиболее экономной конструкцией с точки зрения расхода строительных материалов.
Дачный туалет Шалаш
«Домик» – еще одна интересная форма, наиболее комфортный и теплый вариант. Расход материалов и объем земляных работ относительно невелик. Строение хорошо сохраняет тепло и отличается высокой прочностью.
Дачный туалет Домик
Как сделать пудр-клозет?
Подобный туалет не требует обустройства выгреба. Вместо него используется специальная емкость, устанавливаемая под стульчаком. При заполнении до определенного уровня емкость попросту достается и очищается.
В помещении туалета следует установить емкость с опилками, сеном либо торфом. Эти материалы нужно будет засыпать в унитаз после каждого похода в туалет, чтобы уменьшить интенсивность неприятных запахов.
Пудр-клозеты предельно просты и удобны в эксплуатации. Для полноценного использования уборной в ней должна быть организована качественная вентиляция.
При желании через 2-3 года можно будет «переехать», обустроив чистую емкость на новом месте и засыпав старый выгреб землей. Четвертый раз «переезжать» можно будет уже на самое первое место. За эти годы отходы полностью перегниют.
Древесина является прекрасным материалом с множеством преимуществ, но она имеет один серьезный недостаток — в течение своей службы материал несколько деформируется и изменяется в размерах. Через какое-то время между досками, использованными для обшивки стен дачного туалета, появятся щели. Для их маскировки можно использовать узкую рейку. Достаточно просто набить такие реечки поверх щелей и проблема будет решена.

Отдельная особенность люфт-клозета – наличие вытяжной вентиляции выгреба, которая не допускает проникновение сторонних запахов в помещение
Таким образом, в самостоятельном обустройстве дачного туалета нет ничего сложного. Можно сделать как элементарную конструкцию на основе выгребной ямы, так и более современный и совершенный по своим характеристикам туалет. Выбор за вами!
Каким он может быть
Существует несколько типов отхожих мест для дачи:
- С выгребной ямой
- Люфт- и пудр-клозет
- Биотуалет
У каждого из них есть свои определенные преимущества и недостатки. Так, например, на севере нашей страны наиболее оптимальным вариантом считается люфт-клозет. Его конструкция является чем-то средним между квартирным туалетом и классической уличной будочкой с выгребной ямой. В южной части России, где разложение отходов жизнедеятельности происходит намного быстрее, такая система уже не будет хорошим вариантом. Зато биотуалет может стать удачной его заменой.
Выбор типа клозета зависит от многих факторов, в том числе и от платежеспособности владельца дачного участка. А построить дачный туалет, используя чертежи, не так уж и сложно. Это может быть как простой сельский вариант или обычный септик, так и современная конструкция.
Строим туалет из дерева
Поскольку деревянное строение является легким, ему не требуется капитальное основание в виде плиты или железобетонной ленты. Главная задача фундамента – изолировать конструкцию от земли и не дать ей опрокинуться от порывов ветра. А для этого достаточно разметить и выровнять площадку, а затем установить 4 столбика из блоков, вкопанных в грунт и выведенных в одну плоскость, что и сделано на фото.
После выравнивания столбчатого основания поверх блоков укладывается 2 слоя рубероида (гидроизоляция) и начинается монтаж каркаса. Пошагово технология строительства выглядит так:
- Выполните обвязку фундаментных столбиков брусом 100 х 50 мм, соединив балки между собой в полдерева. Прикрепите их к блокам анкерными болтами.
- Прибейте по периметру обвязки брус 60 х 40 мм, после чего установите 4 вертикальных стойки из того же материала. Причем передние должны быть выше задних на 15—20 см для обеспечения уклона крыши. Опоры фиксируйте с помощью стальных уголков и саморезов.
- Выдерживая вертикаль, соедините концы стоек кровельными поперечинами, выступающими за габариты туалета на 10 см. Дополнительные перемычки поставьте на высоте 0,9—1 м, а затем смонтируйте ребра жесткости (укосы) из того же бруса.
- Настелите пол из досок толщиной 3—4 см, предварительно вырезав посередине очко.
- Свесы кровельных брусьев соедините перемычками, уложите сверху лист рубероида и настелите кровельное покрытие из профлиста, металлочерепицы или шифера.
- На переднем фасаде смонтируйте дополнительную стойку и навесьте на нее дверь. Последняя сколачивается из подручных лесоматериалов. Теперь остается обшить стены вагонкой или обычными досками.
В таком же порядке сваривается либо скручивается болтами каркас из металлических профильных труб, который впоследствии обшивается профнастилом или плоским шифером. Вместо традиционного и не слишком удобного стульчака мы рекомендуем приобрести и поставить дачный унитаз. От обычного он отличается отсутствием водяного затвора, который промерзнет зимой.
При необходимости туалет на даче можно дополнить смежной кабинкой для летнего душа. Понадобится немого расширить строение, а на обвязку пустить брус сечением 100 х 100 мм. Для возведения перегородки между кабинками нужно установить дополнительную балку, как это реализовано на фото.
Доступно о строительстве сортира рассказывается в очередном видео:
Что учесть при разработке проекта?
Как и для любого другого сооружения, для совмещенного туалета с летним душем в первую очередь готовят проект. При его разработке следует учесть такие нюансы:
- Планировка должна быть удобной. Для каждого помещения предусмотрены отдельные входы, поэтому нужно позаботиться, чтобы доступ к обеим дверям был свободным. Туалетом и летним душем должно быть удобно пользоваться. Если в семье есть дети, пожилые люди или инвалиды, нужно учесть и их потребности.
- В проекте учитывают особенности стройматериалов, отделки. От этого зависят нагрузки на будущие конструкции и, соответственно, выбор типа фундамента.
- Площадь и высоту помещений рассчитывают, исходя из личных потребностей членов семьи. Чаще всего строят конструкции 2,75х2 м или 3х3 м. Высота может быть 2 или 2.5 м в зависимости от роста членов семьи. Слишком низкие помещения некомфортны, а в излишне высоких бывает трудно доставать до лейки душа.
Расчет площади также зависит от количества сантехнических приборов и мебели. Если построить просторные помещения 1,3х2 м, то места хватит для душевой кабинки, скамейки, полочек и умывальника. К тому же прямоугольная форма облегчает задачу по расстановке предметов мебели и сантехники.
При проектировании нужно учитывать, в какую сторону будет открываться дверь в каждое помещение. От этого зависит выбор места установки умывальника и возможность одновременно входа людей в туалет и летний душ
Чем тщательнее будет разработан проект, тем удобнее и долговечнее получится конструкция. Не стоит начинать строительство раньше, чем будет продумана каждая мелочь, ведь достраивать и перестраивать гораздо сложнее и дороже, чем один раз обеспечить все необходимые удобства.
Где разместить дачный туалет нормы размещения на земельном участке
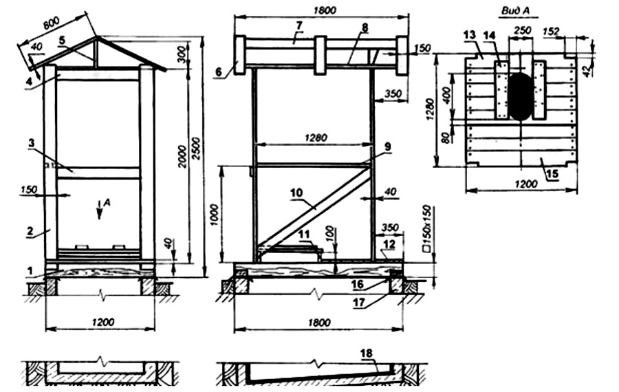
Как сделать самый простой туалет на даче своими руками
Самой простой конструкцией для постройки своими руками считается туалет-скворечник с выгребной ямой. Для постройки туалета потребуются следующие материалы и инструменты:
Материал. | Инструмент. |
Брус сечением 100х100 мм – 6 шт. | Молоток |
Брус сечением 50х100 мм – 2 шт. | Гвозди |
Доска для обшивки толщиной от 1 см. | Ножовка |
Доска для пола толщиной от 5 см. | Рубанок |
Для кровли крыши потребуется шифер или металлические листы. Для выгребной ямы нужен бетон и глина, а также 2 лопаты. Одна совкового типа, другая прямая.
Пошаговая инструкция по строительству туалета для дачи своими руками:
На расчищенной территории вырывают котлован, размеры которого должны быть больше предполагаемых параметров ямы на 40 см. Такой отступ нужен для сооружения люка для очищения. На дно укладывают смесь глины с песком. Масса должна напоминать однородную пасту. Это необходимо, чтобы предотвратить проникновение отходов почву.
В незастывшую смесь устанавливают столбцы из бруса (100х100 мм). Они нужны для усиления бетонных стен, их концы не должны выступать за пределы верхнего края ямы. Когда смесь застынет, нужно забетонировать стены. Для проведения вентиляции в верхней части стены оставляют место и устанавливают металлическую трубу, конец который должен выводится наружу.
Замечание! Стены можно укрепить кирпичом. В этом случае необходимо использовать раствор, чтобы кладка получилась герметичной. Затем кирпичи покрывают штукатуркой, которая способна выдержать агрессивные условия.
Следующим этапом в постройке становится основа каркаса. Ее устанавливают со сдвигом на 40 см, чтобы получить доступ к очистному люку. Между землей и основой должен быть фундамент. Для простой деревянной конструкции можно использовать настил из рубероида, сложенного в 2-3 слоя. Таким образом, дерево будет меньше подвергаться коррозии. Другой вариант защиты основания – установка на бетонные блоки.
Начинается сборка каркаса. Сначала собирают заднюю стену с перемычками, к которой будет приставлен стульчак. Конструкцию прикручивают или прибивают на гвозди к основе каркаса. Для надежности соединения можно укрепить металлическими уголками. Следующим этапом становиться сооружение передней и боковых стен
В передней стене важно установить балки в дверном проеме. Они должны располагаться по ширине дверной коробки с 1-2-сантиметровыми припусками
Это необходимо для того, чтобы предупредить искажение стен во время затяжных дождей.
Замечание! Задняя стена туалета должна быть ниже передней на 10 см.
Далее застилают пол в туалете и собирают стульчак. Толщина доски для пола не должна быть меньше 5 см.
После сборки каркаса туалет нужно обшить доской. Можно сделать обшивку вертикальной, такой вариант экономит материал. В горизонтальной обшивке стен доски располагают внахлест или параллельно друг другу. К деревянному каркасу можно прикрутить листы металла или шифер. Такой способ обивки сэкономит время и средства.
После обшивки кроют крышу. Важно, чтобы ее края не заступали за пределы стен дальше, чем на 25 см. Сначала на потолок прибивают доски на расстоянии друг от друга. Они будут служить укрепляющими балками. На них укладывают слой рубероида, а затем прикручивают шифер или металлические листы.
Завершающим этапом в постройке туалета для дачи своими руками становится установка двери. Ее изготавливают из того же материала, что и обшивка. Выбирают наиболее удобную сторону для открытия, прибивают 2 петли и навешивают дверь. Изнутри устанавливают шпингалет или крючок. Снаружи чаще всего делают простую вертушку.
Замечание! Не рекомендуют устанавливать металлический шпингалет снаружи. Такие элементы быстро ржавеют и с трудом открываются.
В туалете нужно установить освещение. Для этого можно приобрести специальные фонари, работающие от батареек, а при возможности провести в кабину электричество, несложно подвесить обыкновенную лампу с выключателем.
Типовые проекты дачных туалетов

В основном для создания проекта дачного туалета используют такие типы конструкций:
- туалетный домик с выгребной ямой,
- биотуалет,
- пудр-клозет.
Каждая из этих конструкций имеет свои преимущества
Именно поэтому так важно перед началом строительства определиться с типом
Дачный туалет с выгребной ямой
В проекте обязательно нужно предусмотреть котлован. Также нужно позаботиться об его обустройстве. Для этого может использоваться пластиковая бочка или кирпичная кладка, усиленная арматурой.
В проекте вы должны предусмотреть нужное количество кирпича и цемента, также не забывайте про арматуру. Созданные вами стены впоследствии покрываются штукатуркой. Именно яма задаёт характер наземной постройки. Обычно это небольшой деревянный домик, созданный из подручных материалов. Он может быть в форме шалаша, миниатюрного дома и даже теремка.
Согласно данному проекту дачного туалета, все отходы будут скапливаться в яме. Для её дальнейшей очистки понадобится ассенизатор. Главным недостатком проекта является неприятный запах
Именно поэтому очень важно ещё на стадии планирования предусмотреть вентиляцию
Вентиляция может быть, как естественной, так и принудительной. В первом случае в конструкции делается два отверстия снизу и сверху. Их предназначение крайне простое — создавать воздушные возмущения. Таким образом, неприятный запах не будет надолго задерживаться внутри.

Принудительная вентиляция — это простой вентилятор, который выдувает все неприятные запахи из туалета. При его установке нужно подумать об компенсационном отверстии, через которое воздух будет проникать внутрь. Его диаметр должен быть не меньше диаметра вентилятора. Всё это прописывается в проекте.
Важно. Не забывайте про выгребную яму
Она также нуждается в циркуляции воздуха
Для этого устанавливается вентиляционная труба
Она также нуждается в циркуляции воздуха. Для этого устанавливается вентиляционная труба.
Пудр-клозет
При создании данного проекта дачного домика выгребная яма не предусматривается. Все отходы собираются в резервуар под стульчаком. Лучше всего в конструкцию включить две ёмкости разного размера. В меньшей нужно сделать несколько разнокалиберных отверстий и вставить её в большую ёмкость, с боку которой будет круглый выход. В него подключается дренажный шланг.
Через шланг жидкость уходит в землю или дренажную систему. Главную роль в этом проекте дачного туалета играет вместилище для наполнителя. В качестве смеси чаще всего используют торф. Наполнитель помогает сдерживать неприятные запахи. Как только резервуар наполнится, его следует вынести на компостную кучу.

Когда вы будете делать чертёж, в нём важно учесть удобство извлечения контейнера. Есть два возможных варианта решения этой проблемы
В первом из них резервуар изымается при поднятии сиденья
Во втором сзади постройки вырезается небольшая дверца. Она позволяет без особых сложностей изымать заполненную ёмкость
В первом из них резервуар изымается при поднятии сиденья. Во втором сзади постройки вырезается небольшая дверца. Она позволяет без особых сложностей изымать заполненную ёмкость.
Биотуалет
Здесь даже строить ничего не нужно. По факту вы покупаете готовый проект дачного туалета. Всё что вам нужно это установить изделие в удобном месте. При этом можно приобрести как готовую конструкцию, так и целую кабинку.
Совет. Готовая конструкция легко устанавливается даже в доме. Всё что нужно сделать — это позаботиться о дренаже.
Душ и туалет под одной крышей
Сейчас большой популярностью пользуются проекты дачного туалета, совмещённого с душем. Это особенно выгодно с точки зрения финансов. К тому же подобный проект позволяет в значительной мере сэкономить свободное пространство на участке.

В проекте туалет с душем будут иметь одну общую стену. Результат — экономия строительных материалов. При этом санузел может работать как на основе резервуара со смесью, так и на базе выгребной ямы.
Выбор места: нормы размещения на дачном участке
Местоположение уличного туалета играет важную роль. При его определении руководствуются множеством факторов. Если в загородном доме проживают не более двух человек, можно обойтись биотуалетом, люфт-клозетом. Для полноценной семьи, посещающей дачный участок на выходных, проживающей там сезонно, без выгребной ямы не обойтись. При сооружении таких построек следует соблюдать следующие правила:
- СНиП 30-02-97. Пункт 6.8: уборные должны располагаться на удалении не менее 12 м от жилой постройки, погреба. Расстояние от колодца должно превышать 8 м. При этом данные нормы учитываются для объектов, расположенных на соседнем участке.
- СанПиН 42-128-4690-88. В документе приведены требования, предъявляемые к постройке, устройству выгребной ямы. Ее дно располагается выше уровня грунтовых вод, глубина не должна превышать 3 м, стены колодца выкладываются из кирпича, блоков, либо обустраиваются бетонными кольцами. У шахты предусмотрено дно, гидроизоляция, например, в виде слоя штукатурки. Наземная часть строения выполняется из кирпича, дерева, газо-, пеноблока.
- СП 42.13330.2011. В пункте 7.1 оговаривается, что при отсутствии централизованной канализации расстояние от отхожего места до соседского частного дома и источника водоснабжения составляет минимум 12 м и 25 м соответственно.

Простой туалет на участке без выгребной ямы –пошаговая инструкция
Копка выгребной ямы может доставить серьезные трудности
В таком случае стоит обратить внимание на конструкцию без таковой
В этом случае строительство выполняется в следующей последовательности:
1. Возводится каркас и производится его обшивка;
2. Монтируется кровля;
3. Выполняется внутренняя отделка. Застилается сплошной пол, без какого-либо отверстия;
4. Монтируется стульчак либо устанавливается уже готовый биотуалет. В первом случае предусматривается способ обеззараживания отходов.
Чаще всего для дачных туалетов выбирается зола и торф, емкости с которым устанавливают непосредственно на полу туалета либо помещают под стульчак. Сидение в таком случае выполняют подъемным.
Туалет с душем под одной крышей
Когда мы строим уличный туалет – это не единственная «сантехническая постройка» на участке. Нужен еще и летний душ. Совмещенный санузел на дачном участке – это хорошее решение, особенно если хочется сэкономить место.
В этом случае придется внимательно отнестись к деталям:
- необходим чертеж дачного туалета из дерева с точными размерами, чтобы отхожее место и душ были одинаковыми и выглядели привлекательно;
- хороший унитаз для дачного туалета очень важен, чтобы неприятные запахи не пробивались наружу и не чувствовались в душе;
- по той же причине нужна и хорошая выгребная яма (или септический бак).
Кроме удобства использования, у наружного совмещенного санузла есть еще одно достоинство – экономия материалов при строительстве.
Дачный туалет со стульчаком и душем
Особенности совмещенной душевой и туалета для дачи
Хозблок для дачи является первой постройкой, поэтому совмещает в себе сразу несколько подсобных помещений. Сооружают некоторое количество отсеков для проживания, хранения инвентаря, гаража, иногда совмещая с зоной отдыха.
Перед началом строительства выясняют, какие потребности есть у владельца дачи, и какие функции будет выполнять бытовка:
- душ;
- туалет;
- сарай;
- мастерская;
- хранение садового инвентаря и строительных инструментов;
- дровник;
- гараж;
- жилое помещение.

После выяснения потребностей составляют проект будущей конструкции с планировкой всех необходимых функциональных назначений отсеков.
Выбор материала для строительства
Выбор материала для строительства туалета на даче играет важную роль в обеспечении его долговечности, прочности и удобства использования. Рассмотрим несколько популярных опций.
Дерево
Дерево — это классический материал для строительства дачных туалетов, который предлагает несколько преимуществ:
- Легкость обработки. Дерево — это материал, который легко резать, скреплять и модифицировать, что облегчает процесс строительства.
- Эстетический вид. Деревянные туалеты выглядят природно и уютно, и могут быть окрашены в любой цвет.
- Доступность. Дерево — это относительно дешевый материал.
Металл
Металл, особенно оцинкованный, также может быть хорошим выбором для строительства туалета на даче:
- Долговечность. Металл обладает большей прочностью и долговечностью по сравнению с деревом.
- Стойкость к влажности. Металл не подвержен гниению и не боится влажности.
- Пожаробезопасность. Металлический туалет не будет поддерживать горение.

Пластик
Современные пластиковые конструкции также занимают достойное место среди материалов для строительства дачных туалетов:
Легкость. Пластиковые туалеты легко переносить и перемещать.
Гигиена
Пластик легко очищается и стерилизуется, что важно для поддержания гигиены.
Вариативность. Пластиковые туалеты доступны в различных формах и размерах.
Независимо от того, какой материал вы выберете для строительства дачного туалета, важно учесть его особенности и адаптировать дизайн и планировку под конкретный выбор. Удачного вам строительства!

Как построить выгребную яму
Когда место под будущий туалет выбрано, начинаем копать выгребную яму. Сделаем её размерами метр на метр, а вот глубиной полтора метра. Чтобы стенки ямы были ровными, лучше копать лопатой.
Стенки выгребной ямы в нашем варианте «Избушка» обшиваем дюймовыми досками. Обшивают яму разными способами, всё зависит от возможностей и имеющегося материала. Доски для обшивки сбиваются в щиты, для усиления конструкции набиваются поперечные бруски. Длина досок должна равняться высоте котлована.
Но, обычно этого никто не делает. Дно выгребной ямы посыпают щебнем, утрамбовывают его, и устанавливают щиты.
Как поступить вам – забетонировать или утрамбовать щебнем или битым кирпичом, решать каждому самостоятельно.
Важно! Детали сооружения, которые расположены со стороны выгребной ямы нуждаются в дополнительной обработке. Подойдёт для обработки битумная мастика. Это средство хорошо защищает материал от гниения и сырости
Это средство хорошо защищает материал от гниения и сырости.
Использование выгребной ямы позволяет часто не выкачивать жидкие нечистоты. Всё потому, что они впитываются в грунт. Правда, в этом проявляется и недостаток выгребных ям – есть риск, что земля пропитается стойким, очень неприятным запахом.
Но, спасибо прогрессу, что были разработаны биологические составы, которые естественным образом обеззараживают органические нечистоты. Это находка для выгребных ям! Продукция различных биосептиков содержит живые бактерии. Благодаря живым микроорганизмам происходит естественная переработка органических отходов, устраняется неприятный запах
А также, что очень важно, устраняется необходимость часто выкачивать нечистоты
Временный туалет на дачном участке
Если полноценный туалет на даче планируется построить позже, то временный вариант клозета станет отличным решением. Чаще всего такие модели сооружают во время строительства дома.
Временный туалет на даче можно соорудить из:
- фанеры;
- досок;
- гипсокартона;
- любых материалов, оставшихся после стройки.
Строится такой туалет на даче так же, как и постоянный. Но требования к теплоизоляции и комфортабельности сильно снижены, ведь эта уборная создается на короткое время. Емкость для нечистот – большое ведро или бочка, частично вкопанные в землю. А когда они заполнятся, можно будет построить садовый туалет для дачи своими руками на постоянной основе.
А какой туалет у вас?
Виды дачный туалетов по форме
Дачный туалет необязательно должен быть квадратной формы. Он может выполняться треугольным, ромбовидным, прямоугольным.
После выбора формы, важно подобрать качественный материал для отделки туалета
Скворечник
Самым распространенным вариантом дачного туалета является форма квадрата. Часто ее еще именуют «скворечник». Крыша у строения всегда односкатная:
- Стандартно под строение применяют доски в 40 мм. Сооружение выходит недорогое. Двери туалета надевают на петли верху или внизу.
- Петли могут быть наружного типа. Если они наружные и внушительные, то дверь будет походить на амбарную. Это достаточно уместно для грубого дачного дизайна.
- Конечно, туалетное помещение имеет одну функцию. Но туалет возможно сделать и немного привлекательнее, если добавить резного орнамента.
- Неплохо будет смотреться постройка по типу ветряной мельницы.
Шалаш
Подобный «шалаш» имеет вид треугольника. Его боковые стенки являются скатом кровли. Подобную конструкцию можно сделать за несколько часов.
Для туалета по типу «шалаш» его обшивка моделируется исключительно спереди и сзади.
Бока треугольника моделируются досками.
Избушка, домик
На постройку туалета по типу ромба уходит значительно больше времени:
- Снаружи каркас оббивают распиленными бревнами и толстой вагонкой.
- Когда применяют доску для облицовки, то накладывается она встык на несколько сантиметров на нижнее бревно по подобию еловой шишки.
- Не рекомендуется делать нахлест встык, потому что это будет не красиво.


































