Фундамент каркасного дома
Основой любого сооружения является фундамент. От его надежности напрямую зависит долговечность постройки. Каркасник можно возводить на одном из фундаментов:
- свайно-винтовом;
- мелкозаглубленном ленточном;
- плитном.
Свайно-винтовой
На этом фундаменте чаще всего ставят каркасные конструкции, что обусловлено его простотой и дешевизной. К тому же его можно сделать самостоятельно, возвести на любых грунтах, кроме скалистых. Он годится для болотистых участков, на которых плотные грунты залегают глубоко.
Мелкозаглубленный ленточный
Такое основание тоже нередко используется для каркасника. По затратам его обустройство выходит относительно недорого, плюс становится возможным залить бетонные полы. Чтобы фундамент справлялся со своей функцией, следует четко соблюдать технологию его монтажа. Такой тип не рекомендуется использовать на участках с высоким уровнем грунтовых вод и в болотистой местности.
Плитный
Фундамент в виде плиты для каркасных строений становится все популярнее. По стоимости он выходит гораздо дороже предыдущих вариантов, но у него есть немало положительных качеств:
- универсальность;
- долговечность;
- надежность.
Такой фундамент может служить черновым полом, что исключает необходимость дополнительных затрат. В целях экономии иногда вместо монолита прибегают к устройству плитной конструкции с элементами жесткости, что также позволяет усилить основание.
Укладка и утепление чернового пола
Основой чернового пола служат балки цокольного перекрытия. Их функцию выполняют брусья с сечением от 140х180 мм или доски размером не менее 160х50 мм. Идеальный вариант – материал с тем же сечением, что и элементы нижней обвязки.
Крепление балок перекрытия осуществляют “в полдерева”, делая соответствующие выпилы. Для дополнительной фиксации используют по два гвоздя на каждое место соединения брусьев.

Затем настил пола и его утепление выполняют по следующей схеме:
- Крепление черепных брусков к нижней части балок.
- Фиксация на них досок чернового пола.
- Гидроизоляция балок и настила с помощью плотного полиэтилена.
- Укладка утеплителя в образованные брусьями ячейки.
- Монтаж пароизоляции.
- Настил фанеры, половой доски или OSB-плиты.
Такой “пирог” готов к чистовой отделке на финальной стадии самостоятельного строительства каркасного дома.
Технология каркасного строительства: особенности
Каркасный дом для круглогодичного проживания представляет собой лёгкое строение с утеплёнными стенами и кровлей. Его возведение не требует специфических строительных навыков. Необходимо уметь работать шуруповёртом, молотком, пилой, измерять уровень.
Собранный по финской технологии.
Самая сложная работа при строительстве каркасника, которая требует физических усилий и некоторых строительных навыков – это укладывание или заливка фундамента. Здесь присутствуют также грунтовые работы — выемка грунта и отсыпка ямы песком.
После заливки фундамента и его выстаивания приступают к сборке каркаса, стен, кровли, прокладыванию инженерных коммуникаций. Относительно небольшой вес стен и кровли позволяют приступить к строительству раньше чем через 28 дней. Уже через неделю после заливки бетона на готовом основании можно возводить каркасные стены.
На заметку
Утепление стен и кровли производится в процессе строительства. Также в процессе монтажа простенков прокладывают инженерные сети. А при монтаже внутренней обшивки стен используют те стеновые материалы, которые позволяют выполнить стеновую отделку без дополнительного выравнивания стены.
Комплекс перечисленных мероприятий позволяет получить каркасный дом в течение месяца после начала его постройки.
Стоимость строительства и смета на материалы
Стоимость строительства каркасного дома определяется его размерами и выбором строительных материалов. При одинаковых размерах стен и кровли на цену строения будет влиять выбор утеплителя и стеновой отделки, материала кровли, наружный дизайн стен и внутренняя отделка помещений. Перечень строительных материалов, их размеры и характеристики содержаться в проектной спецификации (смете).
Смета первого этапа строительства.
Стоимость постройки каркасного дома рассчитывается исходя из перечня строительных материалов (по спецификации) и строительных работ (из описательной части). К полученной смете добавляют цену проекта.
Правила строительства
Проекты каркасных домов для круглогодичного проживания выполняются в строгом соответствии с нормами строительства. В свою очередь, нормы и правила определяют содержание – количество чертежей и спецификаций, подробность описаний.
Планировка постройки в разрезе.
Грамотный проект разрабатывается по требованиям СНипов с учётом норм пожарной, экологической безопасности, медицинских требований. Кодекс градостроительства РФ предусматривает обязательную разработку проекта и сметы на любое масштабное строительство, капитальный ремонт, реконструкцию.
Исключения составляют постройки, предназначенные для проживания одной семьи, высота которых не превышает 3-х этажей. Однако проект обеспечивает качество и долговечность будущего строения. А если застройщик сам не является профессионалом, то использование проектной документации снимает с него необходимость вникать в расчёты и обоснование выбора. Поэтому для возведения каркасного дома своими руками лучше иметь готовый строительный проект.
Частые ошибки
Во время проектирования неопытные владельцы участков допускают ошибки:
Начинают стройку без проекта – часто это заканчивается лишними затратами. Без чёткого планирования невозможно рассчитать, сколько материала потребуется для изготовления того или иного узла, элемента. При этом не учитываются локальные нагрузки, действующие на важные точки здания. Это может окончиться трагедией – дом деформируется и рухнет.
Неправильный расчёт общих размеров по отношению к толщинам стен и перегородок. Многие забывают, что стены состоят из нескольких слоёв, в результате схема оказывается неверной.
Ненадлежащий расчёт конструкций. Иногда планируют устройство чрезмерно мощного фундамента под небольшой домик, а иногда – наоборот – двух или трехэтажное строение делают из слишком тонких или некачественных элементов (металлопрофилей, досок, брусков). В первом случае впустую тратятся значительные средства, а во втором – возникает риск обрушения дома.
Ответственные узлы строят из сырого дерева – через год из элементов выйдет влага, а затем древесина будет деформироваться. В лучшем случае всю постройку перекосит и потребуются значительные переделки.
Рекомендации
Строительство из древесных материалов без предварительной антисептической обработки недопустимо – даже в самом правильно спроектированном каркасном или обычном деревянном доме неизбежно будет выпадать определенное количество конденсата на разделах (границах) сред, которых в каркасных домах гораздо больше, чем в постройках из традиционных массивных материалов. Увлажненное дерево, содержащее в своей структуре органические элементы (полисахариды), становится отличной питательной средой для различных форм микрофлоры и микрофауны, представители которой легко могут разрушить волокна древесины за небольшой (1-2 года) промежуток времени.
Цены на средства для защиты древесины
Пропитка для дерева
Утепление пирога вертикальных каркасных стен допускается лишь жесткими плитами строительного утеплителя. Засыпные и рулонные материалы из-за усадки и перемещения вниз со временем могут использоваться только на горизонтальных частях или в кровлях с уклоном до соотношения 1:5.
При использовании экономичных версий плит утеплителей малой плотности рекомендуется для предупреждения сползаний закреплять каждый ряд плит распорками между плитами. Такое решение сделает конструкцию более дорогой, увеличит теплопроводность стен, поэтому выгодно использовать качественный утеплитель более высокой плотности. Размер проемов между стоек каркаса не должен превышать поперечный размер плит утеплителя – 600 мм. Еще лучше, если размер проема уменьшен до 590 мм, чтобы исключить щели между стойками и плитами утеплителя. Нельзя заполнять стены обрезками утеплителя – будет много щелей.
Перекрытие
Принципиально при строительстве дома технология устройства перекрытия схожа с процессом монтажа пола. Поставленные «на ребро» доски, закрепленные в верхней обвязке, служат балками. Также применяется деревянный двутавр, брус или кругляк, обрезанный с боков
При расчете сечения важно придерживаться правила, гласящего, что оно равно 1/20 или 1/25 величины пролетов. Иными словами для помещения 6х4 метра размеры несущих балок должно быть 20 см. При этом они монтируются на расстоянии 60-80 сантиметров
При этом они монтируются на расстоянии 60-80 сантиметров.
Если используется брус, разрешается увеличить шаг до 1000 мм. по продольным осям. Лучше, если все элементы монтируются заподлицо. Тогда обеспечивается максимальная жесткость каркаса. Для крепежа используют металлические оцинкованные или алюминиевые кронштейны. Тип монтажа – встык с обвязкой. Правильность размещения проверяется электронным нивелиром или жидкостным уровнем. Пошагово, когда строится деревянный домик, процедура монтажа перекрытия выглядит так:
- По периметру здания устанавливается лобовая доска сечением 50 на 200 мм.
- Вдоль комнаты монтируется продольная балка посредине площади помещения.
- С шагом в 60 см укладывают лаги, которые в торец стыкуются в лобовой доске.
- Все соединения скрепляются воедино кронштейнами и гвоздями (саморезы нежелательны).
Когда габариты помещения превышают 6 метров. В качестве продольной балки используют клееный брус. Он более устойчив к изгибу под действием поперечных нагрузок.
Стропильная система и кровельный материал
Поэтапно монтаж лаг, стропил и кровельного пирога выглядит так:
- Закрепляются торцевые опоры для конька и стропил. Заранее выпиливают паз для сочленения с лобовой доской.
- Между крайними элементами натягивают шнурок, служащий ориентиром для постановки средних коньковых конструкций.
- Конек – это брус 50х200 мм. Его нужно состыковать над опорной конструкцией, чтобы не произошло искривление.
- Наносят разметку для определения мест монтажа элементов стропильной несущей конструкции.
- Нарезанные по шаблону стропила монтируют с опиранием на коньковый брус и мауэрлат.
- Организовывают дополнительное усиление посредством установки опор под наклонные балки, ветровой ригель, стропильные «ноги».
- Набивают или привинчивают карнизную планку.
- Прокладывают пароотводящую пленку полосами внахлест по 15-20 сантиметров.
- Монтируют брусок контробрешетки сечения 40х50 мм, по нему – доску обрешетки 25х100 мм с шагом 25-30 см, что соответствует длине волны металлочерепицы.
Сначала к карнизным планкам прикрепляют крюки для крепления водостоков. 4 листа металлопрофиля укладывают без закрепления. Прикручивают их после того, как выровняют все стыки. В среднем для этого потребуется до 10 саморезов на каждые 2 кв.м. Теперь можно поставить коньковые накладки.
Состав проекта при каркасном строительстве
По каркасной технологии можно строить даже дома с несколькими этажами. Эти здания пригодны для постоянного проживания или коммерческих нужд. Их можно использовать круглый год или сезонно. Определяют предназначение строения заранее, отображая эту информацию в проекте.
Чертежи каркасных домов
В проектно-сметной документации содержится как текстовая, так и графическая составляющая. Первая часть включает подробное описание работ, перечень деталей, их спецификации.
Также в текстовую часть включены нормативные акты, регулирующие проведение расчетов для здания. Эта составляющая подразумевает указание стоимости каждого элемента и строительства в целом. Спецификация позволяет узнать об общей площади каркасного дома, а также о количестве необходимых материалов.

Важно! Графическая часть проекта включает множество схем, чертежей, эскизов и планов дома. Чертежи различают по степени детализации, в зависимости от требований заказчика

Чертежи каркасных домов для постоянного проживания содержат следующую информацию:
- схему распределения участка земли;
- детальную поэтажную схему размещения помещений внутри здания или план каркасного дома (объемно-планировочное решение);
- архитектурный проект или трехмерное изображение будущего дома на бумаге;
- схему установки кровли;
- поперечный и продольный разрез дома;
- схемы различных коммуникаций внутри дома – газоснабжения, электричества, вентиляции,
- водоснабжения и канализации, отопления.

Рабочая часть проекта
Любой проект включает эскизную и рабочую части. Последняя имеет три раздела:
- конструктивный;
- архитектурный
- инженерно-технический.
Конструктивный раздел включает список необходимых строительных работ и спецификацию всех материалов. В нем содержится подробный план фундамента, стен, перекрытий, кровли и других элементов.
Инженерно-технический раздел включает все данные относительно проведения различных коммуникаций.

Любой типовой проект не подразумевает привязку к местности, а является универсальным. Поэтому его необходимо адаптировать к конкретному участку. Это делают при помощи рекогносцировки местности, анализа рельефа, глубины залегания грунтовых вод, анализа почвы и других тестов.

Самой большой частью проекта является архитектурный раздел, включающий план участка, подробное описание и эскиз фасада, детальный план этажей с указанием точных размеров, указание всех лестниц, перегородок, окон, дверей, стен и т. д.

Весь проект и другие документы может создать и подготовить только специально образованный человек с наличием соответствующих разрешений на подобную работу. Можно обратиться как в строительную фирму, так и к частному лицу.
Тот, кто составляет проект, отвечает за его качество и правильность написания. Грамотно составленный проект сможет реализовать даже непрофессионал.
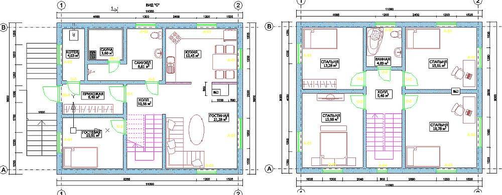
План типичного каркасного дома
Можно построить здание любых размеров, в зависимости от потребностей семьи, и выбрать любую из типичных планировок комнат внутри каркасного дома. Но в стандартном доме для семьи всегда есть коридор, кухня, гостиная, кладовая, гардероб, санузел, а также несколько спален.
Согласно современным строительным требованиям, для каждого человека в семье должно быть 20-23 кв. м. Это значит, что для стандартной семьи на 3-4 человека нужен дом площадью от 90 кв. м.
Наиболее оптимальное распределение площади:
- кухня – 20-30 кв. м;
- гостиная – 20-30 кв. м;
- спальня – 5-8 кв. м;
- коридор и санузел – по 2-4 кв. м;
- кладовая – 1-2 кв. м.
Конечно, это ориентировочное распределение внутренней площади, и каждый может поменять его под себя, но это нужно делать на этапе проектирования.

Важно учесть, насколько удобно будет подводить инженерные коммуникации в ту или иную комнату, где лучше всего расположить кухню и санузел, как будет проходить водопровод и канализация. Это все нужно решить до заливки фундамента
Каркасные дома хороши тем, что их легко можно перепланировать, в отличие от бетонных и кирпичных. Перегородки, не имеющие несущих функций, легко разбираются и переносятся в другое место. Благодаря этому планировку комнат можно менять, за исключением кухни и санузла, для которых требуются дополнительные коммуникации.
Из чего состоит чертеж?
План проекта предусматривает точный рисунок здания с соблюдением определенного масштаба. Как правило, план здания состоит из нескольких рисунков, которые демонстрируют объект с нескольких сторон: с фасада, торца и общий вид сверху. Для многоэтажного дома чертеж может быть более развернутым: отдельные листы для каждого этажа.
По своим функциональным особенностям рисунки делятся на несколько типов:
- Чертеж каркаса постройки;
- План подведения коммуникаций;
- Сборочный чертеж;
- Дизайн-документы (особенности интерьера, расстановка освещения и проч.).
Детально рассмотрим каждый из типов.
Нижняя обвязка дома
Если вы собрались строить каркасный дом своими руками, без нижней обвязки не обойтись. Она объединяет все элементы фундамента, если он столбчатый или свайно-винтовой,соединяет основание дома с его стенами, служит опорой для укладки пола.

Для устройства нижней обвязки используют брус 150х200 мм или связку из поставленных на торец досок. Пиломатериалы должны быть предварительно обработаны антисептиком и антипиреном.
На фундаменте их фиксируют с помощью анкерных болтов с широкой гайкой. Соединение брусьев между собой выполняют с помощью панелей или “в полдерева”, “в лапу”, дополнительно укрепляя их гвоздями, стальными уголками.
Теплоизоляция стен и крыши
К работам по утеплению стен и кровли следует переходить только после установки всех окон и дверей.
В правильном каркасном доме технология их выполнения схожа и сводится к созданию “пирога”, состоящего из нескольких слоев.

- Наружная обшивка. Это может быть фанера, ДВП, OSB, ЦСП или фасадная доска.
- Гидроизоляция. Необходима для защиты утеплителя от влаги с улицы.
- Теплоизоляционный материал. Это может быть пенопласт, экструдированный пенополистирол, минеральная вата и др.
- Пароизоляция. Обычно используют мембранную пленку, позволяющую отводить влагу из помещения.
- Внутренняя обшивка. Для этих целей подойдут: фанера, OSB, гипсокартон.
Крышу не обшивают снаружи листовым материалом. Его место занимает обрешетка, которая служит основанием для кровельного материала.

Утепление межэтажного перекрытия аналогично теплоизоляции чернового пола.
Элементы чертежа каркасного дома
Из чего состоит подробный чертеж каркасного дома? Из множества различных рисунков, каждый из которых имеет свое назначение.
Рассмотрим все основные элементы чертежа каркасного дома на примере двухэтажного жилого дома размером 7.2 на 7.2 м.
Объемная модель дома
Без соответствующего образования и навыков сложно сделать выводы об окончательном виде вашего будущего дома по инженерным чертежам. Поэтому первым чертежом является объемный рисунок будущего дома. Это позволяет заказчику выбрать из множества типовых проектов наиболее подходящий по внешнему виду. Даже дома «встречают по одежке».
В случае заказа проекта у специалиста вам могут предложить проект одного и того же дома с различными вариантами обшивки и кровли.
Планировка дома
После выбора внешнего вида дома необходимо определиться с планировкой. Это один из самых важных элементов проектирования, обеспечивающий комфортное проживание.
Здесь мы видим подробный план расположения всех основных стен и перегородок, размечены дверные проемы. В комплекте с прочими чертежами и спецификациями строительство дома превращается в работу с конструктором, который вы изготавливаете самостоятельно. В случае покупки домокомплекта у производителя на чертежах также указывается маркировка каждой балки.
Первым делом определяем бюджет и составляем проект каркасного дома
Проект каркасного дома из двойного бруса
Пошаговая инструкция как построить дом своими руками начинается с важнейшего этапа, пренебрегать которым нельзя ни в коем случае. Необходимо составить 2 вещи:
- проект здания;
- смету на расходы.
Для того, чтобы сделать проект, вполне достаточно базовых навыков черчения
Важно правильно рассчитать количество требуемых материалов, чтобы потом не пришлось докупать их в авральном режиме
Можно, конечно, приобрести материалы «с запасом», но тогда постройка дешевого каркасного дома своими руками окажется не такой уж дешевой.
Также можно купить готовый проект – многие строительные фирмы продают их по разумным ценам.
Что касается сметы, то ее составить очень просто. Все расценки на материалы и услуги есть в интернете. Остается только переписать их, а затем сложить на калькуляторе – и получится общий бюджет строительства. Не стоит забывать о таких вещах:
- стоимость услуг (доставка покупок на участок, работа электрика и т.д.);
- стоимость проводов и труб (зависит от того, насколько далеко придется их прокладывать – расстояние до центральной системы водо- или газоснабжения может быть внушительным);
- внутренняя отделка, осветительные приборы и мебель.
Стоит отдельно обозначить «верхний порог» бюджета. Для этого нужно учесть рост цен и примерно подсчитать, насколько они увеличатся на дату конца строительства
Для хорошей сметы, позволяющей недорого построить самый дешевый каркасный дом своими руками, это очень важно
Инженерные системы каркасного дома
Без инженерных коммуникаций каркасный дом будет темной и холодной коробкой. По этой причине необходимо знать, где и на каком этапе их прокладывают.
- Трубы отопительной и системы водоснабжения монтируют внутри каркасных стен. Делают это до их утепления. Трубу холодного водоснабжения помещают в гофрированный влагостойкий “рукав”, что связано с постоянным образованием на ней конденсата.
- Канализационные трубы монтируют в стенах и под полом. Их подвод к септикам предусматривают еще на этапе укладки фундамента.
- Кабели электропроводки располагают внутри стен, под навесным потолком или в каналах плинтусов.
- Прокладка скрытых электрокабелей может осуществляться только в специальных трубах и коробах. Эти работы также выполняют до теплоизоляции стен.




































