Создание индивидуальной летней кухни на даче своими руками
Существует множество алгоритмов создания летней кухни своими руками, но основные стадии строительства остаются неизменными: подготовительные работы, четкая разметка, устройство фундамента, установка опор, монтаж крыши и внутренняя отделка.

В летней кухне обустроен камин, который можно использовать для отопления в зимнее время года
Фундамент для будущей летней кухни
Если вы остановились на варианте легкой конструкции для летней кухни, то можно приступать к обустройству постройки своими руками. Прежде всего, необходимо сделать разметку и начать с фундамента. Так как строение легкое, нет необходимости в устройстве капитального фундамента. Можно выкопать своими руками котлован по периметру глубиной около 15 см. Засыпать щебнем или песком, утрамбовать и начать укладку тротуарной плитки или доски для пола планируемого павильона.
Ствол дерева в интерьере дачной кухни выполняет несущую и декоративную функцию
Полезный совет! Если для летней кухни используется открытая конструкция, то рекомендуется выполнить пол с небольшим уклоном, чтобы осадки, попадающие через открытые зоны, могли удалиться самотеком.
Закрытую и открытую части дачной кухни разделяет раздвижное металлопластиковое окно
В случае возведения на даче кухни закрытого типа с полноценными стенами, необходимо устройство своими руками ленточного или столбчатого типа фундамента. Для такой основы устраивают котлован глубиной до 50 см. Фундамент армируют и заливают раствором. Внутри периметра грунт выбирается, засыпается песком, потом щебнем и раствором.
Проект дачной постройки с обустройством гаража, хозяйственного помещения и летней кухни
Стены и крыша для летней кухни
Для того, чтобы возвести стены для летней открытой кухни, сначала строится каркас будущего помещения. Обычно его делают из деревянного бруса (15х15). По углам периметра в предварительно выкопанные ямы глубиной до полуметра по углам периметра устанавливают деревянные опоры, которые впоследствии заливают бетонным раствором. Между ними на металлические уголки крепят балки. После этого каркас зашивают материалом, выбранным для отделки. Рекомендуется выбирать прочные материалы, не требующие дополнительной обработки (сайдинг, пластик, профнастил).
Для строительства полноценного кухонного помещения необходимо обустройство фундамента
Если постройка предусматривает фундамент, то к нему крепится деревянная конструкция рамы, балки которой между собой соединяют уголками. Дальнейшие действия повторяют этапы, описанные выше.
Каркасный дом-кухня оформлен с применением деревянных отделочных материалов
Стены для помещений закрытого типа возводят из кирпича, камня или пеноблока. Толщина стен обычно берется в полкирпича. Внутренняя отделка также зависит от личных предпочтений: подойдет обшивка панелями или штукатурка стен. Все зависит от того, будет ли использоваться в помещении отопление или нет.
Стеклянная стена летней кухни позволяет закрытому помещению не терять связь с природой
Крыша для летней кухни обычно устраивается односкатная. Для этого обустраивается конструкция балок с разной высотой противоположных сторон. Для кровли открытых легких сооружений применяют соответствующую по весу черепицу, шифер или профнастил. Для закрытых строений, где используется более прочный каркас, подбор кровли ограничений почти не имеет.
Проект обустройства бани с летней кухней и террасой
Уютная и функциональная летняя кухня на даче станет любимым местом вашего отдыха, где всегда можно будет удачно совместить приятное с полезным.
Enter the text or HTML code here
Популярные цветовые решения
Выбор цветовой гаммы летней кухни во многом зависит от ее местоположения и тех объектов, что расположены рядом. Ведь объект должен органично вписываться в общую концепцию участка, сочетаясь с остальными постройками.

Материал для крыши подбирается исходя из бюджета и эстетических соображений
Главную цветовую нагрузку несет крыша летника. Это основное цветовое “пятно”, а потому выбор его оттенка должен быть обдуманным.
Как правило, на подобных объектах специалисты рекомендуют отдавать предпочтения светлым тонам. В таком решении есть ряд преимуществ. Во-первых, светлый цвет позволяет визуально увеличить размеры пространства, во-вторых, органично впишется в любой интерьер.
Комбинированные
Полуоткрытые летние кухни совмещают положительные качества закрытых и открытых построек. Вы по-прежнему на свежем воздухе, но уже не под всеми четырьмя ветрами.
Одна из стен может примыкать к дому или другой постройке, позволяя вам сэкономить на материалах. Две каменные стены дают возможность обустроить угловую кухню, удобную с точки зрения эргономики и размещения столовой.
Комбинированными также называются кухни, сделанные из разных материалов – например, до уровня окон идет камень или кирпич, а выше – брусы, каркасные технологии или панели.
Определившись с функциями и выбрав степень «закрытости» планируемой постройки, переходим к поиску наилучшего места для ее расположения.
Планирование строительства летней кухни на приусадебном участке
Выбирая подходящее место для постройки летней кухни на даче, необходимо учесть множество деталей — от самого проекта до оборудования, планируемого в ней расположить. Насколько она будет удалена от дома? Будет ли она пристроена к основному дому или это будет отдельная постройка в саду?
К сожалению, не все участки имеют достаточную площадь, и для постройки летней кухни придется пожертвовать частью огорода или сада. И уж конечно – финансовая составляющая, которую также следует учитывать. Однако даже небольшая летняя кухня может иметь эксклюзивный вид и прекрасно вписаться в общий ландшафтный дизайн.

Летнюю кухню закрытого типа можно использовать и в холодное время года
Собираясь обосновать на дачном участке летнюю кухню своими руками, следует учитывать в проекте следующие факторы:
- строение должно быть удалено от проезжей части, туалетов, септиков и мест разведения домашних животных;
- если планируется возведение в кухне мангала, печи или барбекю, необходимо позаботиться о том, чтоб рядом не было легковоспламеняющихся построек (противопожарными нормами предусмотрено минимальная удаленность 7 м от других строений при площади участка в десять соток);
Стены и печь дачной кухни облицованы искусственным камнем
- возможность обустройства летней кухни в зоне, где растут, дающие густую тень деревья, что обеспечит комфортное пребывание в ней;
- доступность подведения коммуникаций;
- тип строения — открытая конструкция или летняя кухня закрытого типа;
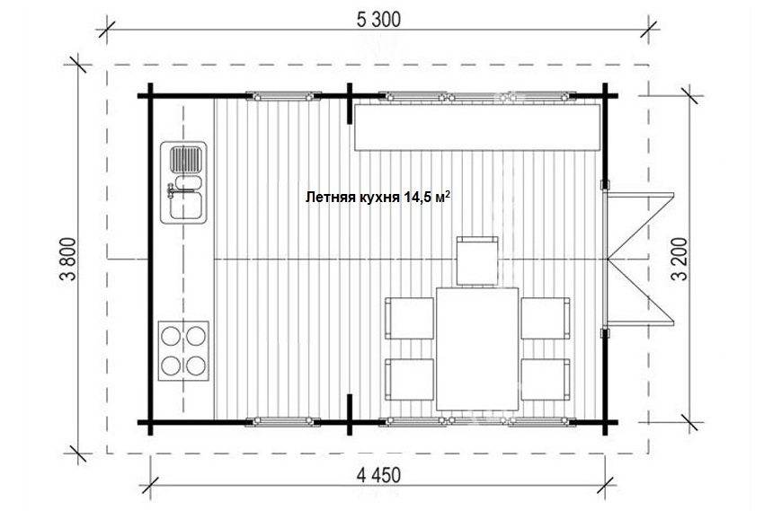
Проект отдельно стоящей летней кухни площадью 14,5 кв.м
- оснащение оборудованием — электропечь, газовая печь, камин, мангал, барбекю;
- выбор дизайна летней кухни.
Полезный совет! Планируя постройку летней кузни своими руками, учитывайте характерное для вашего региона направление ветра, стараясь расположить очаг так, чтоб дым не попадал в зону отдыха гостей.
Частично открытая летняя кухня, примыкающая к одной из сторон дома
Обустройство фундамента

Яма под фундамент глубиной около 35 см копается по будущему месту расположения кухни. Края её укрепляются досками опалубки, которые можно дополнительно укрепить опорными брусками для устойчивости с внешней стороны. На 5 см на дно ямы засыпается гравий и уплотняется.

Сверху укладываются 2 контура арматурного каркаса, связать которые можно на отдельной площадке. Арматурный каркас укладывается так, чтобы прутья не касались досок опалубки и заливается бетоном.

При заливке бетон нужно вибрировать вибратором (можно взять в аренду), чтобы в нем не осталось пузырьков воздуха. Далее фундамент нужно прикрыть пленкой и дождаться полного набора прочности.
Простая летняя кухня своими руками: 6 практичных проектов
В теплое время года мы все больше времени проводим на улице. Простая летняя кухня своими руками позволит нам перенести на улицу как семейные обеды, так и дружеские посиделки. Несмотря на то, что есть технически сложные варианты летней кухни, мы рассмотрим те проекты для летней кухни, которые потребуют от нас минимума затрат.
Простой вариант летней кухни для дачи доступен при любом бюджете и уровне вашего мастерства.
При желании, кухню можно сделать полностью закрытой, но тогда вы сможете пользоваться в ней только газовыми и электрическими печами, а мангал и барбекю на дровах можно расположить рядом с кухней.
Простая летняя кухня с барбекю и мангалом своими руками
Этот вариант летней кухни используется только для приготовления блюд на открытом огне. Он включает в себя барбекю, рабочий стол и раковину под навесом. Обеденная зона и мангал расположены на прилегающей площадке.
Для постройки летней кухни сначала была выровнена площадка, на нее уложен слой гравия и песка, а также забетонированы столбы под опорные столбы навеса.
На следующем этапе укладываем плитку на подготовленную площадку. В зоне, предназначенной под мангал, плитки не будет, она будет с песком, просто оформим края площадки бордюрной плиткой. Затем огнеупорным кирпичом выкладываем круговую кладку под мангал.
Устанавливаем навес: сначала опорные столбы, затем связываем их балками перекрытия, крыша навеса имеет уклон в сторону от площадки. Обшиваем каркас летней кухни деревянными планками.
Обкладываем мангал декоративной кладкой из натурального камня.
Устанавливаем крышу из шифера, обшиваем внутреннюю часть летней кухни магнезитовой плитой, предназначенной для наружных работ. Устанавливаем рабочий стол, раковину и барбекю.
Такая летняя кухня может сделана своими руками буквально за пару выходных дней.
Летняя кухня с барной стойкой
Проект этой летней кухни предусматривал навес для самой летней кухни и перголу для обеденной зоны. Летняя кухня включает в себя печь, барбекю и, в перспективе, печь для пиццы.
На примере этой кухни можно посмотреть, что летняя кухня своими руками может быть построена в несколько этапов. На первом этапе строится все, кроме печки для пиццы, которая пока есть только в планах, но нет умения ее строить и средств нанимать на ее постройку мастера. Ее отложили на следующий год.
Порядок работ стандартный — выравниваем площадку, бетонируем столбы под опоры, укладываем на площадку гравийно-песчаную подушку, вымащиваем площадку.
Т.к. летняя кухня расположена в тихом уголке сада, то решили не закрывать ее с трех сторон, а сделать только заднюю глухую стенку. Простая кладка их шлакоблоков формирует рабочую поверхность. Столешницу набрали из деревянного бруса.
Сам процесс строительства такой кухни весьма не трудоемкий и позволить себе такой проект летней кухни может любой дачник.
Простая летняя кухня около дома своими руками
В отличие от дачников, владельцы частного дома имеют серьезный плюс — им не надо никуда ехать и процесс стройки может быть более спокойный и размеренный. Строительство этой кухни начиналось с мощения этой красивой площадки перед домом натуральным камнем в сочетании с булыжником. Когда площадка была готова, было решено, что ее можно использовать и для летней кухни рядом с домом.
Сначала забетонировали столбы под опоры навеса и установили их. Все кухня будет сделана из бетонных плит и под них тоже забетонировали опорные площадки.
Для того, чтобы сделать бетонную столешницу, сделали опалубку, застелили ее пленкой, положили арматуру. Места под раковину и барбекюшницу обозначили емкостями соответствующих размеров. После того, как бетон застыл, сняли опалубку и зашлифовали края.
Возводим из бетонных блоков рабочий стол нашей летней кухни, подводим ввод воды в место, предназначенное под раковину.
Наша летняя кухня своими руками почти готова — установлена раковина, в правой части столешницы — место под барбекю, в левой более низкой части — место для мангала.
Дополнительно рядом с летней кухней соорудили шкаф для хранения.
Здесь будут хранится подушки с мебели, которая будет стоять в обеденной зоне.
Накрыли крышу летней кухни прозрачным поликарбонатом, закончили декоративный забор вокруг кухни, чтобы придать постройке более законченный вид.
Простая и красивая кухня своими руками может быть действительно сделана недорого и несложно.
Зато как приятно насладиться ужином на открытом воздухе в саду!
Поиск места под кухню
Место под постройку кухни выбирают с таким расчетом, чтобы было удобно подвести коммуникации, особенно если планируется это сделать своими руками. Надо помнить, что в этом месте семья будет проводить большую часть дневного времени, поэтому оно должно быть максимально комфортным и отвечать потребностям всех ее членов.При определении подходящего места стоит руководствоваться следующими принципами:
- Постройку лучше разместить в глубине участка вдали от дорог и глаз посторонних людей.
- При выборе легковоспламеняющихся стройматериалов следует соблюсти все правила противопожарной безопасности, тем более, если кухня пристроена к дому.
- Поскольку кухня является местом принятия пищи, то правильно будет ее расположить подальше от мест содержания животных, мусорных баков, туалетов и компостных ям.
- Удобно совместить ее с погребом, это очень упростит существование во время сезонных заготовок.
- Открытая летняя кухня или беседка должна быть расположена в тени деревьев или чем-либо защищена от солнечных лучей, это создаст комфорт и защитит от полуденной жары.
- Если возможно, строение лучше расположить так, чтобы был естественный сток дождевых вод.
Проекты кухонь
Существует большое количество проектов летних кухонь-столовых, которые можно без особенных затрат, построить на индивидуальном участке. Они отличаются планировкой, дизайном и строительным материалом. Летняя кухня может быть построена как пристройка к жилому дому или являться отдельным строением. Если исключить совершенно экзотические конструкции, то чаще всего сооружаются следующие виды летних кухонь:
- открытая;
- закрытая;
- с террасой;
- кухня-беседка;
- кухня-домик;
- с мангалом;
- с камином;
- с барбекю;
- с печью;
- с баней.
Кухня открытого типа представляет собой площадку для приготовления и приёма пищи, оборудованную плитой или мангалом. Стен у такой кухни нет. Крыша выполняется в виде навеса на столбах, но может и отсутствовать. Такая кухня удобна тем, что там всегда свежий воздух, но в непогоду там некомфортно.

Пример летней кухни открытого типа
Закрытая кухня летнего типа – это небольшое строение, стены которого могут быть выполнены из дерева, гипсокартона или другого материала. Капитальные кухни сооружаются из кирпича или пенобетонных блоков. В зимнее время, помещение используется как кладовая.
Кухня с террасой несколько сложнее в строительстве, так как включает в себя закрытый домик и террасу. В зависимости от климатических условий используется либо закрытое, либо открытое помещение. Часто терраса пристраивается позже, когда домик уже готов. Для кухни с террасой вполне подойдет индийский стиль интерьера.
Летняя кухня-беседка, как следует из названия, имеет двойное назначение. Здесь можно готовить пищу или просто отдохнуть. Такая конструкция, обычно, имеет только небольшой очаг для приготовления горячих блюд. Для оформления территории около кухни-беседки организуйте красивый цветник, варианты которого можно посмотреть тут.

Летняя кухня-беседка
Кухня-домик может быть построена из лёгких материалов или иметь капитальную конструкцию. Часто такие кухни используются в течение всего года. К кухонному домику подводится электричество, водоснабжение и канализация. Эта конструкция по стилю должна соответствовать жилому дому.
Мангал – металлическая конструкция для жарки мяса, получила в России широкое распространение. Чаще всего мангал используется для приготовления шашлыка на свежем воздухе. Мангал в летней кухне может быть стационарным или переносным. Поскольку мангал это открытая конструкция, летняя кухня должна иметь крышу на случай дождя.
Летняя кухня с камином представляет собой достаточно сложное инженерное сооружение. Правильно и красиво выложить камин может только профессионал. Камин обычно сооружается в закрытой кухне, причём установка камина предъявляет определённые требования к интерьеру.

Летняя кухня с камином
Барбекю почти то же самое, что и мангал. Конструкция предназначена для приготовления мясных продуктов на открытом огне. Сейчас барбекю в тренде и многие владельцы дачных участков оборудуют такой жаровней свои летние кухни.
Летняя кухня с печью традиционно используется не только в России, но и в большинстве стран восточной Европы. Обычно это классическая печь, где можно приготовить как первые, так и вторые блюда. Печь характеризуется тем, что блюда там не жарятся, а томятся при достаточно высокой температуре. А декоративное оформление включает в себя облицовку печи плиткой.
Летняя кухня с баней будет самым удачным вариантом на небольшом участке, когда его размеры не позволяют строить отдельно летнюю кухню и баню. Как построить баню из бруса расскажет эта статья. Кроме того такое объединение позволит сэкономить средства на строительстве. Печь, в таком сооружении, используется и для приготовления пищи и для разогрева парной. Также интересен вариант возведения бани-хамам, о постройке которого можно прочесть здесь.

Летняя кухня с печью
Строительство дачной кухни с беседкой
Летняя кухня, соседствующая с беседкой, в частном доме всегда выглядит уютно. На фото ниже представлен пример такой постройки.
На ней всегда приятно посидеть вечером с семьей или друзьями, поесть, поговорить, да и просто приятно провести время за мангалом или барбекю.
Самое главное, что летняя кухня своими руками строится легко.
Существует множество эффектных вариантов построек такого плана (например, с хозблоком). Материалы используются самые разные: можно сделать кухню-беседку из кирпича, бруса, цельной древесины, использовать ковку и т.д.
С точки зрения долговечности, безопасности и эксплуатации летняя открытая кухня из кирпича лучше, чем, например, из бруса. К тому же за деревом сложнее ухаживать.
Единственный недостаток кирпича — необходимость закладывать фундамент под постройку, в целом — стоимость беседки увеличится.
Но на этом, пожалуй, минусы заканчиваются, а список преимуществ у них гораздо длиннее, чем у построек из того же бруса. На фото внизу представлен пример летней кухни с кирпичной беседкой.
При планировании расположения кухни учтите все нюансы, включая направление ветра — дым от мангала или барбекю не должен идти на людей, сидящих за столом.
Если вы будете строить своими руками, то обязательно сделайте подробный чертеж, чтобы ничего не забыть, не перепутать и с первого раза все получилось так, как надо.
Второй этап — закладывание фундамента. Для открытой постройки подойдет любой: столбчатый, ленточный или сплошной. Закрытую же — первый тип не выдержит.
Видео:
Когда фундамент полностью высохнет, можно начать возводить стены из кирпича. На первый ряд рекомендуется положить слой гидроизоляции.
После каждого нового ряда обязательно проверяйте ровность уровнем. Кирпичную беседку вполне можно украсить коваными элементами или предметами декора, выполненными из бруса.
Когда опоры-стены будут готовы, переходим к полу, чтобы дальше можно было заняться мангалом или барбекю. Наилучший вариант напольного покрытия в такой кухне — обычная тротуарная плитка.
Финальный шаг — сооружение крыши. Мы предлагаем шатровую. Для начала — установите по центру временную опору для удерживания шайбы, к которой мы будем присоединять стропила.
Концы стропил крепятся к готовым столбам или стенкам. Для того, чтобы крыша не прогнулась зимой под слоем снега, ее нужно укрепить, установив поперечины из бруса.
Сверху крыша покрывается любым материалом — металлочерепицей, профнастилом, битумной черепицей, сайдингом и т. д. После этого центральная опора убирается.
На фото под данным разделом вы можете посмотреть, как выглядят беседки с подобным типом крыши.
Фото:
Возведение стен
Большое значение в процессе постройки играет выбор материала для сооружения стен. Если летняя кухня строится в виде лёгкой и открытой со всех сторон беседки, не имеющей стен, то она всё равно должна быть оснащена балками, предназначенными для удержания крыши. Очень простую конструкцию летней кухни, построенной своими руками, можно посмотреть на фото.
Деревянные
Дерево — лёгкий материал, идеально подходит для возведения летних сооружений. Они смотрятся изящно и органично в интерьере любого сада. Обычно используется деревянный брус. По периметру будущего домика устанавливаются деревянные опоры, между ними посредством алюминиевых уголков устанавливаются балки. Готовый каркас обшивают выбранной отделкой. Фото кухни, изготовленной из бруса своими руками можно увидеть ниже.
В качестве внешней отделки рекомендуется использовать сайдинг. Он легко устанавливается, защищает здание от неблагоприятных подобных условий и придаёт ему привлекательный внешний вид. Сайдинг может изготавливаться из дерева, ПВХ, металла, цемента. Внешне он может имитировать отделку натуральной древесиной или камнем.
Каменные
Камень — крепкий, надёжный и долговечный материал, стойкий к внешним воздействиям и не требующий специального ухода. Он идеально подходит для стен закрытой кухни. Кроме камня, дачники часто используют кирпич или пеноблок. Толщину рекомендуется делать в один кирпич или даже в полкирпича.
Если внутри строения будет установлена печка, её необходимо выложить кирпичом на этапе установки стен. Для печки используется шахматный кирпич, стойкий к высоким температурам, но при этом отлично проводящий тепло, а значит, быстро прогревающий пространство. Проекты закрытой летней кухне на даче с барбекю и мангалом изображены на фото ниже.
Комбинированный вариант
При строительстве открытой кухни, не имеющей стен, экономически выгодно использовать комбинированные материалы. Нижнюю часть столбов, предназначенных для поддержания крыши, можно возвести из камня, а верхнюю — из дерева. Так деревянная часть, располагаемая под крышей, будет защищена от большинства природных явлений.
Если вы намерены оборудовать летнюю кухню
Традиционные подходы, решения и проекты по строительству летних кухонь на приусадебном участке сегодня дизайнеры стараются заменить оправданными эконом проектами.
Проекты недорогих летних кухонь уже не представлены отдельностоящими или обособленными сооружениями. Благоприятное расположение рядом со стенами дома беседки, мангала или веранды, объединенное единой крышей, позволяет сэкономить на строительных материалах. Но не забывайте о гармонии внешней отделки вашего дома и летней кухни, т.е. если дом отделан эстонским облицовочным кирпичом , то и в отделке летней кухни тоже должен присутствовать тот же кирпич и т.д.
Экономный декор кухни
Оборудовать летнюю кухню можно практически из любых материалов, начиная от традиционного гипсокартона и заканчивая остатками камня или древесины. Для отделки можно комбинировать материалы, располагая более прочные материалы для элементов конструкции при защите от ветра или дождя.

Декорирование конструкций можно произвести с помощью кусочков клинкерного кирпича или плитки, панелей под дерево и камень. Для крыш веранд или беседок можно использовать тент из сваренных прутков, каркас которого надежно закрепляют. Дизайн летней кухни никогда не бывает скучным или однообразным.

Летняя кухня! Такое притягательное и уютное местечко приусадебного участка.
Совершенно не важно, являетесь ли вы дачником или просто приезжаете сюда отдохнуть, главное создать необходимые условия для отдыха на природе. Летом, проводя время на даче, конечно, хочется совместить приятное с полезным и объединить процесс готовки с отдыхом
Для этого просто нужно вынести кухню на улицу. Тогда домочадцы и гости смогут насладиться созерцанием процесса приготовления, а хозяйке будет не так жарко и скучно готовить
Летом, проводя время на даче, конечно, хочется совместить приятное с полезным и объединить процесс готовки с отдыхом. Для этого просто нужно вынести кухню на улицу. Тогда домочадцы и гости смогут насладиться созерцанием процесса приготовления, а хозяйке будет не так жарко и скучно готовить.
Здесь вы можете шаг за шагом увидеть все этапы строительства стационарной летней кухни на участке, которая прослужит вам и вашим детям долгие годы. Проекты летних кухонь могут быть открытыми и закрытыми.
Выбор материалов для помещения
Простую кухню, используемую в теплое время года, несложно построить самостоятельно. Для постройки может использоваться любой, имеющийся в наличии материал, например, тот, что остался после основной стройки. Веранда может быть включена в проект заранее или пристроена позже.

Проект летней кухни для дачи удачно сочетает в себе элементы столовой
Каркас обычно делают деревянным. Для внутренней отделки чаще всего берут дерево или камень, а также материалы, применяемые в ремонте квартир.
Дерево
Используется чаще всего. Хорошо сочетается с деревянным каркасом постройки. Пол в этом случае делают дощатым, а стены обивают вагонкой, которую желательно обработать влагоустойчивой пропиткой.

Проект летней кухни 5х5,5м с открытой террасой. Дерево идеально подходит для строительства летней кухни
Камень
Этот вариант отделки идеален для жаркого климата, так как создает изумительную прохладу. Такого эффекта можно достичь, сложив кухню из кирпича и оставив ее изнутри неоштукатуренной. В случае деревянного каркаса можно сделать облицовку натуральным камнем или «под камень».

В летней кухне из камня прохладно даже в жару
Вариант «как дома»
Можно использовать для летней кухни и обычные отделочные материалы: линолеум, ламинат, керамическую плитку. В самом простом варианте линолеум может быть положен просто на бетонную стяжку. Кроме того, пространство вокруг плиты выкладывается плиткой в любом случае, из соображений пожарной безопасности.

Для отделки летней кухни можно использовать любые материалы и их комбинации
Размер кухни определяется площадью участка, многочисленностью семьи, которая будет ею пользоваться, а также возможностями бюджета. Ключевое свойство летней кухни – ее удобство, а при творческом подходе к ее обустройству, она часто становится любимым местом времяпрепровождения для всей семьи.
Говоря о стильности, престижности и добротности летней кухни на приусадебном участке дома, хочется отметить ее потрясающую функциональность и простоту конструкции. Побывав однажды в таком уютном и просторном «шумном зале ресторана» на свежем воздухе, вам также захочется оборудовать свою экономную кухню. Как выбрать экономный проект?
Виды летних кухонь
Это может быть облегченный домик, навес, беседка. Главное, чтобы можно было приготовить еду и, зависимо от цели, собраться большой компанией, развернув свой летний стол.
Летний вариант кухни может быть:
- открытого вида;
- закрытого;
- комбинированного,
при этом:
- примыкающим к дому строением;
- самостоятельным (отдельностоящим).
Зависимо от предпочтений хозяев, это может быть открытая терраса, беседка-барбекю, автономный летний гриль-домик, или даже отдельный дополнительный капитальный домик, в состав которого входит только кухня и столовая, который можно использовать в любое время года.
Открытые летние кухни
Открытое сооружение в виде беседки обычно строят из дерева.
Порядок строительства примерно такой:
- закладывают фундамент: за основу берут штыри, шлакоблок, камень, кирпич и пр.;
- сооружают деревянный каркас;
- настилают пол из дерева;
- организуют крышу: каркас + шифер, профнастил или черепица на свой вкус.
Беседки могут быть разных размеров и разного исполнения, но обычно они изготавливаются из дерева, а размера ровно такого, который уместит необходимое количество гостей, хотя можно построить и просторный павильон.
Рядом с дачной беседкой может находиться место приготовления еды, оборудованное своим собственным навесом.
Иногда проект включает в себя печку внутри беседки, тогда пол выполняют из кирпича или плитки. Особо востребованный вариант в случае, если дача используется, как место встреч для барбекю.
Открытый навес выполняется иначе: пол не настилается, выполняется только каркас и навес. Часто такая конструкция примыкает к основному сооружению, тогда кухня как дополнительная зона организуется вокруг печки, которая часто примыкает к дачному дому, но имеет свой дизайн.
Закрытые летние кухни
Кухня закрытого типа, в которой находится полноценная плита, помещение для готовки и столовая – это полноценный домик, материал которого будет зависеть от характера постройки: легкая для лета или капитальная.
Чаще всего это домик-веранда с большим количеством застекленных зон для света и обзора. Идеальным будет вариант, предусматривающий открытие окон, дверей, тогда кухня, задуманная под летний вариант, будет выполнять свои функции – возможность готовить, не задыхаясь от летней жары и на свежем воздухе.
Если при необходимости большую часть закрытых поверхностей можно открыть, а в прохладную или дождливую погоду соответственно закрыть, такая кухня будет универсальной и востребованной в любую погоду.
Капитальная постройка может использоваться и как гостевой домик.
Как найти правильное решение для летней кухни
Проектов и вариантов летней дачной кухни примерно столько же, сколько самих дач. Нередко для экономии владельцами выбираются наиболее простые схемы открытой летней кухни в виде перестроенной беседки или террасы. Летняя кухня обычно используется, как вспомогательное помещение, дабы избавить дом от запахов и потоков раскаленного воздуха от печки, а хозяев и гостей от удушающей атмосферы летнею порою. Большая часть помещения закрывается от дождя и солнца навесами и фальшстенками, но все равно открытые летние кухни, очень красивые и изящные на картинках, фактически остаются обитаемыми только три-четыре месяца в году. В прохладную и дождливую пору открытая летняя кухня превращается в дачный навес для инвентаря, а хозяевам приходится перебираться в дом, забывая об отдыхе на свежем воздухе.

С практической точки зрения более удобными являются закрытые летние кухни на даче. Правильно подобранные размеры и устройство пространства обеспечат комфортные условия в кухонном помещении не хуже, чем в открытом варианте
Кухонная территория на даче – это живой организм, в котором важно все, от расположения постройки до нюансов интерьера, каждую деталь необходимо обдумать, нарисовать на бумаге и даже посмотреть фото проектов закрытой летней кухни на даче, приведенные в доступных источниках

Первоначально, перед тем как положить на бумагу основную идею проекта, сформулируйте для себя варианты решения наиболее принципиальных технических проблем:
- Характер постройки закрытой летней кухни, ее размеры и расположение здания относительно дачи и участка;
- Как и из каких материалов удобнее всего строить летнюю кухню;
- Обустройство систем водоотведения и водоснабжения, линии электроснабжения, вентиляции;
- Как обустроить помещение закрытой летней кухни, расположить главные кухонные атрибуты – печку, холодильник, вытяжку и кухонную мебель.

В этом случае две постройки можно выполнить на одном фундаменте и даже с общей стенкой, что значительно упрощает и удешевляет смету строительства.

Где построить закрытую кухню
В отличие от открытого варианта кухонного помещения, которое можно поставить под навесом или в беседке, без особой оглядки на ее месторасположение, закрытая схема предполагает наличие утепленного фундамента, потолка и стен, а значит, ставить ее нужно с подветренной стороны, поближе к колодцу, подальше от септика или сливной ямы.
Вариантов расположения закрытой летней кухни немного:
- Пристроить коробку к основному строению дачи. Иногда помещение закрытой летней кухни соединяют с застекленной террасой или верандой. В этом случае приходится делать два выхода из дачи – парадный и черный, через летнюю кухню;
- Удачно сочетается закрытая летняя кухня под одной крышей с баней, летним душем, сараем или гаражом. Это позволяет упростить разводку труб канализации, подвод воды. Нередко в таком хозблоке устанавливают общую печь или угольный котел, отапливающий бани и помещение дачи;
- Наиболее простой способ построить закрытую летнюю кухню – оформить ее в виде самостоятельной постройки, отнесенной от дачи в наветренную сторону так, чтобы дым и печка не отравляли атмосферу жилого помещения.
Строительство вынесенной закрытой кухни обходится чуть дороже, но нет проблем с уравниванием фундаментов и кровли двух построек, мало того, конструкцию летнего пищеблока можно сделать абсолютно непохожим на основное здание дачи.
В таком помещении можно поставить небольшую газовую печь с пропановым баллоном, которой будет достаточно для прогрева помещения и приготовления еды для семьи.

Заключение
Чтобы кухня по-настоящему радовала своих хозяев и делала лето на даче и в загородном доме незабываемыми, нужно учесть множество нюансов. Среди них и стилистические решения, и выбор цветовой гаммы, выбор оптимального варианта реализации очага, грамотное расположение печки и правильный подбор всей необходимой мебели.

Современная летняя кухня из металла и стекла
Замечательно, когда есть возможность воспользоваться услугами дизайнеров и не погружаться в вопросы планирования и проектирования. Однако, такая возможность есть не всегда. А в ряде случаев просто приятно самостоятельно продумать свою кухню. При таком расположении дел на помощь придет данная статья, в которой изложены все важные моменты и особенности выбора мебели и техники. Ознакомившись со всей необходимой информацией и изучив фотоподборки самых разнообразных вариантов готовых проектов, каждой сможет сделать летнюю кухню своей мечты, на которой с радостью будет собираться вся семья.
Источник https://2proraba.com/malye-postrojki/veranda/zakrytaya-letnyaya-kuxnya-svoimi-rukami-proekty-i-foto.html
Источник https://dizainexpert.ru/kuxnya/dizajn-letnix-kuxon-zakrytogo-tipa-v-chastnom-dome/
Источник
Источник




































