Вентиляция и дымоотведение
Правила установки газового котла в квартире и частном доме предусматривают обустройство систем вентилирования и отвода продуктов горения газа в котельном помещении. Их неисправность или малоэффективное функционирование может закончиться поломкой оборудования или привести к чрезвычайной ситуации.
В нормативной документации к вентиляции и дымоходу в частном домовладении перечислен ряд требований:
- Каналы дымоотведения и вентилирования нельзя объединять, их делают раздельными.
- Чтобы в котельную проникал свежий воздух, в ней следует установить приточную вентиляцию. Входное окно устраивают в нижней части двери или наружной стены. Величина вентиляционного оконного проема составлять должна не менее 1/30 части площади помещения, но не меньше 80 мм² на 1 кВт мощности котла в случае, когда приток воздуха будет поступать с улицы, и не менее 300 мм² на 1 кВт, если из других источников.
- Вентканалы следует всегда держать открытыми, поскольку воздушные потоки должны постоянно циркулировать.
- Котел рекомендуется располагать в непосредственной близости к дымоходной трубе.
- У дымохода, обустраиваемого в стене, должно насчитываться два входных канала, при этом основной из них предназначается для установки дымоотводящей трубы, а другой – ревизионный, для технологической прочистки, располагают его ниже первого не менее, чем на 25 сантиметров.
- Сечение вытяжного отверстия дымохода не может быть меньше, чем этот же параметр у выходного патрубка газового агрегата.
- Дымоходная конструкция не должна иметь больше трех изгибов и поворотов.
- Для изготовления дымоходов задействуют нержавеющую или углеродистую сталь. Установка асбестобетонных или иных труб, произведенных из слоистых материалов, допускается на расстоянии не меньше 50 сантиметров от дымоотводящего патрубка нагревательного агрегата.
- С целью обеспечения безопасной эксплуатации прибора и эффективной работы отопительной системы необходимо создание условий для поддержания требуемой силы тяги. Поэтому следует рассчитать как всю высоту трубы дымохода, так и высоту ее расположения над кровельной поверхностью, чтобы оголовок не находился в зоне ветрового подпора.
Правилами и условиями для установки газового котла установлены нормативы для его дымоходной конструкции:
- труба должна подниматься над плоской крышей без конька не меньше, чем на 50 сантиметров над кровлей или парапетом, если он обустроен вдоль ее периметра;
- когда дымоход проходит через скат крыши на расстоянии не менее 150 сантиметров от конька, то оголовок трубы нужно поднимать не меньше, чем на 50 сантиметров;
- если выход дымоотвода через скатную кровлю проложен на расстоянии 150 –300 сантиметров от конька по горизонтали, необходимо поднимать оголовок до уровня, не ниже, чем верхняя точка конька;
- в случае, когда труба проходит через скатную крышу на расстоянии больше, чем 300 сантиметров от конька, тогда ее выходное отверстие располагают на условной линии, проведенной под углом в 10 градусов от вершины конька к горизонту.
Выбор и оборудование помещения под монтаж
Во многом выбор аппаратуры и аксессуаров зависит от СНиП 42-01-2002 «Газораспределительные системы». Это существенно сужает ассортимент выбора, так как конкретный котёл может не подойти для выбранного помещения из-за несоответствия площади и удельной мощности.
ВАЖНО! СНиПы регулярно обновляются, а действующие законы вносят в них поправки. Нужно проверять законодательно-правовую базу непосредственно пред установкой.. Раньше, например, нельзя было устанавливать котёл в подвале дома, а теперь можно, если дом одноквартирный
Раньше, например, нельзя было устанавливать котёл в подвале дома, а теперь можно, если дом одноквартирный.
Общие требования:
- Комната должна быть хорошо проветриваемая;
- В комнате должны быть оконные проёмы;
- Площадь тем больше, чем больше мощность котла.
Отвод дымовых газов
Каналы и трубы, предназначенные для удаления продуктов сгорания газа, должны обеспечить нормальный режим горения в топке котла. В связи с этим:
- поперечное сечение дымоотводящего канала не должно быть менее размеров присоединительного патрубка котла;
- допускается уменьшать площадь сечения дымохода, если конструкцией отопительного агрегата предусмотрено принудительное удаление продуктов сгорания и подачи воздуха;
- каналы могут быть расположены внутри капитальных стен и перегородок соответствующей толщины или быть к ним пристроенными;
- материал для изготовления дымоходов должен быть несгораемым и неподверженным активной коррозии;
- конструкция дымохода должна предусматривать наличие специального люка для очистки канала от сажи и устройства для слива образующегося конденсата;
- высота дымовой трубы выше конька крыши или линии под углом 15° при удалении от него.

Все стыковые соединения элементов делаются герметичными и исключающими не только выход продуктов сгорания в помещения, но и возможность подсосов воздуха и уменьшения тяги.

Основные правила монтажа настенного газового котла
Органы Газнадзора выдают разрешение на установку после рассмотрения документов, предоставленных собственником жилья. Только после согласования возможно приступить к работе. Вот как устанавливают настенные газовые котлы :
С помощью прилагаемого к оборудованию эскиза размечают места крепления дымохода, кронштейна или монтажной панели. Правильность разметки проверяют с помощью уровня, так как любой, даже незначительный перекос приведет к нарушениям и сбоям в работе.
Сверлят отверстия перфоратором.
Закрепляют на стене монтажный кронштейн
Обязательно нужно использовать все винты.
Устанавливают котел на крючки панели и уровнем проверяют правильность размещения.
Особое внимание уделяют соединительным клапанам и изоляции газового клапана, на который устанавливают дополнительный фильтр.
Присоединяют к устройству вытяжку. Используют адаптеры и соединительные винты.
Для котлов с закрытой топкой оборудуют дымоход коаксиального типа, для открытой — используют дымоотводную трубу из жаропрочного материала, устойчивого к износу.
После закрепления котла на стене с соблюдением всех правил монтажа для настенного котла и прилагаемой инструкции приглашают специалистов из газовой службы. Они подведут газ и проведут пусконаладочные работы. Под их руководством хозяин дома может выполнить обвязку и подключить котел к отопительной системе. Чтобы эксплуатация котельного оборудования не вызывала нареканий и была полностью безопасной, нужно организовать подвешивание настенного газового устройства в соответствии с правилами установки в доме, а самую ответственную часть работы доверить специалистам, знающим, как устанавливать газовые котлы на стену и подключать все необходимые функции.
Монтажный процесс настенного газового котла
Сделав все работы по подготовке смело можно приступить к процессу установки настенного котла собственными руками. Стандартной процесс занимает совсем мало времени и состоит из таких важных этапов:
Фото 5: Разметка стены для установки монтажной панели
- Отмерте необходимое расстояние от пола и от смежных компонентов. После разложите эскиз со монтажной схемой на поверхность стены и отметьте места крепежа монтажной панели, и также выхода дымоотвода. Применяя уровень проверяйте горизонтальность локации, т.к. кривой процесс установки котла может в последствии привести к сбоям в его работе.
- Следуя произведенной разметке, пользуясь перфоратором, просверлите все нужные крепежные отверстия монтажного спайдерного крепежа котла настенного типа.
- Закрепите монтажную панель на стенку, применяя все прилагающиеся в наборе винты.
- Установите газовый водогрей на монтажном кронштейне и применяя уровень проверьте горизонтальность и вертикальность его локации.
Завершив настенный процесс установки следует пригласить служащих службы газа для подведения газа и проведения пуско-наладочных работ. Хозяин в данное время может заняться обвязкой и подключением навесного газового котла к отопительной системе.
В конце взгляните видео о том как качественно выполнять монтаж газового водогрея на стенку:
Процесс установки котла настенного типа слишком важный и серьезный процесс. В зависимости от того как правильно он будет поставлен, будет зависеть не только срок его эксплуатации, но и безопасность жителей дома.
Стоимость установки
При обращении к специалистам по монтажу газовых котлов, многих клиентов интересует стоимость работ
Важно понимать, что в разных регионах ценовая политика может отличаться
Комплексное подключение котла с отверстием и с запуском начинается от 5000 рублей. Эту сумму запросят у вас при условии, что дополнительные работы будут отсутствовать. Если же система отопления сделана из металлических труб, то стоимость монтажа настенных газовых котлов будет выше. В районе 6000-8000 рублей.
Так же заложите 3000-4000 рублей на покупку материалов (шланг, трубы, краны, фитинги и др.)
Монтировать газовый котел могут лишь компетентные люди, имеющие допуск к такого вида работам. Даже в том случае, если котел будет установлен специалистами компании систему его работы необходимо знать. Сам по себе котел максимально безопасен в эксплуатации так как имеет множество степеней защиты.
Как смонтировать вентиляцию и дымоход
Система отвода продуктов сгорания газа и вентиляции устанавливается со строгим соблюдением правил по технике безопасности и монтажных работ. В противном случае это может привести к выходу из стоя оборудования, даже к взрывоопасным ситуациям. Вентиляция и каналы дымохода должны быть разделены – это главное требование в монтаже.
Основными параметрами естественного вентилирования считаются:
- Для доступа в помещение свежего потока воздуха нужно организовать приточную вентиляцию. Для этого следует сделать входное окно в стене снизу, размером 1/30 части от общей площади комнаты, где установлено оборудование.
- Вентиляционные каналы нужно держать постоянно открытыми для циркуляции воздушных потоков.
- Нагреватель установить поближе к трубе дымохода.
- Вытяжное отверстие должно соответствовать сечению входных патрубков нагревателя.
- Что касается поворотов и изгибов, то их по количеству не должно быть больше 3 штук.
- Материал изготовления тубы для дымохода – углекислая листовая сталь или нержавейка.
Дымоход, проходящий черед стенку, должен оснащаться двумя каналами:
- основным, для установки дымоходной трубы;
- ревизионным для технологической чистки, его располагают ниже основного на расстоянии 25 см.
Чтобы обеспечить безопасную работу газовому котлу, должны создаваться благоприятные условия для поддержки тяги. А для этого нужно правильно рассчитывать общую высоту дымохода, ее расположение, чтобы оголовок не смог попасть в зону ветрового подпора. А как правильно установить дымоход на газовый котел, можно узнать из паспорта на оборудование. Его производитель обязательно предоставляет покупателю вместе с товаром.
Для монтажа дымоходной трубы, при отсутствии инструкции к монтажу, существуют нормативы, регламентируемые СНиП:
- Над плоской кровлей без конька дымоходная труба должна быть поднята на 500 мм над уровнем крыши или парапета, если он имеется по периметру.
- Если трубу монтируют через скат, то расстояние от конька должно быть 1500 мм, оголовок дымохода поднимается на 500 мм от уровня конька.
- Если дымоход выходит через крышу скатного типа, то расстояние относительно горизонтали должно составлять 1500-3000 от уровня конька, оголовок поднимется на высоту, не меньше вершины конька.
- Если дымоходная труба проходит сквозь кровлю скатного типа с расстоянием от конька, большим 3000 мм, то выходное отверстие следует делать на условно проведенной линии от его вершины под углом 10 градусов.
Можно ли провести монтаж настенного газового котла самостоятельно?
Если проектирование всей отопительной системы произведено с учетом условий контролирующих служб, отдельные этапы работы иногда выполняют собственноручно, например, размещают на стене котел в отведенном для этой цели помещении. Его подготавливают в соответствии с проектом, полученным в газовой службе.
Однако некоторые производители оборудования запрещают самостоятельно монтировать настенный котел и считают такие действия веским основанием для лишения в этом случае предоставляемой покупателю гарантии. Поэтому, прежде чем приступать к установке, следует выяснить все возможные последствия такого шага.
Подключать электрическую сеть и газовую магистраль, а также заниматься пуско-наладочными работами должны только сертифицированные специалисты с соответствующим уровнем допуска.
Требования к процессу установки
Во время установки котла напольного типа, сжигающего сетевой газ, рекомендуется исполнять самые маленькие расстояния до стен и других конструкций строительства:
- ширина свободной площадки перед фронтальной частью отопителя – 1250 мм;
- боковые проходы для обслуживания и устранения поломок – 700 мм;
- самый маленький просвет сзади агрегата – 50 см.
К настенным газовым котлам требования мягче – впереди необходимо оставить не меньше 1 м свободного места, по обоим бокам – 20 см, снизу – 300 мм. Нависающая над теплогенератором конструкция должна находиться не ближе 45 см, как показано на схеме.
Прежде чем установить стационарный котел на полы из дерева, в первую очередь подложите несгораемую прокладку из базальтового картона и кровельной стали, поддерживающей размеры корпуса на 100 мм, впереди – на 70 см. Если в силу разных причин отопитель находится близко к поверхности стен дома из дерева, их следует обшить негорючими материалами:
- листы базальтового картона;
- плиты минерита;
- сталь оцинкованная 0,8—1 мм в толщину;
- асбестовые листы.
Рекомендация. Не используйте асбест, когда устанавливаете газовый водогрей в кухонной комнате, – он выделяет вредную пыль.
Подобные предосторожности исполняются при установке навесного теплогенератора на стену сделанную из дерева. Самая простая противопожарная мера – подложить под корпус оцинкованный металл, выступающий на десять сантиметров (вниз – на 70 см), как нарисовано на фото
Подключение к дымоотводу и теплоснабжению
Газовые устройства для отопления с открытой топкой просят подсоединения к дымоходной трубе с хорошей естественной тягой. Ее оголовок не должен попадать в территорию ветрового подпора, иначе тяговая сила уменьшится до нуля. Самая маленькая высота дымоотвода – 5 м (считая от горелки), идеальная зависит от размещения и расстояния от конька крыши с наклонной поверхностью (указана ниже на схеме).
Принципиальный момент. Подсоединять отрезок трубы газового водогрея к кирпичным каналам вентиляции, выполненным в стене квартиры или дома за городом, строго запрещается.
Общие требования к дымоотводам и подключению газовых водогреев смотрятся так:
- Трубный диаметр – не менее размера отрезка трубы агрегата, который предназначен для отвода продуктов згорания.
- Материал канала дымохода – оцинковка, нержавеющая сталь, кирпич либо керамика. Никаких металлических гофр.
- Вся длина горизонтального участка, врезающегося в вертикальную трубу, — не более трех метров; Ниже точки врезки с небольшим отступом 25 см устраивается лючок невидимка.
- Расстояние от металлического дымового канала до конструкций из дерева – 0,5 м. Если закрыть горючий материал асбестом или железом для кровли, отступ разрешается сделать меньше до 100 мм.
- Предельное количество поворотов дымоотвода на 90° не должно быть больше 3. Сюда не относятся расширители 30 и 45°, используемые для обхода трубой карниза крыши.
Требования к процессу установки коаксиальных труб турбокотлов легче: канал выполняется с меньшим уклоном на улицу плюс соблюдение противопожарных мер при проходе стен из дерева. Детально устройство дымоходных труб описывается в индивидуальном материале.
Обвязка котла выполняется согласно таким советам:
- настенный теплогенератор просто подсоединяется к отопительной системе через отсекающие краны с американками;
- при входе газа и носителя тепла ставьте сетчатые фильтры;
- для напольного отопителя требуется собрать схему, необходимую отопительной системе: установить циркулярный насос, расширительный бачок и группу безопасности;
- к обратному трубопроводу с тепловым носителем подсоедините подпитку из сети водопровода;
- при совместной работе с дровяным либо электрокотлом предусматривайте процесс установки обратных клапанов.
Под бездымоходный отопитель с большим коэффициентом полезного действия, оборудованный вентилятором и автоматикой, установите розетку с напряжением питания 220 вольт и заземляющим проводом. Побеспокойтесь, чтобы в аварийном случае ее не залило водой. При подсоединении через стабилизатор или блок бесперебойного питания организуйте для перечисленных аппаратов специализированную полку либо шкаф.
С чего начать установку?
- Для начала нужно наметить место установки на стене или на полу, в зависимости от типа котла.
- Проверить, достаточно ли деталей и прочих вспомогательных элементов. В общем, мысленно ставим котёл на будущее место эксплуатации.
- Просмотреть инструкцию к установке.
ВАЖНО! В одиночку можно установить только малогабаритный или напольный котёл (и то не всегда). В большинстве случаев потребуется помощь одного или двух человек.
Требования к помещению
- Размеры комнаты для установки зависят от мощности котла. Минимальная площадь – 4 квадратных метра, а высота потолка – 2-2,5 метра.
- Дверной проём – не менее 80 сантиметров в ширину.
- Обязательно наличие окон. Минимальное требование для помещения в 4 квадрата – небольшая форточка, размером 0,15 квадратных метра.
- На каждый киловатт мощности аппарата должно приходиться по 8 кубических сантиметров вентиляции.
- Газовые трубы должны быть металлическими, другой материал не допускается.
- Диаметр дымохода должен зависеть от мощности. Минимальный диаметр – 13 см, при чём он не должен сужаться к верху и должен выступать над поверхностью крыши минимум на пол метра.
- В помещении должны находиться газовые датчики, а на самом котле клапан остановки подачи газа.
- Котёл должен быть оснащён датчиком расхода топлива.
- В многоквартирном доме можно устанавливать котёл везде, кроме подвала, а в одноквартирном рекомендуется установить в подвале.
- Блок питания котла (для автономных котлов) и система подачи электричества должны иметь теплоизоляционные и электроизоляционные экраны.
Как правильно установить оборудование
Чётко следуйте всем правилам и нормам СНиП 42-01-2002 «Газораспределительные системы», не отклоняясь от них.
Любая попытка сымпровизировать или изменить классическую технологию может быть замечена проверяющими.
А если это повлечёт аварию или убытки другим жильцам дома, владельцу грозит административное, а, в некоторых случаях и уголовное наказание.
- Если котёл настенный, пол под ним должен быть идеально ровным, так как насос, качающий воду может повлечь вибрацию и смещение котла. Если вибрация будет сильной, газовые трубы или система водоснабжения может отсоединиться от котла, что приведёт к утечке газа или к потопу.
- Если есть возможность изготовить подставку под котёл, это обезопасит конструкцию и усилит прочность сцепления с полом.
- Если установить котёл возле плиты, бойлера или прочих нагревающихся элементов, то общая мощность термического поля между ними будет выше, чем показывают датчики, так как они замеряют данный только внутри самой системы. Данное правило не указано в СНиП, но часто является причиной преждевременного износа механизма или выхода из строя.
Документация
Необходимые документы:
- Сводка по расходу топлива конкретным аппаратом. Выполнить её могут как работники, которые устанавливают котёл, так и сам хозяин-установщик. В техническом паспорте устройства должны быть указаны данные по расходу электричества, газа и воды. В течение 14 дней работник газовой службы должен выдать предварительное согласие на установку агрегата.
- Проект монтажа, в котором указаны все пункты и шаги установки, схема подключения коммуникаций и вывода дымохода.
- Техническое условие, в котором указаны данные о монтаже и проведении коммуникаций к котлу.
- Сертификат прибора, просмотренный и заверенный газовщиками. Справку о стандартизации котла.
После согласования проекта можно приступать к установке. Профессионалы как правило ведут протокол установки, в котором отмечают базовые шаги, чтобы защитить себя на случай брака оборудования или несчастного случая, который повлёк убытки.
Протокол подписывается заказчиком (хозяином котла). Если выполняется самостоятельная установка, в протоколе нужно отмечать основные этапы, прописанные в инструкции к котлу. Если произойдёт авария во время установки или котёл не будет функционировать должным образом, протокол послужит юридической защитой.
ВНИМАНИЕ! В случае, когда установку выполняют специалисты, а протокол подписывает заказчик, он имеет юридическую силу, а если установку выполняет сам заказчик – протокол является обычным описанием действий.
На что обратить внимание
После того как все будет смонтировано, необходимо пригласить для осмотра газового котла специалиста из газовой службы района. Он проверит, все ли правильно сделано, соблюдены ли монтажные правила и нормы. Если ничего не вызовет у него нареканий, он выдаст вам заключение, которое послужит основанием, чтобы открыть вентиль.
Однако есть несколько требований, которые вам придется выполнить обязательно:
- Опрессовать систему отопления. Этот процесс производится под давлением 1,8 атм. — показатель можно увидеть на манометре котла.
- В это время нужно проверить все стыки и соединения на герметичность.
- Систему лучше избавить от воздуха.
- Не стоит добавлять в воду, которая будет являться теплоносителем, антифриз.
- Если в газовом котле используется автоматика и система безопасности, требующие электроэнергии, то необходимо будет обеспечить бесперебойную подачу электрического тока.
Теперь о требованиях к помещению, где планируется размещение газового отопительного оборудования. Котельную можно организовать в любом нежилом помещении. Это может быть подвал, кладовая, чердак и прочее. Единственное, где нельзя устанавливать котел — это ванная и туалет.
Опрессовка системы отопления
Объем помещения должен соответствовать общему тепловому выделению — как самого котла, так и дополнительных видов оборудования. К примеру, бойлера, расширительного бака и прочего. Чтобы было понятнее, приведем несколько примеров:
- Суммарная тепловая мощность до 30 киловатт требует помещения объемом 7,5 кубических метров.
- 30-60 киловатт —13,5 кубометров.
- До 200 киловатт — 15 куб.м.
Как видите, изменения достаточно существенные. Поэтому для большого дома, требующего много тепла, будет нужна и более просторная котельная. Кстати, в паспорте на помещение, где установлено газовое оборудование, должно быть записано, что это котельная или топочная
В настоящее время на рынке появляется все больше новинок, для установки которых нет таких жестких правил. К примеру, отопительные котлы с замкнутыми камерами сгорания. Это абсолютно безопасная конструкция, не требующая большого пространства и даже наличия в котельной окон и вентиляции.
Воздухообмен
Большинство потребителей использует стандартные газовые котлы, которым для эффективного сжигания газа требуется воздух. И здесь тоже есть свои требования и нормы. К примеру, газовый котел мощностью 23,3 киловатта для создания оптимальной температуры требует 2,5 кубических метра газа в час. На такое количество топлива необходимо 30 кубометров воздуха.
И еще один очень важный момент, на который необходимо обратить внимание. Расстояние от стены до поверхности котла не должно быть меньше 10 сантиметров. И это при условии, что стена отделана негорючим материалом
И это при условии, что стена отделана негорючим материалом.
Требования к другим параметрам помещения
В котельной должно быть естественное освещение.
Многие сетуют на то, что требования к правилам монтажа слишком жесткие и завышенные. Но это вовсе не блажь бюрократии. Это опыт, позволяющий осознать наличие пожарной опасности, которая присутствует всегда, когда дело касается газового оборудования.
Поэтому примите эти требования как закон:
- Площадь котельной должна быть не меньше 4-х квадратных метров при высоте потолков не меньше 2,5 метров и ширине входной двери не меньше 80 сантиметров.
- В котельной должно быть естественное освещение. Так что наличие оконного проема обязательно. Причем на каждые 10 кв. метров должно быть окно площадью 0,3 кв.м.
- Необходимо обеспечить котельную хорошей вентиляцией. На каждый киловатт мощности котла должно приходиться 8 квадратных сантиметров вентиляционного отверстия, установленного в верхней части помещения.
- Газ должен подаваться только по металлической трубе, а для учета его расхода необходим счетчик. Еще одно обязательное условие — наличие газоанализатора.
- Сечение дымохода должно соответствовать мощности оборудования. К примеру, мощность 30 киловатт — диаметр дымохода 130 миллиметров, 40 кВт — 170 миллиметров. Нельзя, чтобы сечение дымохода и сечение выхлопного отверстия котла не совпадали, особенно, если первый меньше второго. Конец дымохода должен выходить за уровень конька кровли минимум на полметра.
- Если в котле есть системы, работающие от электрического тока, то на вход питания котла необходимо установить автомат, контролирующий мощность потребляемого тока.
Более подробно требования к монтажу газового оборудования изложены в СНиП II-35-76 «Котельные установки».
Схема и этапы подключения газовых котлов
Лучше всего, если подключением будут заниматься профильные специалисты или службы, которые будут заниматься обслуживанием вашей отопительной системы. Если ваша инициатива по самостоятельной установке котельного оборудования найдет поддержку в соответствующих инстанциях (что очень сомнительно), то после подготовки проекта и необходимых разрешительных документов и закупки оборудования можно приступать к монтажу котлоагрегата.
Монтаж. Навесной котел монтируется на стену при помощи специальных креплений или планок, которые, обычно, поставляются в комплекте. Напольный монтируется на ровную пожаробезопасную поверхность
В отличие от настенного оборудования, напольные котлоагрегаты устанавливаются на расстоянии 25 – 30 см от стены. Важно знать, что доступ к установкам должен быть со всех сторон. Подключение к дымоотводящей системе. Важно! После подключения необходимо убедиться, что в дымоходе есть тяга
Обязательно проверьте герметичность соединения отводного патрубка с дымоходом
Подключение к дымоотводящей системе. Важно! После подключения необходимо убедиться, что в дымоходе есть тяга. Обязательно проверьте герметичность соединения отводного патрубка с дымоходом
Подключение к системам коммуникации
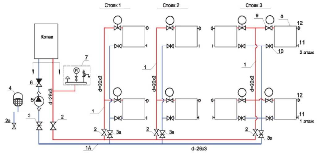
Типовая схема подключения газового котла к системе отопления при двухтрубной обвязке выглядит так, как показано на рисунке.
Далее представлена классическая схема подключения настенного двухконтурного газового котла.
Слева на право: выход теплоносителя в систему отопления; вход водопроводной воды; подключение газовой магистрали; горячая вода в систему ГВС; вход охлажденного теплоносителя из системы отопления.
Прежде всего следует позаботиться об установке кранов на систему водопровода, отопления и газа, которые будут отвечать за отключение данных систем от котла, при его обслуживании и ремонте, а также при необходимости экстренного отключения. Далее, следует установить фильтр грубой очистки на ввод водопроводной системы и «обратку» системы отопления, используя до и после него запорные элементы. Заключающим этапом будет подключение котлоагрегата к системе отопления и пробный запуск установки. Его следует проводить в присутствии специалистов газового хозяйства.
Совет: Для проверки герметичности рекомендуется создать в отопительном контуре давление в 2 кг/см2.
Нормы и правила установки настенного котла на газе
Поскольку любые мелочи при проведении монтажа отопительной системы могут обернуться тяжелыми последствиями, законодательно прописывает строгие правила установки газового оборудования. Они касаются расположения котла внутри помещения, отделки стен и установки самой системы отопления.
На какой высоте вешать газовый котел на стену
Существует и указания к тому, на какой высоте вешать газовый котёл на стену. Наименьшая высота установки котла – от 80 см от пола. Оптимальная же высота конструкции 1 – 1,2 м над поверхностью пола.

Пожарная безопасность при монтаже навесного котла
Монтаж настенного газового котла в деревянном доме требует соблюдения строгих правил противопожарной безопасности:
- Закрытые теплогенераторы могут быть установлены в любой нежилой комнате дома.
- Для установки котла на чердаке необходима хорошая теплоизоляция.
- Котельная должна быть огорожена огнеупорными перегородками.
- Двери должны открываться наружу.
- Желательно оснастить помещение пожарной сигнализацией.
Как и чем отделать стены за газовым котлом
Все поверхности, включая пол, потолок и стены должны быть облицованы негорючими материалами. Это могут быть асбестовые плиты, закрытые нержавеющей или оцинкованной сталью. Эти же правила действуют и для напольных теплогенераторов.
В деревянном доме стена должна быть закрыта базальтовым уплотнителем, толщина которого должна быть не менее 50 мм. Снаружи такой утеплитель закрывается стальными листами.
Где ставить
Установить настенный газовый котел разрешается в нежилых комнатах дома или отдельной котельной. Обычно для этого выбирают коридор или кухню. В подвале можно ставить только теплогенератор с закрытой камерой сгорания.

Требования к кухням на которых устанавливается котёл, работающий на газе
Если котёл устанавливается на кухне, то обязательным условием является наличие на неё большого окна, выходящего на улицу, а также системы вентиляции.
Площадь помещения обязательно должна превышать 7,5 кв.м. кухня не должна использоваться в качестве жилой комнаты. Обязательно наличие двери.
Котёл может быть вмонтирован в специальный короб, который будет замаскирован под один из шкафчиков. Но этот вариант возможен не во всех случаях. Другой вариант установки – украсить котёл декоративной панелью из негорючих материалов.
Как пристраивать котельные
Пристроенные котельные, как правило, находятся в изолированном помещении в отдельной пристройке к дому или даже отдельно стоящие. Такой вариант расположения газового оборудования является наиболее безопасным. Кроме того, в отдельной пристройке разрешается устанавливать котёл любой мощности, в то время как внутри жилого дома мощность газового оборудования строго ограничена.
Отдельная котельная соединяется с жилыми помещениями с помощью инженерных коммуникаций. К ним проводится теплотрасса, газо- и водопровод, электричество.




































