Входные металлические двери нестандартных размеров
Несмотря на довольно широкие нормы, предусмотренные стандартами на строительство, не все квартиросъемщики согласны слепо следовать регламенту, предпочитая более демократичные решения, которые исходят из практических соображений.

В таких случаях существуют возможности декоративной доработки слишком широкого или высокого дверного проема под желаемую конструкцию. Так, значительную высоту проема можно уменьшить до желаемых размеров, если установить арку или фрамугу, которая может быть весьма стильно оформлена с применением витража, вставок стекла или кованых решеток. Подобное решение избавит от необходимости изготовления двери большого размеров, которое, к тому же, не доставляет сложностей в эксплуатации.
Материалы
Коробки изготавливают из разных материалов. Давайте подробно разберем каждый из них.
Массив дерева
Самый бюджетный и доступный вариант в этой категории — массив сосны. Он продается в чистом виде. И при монтаже необходимо провести несколько дополнительных операций. Покрыть антисептиком и лаком. Если коробка, скажем, из массива дуба, тогда она уже полностью готова к установке и эксплуатации.
МДФ (мелко-дисперсная фракция)
Самый популярный материал. Вам даже не обязательно владеть информацией о том, что основа коробки МДФ. Такой материал вы узнаете по облицовке. Пленки, экошпон, ABS-пластик. Все эти внешние материалы имеют МДФ-основу.
Алюминий
Используется для двери невидимки или стеклянных дверей. Идет в комплектации с уплотнителем и уголками для соединения.

Правила замера
Высота и ширина измеряются при помощи специальной методики.
- Первое. Все измерения выполняются от основания стены. Для этого требуется снимать старые наличники. Основание тщательно зачищается от материалов, которые слабо держатся.
- Второе. Замеры осуществляются сантиметром в трех точках (вверху, внизу и в середине) и записываются. За искомое значение берется самое меньшее измерение.
- Третье. Полученные размеры сравниваются со стандартными. Если есть отличия, то принимается решение на увеличение или сужение проема. Но делается это уже после покупки двери в сборе.
В процесс замеров определяется геометрия проема. Делается это при помощи строительного уровня. Обязательно учитывается вероятность снижения высоты за счет поднятия пола и монтажа порожка.

Унифицированные типоразмеры дверей из металла
Каждый производитель металлических входных дверей стремится удешевить себестоимость изготовления своих изделий. Для обеспечения этого условия необходимо применять только стандартные решение, как, например, выбор толщины листового и профильного металла с минимальной рыночной ценой, а также стапельные конструкции, сменные лезвия для раскроя и прочие элементы. Таким образом, в течение последних лет большинство фабрик выпускает в массе следующие типоразмеры продукции:
- Типовая ширина полотна для установки в жилые и общественные здания составляет 900 мм. Если заказчик решает изменить данный параметр, ему придётся ожидать изготовления детали долгое время после предоплаты.
- Высота входной двери назначается 2030 мм, что соответствует параметрам, приведённым в ГОСТ.
- Толщина листа, из которого сваривается полотно на каркасе составляет от 1,5 до 2,0 мм. Если речь идёт о дешёвых конструкциях, которые не могут защитить от несанкционированного проникновения, так как не обладают повышенной взломостойкостью, то такой параметр не нормируется.

Рис. 3. Типовые габариты
- В зависимости от класса изделия и потребностей покупателя, толщина стали может быть увеличена, но ГОСТ не рекомендует применять листы с толщиной более 3,0 мм, так как при этом стандартные петли на подшипниках уже не смогут удержать тяжёлую створку в открытом положении.
- При базовом исполнении входной двери с учётом 40-мм профиля по периметру каркаса, общая толщина полотна составляет 60 – 80 мм, а при взломостойком исполнении этот размер может быть увеличен до 120 мм. следует учесть, что на данный параметр также влияет внутренняя теплоизоляция и отделка элемента со стороны помещения.

Рис. 4. Толщина профиля в усиленном варианте
Габариты дверного полотна – важный параметр при покупке готового комплекта двери, однако владельцу помещения следует учитывать толщину несущей рамы, которая составляет, как правило, 30 – 50 мм, из-за чего посадочный габарит всей конструкции несколько увеличивается, и проём нужно готовить исходя из суммы всех типоразмеров каждого элемента.
Разновидности железных дверей
В стальных конструкциях дверное полотно крайне редко продается отдельно, обычно коробка идет в комплекте. Поэтому везде и пишутся размеры входных металлических дверей с коробкой.
В советские времена железные двери были уделом складов и специальных учреждений, сейчас они ставятся повсеместно. Такая высокая популярность породила массу новых моделей, в результате помимо размеров железных дверей с коробкой появились классификации по назначению и особенностям конструкции. Вначале разберемся с назначением.
Уличные. Разновидность входных дверей, которые устанавливаются на входе в здание и рассчитаны на непосредственный контакт с улицей. К таким конструкциям предъявляются повышенные требования в плане защищенности от коррозии, а в отапливаемых помещениях еще учитываются теплоизоляционные свойства дверей;
Солидные размеры входной металлической двери с коробкой обуславливают ее большой вес и повышенные требования к прочности стен
Квартирные. Так как многоэтажные дома сооружаются, опираясь на четкие государственные нормативы, все квартиры имеют стандартные размеры входных металлических дверей с коробкой. В этой нише преобладают одностворчатые двери, хотя в современных новостройках иногда встречаются полуторные конструкции;
В квартирных моделях размер двери с коробкой зачастую соответствует общепринятым стандартам
Офисные. Стальные двери для офиса понятие достаточно размытое, но чаще всего под этим термином подразумеваются квартирные модели с повышенной защищенностью от взлома и усиленной шумоизоляцией. Хотя когда речь идет об улице к вышеупомянутым требованиям добавляется еще устойчивость к коррозии;
В офисном варианте размер стандартной входной двери с коробкой представляет собой нечто среднее между квартирной и уличной моделями
Тамбурные. Одна из разновидностей подъездных дверей призванных обособить жилой блок из нескольких квартир. Как правило, эти конструкции не имеют повышенной защищенности от взлома и редко бывают утепленными;
Тамбурные модели не обладают высоким уровнем защищенности от взлома
Технические двери монтируются как временный вариант или устанавливаются на помещения, не нуждающиеся в защите материальных ценностей
Специальные. Традиционно сюда относят все усиленные конструкции с повышенной защищенностью. Вариантов такой защищенности существует больше десятка, начиная от банальных засовов и заканчивая пуленепробиваемыми дверями со спецзащитой от электромагнитных волн. Здесь металлические двери и размеры коробки выбираются индивидуально, по желанию заказчика.
Визуально размеры двери с коробкой обладающей специальными характеристиками, могут быть аналогичны квартирным моделям, секрет кроется в усиленных запорах и сверхпрочной стали полотна
Также размеры входных дверей с коробкой сильно зависят от конструктивных особенностей комплекта, здесь мы имеем 4 варианта:
- Одностворчатые. Такие модели устанавливаются везде, от технических помещений, до сейфовых комнат с усиленной защитой. Нестандартные двери здесь встречаются редко, а согласно стандарту ширина створок колеблется в пределах 60 – 110 см, шире делать нельзя, потому как навесы не выдержат;
- Полуторные. В таких дверях к полноценной створке шириной 80 – 90 см добавляется сегмент шириной от 20, до 60 см. Самый ходовой стандартный размер железной двери с коробкой здесь представлен двумя моделями – это 1280 мм (400+800 мм) и 1480 мм (600+800 мм) стандартная толщина коробки 40 мм (40+40=80 мм);
- Двустворчатые. Здесь в единую коробку заключены 2 одинаковые створки. Размер входной двери с коробкой у двустворчатых моделей колеблется от 1280 мм, до 1880 мм;
- Двери с фрамугой. Конструкция под названием фрамуга представляет собой сегмент, устанавливающийся сверху дверного блока. Фрамуги предназначены для компенсации слишком высоких проемов. При этом фрамуга может устанавливаться на все вышеупомянутые виды дверей.
Особенности конструкции напрямую влияют на размеры стальных дверей с коробкой
https://youtube.com/watch?v=m97nZL9P3N4
Это интересно: Стандартный дверной проем межкомнатной двери размеры: познаем по пунктам
Стандартные размеры дверей
Если ваш дверной блок спроектирован не по общепринятым стандартам, а по вашим личным эскизам, то и дверь для него придется делать на заказ. Однако типовые коробки, имеющие стандартные размеры, более удобны, так как для них можно приобрести уже готовую дверную конструкцию.
Существует две системы измерения дверей: метрическая и английская. Первая используется повсеместно, по ней габариты конструкции измеряются в сантиметрах. Английская система применяется очень редко и лишь для эксклюзивных дверей, в данном случае дверной блок измеряется в футах.
Конечно, изготовленная на заказ дверь выглядит оригинально и стильно, однако и конструкции, размеры которых регламентирует ГОСТ, имеют свои преимущества. Поэтому составляя проект будущего дверного проема, хорошенько подумайте, какой вариант вам ближе.
Достаточно популярными и востребованными на сегодняшний день являются входные двери со стандартными размерами
Преимущества использования дверей со стандартными размерами:
- Вы сможете купить в магазине любую понравившуюся вам дверь. В случае с индивидуальной планировкой вам придется ждать, пока выполнят ваш заказ.
- Стандарт дверей подобран таким образом, чтобы в дом легко было входить человеку с любой комплекцией.
- Обычно уже готовые двери идут в паре с коробкой. Также они имеют в своем комплекте всю необходимую фурнитуру.
- Типовые дверные конструкции обойдутся вам гораздо дешевле, чем изделия изготовленные лично для вас.
- В случае поломки одного из элементов типовой входной конструкции вы сможете легко и быстро найти нужную вам деталь. Если поломка произойдет на заказной двери, то сломавшуюся часть придется заказывать.
Для каждого типа здания существует свой стандарт размера дверей. Также данные могут разниться в зависимости от того, из какого материала сделано дверное полотно и коробка.
Стандартные размеры дверных блоков:
- Высота дверей для зданий, построенных в разное время, будет отличаться. Так в типовых новостройках дверная конструкция варьируется от 205 до 210 см. В хрущевке вертикальный размер двери составляет 250 метров, а в зданиях постарше высота двери может достигать 260 см.
- Ширина дверных конструкций также имеет разные параметры. Стандартом для новостроек считается дверь с горизонтальным размером 74-76 см. В кирпичных зданиях нормой считается ширина 88-92 см. Этот же показатель в старых зданиях с высокими дверями варьируется от 82 до 96 см. Для девятиэтажек характерен размер 128 см.
- Толщина двери не имеет четких стандартов. Однако по ГОСТ дверное полотно не должно быть тоньше 2 мм.
Вес дверных конструкций не регламентируется ГОСТ. Эта величина зависит от множества факторов, начиная от высоты двери и заканчивая ее наполнителем.
Общие сведения
Итак:
- Большая часть проемов на сегодняшний день в новостройках (П44 М, П44, П3 М) имеют размеры в пределах 740–760 миллиметров в ширину на 1.950–1.980 миллиметров в высоту. Толщина различная.
- В домах кирпичных серий обычно бывают в пределах 880–920 миллиметров на 2.050–2.100 миллиметров.
- В домах старого типа, для дверей одностворчатых, размеры проемов могут колебаться от 830 до 960 миллиметров в ширину и от 2.040 до 2.600 миллиметров в высоту.
- В девятиэтажных домах семидесятых годов довольно часто бывают проемы размером 1.280 на 2.550 миллиметров.
В общем, фактом является констатация того обстоятельства, что проемы в домах из стандартных серий имеют большее разнообразие типов (расширяемые, с отсутствием ниш у входа, на сужение) и габаритных размеров. Поэтому габариты двери могут варьироваться даже в рамках стояка или подъезда одного дома.
Нормативные размеры
Согласно пункту 6.9. СниП 210197 входная дверь уличная— эвакуационный выход. А в соответствии с пунктом 6.16. высота эвакуационного выхода в свету не может быть менее 1.9 метров, ширина должна составлять не меньше:
- чем 1.2 метра — если речь идет о помещениях Ф.1.1. класса, когда общее число подлежащих эвакуации больше пятнадцати человек; если речь идет о помещениях и зданиях прочих классов пожарной функциональной опасности, за исключением Ф.1.3. класса, то общее число подлежащих эвакуации больше шестидесяти человек.
- чем 0.8 метра во всех прочих случаях.
Габариты изделий наружных на лестничных клетках и двери в вестибюли должны иметь ширину не менее чем расчетная, или соответствовать лестничному маршу, который установлен в 6.29. В любой ситуации ширина выхода для эвакуации обязана быть такого размера, чтобы учитывая геометрию пути, через дверь или проем можно было, не встречая препятствий пронести носилки с находящимися на них людьми.
В широком смысле габариты металлической двери определяют соответствующие ГОСТЫ, но их нормы не имеют распространения на двери особого назначения и изделия уникальных объектов. Необходимые размеры находятся в зависимости от проема, куда они будут устанавливаться. Поэтому ниже приводятся справочные таблицы типовой размерности проемов дверей.
ГОСТ6629-88
«Двери внутренние для общественных и жилых зданий»
Основные габариты:

Стандартные габариты
Габариты проемов внутренних перегородках и стенах:

Размеры металлических входных дверей по ГОСТу
К стандартным параметрам двери из металла относятся габариты в 203 см высоты в соотношении с 90 см ширины. При расчетах размеров дверных проемов следует учитывать наличие обрамляющей окантовки по периметру входа. В старых постройках она выполнена из дерева и подлежит снятию при замене конструкции. В новых домах, в большинстве случаев, такая окантовка выполнена из металла и ее снятие крайне затруднительно. Потому чаще всего ширина такого прохода считается с учетом этого элемента.

Кроме того, довольно часто для расширения функциональных возможностей ширина дверного прохода может значительно увеличиваться. В увеличенный проем устанавливаются дверные конструкции с двумя створками.
Стандартные размеры дверей из различных материалов
Размер входной секции, стандарты проемов рассчитаны исходя из их функциональности. Они могут варьировать, но должны быть не менее 60 см.
Стальные
Этот вид входной секции самый надежный, с точки зрения защитных функций. Входная группа для технических помещений может быть изготовлена из стали с актикоррозийным покрытием, выкрашена краской по металлу. Тогда, как для домов, дач, квартир используют полотна с декоративными накладками (дерево, МДФ, композитные материалы).
Пример стальных входных дверей
Стальная дверь. Таблица (ГОСТы), стандарт, стандарт плюс (в мм).
| Маркировка ГОСТ | Размер коробки: высота | Размер коробки: ширина | Размер полотна: высота | Размер полотна: ширина |
| 21-7 | 2071 | 671 | 2000 | 600 |
| 21-8 | 2071 | 770 | 2000 | 700 |
| 21-9 | 2071 | 870 | 800 | |
| 21-10 | 2071 | 970 | 2000 | 900 |
| 21-13 | 2071 | 1272 | 2000 | 1202 |
| 24-10 | 2371 | 970 | 2300 | 900 |
| 24-15 | 2371 | 1472 | 2300 | 1402 |
| 24-19 | 2371 | 1872 | 2300 | 1802 |
Полотна с шириной от 1100 мм делают полуторными, с большим размером двойные. Толщина стали варьирует от 2 мм до 4 мм. По спецзаказу можно сварить практически любые стальные двери.
Необходимо помнить, что установка входных металлических дверей из стали, бронированного типа, требует специальной металлической коробки. Если их изготавливают серийно, то коробка идет в комплекте. Крепят такую входную группу на металлические анкера и специальные штыри.
Двери из металла
Технические характеристики металлической двери определяют по ее классу, он помогает сориентироваться в качественных показателях.
Следует различать:
Самый востребованный вид 2 и 3-й класс
Их выпускают производители разных стран, однако нужно обращать внимание на качество металла и фирму производителя. К примеру, китайские фабрики иногда не выдерживаются стандарт по толщины металла. Отечественные производители используют металл толщиной 1,5-2 мм
Среди них высокую оценку получили двери серии «Прогресс», одноименной фирмы
Отечественные производители используют металл толщиной 1,5-2 мм. Среди них высокую оценку получили двери серии «Прогресс», одноименной фирмы.
Схема устройства металлических дверей
Система измерений иностранных фирм производителей может несколько отличаться от отечественной, поэтому лучше, при выборе товара, проконсультироваться с продавцом.
Виды отделки дверей
Порошковая покраска используется в основном для изделий эконом класса, она устойчива к механическим воздействиям.
Лаковые покрытия имеют более привлекательный вид, чаще им вскрывают двери изнутри.
МДФ панели самый удачный, недорогой, эстетически привлекательный вид отделочного материала. МДФ представляет собой древесностружечную плиту, спрессованную вакуумным способом, покрытую пленкой. Благодаря современной технологии, на них делают объемные рельефные тиснения. Накладки представлены в широкой цветовой гамме.
С наружной стороны полотно зачастую упаковывают в термопленку, она хорошо зарекомендовала себя в условиях перепада температур, устойчива к влаге.
Отделку натуральной кожей, шпонирование, деревянные накладки используют для дверей класса «элит». Их чаще изготавливают под заказ.
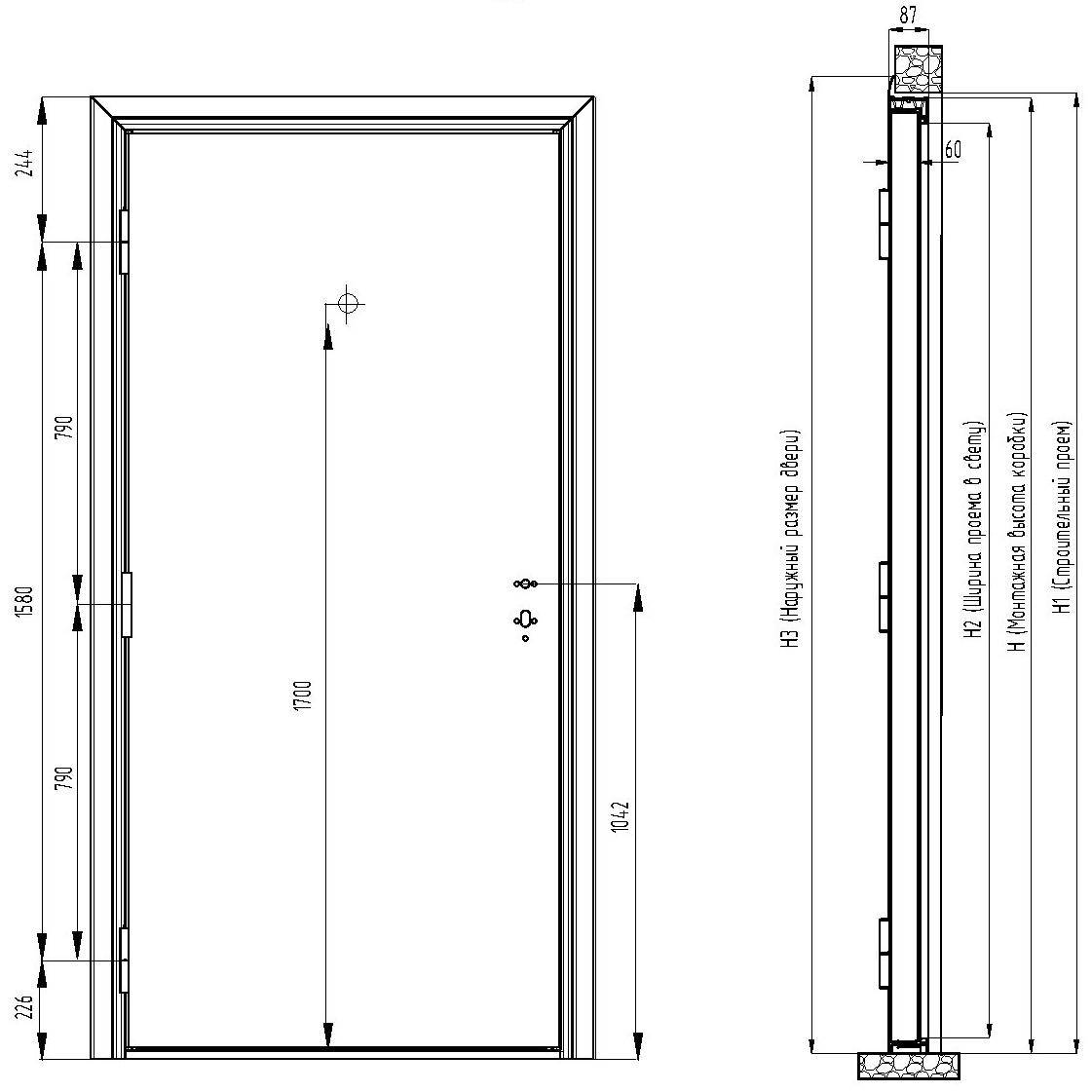
Установка и размеры
Для того чтобы установить металлические полотна с коробкой, необходимо знать размеры проема: показатели высоты, ширины и глубины. Напомним, что параметры дверного проема должны быть на 5-8 см больше размера полотна, с учетом коробки.
При замере высоты и других показателей, желательно заранее знать их параметры. Подбирать необходимо таким образом, чтобы сумма размера составляла: полотно + коробка + допуск (до 5 см).
Габариты двери входные металлические размеры (стандарт в мм).
| Размеры полотен | Размер с учетом короба | Проем |
| 800 | 882 | 900-940 |
| 900 | 982 | 1 00-1 040 |
| 600+600 | 1 322 | 1 340-1 380 |
| 700+700 | 1 522 | 1 540-1 580 |
| 800+800 | 1 722 | 1 700-1 740 |
| 2 000 | 2 052 | 2 060-2 100 |
| 2 100 | 2 152 | 2 160-2 100 |
Размеры дверей металлических могут быть индивидуальны, если это заказная позиция.
Стандарты дверей и проемов
В пользу приобретения сделанных на заводе дверных блоков выразительно «глаголет» не только выдающаяся цена, голос которой перейдет с мягкого шепота на истошный крик при приобретении доборов, уплотнителей и фурнитуры.
- Заводские дверные блоки полностью укомплектованы и подготовлены к монтажу. Владельцам бань остается их лишь установить в соответствии с прилагаемой инструкцией.
- Сделанные на заводе дверные коробки и полотна, подобранные с ориентацией на условия эксплуатации, не будут деформироваться в условиях интенсивного парообразования.
- Предоставляются гарантии, некачественную продукцию можно без проблем поменять.
В случае замены в процессе очередного ремонта стандартный размер дверного проема предоставит возможность быстро найти и купить аналогичное изделие. Да и сама установка не потребует ни сверхчеловеческих усилий, ни особого мастерства, ни опыта.
Различия зарубежных и отечественных дверей
Владельцам бань сейчас предоставляется возможность обустроить сооружения изделиями российских, белорусских или украинских производителей или купить дверную конструкцию, выпущенную на испанской, итальянской или французской фабрике.
Регламентируют габариты дверей и соответствующие им размеры дверных проемов гост за номером 6629-88, СНиПы и DINы с номерами от 18100 до 18102. Разница в значениях ширины, высоты дверей и проемов незначительная, так как все нормативы ориентированы на среднестатистические физиологические параметры пользователей, но об учете специфики страны-производителя не следует забывать при расчете проема:
- Высота дверного полотна обычно варьирует вокруг двухметрового роста. Это 2000 мм ± 100 или 150 мм.
- Ширина полотна заводской одностворчатой двери отечественного производства от 600 до 900 мм. Зарубежные производители по данному параметру с нашими солидарны. Только французы выпускают полотна с шириной меньше на 1 см (89 см, 79 см и т.д.).
Толщина выпущенных в СНГ дверных конструкций рассчитана на традиционную мощность стен 75 см. Для увеличения и уменьшения ее разработаны специальные схемы. Если они не предусмотрены изготовителем, нужно будет докупить и установить доборную планку.

Обратите внимание, что максимальная толщина фабричного дверного блока 128 мм. Если нет денег и желания устанавливать дополнительный добор на излишне «толстые» стены, можно обналичку проема сделать лишь с лицевой стороны, а с обратной сделать откос или установить самоклеящийся нащельник
Принципиально на выбор двери и расчет под нее проема толщина не влияет
Важны базовые показатели высоты и ширины, так называемый дверной просвет, отталкиваясь от которого вычисляются необходимые величины
Принципиально на выбор двери и расчет под нее проема толщина не влияет. Важны базовые показатели высоты и ширины, так называемый дверной просвет, отталкиваясь от которого вычисляются необходимые величины.
Как выбрать ширину дверного просвета
Если в семье владельца или среди его знакомых нет слишком упитанных людей, не стоит увлекаться широкими банными дверями. Они ведь не будут сохранять тепло так же, как стены:
- Предпочитаемая собственниками загородных бань ширина дверного просвета входной двери в среднем 80 см. Можно и больше с учетом необходимости вносить и менять банную мебель, оборудование.
- Для обустройства внутренних перегородок достаточно дверей с шириной 70 и даже 60 см.
- В парную, санузел и душевую, если они есть, лучше установить двери с шириной 60 см.
Если есть возможность, то для парилки желательно купить специальную дверь из липы, и уже по ее габаритам со скрупулезной точностью рассчитывать размеры проема.
Выбираем полотно вместе с коробом
Железный короб должен легко входить в дверной проем
Очень важно, чтобы оставались небольшие зазоры. Они позволят выставить конструкцию строго вертикально и горизонтально по уровню
Чтобы не было ошибки, замеры должны проводиться в хорошо очищенном проеме.
Идеальным вариантом считается покупка совместно с коробом. Если коробку покупать отдельно, можно под нее подобрать соответствующее дверное полотно.
Чтобы движение было свободным, между полотном и коробом должен оставаться небольшой зазор. Его размер обычно не превышает 2 мм. При выборе, следует обязательно учесть уровень порога. Он устанавливается при входе в помещение.

Стандартные размеры входных дверей
Какие же стандарты действуют на входные двери в настоящее время? Установленные нормы продиктованы техническими характеристиками проемов, которые рассчитаны на модели с одной или двумя створками, а также на полуторные полотна.

Исходя из предусмотренных ГОСТом значений, размеры проема и полотна соотносятся следующим образом:
- При высоте проема от 1940 до 2030 мм рекомендованная высота полотна не должна превышать 1900 мм, ширина проема от 630 до 650 мм позволяет использовать полотно шириной до 550 мм, при увеличении показателя до 660-760 мм створка может достигать 600 мм в ширину.
- Если высота проема составляет от 2040 до 2100 мм, то для полотна этот показатель не должен превышать 2000 мм. По ширине проема и полотна рекомендации следующие: проем 660-760 мм соответствует створке 600 мм, при ширине 770-870 мм полотно может достигать 700 мм, проем от 880 до 970 мм подходит для моделей шириной до 800 мм.
- Проемы 980-1100 мм подходят для полотен, ширина которых составляет 900 мм. При ширине проема в 1280-1300 мм устанавливаются двустворчатые двери, ширина полотен которых составляет 600+600 мм. Для стандартных проемов от 1480 до 1500 мм полотно не должно превышать ширину 1400 мм (две створки 600 и 800 мм). Стандарт 1580-1600 мм предполагает установку полотна 1500 мм (600 и 900 мм).
Как рассчитать размеры дверей самостоятельно?
Перед тем как идти в магазин и покупать входную или межкомнатную дверь, необходимо рассчитать ее габариты: ширину, высоту и толщину. Если у вас имеется дверной проем, то здесь все достаточно просто. Для расчета ширины будущего полотна сначала нужно минимум в трех точках (снизу, посередине и сверху) измерить ширину проема. После этого от наименьшего значения отнимаются монтажные швы (по 10 мм с каждой стороны), ширина лутки и щель между самим полотном и косяком (около 5 мм). Высота дверного проема считается аналогично.

Для расчета толщины короба вам потребуется измерить толщину стены в трех точках, после чего из полученных результатов выбрать наибольшее значение.
Сегодня практически все фирмы, занимающиеся производством входных и межкомнатных дверей, стараются стандартизировать габариты своей продукции согласно установленным нормам. Это нужно учитывать при строительстве частного дома, так как правильно спланированное здание позволит установить стандартные полотна, тем самым сэкономив значительную сумму денег на индивидуальном заказе.
Дверь служит много лет, поэтому к оформлению входной зоны в жилое помещение необходимо подходить основательно и грамотно
Размеры входных дверей не всегда стандартны, при установке принимают во внимание не только высоту, ширину и толщину полотна, но и размеры коробки, а также изучают соответствующие показатели ГОСТ и сопоставляют с ними цифры, полученные в ходе измерений
Дверное полотно изготавливают из дерева, МДФ, металла. Последний вариант является самым надежным и тяжелым. Параметры конструкций для всех материалов одинаковы.
В магазинах представлен широкий ассортимент на любой вкус. Встречаются классические одностворчатые модели. Если проем широкий, то устанавливают полотно, состоящее из двух половинок. Приобретают популярность экземпляры с фрамугой. Размер входной двери зависит от ее вида.
Одностворчатая входная дверь — популярный вариант, который встречается в частном доме. Установка происходит с наименьшими трудозатратами. Выбор таких полотен большой, некоторые модели выпускают с дизайнерскими дополнениями, узорами и аксессуарами в виде камней, витражей, страз. Многие полотна выпущены в размерах, которые соответствуют положениям ГОСТ. Рекомендуемая ширина одностворчатой двери не более 110 см.
Двустворчатая конструкция — вариант, который встречается в частном жилом доме. Хозяин может расширить входной проем, сохранив стандартную высоту.
Такие створки выглядят необычно, но следует учесть, что конструкция занимает большую площадь фасадной стены с обеих сторон. Створки бывают одинаковыми или разными по ширине. Во втором случае используются полуторные («полуторка») конструкции, где одна часть (меньшая по ширине) фиксируется механизмом и остается неподвижной, а вторая выполняет главную функцию.

Дверь с фрамугой — интересный вариант для проемов нестандартного размера. При использовании данной конструкции увеличивается высота дверного блока за счет установления дополнительного элемента над дверным полотном. Вставки делаются из специального стекла (цветного или прозрачного), оформляются дополнительными декоративными деталями, что обеспечивает фасаду эстетичность и современность.
Она имеет разные размеры, а створки могут быть как одинарными, так и двойными. Использование фрамуги визуально расширяет пространство в помещении, делая его более светлым.




































