Проемы окон и дверей
Даже в самой компактной бане обязательно устанавливается окна. Одно из них обязательно ставится в парилке, и оно должно открываться. Это будет запасной вариант быстрой вентиляции. Проемы для окон и дверей выкладываются одинаково. Кладка перегородки в бане из кирпича тоже подразумевает дверной проем. Толщина наружных стен бани — не менее одного кирпича, а лучше полтора.
При кладке в один и полтора кирпича для создания ровных граней нужны доли на ¾. Удобно их приобретать на заводе вместе с основной партией кирпича, но это возможно не всегда. В других случаях пользуются молотком каменщика и раскалывают кирпич самостоятельно. Колотая сторона всегда располагается внутрь шва. Внешние стороны проема при этом получаются аккуратными и чистыми.
Информация. Перемычки оконных и дверных проемов можно не делать, если на этой высоте располагается сейсмический пояс. Данное решение очень удобно в конструкции любых зданий и позволяет сэкономить материалы и трудозатраты на строительство.
Не всегда все оконные перемычки можно соединить с сейсмическим поясом. В этом случае их делают дополнительно. Для кирпичных стен нельзя применять деревянные перемычки. Они недолговечные и не смогут выдержать вес кирпича сверху окна. Годятся только железобетонные и стальные перемычки. Железобетонные отливаются заранее в деревянных формах.
Технология здесь стандартна, необходимо только учесть толщину кирпичной кладки вашей бани. Средняя толщина перемычки — ¼ кирпича. При любой толщине она должна быть кратной этой величине. В таком случае вам будет легко встроить перемычку в кирпичные ряды. Частый вариант — использование готовых перемычек, полученных с завода железобетонных изделий.
Как выбрать печку для бани
Как уже говорилось, под печку фундамент заливается отдельно. А это значит, что печка у вас или уже имеется, или же есть схема этой печи, если вам нужна не металлическая печь, а кирпичная.
Печь такой же важный компонент, как и все остальное, поскольку именно от нее зависит степень прогрева бани. Приобрести печь можно двумя путями. Первый – приобрести готовую печь в специализированном магазине, а второй вариант – взять с рук самодельную банную печь. Сейчас на авито таковых продается очень много.
Прогрев зависит от размеров парной и от времени года. Летом баня прогревается, конечно же, вполовину быстрее, чем зимой.
Если ваша банька небольшая, человека на два, то идеальной будет небольшая железная печь типа буржуйка.
Такие печи могут быть как со встроенным баком для воды, так и без него. Если в печке нет встроенного бака, то приобретается горизонтальная печка. На нее можно поставить бак для воды. Лично я предпочел бы печь без встроенного бака. Дело в том. Что со временем от воды бак начинает ржаветь и что бы заделать его придется искать сварщика. Если у вас нет средств на эту операцию, то печь у вас окажется ненужной. В то время, как с обычной буржуйкой все просто. Прогорел бак, приобрел другой – и парься дальше. Но опять-таки, выбор печи – дело вкуса каждого.
Кирпичная печь обладает высокой пожарной безопасностью, но для нее нужен очень хороший и прочный фундамент. Это связано с материалом ее изготовления. В зависимости от размеров, такая печь может весить до 1,5 т. Однако она и прогревает достаточно большие помещения.
Цементный раствор для таких работ уже не подойдет, поскольку при очень высоких температурах печь будет быстро разрушаться.
Кроме прогрева больших помещений, такая печь способна очень долго сохранять тепло. Но нагревает она дольше металлической, а по габаритам большая. Металлическая печь отличается компактностью и быстрой степенью нагрева. Всего час-полтора и можно спокойно париться. Даже зимой в неутепленных банях (вариант лесных кордонных бань) можно хорошо попариться в течение трех-четырех часов.
Металлические печи бывают двух типов: закрытые и открытые. Закрытая печь вертикальная и разделена на три части. Нижняя – это топка, средняя – каменка, куда кладутся камни и верхняя – бак для воды. Дров для такой печи надо много, нагревается она долго, зато и тепло отдает долго.
Второй тип печки отличается открытой каменкой. Т.е., камни находятся снаружи и на них для получения пара поддается вода.
Установив печь, можно запускать в эксплуатацию. Вот таким образом строится баня из керамзитоблоков. Если вы хотите построить баню, но не рассматривали такой строительный материал, то после прочитанного наверняка захотите им воспользоваться.
Особенности бани из кирпича
Кирпич прочен и долго служит, его легко отделывать снаружи и внутри. Единственная сложность при условии строительства бани из кирпича своими руками состоит в том, что не все знают и умеют правильно класть такой материал.
Фундамент из кирпича на бетонной ленточной основе.
Кирпич имеет высокую прочность и долго служит. В этом заключается его преимущество над брусом и деревом. А еще кирпичную баню быстро вводят в эксплуатацию после завершения строительства. Это происходит из-за того, что баня из кирпича не подвержена усадке. В других случаях усадка имеет место и занимает около года.
Как построить баню из кирпича? Многие дачники считают, что баня из сруба менее затратная, поэтому и отдают ей предпочтение. Однако если размеры бани из сруба и кирпича одинаковы, то и стоимость выходит приблизительно равная.
Так ли хороша баня из кирпича? Из этого материала благодаря его свойствам можно создавать разные архитектурные детали, отличающиеся формой и конструкцией.
У кирпичной бани меньше возможностей загореться, чем у рубленой. Сооружениям из облицовочного кирпича не нужно делать внешнюю отделку. Они хорошо будут смотреться на даче.
Кладка кирпича с однорядной системой перевязки.
Есть, конечно, и несколько недостатков. В любом случае строительство бани из кирпича будет стоить дороже. Такую конструкцию нужно дольше растапливать. Материал может отсыревать и крошиться. Чтобы этого не происходило, нужно поставить хорошую вентиляцию и пароизоляцию.
Когда выбрано строительство кирпичной бани, находят место для постройки. Ставить кирпичную баню надо только на сухом месте. Если рядом есть озеро или река, то возводить строение нужно на расстоянии не меньше 30 м от них. Иначе весной, при разливе, повысится влажность воздуха, а баню может затопить.
Что касается противопожарных требований, то баня должна находиться на определенном расстоянии от соседских домов. Если сооружение предполагается топить дровами, то расстояние от дома должно быть не менее 12 м. Однако в качестве обогрева можно использовать газовый или электрический котел. Тогда дыма не будет. При этом расстояние можно уменьшить до 5 м. Хотя для экономии средств баню из кирпича можно соединить с жилым домом. Так будет легче проводить электричество и канализацию.
Преимущества и недостатки кирпичной бани
Постройки из этого материала имеют целый ряд достоинств.
Они наиболее долговечные и могут эксплуатироваться 150 лет и более.
Внешняя привлекательность, вкупе с солидностью и основательностью.
Здания, сооруженные из облицовочных кирпичей, не нуждаются в дополнительной внешней отделке.
Обладают хорошими теплоизоляционными свойствами, а это очень важно для парной.
Прекрасно вписываются в общий архитектурный ансамбль участка.
Особенности кирпича, как конструктивного элемента, позволяют сооружать здания из него любых форм и конфигураций.
Справедливости ради, надо отметить и недостатки подобной бани.
- Кирпич имеет большую теплоемкость, чем дерево, поэтому растапливать баню из него необходимо дольше.
- Если вы не позаботились, в свое время, оснастить такую парную качественной пароизоляцией и вентиляцией, то она начинает сыреть. Иными словами – паропроводность кирпича хуже, чем у древесины.
- Такая баня обойдется вам гораздо дороже рубленой.
Размеры бани
Перед тем как начнете планировать баню, для начало определитесь с размерами, по сколько зависят от размера участка. Давайте рассмотрим самые популярные популярные варианты бань, разных размеров.
Баня 2х2
Самая маленькая баня, где очень мало пространства, расположить вы сможете только самое необходимое, всего две комнаты: предбанник и парилка. В данной бане рекомендуется размещать печь так чтобы одной половиной она была в парилке, другой в предбаннике. Мойка в этой бане разместиться в парилке.
Баня 3х3
В такой бане, несмотря на маленькие размеры можно уже увлечься планировкой. Если хотите больше свободного места, то расположите моечную в парилке, остальную площадь под комнату отдыха и предбанник. Если хотите с комфортом парится, а потом и с комфортом помыться выделите по 1,5 метра на помещение, можно как в длину, так и в ширину.
Баня 3х4
Размеры в данной бане больше, чем ранее описанной. В данном сооружении можно без проблем обустроить моечную и парилку. Разместить печь рекомендуется таким образом чтоб топочная печи находилась в предбаннике. Таким образом будет без проблем поддерживать температуру в парной.
Баня 4х4
В данном сооружении уже комнаты моечной и парилки уже имеют большую площадь, и, естественно, увеличивается их функционал. Расположить комнаты парилки и моечной уже можно разделить.
Баня 5х4
В такой постройки комнаты уже без труда обустраивают моечную и парилку в раздельных комнатах. И в таких легких условиях можно комфортно обустроить комнату отдыха. Часто объединяют помещения предбанник и раздевалкой.
Баня 5х5
В таком просторном пространстве можно без труда разделить на такие зоны как:
- Комната отдыха.
- Предбанник.
- Парилка.
- Моечная.
Кроме того, на 2 этаже можно сделать мансарду, в которой вы можете без труда обустроить спальню и детскую.
Баня 5х8
В данной бани великолепно обустраивается нижний этаж, но и уместно будет соорудить мансарду на втором, ее тоже разделяют на несколько комнат отдыха – бильярдная и спальня.
Баня 6х6
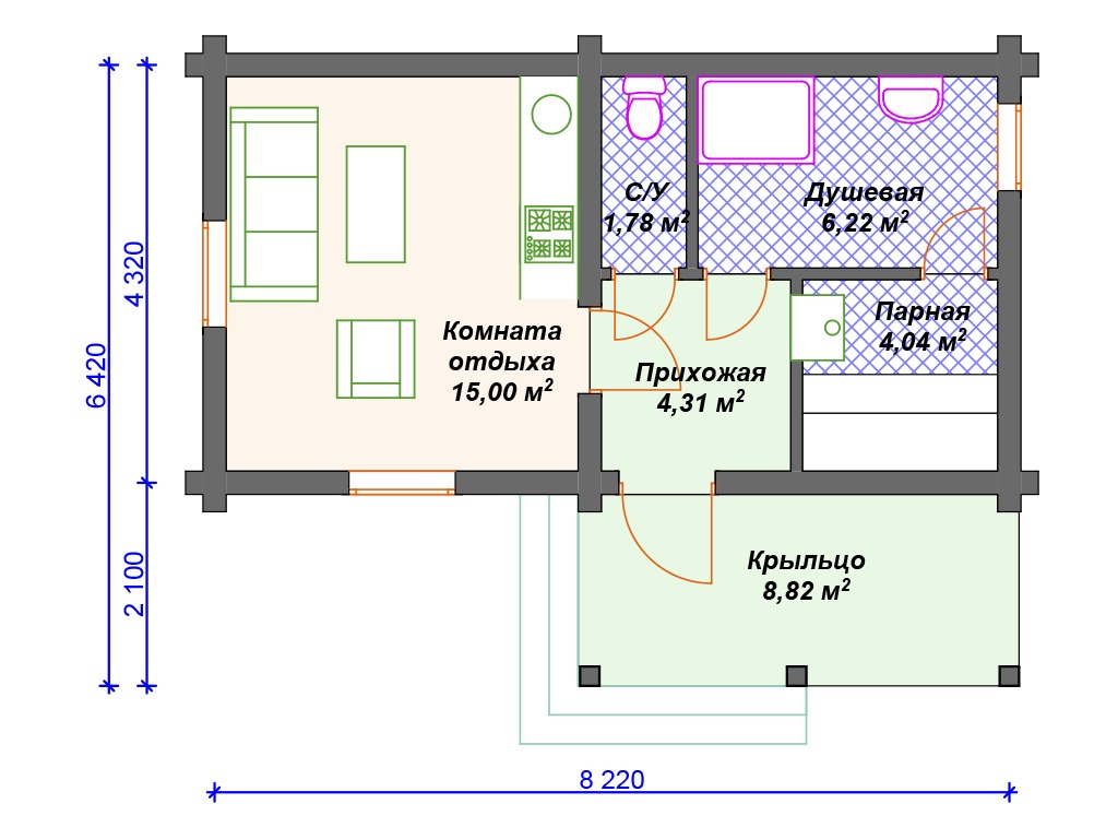
Размеры данной бани считаются отличными по габаритам. Данное помещение поможет обеспечить комфортом во всех комнатах. Получается возможным установить все необходимое оборудование и мебель без всяких проблем и экономии места. Данной баней могут пользоваться 7-11 людей. На каждого человека приходится 1,15 квадратных метров примерно. В данном сооружение парилка делается больше, чем помывочная, а канализацию делаете рядом со сливной ямой.
Планировка бани: рекомендации.
В начале строительства крайне желательно сделать проект, который должен, в том числе, определить оптимальную площадь постройки.
Считается, что расчётная площадь на 1 человека должна быть примерно 5 кв.м. Таким образом, если предполагаемое количество посетителей бани будет 4 человека, её общая площадь не должна быть меньше 20 кв.м.
Минимальный состав помещений следующий: парилка, моечная, комната отдыха и предбанник
Важно определить наиболее удобное расположение этих помещений относительно друг друга, а также их геометрические размеры
Сначала нужно выполнить несколько схем и чертежей:
— общий план строения; — чертежи каждого помещения в отдельности; — схему устройства фундамента; — схему устройства кровли; — план крепления и выкладки бруса; — план устройства пола и потолка бани; — схему установки печи с учётом её конструкционных особенностей.
Все необходимые чертежи можно выполнить самостоятельно, а также найти во множестве открытых источников. Как правило, бани из бруса имеют похожие проекты и легко можно выбрать наиболее подходящий. При желании и наличии необходимого бюджета, заказать проектирование можно поручить профессиональному архитектору или строителю.
Варианты кирпичной кладки
Фундамент для кирпичных бань
Кирпичная баня это строение с достаточно немаленьким весом, поэтому для него требуется сформировать прочный фундамент. Его укладывают ниже точки промерзания грунта. Для разных регионов эти показатели индивидуальны и могут значительно отличаться.
Чаще всего для бани из кирпича выбирают ленточный фундамент, обеспечивающий надежную основу для тяжелого объекта. Несмотря на высокую стоимость и низкую скорость возведения, ленточный фундамент в полной мере обеспечивает прочность и надежность постройки.
Сложный грунт, проблемный рельеф и глубокое промерзание почвы в зимний период нуждаются в свайном фундаменте. Сваи устанавливают под углами бани, простенками, а также через каждые два метра.

Свайный фундамент для маленькой бани с ростверкомИсточник mirstrojka.ru
Строительство надежной бани из кирпича имеет свои особенности и требует формирования деревянного или металлического ростверка.
Баня 6х4 с верандой
Создание собственной бани – это не просто удивительный проект для любителей ручного труда, но и возможность создать идеальное пространство для релаксации и здоровья по своему усмотрению. Мы рассмотрим, как построить баню размером 6х4 метра с верандой своими руками. Несмотря на то, что это кажется сложной задачей, с правильным подходом и терпением вы сможете создать уникальное и качественное строение.





Список инструментов:
- Топор, пила
- Молоток, уровень
- Линейка или рулетка
- Шуруповёрт
- Электрическая дрель
- Ключи (набор)
- Набор отверток
- Стамеска
- Кельма для раствора

Начните с разработки плана вашей будущей бани. Обозначьте на участке место под фундамент и будущие стены, учтите место под вход и веранду. Расчистите и выровняйте участок под фундамент, залейте бетон и дайте ему полностью высохнуть.
После того как фундамент полностью высох, начните строительство стен из бруса или бревна, при этом не забудьте оставить проемы под окна и двери. Постройте каркас для крыши, обтяните его влагозащитным материалом, а затем установите кровельные материалы.

Постройте каркас веранды, установите полы и крышу. Если вы хотите, можно сделать веранду закрытой или открытой. Произведите утепление стен, потолка и пола. Установите парную печь и выполните отделку помещения.

Произведите внешнюю отделку бани, установите окна и двери, обработайте древесину антисептиком и покрасите. Установите мебель и аксессуары, проверьте работу печи.

Баня из пеноблоков: пошаговый проект
Построить баню из пеноблоков — это замечательная идея, так как пеноблоки обладают хорошей теплоизоляцией и прочностью, что способствует созданию комфортного помещения.
Шаг 1: Планирование
- Определите место для строительства бани и получите разрешение на строительство, если необходимо.
- Разработайте план бани, учитывая размеры, количество помещений (парная, раздевалка, душевая, туалет и т.д.), окна и двери.
Шаг 2: Подготовка материалов и инструментов
- Закажите доставку пеноблоков нужного размера и количества, цемента, песка, арматуры, кирпича, дверей, окон и других материалов.
- Подготовьте инструменты, такие как шпатели, лопаты, уровни, строительные скобы, болгарку, дрель, миксер для цемента и т.д.
Шаг 3: Постройка фундамента
- Подготовьте участок под фундамент и выровняйте его.
- Постройте ленточный фундамент или используйте железобетонные блоки.
- Установите водоотводные трубы и систему канализации.
Шаг 4: Возведение стен
Начните укладку пеноблоков, используя клей для пеноблоков и металлическую сетку для армирования.
Постройте стены бани, оставляя места для окон и дверей.
Обратите внимание на вертикальность и горизонтальность стен, используя уровни для проверки.
Шаг 5: Устройство крыши
- Постройте крышу бани, используя стропильную систему из деревянных балок.
- Покройте крышу кровельным материалом (металлическая черепица, ондулин и т.д.).
- Обработайте кровлю гидроизоляцией для защиты от влаги.
Шаг 6: Установка окон и дверей
Установите окна и двери в баню, убедитесь, что они герметично закрываются.
Шаг 7: Внутренняя отделка
- Проведите электрику в бане и установите светильники и розетки.
- Постройте перегородки для раздевалок, душевых и туалета, используя кирпич или пеноблоки.
- Облицуйте стены парной и других помещений, используя плитку, дерево или другие подходящие материалы.
Шаг 8: Установка печи
Установите печь или каменку для парной, обратитесь к профессионалу для установки дымохода.
Шаг 9: Завершение работ
- Проверьте все системы, убедитесь, что все работает должным образом.
- Уберите строительный мусор и мусор от работ.
- Проведите финальную уборку.
Работа с пеноблоками имеет свои особенности и требует некоторой осторожности и знаний. Вот несколько особенностей, которые стоит учитывать при работе с пеноблоками:. Легкость:
Легкость:
Пеноблоки легче и менее плотные, чем обычные кирпичи, поэтому они могут быть удобнее для транспортировки и установки. Однако это также может означать, что они более хрупкие и менее прочные.
Размер и формат:
Пеноблоки поставляются в различных размерах, поэтому важно выбрать правильный размер, чтобы облегчить процесс строительства. Популярные размеры пеноблоков — 60x20x20 см или 60x30x20 см
Резка:
Пеноблоки можно резать с помощью специального инструмента — резака для пеноблоков или болгарки с алмазным диском. Будьте осторожны при резке, носите защитные очки и маску, чтобы избежать попадания пыли в глаза и легкие.
Клей:
Для склеивания пеноблоков используется специальный клей для пеноблоков
Важно правильно нанести клей на поверхность блока и следить за тем, чтобы слои клея были равномерными
Армирование:
Пеноблоки хоть и обладают некоторой прочностью, но для повышения устойчивости стен рекомендуется использовать арматурные стержни и металлическую сетку.
Помимо указанных характеристик, важно также рассматривать и другие аспекты при выборе пеноблока
| Марка | Страна Производства | Описание | Характеристики |
|---|---|---|---|
| Aeroc | Эстония | Aeroc — один из ведущих производителей пеноблоков в Европе. Продукция компании известна своим высоким качеством. | Плотность: 300-600 кг/м³, Прочность на сжатие: 2,5-5,0 МПа |
| Ytong (Xella) | Германия | Ytong — крупный международный производитель, известный своими строительными материалами высокого качества. | Плотность: 400-600 кг/м³, Прочность на сжатие: 2,5-4,0 МПа |
| DomoBlok | Россия | DomoBlok — российская компания, специализирующаяся на производстве пенобетона. Изделия компании широко используются на строительных объектах по всей стране. | Плотность: 300-700 кг/м³, Прочность на сжатие: 2,0-5,0 МПа |
| Hebel | Австралия | Hebel является ведущим производителем пенобетона в Австралии. Компания известна своей прочной и долговечной продукцией. | Плотность: 400-600 кг/м³, Прочность на сжатие: 3,0-6,0 МПа |
Строительство бассейна в готовой бане
Лучше собственной бани может быть только собственная баня с бассейном. Об этом особенно часто задумываешься, когда рядом нет близлежащих водоемов, а окунуться в прохладную водичку желание есть.
Наиболее предпочтительно, когда постройка бассейна рассматривается еще в процессе проектирования самой бани. Если помещение уже построено, возможность обустроить водоем есть, но придется столкнуться с ограничениями по выбору типа, расположению и другим параметрам.
Стационарный бассейн можно будет построить, если для него будет пристроено дополнительное помещение, так как он предусматривает закладку фундамента, рытье котлована и т.п. В самой бане это сделать проблематично, место под него не планировалось изначально, придется поднимать пол, перепланировывать и прочие неудобства.
Отличным вариантом замены станет сборно-разборный бассейн. Они отличаются простотой сборки, бывают разного диаметра. Место для него найти проще. Летом можно вынести на улицу. Он не совсем практичен, так как быстро приходит в негодность из-за постоянных манипуляций по сбору, разбору. Но если вы поставите его на определенном месте, без дальнейших перемещений, этот недочет исправляется.
Для владельцев маленьких и уютных бань тоже есть решение. Вам подойдет обычная купель из дерева или пластика. Деревянный резервуар был популярен еще у наших предков и станет прекрасным вариантом для маленькой площади. За деревянными изделиями нужен правильный уход. Это их главный недостаток.
ВАЖНО! Следите за тем, чтобы стены купели не размокли и не пересыхали. Также со временем может снизиться герметичность, что приведет к дополнительным затратам. Пластик не прихотлив в уходе, легко моется, влагоустойчив, обладает стопроцентной гидроизоляцией
Пластик не прихотлив в уходе, легко моется, влагоустойчив, обладает стопроцентной гидроизоляцией.
Какой бассейн выбрать – каждый владелец решает самостоятельно. При желании можно построить долговечную модель бассейна, который будет радовать вас и ваших близких долгие годы. Но не меньшее удовольствие доставит использование любого другого из предложенных вариантов.
Кладка цоколя
Цоколь делается несколько толще стены, но придерживаться этого правила необязательно. Увеличение толщины делается на полкирпича. Большее значение нецелесообразно. Также цоколь не следует делать толще фундамента в бане. Это отрицательно скажется на устойчивости всей конструкции.

Фундамент под баню из кирпича выкладывается по той же схеме, что и стены. Песчаная подушка предохраняет фундамент от пучностей грунта. От провалов защищает нижний армированный слой. В фундаменте очень выгодно совмещать кирпич с бетоном. Значительно добавит прочности бетонный пояс, который обязательно армируется продольной арматурой большой длины.
Основные правила кладки
При возведении стен из кирпича важно следить за вертикальностью стен и углов. Не менее важно чтобы ряды были ровными в горизонтальной плоскости
Потому обязательно использование хорошего строительного уровня — для контроля горизонтальности рядов, и строительного отвеса — для отбивки углов и проверки вертикальности стен.
Для того чтобы стена было ровной используют натянутый шнурок
Вот несколько основных правил:
Несколько первых рядов выкладываются из целого кирпича — по ним потом ровняются все остальные.
Первыми возводятся углы
Они проверяются на вертикальность с двух сторон.
Между двумя углами натягивается шнур, по которому выравниваются все кирпичи в ряду (в шов вставляются гвозди, на них закрепляется шнур, только он должен находиться на одинаковом расстоянии от стены на обоих концах).
При кладке важно работать с такой скоростью, чтобы выложенный раствор не успевал схватываться. В жаркое время, чтобы замедлить высыхания раствора, кирпичи окунают в воду, после наносят раствор.
Техника работы с кельмой при кладке кирпича продемонстрирована в видео.
Сложнее всего правильно выкладывать углы. Ведь при этом должна соблюдаться перевязка, еще и смотреться все это должно хорошо. Как это сделать правильно при кладке стены в один кирпич, смотрите в видео.
Если стена в полтора кирпича углы делают так
Эти уроки наглядно демонстрируют технику работы с кирпичом, раствором, кельмой. Они помогут вам построить баню из кирпича своими руками, и сделать это грамотно.
Создание фундамента: какую конструкцию выбрать?
Основание такого сооружения должно отвечать критериям прочности, долговечности, пожаростойкости, оно должно справляться с постоянной высокой нагрузкой, поскольку кирпичные строения имеют большую массу. Лучше строить баню на следующих видах фундамента:
- Ленточное основание. Оно представляет собой сборную или монолитную конструкцию, которая оборудуется под несущими стенами и перегородками, принимая на себя вес строения. К достоинствам ленты относится хорошая прочность, уменьшенные затраты на материал, возможность легкой заливки самостоятельно. Недостатком считается ограниченность применения на слабых и пучинистых грунтах, поэтому перед тем как построить баню из кирпича на таком основании, следует сделать геологические изыскания.
- Плитный фундамент. В отличие от предыдущего вида, он более прочен, выдерживает увеличенные нагрузки, подходит для крупных строительных конструкций, в том числе в несколько этажей, но строительство займет больше времени и обойдется дороже.
- Фундамент на винтовых или набивных сваях. Подобные конструкции используются реже ввиду не лучших показателей прочности и устойчивости. Обычно строение ставят на сваи, если рельеф невозможно или экономически невыгодно выравнивать, и в случаях, когда грунты признаны подвижными или сыпучими.
Если под баню сделать плитный фундамент, с созданием бассейна появятся технические сложности, этот момент нужно иметь в виду на этапе планирования.
При создании фундамента потребуется выкопать траншею либо котлован, провести дренажные работы, засыпать по дну песчано-щебневую подушку. Затем рабочие монтируют опалубку, устанавливают армирующий каркас и заливают бетонную смесь. Если фундамент сборный, отдельные элементы устанавливают, и скрепляют их цементом. Монолитное основание высыхает в течение 3-12 недель в зависимости от размеров, глубины залегания и климатических условий
После снятия опалубки важно гидроизолировать фундамент, для чего можно применять мастику или рубероид
Разновидности эконом бань
Планировка бани своими руками: рекомендации
Как самому построить баню на даче.
Иногда так хочется покинуть суету и шум города, и уехать на дачу. Тишина, прогулки, занятие любимыми делами — что может быть лучше! Если на даче обеспечен комфорт, хочется приезжать ещё и ещё. Одним из комфортных условий проживания на даче является баня.
Строительство можно, конечно, поручить профессиональным строителям. Однако, построить и благоустроить баню на дачном участке вполне по силам самостоятельно. Это избавляет от дополнительных трат и позволяет произвести отделку и благоустройство в полном соответствии со своими желаниями и предпочтениями. Поэтому эта задача непростая, но вполне по силам начинающему строителю. Построенная собственноручно баня будет радовать владельцев ещё больше. Итак, как же самому построить баню?
Во-первых, как и при любом строительстве, сначала необходимо определиться с проектом и с материалами, из которых баня будет строиться. Выбор основного материала для строительства зависит от географического положения и условий эксплуатации, а также от собственных возможностей.
Бани бывают из кирпича, газобетона и других каменных материалов, некоторые отдают предпочтения каркасным баням, однако, многие начинающие строители предпочитают строить баню из дерева. Этот лёгкий и долговечный материал не требует обустройства серьёзного и дорогого фундамента, однако обладает прекрасными характеристиками. В случае надлежащего ухода, эксплуатация бани не будет доставлять особых хлопот.
И конечно, предпочтение стоит отдать брусу — баня из этого материала сохранит все преимущества деревянной конструкции и избавит от проблем и дополнительных затрат, которые могут возникнуть при строительстве стен из бревен. Возведение стен из бруса похоже на работу с конструктором — он может иметь разные геометрические размеры и сечение (прямоугольник, квадрат, полукруглый), а также, в случае профилированного бруса, присутствуют пазы для крепления. Строить из бруса легко и удобно — что может быть лучше для начинающего строителя!
Преимущества кирпичной бани

Как мы уже говорили, преимущество кирпича над оцилиндрованным бревном и профилированным брусом заключается в более высокой прочности и долговечности материала. Помимо этого следует отметить еще одно преимущество кирпичной бани – менее трудоемкий уход за постройкой и более быстрое введение кирпичной бани в эксплуатацию. Последнее связанно с тем, что баня из кирпича не требует усадки, которая обычно проходит в течение года.










Причина, по которой некоторые дачники отдают предпочтение бане из сруба – это якобы меньшая стоимость работ. Но тут мнение противоречиво, т.к. при одном и том же размере и проекте бани, затраты бревна и кирпича будут практически одинаковыми по стоимости.
Что бы вы сами решили, что выгоднее: кирпичная баня либо баня со сруба, предоставляем вашему вниманию данное видео, в котором все подробно анализируется:
Что выгоднее: кирпич или сруб?
Теперь переходим к проектам кирпичных бань.
Кирпич или дерево? Выбираем строительный материал
Самые популярные материалы для строительства бань – древесина, кирпичи и блоки. Деревянная баня может быть в виде сруба или каркасной.
Древесина

Небольшая деревянная баня
Дерево – классический материал для постройки бань. Древесина ценится за свою экологичность и легкость в обработке. Деревянные бани быстро прогреваются, а выделяемые в воздух эфирные смолы благоприятно влияют на самочувствие посетителей.



Двухэтажная баня из тополя
- огнебиозащитной пропитке;
- противопожарной разделке;
- материалах для изоляции пола перед топкой и стен бани от жара печи.
Очень важно в деревянных банях правильно организовывать вентиляцию. Даже если баня площадью всего 4-6 квадратных метра
Посетителям вряд ли понравится аромат затхлости и плесени, а владельца не порадуют гниющие полы и стены.

Вентиляция в бане
Теперь конкретнее о ценах на древесину, чтобы примерно подсчитать затраты на строительство.
*Средняя стоимость стройматериалов актуальна на 2017 год.
Кирпичи и блоки

У производителей кирпича всегда большой ассортимент изделий самых разных форм, оттенков, фактур. Например, комбинируя кирпич двух разных оттенков при строительстве стен, можно возвести баню, которая внешне будет очень аккуратной и эстетичной.

Окна из стеклоблоков
Сколько будет стоить строительство бани из кирпича М100 рядового?
Как делается кладка кирпича
Для строительства бань чаще всего используют красный кирпич. Возведение стен происходит в соответствии с одной из технологий:
- кладка в 1,5 или 2 кирпича с последующим утеплением;
- возведение двойных стен с укладкой теплоизоляционного слоя.
Фото проекта бани из кирпичаИсточник mos-logist.ru
Кладка в 1,5 кирпича обладает отличной прочностью. Возведение стен начинают с угла, выдерживая строгий перпендикуляр между ними.
В зависимости от расположения кирпича в ряду различают:
- ложковые ряды, которые укладывают длинной стороной кирпича вдоль стены;
- тычковые ряды предусматривают расположение кирпича короткой стороной поперек стены.
Схема укладки стен бани в 1,5 кирпичаИсточник mos-logist.ru
Вдоль будущей стены натягивают шнур для ориентировки в горизонтах, концы которого устанавливают между крайними кирпичами.
Кладка стен из кирпича имеет ряд особенностей.
- Раствор наносят на всю поверхность кирпича равномерным слоем.
- Кирпич равняют на плоскости рукояткой кельмы, удаляя излишки раствора.
- Для раскола материала используют молоток-кирочку.
- При кладке стен в два кирпича, раствор наносят в большом количестве, достаточном для кладки обоих рядов.
- Битый кирпич не используют в простенках и перевязочных узлах.
- Для равномерного распределения давящей нагрузки тяжелых стен используют перевязку кладки.



































