Пристрой из газоблоков
Силикатные блоки часто используются в строительстве благодаря скорости возведения, теплоизоляции и другим положительным характеристикам. Блоки из газобетона марок D500 либо D600 используются при строительстве несущих стен, если армировать каждые 3 ряда. Постройку не понадобится утеплять, если толщина газобетона 30-40 см. Для лёгких газо- и пеноблоков не нужен укреплённый фундамент.
Перед началом строительства выполняют расчёт пристроя из газобетона. Для варианта 9 м пролёта здания пристроенное помещение имеет такие параметры:
Таблица 1.2 – Размеры для постройки
| Виды | Особенности |
| Плитный фундамент | Высота: 40 см |
| Цоколь кирпичный | Высота: 45 см Ширина: 37 см |
| Размеры пристроя | Высота: 2.5 м Ширина: 5 м Толщина стен: 0.3 м |
| Крыша | Из одного ската |
| Окно | 2.1×1.4 м |
Рассмотрим особенности пристройки к дому из газоблоков своими руками. Фундамент для постройки выбирают монолитный или ленту. Избыточная влага снижает теплоизоляционные свойства газобетона. Чтобы исключить контакт газобетонных блоков с почвенными водами и осадками, основание покрывается слоем рубероида, мастикой из битума. И только потом приступают к укладке стен.
Особенности стеновой укладки с деформационным стыком
Как организовать непродуваемый и технологичный стык между газобетонными блоками или газобетоном и кирпичной/деревянной основой?
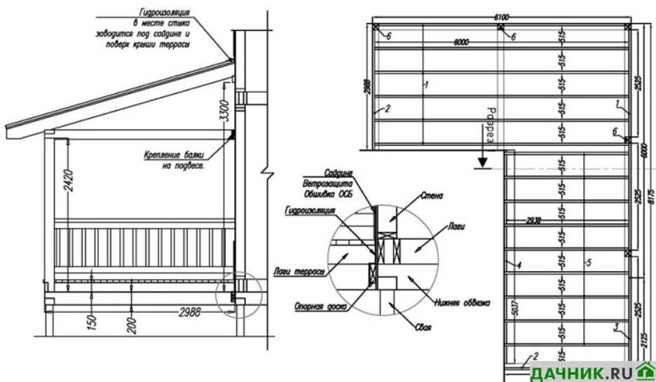
В стене строения вырезают штробу вглубь до 12-20 см. В горизонтальный паз будет встраиваться пристыковываемая стенка пристроя; В стенку штробы погружают блоки пенопласта в качестве прослойки — так устраняются соприкосновения стен из газобетона, и место стыка утепляется; Когда часть стены, возводимая своими руками пристройки к дому из пеноблоков тонкая (18-25 см), штробы целиком погружают в паз. При использовании широкого блока (35 см и больше) вырезаются в газоблоке гребни нужного размера, которые и погружаются в штробу; Перед монтажом уплотнителя внутри штробу оштукатуривают, т. к. пенопласт и уплотняющий материал к шероховатой поверхности хорошо не примкнут; Сделать непродуваемый угол получится, если на блоках смонтировать зуб. Его длина должна в точности соответствовать глубине паза. Если появляется щель, то или устанавливается уплотнитель, или она заполняется монтажной пеной; Слои утеплителя между пристроем и наружной отделкой постройки сформируют угол и неплотно состыкуются между собой
Это важно, т. к
отделка и утеплитель двигаются вместе с домом, потому так нужна и здесь работа деформационного шва. Если просаживается угол примыкания, то не должна деформироваться или отрываться отделка; На финишных работах наружное место соединения здания и пристроя заделывают алюминиевым уголком из 2-х планок. Между ними вклеен прорезиненный материал. Монтируют уголок с образованием компенсирующей петельки (складочки). При усадке постройки складка как складывается, так и растягивается. Сам прорезиненный материал дополнительно защитит угол от продувания и намокания.
Аналогично поступают и внутри соединения пристроя с пенобетонным зданием. Но этих мер бывает недостаточно, когда пристройка начинает резко усаживаться. Тогда осыпается штукатурка, которую наносили на уголки, и приходится декорировать стены заново.
Один из вариантов улучшить внешний вид жилого строения, добавить ему декоративности – это возведение веранды. Какие особенности пристройки веранды к дому своими руками, можно узнать из видео:
Пожалуйста, оцените наш материал:
Мне нравится1Не нравится
Виды
Пристройки к деревянному дому бывают разными. Они различаются по многим параметрам.
Рассмотрим, на какие разновидности подразделяются подобные постройки, и какими параметрами они отличаются.
Навес. Хорошо защищает от непогоды или назойливых солнечных лучей. Под навесом можно принимать гостей или просто парковать автомобиль. Само по себе такое сооружение является предельно простым. Для его возведения не придется подготавливать крепкий фундамент. Чтобы построить навес, сначала устанавливают столбы, а к ним монтируют каркас. Пол делают из досок или тротуарной плитки – допустимы оба варианта.
Как узаконить пристройку?
Узаконивание представляет собой процесс согласования изменений с надзорными органами. Желательно не избегать этих действий, ведь легализация пристройки через суд гораздо сложнее, дороже и дольше.
Прежде всего нужно понять, как оформить реконструкцию в виде пристройки к зданию:
- До начала строительных работ.
- Когда объект уже построен, но без разрешения.
Сейчас встречаются оба способа. Юристы рекомендуют оформлять пристройку до реконструкции дома. Такой процесс принято считать административным. С 4 августа 2020 года он стал проще, быстрее и понятнее. Разрешение не строительство и/или реконструкцию получать больше не нужно. Их заменили два уведомления – о планируемых работах и об окончании строительства (см. «Можно ли сделать пристрой к дому без разрешения на строительство?»
Поговорим о наиболее частых ситуациях.
К частному дому
Если дом стоит не на муниципальной, а на собственной земле, можно строить и вспомогательные объекты ИЖС – гаражи, бани, лестницы и прочие пристройки. Одна из несущих стен коттеджа будет общей.
Важно обратить внимание на следующие моменты:
- оформлена ли недвижимость в собственность – у хозяина должны быть свидетельства или выписки из ЕГРН + техпаспорт на жилой дом.
- соблюдаются ли нормы СНиП, СЭС и пожарные требования;
- все ли совладельцы дома согласны на реконструкцию;
- нет ли претензий со стороны соседей по участку.
Урегулировав вопросы, можно приступать к реконструкции дома. Прежде чем возводить пристройку, нужно:
- Направить уведомление о предстоящих работах в администрацию.
- Дождаться ответа – разрешения или отклонения.
- Соорудить пристройку.
- Пригласить геодезистов, чтобы они сделали обмеры коттеджа и передали сведения кадастровому инженеру.
- Дождаться изготовления техплана.
- Направить второе уведомление после возведения – о соответствии или о завершении работ по реконструкции.
- Дождаться одобрения администрации и узаконения изменений в ЕГРН.
Завершающим шагом станет получение общей выписки из Росреестра. Там будут отмечены новые параметры дома, а также обновление сведений о праве собственности.
Подробнее читайте в статье «Как получить разрешение на реконструкцию частного дома«.
К многоквартирному дому
Зачастую реконструкция проводится в городской черте, например – на придомовой территории многоквартирного дома (МКД). Собственник квартиры может обустроить балкон, нежилое помещение (подсобку), еще одну комнату и иные объекты. Обычно это выполняется владельцами квартир на первых этажах МКД.
Узаконение пристройки происходит с учетом двух факторов:
- Земля приватизирована собственником – в таком случае достаточно подать уведомление в адрес администрации и начинать стройку.
- Придомовая территория не принадлежит собственнику – в этом случае придется согласовывать работы с жильцами дома.
Второй вариант встречается чаще. Обычно МКД стоят на придомовой земле, право собственности у всех хозяев жилых помещений в доме. Инициатор реконструкции должен организовать собрание, где будет обсуждаться вопрос создания пристройки (пп. 1 п. 2 ст. 44 ЖК РФ).
Форма проведения собрания – очная, заочная или смешанная. Для одобрения нужно набрать большинство голосов. В первую очередь учитывают голоса жильцов подъезда, где планируется сделать пристройку.
Если нужное количество набрано, застройщик берет копию протокола собрания и подает его в администрацию вместе с уведомлением о реконструкции. Оттуда приходит ответ. Далее, происходит реконструкция и ее узаконение через администрацию.
К нежилому зданию
Схожие действия выполняет и владелец нежилого здания. Также нужно учесть статус земельного участка и кому он принадлежит? Если земля муниципальная, придется согласовывать реконструкцию с правообладателем территории – органом местного самоуправления (МКУ). Если земля выкуплена у города, собственник может строить на ней все что захочет. Разумеется, в рамках СНиП, градостроительного плана и разрешения на землю.
Узаконивание пристройки к нежилому зданию происходит через отдел архитектуры или в суде. Заявитель обращается в БТИ или иную организацию, разрабатывает проектную часть и заполняет уведомление о перестройке. Желательно, чтобы архитектурным проектированием занимался эксперт. Он составит предварительный план, его сверят в БТИ с допустимыми нормами и дадут заключение.
Если пристройка не нарушит границы участка, ландшафт территории и линейные объекты – администрация выдает разрешение. В противном случае ничего реконструировать нельзя!
Технология строительства
Наиболее популярными на сегодняшний день являются каркасные пристройки, они просты, требуют минимум материальных затрат, быстро возводятся. Различают следующие каркасныи технологии:

Каркасно–панельная технология: панели с проемами изготавливают отдельно, а после, на месте, собирают в единую конструкцию. Этот способ отлично подходит для пристроек к каменному дому, для деревянных строений, как правило, не применяется:
Каркасно-рамочная технология: подойдет, когда необходима пристройка террасы или небольшого помещения. Как правило, такой способ используют для летних помещений. Главным достоинством является простота конструкции, а также то, что у мастера есть широкий выбор способов, материалов и вариантов.

Каркасная технология оптимальна, когда необходима пристройка веранд, летних помещений и других неотапливаемых и простых строений. Для капитального, всесезонного помещения или гаража, такой способ используется редко, поскольку для придания конструкции прочности требуется значительное ее усложнить, а это не всегда целесообразно.


Вне зависимости от того, какие технологии вы будете использовать, правильная пристройка к дому обладает одной важной конструктивной особенностью, а именно – потребуется ее присоединить к основному строению. Ввиду важности этого момента, остановимся на нем более подробно.

Создание пристройки к деревянному дому
В первую очередь, стоит помнить о том, что любая пристройка к дому должна быть зарегистрирована в установленном Законом порядке. В первую очередь, решается юридический вопрос о законности внесения изменений в план дома.
Такой работой занимаются специализированные организации, которые и регистрируют внесенные в план строения изменения. После решения организационных задач, можно переходить непосредственно к строительству.
Материал для пристройки может быть разным. В зависимости от тяжести материала и его характеристик, выбирается тип фундамента, тип кровли, способ присоединения пристройки к стене дома.

- Кирпич для пристройки – один из распространенных вариантов. Пристройка будет служить десятилетиями, но потребует укрепленного фундамента.
- Деревянные пристройки хорошо гармонируют с основным домом, делают атмосферу внутри комнат благоприятной и здоровой.
- Пристройка из бруса сохраняет свойства деревянной, но будет стоить вам несколько дешевле.
- Каркасная пристройка еще дешевле, но выглядит вполне привлекательно и современно.
Не смотря на то, что строительство пристройки несколько проще, чем возведение дополнительного этажа, здесь также необходимо учитывать несколько характеристик исходного строительства.

Как ни крути, но пристройка к дому – это дополнительная нагрузка на строение. Если дом не слишком прочен, то пристройка может послужить решающим фактором, который разрушит дом очень скоро.
Что стоит учитывать, планируя строительство пристройки?
- Стоит изучить фундамент дома, насколько глубоко он заложен, какова его ширина, способен ли он выдержать дополнительную нагрузку.
- Может ли пристройка быть присоединена к стене дома жестко, с созданием изнутри входа в пристройку, или же такая нагрузка негативно скажется на стенах.
- Необходимо проверить качество стен, их структуру и степень разрушенности од воздействием времени. Если стены не слишком хороши, возможно, потребуется дополнительное их укрепление.
- Продумайте тип крыши пристройки, будет ли она продолжением имеющейся кровли, или же будет отдельным самостоятельным элементом.
Так или иначе, слишком жесткое присоединение пристройки к стене дома недопустима. Деревянная конструкция, сруб или пристрой, со временем дают ощутимую усадку. Усадка деревянной конструкции – это естественный процесс, поэтому слишком жесткое присоединение может повредить стену и фундамент основного строения.
Меньшее, с чем вы можете столкнуться – это появление трещин и отверстий в местах соединения пристройки и дома. Более серьезные проблемы уже были названы выше.
Выбор фундамента не так принципиален. Если дом стоит на ленточном фундаменте, вы можете использовать свайный, и наоборот. При этом стоит учитывать глубину пролегания основного фундамента.
В большей мере, на выбор фундамента влияет степень промерзания почвы зимой и другие характеристики почвы на участке.
По сути, строительство пристройки – это то же строительство дома, только в миниатюре. Здесь необходимо помнить о должной гидроизоляции фундамента и гидро и теплоизоляции стен.
При строительстве пристройки из дерева, существует большой выбор материалов, который вы при этом можете использовать. Старайтесь соблюдать правило экологичности. Если весь дом построен из дерева, не стоит портить экологичную атмосферу внутри него плохоми материалами, вредными для здоровья.
Оптимальный выбор кровли – это продолжение крыши основной постройки. Так вы сможете добиться гармоничной картинки, а пристройка станет не отдельным элементом, а единым целым с домом.
Еще один способ создать единую композицию – это использование тех же отделочных материалов для отделки пристройки, что вы использовали для отделки фасада дома. опубликовано econet.ru
Связка пристройки с деревянным и кирпичным домом
Брусовая пристройка может быть возведена не только для деревянных, но и для кирпичных домов. В этом случае возникнут некоторые нюансы при связывании двух сооружений.
Связка выполняется по нескольким причинам:
- Стена дома может являться одной из несущих стен будущей пристройки. Это выявляется специфические изменения в конструкции всей пристройки.
- Это мероприятие укрепит пристройку и позволит уберечь ее от проседания относительно одной стороны дома, если нет крепкого основания.
Особенности соединения двух построек различного характера
Если стены основного сооружения и пристройки имеют разную фактуру, например: кирпич-дерево или бетон-дерево, — то связка будет выполняться следующим образом:
- На стене пристройки необходимо выполнить выносные прокладки. Для этого также можно использовать брус. Эти прокладки должны обеспечить жесткое смыкание двух стен.
- Опорные брусья пристройки высверливаются с помощью бура через прокладки в кирпичную стену на глубину до 10 сантиметров.
Варианты связки стен
Кроме того, существует еще несколько вариантов того, как привязать пристройку к дому:
- Сквозная привязка. Выполняется в период чистовой отделки внутренних помещений. Производится сквозное засверливание, заглубление дюбелей, на конце которых устанавливаются ограничительные планки под гайку. Гайки стягиваются ключами, скрепляя две поверхности.
- Через кровлю. Выполняется односкатная кровля, стена которой крепится к второму ярусу здания насквозь или в тело кирпичной кладки.
Полезные советы
Перед тем, как сделать качественную каркасную пристройку к деревянного дома, необходимо больше узнать о самом процессе. Мы расскажем вам несколько советов от профессионалов, которые уже испытали все сложности строительства на себе:
Проводить работы с элементами из дерева необходимо в холодное время года. Это снизит время усадки.
Многие, покупая деревянные брусья в магазине, подразумевают, что они уже прошли все необходимые обработки
Зачастую это не так, и дерево нужно обработать самостоятельно.
Высота фундамента пристройки должна соответствовать высоте фундамента дома.
Важно следить за расположением стыков на крыше, чтобы через щели в кровле дождевая вода не протекала внутрь помещения.
Во время работы с клееным брусом нужно выделить время для осадки конструкции. Только после этого можно продолжать работу.
Фундамент устанавливается на глубину, равную глубине промерзания почвы.
Дереву необходимо дать просохнуть перед обработкой (покрытием краской или антисептическими средствами).
Обязательно необходимо провести обработку антибактериальным средством, особенно если это каркасная пристройка сделана к бревенчатому дому
Также важно помнить про огнеупорную обработку, которая помогает предотвратить пожар
Для сохранения каркасной постройки от коррозии рекомендуется минимально использовать металлические крепления. Их можно заменить оцинкованными элементами.
Сопряжение с основным зданием
Для правильного присоединения дополнительного помещения потребуется провести тщательные расчеты и исследования. Нужно учесть множество факторов и нюансов, а потому планирование лучше доверить специалистам.

При самостоятельном проектировании и монтаже особое внимание уделяют фундаменту, его сопряжению с основным
Важно правильно присоединить стены, кровлю, учесть взаимное влияние и сезонные изменения

Наиболее часто используемым на практике способом является применение технологии армирования, а в качестве арматуры выступают железные прутки. Широко применяют различные крепежные конструкции.

Важно правильно устанавливать кровлю, продумать и предусмотреть сток воды с вышестоящей крыши, при неверном выполненном конструктивном исполнении возможно намокание стен и потолков.

Юридические тонкости
Прежде чем своими руками делать пристройку к деревянному дому, целесообразно учесть некоторые юридические тонкости, касающиеся подобных работ.
- Сначала домовладельцу понадобится согласовать вопрос сооружения пристройки в соответствующих инстанциях. Получить готовое разрешение на уже возведенную конструкцию будет гораздо труднее.
- Если не получить разрешение на строительство дополнительной жилой площади, в дальнейшем можно столкнуться со многими серьезными проблемами. В большинстве случаев последние возникают в процессе продажи дома или сдачи его в аренду.
- С готовой постройкой нужно обращаться только в суд, собрав пакет всех необходимых документов. Иски удовлетворяются далеко не во всех случаях – это нужно учесть. Если домовладелец проиграл в суде, готовую пристройку снесут. Снос производится за счет хозяев и без компенсаций.
Устройство кровли
Крышу пристроя сделайте из деревянных балок.
Последовательность работ:
- к стене дома прибейте анкерными болтами балку толщиной 50 мм для дальнейшего крепления стропил;
- смонтируйте стропила — доски толщиной 50 мм на расстоянии, равном размеру утеплителя;
- прикрепите стропила к доске и к верхней обвязке стены уголками и саморезами;
- уложите на стропила гидроизоляционный материал и закрепите скобами;
- положите и закрепите кровлю из металлочерепицы, профнастила, шифера.
Ваша постройка будет качественной и служить долгие годы только в том случае, если будете соблюдать технологию строительства.
Особенно при сооружении капитального жилого пристроя отступлений от технологии быть не должно. Не забудьте также обработать антисептиком все деревянные части вашей постройки: стен, пола, потолка, крыши.
Фундамент для пристраиваемой конструкции
В качестве основания для сооружения чаще всего используют ленту или столбчатый фундамент, каждый их них обладает определёнными преимуществами и недостатками.
Ленточный фундамент
Представляет собой замкнутый контур из железобетона, возводимый под всеми несущими стенами постройки, который передаёт нагрузку от них на грунт. Он позволяет возводить деревянные, кирпичные и монолитные строения.

Рассмотрим поэтапное возведение:
- На выделенном под строение участке делается разметка с помощью колышков и веревки;
- По разметке для фундамента под пристройку к дому своими руками выкапывается траншея, зависит её глубина от залегания основания дома. Ширина нужна больше, чем толщина укладываемой стенки на 10-15 см;
- В траншею засыпается песчаный пласт в 10-12 см и утрамбовывается;
- На дно выкладывается гидроизоляция, которая выступает на поверхность почвы на 40-45 см;
- На гидроизоляцию устанавливается арматурная решётка, которая соответствует форме возводимого фундамента по ширине и высоте;
- Ленту заливают бетоном на ⅓ высоты, когда данный слой застынет, то укладывается второй на ½ оставшейся высоты;
- После заливки 2-го слоя устанавливается опалубка из древесины для возведения надземной части ленточного основания (цокольной части). Гидроизоляционный материал запускается внутрь опалубки и фиксируется к её стенкам;
- Опалубка заполняется бетонной смесью, в процессе укладки уплотняется возвратно-поступательными движениями куском арматуры или вибратором для предотвращения образования в нём пор. После заполнения всей опалубки поверхность бетона разравнивается по уровню;
- Далее бетон должен высохнуть и набрать 100%-ю прочность через 28 дней. Первые 3 дня его нужно смачивать через 2-3 часа водой. Затем он поливается 3 раза в сутки на протяжении 25 дней.
После затвердения основания опалубка снимается, поверхность покрывается снаружи материалами для гидроизоляции.

Столбчатый фундамент для пристройки к дому своими руками
Его применяют при постройке веранд и летних кухонь, обустраивают из красного кирпича либо бетона. На столбы в основном устанавливают каркас из древесины, на него настилают сам пол.
Возводится основание таким образом:
- Размечается выделенный для строительства участок. Столбы устанавливают с шагом 1,5 м;
- Для каждого столбика копается отдельная 50х50 см ямка с углублением на 50-60 см. К верху она должна расширяться на 10 см со всех сторон;
- На дно ямы насыпается подушка из слоя песка и щебёнки. Затем её дно и стенки покрываются гидроизоляцией;
- Если опоры из кирпича, то на дно ям укладывается слой раствора, на который после застывания кладётся первый ряд кирпича;
- Если опорные столбики из бетона, то в ямы устанавливают арматуру и опалубку на высоту опоры. Гидроизоляция запускается внутрь опалубки и крепится к ней;
- В установленную опалубку слоями заливают бетон. Причем каждый слой раствора должен нормально схватиться;
- Верх столбика разравнивают, бетон увлажняется водой до набора им марочной прочности;
- Опалубка демонтируется, столбы покрываются гидроизоляционным материалом (обмазываются битумной мастикой, на которую наклеивается рубероид);
- Пустоты между стенками ямы и опорой засыпаются перемешанным с щебнем грунтом, который плотно утрамбовывается.

На верх столбов укладывается рубероид для укрытия от воздействия влаги уложенных на них деревянных брусьев.
Чтобы пристроенная конструкция не отошла со временем, возводят её с небольшим наклоном в направлении дома. Уклон стенок по вертикали закладывается в 1 см на каждый метр высоты пристроя. Чаще всего уклон закладывается на этапе возведения основания.

Крыша для пристройки к дому
По большому счету, существует всего два вида крыш для пристройки: односкатная и двускатная.
Какой вид крыши выбрать – решать Вам.Односкатная крыша проще в техническом исполнении. Считается, что оптимальный угол наклона для такой крыши должен составлять 10-30 градусов. Делать угол более 30 градусов – нецелесообразно, так как при одинаковом количестве исходных материалов, площадь покрытия территории будет меньше.Односкатная крыша пристройки может крепиться: к коньку основного дома, к несущей стене основного дома или к стене самой пристройки.
Далее представлены виды односкатных крыш.
Крыша пристройки может быть и без уклона. Но при таком варианте на крыше постоянно будут скапливаться снег и лужи. Снег – создает дополнительную нагрузку на сооружение, лужи – могут спровоцировать протекание крыши. Поэтому вариант крыши без уклона используется крайне редко.В отличие от односкатной крыши двускатная крыша монтируется в следующих случаях:- когда необходимо создать место для чердачного помещения;- когда необходимо основательно утеплить крышу;- когда необходимо перекрыть достаточно большую площадь.
Для двускатной крыши всегда создается свой собственный конек, на который монтируются стропила и производится обрешетка.
Пристройка из пенобетона

Пеноблоки при строительстве позволяют застройщику воспользоваться дополнительными архитектурными возможностями
У этого материала есть плюсы — он легкий, теплый, строить им несложно. Но в то же время пенобетон хрупкий и подвергается деформации. Облицовочные работы нельзя откладывать на будущий сезон, чтобы не лопнули швы, при этом качество блоков нередко вызывает нарекания.
Еще один момент — разнородность материалов пристройки и дома может приводить к смещению от воздействия погоды и иных факторов. Поэтому если вы намерены пристроить из пенобетона, то лучшим вариантом будет не соединять их, а уложить между ними слой минеральной ваты, которую дальше зашить любым подходящим материалом.
Таким же способом следует поступить и с пристройкой из кирпича. Кстати, кирпич, как и пеноблоки при строительстве позволяют застройщику воспользоваться дополнительными архитектурными возможностями.
Варианты пристроек и строительство фундамента
Пристройки могут быть капитальными или временными, но нас интересует второй вариант – он более дешевый, более быстрый в возведении, и не требует обширных фундаментных работ по скреплению двух оснований – существующего фундамента дома и будущего фундамента пристройки. Еще более ускорить строительство и удешевить процесс монтажа поможет использование древесины в качестве основного стройматериала – пристройка к дому из бруса выглядит наиболее по всем параметрам.
Главное условие для строительства пристройки из брусового пиломатериала – наличие достаточной площади на участке. Самодельный пристрой из бруса может иметь одно или несколько помещений, и, чтобы не допустить просчетов при определении размеров и площади комнат, примите к пользованию несколько рекомендаций:
- Точно обозначить функциональное назначение пристраиваемых помещений – это не обязательно могут быть жилые комнаты. Часто пристройку к дому из бруса делают для автомобиля (гараж), для мастерской или для отдыха (веранда или терраса). От выяснения предназначения зависит многое – и количество материалов, и тип фундамента, и размеры пристроенной площади, и другие параметры – схема водопровода и канализации, обустройство вентиляции и ливневки с дренажом, защита фундамента отмосткой;
- Исходя из вышеперечисленных параметров, уже можно будет рассчитать себестоимость объекта и стоимость строительных работ.
Общая схема распространенной пристройки-веранды
На рисунке выше изображена пристройка из бруса к деревянному дому. Впрочем, дом может быть и кирпичным или каменным – в любом варианте сначала решается вопрос, из чего и как сделать основание под это новое пристроенное здание.
Лучше всего возводить соседний фундамент из того же материала, что и основной. Так как вам придется рыть траншею или бурить скважины под новое основание, то узнать, из чего был сделан старый фундамент, будет легко. Основные параметры, которыми следует руководствоваться, пристраивая новое основание:
- Размеры фундамента;
- Глубина заложения нового и старого основания;
- Строительный материал и тип фундамента.
Основная задача – привязать новое основание к старому.
Мелкозаглубленный ленточный фундамент для веранды из бруса
При соединении фундаментов чаще всего используют анкеровку – в старый фундамент вбивают стальные штыри, выходящие в площадь нового основание, и заливают их бетонным раствором пир строительстве ленты фундамента.
Если возводится свайный фундамент, то прилежащие в дому сваи необходимо располагать к стене фундамента как можно ближе, а после вбивания (вкапывания) сваи или столба каждую опору следует залить бетоном так, чтобы слой раствора соприкасался со старым основанием.
Но, если пристройка имеет небольшой собственный вес, то это можно и не делать, отступив от старого фундамента на произвольное расстояние. Срок затвердевания бетона – 28 суток, после чего можно строить стены веранды.
Варианты фундаментов для брусовой пристройки
https://youtube.com/watch?v=Xpkiykbjxy8
Пол для пристройки
Пол для пристройки формируется, как правило, из досок двух видов:- первый вид: доски толщиной 50 мм – для создания лаг (вместо такой доски можно использовать брус); – второй вид: доски толщиной 20 мм – для создания чернового пола. Вначале формируются лаги. Одно лаговое перекрытие создается из 2-х, 3-х или 4-х установленных на кромку и скрепленных между собой досок. Причем, при соединении досок, их годовые кольца (волны) должны смотреть в разные стороны. Это делается для того, чтобы доски при высыхании не искривлялись.
При создании лаг для пола берем 2 доски и устанавливаем их на кромку. Делаем между досками деревянный вкладыш как показано на рисунке, далее – соединяем всю конструкцию с помощью железных уголков и гвоздей.
В результате получается скелет пола, на который в дальнейшем будут устанавливаться стены и черновой пол.
Для того, чтобы обеспечить надежную фиксацию пола, кладем перпендикулярно двойным лагам – одинарные доски, установленные на «ребро». Скрепляем всю конструкцию с помощью специальных уголков и гвоздей.Всю нижнюю часть досок желательно обработать специальным антисептиком в целях противостояния процессу гниения и воздействию насекомых.После окончательного монтажа лаг можно приступать к укладыванию чернового пола.
Укладывать доски чернового пола следует не впритык, а с небольшим зазором. Зазор делается для того, чтобы дать возможность доскам «гулять» при изменении температурных режимов на улице. Величина зазора обычно составляет 2-4 мм.Под черновой пол, дополнительно, может быть установлена теплоизоляция.
Возведение каркасных стен
Для возведения стен каркасной пристройки используют брус. Из него делают вертикальные стойки и балки. Сначала основной каркас стен собирают в горизонтальном положении, а потом возводят его вертикально.

Правила монтажа:
- Определяют нижние брусья обвязки и делают на них через каждые 50 см вырубку для вертикальных брусьев.
- Устанавливают в пазы стойки и закрепляют их специальными саморезами и уголками.
- Собирают верхние балки для обвязки.
- Скрепляют веранду вместе с домом, используя для этого вертикальные брусья.
- Для фиксации стоек веранды к дому используют анкерные болты.
- Полученный каркас веранды сразу обшивают снаружи досками, фанерой или ОСП для увеличения жесткости конструкции.
- Далее утепляют каркас, строят и закрепляют крышу, после чего вставляют двери и окна.
Полезное: Действующие СНиПы о каркасных домах

Утепление изнутри
Утепление изнутри
Для комнаты, в которой предполагают жить, нужна хорошая тепловая изоляция. Потолок обшивают и хорошо утепляют. После этого начинают заниматься полами.
На установленные перекладины на столбчатом фундаменте закрепляют поперечные лаги из брусков по размеру меньше. На них устраивается черновой пол. Для этого доски размещаются сплошным настилом. Это не даст теплу выходить из дома. После черновой пол промазывают густым раствором глины. Она должна хорошо просохнуть. Потом на нее настилают пароизоляционную пленку.
Утепляющий материал прокладывается между лагами. Это может быть минеральная вата, керамзит или шлак. Затем укрывают еще слоем пароизоляции, и настилается фанера. Уже потом может укладываться любой напольный материал.
Бетон можно утеплять следующими способами:
- Минвата прокладывается между лагами, которые закрепляются на основу из бетона. Все это закрывается досками или фанерой
- Посредством системы «теплый пол». Он устанавливается на чистовую стяжку
- На специальную отражающую подложку размещают инфракрасную пленку, а потом застилают декоративным покрытием
- При помощи сухой стяжки и гипсоволоконных плит
Когда с полами все закончено, начинают утеплять стены. Минвата – самый распространенный материал. Она производится в матах, что делает работу легкой и занимает мало времени.
На каркасных стенах вату укладывают между брусками каркаса и закрывают пленкой пароизоляции, которая крепится на брусках скобками. Далее стены покрывают множеством вариантов. Например, натуральной деревянной вагонкой, фанерой, гипсокартоном.
Пенополистерол также используется для утепления помещений. Но по качеству он хуже.
Кирпичные стенки обычно утепляют снаружи. Внутри покрывают штукатуркой или гипсокартоном. Но, если места много, можно утеплить и минватой, а сверху закрыть гипсокартонными плитами. Уже потом наклеивают обои или какой-нибудь другой материал.
Если внимательно изучать все этапы строительства дополнительного сооружения и соблюдать разработанные технологии, все получится правильно и качественно. При неуверенности в своих возможностях и чувствуя недостаток навыка и опыта в строительстве, можно доверить работу профессионалам.
Видео: Строительство пристройки к дому от А до Я
ВИДЕО: Строительство пристройки к дому от А до Я
Пристройка к дому: пошаговое описание этапов строительства своими руками. Перечень подходящих материалов с их описанием (85+ Фото & Видео) +Отзывы
7.7 Общий балл
Пристройка к дому
Простота реализации
7
Внешний вид
7.5
Удобство
8.5
Дизайн
8
Материальные затраты
7.5
Рейтинг пользователей: Be the first one!
В заключение
В этой статье мы вкратце рассмотрели, как сделать и узаконить каркасный пристрой к дому. Каждый владелец недвижимости нуждается в дополнительных квадратных метрах, пристройка в таком случае оптимальный вариант, к тому же достаточно дешевый и легкий в монтаже.
Таких пристроек можно делать не одну, ведь они не создают проблем для основного строения, и разные пристройки могут выполнять различные функции — можно присоединить и туалет, с другой стороны дополнить дом кухней, а посередине, по желанию, можно отстроить жилую комнату. Все зависит от фантазии самого хозяина строения. Ведь в этом вопросе все ограничивается вашими желаниями и финансовыми возможностями.




































