Виды перепланировок и их согласование
Все виды перепланировок можно разделить на несколько категорий. Отличаться они будут степенью сложности и количеством необходимых согласующих документов. Таких видов три:
Перепланировка без предварительного согласования. Документы (план квартиры «до» и после» и заполненное заявление на перепланировку) подаются в МФЦ (многофункциональный центр) в ознакомительном порядке после окончания работ. К таким работам относятся работы, не затрагивающие несущие стены: перестановка сантехники в ванной и туалете (без изменения границ), замена на аналогичные; установка кондиционера без штробления несущих стен (установка спутниковой антенны согласования требует); демонтаж встроенных шкафов, кладовок; перенос мойки и электроплиты на кухне.
Перепланировка по проекту. В БТИ заказывается план квартиры. С ним идут в проектную организацию с допуском к СРО, заказывают проект перепланировки. Полученный проект и заявление о перепланировке подаются в МФЦ, котоыре дальше из передают в Жилищную инспекцию на согласование. После получения разрешения работы ведутся строго по проекту, по их окончании приглашается представитель Жилищной Инспекции, он проверяет не были ли затронуты несущие стены и общедомовые системы, выдает Акт приемки перепланировки. С этим Актом и проектом, снова идете в БТИ, получаете новый техпаспорт. К этому виду работ относится демонтаж, устройство проемов в ненесущих стенах, установка новых перегородок, не создающих нагрузку на конструкцию, а конкретно: объединение санузла (снос перегородки); расширение санузла на площадь, ранее занимаемую коридором или кладовкой (на жилую площадь разрешение никто не выдаст); разделение одной комнаты на две; объединение двух комнат (снос ненесущей стены); изменение конструкции полов (укладка теплого пола в том числе).
Перепланировка по проекту с согласованием с автором проекта дома. В эту категорию попадают все вмешательства в конструкцию несущих стен. При таком варианте перепланировки имеет смысл заказать проект сразу в организации, разрабатывавшей серийный проект дома, так как все равно потребуется их согласование. Далее процедура оформления аналогична: с документами в МФЦ, после ремонта с Актом от ЖилИнспекции в БТИ за новым техпаспортом
Наиболее распространенные виды перепланировок этого типа: проемы в несущих стенах или перекрытиях (перенос или устройство новых); перенос кухни и ванной; устройство проема в межквартирных перегородках — несущих или нет — неважно (при объединении квартир). По последнему виду перепланировок потребуется ведение документации: Журнала производства работ, составление Актов скрытых работ
Также работы производят под контролем организации, составившей проект. По окончании работ процедура такая же — получение Акта и внесение изменений в БТИ
По последнему виду перепланировок потребуется ведение документации: Журнала производства работ, составление Актов скрытых работ. Также работы производят под контролем организации, составившей проект. По окончании работ процедура такая же — получение Акта и внесение изменений в БТИ.
Типовые серии хрущевок. Фото планировок
С 1957 года, после принятия закона, который предусматривал устранение излишеств в проектировании домов, в СССР стали возводиться здания нового типа. В народе такие дома получили название «хрущевки» (производное от фамилии генерального секретаря ЦК КПСС Н.С. Хрущева). Такие дома получили второе название – хрущебы, в основном, из-за неудобной и непропорциональной планировки комнат, узких коридоров и пролетов площадок, тонких стен и как результат – ужасной шумоизоляции. В этой статье мы расскажем о том, что такое типовые серии хрущевок, постараемся выделить основные плюсы и минусы этих зданий. Особенности планировки предоставим в виде описаний и фото.
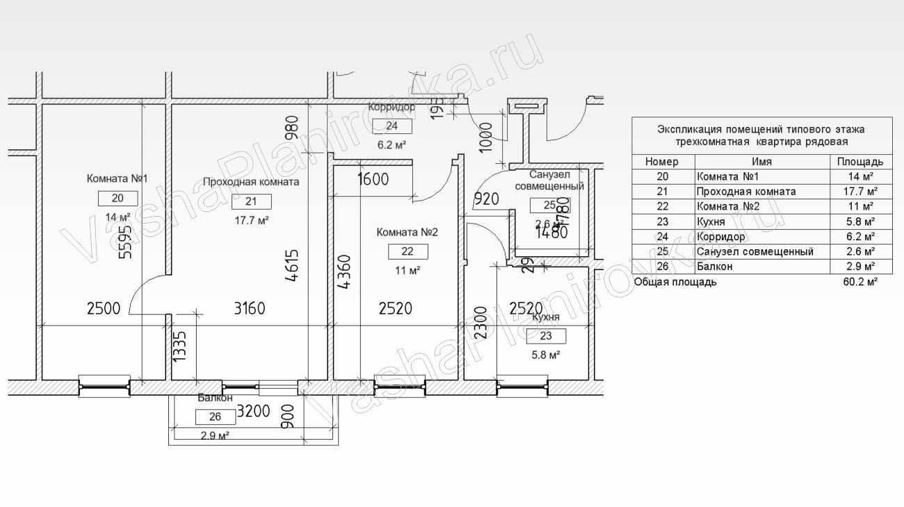
3 комнатная хрущевка
Такие дома строились с конца 1950-х по 1980-е гг. За это время они были доработаны, видоизменены. Планировка прежних трехкомнатных домов была не очень удобной. Потолки низкие, комнаты очень маленькие, стены пятиэтажных панельных домов плохо утеплены, комнаты небоскребов смежные и с небольшой площадью.
В конце 1970-х началось активное строительство 9-ти этажных хрущевок в рамках специальной программы площадью 53 кв. Начали улучшать кирпично-панельные дома, потолки достигли 2,64 мА за счет снятия нагрузки с внутренних перегородок, появилась возможность перепланировать помещения прямоугольной формы.

Дом, построенный в 60-х годах прошлого века, изначально задумывался как временное жилище. Из-за невысокого уровня комфорта их часто перестраивают.
Хрущевка 3х комнатная имеет свои особенности:
- В трехкомнатной квартире хрущевки низкие потолки — от 240 до 265 см.
- Небольшие размеры и малая площадь жилого помещения. Средняя площадь трехкомнатной квартиры составляет около 57 квадратных метров.
- Одна из комнат — открытая гостиная в хрущевке.
- Узкие коридоры.
- Санузлы часто совмещают. Если ванная и туалет раздельные, то у них крайне маленькая площадь.
- Кухня занимает не более 6 кв.
- В коридорах и кухнях есть встроенные антресоли для хранения вещей. Иногда бывает небольшой шкаф.
- Небольшой открытый балкон с видом на гостиную. Реже встречаются варианты с большими балконами.
- Во многих квартирах есть временные тонкие перегородки. Их часто сносят для улучшения планировки.
Большинство хрущевок плохо звукоизолированы. В этих домах нет лифтов, а лестничные пролеты узкие и тесные.
Схемы типичных планировок
В рамках программы маломощного жилищного строительства спроектировано и построено 10 различных серий.
Наиболее популярны следующие:
- К-7 — жилье с раздельным санузлом, изолированными комнатами и относительно большой кухней.
- 1-335 — недорогие каркасные панельные дома. Практически все дома этой серии уже снесены.
- АМ-5 — корпус большей площади.
- 1-464 — с проходными комнатами.
- 1-477 — одна из самых популярных разновидностей хрущевок. Отличается хорошей тепло- и звукоизоляцией.
Дома строились из обычного кирпича, но чаще всего из белого песчаника, внутренние перегородки — гипсобетон толщиной 80 мм. Несущие стены в таких домах бывают внешними и внутренними продольными. Эта серия не подлежит утилизации.

Существует 3 варианта типовой трехкомнатной хрущевки:
- Хрущевка 3-х комнатная «распашонка» — это жилище, в котором большая жилая площадь и 2 поменьше. Кажется, что 1 большая гостиная разделена на 2 отдельные комнаты. Окна таких квартир выходят на разные стороны дома.
- Хрущева, 3 комн., Сделана по «Книге». Он состоит из 2 больших смежных квартир и третьей, отдельной, меньшей по размеру.
- Планировка Трешки хрущевки «Трамвай» или «Прицеп»: все помещения выстроены в одну линию, 2 из них проходные.
- Хрущевка 3 х комнаты площадью 60 кв.м с тремя изолированными жилыми зонами.
В спальне может быть небольшой шкаф. Его легко трансформировать в небольшую гардеробную.
Перепланировка в хрущевке: основные особенности
Чтобы хоть немного расширить пространство и иметь возможность как-то интересно оформить жилье, часто несколько зон объединяют, устраивая перепланировку. Главное препятствие на пути к благоустройству интерьера — необходимость согласования проекта в БТИ, сбор пакета документов и согласование изменений — дело хлопотное.
Опять же, БТИ вправе вам отказать. Вот почему многие владельцы небольших квартир сносят стены, не рекламируя их.








Самый популярный вариант реконструкции — это перепланировка кухни и прихожей. Как правило, коридор сокращают, создав там кладовую. Комнату и кухню объединяют в одну зону, убрав кирпичную стену. Иногда хозяева останавливаются на масштабной переделке и объединяют все комнаты в квартире с кухней, разделяя пространство лишь визуально.
Вход в санузел осуществляется из коридора. Такой вариант возможен только в том случае, если в доме нет газа. При наличии между кухней и комнатой должна быть хотя бы одна раздвижная перегородка.

В чем преимущество такой реконструкции? В первую очередь появляется возможность рационально распределить квадратные метры между кухней и гостиной. При необходимости кухня может занимать до половины соседнего помещения, что делает эту зону более комфортной без особого ущерба для других помещений.
Совмещение туалета и ванной комнаты также расширяет творческое пространство: ванну можно переместить под стеной, оставив унитаз на месте, тем самым создав более логичный вид помещения.
Планировка 3-х комнатной хрущевки распашонки. Идеи перепланировки
Затем обозначены основные проблемы перепланировки и ремонта в хрущевке. Теперь о конкретных идеях перепланировки.
Хрущевка квартира-студия
Казалось бы, в качестве исходных данных можно найти однокомнатную хрущевку? Оказывается, можно увеличить ванную комнату и создать отдельную спальню, хотя бы сделать перепланировку удобнее – вполне возможно.

Типовая планировка хрущевки
Типовая планировка однокомнатной квартиры в хрущевке – коридор, ведущий на кухню, и «арка» в гостиную. В некоторых сериях сооружалась «арка» и проход в комнату располагался прямо перед входной дверью. Иногда в проект входило кладовое помещение. В угловых квартирах в стене длинной гостиной было еще одно окно.
| Вариант перепланировки | Описание перепланировки |
| Это вариант перепланировки, при котором «арка» встраивается и превращается в обычную дверь, функциональность гостиной в этом случае увеличивается, так как вдоль увеличившейся в длину стены можно поставить, например, диван. Также перенесена дверь в ванную, за счет округления пространства коридор становится просторнее. Теперь здесь удобно разместить угловой шкаф. Кухня осталась без изменений. |
|
| Здесь видно, что все внутренние перегородки, в том числе перегородки для ванной, снесены полностью. Помещение полностью перестроено. Санузел расширен коридором, теперь достаточно места для установки стиральной машины. Раковину, кстати, переносят на противоположную стену, для которой потребуется канализация. Демонтируется перегородка между гостиной и кухней, стена между ванной и кухней удлиняется за счет надстройки старой двери: можно разместить полноценный кухонный гарнитур. Минус перепланировки в том, что площадь прихожей небольшая, но теперь в гостиной удобно размещать шкаф-купе, тем более что в прихожей есть место для вешалки и полочек для обуви. |
|
| Еще один вариант трансформации пространства через проход. В этом случае меняется ориентация санузла: немного увеличивается площадь, но основной упор делается на увеличение площади кухни. Частично совмещен с гостиной благодаря широкому проему, в который можно установить раздвижные перегородки. |
|
| Здесь много внимания уделено шкафам, также есть место для двухспальной кровати, она ничем не отделена от жилой зоны, а расположена в уютном уголке. Кухня совмещена с гостиной, для холодильника подготовлена отдельная ниша. С помощью дизайна можно обыграть кухню, гостиную и спальную зону. Остерегайтесь ванной. Вход в него перенесен из коридора в проход, за счет чего дверь удалена из узкого коридора. Замена ванны на душевую кабину позволяет осветлить пространство и установить стиральную машину. |
|
| В этом варианте за счет переноса двери на кухню увеличили ванную, а точнее площадь ванной, скошили часть стены, получив настоящую дверь в гостиную. Кухонное пространство существенно не оптимизировано. |
Здесь снесена перегородка между коридором и гостиной. Здесь есть гардероб. Частично отсутствует перегородка между гостиной и кухней. Барная стойка выполняет роль разделителя пространства. Перенеся обеденную зону из кухни в гостиную, кухня стала намного просторнее. Кухонный гарнитур в этой версии встречается с буквой «L» и занимает не только длинную стену, но и стену с окном. Пожалуй, следует отметить нехватку места для хранения вещей и небольшую ванную комнату, которую не перестраивают, а вместо ванны устанавливают душевую кабину и стиральную машину. | |
Даже такую небольшую квартиру, как однокомнатная хрущевка, при необходимости можно сделать двухкомнатной. Например, на этом плане вы можете увидеть, что кровать и тумбочка размещены в дальнем углу гостиной. Спальная зона отделена частичной перегородкой, обеспечивающей естественное освещение, поскольку в спальне нет окон. Кухня и обеденная зона объединены одной столешницей. Зонирование проведено с помощью брусчатки. Места для хранения вещей есть как в коридоре, так и в гостиной. | |
|
| В угловых домах хрущевок, где в комнате два окна, больше вариантов перепланировки, точнее из одной комнаты можно сделать две полноценные светлые комнаты с естественным освещением. На этом плане видно, что перегородка между кухней и гостиной была снесена, но была возведена новая перегородка, которая теперь разделяет комнату на две части. В результате получилась большая квартира с отдельными зонами: гостиной-столовой и спальней. Перепланировка не затрагивает площадь санузла. |
Где и как производится согласование перепланировки квартиры?
Документы для получения разрешения на перепланировку
Разрешение на перепланировку квартиры обычно выдается компетентными органами местного самоуправления административного района, в котором расположено жилье. Чтобы выяснить конкретное расположение и название этой организации, степень ее полномочий, можно обратиться в управляющую компанию, которая обслуживает конкретный дом.
Любая перепланировка жилья может производиться только на основании согласованного и утверждённого проекта
Для согласования потребуются подготовить пакет некоторых документов, которые лучше всего начать собирать заранее:
- Технический или кадастровый паспорт на квартиру.
- Документы, подтверждающие право собственности.
- План-проект перепланировки.
Пример графического плана перепланировки квартиры
Заявление с подробным описанием перепланировки. Для этого потребуется специальный бланк, выдаваемый комиссией, занимающейся подобными вопросами. В заявлении должны быть проставлены подписи всех прописанных в данной квартире жильцов, которые подтверждают свое согласие на проведение запланированных строительных работ.
Пример бланка заявления на перепланировку.
- Дома серии 1-510, 1-511, 1-477, 1-515 не относятся к архитектурным сооружениям, которые представляют собой историческую ценность, поэтому за визированием разрешения на реконструкционные работы не придется обращаться в местную организацию, занимающуюся охраной памятников.
- Данный перечень документов необходим для предоставления в комиссии в любом регионе на всей территории РФ. Требовать другие, дополнительные документы в комиссии не должны. Ранее процесс согласования был более сложным, так как члены жилищной комиссии в каждом конкретном случае могли сами решать, какие документы необходимо предоставить для согласования переделок в квартире. Сейчас, вроде бы, порядок в этом вопросе наведен – всё унифицировано.
Сроки согласования и получения разрешительных документов
Когда все документы будут собраны и переданы в указанную комиссию, работа с ними может продлиться не более полутора месяцев. Сдав пакет на утверждение, владелец жилья должен получить на руки расписку с указанием переданных документов и датой их приема в работу.
После того как указанный срок истечет, заверенный готовый документ может быть получен на руки в течение трех рабочих дней, после чего можно переходить к запланированной перепланировке. Если же комиссия не утвердила проект, то стоит исправить те обстоятельства, которые послужили причиной отказа. Обычно к ним относятся три момента:
- Собран неполный пакет необходимых документов.
- План-проект не соответствует требованиям, установленным действующими нормами и правилами.
- Документы поданы не в ту комиссию. Чтобы такого казуса не произошло, и время не было потеряно даром, рекомендовано заранее узнать точное местонахождение соответствующего органа управления, полномочного решать подобные проблемы.
Если же в перепланировке, по мнению заявителя, было отказано неправомерно, то вопрос решается в судебном порядке. Однако, если все документы были собраны правильно, а сами запланированные мероприятия не противоречат имеющимся правилам, отказа в заявленной просьбе о перепланировке, скорее всего, не будет.
Только имея на руках утверждённое разрешение на проведение перепланировки, можно приступать к ремонтно-строительным работам
После проведения всех мероприятий по перепланировке, необходимо пригласить представителей комиссии для приемки выполненных работ и сверки с утвержденным планом. Проведя ревизию, назначенная комиссия должна составить акт, после чего общий пакет документов, включая акт приемки, предоставляется в местную организацию, занимающуюся оформлением прав собственности на недвижимость, которая окончательно узаконивает все совершённые действия, вносит изменения в технический и кадастровый паспорт жилья. И вот теперь, когда уже юридически будет подтверждено, что все переделки были произведены на законных основаниях, квартиру, при необходимости, можно будет беспрепятственно обменять или продать.
Планировка 4 х комнатной квартиры в панельном доме. Планы четырехкомнатных квартир
Изменить план 4-комнатной квартиры в панельном доме – веление времени. Архитекторы и застройщики, спланировавшие советские панельные многоэтажки, словно предвидели, что россияне массово сменят первоначальную планировку.
Стандартный план
Планировка 4-комнатной хрущёвки предусматривает следующие помещения:
- две спальни, расположенные в самой дальней зоне;
- третья комната – гостиная, являющаяся проходной для этих спален;
- четвёртая комната – ещё одна спальня, расположенная по соседству от кухни;
- кухня, ванная и туалет располагаются по соседству с прихожей, близко от входа;
- в конце прихожей по соседству с гостиной имеется гардеробный отсек.
Следующая исторически более поздняя разновидность многоэтажного дома – панельный 9-этажный дом, «брежневка» – обладает некоторыми отличиями от «хрущёвки». Спальни и гостиные, кухня и санузел расположены примерно так же, как и в 4-комнатных «хрущёвках», но отличаются по площади. Более высокие потолки – 2,7 м (по сравнению с 2,45-2,5 м в «хрущёвках»), наличие лифта и мусоропровода сделали жизнь населения более комфортной.
В Санкт-Петербурге и Москве за последние несколько лет выполняется программа реновации – старые «хрущёвки», многие из которых признаны аварийными, подлежат расселению и разборке . Взамен строительные компании по указу федеральных и местных властей возведут новостройки, в которых площадь комнат немного подрастёт. Кухни, санузлы и коридоры (включая прихожие) станут заметно больше.
Все современные удобства – от лифта до энергоэффективных систем жизнеобеспечения, существенно доработаны в этих домах.
Кирпичные «хрущёвки» и «брежневки», вне зависимости от числа комнат в квартирах, обладают меньшей продуваемостью и улучшенной звукоизоляцией.
Что учитывать при планировке?
Намереваясь изменить уже сформированную строителями планировку 4-комнатной квартиры в «брежневке» или «хрущёвке», имейте в виду следующее.
- Не все перегородки можно сносить. Все они выполнены из тонкого железобетона (или из простых бетонных перекрытий) – даже толщина перегородки в 7-10 см (по сравнению с 40-50-сантиметровыми снаружи) даёт существенное подпирание межэтажных перекрытий. Дело в том, что общая площадь 4-комнатной квартиры иногда достигает 72 кв. м, что по сравнению с 31 «квадратами» у «однушки» – разница более чем в пару раз. Законы физики никто не отменял: межэтажные перекрытия – одни и те же по характеристикам. Большие пролёты между несущими (наружными, межквартирными) стенами, лишённые дополнительной подпорки, увеличивают шансы на прогиб горизонтальных плит. А те, в свою очередь, являются полом и потолком одновременно на всех этажах, кроме первого и последнего. Поэтому любой снос перегородок (перестенков) нельзя проводить без разрешений со стороны жилконторы и других коммунальных служб. Переделка «втихую» приведёт не только к штрафу при попытке продать перепланированную квартиру, но и увеличит шансы на обрушения вышележащих этажей в подъезде на вас и ваших соседей. Последнее наказывается уголовно – вплоть до пожизненного заключения.
- Изменять площадь санузла нельзя. Этим вы можете серьёзно нарушить гидроизоляцию. Если у вас прорвёт водопровод, протечёт канализация, выйдет из строя стиральная машина – возможно, пол будет затоплен. Расширенный санузел приведёт к протечке воды вниз к живущим этажом ниже соседям, со всеми вытекающими отсюда последствиями.
Серия 1-434 (1958 – 1964 гг.)
Эта серия строилась с 1958 года по 1964 год, в различные года застройки немного видоизменялись планировки квартир. Так, например, в зданиях 1958 года в однокомнатных квартирах площадь жилой комнаты составляла 18,6 м2, а в 1959 году она уменьшилась до 18,2 м2, в 1969 г. – площадь комнаты составляла 17,7 м2. И так во всех типах квартир площадь жилых помещений варьировалась в сторону уменьшения и увеличения. А вот площадь кухни осталась неизменной – 5,8 м2, как и высота потолков – 2,5 м. Дома – кирпичные, совмещенные санузлы, а в каждой квартире есть балкон, кладовая и встроенные шкафы.
Картинки – чертеж (по годам)
1 комнатная 1958 год
1 комнатная 1959 год
1 комнатная 1960 год
1 комнатная 1961 год
1 комнатная 1964 год
2 комнатная 1958 год
2 комнатная 1959 год
2 комнатная 1960 год
2 комнатная 1964 год
3 комнатная 1958 год
3 комнатная 1959 год
3 комнатная 1960 год
3 комнатная 1961 год
3 комнатная 1964 год
Оригинальные дизайны
Не часто обладатели хрущевских квартир обращаются за помощью по оформлению жилья к профессиональным дизайнерам. Скорее, создается свой собственный, индивидуальный стиль. Несомненные его достоинства в том, что у собственного стиля нет никаких правил, он в меньшей степени подвержен веяниям капризной моды. Главная составляющая индивидуального стиля-личное предпочтение. Любому человеку по силам придумать и воплотить стильный дизайн хрущевки.

Принимая во внимание прежде всего небольшие площади помещений, скорее, особое внимание стоит уделить функциональности и практичности. Здесь придут на выручку компактные предметы интерьера, встроенные шкафы, различные системы хранения. Желая преобразить квартиру в новом году самое время перебрать дальние антресоли, верхние полки шкафов
Желая преобразить квартиру в новом году самое время перебрать дальние антресоли, верхние полки шкафов.
Никогда не поздно избавится от ненужных вещей, старого хлама. Психологи давно заметили, что наводя порядок в квартире человек подсознательно наводит порядок в своих мыслях и, следовательно, в своей жизни.
Так, даже небольшие перемены, связанные с обустройством жилья, могут дать положительный заряд энергии на целый предстоящий год.
Небольшая плотность застройки
В классических пятиэтажках обычно 40-80 квартир. Жильцы невысоких домов чаще знакомы друг с другом, имеют постоянный контакт с улицей. В старых дворах проще и безопаснее гулять с детьми, большинство территорий обустроено игровыми площадками, а давно посаженые деревья уже выросли и сформировались в живописные аллеи. Также владельцы квартир в хрущёвках меньше испытывают проблем с парковкой и добираются до центра города быстрее, чем жители окраин.
Таким образом, несмотря на очевидные недостатки советских домов, приобретение квартиры в хрущёвке во многом предпочтительнее покупки жилья в новостройке.
Планировка хрущевки 2 комнаты угловая. Особенности планировки двухкомнатных «хрущевок»
Требования к массовому возведению послевоенной архитектуры должны были соответствовать стандартам простого и недорого жилья. Низкие потолки, проходящие комнаты, небольшая квадратура – все это является отличительной особенностью жилья по типу «хрущевок». За стандарт бралась планировка двухкомнатной квартиры и уже на ее основе разрабатывались проекты одно, трех и четырехкомнатных квартир.
В течение времени проекты жилплощади этого типа видоизменялись и вносились другие коррективы. Менялась высота потолка от начального 2,5 метра до 2, 7. Габариты комнат не сильно менялись. Гостиная комната почти всегда оставалась проходной и для попадания в спальню или детскую, требовалось пересечь эту комнату.

Проходная комната с широким дверным проемом играет роль столовой, а в семье с детьми – ещё и спальни.
Санузел чаще всего проектировался совмещенного типа, но в некоторых домах встречались и раздельные варианты этих комнат. Они всегда располагались на одном уровне с кухней и прихожей, так как это минимизировало количество водных коммуникаций и канализационных труб.
Все узлы водных и электроразвязок чаще всего располагались в подвале здания и архитектурные особенности домов не подразумевали наличие отдельного помещения для технических нужд.

Реконструкции хрущевок дают потрясающий результат – при совмещении санузла освобождается место для стиральной машинки.
К сведению! При строительстве зданий данного типа использовалось несколько проектов с вводимыми усовершенствованиями. В 1967 году квадратура кухни была расширена, но звукоизоляционные свойства остались на прежнем невысоком уровне. Спустя 10 лет при постройке в строительные материалы стал добавляться керамзит, что улучшило звуковую непроходимость.
При перепланировке данных квартир предусмотрено в первую очередь разрешение БТИ. Только после этого можно переделывать жилплощадь по другому архитектурному проекту. Чаще всего таким изменениям подвергаются кухня, коридор и санузел.

Перекрытия внутри хрущевки не являются несущими, поэтому согласовать такую переделку будет несложно.
Выводы по теме
- У 4-комнатных хрущевок много недостатков, но есть преимущества перед новостройками.
- Комнаты маленькие, изолированные, но одна проходная. Возможна перепланировка жилья.
- В кухне 6-8 кв. м мало места.
- Санузел 2 кв. м раздельный стиральную машину можно установить используя специальные мойки для них.
- В домах до 5 этажей нет лифтов и мусоропроводов, но в 9 и 12 этажных строениях эти элементы комфорта присутствуют.
- При покупке хрущевки и ремонте необходима замена коммуникаций и электропроводки.
- Люди ценят жилье в таких домах за теплоту и уют.
- Отзывы людей о душе в хрущевке негативные, поскольку тесно и нет возможности поставить ванну и дополнительно вместить технику.
Юрий Владимирович
Инженер-проектировщик ПГС (промышленное и гражданское строительство)






































