Что выбрать: профиль или брус?
Материалов, предлагаемых строительными рынками и магазинами для обрешетки (каркаса) под гипсокартон не так уж и много: дерево и металл. В некоторых случаях производители предлагают еще и пластик, но он, во-первых, слишком мягок и гнется под воздействием тяжести ГКЛ, а во-вторых, не так распространен, как предыдущие два, и поэтому довольно редко используется в ремонтных работах. Разберемся, что в большей степени подходит для решения поставленных нами задач.
- Обрешетка из металлического профиля влагоустойчива и не подвержена деформациям под влиянием температурных колебаний. Чего не скажешь о деревянном брусе: воды он боится, при нагревании/охлаждении “гуляет” и может непоправимо покорежиться.
- Оцинковка не боится биологических напастей: ни грибок, ни жуки-древоточцы, ни плесень на ней не задерживаются. С деревом все как раз наоборот.
- Металлический профиль не только не возгорается сам, но и не поддерживает огонь. В помещениях, где высока вероятность пожаров из-за регулярных высоких температур или использования открытого огня, оцинковка в сочетании с огнестойким гипсокартоном обеспечивает хорошую пожарную безопасность. Дерево, как известно, легко загорается и охотно подкармливает пламя. Даже если обшивка произведена специально обработанными ГКЛ, нужной степени защиты от огня вы не получаете. В связи с такой уязвимостью материала деревянная обрешетка под гипсокартон подлежит обязательной предварительной обработке антисептиками, гидрофобами и антипиренами. Это не только делает конструкцию дороже, но и отнимает определенное время для просушки древесины после пропитки.
- Геометрия металлопрофиля стабильна и одинакова. Брус же требует обследования и отбраковки.
- То же касается и прочности оцинковки. Она не колеблется при изменении внешних факторов или изъянов материала. Сучок, выпавший из бруска, делает его в этом месте более хрупким, равно как и колебания температуры и влажности.
- Если необходимо выправить “завал” основания, это без труда можно сделать подвесами, если вами выбрана обрешетка из профиля. При деревянной придется вырезать и подгонять прокладки под элемент каркаса. Идеальной ровности при этом достичь практически невозможно.
Деревянный каркас выигрывает по сравнению с металлическим только по двум позициям.
- Цена. Профиль стоит значительно дороже. Особенно если сопоставлять его стоимость с затратами на необрезную доску, а то и горбыль, которые вполне могут использоваться при монтаже обрешетки для гипсокартона из дерева.
- Прочность фиксации саморезов. В металлопрофиле они удерживаются только одним витком, в брусе – каждым вкрученным.
Несмотря на указанные недостатки, обычно все же выбирается оцинковка, так как делать обрешетку под гипсокартон из металла надежнее, качественнее, проще и быстрее. А недостаточная прочность крепления ГКЛ устраняется более частой установкой саморезов.
Подготовительные работы
Прежде чем начинать непосредственно закреплять гипсокартон, крайне важно проделать подготовительную работу. Чтобы убедиться, что листы можно закреплять, требуется сделать контрольную проверку обрешетки из профиля
Инструкция такая:
Чтобы убедиться, что листы можно закреплять, требуется сделать контрольную проверку обрешетки из профиля. Инструкция такая:
- Внимательно рассмотреть все соединительные участки. Саморезы не должны торчать.
- Проверить каркас на жесткость – он ни в коем случае не должен скрипеть или шататься.
- Удостовериться, что профили зафиксированы ровно. Проверку удобно сделать, задействовав уровень, правило и подходящее освещение.
Проверять равномерность нужно обязательно по всей конструкции, а особое внимание стоит уделить углам.
Далее требуется приготовить листы. Их необходимо зафиксировать в шахматообразном порядке. Первый крепится снизу вверх, оставляя свободный промежуток. Второй – от потолка вниз к полу, также оставляя немного пространства. Потом – над дверьми и вокруг окна крепятся обрезки деталей. Подходящие размены вырезаются фрезером, а фаска делается рубанком по кромке.

Последняя стадия – взятие 2,5-сантиметровых саморезов и шуруповерта. В отдельных случаях могут потребоваться куски стоечного профиля как подложки.
Только теперь начинаются основные действия.
Необходимые инструменты и материалы для обшивки стен гипсокартоном с профилем
Профили бывают деревянные и металлические, лучше использовать изделия из металла, они более надежные, прослужат в разы дольше. Их собирают в определенном порядке, чтобы получить каркасную конструкцию, на которую потом и будут прикручиваться листы гипсокартона.
Чтобы верно крепить профили, нужно понимать какие они имеют предназначения. Выделяют основные и направляющие профили по назначению:
- Основными являются профили с маркировкой ПС и ПП. Первые это стоечные, основу называют спинкой, бока полками. Их устанавливают вертикально;
- ПП – это потолочные профили;
- Также есть направляющие профили – ПН. Их крепят к потолочному и напольному покрытию.
- ПНП и ПНТ, для каркаса на потолке, первые необходимы при создании подвесного каркаса, вторые крепят на стене, чтобы задать направление для потолочных профилей.
- Есть также угловые детали, и специальные для выполнения арок.
Кроме того при работе потребуются муфты, если будут устанавливаться профили длиннее 4-х метров, они их соединят. Соединитель одноуровневый, который необходим, чтобы укрепить соединение в местах пересечения профилей.
Прямой подвес, который фиксируется к стеновому или потолочному покрытию для того, чтобы туда выставить планки. Они удобны для новичков в сборке каркасов. Метизы, фиксирующие всю конструкцию.

Лучше использовать изделия из металла, они более надежные, прослужат в разы дольше.
Из приспособлений для работы будут нужны:
- Перфоратор;
- Шуруповерт;
- Плоскогубцы;
- Крестовая отвертка;
- Ножницы по металлическим изделиям;
- Молоток;
- Линейка, карандаш, измерительная лента;
- Строительный уровень и отвес;
- Саморезы и дюбели.
Также конечно нужны сами листы гипсокартона.

Необходимо сразу подготовить строительные инструменты, чтобы потом не отвлекаться от работы.
Монтаж гипсокартона к потолку без каркаса
Такой вариант отделки применяют если плоскость потолка ровная, он будет одноуровневым, работу нужно сделать быстро и с минимальными затратами, нет необходимости прятать проводку, ставить точечные врезные светильники.
Подготовительные мероприятия:
- Очистка основания. Удаляется все, что плохо держится, желательно убрать старое покрытие до бетонного основания.
- Заделка трещин и выбоин с последующим нанесением грунтовки.
- Разметка под уровень (лазерный или водный) с учетом толщины ГКЛ и клеевого слоя.
Крепление на саморезы
Монтаж гипсокартона на бетонное основание выполняется следующим образом:
- Прикладываем лист к потолку и размечаем места под саморезы (например, шуруповертом с тонким сверлом);
- По следам, оставшимся от сверла, делаем перфоратором отверстия и ставим дюбеля (оптимально подойдут дюбеля 6х40 мм);
- Повторно поднимаем лист и крепим его саморезами (40-50 мм). Крепеж закручиваем постепенно, так, чтобы осталась возможность регулировки.
- Если в некоторых местах есть пустоты, их можно заполнить монтажной пеной, предварительно просверлив технологическое отверстие.
- После полимеризации пены закручиваем саморезы с погружением 1 мм.
Такой вариант установки подойдет для выравнивания потолков с любыми искривлениями, главное, правильно подобрать длину саморезов и заполнить пустоты пеной.
На мастику или клей
Последовательность действий:
- Наносим мастику сплошной полосой по периметру листа, а посередине точечно, на расстоянии 30-40 см.
- На основание также можно нанести смесь, желательно, чтобы обработанные места не совпадали.
- Прикладываем лист к потолку и выравниваем простукивая. Для контроля плоскости используем правило, уровень и ориентируемся по разметке.
До окончательной полимеризации мастики желательно подпереть лист снизу.
Общие сведения о профильных составляющих каркаса
Оцинкованный профиль для гипсокартона и монтаж сборных перегородок, подвесных потолков и облицовок неразрывно связаны с целым рядом комплектующих, которые составляют единую конструкцию.
На данный момент промышленность выпускает четыре основных вида профилей:
- стоечный – 50х50, 75х50, 100х50 мм;
- стоечный направляющий – 50х40, 75х40, 100х40 мм;
- потолочный – 60х27 мм;
- потолочный направляющий – 28х27 мм.
Стандартная длина профилей составляет 3 метра.
Существуют еще два типа подобных изделий, маячковые и угловые, но сейчас речь пойдет не о них, а о том, какой крепеж понадобится для сборки каркаса.
Подготовка поверхности
Перед тем, как будут производиться заделка стыков гипсокартона, необходимо привести всю обрабатываемую поверхность в порядок. Для этого вам требуется:
- Обработать кромки листов гипсокартона, но только в том случае, если этого не сделал производитель, иначе можно не облегчить, а усложнить себе задачу.
- Очистить шов и рядом располагающуюся поверхность от мусора, кусков бумаги.
- Можно предварительно покрыть гипсокартон грунтовкой, так он будет намного меньше впитывать влагу, и не будет пропитываться краской, что положительно скажется на его долговечности. Обработку грунтовкой желательно провести в том случае, если гипсокартон не влагостойкий, но влага ему все же угрожает.

Заделка швов гипсокартона занятие не трудное, но требует достаточно выдержки и аккуратности, так как швов может быть очень много, а заделать их придется все, а если они располагаются еще и на потолке, то мастер будет очень сильно уставать. Мы вам советуем делать небольшие передышки, чтобы качества работы не падало, а чтобы не падала и шпаклевка с потолка, нужно сильнее надавливать на шпатель, так она будет более плотно проникать вглубь шва.
Разметка расположения листов гипсокартона
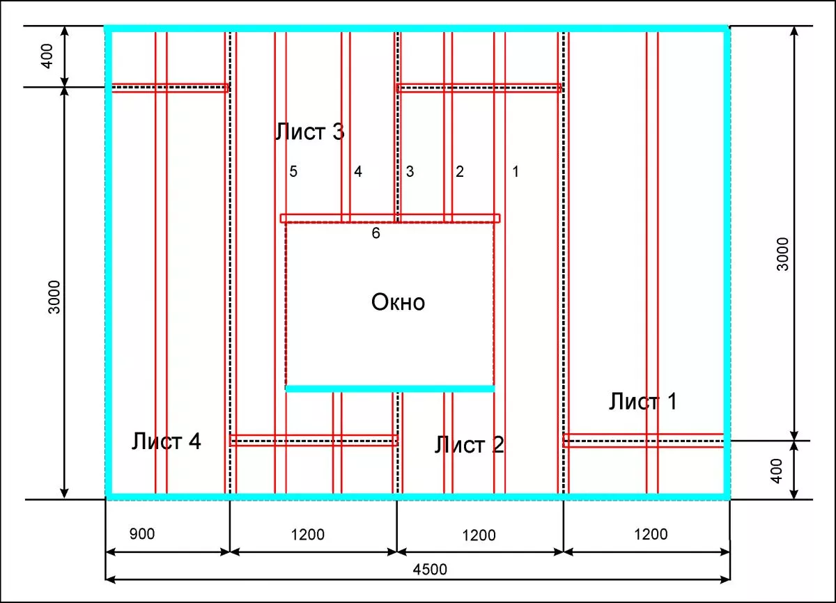
В этой статье мы рассмотрим наиболее сложную ситуацию монтажа гипсокартона на стены – когда в стене имеется проем (окно). Основные принципы монтажа гипсокартона на сплошную стену такие же как и при монтаже на стену с проемом.
Теперь рассмотрим основные моменты при разметке расположения листов на стене.
1. Проем в стене. Основное правило расположения листов на стене такое: если в стене имеется дверной и/или оконный проем, то стыки листов должны быть отдалены от всех углов этого проема минимум на 200-300 мм. В противном случае, вы получите трещину в уже готовой поверхности.
Красным пунктиром обозначено, как делить листы нельзя!
Расположение листов на стене с проемом
То есть, разметка листов начинается именно от проемов. При этом желательно, чтобы от какого-то угла стены начался целый лист: тогда будет меньше обрезков.
2. Если остается узкая полоса.
Если длина стены такая, что остается узкая полоса
Также лучше учесть, что полоску уже, чем 100 мм лучше не оставлять: от нее можно избавиться, сдвинув все листы от этой полосы, чтобы полоса стала, хотя бы 300-400 мм. 300-400 мм это то расстояние стойки от соседней стены, при котором можно нормально работать шуруповертом.
Выход из ситуации:
Переставив листы 3 и 4 местами, и подрезав лист 1, все становится на свои места
Лист 1 обрезаем, чтобы лист 4 стал немного шире -300-400мм. А листы 3 и 4 меняем местами, чтобы выполнить первое правило.
3. Если высота листа меньше высоты стены, и приходится добавлять еще часть по высоте, то листы надо ставить вразбежку. Проще говоря: если есть горизонтальный стык, то он не должен переходить в соседние листы. «Вразбежка» должна составлять не менее 0,4 м.
Расположение листов, если высота стены больше трех метров
Как резать гипсокартон
Делая стены из гипсокартона своими руками, вам придется кроить листы: далеко не всегда они становятся целиком. Для этого нужен будет только острый канцелярский нож (для бумаги), длинный ровный предмет — линейка, доска, брус, уровень, правило и т.п. И деревянный брусок длиной пару метров, но он не обязателен, просто с ним проще. Вот и все. Электролобзик может понадобится, при вырезании изогнутых линий, но будет очень много пыли.
Последовательность действий такая:
- проводим карандашом на лицевой стороне линию, по которой нужно отрезать гипсокартон;
- прикладываем по линии линейку (брусок, доску) и разрезаем картон канцелярским ножом;
- под линию разреза подкладываем брусок;
- по более короткой стороне постукиваем ладонью, из-за чего гипс ломается по линии разреза;
- ломаем лист по всей длине реза;
- загибаем отломанный кусок, разрезаем оставшийся целым картон.
Все действительно очень просто. Основная задача: правильно разметить. Дальше проблем не бывает (если только лист не битый).
Как сделать обрешетку под гипсокартон на стену: виды обрешеток, материалы
В целом каждый решает сам, какой материал выбрать. Дерево подойдет для теплых и сухих помещений. Металл – более универсальный материал.
- металлопрофили ПН и ПНП – направляющие для стен и потолка;
- профиль ПС – стоечный;
- профиль ПП – потолочный;
- кронштейны ЕС – прямые повесы для крепления стоечных профилей;
- анкерные подвесы для потолка;
- простые соединители для удлинения металлопрофиля и крестообразные – “крабы”;
- дюбель-гвозди диаметром 6 мм;
- саморезы “клопы”.
Металлические профили стоят дороже, но они более надежны и долговечны. На них не оказывает такого губительного влияния воздействие окружающей среды. Также такой каркас занимает меньше места.
Металл не нуждается в дополнительной обработке и подгонке, следовательно, на сборку уйдет меньше времени.
- Сначала крепят направляющие. Их прикрепляют горизонтально по начерченным линиям на полу и потолке. Крепят их дюбелями с шагом 40–60 см.
- Затем в направляющие вставляют стоечные профили. Несущий профиль прикрепляется к стене с помощью монтажных подвесов, расстояние между которыми – 60 см.
Если планируется что-то вешать на стену (например, полку для цветов или телевизор), то необходимо в этом месте установить дополнительный несущий профиль. В таком случае CD профиль устанавливается с шагом 40 см. При таком раскладе один лист ГКЛ будет пересекать 6 профилей, 2 из которых будут находиться по краям. Монтаж такого каркаса рекомендуется начинать с угла комнаты, который максимально приближен к значению 90°.
В результате с одной стороны он должен прилегать к CD профилю на половину, а на вторую его часть будет прикручиваться следующий лист гипсокартона.Для выполнения фигур или изготовления несколько уровней на потолке требуется опыт в работе с гипсокартоном. Если у вас его нет, то не стоит рисковать, ведь это может закончиться порчей материала. Есть много способов того, как сделать обрешетку под гипсокартон на стену.
К тому же, материал предоставлен в широкой товарной линейке, в силу этого каждый владелец земельного надела с частным домом или же жилец квартиры подбирает тот вариант каркаса и тот материал, из которого сделать обрешетку под гипсокартон стены будет оптимальным решением. Чтобы конструкция обрешетки получилась надежной и прочной, нужно действовать пошагово в процессе монтажа. Есть свои нюансы в установке профиля из разных материалов. Стоит учитывать каждый шаг, чтобы выполнить работу на высшем уровне, даже если нет опыта в подобных делах.
Для людей, которые имеют поверхностное понятие касательно того, как сделать обрешетку под гипсокартон, наша статья поможет разобраться во всех тонкостях данной процедуры. Прочитав ее, вы легко сделаете монтаж каркаса своими руками. Чтобы сделать обрешетку стен металлическими профилями правильно, необходимо придерживаться некоторых советов
Представляем вашему вниманию небольшую подборку наиболее важных рекомендаций, выполнение которых поможет вам избежать самых распространенных ошибок новичков: Перед установкой каркаса из деревянных брусков важно убедиться в том, что в помещении отсутствует влажность или резкие перепады температур. В противном случае, со временем дерево начнет разбухать, покрываться плесенью, гноиться
Вся конструкция поменяет свою форму, появятся неровности, или вовсе все рухнет
Вся конструкция поменяет свою форму, появятся неровности, или вовсе все рухнет.
По этой причине большинство оставляет свой выбор за металлопрофилем. Перед монтажом каркаса на стену можно выполнить теплоизоляцию. Крепление каркаса происходит по всему периметру при помощи дюбелей, шурупов или дюбель-гвоздей.
Дополнительная информация по теме:
- Стартовая и финишная шпаклевки какую надо на гипсокартон
- Как сделать внешний угол в потолке из гипсокартона
- Как сделать двухуровневый потолок из гипсокартона на деревянном потолке
- Как сделать каркас для стены чтобы обшить гипсокартоном
- Потолок из гипсокартона на кухню в стиле хай тек фото
С этим читают
Разновидности гипсокартона
Монтаж стен из гипсокартона популярен среди строителей. Стоит разобраться почему. По своим свойствам этот листовой материал поделен на такие разновидности:
- Стандартный. В составе картон и гипсовое тесто. Этот вариант используется для отделки комнат с нормальной степенью влажности. Популярен из-за удобной эксплуатации легкой обработки и малого веса.
- Влагоустойчивый. Можно задействовать в местах с большой влажностью: в ванной, туалете, бане. За счет использования особых добавок в составе, он имеет барьер грибковых образований. Этот вид будет идеален для загородных домов. Ведь влажность в таком жилье обычно выше, чем в квартире.
- Огнеупорный. Его удобно использовать для подсобных помещений. Как, например, летние кухни или прочие нежилые пространства. Допускается использовать поблизости от приборов отопления и печек.
- Влаго-, огнестойкий. Практически универсален.
По назначению монтажа и установки гипсокартона его можно разделить на такие виды:
- Арочный. Благодаря армирующим добавкам с волокнистой структурой, допускается деформация на различных участках. Имеет толщину 6,5 миллиметра.
- Потолочный. Имеет облегченную конструкцию и толщину 9,5 миллиметра.
- Стеновой. Нужен для отделки стен и создания перегородок. Толщина 12,5 миллиметра.
Средний вес стандартного листа – приблизительно 30 килограмм.

Сборка ячеистого каркаса
Для установки профиля под гипсокартон на потолок кроме стремянки понадобятся такие инструменты:
- уровень;
- маркер и нить;
- молоток;
- шуруповерт;
- перфоратор.
После того как потолочное перекрытие уже распланировано и разбито на ячейки величиной 60х60 сантиметров, приступают к монтажу профилей и подвесов:
- В соответствии с линией, нанесенной на стену, прикрепляют направляющий профиль. Перед этим на примыкающую к стене сторону наклеивают уплотнительную ленту и с промежутком 30 – 40 сантиметров делают отверстия под дюбели. Направляющие нужно установить по всему периметру комнаты и скрепить их друг с другом угловыми соединителями.
- В 30 сантиметрах от стены фиксируют подвесы каркаса. При этом ориентируются на линии расположения основных профилей. Потом подвесы фиксируют дюбелями с интервалом 60 сантиметров так, чтобы каждый из них находился в центре между профилями-перемычками. «Лапки» на подвесах загибают вниз.
- Приступают к подготовке потолочных профилей. Значение величины, указанной в схеме, уменьшают на 5 – 10 миллиметров, чтобы гипсокартонный потолок в условиях повышенной температуры не подвергался деформации по причине расширения профилей.
- ПП вставляют в направляющие и саморезами «клопами» соединяют с подвесами. Чтобы выровнять конструкцию относительно горизонтальной плоскости потребуется уровень и участие помощников.
- После завершения монтажа основных ПП между ними размещают перемычки из металлических профилей, нарезанных отрезками по 590-595 миллиметров. Крепление выполняют крест-накрест, используя соединители типа «краб» и самонарезающие шурупы.
На обратную сторону каркаса, которая обращена к перекрытию, необходимо наклеить уплотнительную ленту. Это лучше делать до закрепления профиля на подвесах. Уплотнительная лента является продукцией из пористого материала шириной 30 миллиметров с самоклеящимся основанием. Ею пользуются при креплении конструкции, чтобы обеспечить плотное прилегание каркаса для гипсокартонного полотна к бетону и для снижения уровня звукопередачи.
Монтажные работы
Все что нужно подготовлено, инструмент ждет своего часа. Кажется, что уже можно начинать работы. Ведь чем быстрее начать, тем скорее все закончится, но спешить не стоит. Сначала нужно определиться, какие мероприятия будут проводиться. Установка каркаса имеет особенности при разных видах работы.
Монтаж каркаса для создания перегородок из ГКЛ имеет существенные отличия от установки обрешетки для обшивки гипсокартоном стен
Стены
В принципе, работа со стенами считается наиболее легкой. Именно с нее лучше всего и начинать, если это не противоречит этапам ремонтных работ.
Приступаем:
- Создание каркаса начинается с разметки. Лучше всего, если профиль будет находиться как можно ближе к прикрепляемой поверхности. Но данное правило не действует, когда планируется провести дополнительное утепление или проложить коммуникации. Разметку начинают с пола и переносят данные на потолок. Теперь можно делать отметки по боковым стенам и непосредственно по основной поверхности. Учитывают, что шаг стоечного профиля – 50-55 (до 60)см.
- Делается рассверловка под элементы крепления. Можно сразу устанавливать П-образные кронштейны.
- Наступило время закрепления всех частей конструкции. Сначала ставят ПН – получается замкнутая конструкция, в которую и вставляют СП. При помощи саморезов по металлу – прикручивают их вместе (снизу и сверху). Стоечные элементы крепят к подвесам.
Подвесы имеют особенность выходить за пределы профиля. То есть образуются выступающие «уши». Их нужно загнуть. Это следует делать вовнутрь, чтобы не создавать помех для установки плит ГКЛ.
Если требуется придать каркасу под гипсокартон дополнительную жесткость, то для этого применяют горизонтальные стяжки. Их легко изготовить из самого профиля, который нарезают на нужный размер (с небольшим запасом)
Уделяют внимание их креплению
Создание горизонтальных перемычек
Зачастую поступают так:
- Ножницами по металлу разрезают концы профиля по ребрам.
- Ребра загибают. Через них и прикручивают стяжки к стойкам. Центральный участок – остается без самореза, иначе получится бугор.
Перегородки
Данные конструкции создаются для разделения помещения, а также для полного отделения одного от другого. В принципе, схема работ похоже на представленную выше, но имеются свои технические особенности.
- В первую очередь следует понимать, что перегородка требует достаточной жесткости. Особенно это учитывают, когда конструкция не имеет опоры к двум капитальным стенам.
- Работа начинается с закрепления направляющих. Для этого применяют дюбель с шурупом, учитывая шаг – 45-50 см.
- Теперь устанавливают вертикальные стойки. Между собой их скрепляют горизонтальными стяжками. Крепление стоек осуществляется лицевой стороной к одной из стен. То есть получается, что обе стороны перегородки имеют ребро для крепления ГКЛ. Поэтому если планируется серьезное утепление или проводка коммуникаций, то выбирают профиль необходимого размера.
- Все элементы конструкции надежно скручивают саморезами по металлу.
- В боковые элементы (окончания) – вставляют деревянный брус подходящего размера. Это нужно для надежности.
Особенности создания дверных и оконных проемов
Каркас из металлопрофиля для гипсокартона часто нуждается в создание в нем различных проемов. С дверями поступают следующим образом:
- Собирается дверная коробка. В которую, предварительно, навешивают дверное полотно. Чтобы выставить необходимые зазоры (ведь коробка не закреплена) – вставляют клинья из ДВП или оргалита.
- Теперь начинают выставлять стойки, которые примыкают к дверному проему. Их выставляют вертикально и усиливают деревянным брусом. Наносят монтажную пену и притягивают коробку саморезами.
Схема создания дверного проема в перегородке из гипсокартона
При создании светового окна имеются такие особенности:
- Необходимо установить две горизонтальные перемычки (сверху и снизу).
- Вертикальные стойки лучше делать с деревянными закладными.
Выбираем профиль для каркаса
Тип используемого профиля следует учитывать при подготовке плана будущей конструкции. Профиль на стену под гипсокартон (для обшивки) классифицируется следующим образом:
- Направляющий (типа UD), длина – 3 м, сечение 50×40, 60×40, 75×40, 100×40 мм. Устанавливается по периметру каркаса и в основном, формирует его.
- Несущий (типа CD) – предназначен для укрепления каркаса, придания ему жесткости. К несущему профилю непосредственно крепят гипсокартон.
- Арочный – схож с несущим, но имеет специальные вырезы, позволяющие гнуть металл.
- Маячковый, с гребнем 10 или 6 мм.
- Угловой, сечением 31×31 и 25×5 мм.
С помощью арочного профиля создают криволинейные конструкции
Профиль маячковый используют для штукатурных работ. Угловой крепят поверх гипсокартона для защиты и выравнивания внешних углов.
Профили под гипсокартон на потолок используются те же (кроме арочного), а также:
- потолочный, сечением 27×60 мм;
- потолочный направляющий, сечением 27×28 мм.
Монтируя перегородки, выбирают профиль под гипсокартон, размеры которого по ширине соответствуют размерам конструкции. Ширина профилей — от 50 до 150 мм. Ширина самой перегородки выбирается в зависимости от наличия инженерных коммуникаций в свободном пространстве простенка и от необходимости укладки тепло- и шумоизоляционных материалов.
- Направляющий профиль (типа UW) устанавливается по периметру простенка (крепится к стенам, к полу и потолку) и тем самым задает его плоскость.
- Стоечный профиль (типа CW) необходим для придания каркасу прочности, крепится с шагом 400-500 мм к направляющему профилю.
Установка профилей под гипсокартон выполняется с применением специальных крепежей.
- Кронштейн П-образный: используется для соединения профилей со стенами и потолком. Средняя часть с помощью забивных дюбелей крепится к отделываемой плоскости, а края – к металлическому каркасу.
- Быстроподвес: представляет собой спицу с ушком и подвес, который фиксируется в CD профиле. Эти детали соединяются друг с другом с помощью пружины, позволяющей регулировать положение быстроподвеса относительно горизонта.
- Соединитель крабовый: используется для крестообразных соединений профиля. Соединитель крепится к профилю, а затем фиксируется саморезами. Таким же способом привинчивается поперечная перемычка.
- CD-соединитель необходим, когда требуется удлинить профиль. Концы профилей вставляются сбоку в соединитель и привинчиваются саморезами.
- Двухуровневый соединитель – применяется для фиксации каркаса к деревянным перекрытиям.
Для соединения пересекающихся профилей используют специальные «крабы»
Потолочная обрешетка своими руками – краткая инструкция проведения монтажных работ
Каким бы не предполагалась подвесная потолочная конструкция из гипсокартона – одно или многоуровневая, сначала монтируем базовую обрешетку. В начале работы делаем отбивку горизонтальной плоскости, для чего используем водный уровень или лазерный нивелир и малярную красящую нить. В итоге проведенной процедуры на стенах остаются горизонтальные полосы, являющиеся ориентиром для монтажа направляющего профиля. Последний фиксируется по периметру всплошную саморезами или дюбелями с шагом крепления около полуметра.
Теперь очередь несущих профилей. Прежде, чем их монтировать, нужно определиться со схемой обрешетки. Существует два варианта. Первый предусматривает установку продольных планок на расстоянии 60 см друг от друга с монтажом поперечных дополнительных перегородок с шагом 50 см. Второй вариант каркаса предусматривает между основными профилями расстояние 40 см с установкой поперечин только в местах продольной стыковки гипсокартонных листов. Обе схемы достойны внимания и отвечают требованиям прочности, но первый вариант более удобен, если предполагается монтаж второго уровня потолочной конструкции.
Вначале в пазы направляющих профилей заводим продольные планки, отрезанные нужной длины ножницами по металлу, и распределяем с шагом, соответствующим избранному варианту схемы обрешетки. Следующий шаг – крепление подвесов к потолочному перекрытию. Изделия фиксируем двумя дюбелями напротив каждого несущего элемента каркаса на расстоянии 50-60 см друг от друга. Закрепив подвесы, поднимаем несущие профили выше нормального уровня монтируемого каркаса и временно фиксируем их боковыми пластинами подвесов в таком положении.
Поперек продольных планок на уровне нижних полок направляющих профилей натягиваются 2-3 нити или лески. Каждый продольный элемент конструкции устанавливается и фиксируется к подвесам так, чтобы спинка не доставала до ориентировочных нитей 1-2 мм. Зафиксировав все основные несущие планки, устанавливаем поперечины, используя крабы, и дополнительно фиксируем к перекрытию каждую перегородку с помощью подвеса. На этом установка потолочных профилей под гипсокартон закончена – можно обшивать собранный каркас или приступать к монтажу второго уровня.









![[инструкция] перегородка из гипсокартона своими руками](https://betonpogreb.ru/wp-content/uploads/7/3/0/7306d0ce42211bb363d1947db97deb22.jpeg)

























