Кровля
Пароизоляция для крыши
На стоимость постройки влияет конструкция крыши. Оптимальный вариант по стоимости — односкатная, двускатная. Вальмовая кровля подойдёт для мансардных сооружений. Террасу укрывают одной крышей с баней, с единой стропильной системой.
Шаг между стропилами делают согласно расчетам проекта. Для примыкающей, выступающей террасы, возводимой позже, устанавливают отдельно стропила, обрешётку под кровельное покрытие. Участок под пристройку планируют, выгораживают заранее.
В качестве кровельного материала используют: рубероид, мягкую черепицу, ондулин, профлист. Все зависит от особенностей дизайна данного проекта.
Беседки с мангалом и барбекю — (80+ ФОТО) Чертежи проектов которые можно реализовать своими руками
Баня: планировка и разделение общей площади на функциональные зоны
Если раньше бани состояли всего из одного помещения, то современные варианты этих сооружений включают несколько комнат. В их числе может быть моечная, предбанник, зона отдыха, бассейн, бильярдная и т. п. Чтобы в будущем владельцу не приходилось прибегать к перестройке и корректировке здания, еще на этапе проектирования необходимо внести в чертежи бани все важные пометки. Особого внимания заслуживают следующие моменты:

Для удобства современные бани включают в себя несколько функциональных зон
- планировка внутренних помещений;
- система водоснабжения;
- разводка электросети;
- канализация и система стоков.
Разработка плана бани с учетом условий дачного участка
Чтобы создать идеальные условия для отдыха в бане, нужно учитывать некоторые нюансы, которые позволят избежать неприятностей в процессе эксплуатации помещения. Желательно, чтобы зона строительства располагалась на почвах с низким уровнем пролегания грунтовых вод. Перед тем как приступить к разработке проекта, нужно сразу же исключить все участки, которые не соответствуют этому условию.

Проект бани размером 5 на 7 метров с открытой террасой
Если на территории имеется колодец, то расстояние между ним и баней не должно быть менее 5 м. Минимальный разрыв между парилкой и жилым зданием составляет 8 м. Чем дальше от бани будет размещаться компостная яма и туалет, тем лучше. Специалисты советуют делать вход с южной стороны. В зимнее время здесь образуется меньше сугробов, поэтому исключается вероятность блокировки доступа к двери. Лучше, если окна будут смотреть на запад, что будет способствовать проникновению в помещение достаточного количества солнечного света.
Если на дачном участке имеется водоем, построив баню в 15-20 м от него, можно использовать его вместо бассейна. Кроме этого, наличие реки или озера поблизости от сооружения позволит обеспечить систему подачи воды.

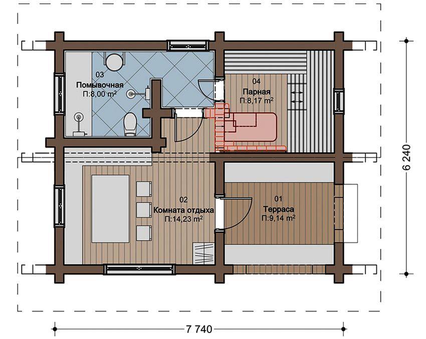
Проект бани размером 7,74 на 6,24 метра
Для небольших участков (3-6 соток) подойдут проекты бань 3 на 3, фото таких построек в изобилии присутствуют на сайтах строительных компаний. Даже в таких компактных строениях основным помещением остается парная. Под организацию этой комнаты следует отвести максимально возможное количество площади – около 8 м². Этого достаточно для того, чтобы установить 2-3 лежака (полки) и поставить печь-каменку.
Другие помещения могут быть включены в планировку бани 3х4 м и более (по желанию). Сооружение может использоваться по назначению даже при отсутствии бильярдной или санузла. Баня же без парилки существовать не может. По этой причине разделение внутреннего пространства на функциональные зоны в первую очередь зависит от размеров проекта.

Строить бани рекомендуется на расстоянии минимум 8 м от жилого сооружения
Если же хочется дополнительных удобств, в проект бани 3 на 4 м можно включить небольшую душевую комнату или помывочную. После парилки здесь можно будет смыть с себя грязь и освежиться. Для типовых проектов характерно наличие комнаты отдыха, которая будет эксплуатироваться в перерывах между сеансами пара. Для ее организации потребуется 4,5 м².
Нелишними будут и другие помещения, например, раздевалка или тамбур. Они достаточно компактны, чтобы поместиться в проекте бани 5 на 5 из бруса наряду с основными комнатами.

Проект бани размером 6х6 м со вторым мансардным этажом
Баня в два этажа
Двухэтажная баня – это, скорее больше жилое, чем оздоровительное здание, так как второй этаж и бо́льшая часть первого этажа практически всегда отводится под жизненно необходимые помещения, которые нужны и без наличия бани в хозяйстве. Очень редко оба этажа отдаются именно под помещения бани и все, что с ней может быть связано.
Второй этаж может строиться как отдельный полноценный этаж, как мансарда или как жилое чердачное помещение. В данном проекте это – мансарда, в которой будут отдыхать гости. То есть, второй этаж бани служит гостевым домиком. Количество внутренних перегородок определяет, какие помещения вы будете планировать. Это может быть одна или две спальни с комнатой отдыха, а может быть просто большой холл с диваном для сна и отдыха после бани. Но принимать гостей на несколько дней вовсе не обязательно, и в таком случае из второго этажа можно просто сделать игровую комнату с биллиардом или оборудовать чилаут с домашним кинотеатром.
Двухэтажная баня 6 × 6 метров
Первый этаж – это стандартный набор помещений, необходимых для полноценного функционирования бани: парилка, помывочное помещение, комната отдыха со столовой зоной, и санузел. Естественно, есть и большой тамбур, в котором размещается склад для дров и раздевалка.
Баня с пристройками
При большой площади земельного участка есть великолепная возможность расширить и баню, построив ее не как отдельный функциональный объект, а как бытовой комплекс – с пристройками, обеспечивающими раздельное пользование помещениями на большой площади одного этажа. Здесь можно пристроить к бане отдельно: комнату отдыха, спальни, санузел и ванную комнату, кухню, хранилище для дров или угля, бассейн, и даже детскую комнату. В общем, из бани можно сделать полноценный жилой дом.
Проект бани с пристройками
Решение будет идеальным для проживания только весной, летом и осенью, так как в теплое время не нужно оборудовать капитальное отопление, утеплять здание, приобретать много мебели, и т.д. Это – эконом-вариант сборной конструкции бани.
Преимущество состоит в «плавучести» проекта – можно пристраивать любые помещения и в любом количестве, было бы свободное место на земле. Кроме того, технология раздельного строительства позволяет уменьшить расходы на стройматериалы – не для всех помещений нужны одни и те же, часто дорогостоящие, материалы, особенно для фундаментов. Если пристройка будет ненагруженной, то ее можно ставить на сваи или на столбчатые опоры, и строить стены из дерева, а не из кирпича.
Если какие-то помещения эксплуатируются в обычных условиях, а не при повышенной влажности, то экономнее будет не закладывать в смету применение паро- и гидроизоляционных материалов.
Рекомендации по строительству своими руками
Узнаем, какие нюансы есть при сооружении бани 3х5 метров с раздельными парилкой и мойкой.
Прежде чем начинать строить баню, необходим точный проект сооружения: со всеми чертежами и предусмотренными важными моментами в виде прокладки коммуникаций и т. д. Такой проект можно либо составить самостоятельно, либо купить в специальной фирме, занимающейся строительным проектированием, либо найти в интернете.
Заранее предусмотрите максимально возможное количество людей, которые будут постоянно пользоваться баней: и от этого отталкивайтесь в выборе размеров строения. Подумайте также, нужна ли отдельная парилка, или можно обойтись совместной.

Учтите, что минимальная площадь бани — 10 кв. м. На меньшем пространстве будет очень трудно разместить все необходимые устройства и мебель, и будет тесно при мытье.
У бани должны быть свои собственные коммуникации: водоснабжение, канализация, подача электроэнергии, вентиляция. Обязательно продумайте удобные выходы из парилки и мойки в комнату отдыха.
Не забудьте уделить особое внимание теплоизоляции строения
Важно, чтобы горячий пар не смог быстро покинуть помещение, иначе смысл пребывания в парилке теряется. Стены необходимо проконопатить, если они деревянные, потолки утеплить минеральной или стекловатой
Стены необходимо проконопатить, если они деревянные, потолки утеплить минеральной или стекловатой.
Уделите внимание и выбору печки. Рекомендуем выбирать из двух вариантов: либо электропечка, либо каменная
В первом случае нагревание произойдет быстро, не будет сажи и копоти, но зато ощутимо намотает электроэнергии. Каменная же печь более целебна, но с ней и больше возни: надо топить, чистить, запасать топливо. А вот какие печки из кирпича в баню существуют, и как подобрать необходимую, очень подробно изложено в данной статье.
Мы рассмотрели особенности одной из самых популярных банных планировок: 3х5 метров с раздельными парилкой и мойкой. Как вы видите, даже такое небольшое пространство вполне можно грамотно спланировать, и разместить на нем все необходимые помещения. Поэтому пусть вас не пугает небольшая общая площадь бани: наши советы помогут вам создать вполне комфортное пространство.
Какая планировка может быть в помещении бани
Каждый самостоятельно выбирает внутреннюю отделку, материал для возведения бани. Этого не скажешь о самом пространстве в помещении
Более идеального плана придумать невозможно, поэтому именно такой стандарт берут во внимание все, кто решил обустроить баньку на территории участка.Чертеж с размерами и планировка парилкиВарианты планировки парилки в бане
- При входе в парную располагается раздевалка. Это логично и правильно. Ведь вход в пространство парной в одежде и обуви это негигиенично и неправильно. Зайдя в помещение, сразу же следует облачиться в банную одежду или обернуться в простыню.
- Следующим помещением, которое должно быть в бане – это предбанник. Здесь, как правило, размещают столик для чаепития, могут устанавливать бильярд. В общем, на что хватит фантазии, то и воплощается. Оформление и интерьер предбанника в бане из дерева Пример отделки предбанника
- Следующим после предбанника является вход в парную. Возле парной, конечно же, размещается моечная или бассейн, в которых можно освежиться после принятия банных процедур.
Конечно, планировка может быть другой. Но именно такой вариант чаще всего используется в силу своего комфорта. В видео рассказывается о правильной проектировке и планировке бани.
Основные преимущества бань 4х4
Самое главное преимущество — это экологичность материала, из которого строятся бани. Если проект бани 4х4 включает в себя строительство ее из хвойных пород, то такая древесина обладает еще и лечебными свойствами.
Если по проекту запланирован наем специальной бригады для строительства бани, то они с помощью технологии шипо-пазного соединения возведут вам прекрасное строение, которое прослужит не один десяток лет.
Если проект бани 4х4 предусматривает строительство ее из бруса, то этот материал обойдется вам намного дешевле чем, например, из кирпича или строганого профилированного бруса.
Строительство бани 4х4 м не требует больших финансовых затрат и не займет много территории на вашем участке. Вы только будете с радостью отдыхать в ней и набираться здоровья.
Особенности помещения
При выборе проекта важно учесть много нюансов. Ключевые факторы:
Тип здания
Если оно отдельное, важно, чтобы внутри была не только парная с душевой, но и санузел. Это сделает отдых куда комфортнее
Расположение печи. В идеале она должна быть в центре для равномерного прогрева или находиться у стены, граничащей с комнатой для отдыха. Наличие и количество окон. Они выполняют не только эстетическую функцию, но и используются как элемент естественной вентиляции.
Также в планировке бани должно быть предусмотрено расположение дровницы, места хранения камней, шкафов для одежды и банных принадлежностей.
Как строить?

Тоже оригинальное решение
Когда проект готов, можно начинать работы
Важно только получить разрешение на строительство, предоставив проект в соответствующий орган
Решив на этапе проектирования, какой материал будет использоваться, Вы должны рассчитать необходимый объем и приобрести его.
Сруб

Сруб бани из бревен
Традиционно для строительства бань используется сруб с определенной толщиной бревен.
Если Вы берете именно его, то не забывайте следующие вещи:
Идеальная толщина бревен составляет 20-25 см в диаметре.
Материал должен быть качественным.
Идеальным решением становится материал из хвойных пород дерева
Лиственнице в этом отношении вообще нет равных.
Важно использовать различные пропитки для бани, которые защитят материал от воздействия влаги и перепадов температуры.
Если Вы решили самостоятельно заготовить материал – делайте это грамотно. Но лучше все же покупайте.
При соблюдении этих правил вы сможете получить баню, которая подойдет для круглогодичного использования и прослужит долго.
Брус

Баня из бруса
Также можно использовать и брус – еще один отличный материал, который хорошо подходит для выполнения таких работ.
Выбирая брус, следует остановиться на размере 150 на 150 или 150 на 180 – именно такая толщина будет идеальной для создания бани.
Какой проект выбрать?
В эру технологий и интернета каждый человек может подобрать проект, который подойдет ему идеально. В большинстве случаев они разнятся лишь внутренней планировкой. Первым вопросом, который стоит решить при выборе плана, является совмещенное или раздельное размещение парилки и мойки. Рассмотрим оба варианта.
На рисунке выше можно увидеть планировку бани размером 3 на 5 с совместной парилкой и мойкой. Общая площадь застройки составляет 15 м/2, размер парной и предбанника составляет 9 и 6 кв. м.
В парилке присутствуют:
- душевая зона с водоотводом;
- печь с баком для горячей воды;
- двухъярусный полок.
В пользу объединения парилки и моечной говорят два факта:
- при небольшом объеме пространства температура и влажность меняются слишком резко, что негативно сказывается на самочувствии людей;
- поры на коже раскрываются под воздействием высокой температуры, в парилке и вновь закрываются от низкой температуры моечной; каждый следующий заход вынуждает вновь распаривать кожу, при объединении этих двух комнат остывания кожи не происходит.
Теперь рассмотрим вариант с отдельно расположенной мойкой и парилкой. Предбанник занимает 9 кв. м, парилка составляет 4 кв. м, а мойка занимает 2 квадратных метра. Размер у этого проекта такой же, как и у предыдущего (3×5 м), но комнат здесь уже три. По желанию оба варианта можно модифицировать, сдвинув стены в ту или иную сторону.
Из чего строить баню
Перед тем как построить баню по шагам, нужно выбрать материал для стен. Возведение такой конструкции проводится с учетом климатических особенностей региона, этажности, размеров. Если строение предполагается с проживанием, например, на втором этаже, то основание понадобится довольно прочное, как правило, в виде ленточного или плитного фундамента.
Наиболее распространенные материалы для бани — дерево либо кирпич.

Сегодня применяются и другие материалы, но выбирать их нужно ответственно, учитывая особенности постройки.
Дерево
В основном для возведения бани используют древесину таких деревьев:
- липы;
- сосны;
- осины;
- пихты;
- ольхи.
Довольно часто бани строят из бруса или сруба. Второй вариант является не только экологичным, но и не требует отделки, ведь бревно и так довольно привлекательно. Срубы также выделяются своей теплоизоляцией. Из минусов стоит отметить большую усадку после завершения строительства, а также растрескивание и деформацию бревна.

Что касается бруса, то он менее подвержен механическим повреждениям, поскольку дополнительно обрабатывается различными растворами, защищающими материал. Постройка бани из дерева требует определенных навыков и аккуратности в работе.

Кирпич
Сооружение кирпичной бани имеет ряд преимуществ:
- Длительная эксплуатация. Такие конструкции могут простоять более 100 лет.
- Внешний вид. Кирпичные стены не нуждаются в дополнительной декоративной отделке.
- Стойкость к огню. По сравнению с деревом, кирпич является негорючим материалом.

Однако при постройке бани из кирпича есть и минусы:
- Необходим крепкий фундамент. Такое основание требует времени и немалых финансовых вложений.
- Длительный прогрев. Кирпичная баня требует продолжительного прогрева и большого количества топлива.
- Плохая вентиляция. В отличие от деревянных, кирпичные стены практически не пропускают воздух.
- Высокая стоимость.

Какая планировка может быть в помещении бани
Каждый самостоятельно выбирает внутреннюю отделку, материал для возведения бани. Этого не скажешь о самом пространстве в помещении
- При входе в парную располагается раздевалка. Это логично и правильно. Ведь вход в пространство парной в одежде и обуви это негигиенично и неправильно. Зайдя в помещение, сразу же следует облачиться в банную одежду или обернуться в простыню.
- Следующим помещением, которое должно быть в бане – это предбанник. Здесь, как правило, размещают столик для чаепития, могут устанавливать бильярд. В общем, на что хватит фантазии, то и воплощается. Пример отделки предбанника
Конечно, планировка может быть другой. Но именно такой вариант чаще всего используется в силу своего комфорта. В видео рассказывается о правильной проектировке и планировке бани.
Заключительный этап работ
На заключительном этапе строительства кроют крышу, устанавливают двери и окна. Для постройки крыши по последнему брусу стен укладывают балки. На них крепят стропила с расстоянием в один метр. Затем под кровельный материал устанавливают обрешетку. Каркас обшивают металлочерепицей или профлистом. Под мягкую черепицу стелют фанеру.
Устанавливая дверную коробку, необходимо с помощью отвеса выставить ее относительно пола и стен как можно ровнее, иначе дверь не будет открываться. Следует оставить между стеной и дверью 80 мм для усадки строения. Дверную коробку нужно будет закрепить, а щели обработать монтажной пеной.
Какие бывают помещения в бане и их предназначение
Традиционно в бане должно быть три помещения
Прежде чем приступить к проектированию бани, нужно определить режим и частоту использования комплекса. Габаритов пригодных для всех случаев не существует.
- Если размер участка невелик, ограничиваются небольшой постройкой с минимумом функций. Если территория обширная, можно возвести полноценный банный комплекс с гостевыми комнатами и мини-бассейном.
- Если париться часто не будут, нет смысла сооружать большое здание. Если ходить в баню будут часто, нужно строить комплекс, включающий парную, моечную и просторный предбанник.
- Сезонная банька – русская, финская, турецкая – постройка легкая, не нуждается в утеплении. Круглогодичную тщательно утепляют, оборудуют вентиляцией, отделывают стойкими к перепаду температуры материалами.
- План бани обязательно включает парную. Ее размеры зависят от количества пользователей и допустимых размеров. Минимальная площадь на 1 парящегося – 1 м². Но так как учитывать нужно еще площадь для печки и дверь, минимум для 1–2 человек составляет 3,6 кв. м.
- В крайнем случае баня может только из парной и состоять. В сезонных моделях роль моечной выполняет распложенный рядом летний душ или подвешенный под козырьком ковш с водой. В маленьких постройках моечная включает 1 душевую кабинку. Порой и настоящий душ заменяет собой бочка с водой и пара тазов.
- Предбанник в круглогодичной бане делать необходимо. Это тамбур, который препятствует быстрому охлаждению парной и позволяет оставить одежду не на улице, а внутри здания. В крупных комплексах предбанник разделяется на раздевалку, где оставляют вещи и хранят банные принадлежности, и гостевую комнату, где отдыхают между походами в парную.
- Санузел появляется в относительно больших постройках круглогодичного пользования.
Комплекс может включать также бассейн, бильярдную, веранду и прочее.
Помывочная или душевая комната
Душевое помещение должно быть отделено от других, так как в нем, прежде всего, температура должна быть ниже, чем в парной, а само функциональное назначение этой комнаты подразумевает скрытность процесса. Чтобы не тратить и без того небольшой объем энергоносителей на обогрев помывочной, ее делают небольшой – в пределах 2-3 квадратных метров. Такую площадь под душевую можно выделить в любом, даже самом маленьком, проекте. А если баня предназначена исключительно для мужских посещений, то душевую вообще можно сделать миниатюрной – около 0,5 м2. Зато за ее счет можно расширить комнату отдыха.
Душевое помещение в русской бане
Если планировка бани 6 на 4 метра вас устраивает, то душевую можно организовать так, как показано на рисунке выше – это небольшое, но достаточно удобное и функциональное помещение.
Для семейной бани, чем более с детьми, душевая должна быть большой, удобной и многофункциональной, что подразумевает включение в ее состав отделения (или отдельного помещения) для стирки и других нужд. Из-за большой площади такая помывочная может быть даже основным помещением в бане, поэтому следует предусмотреть хорошую принудительную и естественную вентиляцию, естественное и искусственное помещение, правильно рассчитать схему отопления и площадь помещения по максимальному количеству посетителей. Если составлен именно такой план бани, то комнату отдыха можно вообще исключить из проекта, и перенести ее в дом.
Баня с верандой
Что следует сразу учесть
Потребности у всех разные, поэтому начинать составлять проект бани с парилкой, мойкой, комнатой отдыха, санузлом, террасой, бассейном и прочим стоит все-таки с того, как именно вы собираетесь в дальнейшем пользоваться этой баней.
Второй момент – какие климатические условия там, где будет ваша баня – есть специфика для местностей с особо суровыми зимами, например.
Третий момент – какими возможностями вы располагаете, начиная с бюджетных и заканчивая геологией участка.
И если есть определенность хотя бы по пунктам:
- количество человек;
- частота и сезонность использования;
- тип бани (русская или финская, печка железная или кирпичная);
- материал стен (бревно,брус,кирпич,блоки,каркас);
- размеры годного по геологии участка;
- допустимые затраты,
- то можно приступать к проектированию.
Мы же покажем вам варианты того, какой может быть баня при тех или иных заданных габаритах – это не единственные варианты планов, вы можете отталкиваться от них и вносить любые необходимые коррективы.
Скажем так: наша статья для тех, кто уже прикинул в уме, на какой размер бани рассчитывает, и хотел бы познакомиться с уже готовыми планами, чтобы в итоге либо выбрать готовый, либо сделать свой на основе имеющихся.
ВАЖНО! Глядя на планы, принимайте во внимание то, что мы не учитывали толщину стен и утеплений, а она способна существенно сократить площадь помещения изнутри. Поэтому посчитайте заранее толщину стен и пирога утепления, а после вычитайте ее из своего плана (либо, наоборот, добавляйте, если хотите сохранить размерность внутри)
Правильные проекты бани из бруса в Московской области
Особо обращаем внимание на проект бани ниже. В нем удачным способом включены возможные элементы планировки, рекомендуемые делать под основным срубом. Такие элементы как крыльцо, терраса, купель или бассейн мы рекомендуем пристраивать за пределами сруба
Пристройка у каждой бани уникальная, учитывающая расположения на участке
Такие элементы как крыльцо, терраса, купель или бассейн мы рекомендуем пристраивать за пределами сруба. Пристройка у каждой бани уникальная, учитывающая расположения на участке.
Мы уверены, в Московской области такая баня из бруса не покажется ущербной. Не забываем, что есть вход топочной, использующийся как тамбур, топочная с отдельным входом, туалет, душевая с купелью в бочке, парилка с пологами буквой «Г» для людей высокого роста, гостиная 23㎡ с зоной для кухни и небольшой закуток для детей.
В просторной гостиной камин. Для большой парной сложите печь из кирпича — угол в бане найдется.
В двухэтажном варианте бани для гостиной делается второй свет, а над остальными делаются жилые помещения. В двухэтажном варианте задачи детской решает этаж выше.
Как составить проект?
Отдельные мойка и парилка – вот неоспоримое преимущество проектов бань 4 х 5. Пожалуй, это единственная их схожесть, и из массы вариантов каждый может выбрать то, что больше придется по душе.
- Простейший план одноэтажной бани предусматривает общую комнату, мойку и парилку. При такой планировке комната отдыха служит еще и в качестве предбанника, поэтому зимой и поздней осенью пользоваться ею не очень-то удобно. Из комнаты для релакса дверь ведет в моечную, где оборудован современный санузел с душевой кабиной, раковиной и унитазом. Из помывочной вы попадаете в парильное отделение с полоком и печью.
- Второй проект аналогичен предыдущему, только снаружи добавляется просторная терраса. Ее можно застеклить, устроив уютную веранду, на которой также организовывают место для отдыха.
- Баня с предбанником позволяет мыться в любое время года, да и дрова удобнее хранить на входе. Через небольшой коридор проходите в комнату для отдыха, затем в моечное отделение и в парилку.
- Оптимальным вариантом считается баня с отдельным туалетом. Только для создания этого проекта придется пожертвовать метрами комнаты отдыха или парильного отделения. Выглядит это так: дверь из тамбура ведет в помещение для отдыха, а из нее можно выйти в моечную, а затем в парилку или в туалет.
- Мансарда позволяет не только эффективно использовать строительную площадь, но и размещать приехавших на дачу гостей. Первый этаж оборудуем предбанником, «залом», моечной и парильным отделением, а второй обустраиваем под жилое помещение. Чтобы создать гостям комфортные условия, зонируйте мансарду на спальню и место, где они смогут насладиться всеми прелестями деревенской жизни.
Строительные работы
Самый важный этап в сооружении бань 3х6, 4х6, 6х6 – проектирование. Грамотно составленный план сауны поможет оптимизировать расходы на обслуживание. Строительство бани включает в себя подготовку почвы под здание, подвод коммуникаций, монтаж печи и возведение несущих конструкций.
Для выравнивания площадки под фундамент и его защиты от грунтовых вод, пятно застройки засыпают песком. Под основание рекомендуется делать котлован глубиной 30 см и шириной на 50 см больше каждой стены. Так, для здания 6х6, параметры пятна застройки будут равны 6,5х6,5.
Фундаменты для зданий 3х6, 4х6, 6х6 бывают ленточные или столбчатые. На пучинистых почвах устраивают свайно-винтовое основание. Возможное расположение ленточного фундамента для бани 3х6:

Бетон заливают по периметру будущего здания под несущие стены и под каменную печь в зависимости от планировки. Ленточный фундамент под баню 6×6 устраивают по осям плана, столбчатый и свайный – на их пересечении.
Полы для бань 3х6, 4х6, 6х6 настилают на лаги. Опоры под них покрываются рубероидом или несколькими слоями ПВХ плёнки. Баня 3х6, 4х6 или 6х6 на участке должна быть расположена с учётом удобства проведения коммуникаций. Позаботится об электрификации, водоснабжении и канализации следует на стадии планировки. На будущее для дополнительных инженерных сетей опытные строители рекомендуют устанавливать пустой короб диаметром 100 мм с заглушкой.
Традиционно здания из бруса и бревна не утепляют. В таких постройках необходима только изоляция стен парной. Бани 3х6, 4х6 или 6х6 из искусственного камня покрывают снаружи базальтовым утеплителем.
Ненесущие перегородки для бань 3х6, 4х6 или 6х6 могут быть каркасные или каменные. Стены парной 3×6, 4×6, 6×6 зашивают минераловатным теплоизолятором со слоем фольги. Стыки плит заделывают алюминиевым монтажным скотчем. Сверху на утеплитель крепится вагонка на обрешётку глубиной 2–3 см. Зазор между пароизоляцией и финишной отделкой оставляют для вентиляции. Так конденсат может стекать вниз, позволяя вагонке оставаться сухой.
Бани из дерева размеров 3х6, 4х6 или 6х6 чаще всего имеют планировку домов-пятистенок. Посреди здания или на трети по длине располагается пятая несущая стена, которая укрепляет общую конструкцию. Межэтажные перекрытия делают из досок, зашивают вагонкой. В сауне потолок защищают от пара теплоизолятором из фольги. Утеплитель должен быть негорючим.
Веранда саун 3х6, 4х6 или 6х6 должна иметь глубину в планировке не менее 2,5 м. Обязательно наличие крыши или козырька для предотвращения гниения досок пола и перил. Шаг стропил для кровли вычисляется по формулам в зависимости от пролёта и толщины досок. Металлочерепица укладывается на обрешётку. Баня с мансардой 6×6 имеет потолок по стропилам. Для создания комфортной температуры внутри помещения кровля утепляется, зашивается вагонкой.
При строительстве саун 3х6, 4х6 или 6х6 должны быть соблюдены меры влагоудаления и пожаробезопасности. Обязательна пароизоляция сауны с подбором безопасных материалов. Правильно планировка убережёт владельца строения от лишних расходов и проблем с конструкциями.
Размеры полков
Линейные размеры полков напрямую связаны с конфигурацией парилки. Если их высота одинакова для любых помещений, то длина зависит от размера стен.

В среднем, высота полков составляет 1,1-1,2 м (для самого высокого), 0,6 м (для среднего) и 0,2-0,3 для самой низкой скамейки). Можно обойтись двумя полками, лежанкой высотой 1,1-1,2 м и лавкой высотой 0,5-0,6 м.
Длина полков в русской бане должна быть не менее 1,8 м. Делать их короче нецелесообразно, так как удобно улечься на короткую лежанку не получится, и весь комфорт от принятия банных процедур пропадет. В сауне можно обойтись и более короткими сидячими местами.
Какие бывают помещения в бане и их предназначение
Традиционно в бане должно быть три помещения Прежде чем приступить к проектированию бани, нужно определить режим и частоту использования комплекса. Габаритов пригодных для всех случаев не существует.
- Если размер участка невелик, ограничиваются небольшой постройкой с минимумом функций. Если территория обширная, можно возвести полноценный банный комплекс с гостевыми комнатами и мини-бассейном.
- Если париться часто не будут, нет смысла сооружать большое здание. Если ходить в баню будут часто, нужно строить комплекс, включающий парную, моечную и просторный предбанник.
- Сезонная банька – русская, финская, турецкая – постройка легкая, не нуждается в утеплении. Круглогодичную тщательно утепляют, оборудуют вентиляцией, отделывают стойкими к перепаду температуры материалами.
- План бани обязательно включает парную. Ее размеры зависят от количества пользователей и допустимых размеров. Минимальная площадь на 1 парящегося – 1 м². Но так как учитывать нужно еще площадь для печки и дверь, минимум для 1–2 человек составляет 3,6 кв. м.
- В крайнем случае баня может только из парной и состоять. В сезонных моделях роль моечной выполняет распложенный рядом летний душ или подвешенный под козырьком ковш с водой. В маленьких постройках моечная включает 1 душевую кабинку. Порой и настоящий душ заменяет собой бочка с водой и пара тазов.
- Предбанник в круглогодичной бане делать необходимо. Это тамбур, который препятствует быстрому охлаждению парной и позволяет оставить одежду не на улице, а внутри здания. В крупных комплексах предбанник разделяется на раздевалку, где оставляют вещи и хранят банные принадлежности, и гостевую комнату, где отдыхают между походами в парную.
- Санузел появляется в относительно больших постройках круглогодичного пользования.
Комплекс может включать также бассейн, бильярдную, веранду и прочее.
Проекты
Проект – это, наверное, самый важный этап. При составлении плана стоит заранее учесть расположение комнат, продумать размещение коммуникаций (электрика, вытяжка, вода), расположение дверей и окон. Готовые проекты, схемы и чертежи можно найти в интернете, разработать самостоятельно или обратиться в специализированные компании. Последний вариант хорош тем, что при разработке проекта будут дополнительно учитываться особенности участка.
Что касается планировки бани 4 на 4, то нужно предусмотреть наличие парной, мойки и комнаты отдыха (для экономии места часто совмещают с предбанником). При этом парная должна быть больше по площади, поскольку в ней одновременно находятся несколько человек.


Если средства позволяют, лучше выбирать проект с 2 этажами. В этом случае на первом этаже отдельно размещается баня, на втором – гостевая или комната отдыха. При этом строение остается компактным, что актуально для небольших по размеру участков.


Еще один вариант увеличить площадь – мансарда. Затрат на строительство меньше, но в итоге получается небольшое помещение, которое можно использовать, как гостевую комнату. Плюс – возможность организовать на втором этаже полноценный балкон или комнату с террасой (опорные столбы также послужат основанием для небольшой веранды).
Количество полок зависит от высоты бани (одноэтажная или двухэтажная). Лучше предусмотреть 2 или 3 яруса.
- такое решение позволит с комфортом разместиться в парной компании из нескольких человек.
- выбрать комфортную температуру.


Печь лучше установить у стены между предбанником и парной – это удобнее и безопаснее, особенно, если любите поддавать воды на каменку.
В моечной обычно устанавливают лавки, предусматривают места для хранения ковшиков, тазов. При желании можно установить душевую кабину.
Комната отдыха обставляется по желанию хозяев. Минимальный набор мебели – стол и пара стульев.


На стенах предбанника, который одновременно служит раздевалкой, закрепляют крючки для одежды. Если площадь позволяет, можно выделить место для хранения дров.
Несмотря на компактность, в помещении размером 4х4 можно разместить все необходимое. Оптимальный вариант – доверить проектные работы специалисту. Впоследствии не возникнет проблем с подводкой водопроводных труб или с обустройством канализации.


При выборе проекта стоит учитывать:
- количество членов семьи, например, если есть маленький ребенок, то стоит выделить место для теплого предбанника;
- назначение – любителям попариться стоит рассмотреть варианты с большой парной.
При выборе проекта стоит заранее рассчитать стоимость необходимых материалов для строительства и последующей декоративной отделки.


Особенности проектов 4х4 м

Проект бани 4х4 м достоин внимания пользователей за хорошую вместительность. Стандартное одноэтажное строение вмещает в себя планировку:
парную, моечную, санузел, предбанник и комнату отдыха или террасу под общей крышей. Проект бани 4х4 м может быть одноэтажный или с мансардой. Наверху в таком размещают полноценную комнату для гостей или для отдыха. Из-за небольших размеров коробка легко помещается на небольшом дачном участке или около частного дома.
Собрать баню 4х4 м можно из бруса, бревна простого или оцилиндрованного, кирпича или шлакоблоков. Самый простой вариант из бруса, так как правильная форма строения и бруса с легкостью позволяет собрать коробку своими руками.
На дачном участке обычно выбирается проект с открытой или закрытой террасой. После принятия процедур приятно выйти на воздух и подышать. А общая крыша делает террасу защищенной от ветра и дождя.
Основные характеристики типового проекта бани 4х4 м:
- Площадь по фундаменту – 21,60 м2.
- Площадь внутренней части – 11, 50 м2+2,7 м2 терраса: парилка 4,14 м2, моечная 3,59 м2, терраса 2,7 м2, предбанник 3 м2. Перепланировать внутреннюю часть можно по-своему, так если убрать террасу, то увеличиться предбанник. Поместиться полноценная комната отдыха.
Баня 4х4 приобретается готовой коробкой или делается самостоятельно. Самый простой вариант купить под ключ, цена на такую начинается от 450 000 р. Это без отделки и утепления. Готовая коробка, под сборку своими руками, для сравнения, стоит начиная от 300 000 р. Одну из бань 4х4 можно увидеть на видео:




![20+ этапов строительства бани 4 на 4 на 5 [+18 фото]](https://betonpogreb.ru/wp-content/uploads/b/2/2/b222c5e571bc3961a2ab4f740cc5f977.jpeg)





![11 рекомендаций по созданию плана бани 4 на 4 [+фото]](https://betonpogreb.ru/wp-content/uploads/9/a/6/9a66f950527113d38b85647d6fb37781.jpeg)













![11 рекомендаций по созданию плана бани 4 на 4 [+фото]](https://betonpogreb.ru/wp-content/uploads/c/9/0/c904b41963d085fd0ff0255f16fc1c7e.jpeg)











