Чертежи и схемы
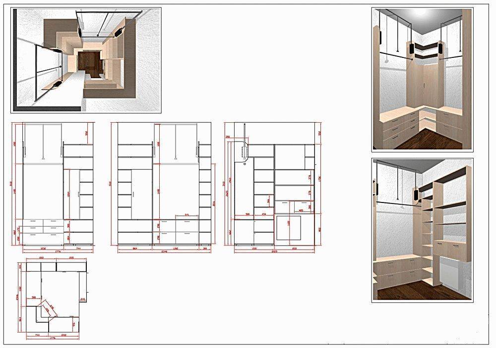
Если создается гардеробная комната своими руками, то нужны чертежи и схемы, по которым будут осуществляться основные работы. В этих документах непременно продумываются основные моменты:
- размер помещения;
- расположение всех элементов, содержащихся здесь;
- учитывается необходимость, размеры и иные параметры дверей;
- производится расчет отделочных материалов и креплений;
- предусматривается использование разных выдвигающихся конструкций;
- осуществляется расчет всех затрат, необходимых для получения полноценной и комфортной комнаты;
- продумывается заранее планировка.
Чертеж непременно создается предварительно на бумаге, причем при его изучении схематично будет видно, как будет выглядеть комната после выполненных работ. Если отсутствует опыт работы с чертежами, то можно воспользоваться специальными программами.
Таким образом, гардеробная – это полезная, многофункциональная комната, предназначенная для хранения разных предметов, одежды. Чтобы понять, как сделать гардеробную своими руками, рекомендуется предварительно тщательно изучить обучающее видео, чтобы учесть многочисленные нюансы, особенности этой работы.
Важно пользоваться во время работы заранее сделанными чертежами, а также применять исключительно качественные, надежные материалы. При грамотном подходе гарантируется получение высококачественной, долговечной конструкции, выдерживающей разные нагрузки и воздействия
Нельзя забывать об оптимальной вентиляции, равномерном освещении
От всех вышеуказанных нюансов зависит комфортность использования самостоятельно сделанной гардеробной
Нельзя забывать об оптимальной вентиляции, равномерном освещении. От всех вышеуказанных нюансов зависит комфортность использования самостоятельно сделанной гардеробной.



Следующая ГардеробСистемы хранения обуви в гардеробную
Техническое наполнение гардеробной
Просто выделения части помещения под гардеробный элемент недостаточно. Необходимо грамотно его распланировать и учесть определенные особенности. К примеру, можно установить зеркало в полный рост.
Штанги и пантографы
Штанга – это один из основных элементов. Для длинных предметов гардероба высота штанги должна составлять 1,7 м. Для рубах, пиджаков, блуз требуется размещение в 1 метр.
Пантографом называется штанга с особым механизмом, который позволяет опускать конструкцию на необходимую высоту. Изделие довольно удобно для хранения коротких вещей, когда было решено задействовать полностью стенку.
Полки
Не каждая спальня позволяет установить большие полки, поэтому нужно учесть их оптимальный размер:
Глубина 600 мм, высота – 300-350 мм, ширина – 500-600 мм. При этой ширине можно разместить два ряда вещей стопками высотой не больше 300 мм.
Высота полок для обуви составляет 150-250 мм. Но нужно помнить о сапогах, чаще всего они не вписываются в эти габариты, потому стоить выделить им специальную полку.
Сетчатые корзины
В сетчатых корзинах можно хранить любые мелочи, журналы, фото, швейные принадлежности и т.д. Сегодня для шкафов изготавливаются коробки различных расцветок и размеров. За счет этого не пропадет ни один сантиметр.
Также сетчатые корзины особо удобны для укладки постельного белья.
Выдвижные ящики
Применяются для хранения нижнего белья и различных аксессуаров. Установив в них разделители и упорядочив мелочевку, получится избежать хаоса и снизить время, которое тратится на поиск необходимого предмета.
Специальные аксессуары
Эти изделия зачастую применяются, чтобы хранить брюки или юбки. Можно закрепить ряд крючков для сумочек и зонтиков. Если квартира позволяет, то в большом помещении можно дополнительно установить различные подставки под шляпы, кепки, панамы. Для ремешков и галстуков изготавливают специальные крепежи.
Освещение и вентиляция
При организации осветительной системы нужно учесть следующие правила:
- предпочтение лучше всего отдать маленьким потолочным светильникам – большая люстра сделает компактную гардеробную еще меньше;
- освещение обязано быть довольно ярким, чтобы можно было легко отыскать требуемую вещь.
Вентиляция обеспечивается следующими способами:
монтаж вытяжного вентилятора;
периодическое проветривание;
устройство приточно-вытяжной вентиляционной системы, но это дорогостоящее мероприятие.
Гардеробная система канзасВ наличии и под заказ по отличной цене!
Есть много способов хранить вещи. Одним из вариантов является соответствующая мебель. Можно выбрать удобные и вместительные Гардеробные системы канзас , которые очень популярны на данный момент.
Предназначение
Уже из названия представленного вида мебели становится понятным основное предназначение. Оно состоит в организации хранения вещей :
- аксессуары;
- головные уборы;
- одежда;
Гардеробная может быть размещена в любом помещении. Это могут быть гостиные или спальни, где предусматривается достаточно свободного пространства.
Конструкция
Чтобы Гардеробные системы канзас имели максимальное удобство, они имеют четкое строение. Основной акцент делается на внутреннем наполнении. Для хранения вещей предусматривается наличие нескольких основных элементов :
- выдвижные ящики;
- штанги;
- корзинки;
- полки;
- внутренние секции;
Конкретный перечень зависит от особенностей строения гардеробной, ее размеров и функциональности. Также в некоторых случаях предусмотрена подсветка.
Преимущества выбора
Качественная Гардеробная система канзас прекрасно заменяет собой обычный платяной шкаф благодаря своим преимуществам :
- различные комбинации внутренних элементов ;
- красивый внешний вид ;
- комфортная эксплуатация ;
- способность вмещать много вещей ;
В конечном счете покупатель получает эффективную и удобную конструкцию.
Критерии выбора Гардеробной системе канзас
Различных конструкций очень много. Это позволяет подобрать каждому покупателю именно то, что ему необходимо. Но выгоднее всего выбрать производство на заказ, в чем смогли лично убедиться уже многие покупатели, отдавшие предпочтение такому варианту.
Сотрудники компании помогут воплотить все пожелания. Перед тем, как разработать проект будущей мебели, в помещении делаются замеры. По полученным данным определяются оптимальные размеры будущей мебели, чтобы она идеально стала в выбранное место.
Наполнение внутри, количество отделений, виды ящиков и полочек подбираются с учетом конкретных пожеланий клиента. Благодаря этому внутри можно разместить все что угодно.
Гардеробная система канзас сделает хранение вещей наиболее комфортным, поскольку внутри для этого все тщательно продумано. А также поиск необходимых вещей будет простым и легким.
Гардеробные достаточно универсальны и могут быть практически в любой комнате. Отличия в них касаются не только назначения, но и площади, форме
Обращая внимание на все эти нюансы, выбирается модель идеально подходящая под все условия
Сочетание характеристик конкретной Гардеробной системе канзас решает ее конечную стоимость. При производстве на заказ, конструкция будет сделана грамотно и удобно, учитывая все требования, но также и доставят мебель, монтаж, что избавляет от возможных проблем при эксплуатации. Выбирая весь комплект услуг, достигается максимальная экономия времени и удобство.
Гардеробная система классического вида
Покупатели, желающие упорядочить пространство, стремятся выбрать варианты мебели, которая органично впишется в интерьер комнаты. Гардеробные системы «Леруа Мерлен» изготавливаются с учетом современных тенденций и модных течений. Но приверженцам классического стиля отчаиваться не стоит, ведь и для них предусмотрены достойные экземпляры. Несколько шкафов, объединенных в общую конструкцию при помощи стяжек, гармонично вольются в общую картину. Для изготовления используются МДФ или ДСП, позволяя сэкономить при покупке. Потребитель может подобрать предпочитаемый цвет.
Для помещений со скромным метражом идеально подойдет гардеробная система «Канзас» «Леруа Мерлен», отзывы о которой у покупателей положительные, ведь она компактна, удобна и легко монтируется, а цена от 2670 рублей придется по нраву любой хозяйке. Предполагаемая высота штанги составляет 2 м, на нее крепится корзины для белья. В конструкции располагаются три секции с шириной до 2,4 м и глубиной до 30 см. Полки для зонтов, перчаток, шапок и шляпок, вешалки для короткой и длинной верхней одежды. Нижний ярус применяется для хранения обуви.
Комплектующие элементы гардеробной системы
Владельцы подобных конструкций с легкостью спланируют расположение компонентов так, чтобы персональные потребности каждого члена семьи были удовлетворены. Можно приобрести готовые гардеробные системы “Леруа Мерлен” или купить по отдельности необходимые хозяину элементы. Производители позаботились о том, что со временем, ощутив потребность, владельцы дополнили мебель необходимыми составляющими.

- Стеллажи из металла, дерева, пластика и стекла. Покупатель заказывает нужное количество и размеры полок.
- Полки, заказываемые отдельно от стеллажей. Материал используется разнообразный, а размеры указывает сам заказчик. Особенно востребованы трансформирующиеся варианты из-за удобства и широких функциональных возможностей, пользующихся популярностью.
- Штанги, корзины, ящики и вешалки разнообразных габаритов, разрешающие поместить детали в гардеробы всевозможных размеров. В системе найдется место для хранения не только для вещей, но и для детских игрушек, инструментов.
- Двери с раздвижным механизмом, позволяющие экономить пространство и органично вписаться в интерьер, оформленный в любом стиле. Для изготовления используют древесный массив, пластик, стекло, зеркальные поверхности. Каждый из перечисленных вариантов способен привнести нотку оригинальности в интерьер.
Упорядочьте пространство с гардеробными системами
Определившись с местом, где должны храниться вещи, владелец жилплощади подыскивает подходящие варианты конструкций, которые соберут в одном месте брюки, платья, нижнее белье, чулочно-носочные изделия. Рассматривая предлагаемые современные разработки, призванные внести порядок в помещение, покупатели отмечают гардеробные системы «Леруа Мерлен», где вешалки, корзины, стеллажи, предназначенные для складывания вещей в аккуратные стопочки, помогают хранить предметы на своем месте.
Блоки грамотно организуют пространство, позволяя компактно расположить все необходимое, рационально используя каждый сантиметр площади.
Техническое наполнение гардеробной
Просто выделения части помещения под гардеробный элемент недостаточно. Необходимо грамотно его распланировать и учесть определенные особенности. К примеру, можно установить зеркало в полный рост.
Штанги и пантографы
Штанга – это один из основных элементов. Для длинных предметов гардероба высота штанги должна составлять 1,7 м. Для рубах, пиджаков, блуз требуется размещение в 1 метр.
Пантографом называется штанга с особым механизмом, который позволяет опускать конструкцию на необходимую высоту. Изделие довольно удобно для хранения коротких вещей, когда было решено задействовать полностью стенку.
Полки
Не каждая спальня позволяет установить большие полки, поэтому нужно учесть их оптимальный размер:
Глубина 600 мм, высота – 300-350 мм, ширина – 500-600 мм. При этой ширине можно разместить два ряда вещей стопками высотой не больше 300 мм.
Высота полок для обуви составляет 150-250 мм. Но нужно помнить о сапогах, чаще всего они не вписываются в эти габариты, потому стоить выделить им специальную полку.
Сетчатые корзины
В сетчатых корзинах можно хранить любые мелочи, журналы, фото, швейные принадлежности и т.д. Сегодня для шкафов изготавливаются коробки различных расцветок и размеров. За счет этого не пропадет ни один сантиметр.
Также сетчатые корзины особо удобны для укладки постельного белья.
Выдвижные ящики
Применяются для хранения нижнего белья и различных аксессуаров. Установив в них разделители и упорядочив мелочевку, получится избежать хаоса и снизить время, которое тратится на поиск необходимого предмета.
Специальные аксессуары
Эти изделия зачастую применяются, чтобы хранить брюки или юбки. Можно закрепить ряд крючков для сумочек и зонтиков. Если квартира позволяет, то в большом помещении можно дополнительно установить различные подставки под шляпы, кепки, панамы. Для ремешков и галстуков изготавливают специальные крепежи.
Освещение и вентиляция
При организации осветительной системы нужно учесть следующие правила:
- предпочтение лучше всего отдать маленьким потолочным светильникам – большая люстра сделает компактную гардеробную еще меньше;
- освещение обязано быть довольно ярким, чтобы можно было легко отыскать требуемую вещь.
Вентиляция обеспечивается следующими способами:
монтаж вытяжного вентилятора;
периодическое проветривание;
устройство приточно-вытяжной вентиляционной системы, но это дорогостоящее мероприятие.
Гардеробная система классического вида
Покупатели, желающие упорядочить пространство, стремятся выбрать варианты мебели, которая органично впишется в интерьер комнаты. Гардеробные системы “Леруа Мерлен” изготавливаются с учетом современных тенденций и модных течений. Но приверженцам классического стиля отчаиваться не стоит, ведь и для них предусмотрены достойные экземпляры. Несколько шкафов, объединенных в общую конструкцию при помощи стяжек, гармонично вольются в общую картину. Для изготовления используются МДФ или ДСП, позволяя сэкономить при покупке. Потребитель может подобрать предпочитаемый цвет.

Элементы гардеробной системы
Каждая конструкция независимо от того, к какому типу она относится, включает в себя или может включать следующие элементы:
Стеллажи. Могут быть изготовлены из различного материала: металла, пластика или ДСП. Размер определяется только пожеланиями заказчика.
Полки. Также могут быть изготовлены из различного материала и любого размера.
Ёмкости для хранения. К ним относятся выдвижные ящики и корзины.
Штанги. Изготавливаются из металла и в зависимости от пространства имеют различную длину.
Раздвижные двери. Официально элемент не относится к гардеробным системам компании Леруа, но с их помощью можно скрыть гардеробную систему от посторонних глаз. Заказчик сам определяет, из какого материала будут изготовлены двери. Установка дополнительно зеркал на поверхность дверей визуально расширяет помещение.
О системе
«Канзас» — отличная альтернатива традиционной мебели, позволяющая хранить одежду, обувь и аксессуары. Это тщательно продуманная система, включающая в себя различные выдвижные ящики, полки и вешалки. Элементы конструкции отличаются размерами и располагаются так, чтобы вы могли легко разместить все необходимые вещи.

Гардеробная система «Канзас» – отличное решение для обладателей небольших квартир. Вместо покупки громоздкого шкафа хозяева могут оборудовать под гардеробную небольшую кладовку или нишу в стене. К тому же, стоимость такой системы значительно меньше аналогичного предмета мебели. Понравится этот вариант и тем, кто хочет навести порядок на даче.


Таким образом, преимущества гардеробной системы очевидны.
- функциональность
- экономия пространства
- бережное и рациональное хранение вещей
- доступная стоимость

Відгуки
Більшість власників вбиральні системи «Канзас» задоволені придбанням. Вони відзначають простоту установки і надійність закріплення конструкції. Деякі звертаються для складання системи до фахівців, але багато легко справляються самі. Судячи з відгуків, зібрати «Канзас» можна за пару годин.


Власники нової вбиральні задоволені місткістю системи, а також можливістю розташування полиць і інших елементів на потрібній висоті. Залежно від особистих побажань і розміру приміщення можна сконструювати «Канзас» за індивідуальними параметрами.


Незважаючи на крихкий зовнішній вигляд, конструкція надійна і довговічна. Навіть через кілька років використання, вона відмінно виконує свої функції, зберігаючи міцність і зовнішню привабливість.

Полки витримують не тільки легкий одяг, але і ковдри, постільна білизна, сумки та інші речі. При цьому матеріал конструкції не прогинається і не деформується.

Ще одним плюсом покупці вважають доступну вартість системи. Навіть люди з обмеженим бюджетом можуть дозволити собі такий зручний і красивий спосіб зберігання речей.

Системы хранения вещей для гардеробной: основные типы конструкций
Основными видами конструкций можно назвать:
- Каркасные;
- Панельные;
- Сетчатые;
- Модульные комплексы.
Каждый из этих видов имеет свои особенности, достоинства и недостатки, не остановиться на которых нельзя. Рассмотрим их более подробно.
Каркасные системы для хранения одежды
По конструкции этот вид представляет собой металлические стойки, которые крепятся враспор между полом с потолком, и стенами. На распорки-направляющие монтируются комплектующие (штанги), которые образуют необходимые места для хранения. Каркасная система хранения вещей в гардеробе считается наиболее простой как по конструктивным особенностям, так и в монтаже.
Такая конструкция для хранения вещей устанавливается довольно просто
Положительными качествами этого вида можно назвать возможность изменения высоты и ширины полок, а также хорошую вентиляцию вещей. Такие конструкции можно расположить в отдельном помещении либо вдоль стены в прихожей. Однако в этом случае нужно будет продумать установку раздвижных дверей-купе для того, чтобы одежда на полках не была на виду.
Панельный вариант для складирования вещей и одежды
Такие системы хранения вещей в гардеробной не имеют пола и потолка. Основная нагрузка здесь приходится на декоративную панель, закрепленную на стене, на которую, при помощи специальных зацепов, монтируются полки.
Удобство конструкции в том, что полки можно в любой момент отрегулировать по высоте, а декоративная панель, являющаяся несущей, поможет скрыть возможные дефекты стены. Из минусов – довольно высокая цена и необходимость использования только оригинальных комплектующих. Изделия подобного рода другой фирмы-производителя могут не подойти по размеру или способу крепежа.
Размеры гардеробных могут быть достаточно большими
Сетчатая гардеробная система и ее особенности
Сетчатые системы для гардеробных отличаются малым весом и удобством использования. У них так же есть возможность довольно простой регулировки размера или высоты полок. При этом сами полки изготавливают из проволочной сетки, за счет чего достигается малый вес и достаточно хорошая вентиляция. Вертикальные стойки, на которых фиксируются полки, имеют возможность передвижения по горизонтальным рельсам, закрепленным под потолком и на полу. Вследствие этого появляется возможность отодвинуть весь ряд стеллажей в сторону, если его расположение создает неудобство.
Отрицательные моменты те же, что и у предыдущего варианта: необходимость использования только оригинальных комплектующих, довольно высокая стоимость.
Сетчатые конструкции довольно удобны в использовании
Модульные комплексы: некоторые нюансы их использования
Самая известная конструкция, популярность которой принесла ее доступность. Это нестареющая классика. Ведь известно, что ко всему новому человек относится с подозрением (особенно первое время). Модульные системы являются довольно привычными.
Это стационарные конструкции, чаще всего из ДСП, не дающие возможности изменить ширину полок. Вертикальные перегородки зафиксированы плотно, являясь одновременно ребрами жесткости. По высоте полки можно переставлять в любое место. Такие системы можно без особых проблем изготовить своими руками. Для этого не нужно обладать какими-то особыми знаниями или навыками. Достаточно уметь держать в руках ножовку, дрель и уметь пользоваться рулеткой. Нельзя сказать, что работа эта будет элементарной, но она вполне выполнима домашним мастером.
К модульным системам можно отнести внутренние ящики в диванах или креслах. Это довольно удобные места для хранения постельных принадлежностей или вещей, не требующихся в тот или иной сезон.
Модульные конструкции – нестареющая классика
На что обратить внимание при выборе
После того, как было решено, что вместо шкафа будет использоваться хранение вещей в гардеробной, необходимо определиться с ее типом. Чтобы подобрать именно тот вариант, который идеально впишется в интерьер и будет соответствовать всем требованиям хозяев, необходимо соблюсти следующие критерии.
Выбирать систему хранения вещей для гардеробной конструктор нужно со всей ответственностью, потому что от этого зависит удобство расположения одежды, вещей и обуви. Конструктор этих систем допускает всякое место для оборудования гардеробной. Примером может служить шкаф-купе, который лучше всего обустроить в прихожей. Наличие гардеробной комнаты позволяет избавить жилые комнаты от массивных шкафов и собрать все вещи в одном месте.
Выбирать систему хранения вещей для гардеробной конструктор нужно со всей ответственностью, потому что от этого зависит удобство расположения одежды, вещей и обуви
Системы для хранения и модули в основном выпускаются в нескольких вариациях:
- корпусные;
- панельные;
- каркасные;
- сетчатые (сотовые).

Корпусный конструктор – это устройство модулей для гардеробной комнаты, которая состоит из секций, имеющих боковые, нижние и верхние стенки. Эти секции ставятся близко к нескольким либо одной стене помещения. В единый комплекс они скрепляются стяжками. Для их изготовления используется ДСП. Плюсами считаются:
- внушительный внешний вид;
- широкий ассортимент расцветок;
- доступные цены.

Есть и минусы, один из которых заключается в том, что такая мебель занимает свободную территорию, переставить ее на другое место не получится.

Элементы гардеробной Elfa
1 – Несущий рельс для гардеробной Эльфа
Несущий рельс гардеробной Эльфа закрепляется горизонтально к стене, подробнее о креплении несущего рельса читайте в инструкции по сборке гардеробной Эльфа. Длина рельса от 82 до 195см.
![]() |
|---|
| Рис. 3. Несущий рельс Эльфа |
2- Навесная направляющая, устанавливаемая на несущий рельс, для гардеробной Эльфа
Навесная направляющая устанавливается на несущий рельс, дополнительного крепления с помощью дюбелей к стене не требуется. Длина направляющих 90, 120, 153, 200, 230 см.
![]() |
|---|
| Рис. 4. Навесная направляющая Эльфа |
Настенная направляющая, которая крепится к стене, для гардеробной Эльфа
Настенная направляющая, которая крепится к стене, а не к рельсу выпускают длиной 31,6, 63,6, 96,6, 127,6, 160, 191,6, 223,6, 240 см. Направляющие позволяют без привязки к рельсу навешивать полки, корзины на стенах.
![]() |
|---|
![]() |
|---|
| Рис. 5. Настенная направляющая Эльфа |
3 – Кронштейн для полок гардеробной Эльфа
Кронштейн для полок крепится к навесной направляющей. Кронштейны есть как для проволочной полки, так и для полки из ДСП. Кронштейны выпускают для полок ДСП шириной 12,17,22, 32, 37, 47, 57 см. Кронштейны для проволочных полок шириной 32, 42, 51 см.
![]() |
|---|
| Рис. 6. Кронштейн для полки ДСП |
![]() |
|---|
| Рис. 7. Кронштейн для проволочной полки |
![]() |
|---|
| Рис. 8. Кронштейн с крючком и пазом для подвески |
4 – Проволочная полка для гардеробной Эльфа
Проволочная полка закрепляется на кронштейны. Проволочные полки выпускают глубиной 30, 40, 50 см и шириной 60, 90, 121, 181 см.
![]() |
|---|
| Рис. 9. Проволочная полка Эльфа |
5 – Выдвижная рамка для корзин в гардеробную Эльфу
В выдвижную рамку для корзин устанавливаются мелкосетчатая или обыкновенная корзина. Корзину, установленную в такую рамку можно выдвигать.
6 – Мелкосетчатая корзина в гардеробную Эльфа
Сетка в такой корзине очень мелкая, что позволяет хранить мелкие предметы. Корзину ёще называют mesh корзина. Выпускают корзину Эльфа на 1,2, 3 рельса и шириной 35, 45, 55 см. Стоят мелкоячеистые корзины примерно в два раза больше чем обыкновенные корзины, два варианта по глубине на 54 см и 44 см в соответствии с глубиной стеллажа.
![]() |
|---|
| Рис. 9. Мелкосетчатая корзина Эльфа |
7 – Брючница для гардеробной Эльфа
Брючница закрепляется на кронштейнах, выдвигается, что удобнее, чем неподвижная брючница.
![]() |
|---|
| Рис. 10. Брючница для гардеробной Эльфа |
8 – Полка корзина для гардеробной Эльфа
Полка корзина это корзина с невысокими бортами, закреплена на кронштейнах, подойдет для хранения всякой мелочи. Полки корзины продают шириной 60, 90 см и глубиной 30, 40 см.
![]() |
|---|
| Рис. 11. Полка корзина Эльфа |
9 – Сетчатая корзина для гардеробной Эльфа
Сетчатая корзина это выдвижная корзина, которая устанавливается в стеллаж. Корзины выпускают на 1, 2, 3 рельса, шириной 25, 35, 45, 55 см, то есть по ширине поперечин. По глубине 2 типа корзин – стандартная 54 см и так называемый мини – 44 см. высота 80, 180, 280 мм.
![]() |
|---|
| Рис. 12. Сетчатая корзина Эльфа |
Подвеска для штанги крепится к кронштейну снизу и удерживает штангу на месте.
![]() |
|---|
| Рис. 13. Подвеска для штанги Эльфа |
Штанги для плечиков разной длины, устанавливаются в подвески для штанг.
![]() |
|---|
| Рис. 14. Штанга для плечиков Эльфа |
12 – Боковины для корзин в гардеробную Эльфа
Боковины для корзин Elfa выпускает разной высоты и глубины, можно набирать нужную высоту, состыковав боковины с помощью Т поперечин.
Боковина стеллажа на 4 рельса выпускают высотой 44 см, на 7 рельсов высотой 74 см, на 10 рельсов высотой 104 см. Боковины выпускают стандартной глубины на 54 см и вариант мини глубиной 44 см.
![]() |
|---|
| Рис. 15. Боковина для корзин Эльфа |
13 – Поперечины для боковин стеллажа в гардеробную Эльфа
Поперечины для соединения боковин стеллажа между собой выпускают шириной 25, 35 ,45, 55 см. Комплект состоит из 4 шт. L и T поперечин.
![]() |
|---|
| Рис. 16. Поперечины для стеллажа Эльфа |
У Вас много обуви? К Вашему вниманию решения для хранения вашей многочисленной обуви с использованием элементов наполнения от Эльфа, интересная статья для применения в жизнь. |
14 – Обувница для гардеробной Эльфа
Обувница крепится непосредственно к навесной направляющей. Устанавливаете нужное Вам количество обувниц по высоте.
![]() |
|---|
| Рис. 17. Обувница для гардеробной Эльфа |
15 – Полка для обуви/бутылок в гардеробную Эльфа
Полка для обуви/бутылок выдвижная устанавливается в стеллаж, аналогично выдвижным корзинам. Выпускают полки шириной 25, 35, 45, 55 см для стеллажа глубиной 54 см.
![]() |
|---|
| Рис. 18. Полка для обуви/бутылок Эльфа |
Гардеробную можно дополнить многочисленными аксессуарами, которые сделают использование гардеробной Elfa более удобным. Разберем более подробно дополнительные аксессуары от Elfa.
Сетчатые гардеробные системы “Леруа Мерлен”
В коллекции компании в числе предлагаемых конструкций особое внимание отводится сотовому варианту организации отведенного для хранения вещей пространства

Сетчатые полки и корзины при помощи направляющих крепятся кронштейнами к стене, создавая эффект воздушности сооружения. На полу ничто не помешает уборке, ведь ножки отсутствуют. Но своеобразное «парение в воздухе» элементов — не единственная особенность модели. Ценится удобство от размещения полок и корзин в последовательности, учитывающей особенности помещения и пожелания владельцев. Гардеробная система “Леруа Мерлен”, фото которой предложено в каталоге компании, разрешает при необходимости убрать или переместить модуль без ущерба для конструкции. Приобретая модель, продвинутые люди смогут воплотить свои фантазии и продемонстрировать индивидуальность. Трансформация экземпляра привлекательна и актуальна для комнат с разнообразным метражом, она позволяет обладателям реализовать смелые проекты.
Гардеробная система
Полка GS 1203*306
Ширина: 1203 мм.Глубина: 306 мм.
704 р.
Полка GS 1203*406
Ширина: 1203 мм.Глубина: 406 мм.
869 р.
Полка GS 603*306
Ширина: 603 мм.Глубина: 306 мм.
357 р.
Полка GS 603*406
Ширина: 603 мм.Глубина: 406 мм.
430 р.
Полка GS 903*306
Ширина: 903 мм.
531 р.
Полка GS 903*406
Ширина: 903 мм.Глубина: 406 мм.
658 р.
Полка GS 597*327
Ширина: 597 мм.Глубина: 327 мм.
399 р.
Полка GS 597*427
Ширина: 597 мм.Глубина: 427 мм.
501 р.
Полка ЛДСП 587х330 мм
Размер: 587х330 ммМатериал: ЛДСП
478 р.
Полка ЛДСП 587х430 мм
Размер: 587х430 ммМатериал: ЛДСП
551 р.
Полка ЛДСП 887х330 мм
Размер: 887х330 ммМатериал: ЛДСП
642 р.
Размер: 887х430 ммМатериал: ЛДСП
746 р.
Вешалка для брюк, 605 х 428
Размер: 605 х 428 мм.
993 р.
Выдвижная корзина563х440х85 мм
Размер: 563х440х85 мм
1 352 р.
Выдвижная корзина563х440х181 мм
Размер: 563х440х181 мм
1 590 р.
Выдвижная корзина863х440х85 мм
Длина: 17 мм.Диаметр: 25,5 мм.Вес: 3,7 г.
2 231 р.
Выдвижная корзина863х440х181 мм
Длина: 17 мм.Диаметр: 25,5 мм.Вес: 3,7 г.
2 622 р.
Стационарная корзина603х440х85 мм
Размер: 603х440х85 мм
567 р.
Стационарная корзина903х440х85 мм
Длина: 17 мм.Диаметр: 25,5 мм.Вес: 3,7 г.
908 р.
Полка для обуви 604х406 мм
Размер: 604х406 ммМатериал: металл
389 р.
Полка для обуви 904х406 мм
Длина: 17 мм.Диаметр: 25,5 мм.Вес: 3,7 г.
621 р.
Разделитель корзины400х85 мм
Размер: 400х85 мм
107 р.
Рельс GS 1000
Размеры: 1000х42х11 мм.
233 р.
Рельс GS 1560
Размеры: 1560х42х11 мм.Вес: 973 г.
357 р.
Стойка GS 1152
Размеры: 1152х32х34 мм.Вес: 1,2 кг.
249 р.
Стойка GS 1536
Размеры: 1536х32х24 мм.Вес: 1,5 кг.
320 р.
Стойка GS 1920
Размеры: 1920х32х34 мм.Вес: 1,8 кг.
409 р.
Штанга GS 640
Длина: 640 мм.Диаметр: 25 мм.
115 р.
Штанга GS 940
Длина: 940 мм.Диаметр: 25 мм.
146 р.
Длина: 1200 мм.Диаметр: 25 мм.
186 р.
Штанга GS 1800
Длина: 1800 мм.Диаметр: 25 мм.
277 р.
Стойка GS 1025
229 р.
Заглушки
Длина: 17 мм.Диаметр: 25,5 мм.
53 р.
Кронштейн GS 335
Размеры: 335x60x13 мм.Вес: 252 г.
112 р.
Кронштейн GS 435
Размеры: 435x73x13 мм.Вес: 390 г.
145 р.
Кронштейн дляперекладины
Размеры: 101х31х30 мм.
20 р.
Соединитель
Длина: 38 мм.Диаметр: 25,5 мм.
51 р.
Системы хранения вещей для гардеробной: основные типы конструкций
Гардеробная комната может быть устроена в отдельной комнате, в нише или кладовке, а также отделена от основной комнаты легкой перегородкой. Но какой бы ни была планировка гардеробной, пространство ее должно быть максимально оснащено элементами и аксессуарами для хранения вещей. Именно от внутреннего наполнения зависит функциональность современной гардеробной.

Просторная гардеробная в отдельной комнате
Существуют различные системы хранения для гардеробных комнат. Основные конструкции можно разделить на несколько типов:
- корпусная система наполнения;
- панельный комплекс;
- каркасная конструкция;
- сетчатая (сотовая) система.
Корпусное наполнение гардеробной представляет собой конструкцию модульной гардеробной системы, состоящую из секций с боковыми, верхними и нижними стенками. Секции располагают вплотную вдоль одной или нескольких стен помещения и фиксируют стяжками в единый комплекс. Такую начинку изготавливают для гардеробных под заказ по индивидуальным размерам. Для производства используют ламинированные ДСП. К преимуществам относят демократичные цены гардеробных систем, большой выбор расцветок и презентабельный внешний вид.
Конструкции, которые состоят из декоративной панели с закрепленными на ней различными элементами хранения, называются панельными системами. Панель жестко закреплена к стене. Такие комплексы не имеют боковых разделителей, нет в них ни пола, ни потолка. Помимо функции хранения, панельные комплексы могут скрыть возможные дефекты стен, все их элементы можно передвигать или менять местами в зависимости от потребностей. Однако они довольно дорогие и могут быть совместимы только с оригинальными комплектующими для гардеробных систем, купить которые можно в комплексе с панелями.

Маленькая гардеробная в мансардном помещении
Стальные сетчатые модули на рельсах довольно универсальный тип комплексов хранения. Они представляют собой несущий рельс, прикрученный горизонтально к стене. К нему крепятся направляющие рейки, к которым фиксируют кронштейны для размещения корзин, полок и вешалок. Форма и длина реек для сетчатой гардеробной металлической системы зависит от используемых элементов. Такой комплекс довольно устойчив: одиночная направляющая способна выдержать нагрузку в 300 кг.
Установка гардеробной системы
Покупатель вправе заказать сборку мебели специалистами магазина или осуществить своими руками. Во втором случае для этого потребуется:
- Уровень.
- Дрель. Если предполагается, что конструкция будет крепиться к стенам, изготовленным из дерева, то дрель не требуется.
- Шуруповёрт.
- Отвертка с крестовым наконечником.
- Молоток.
- Рулетка.
- Стремянка.
- Карандаш.
Первым делом к стене крепятся основания, затем устанавливаются направляющие и кронштейны, после чего на получившейся «скелет» конструкции добавляются необходимые элементы: полки, штанги и прочие.
В заключение стоит отметить, что при выборе системы хранения вещей для гардеробной важно, чтобы конструкция не только соответствовала общему интерьеру помещения, но и подходила по размеру и функциональным параметрам. К счастью легкость монтажа своими руками, взаимозаменяемость компонентов и возможность в любой момент дополнить систему новыми элементами позволяет собрать ту гардеробную, которую хочет получить покупатель

Сборные конструкции для хранения вещей – гениальное изобретение, позволяющее рационально использовать пространство любых помещений. Одна из разновидностей таких комплексов – гардеробная система «Канзас», пользующаяся большой популярностью.






















































