Как самостоятельно сделать встроенный шкаф своими руками?
После того, как было выбрано место, материал для фасада, а также внутреннее наполнение шкафа, можно приступить к разработке чертежа. Лучше всего остановить свой выбор на чем-то простом и в то же время практичном. Делать чертеж необходимо, исходя из размеров самой комнаты. В каждой квартире могут быть свои изъяны, связанные с искривлениями стен и пола, поэтому обязательно надо постоянно подгонять и измерять несущие элементы, чтобы, в конечном счете, всё получилось ровно и красиво.
Поскольку встроенный шкаф отличается от обычного, то к нему нужен особый подход. Крепление к стене может быть при помощи кронштейнов или обычными плинтусами. Правда второй вариант может выглядеть не очень аккуратно и выделяться, но зато стоит гораздо дешевле.
Подвеска дверей может производиться тремя способами: при помощи верхнего и нижнего рельса, а также монорельса. Самым оптимальным вариантом является нижняя конструкция. Делается легко и просто, при этом стоит недорого. Ролики также следует выбирать особо тщательно, чтобы они были прочные и могли удерживать весь вес дверцы. Обязательно необходимо установить стопоры для дверей, чтобы они при каждом использовании, не бились о шкаф.
Если соблюдать все эти правила, то можно просто и быстро сделать встроенный шкаф самостоятельно
Важно помнить о том, что здесь нет каких-либо инструкций, которые могут подойти всем. Каждая конструкция получается индивидуальная с учетом особенностей самой комнаты
Можно пользоваться общепринятыми основными правилами и применять их для своего проекта.
https://youtube.com/watch?v=_7o11mBSqZU
Подробная инструкция о том, как сделать встроенный шкаф для ниши из гипсоволокнистого листа. И какая разница между ГКЛ и ГВЛ?
Все подробности о расположении встроенного шкафа, оформлении его фасада, внутреннем наполнении помогут самостоятельно изготовить подобную конструкцию. Главное соблюдать некоторые правила и следить за техникой безопасности, чтобы процесс изготовления приносил только удовольствие.
Пошаговый план изготовления
Алгоритм установки встроенных шкафов любого типа аналогичен.
Первый шаг — определение места для шкафа. Необходимо учитывать размеры и форму спальни; расположение мебели, окон, дверей, ниш, выступов, а также планируемый объём наполнения (полезный объём). Затем подобрать тип шкафа. Встроенной считается конструкция, в которой стена помещения играет роль задней стенки и хотя бы одной боковой стенки шкафа. С учётом этого условия предлагаю встраивать в нише, на всю стену, от стены до дверного или оконного проёма. Особо хочу отметить угловой вариант. На первом этапе определяют материал. Самые популярные: дерево, фанера, гипсокартон, ДСП, МДФ, ДВП, пластик, стекло. Работу существенно упрощают уже готовые мебельные щиты. Из современных материалов интересны такие разновидности стекла, как лакомат и лакобель.
Проведение тщательных замеров спальни. Опираясь на них, рассчитайте параметры шкафа: высоту, ширину, глубину. Они будут основополагающими при построении чертежа. Не стоит забывать о соответствии шкафа обстановке и обеспечении удобных проходов.
Составление плана использования полезного объёма шкафа. На основании его в дальнейшем проводится зонирование внутреннего пространства.
Проектирование шкафа. За основу могут приниматься собственные идеи или готовые проекты, в том числе и из интернета. Вначале составляют схему расположения конструкции, а затем разрабатывают детальные чертежи. Простые проекты можно сделать самому с учётом рекомендаций профессионала. Сложное проектирование (особенно при использовании дорогих материалов) я, например, доверяю специалистам. На этом этапе нужно рассчитать прочностные характеристики и провести оптимальное зонирование внутреннего пространства шкафа.
Подготовка материалов и комплектующих
Важно точно по чертежам распилить листовые материалы. Эту операцию самостоятельно можно проводить только при определенных навыках
Если уверенности нет или отсутствует место для работы с габаритными элементами, то рисковать не советую. Распилку могут сделать специализированные фирмы. При подготовке материалов не стоит забывать о фурнитуре.
Подготовительные работы. Перед монтажом подготавливают место установки: стены тщательно очищают, выравнивают, а также осуществляют финишную отделку. Рабочая зона должна быть освобождена от всего, что мешает.
Монтаж, сборка. На этой стадии определяют основные шаги: монтаж каркаса, крепление полок, установку дверей. Он них зависят качество сборки и надёжность конструкции. Установка индивидуального освещения (по желанию).
Завершающей стадией работ является финишная отделка и декорирование. В окончательном виде шкаф должен соответствовать по дизайну общему оформлению спальни.
Установка корпуса
Подвеска дверей – особенности разных систем
Существуют системы подвески, где две направляющие, и с монорельсой. Система, опирающаяся на нижнюю рельсу, получила наибольшее распространение. Верхняя рельса служит только для поддержки дверей. Система не заедает, исключается касание створок. Монтировать просто: верх вставляем в паз, приподнимаем, низ ставим на место.
Система с опорой на верхнюю направляющую несложная, фурнитура дешевая, монтаж простой. Передвижение створок тихое и плавное. Имеет существенные недостатки, поэтому мало применяется
При неосторожном нажатии на дверку возможен выход роликов из пазов, дверь уходит внутрь шкафа. Верхняя направляющая не обладает большой жесткостью, требуется идеально ровный потолок и надежное крепление. Двери по направляющим
Двери по направляющим
В монорельсовой системе каждая дверь ходит на парных роликах по отдельным рельсам. Они удерживают в определенной степени дверцы от шатания, нижняя направляющая не используется. Подвес точный, жесткий, хорошо регулируется. Но устанавливают монорельс преимущественно в спальню, где шкафом будут пользоваться только взрослые, так как обращение с подобной системой требует аккуратности.
Поиск подходящего места и создание эскиза
Казалось бы, всё просто, бери пустой угол и ставь туда шкаф из гипсокартона, но это не так. Обычно при ремонте люди уже примерно знают, что и в каком месте будет находиться. Нужно заранее продумать в голове все габариты конструкции, не забывая учитывать толщину стенок и полок.
Что до самого места, то это может быть как кладовка, так и стена в комнате. Причем самое оптимально, это прижимать шкаф к углу. Можно сделать компактную угловую конструкцию, но лучше выделить достаточно места, чтобы было куда деть все вещи.
Эскиз можно делать в специальных компьютерных программах
Создавая эскиз готовящейся конструкции из ГКЛ, нужно продумать самые различные детали.
- Будет использована вся высота комнаты или нет. Первый вариант предпочтительней.
- Ширина на всю стену или только на её часть.
- Форма конструкции линейная или более вычурная.
- Полки будут иметь прямоугольную форму или нужно что-то более экстравагантное.
- Подбирая расстояние между полками, нужно просчитать их толщину.
- Какой глубины нужны полки и есть ли в комнате достаточно места для этого.
- Сколько будет сделано проемов.
- Где в шкафу будет установлена штанга с вешалками и будет ли она там вообще.
- Нужно проводить скрытую подсветку или это не обязательно.
Хороший вариант чертежа с указанием размеров
Придется провести замеры помещения, не забывая, что шкаф из гипсокартона будет делаться при помощи прямоугольного каркаса, в то время как после строителей ровные стены остаются крайне редко. Если будет сделан проект конструкции или её эскиз, то это значительно упростит дальнейшую работу.
Крепление каркаса
Перед тем как начать выполнять монтаж встроенного шкафа купе, был продуман алгоритм предстоящих действий. Мы подробно обсудили каждую операцию, что позволило предусмотреть все важные нюансы. Если у вас небольшой опыт изготовления мебели, рекомендую сначала посмотреть обучающие видеоролики. Их даже просматривают периодически специалисты. Они позволяют разработать индивидуальную инструкцию для сборки конкретной модели мебели.
Отличительная черта встроенного шкафа-купе – отсутствие полноценного каркаса. Его дном, стенами и потолком являются ограждающие конструкции ниши. При этом в состав такой мебели входит фальшпанель в виде рамы. Она используется для крепления направляющих дверей-купе.
Шкаф-купе без полноценного каркаса
Совет!
Если у ниши неровные ограждающие конструкции или расположены под уклоном, это нужно исправить. Иначе не удастся горизонтально закрепить направляющие. Из-за этого не получится пользоваться сдвигающимися дверцами.
Чтобы точно установить раму по горизонтали и вертикали, рекомендую использовать лазерный уровень и небольшие кусочки мебельных плит МДФ. Непосредственно саму раму нужно фиксировать саморезами. Она прикручивается к полу, стенам и потолку прихожей. Для декорирования зазоров советую подготовить фризы. Они представляют собой планки, которые выпиливаются из плит МДФ того же цвета, что и у других деталей мебели. Их фиксируют на клей или двухсторонний скотч.
Классификация по створкам
Виды дверей шкафов такие:

Раздвижные на жестком устройстве
По подвидам движения дверей есть изделия с роликовым механизмом, а также на почти незаметных монорельсах. Такими шкафами с роскошным дизайном забиты супермаркеты мебели.

Распашные двери – классика любых шкафов, тумбочек
Их почти не нужно ремонтировать, только смазывать навесы, чтобы не скрипели. Даже самые современные навесы, пропитанные графитной суперсмазкой, все равно когда-то заскрипят.
Подъемные дверцевые створки
Чаще это навесные шкафчики. Их недостаток – некачественная фурнитура, двигающая дверцу. Год работы — и покупайте новые движители.

Шкаф в нише своими руками: с чего начать
Прежде всего, нужно произвести замеры и обдумать, каких габаритов шкаф можно встроить в нишу стены и какая функциональная роль ему будет отведена. Во многом это определяется глубиной ниши. Например, под плечики гардеробного шкафа потребуется глубина не менее 600 мм. Нередко в такие ниши за дверью в прихожей «выносят» холодильники и стиральные машины – тут глубину шкафа надо «закладывать» как минимум 700мм. Для обычных же стеллажных конструкций с полками самая оптимальная глубина – это 450-500мм. Для книжных полок можно сделать и меньше.
Определяемся с внутренним наполнением для шкафа в нишу
Определившись с функцией встраиваемого в нишу шкафа, можно и начинать продумывать внутреннее наполнение.
Хотите сделать дополнительное рабочее место? Тогда все пространство до уровня рабочей поверхности можно заполнить неглубокими полками и шкафчиками. Столик можно сделать и откидным как секретер.
фото с pinterest.com
Нужен шкаф под одежду и обувь? В прихожей или коридоре, в неглубокую нишу стены можно встроить тумбу под обувь, открытые вешала с крючками. Или сделать полноценный плательный шкаф под верхнюю одежду, с полочками и ящиками для хранения головных уборов, перчаток, шарфов и других аксессуаров.
Для внутреннего наполнения шкафа в нишу можно использовать выдвижные ящики, корзины, различные системы хранения. Но все это будет вести к удорожанию изделия. В бюджетном исполнении шкаф в нишу своими руками можно сделать с одними полками и открытыми нишами под установку штанги для плечиков.
Выбор фасада: сделать встроенный шкаф-купе или распашной?
Шкаф в узкую нишу по ширине лучше оставить открытым или оснастить двумя или одной распашной дверцей. Дело в том, что раздвижная система купе позволяет только отодвинуть одну дверь за другую, а значит, доступ будет ограничен шириной фасада.
Также стоит поступить, если ниша для встроенного шкафа узкая по глубине. Для установки дверей купе нужен отступ в 100мм, а это значит, рабочая глубина самой мебели будет также меньше. Шкаф распашной в нишу своими руками можно сделать также с дверьми «гармошкой», если вам нравится такой вариант.
Какой материал будем использовать
Для домашнего мастера выбор материала основывается на доступности приобретения, наличия необходимого инструмента и навыка работы. Для изготовления шкафа в нишу стены своими руками можно использовать:
- Ламинированное ДСП. Большая часть бытовой и офисной корпусной мебели изготавливается из ДСП. Это, пожалуй, самый простой в обработке и сборке материал. Чтобы сделать шкаф в нишу своими руками в домашних условиях, удобнее всего заказать готовый распил деталей из ДСП с уже оклеенной кромкой по видимым торцам.
- Брус и фанеру. Мастера, привыкшие работать с деревом, предпочтут выбрать фанеру и брус для изготовления шкафчика в нишу. Из бруса собирают стеллажную конструкцию с перекладинами под полки. В качестве полок можно использовать не только фанеру, а любой листовой материал.
Гипсокартон. Если после ремонта остались обрезки профиля и листы гипсокартона, вполне возможно и его пустить в дело.
Мебельные щиты Леруа Мерлен. Отличная идея сделать шкаф в нише своими руками Леруа Мерлен, из так называемых мебельных щитов. Достаточно подобрать заготовки подходящей глубины и рассчитать количество деталей. Из одной заготовки можно, например, распилить несколько полок. Поэтому при проектировании лучше учитывать оптимальный расход материала, с меньшим числом отходов.
Этапы изготовления
Какой тип шкафа-купе лучше выбрать?

В зависимости от наличия или отсутствия стенок шкафа, такой вид мебели имеет несколько видов. Полное отсутствие боковых стенок, верхней и нижней части. Их полностью заменяют стены, пол и потолок комнаты (читайте, как правильно штукатурить потолок здесь). Полки в таком шкафу крепятся непосредственно к стенкам.
Рассмотрим особенности этой модели:
- затраты на изготовление такой мебели минимальны, ведь приобретать ДСП нужно только для полок;
- имеют большой внутренний объем.
Среди недостатков следует отметить лишь то, что такая встроенная модель шкафа-купе считается абсолютно нетранспортабельной. Перевезти ее в какую-либо другую квартиру не удастся.
Частичное или полное наличие стенок. Общая стоимость такого шкафа будет немного выше, чем у ранее рассмотренных моделей. Однако они имеют одно весомое преимущество – возможность транспортировки и установки в другом месте (иногда используются как обычные шкафы).
Все виды встроенных шкафов-купе могут иметь двери или быть без них. Это зависит от личных предпочтений каждого конкретного человека.
Необходимые материалы и инструменты
Встроенный шкаф — это весьма удобный предмет мебели. Иногда он создается с нуля, но чаще всего многие хотят просто переделать старый вариант в хрущевке. Шкаф изготавливают из нескольких видов материалов, отличающихся своими характеристиками. От конкретного выбора зависит то, как будут сделаны чертежи, какие потребуются инструменты и схемы сборки мебели. На данный момент применяются следующие виды сырья для изготовления встроенных шкафов:
- Дерево — материал не лучшим образом подходит для создания встроенного в нишу шкафа. Поскольку в этой области зачастую повышенная влажность, элементы из него могут деформироваться, из-за чего пострадает целостность конструкции. Использовать материал на основе дерева допустимо, если берется прямослойный вариант без дефектов, который выдержан и пропитан олифой либо эмульсией из воды и полимерных частиц.
- Вагонка — это более выгодный выбор, чем дерево, но ее лучше не использовать. Дело в том, что рамы для створок шкафа придется делать из влагочувствительных древесных элементов, а со временем они повредятся. Таким образом, вагонку используют, когда общий интерьер не приемлет иных вариантов.
- Гипсокартон — пригоден сугубо в качестве отделочного материала и для изготовления каркаса полок шкафов. Он тяжел и хрупок, поэтому несущие конструкции из него не получатся. Также нельзя устанавливать листы вертикально. Полки дополнительно шпаклюются, а каркас из ГКЛ должен выполняться из С- и U-профилей со штатными крепежами.
- Ламинат, а также МДФ и совсем простой ДВП — все эти материалы будут хороши для шкафа, встроенного в нишу. Они устойчивы к влажности, недорого стоят и из них легко образовать единую конструкцию.
ДеревоВагонкаГипсокартонМДФ
Кроме основного материала для встроенного шкафа нужно подготовить расходники:
- саморезы и дюбели для сборки каркаса и закрепления элементов;
- направляющие планки для дверей и механизма движения;
- двусторонний скотч;
- салфетки, пропитанные спиртовым составом, необходимые для снятия жирового слоя с рабочих поверхностей;
- фризы, устанавливаемые на направляющие;
- монтажные уголки;
- штангодержатели.
Из инструментов потребуются как устройства для скрепления каркаса и дополнительных элементов, так и измерительные приборы, позволяющие рассчитать размеры шкафа и сделать чертеж. Подготовить нужно отвертку, шуруповерт для более прочной закрутки, электролобзик, чтобы формовать элементы, молоток, дрель, уровень и рулетку (предпочтительнее будет технологичный дальномер).
Саморезы и дюбелиНаправляющая планка для дверейДвусторонний скотчСпиртовая салфеткаМонтажные уголкиШтангодержатель
Расположение шкафа-купе в помещении
Прежде чем приступить к созданию шкафа-купе своими руками в прихожую или в другую комнату, стоит продумать его расположение.
Если поставить гарнитур вдоль сплошной стены, то и сама мебель будет восприниматься, как стена. Лучше если шкаф будет до потолка. Двери могут быть зеркальными, что позволяет зрительно увеличить помещение.
Если вдоль стены разместить два одинаковых шкафа и оставить расстояние между ними, то получится альков. В получившуюся нишу можно поставить или . В гостиной альков может применяться для создания зоны с фальш-камином.
Практичным решением будет и установка гарнитура по краям дверных и оконных проемов. Над проемом можно установить антресоль. Шкаф может быть углублен в специально созданные ниши. Если позволяют размеры помещения, то можно небольших размеров.
В зависимости от определенного стиля оформления помещения не обязательно делать встроенные шкафы или маскировать их. Для стиля ретро, или глэм-винтаж громоздкая мебель только дополнит колоритный дизайн.
Необходимо правильно выбрать и механизм выдвижения для шкафа-купе. Он не должен быть шумным.
Детская
В детской комнате необходимо разместить множество вещей. Это сезонная одежда и обувь, детские игрушки, настольные игры и спортивный инвентарь. Кроме того, нужно найти место для книг, тетрадей и постельных принадлежностей.
Шкаф-купе представляет собой вместительный гарнитур, в котором можно разместить все вещи и предметы. Створки данного мебельного предмета раздвигаются в стороны, что занимает не так много места.
Учитывайте, что корпусная мебель подбирается для детей, поэтому полки должны быть на необходимой высоте
Важно, чтобы не было острых углов на торцах полок и стеллажей. Для каждой вещи необходимо отвести определенное место, так ребенок быстро приучится к порядку. Важно подобрать качественную фурнитуру, от этого зависит правильная регулировка дверей шкафа-купе
Двери не должны заклинивать и съезжать
Важно подобрать качественную фурнитуру, от этого зависит правильная регулировка дверей шкафа-купе. Двери не должны заклинивать и съезжать. Системы скольжения состоят из профиля и скользящей опоры
Роликовые механизмы могут быть осевыми или на подшипниках
Системы скольжения состоят из профиля и скользящей опоры. Роликовые механизмы могут быть осевыми или на подшипниках.
Выбор наполнения шкафа
Внутреннее наполнение помогает решить и какой будет компоновка. Не стоит секцию для верхней одежды размещать по центру, так как влага от нее может распространиться в стороны. Лучше расположить этот отсек сбоку. Ящики для постельного белья не рекомендуется размещать сразу над полом.
Как правильно скомпоновать элементы и как собрать шкаф-купе своими руками можно посмотреть в видео ниже:
Количество и размеры дверей, направляющие, ролики для шкафа-купе
Выбирая направляющие для шкафа-купе, особое внимание уделите материалу их изготовления. Самую низкую стоимость имеет пластиковый профиль, но он отличается небольшой надежностью и малым сроком службы. Лучшим решением будет использование комбинированных рельсовых направляющих, в которых опорная поверхность для роликов из металла
Лучшим решением будет использование комбинированных рельсовых направляющих, в которых опорная поверхность для роликов из металла.
Стальной профиль для дверей-купе обладает повышенной надежностью. Из алюминия делаются рельсовые опоры для мебели известных брендов.
Ролики делают из металла, так как пластик не отличается прочностью. Ролик содержит шарикоподшипниковый внутренний механизм, позволяющий свободно перемещать двери в горизонтальном направлении.
Сборка шкафа и двери купе своими руками
Предлагаем вам ознакомиться с процессом сборки шкафа-купе своими руками в таблице ниже:
Фото | Описание работ |
| Чтобы выполнить сборку шкафа-купе необходимо нанести разметку. Нужно отметить габариты шкафа по ширине и место расположения вертикальной стойки. Отмечаются высоты, на которых будут фиксироваться полки. | |
| Сверлим отверстия для дюбелей. | |
| Профиль надевается перед монтажом. | |
| Устанавливаем вертикальную стойку. | |
| Наносим разметку для антресольной полки и устанавливаем её. | |
| Устанавливается боковая стенка. | |
| Выполняется разметка под полки и их установка. | |
| Размечается по размеру и устанавливается штанга для одежды. | |
| Устанавливаются фальш-панели. | |
| Одна панель фиксируется в нижней части. | |
| Крепится опорная верхняя часть. | |
| С помощью шурупа фиксируется нижняя направляющая. | |
| Аналогично крепится и верхняя направляющая. | |
| Монтируются двери. |
Более наглядно процесс представлен в этом видеоролике:
Жесткий каркас и крепкое основание – условие устойчивости мебели
При недостаточной жесткости каркаса шкафы раскачиваются, и основной причиной этого является отсутствие ребер жесткости. Лист ДВП для задних стенок не может ее обеспечить. Добавляем поперечные стяжки из ДСП шириной 25 см в каждую секцию на разных уровнях, крепим конфирматами. Такое расположение обеспечит максимальную жесткость.
Неправильное расположение и недостаточное число опор приведет к деформации днища под нагрузкой. Чтобы этого избежать, опоры устанавливаем через 30–40 мм от каждой переборки. Шкаф купе можно установить на сквозных опорах высотой 25 мм с возможностью регулировки через отверстия в днище. Единственное неудобство – щель между днищем и полом, которая будет мусоросборником. Второй вариант – использование кухонных ножек высотой 100 мм.
Каркас для шкафа купе
Что собой представляют шкафы-купе
Шкаф-купе встроенного типа подразумевает специальную конструкцию для хранения личных вещей, оборудованную в нише. Часто в нем отсутствует задняя стенка, а основные детали крепятся к полу, потолку, боковым стенам помещения. Главное отличие от аналогов — раздвижной дверной механизм. Створки передвигаются по направляющим в обе стороны. В открытом состоянии не занимают полезную жилплощадь.
Пример углового шкафа-купе со снятыми дверями, задних стенок нет
Одна из положительных сторон самостоятельной сборки таких конструкций — экономичность. В большинстве случаев покупать материалы для каркаса не нужно. Для дверей и полок можно использовать недорогое сырье.
Помимо одежды за купейными дверями размещают технику, мини-кабинеты, целые гардеробные комнаты. Подобные шкафы широко используются для маскировки открытых коммуникаций, счетчиков и других изъянов постройки.
После закрывания дверей телевизор спрячется вместе с остальными вещами
Материалы
От текущего выбора будет зависеть и набор инструментов, которые вам в будущем будут нужны. Чертежи для изготовления встроенного шкафа тоже будут зависеть от выбранного материала.

Если говорить о материалах, то в первую очередь на ум приходит дерево. Это отличный материал для мебели, но не лучшее решение для встроенного шкафа. Все потому, что такой шкаф монтируется к глухой стене, чаще всего. Это повышает уровень влажности внутри шкафа, а когда дверь открывается, уровень влаги снаружи и внутри смешивается. Все это негативно влияет на древесину.
Решить это можно ее выбором
Нужно обратит свое внимание на качественное дерево, с прямыми слоями, в которых не будет никаких трещин и сучков


Говоря про материалы для встроенного шкафа, стоит вспомнить о простом ДВП. Материал привычный, подходит отлично, вариантов изготовления конструкций из него огромное множество. Не стоит брать тонкие листы, они быстро деградируют.

Еще я не сказал о вагонке и гипсокартонной конструкции. В случае с первым вариантом все равно будет потребность в дереве, которое опять же нужно будет дополнительно обрабатывать, иначе влага не позволит вам долго наслаждаться шкафом.

Во втором случае – забудьте. Материал достаточно тяжелый, при этом прочностью не отличается. Конструкции из него получаются ненадежными, а вертикально установленные части в скором времени начинают терять свою форму. Может сработать при внутренней отделке, или внешней, шкафа, в частности, если рядом стоит камин или печка.

Я не упоминал расходные материалы, такие как саморезы, дюбеля, направляющие и тому подобное. Тут уже все будет зависеть больше от ваших предпочтений при планировании шкафа.

Отдельно хотелось бы сказать, что не стоит сильно экономить, особенно на задней стенке. Если вы делаете шкаф-кладовку на месте ниши, то можно будет и обойтись стеной как задней частью шкафа.
Если вы планируете хранить в нем вещи – лучше возьмите еще несколько листов основного материала, и покройте ими заднюю часть. Как минимум, в эстетическом плане это будет огромнейший плюс. Кроме того, после сборки шкафа, вы навряд в ближайшие годы будете в нем что-то переделывать. Экономьте с умом.

Декорирование фасада
После окончательной сборки шкафа нужно провести финишную отделку, сделать освещение, чтобы использование хранилища было максимально комфортным. Как на внешних, так и на внутренних поверхностях не должно быть дефектов, ведущих к порче хранящихся предметов. Все острые шляпки саморезов требуется закрыть, никаких трещин, разводов, щелей быть не может.
Декорировать встраиваемый шкаф достаточно сложно, ведь основным украшением являются двери. На них навешиваются зеркальные полотна для удобства примерки вещей либо стекло, добавляющее света в комнате. Как вариант, поверхности могут разрисовываться, эскиз и расцветка подбираются под общий дизайн помещения.
Если встроенный шкаф большой, для него пригодится освещение. Его лучше предусмотреть заранее, чтобы вырезать в каркасе гнезда для размещения светильников, а также обозначить зазоры, через которые пойдет проводка. Для подсветки встроенной мебели подойдут светодиодные элементы. Они экономны и дают достаточно света для комфортного использования хранилища. Самым значимым нюансом является малый нагрев, деревянные детали и сами вещи не смогут загореться из-за перегрева.
В некоторых вариантах шкафов можно предусмотреть автоматическое включение света при сдвиге дверей или их открытии. Для этого в направляющей ставится датчик или переключатель, активируемый движением створки. Такая задумка позволит быстрее находить вещи и станет изюминкой хранилища.
Встроенный шкаф можно изготовить своими руками, но при соблюдении условий: должен быть составлен качественный чертеж, найдены правильные элементы. Такая работа требует подготовки, поэтому при неуверенности в своих силах следует выбирать мастеров. Порой это дешевле, ведь ошибки влекут за собой ремонт встроенного шкафа, на который требуются не только деньги, но и время.
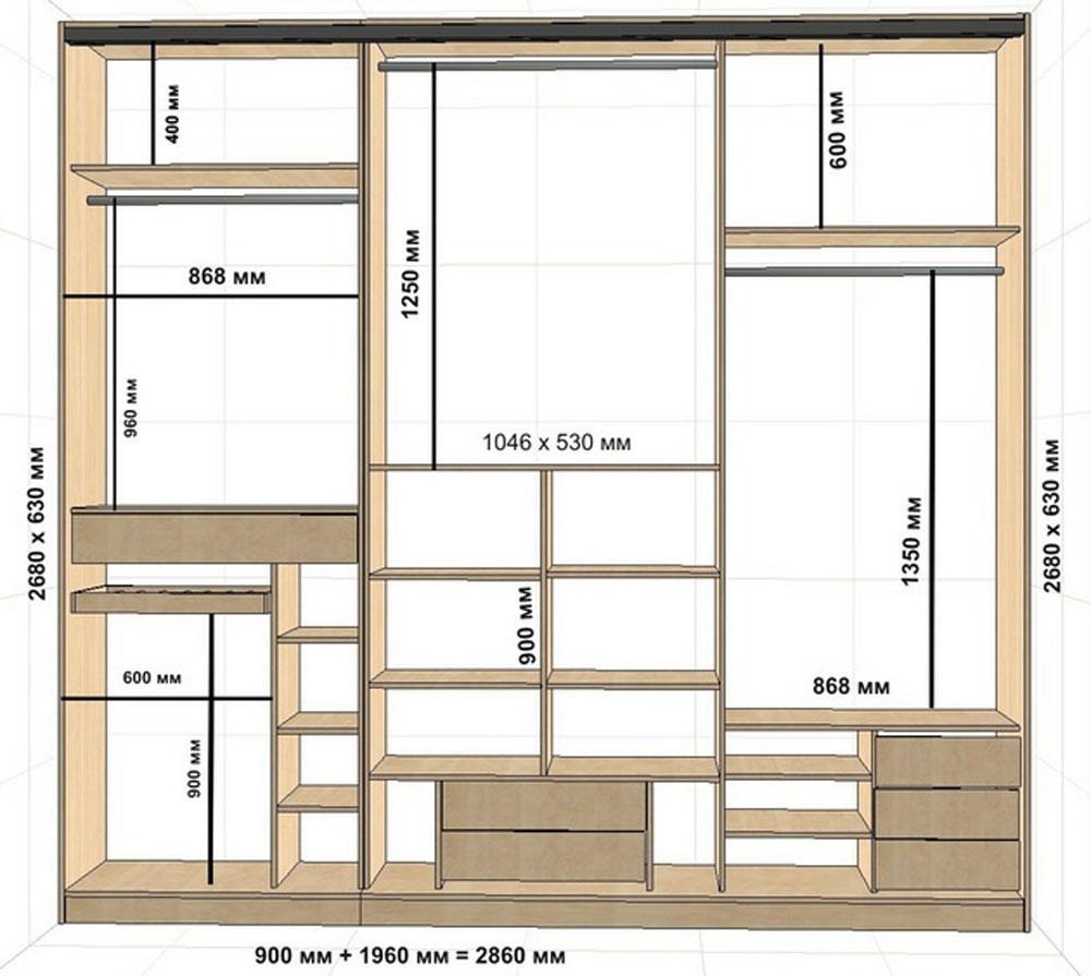
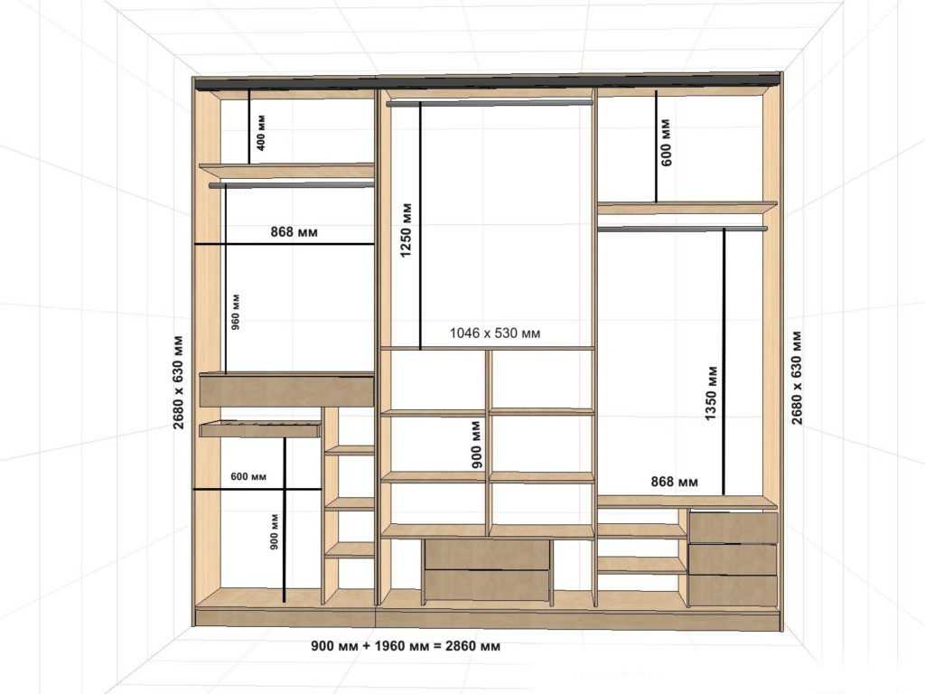
Создание чертежа и разработка дизайна
Чтобы чертеж был правильным и в дальнейшем без проблем получилось встроить шкаф в требуемую нишу, нужно изначально замерить место, куда его планируется установить. Не всегда проемы бывают правильной геометрической формы, к примеру, на мансарде. Измерения производятся по методике:
- Сначала измеряют заднюю плоскость (будет служить стенкой) — верх, середину, нижнюю часть.
- Замеряют фронтальная часть.
- Определяют высоту — ее измеряют и с задней части, и с фронтальной.
Можно воспользоваться рулеткой либо более точным электронным дальномером. Они позволят заранее определить особенности ниши, в дальнейшем обеспечивая высокое качество чертежа. Не проведя таких замеров, владелец шкафа столкнется с тем, что не будут учтены погрешности и неровности выемки. Мебель может либо не войти, либо же установится с сильными зазорами. Кроме того, неправильно сделанная полка шкафа попросту провалится, ведь будет по размеру меньше требуемого.
Многое при измерении мебели зависит от стен и плотности штукатурного слоя. Проведя замеры и окончательный расчет, составляют чертеж. Чтобы сделать его, обычно идут к инженерам-конструкторам, которые учтут желаемый материал и параметры ниши.
С профессионально подготовленными схемами можно уверенно приниматься за создание шкафа, учитывая припуски для более точного встраивания. Кроме замеров и чертежа следует определиться с дизайном. Не стоит выбирать сложные формы, в том числе и радиальные. Для этого нужны специальные знания и навыки как на стадии подготовки, так и при сборке элементов. Не имея их, выбирают простейшие схемы, которые без проблем можно проконтролировать при монтаже. Декоративные части также необходимо подбирать по чертежу, не допуская отклонений от него.
Замер свободного пространства под будущий шкаф
Создание чертежа шкафа




































