Каркасный дом своими руками: пошаговая инструкция с фото
В любом случае работать удобнее, когда готов нижний уровень. Не нужно каждый раз, чтобы вбить гвоздь, пользоваться лестницами или стремянками, поэтому после укладки нижней обвязки (лежня), как правило, монтируется черновой настил или полы. Пиломатериалы, которые будут расположены вблизи земли, обязательно пропитываются антисептиками для предупреждения гнили.
Укладка нижней обвязки
Предварительно поверхность фундамента покрывается отсечной гидроизоляцией — слоем горячего битума и 2 рядами рубероида или гидроизола. Эта мера предотвратит подсос капиллярной влаги из бетона.
В качестве нижней обвязки используется брус сечением 100х150 мм или 2 доски 50х150 мм. Предварительно их нужно обработать антисептиками и подготовить отверстия в местах установки шпилек.
Шпильки рекомендуется заранее замуровать в фундаменте, закрепив нижним концом к арматурному каркасу. Если этого не сделано сразу, можно вкрутить в затвердевший бетон анкер-дюбели с резьбой под гайку. Длина крепежа — 150-200 мм, диаметр 12-16 мм, глубина погружения в фундамент не менее 100 мм. Шаг установки шпилек или анкеров — не более 2400 мм.
Монтаж шпилек — ответственная операция. Они должны быть строго вертикальны, отклонения допускаются минимальные. Начинают установку с углов, затем натягивается причалка (шнур), а по ней уже крепятся остальные анкеры. Чтобы не забрызгать резьбу при бетонировании, на нее накручиваются бумага, пленка или аналогичные материалы.
Для разметки отверстий на нижней обвязке рекомендуется положить доску или брус сверху на фундамент прямо поверх шпилек и легко ударить по дереву молотком. На обратной стороне останутся отпечатки, по которым уже можно точно провести сверление. Обвязку нужно выставить строго горизонтально и затянуть гайки.
В углах брусья стыкуются в «лапу», по длине косым или прямым замком с дополнительным усилением накладкой. При установке обвязки на свайный фундамент соединение должно располагаться точно над опорой.
Монтаж лаг
Лаги — это горизонтальные прогоны, которые служат основанием для укладки настила для пола, а также нижней обшивки и утеплителя. Они изготавливаются из досок 50х150-80х220 мм, поставленных на ребро, двутавровых или составных балок. Сечение подбирается исходя из расстояния между опорами. Чем оно больше, тем мощнее должны быть балки.
Лаги крепятся способами:
металлическими уголками или кронштейнами встык к лежню;
с опиранием на нижнюю обвязку, с наружной стороны торцы закрываются фасадной доской.
Стыкуются лаги только на прогонах. К лежню прибиваются косо с помощью гвоздей, а к фасадной доске прикручиваются 2-3 саморезами.
Если пролет более 2,5 м, между балками устанавливаются распорки для жесткости и предупреждения прогибов. Они крепятся прибитыми наискось гвоздями к лагам.
Устройство пола
По готовому основанию укладывается настил из досок, цементно-стружечных, древесно-струженых или гипсоволокнистых водостойких плит, влагостойкой фанеры. Толщина определяется перекрываемым пролетом:
- 400 мм — 30 мм ГВЛ и 16 мм остальные материалы;
- 500 мм — фанера, ЦСП 16 мм, ДСП, пиломатериалы 19 мм, ГВЛ 36 мм;
- 600 мм — фанера 18 мм, ЦСП 26 мм, ДСП 19 мм, доски 36 мм.
На участках, где возможно замачивание пола в процессе эксплуатации (ванные, санузлы, кухни и т.д.), проводится гидрофобизирующая обработка поверхности и краев древесных материалов.
На этом этапе можно провести утепление, поскольку каркас перегородок в последующем крепится к черному полу и демонтаж верхнего покрытия будет затруднен.
В качестве теплоизоляции используются:
- засыпные материалы — керамзит, вермикулит, перлит и т.д.;
- волокнистые — базальтовая вата, стекловата и т.д.;
- полимерные вспененные — экструдированный пенополистирол, пенопласт, поролон;
- напыляемые — полиуретан, эковата.
На лаги в нижней части прибиваются черепные бруски, на них крепятся листы ОСП, влагостойкой фанеры. Это основание для укладки теплоизоляции.
Дальнейшая последовательность зависит от вида материала:
- Наиболее капризна минвата. Ее нужно защитить от попадания воды и пара, поэтому и снизу, и сверху укладываются парогидроизоляционные мембраны.
- Пенополистирол не боится влажности, но очень любим мышами. В местах, где возможно их проникновение, стоит положить металлические сетки с мелкой ячейкой — 5-8 мм.
Засыпные чаще используются в полах по грунту. Толщина засыпки — не менее 20 см.
Напыляемые виды наносятся профессиональным оборудованием. Создается достаточно высокое давление, поэтому нижняя обшивка должна быть очень прочной.
После укладки теплоизоляции монтируется черновое напольное покрытие. Оно служит горизонтальным основанием для подготовки конструкций, а также дальнейшего монтажа перегородок.
Миф 3. Все каркасные дома строят по одной технологии
Принципиальная схема стены у всех каркасных домов действительно одинаковая: между стойками каркаса находится утеплитель, защищенный с внутренней стороны пароизоляционной пленкой, с наружной — гидроизоляционной супердиффузной (пропускающей пар) мембраной. С обеих сторон каркас и утеплитель защищены жесткой обшивкой, различным листовым материалом: ориентированно-стружечными плитами (ОСП, OSB), цементно-стружечными плитами (ЦСП), водостойкой фанерой, гипсокартонными листами (ГКЛ). Подобным образом устроены и перекрытия.
Однако у разных типов строений есть существенные отличия в способах возведения, материалах и нюансах конструкции. Каркасные дома являются сборными, поскольку их монтируют из заранее изготовленных конструкций, комплект которых привозят на стройплощадку. Производство конструкций обязательно должно быть заводское — такой подход обеспечит точность размеров и комплектность элементов. При этом технология сборки дома может быть различной:
сборка на стройплощадке
На заранее подготовленный фундамент устанавливают каркас стен, обшивают его, заполняют утеплителем, защищают изоляцией. Таким же образом из заготовленных элементов собирают перекрытия, крышу, затем устанавливают окна, двери и т. д. Время сборки на стройплощадке — 3-12 недель. Работа требует тщательности и неукоснительного соблюдения требований монтажа — проконтролировать это неспециалисту сложно.
Строителство каркасного дома из готовых панелей
заводская сборка (каркасно-щитовые дома)
Сборку стен и перекрытий дома производят еще в заводских условиях на специальных технологических линиях, и на стройплощадку привозят уже готовые панели для дома. Они бывают разной степени готовности: от собранной каркасной конструкции до полностью готовых панелей стен (со вставленными окнами и встроенными инженерными коммуникациями), многослойных плит перекрытий и даже крыши. Сборные элементы должны соответствовать проектным размерам с точностью до миллиметра, и на стройплощадке их лишь скрепляют между собой.
Коробку возводят в течение 3-7 дней в зависимости от сложности проекта. В большой степени качество строения зависит от заводской работы. Поэтому компания, поставляющая сборные конструкции, должна иметь безупречную репутацию: тогда надежным будет и здание. Собирать дом должна специально обученная бригада. Однако комплект вместе с подробной инструкцией могут поставлять заказчику для самостоятельной сборки. Такая практика встречается как в зарубежном, так и в отечественном каркасном строительстве. Дома различают по материалу каркаса:
Деревянный каркас
Делают из доски, цельного или клееного бруса (который является самым прочным, качественным и дорогим), а также деревянной двутавровой балки (дерево + ОСП + дерево). Стандартное сечение стойки — 50 х 150 мм. От качества дерева зависит долговечность и прочность дома. Главное требование — влажность пиломатериалов должна быть не выше 18%. Дома с деревянным каркасом наиболее распространены.
Металлический каркас
Выполняют из профилей различной конфигурации, собранных на болтах. Они должны иметь антикоррозийное покрытие (быть оцинкованными или окрашенными). Металлический каркас позволяет устраивать большие пролеты перекрытий и проемы в стенах (в этом с ним может сравниться только каркас из клееного бруса).
Строительство каркасного дома из металлического каркаса
Другие различия между каркасными домами состоят в особенностях конструкции стены. Различными могут быть материалы, толщины и количество слоев утеплителя, обшивки, паро- и гидроизоляции, конструкции перекрытий (по балкам, фермам или панелям). Таким образом, обобщенное название «канадские дома», не описывает всего многообразия каркасных строений.
Можно выделить такие их типы:
- дома с деревянным каркасом и утеплителем из базальтовой ваты и толщиной стены 18-25 см (каркасные и каркасно-щитовые);
- дома с металлическим каркасом, утеплителем из базальтовой ваты и толщиной стены 18-25 см (каркасные);
- каркасно-щитовые дома с утеплителем из пенополистирола и толщиной стены 12-25 см;
- дома премиум-класса с каркасом из клееного бруса, несколькими слоями утеплителя и толщиной стены до 35-40 см.
Резюме: каркасные дома отличаются конструкцией, технологией сборки и теплотехническими свойствами.
“Правила щодо виконання архітектурно-будівельних креслень.”О. В. Георгієвський
Посібник допоможе детально розібратися навіть непрофесіоналові в будь-якому вигляді креслення для будівельних робіт.
Для кожної з основних стін будинку, а також перегородок, теж виконується креслення в розрізі. На ньому вказують елементи кріплення, нумерація, наявність обшивки і її тип.
Всі матеріали і роботи, які були закладені інженерами в проект каркасного будинку, відображаються не тільки кресленнями. У будівництві існують два основних відділи. ВИРОБНИЧО-ТЕХНІЧНИЙ, що займається кресленнями, деталізацією конструкцій і багатьом іншим. І кошторисний відділ, який розраховує повну вартість об’єкта. У розрахунки входить абсолютно все. Від ціни на матеріали та їх транспортування, зберігання. До введення в експлуатацію вже готового будинку для ПМЖ.
Тримаючи в руках готовий проект, навіть людина, яка не має спеціальної будівельної освіти, зможе розібратися в кресленнях та іншої документації. Потрібно просто вникнути в усі деталі і налаштуватися на спільну роботу з підрядником.
Достоинства и недостатки
Основное достоинство каркасника — скорость возведения. Дачный домик возводится за две недели, а коттедж на два этажа от фундамента до черновой отделки – в пределах 2-3 месяцев. То есть если начать строительство весной, то к зиме уже можно заселиться в новенький тёплый красивый каркасный дом.

Помимо этого, для возведения не понадобится дорогостоящее специфичное оборудование и инструменты, поэтому при строительстве своими силами основная статья расходов упадёт на стройматериалы. Даже если продать стандартную однушку на окраине города, то вырученной суммы будет достаточно для строительства дома в несколько раз больше по площади.

Немаловажны и дальнейшие расходы, большая часть которых уйдет на отопление. Ведь для создания и поддержания комфортной атмосферы в каркаснике нужно в два раза меньше топлива, чем для отопления аналогичного по площади каменного сооружения.

Другие преимущества:
- строительство возможно в любое время года;
- демократичная стоимость квадратных метров;
- высокий уровень теплоизоляции (большой термос);
- не требуется мощный фундамент;
- устойчивость к землетрясениям, за счёт отсутствия в конструкции жёстких связей дом легко компенсирует значительные подвижки грунта;
- простота отделочных работ;
- расположение коммуникаций внутри каркаса стен;
- нет усадки стен.

Но, как и во всем, есть в таких домах и минусы:
- самостоятельное строительство требует навыков и знаний;
- относительная недолговечность;
- требуется качественная вентиляция, стены не пропускают пары и воздух;
- нарушение целостности «пирога» стен приводит к снижению срока службы утеплителя и листовых материалов.
Каркасные жилые дома – переворот в строительстве. Просмотрев фото готовых домов и сравнив цены, плюсы и минусы каждого, вы сможете сделать правильный выбор.
Общие принципы построения
Для постройки панельного, деревянного дома и любых других зданий важна разработка проекта. В типовом проекте немало документов, но будущих хозяев обычно интересуют чертежи многоэтажных и одноэтажных жилых зданий в разрезах, где можно увидеть результат процесса постройки.
В чертежи обычно входят фасады и разрезы:
- Фасад представляет собой изображение внешнего вида дома. В основном в таком чертеже присутствуют несущие элементы и детали отделки, воссоздающие точный вид здания;
- Разрез здания – графическое изображение коттеджа с рассечением по плану секущими плоскостями. На нем зафиксированы объекты, сквозь которые проходит секущая площадь и располагающиеся за ней.
Чертеж фасада позволяет представить, как дом будет смотреться внешне, здание в разрезе показывает внутреннее устройство комнат.
В проектных документах должно быть минимум два чертежа. В одном представлен поперечный разрез, в другом – продольный разрез. При сложной конфигурации постройки документов больше.

При создании чертежей высотных построек, частных домов, производственных и административных зданий требуется обозначить разрезы. Для этого применяются тонкие вертикальные и горизонтальные линии. Чаще всего их делают по стенам лестничной клетки. Алгоритм вычерчивания разреза:
- Вначале для главных несущих панелей и колонн (если они есть) нанести и указать вертикальные координационные оси;
- После сделать горизонтальные линии уровней, находящиеся перпендикулярно с координационными осями. Это линии тротуара или земли, примерного верха карниза, перекрытия чердака, полов на каждом этаже;
- Затем тонкими линями нанести контуры внутренних и наружных стен, перегородок. Зафиксировать высоту конька крыши, перекрытий между этажами и чердаком. Нужно нарисовать карниз стены, скат крыши, выносы цокольного этажа;
- Наметить дверные и оконные проемы в перегородках, наружных и внутренних стенах, остальные элементы постройки;
- Далее наносят необходимые размеры и отметки. Нужно начертить размерные и выносные линии и знаки, которые позволят сделать простановку высотных отметок, провести маркировку координационной оси;
- Сделать завершающее обведение сечей, поставить высотные отметки и разрезы, записать разъясняющие слова, названия, убрать ненужные линии.
Вам будет интересно: Как самостоятельно составить смету на ремонт квартиры
Как понять, что обозначает чертеж с разрезами каркасного дома для ПМЖ- Пошаговая инструкция +Видео
Чертёж дома с разрезами каркасный для ПМЖ. Проект-это документ, описывающий процесс деятельности инженера при разработке архитектурного строения.
Для строительства каркасного дома, разрабатываются чертежи с разрезами, делается описание характеристик материалов, составляется смета.
Это является гарантией комфортного ПМЖ в будущем доме.
Общие сведения
- Кроме того, он отвечает за устойчивость и даже за безопасность. К его функциям относится и выведении излишней влаги наружу, дом должен “дышать”. Правильная отделка стен помогает сохранить нужную температуру внутри. Делая помещение летом прохладным, а в холодную погоду тёплым.
- Планировка каждого этажа проводиться в соответствии со строительными правилами, отражёнными в нормативных документах и ГОСТах. Ею занимаются на этапе проектирования, учитывая общую площадь помещения.
- Зонируют комнаты на жилую и хозяйственную части. Обозначая места нахождения окон, дверей, санузлов и т.д. Делают специальный перечень с наименованием всех помещений дома. Разрабатывают спецификацию оконных и дверных проёмов.
Спецификация
Одним из основных документов, является спецификация. Она представляет таблицу с перечислением всех необходимых деталей. Описывает их особенности. Даёт полные характеристики изделиям, опираясь на существующие стандарты. Благодаря точным данным спецификации, можно просчитать бюджет строительства.
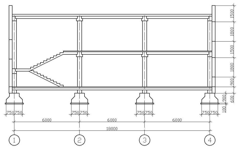
Чертежи разрезов
Далее идут чертежи разрезов каркасного дома. Они показывают внутренние комнаты. Виден функционал и назначение помещений. Разрезы в сумме с планом здания отображают позиции нахождения стен, межэтажных перекрытий, показывают высоту и размещение лестниц и потолков.
На плане чертежа в разрезе всегда указывается разрезная линия. Обозначается её место и направление. Правильно показывать два разреза помещения. В продольном по оси симметрии и поперечном, перпендикулярно оси, варианте. Обязательно проставляются все размеры. Высота помещения общая, отметки пола, нулевые отметки, перекрытия, высота окон и дверей.
На разрезах чертежей указывают следующие величины:
- координационные оси дома, крайние оси, оси деформационных швов;
- отметки пола, этажа, нулевую отметку;
- отметку основания несущей конструкции и опорной части;
- отметки верхнего предела стен, карниза;
- размер проёмов;
- толщину стен, их привязку.
Анализ чертежей
В чертежах разделяют архитектурные и конструктивные разрезы.
К расчётам относят армирование, разработку траншеи или скважин, монтаж подошвы фундамента. Чтобы определить глубину заложения, нужно знать прохождение уровня грунтовых вод и промерзания почвы. Далее делается план свайного поля и опалубочный чертёж ростверка. Рассчитывается схема армирования.
Все чертежи и разрезы выполняются в соответствии с ЕСКД и СПДС.
“Правила по выполнению архитектурно-строительных чертежей.

Пособие поможет детально разобраться даже непрофессионалу в любом виде чертежа для строительных работ.
Для каждой из основных стен дома, а также перегородок, тоже выполняется чертёж в разрезе. На нём указывают элементы крепления, нумерация, наличие обшивки и её тип.
Все материалы и работы, которые были заложены инженерами в проект каркасного дома, отражаются не только чертежами. В строительстве существуют два основных отдела. Производственно-технический, занимающийся чертежами, детализацией конструкций и многим другим. И сметный отдел, рассчитывающий полную стоимость объекта. В расчёты входит абсолютно всё. От цены на материалы и их транспортировку, хранение. До ввода в эксплуатацию уже готового дома для ПМЖ.
Держа в руках готовый проект, даже человек, не имеющий специального строительного образования, сможет разобраться в чертежах и другой документации.
Рейтинг
( Пока оценок нет )
0
3 813.
Олег Сомов/ автор статьи
Опытный строитель с более чем 10 летнем стажем Каркасных и Фахверковых домов из клеенного бруса, делюсь опытом с читателями моего сайта, жмите звездочку и делитесь с друзьями, если было полезно!
Технология и материалы
Каркасная стена в разрезе — это конструктивный элемент здания, который состоит из вертикальных и горизонтальных элементов, называемых каркасом. Этот тип стены используется в строительстве как внутренних, так и наружных перегородок и стен зданий.
Силовой каркас стены является основой, на которую закрепляются другие элементы стены, такие как гипсокартонные листы или другие внутренние покрытия. Он обеспечивает прочность и устойчивость конструкции.
Для строительства каркасных стен обычно используются различные технологии и материалы. Одна из распространенных технологий — это использование деревянных балок или металлических профилей в качестве каркасных элементов. Эти материалы обладают необходимой прочностью и легко поддаются обработке и монтажу.
Другой технологией является использование бетонных блоков или кирпичей вместо деревянных или металлических элементов. Это позволяет создать более прочную и огнестойкую стену, которая может использоваться даже в зданиях с повышенной пожарной безопасностью.
Каркасные стены в разрезе обладают рядом особенностей, которые делают их эффективными в строительстве. Каркас состоит из вертикальных стоек и горизонтальных элементов, называемых ригелями, которые образуют каркасную структуру. Эти узлы соединяются с помощью специальных крепежных элементов, таких как гвозди или винты.
Из-за своей конструкции, каркасные стены легко обрабатываются и могут быть адаптированы для различных типов зданий. Они также позволяют улучшить изоляцию и звукоизоляцию, поскольку в промежутках между элементами каркаса может быть уложен утеплитель или другие материалы. Это делает каркасные стены особенно популярными для использования во внутренних перегородках и стенах.
Преимущества каркасной стены в разрезе:
Прочность и устойчивость
Силовой каркас обеспечивает надежную основу для крепления других элементов стены.
Улучшенная изоляция
Промежутки в каркасе могут быть заполнены утеплителем для повышения теплоизоляции стены.
Гибкость в планировке
Каркасные стены легко монтируются и могут быть адаптированы под нужды здания.
Улучшенная звукоизоляция
Утеплители могут также служить звукоизоляционным материалом для снижения шума внутри здания.
Использование каркасных стен в разрезе широко распространено при строительстве как жилых, так и коммерческих зданий. Технология и материалы для каркасного строительства продолжают развиваться, делая эти стены более прочными, устойчивыми и эффективными в использовании.
Общие сведения
- Кроме того, он отвечает за устойчивость и даже за безопасность. К его функциям относится и выведении излишней влаги наружу, дом должен “дышать”. Правильная отделка стен помогает сохранить нужную температуру внутри. Делая помещение летом прохладным, а в холодную погоду тёплым.
- Планировка каждого этажа проводиться в соответствии со строительными правилами, отражёнными в нормативных документах и ГОСТах. Ею занимаются на этапе проектирования, учитывая общую площадь помещения.
- Зонируют комнаты на жилую и хозяйственную части. Обозначая места нахождения окон, дверей, санузлов и т.д. Делают специальный перечень с наименованием всех помещений дома. Разрабатывают спецификацию оконных и дверных проёмов.
Спецификация
Одним из основных документов, является спецификация. Она представляет таблицу с перечислением всех необходимых деталей. Описывает их особенности. Даёт полные характеристики изделиям, опираясь на существующие стандарты. Благодаря точным данным спецификации, можно просчитать бюджет строительства.
Чертежи разрезов
Далее идут чертежи разрезов каркасного дома. Они показывают внутренние комнаты. Виден функционал и назначение помещений. Разрезы в сумме с планом здания отображают позиции нахождения стен, межэтажных перекрытий, показывают высоту и размещение лестниц и потолков. Здесь сразу видна связь между деталями.
На плане чертежа в разрезе всегда указывается разрезная линия. Обозначается её место и направление. Правильно показывать два разреза помещения. В продольном по оси симметрии и поперечном, перпендикулярно оси, варианте. Обязательно проставляются все размеры. Высота помещения общая, отметки пола, нулевые отметки, перекрытия, высота окон и дверей.
На разрезах чертежей указывают следующие величины:
- координационные оси дома, крайние оси, оси деформационных швов;
- отметки пола, этажа, нулевую отметку;
- отметку основания несущей конструкции и опорной части;
- отметки верхнего предела стен, карниза;
- размер проёмов;
- толщину стен, их привязку.
Миф 9. Каркасный дом непредставителен на вид
С этим нельзя согласиться. Каркасный дом — это лишь технология возведения. А его внешний вид зависит от отделки и архитектурных качеств проекта. Отделку применяют такую же, как для домов из каменных материалов: штукатурку, покраску, вентилируемый фасад с применением сайдинга, блок-хауса и др. Возможна также облицовка стен кирпичом, а цоколя камнем (стены отделывать камнем все же не рекомендуется). В архитектурном отношении проект каркасного дома не отличается от проектов зданий из каменных материалов, и почти любой из них можно переработать для каркасных конструкций. Таким образом, каркасный дом может иметь вполне представительный вид.
Каркасный дом | Каркасный дом |
Каркасный дом | Каркасный дом |
Построенные по каркасной технологии дома могут выглядеть современно и представительно.
Почти нет ограничений и в дизайне интерьера: на гипсокартон можно нанести любую финишную отделку, кроме, разве что, тяжелых материалов, таких как камень. Однако у архитектуры каркасных зданий действительно есть особенности. Каркас позволяет без дополнительных конструктивных ухищрений создавать в интерьере большие открытые пространства, устраивать широкие окна, что даже при небольших площадях создает в доме ощущение простора. Представление о малобюджетном облике каркасного строения сложилось в связи с тем, что чаше всего их строят при необходимости сэкономить. Однако в зарубежной практике каркасные дома нередко относят к объектам современной, прогрессивной архитектуры: экологичной, экономичной и легкой.
Резюме: каркасный дом может выглядеть красиво и солидно.
Каркасный дом может выглядеть красиво и солидно
Гидроветрозащита наружных стен дома
Утеплитель в «пироге» стены каркасного дома должен быть надежно защищен от воздействия влаги. Только при таком условии он сможет выполнять свою непосредственную функцию без ухудшения эксплуатационных свойств.
С внешней стороны стен для этих целей используют супердиффузионные мембраны. Их сложная структура позволяет отводить пар от утеплителя и одновременно препятствовать проникновению к нему влаги с улицы. Низкий показатель воздухопроницаемости делает такой материал ветрозащитным.

Обратите внимание! Супердиффузионные мембраны – не пароизоляционный материал, а паропроницаемая гидроизоляция. Это необходимо понимать, так как пароизоляция полностью исключает проникновение пара через себя
Мембрану без зазоров укладывают на обшивку и фиксируют скобами с помощью строительного степлера
При укладке рулонного материала делают нахлест соседних полос в 10-15 см со всех сторон. Затем все швы проклеивают специальной лентой
Мембрану без зазоров укладывают на обшивку и фиксируют скобами с помощью строительного степлера. При укладке рулонного материала делают нахлест соседних полос в 10-15 см со всех сторон. Затем все швы проклеивают специальной лентой.
Проектирование и отделка
После завершения черчения каркаса необходимо приступить к проектированию и отделке вашего дома. Вам понадобятся следующие материалы и инструменты:
- Карандаш и рулетка для измерений
- Графический редактор или специализированное программное обеспечение для проектирования домов
- Материалы для отделки стен, такие как плитка, обои или краска
- Материалы для отделки пола, такие как ламинат, паркет или ковровое покрытие
- Материалы для отделки потолка, такие как гипсокартон или натяжные потолки
- Мебель и аксессуары для обустройства вашего дома
Первым шагом в проектировании вашего дома будет создание плана помещений. Определите расположение комнат и вспомогательных помещений, таких как кухня, ванная комната и гардеробная. Учтите функциональность каждой комнаты и ее размеры при создании плана.
После завершения плана помещений определите отделку стен. Выберите подходящую плитку, обои или краску в зависимости от стиля вашего дома и ваших предпочтений. Помните, что отделка стен должна быть не только красивой, но и функциональной.
Далее приступайте к выбору и отделке пола. Рассмотрите различные варианты, такие как ламинат, паркет или ковровое покрытие, и выберите наиболее подходящий для вашего дома. Учитывайте практичность, прочность и соответствие стилю вашего дома.
Не забывайте о потолке. Рассмотрите варианты гипсокартона или натяжных потолков и выберите наиболее подходящий. Учтите освещение и другие важные аспекты при выборе отделки потолка.
После завершения отделки приступайте к выбору мебели и аксессуаров для вашего дома
Учтите функциональность и стиль мебели, а также обратите внимание на детали, такие как шторы, подушки и декоративные элементы. Создайте гармоничный и уютный интерьер
Следуя этой пошаговой инструкции, вы сможете самостоятельно создать план каркасного дома и приступить к его проектированию и отделке. Не забывайте о своих предпочтениях и потребностях при выборе материалов и оформлении вашего дома. Удачи в вашем творческом процессе!
Что делать, если нашли хорошие чертежи?
Даже если вы нашли в интернете бесплатный готовый комплект документации, он является полным, а в нём находятся все инструкции по сборке дома, то всё равно к строительству приступать нельзя. Почему? Да потому что неизвестен разработчик документации, а это как минимум повод обратиться к специалистам для проверки и адаптации найденного комплекта документов к реальным условиям участка, на котором будет проводиться строительство. Необходимо проверить возможность изготовления фундамента по чертежам и его соответствия грунта.
То есть, даже если скачанные документы хороши на вид, без привлечения сторонних специалистов не обойтись. Ведь формально, приступать к строительству можно только после того, как все чертежи будут готовы и проверены несколькими специалистами.
Этапы самостоятельной планировки дома
- Определение количества человек, которые постоянно будут проживать в доме;
- Расчёт площади жилых комнат, исходя из принципа: 1 человек (1 супружеская пара) — 1 комната и определение помещений и мест общего пользования (кухня, гостиная, санузел, терраса);
- Определение помещений под хознужды и дополнительные пожелания хозяев (котельная, сушилка, гардеробная, кабинет, бильярдная, сауна);
- Знакомство с интерфейсом программы или проектировочного онлайн редактора;
- Задание количества помещений и их параметров в программу (площадь, толщина стен, высота потолков);
- Формирование планировки дома, путём компоновки помещений на чертеже с вычерчиванием окон, дверей, обозначением мест внутренних перегородок, чертежи лестниц;
- Если функциональность программы или редактора позволяет задание инженерных коммуникаций, необходимо ввести данные по ним и соотнести с расположением помещений на плане дома;
- Проведение необходимой коррекции, моделирование 3D-изображения, размещение предметов мебели и обстановки в 3D-модели.
Разумеется, каждая программа и интернет-редактор требуют изучения и освоения. В целом сделать планировку дома онлайн или в программе очень полезно для получения наглядного изображения, которое позволит легко и объективно оценить целесообразность и правильность распределения внутренней площади будущего дома.
ЗД моделирование — чертежи нового поколения
На данный момент большинство архитекторов перешли от использования кульманов к черчению на современных программах. 3Д проектирование позволяет в одном рисунке объединить все возможные планы и ракурсы в одном. При этом пользователь имеет возможность рассмотреть свой будущий дом со всех сторон.
Для чтения ЗД чертежей необходимо установить на свой персональный компьютер специально программное обеспечение, которое позволит обрабатывать 3Д картинку и показывать ее на экране. Кроме этого, можно распечатать здание в любом ракурсе, что позволит строителям лучше понять схематический рисунок, правильно составить план работы со строительными материалами.
Отличие стандартных чертежей от комплексного проекта дома.
Стандартный чертеж представляет собой только набор ракурсов готового объекта с обозначением используемых строительных материалов, общих габаритов здания, простой схемы прокладывании коммуникаций. Общий чертеж — это старт разработки конкретного дома, в зависимости от особенностей участка, общего бюджета строительства, доступности строительных материалов и т. д.
Кроме того, общий чертеж каркасного дома практически не имеет данных о внутреннем наполнении стен, особенностей внешней и внутренней отделки, наличии теплых полов и проч. Это базовый дизайнерский документ, который позволяет разрабатывать более гибкие планы для строительства.
Комплексный проект имеет в себе максимум данных, включая общий внешний вид комнат и особенности обслуживания в разное время года. Комплексный проект обязательно включает в себя общий чертеж, уже измененный под конкретные условия: наличие или отсутствие коммуникаций, место их подведения, расположения окон, лестниц, общую планировку и проч.
Что должно быть отображено в чертежах?
Чертежи на каркасный дом, это не только воплощение замыслов домовладельца на бумаге или экране монитора. В результате чертежи будут частью плана выполнения строительных работ, который будет согласовываться с организациями, выдающими разрешение на проведение строительства.
Типовой масштаб выполнения чертежной документации лежит в диапазоне от 1 к 20 до 1 к 500. При использовании первого на чертежах будет видно все необходимое, второй масштаб применяют при проектировании больших зданий. При выполнении чертежей необходимо использовать стандартные обозначения элементов строительных конструкций, крепежных изделий и пр. Кстати, надо быть готовым к тому, что в процессе строительства придется выполнять некоторые дополнительные чертежи или рабочие эскизы. Это нормальное явление, на самом деле даже опытным проектировщикам сложно предусмотреть все тонкости, возникающие при строительных работах.
В документации на каркасный дом нет мелочей, но две конструкции требуют к себе особого внимания – это фундамент и каркас. На основании результатов, проведенных геодезистами исследований, необходимо провести тип и конструкцию фундамента. В этих документах, должно быть, разработаны меры по недопущению вспучивания фундамента, его гидроизоляции, а также изоляция цокольного или полуподвального помещения, расположенного под домом от холодного воздуха. Соответственно в чертежах должны быть отражены все тонкости монтажа конструкций фундамента, с непременным указанием размеров.
Чертежи столбчатого и ленточного фундамента
Особые требования предъявляются к документации на сам каркас. Дело в том, что это несущая конструкция, которая принимает на себя всю нагрузку, возникающую при эксплуатации здания. Чертежи разрабатываются только на основании проведенных прочностных расчетов узлов каркаса, эти расчеты являются неотъемлемой частью технической документации и в обязательном порядке проходят проверку специалистами.
Схема каркаса


































