Выбор декора: на что обратить внимание?
Идеи декора для дома могут быть разными. Но не забывайте, что оформление должно соответствовать основной дизайнерской концепции. Не мешайте стили и постарайтесь гармонично сочетать цвета и оттенки. Принципы декорирования:
Для интерьера, выполненного в стиле прованс, просто необходимы красивые шкатулки из прошлого века. Можно поставить на столик красивые рамки.
Цветы отлично будут смотреться на кованых крючках, в этажерке из дерева можно разместить книги. Ну и как же без простых ковриков и красивых глиняных кувшинов?
Для ремонта в экостиле, шале и кантри лучше всего подойдут шкуры животных, тканевые абажуры, большие деревянные горшки и кресла из натуральных материалов.
Отлично будут смотреться деревянные статуэтки и глиняные вазы. Предметы декора не должны играть основную роль, они должны только дополнять общую идею.
Дизайн парной бани: фото, идеи по оформлению
Внутренняя отделка парной не дает простора для новаторского дизайнерского подхода, что объясняется назначением помещения. Несмотря на это, есть некоторые идеи, позволяющие преобразить такое специализированное помещение.
Простое и одновременно эффективное решение размещения одноуровневого полка и такой же лавки не несет модных идей. При этом все пространство парной задействуется полностью.
Рациональное размещение предметов в парной
Достичь изменения вида парилки можно создав определенное освещение, применив достижения современной электротехники. Определенная оригинальность помещения может быть создана за счет создания потолка, выполненного с некоторым закруглением.
Устройство парной (потолок с закруглением)
Добавить оригинальности парилке может комбинация различных фактур. Классическое сочетание кирпича и дерева придает живости и естественности интерьеру, особенно, когда в помещении присутствует пар и повышенная температура.
При низком потолке помещения оригинальным выходом из положения будет создание визуальной иллюзии. Применение вертикально расположенной вагонки на стенах в сочетании с арочным потолком увеличивает размеры парилки, а устройство лавки на самом деле добавляет свободного места в ней.
Евровагонка в парной
Существенную экономию площади дает установка угловых полок и лавок.
Добавить оригинальности и модерновости парной поможет внесение в интерьер стильной печи-каменки или использование натурального камня в отделке.
Комната отдыха
Гардеробная – первая комната, которую видит человек, когда входит в баню. Это самый просторный номер, который может удивить посетителя своей оригинальностью, часто в гардеробной есть окно. В отличие от парной и душа, создание дизайнерских лаунджей, могут быть расширены, что позволит порадовать гостей необычайным подходом.

Комната, где есть все необходимое
Это внутреннее помещение необходимо для отдыха, чтобы сделать комфортным перерыв между «сеансами пара». В зале часто размещают стол, чтобы было удобно выпить травяного чаю, помните, что горячие напитки в бане противопоказаны. В комнате лишние диваны, кресла или скамейки.

Стол для душевных чаепитий
Если в комнате ожидания повышенная влажность, лучше установить мебель из дерева. Тканые диваны и кресла со временем «подхватят» плесень и грибок.
Дизайн и нюансы комнаты для отдыха в бане зависят от предпочтений владельцев. Это своеобразное помещение, имеющее многофункциональное назначение. Нынешние бани часто имеют входной вестибюль, мини-кухню, туалет, бассейн.
Немаловажным элементом и неизменной составляющей комнаты отдыха в бане являются блюда
Стоит уделить внимание оригинальным чашкам и тарелкам с традиционными народными нотками в орнаменте. Для украшения стола в бане пригодиться народный любимец – красочный русский самовар

Бассейн для бань
Акценты отделки гардеробной в бане, ставят на древесину мягких пород, например, сосну или нордическую ель. Разнообразить древесные элементы можно камнем, кирпичом, плиткой или пластиком. Модернистские ноты в более редкой для наших мест стилистике, как восточная, английская, дополнит соответствующая мебель, зеркала, картины, люстры, ткани и прочие аксессуарные тонкости.

Банные принадлежности
Гостиная в бане может рассматриваться как гостевая спальня, если она оборудована полными кроватями и оборудована постельными принадлежностями, тапочками и халатами.

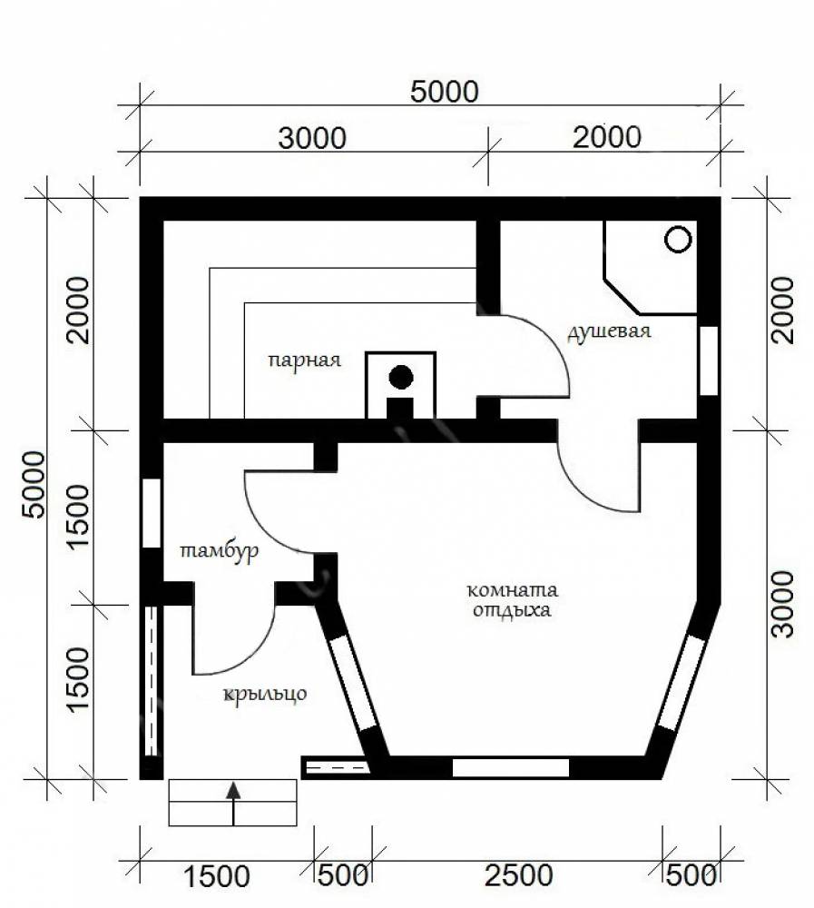
Планировка бани

Планировка бани

Планировка бани

Планировка бани

Планировка бани
Стили интерьера в отделке
По дизайну комнаты отдыха владельцу бани предоставляется полная свобода. Банный интерьер должен быть удобным, практичным, экологичным, эстетически привлекательным.

Самый распространенный стиль в бане — русский, деревенский. Это подразумевает наличие бревенчатых стен, элементов, украшенных резьбой по дереву, росписи стен в стиле народных промыслов, кирпичной кладки под русскую печь.

Стиль прованс более спокойный и романтичный, чем другие провинциальные стили. В нем преобладают гладкие однотонные фактуры и светлые оттенки. В провансе гармонично смотрится растительная тематика, мягкие изогнутые формы и отсутствие резких контрастов.

Для оформления в стиле кантри важно использовать яркие, но не кричащие оттенки. Хорошо смотрится клетка: полы, потолок, отделка стен
Каменные или кирпичные вставки серого, коричневого цветов подчеркнут простоту обстановки.

Скандинавский стиль подойдет тем, кто предпочитает спокойные природные оттенки. Преобладают белые тона с темными акцентами: синими, коричневыми, серыми. Простой декор и отсутствие украшений вносят сдержанность и аристократический индивидуализм. Установка камина, настоящего или искусственного, создаст неповторимую ауру уюта, особенно в зимнее время.

Для придания комнате вида японского минимализма, достаточно одну из стен сделать в виде традиционной перегородки из квадратных темных реек с белыми вставками (сёдзи). Можно поставить ширму с аналогичным оформлением. Единственно, вставки надо делать не из бумаги, как в японском доме, а из других материалов: крашенного дерева или матового стекла.
Дизайн обливочной
Раньше наши предки слишком не заморачивались, да и места было не особенно много, поэтому обливочную создавали прямо в парилке. Но со временем поняли, что это довольно неудобно, и сейчас это отдельное помещение, которое, как и остальные два, требует определеного дизайнерского подхода.
Стандартная душевая предполагает наличие двух основных предметов: душевого поддона и лавки, на которой можно посидеть или положить одежду. Но есть и другой вариант, в котором предусмотрена кадка для холодной воды. Ведь так приятно, хорошо пропарившись, охладиться, вылив ведро воды на себя. Если вдруг конструирование душа для вас – слишком дорогое и сложное удовольствие, можно пойти по стопам предков. Раньше суть обливочной заключалась в том, что где-то поодаль от печи висело ведро с простейшим механизмом: “дерни за веревочку – оно опрокинется”. В нем, конечно же, была прохладная вода. Именно потому со временем и создали дополнительную комнату, что в парилке концентрируется исключительно горячий воздух, вода попросту не сохранит своего прохладного состояния. Поэтому приходилось выходить за ведром, что остужало парилку и приходилось подкидывать дрова, восстанавливая жар.
Интерьер комнаты отдыха в бане
При выборе материалов для отделочных работ стоит отдать предпочтение традиционной для бани вагонке, причем для облицовки комнаты отдыха можно использовать древесину любой породы. Как вариант, деревянную облицовку можно скомбинировать с кирпичной кладью.
В комнате отдыха оправдано использование регулируемых светильников: приглушенный свет помогает расслабиться, а более яркий — взбодриться. Также в зоне релакса можно организовать многоуровневое освещение. Отличный вариант — потолочная люстра в качестве основного источника света и несколько настенных бра для дополнительной подсветки.
Мебель, предназначенная для обустройства комнаты отдыха, должна быть одновременно комфортной и практичной. В малогабаритном помещении целесообразно установить компактный гарнитур, включающий в себя стол, диван и несколько стульев
Более просторную комнату можно дополнительно оборудовать креслами-качалками или удобными шезлонгами.
В зоне релакса важно выделить местечко под небольшой гастрономический блок. Для хранения столовых приборов и посуды идеально подойдет угловой буфет, для хранения провизии — мини-холодильник
В роли необычного декора могут выступить баночки с ярким вареньем и засушенными травами, расставленные на открытых подвесных полках.
В зависимости от наличия свободных квадратных метров в комнате отдыха можно обустроить своеобразный развлекательный уголок. Сюда отлично впишется небольшой теннисный стол, аэрохоккей, настольный футбол, телевизор с караоке или музыкальный центр.
Хорошо, если в помещении для отдыха найдется место для установки камина. Оборудование может быть как электрическим, так и дровяным. Предпочтителен, конечно же, второй вариант, ведь источник живого огня способен преображать окружающее пространство и добавлять ему уюта, теплоты и индивидуальности. Кроме того, дровяной очаг будет служить дополнительным источником тепла.
Ограничений и запретов в выборе декоративных деталей для оформления зоны отдыха практически не существует. Благодаря нейтральному микроклимату в этом помещении в качестве декора можно использовать любые приятные глазу вещицы и поделки. Вместе с тем обилие интерьерных украшений может мешать полноценному отдыху и расслаблению.
Чем лучше отделать предбанник
Отметим сразу, что если баня построена из круглых бревен, то лучше её ничем не отделывать, это только испортит её естественный внешний вид. Если же строение сделано из других материалов (клееный брус, кирпич, сруб, шлакоблочный тип конструкции), то желательно произвести внутреннюю облицовку стен.

Стены из «кругляка» в сочетании с мебелью из дерева придадут помещению нотки старины и уюта

Интерьер помывочной в бане
Для полового покрытия лучше использовать керамическую плитку. Она прекрасно переносит высокую влажность и перепады температур. Недопустимо применять покрытия на синтетической основе (ламинат, линолеум и т. д.). Под воздействием влаги такие материалы быстро деформируются и начинают выделять вредные испарения. Пол можно покрыть деревом, предварительно обработав его антисептиком.

Интерьер бани в стиле модерн
Нюансы оформления душевой
Оптимальный вариант для отделки помывочной (т. е. душевой) – керамическая плитка. Однако не всем нравится такое оформление, ведь теряется главное кредо бани – экологичность. Пожалуй, многим хочется видеть в помещении отделку из древесины. Но не каждое дерево допустимо использовать в данных условиях. Разрешается применять следующие породы:
- кедр;
- абаши;
- лиственница;
- липа.
Интерьер бани в стиле эко
Чтобы сделать моечную креативной, можно расположить вагонку в разных направлениях (вертикально, горизонтально и диагонально). Однако это потребует умения работать с древесиной (потребуется распиливать доски под идеально точными углами).
Баня с окнами
Особенности внутреннего оформления интерьера
Условия эксплуатации внутренних помещений бани различны, поэтому требуют грамотного подхода к выбору декоративных материалов и стиля оформления. Интерьер бани должен соответствовать требованиям безопасности, функциональности и комфорта. Поэтому для внутренней отделки и декора помещений используются только качественные, долговечные и практичные материалы, устойчивые к температурным изменениям и повышенной влажности.
Дизайн бани предусматривает разработку детального проекта с указанием всех функциональных помещений. Это необходимо для грамотной планировки каждой комнаты – парной, моечной, предбанника, зоны для отдыха.
Чтобы правильно спланировать интерьер бани внутри, рекомендуется учитывать следующие правила:
- Для внутренней отделки поверхностей подойдут: деревянная вагонка, кафельная плитка, брус, блок-хаус, лоза, искусственный и натуральный камень, кирпич. Все материалы должны отличаться практичностью, долговечностью, экологичностью, низкой теплопроводностью, стойкостью к негативному воздействию влаги и пара.
- Чтобы обеспечить максимальный комфорт пребывания в бане, стеновые и потолочные поверхности оформляются в мягких теплых тонах.
- Внутри бани не должно быть острых предметов и углов, скользких поверхностей, чтобы предотвратить получение травм.
- Для внутреннего оформления бани не рекомендуется использовать элементы из пластика и металла. При воздействии высоких температур подобные поверхности создают опасность для человеческого здоровья.
- Любая баня и сауна предусматривают использование традиционных банных аксессуаров и принадлежностей – веников, шапок, ведер, ушатов и прочего. Поэтому интерьер помещений проектируется так, чтобы все принадлежности имели удобное расположение.
Планировка интерьера бани
- Русский стиль. Это идеальный вариант для внутреннего обустройства бревенчатого строения. Как правило, такой традиционный дизайн обходится сравнительно небольшими финансовыми затратами и позволяет оформить интерьер бани своими руками. Большинство предметов, необходимых для создания «исконно русского» стиля, можно найти на чердаках прародителей или же изготовить самостоятельно. Массивная деревянная мебель, кружевные занавески, плетеные дорожки, расписная посуда, пушистые веники и пузатый самовар — такие самобытные атрибуты помогут преобразить привычную баню в древнерусскую обитель.
- Деревенский стиль. Для оформления интерьера бани зачастую используется зарубежный стиль кантри. Обилие натуральных отделочных материалов, фактурные потолочные балки, удобная резная мебель и банные аксессуары ручной работы — таковы основные черты «деревенского» направления. Для поддержания цветового баланса допускается акцент на посуде — в этом стиле приветствуется использование яркой узорчатой керамики. Изюминкой кантри-дизайна считается простой незамысловатый декор: вышитые скатерти, клетчатые чехлы для мебели, букеты из сухих цветов и мини-картины с сельскими пейзажами.
- Восточный стиль. Это настоящая находка для приверженцев оригинальных решений. Такой экзотический дизайн отличается богатой отделкой и роскошным декором. Интерьер бани, оформленной в восточном стиле, пестрит яркой мозаикой и смальтой, красочным текстилем и необычными светильниками. Общую картину дополняет мебель: кальянный столик на фигурных ножках, декоративная ширма с традиционными орнаментами и резной сундук вместо привычного комода.
- Скандинавский стиль. Сочетает в себе простоту, естественность и отсутствие излишеств. В банях с «северным» дизайном преобладают отделочные материалы светлых оттенков, причем, помимо традиционной древесины, приветствуется использование кирпичных и каменных элементов. Скандинавский стиль — одновременно лаконичный и сдержанный, он не терпит обилия и изысков. В рамках такой минималистичной концепции уместен сдержанный, но функциональный декор. Оленьи рога прекрасно заменят вешалку, икебана из коряг, сухих ветвей и камушков — картину, а шкура из овчины — половик.
Обратите внимание! В идеале интерьер всего банного комплекса должен быть выдержан в едином стиле. Несоответствующие общей стилистике детали способны внести диссонанс даже в самый гармоничный и продуманный дизайн
Удачные проектные решения и фото внутреннего интерьера бани можно найти в интернете на специализированных сайтах.
Стили оформления комнаты отдыха в бане
При декорировании помещения можно выбрать один из наиболее популярных вариантов. Если отделка комнаты отдыха в бане будет осуществляться человеком, который не может похвастаться большим опытом работы с различными отделочными материалами, стоит остановить свой выбор на наиболее простом стиле.
Русский стиль
Дизайн комнаты отдыха в традиционном русском стиле является наиболее простым и распространенным решением. Основным материалом отделки является дерево. Оно вполне гармонично сочетается с парной и вообще хорошо передает атмосферу загородного отдыха.
Одним из серьезных его достоинств является простота и привлекательный внешний вид. Чтобы подобрать мебель и детали интерьера нет необходимости прибегать к услугам специалиста.
Потолок и стены должны быть обшиты деревом, а пол необязательно должен быть дощатым, вполне возможно, постелить плитку. При повышенной нагрузке, такое покрытие более долговечно и удобно в уходе.
Интерьер комнаты отдыха «под старину»
Стол и лавки (скамейки, табуреты, стулья) могут быть совершенно простыми или с элегантной резьбой. Вполне логично в интерьере будут смотреться самовар, деревянные ковшики, веники и текстильные аксессуары. Чтобы максимально ощущалась атмосфера русской бани, в помещении должна быть печь. Она может быть украшена изразцами или беленой.
Кантри стиль
Дизайн комнаты отдыха в сауне в этом стиле чем-то схож с русским. Но само помещение с отделкой в данном стиле, смотрится более просто. С другой стороны, в нем создается иллюзия большего пространства, как будто в помещении больше воздуха. Кантри стиль может различаться от выбранной страны. Если в свой дачный банный домик хочется добавить ноток изысканности, тогда подойдет французский деревенский стиль. Наиболее демократичным является американский кантри. Выбранное направление диктует правила использования цветовой палитры. Аксессуарами обычно являются цветы, корзины и яркая посуда.
Восточный стиль
Комната отдыха дизайн интерьера которой выполнен в таком экзотическом стиле демонстрирует любовь к оригинальности и эксклюзивным решениям владельца. Так как восточные палаты всегда ассоциируются с роскошью и дороговизной отделочных материалов, далеко не каждому по карману воплотить такой дизайн в бане на даче. Интерьер предполагает яркость красок, мозаичные рисунки, позолоченные светильника, яркий и дорогой текстиль на окнах. Не обойтись и без особой мебели: роскошных сундуков с причудливой резьбой, низких столиков, кальянов, расписных ширм с восточными мотивами.
Классический стиль
Не менее роскошным, но более привычным является классический стиль. Интерьер комнаты отдыха в бане должен включать колонны, лепнину. Не обойтись без большого камина и тяжеловесной мебели. Чтобы все это вписывалось вполне органично, помещение должно быть довольно просторной. В противном случае стоит выбрать иной стиль. Обустройство помещения именно в классическом стиле целесообразно для отдыха больших компаний.
Интерьер комнаты отдыха бани в морском стиле
Морской стиль
Банные комнаты для отдыха с морскими мотивами требовательны к свету и площади. Они не должны быть маленькими и темными. И также рекомендуется отказаться от большого количества шкафов и ненужных этажерок. Мебель должна быть неновой или искусственно состаренной. Причем цветовая палитра может быть, как в натуральных оттенках дерева, так и окрашенной в белый или голубой цвет. Элементы дизайна должны включать фигурки кораблей, рыбок, маяков, штурвалы. Полотенца, салфетки и коврики должны быть с полосками, могут иметь рисунки с морской тематикой. Основными цветами, применяемыми в этом стиле, являются оттенки синего, зеленого и песочного. В качестве дополнительных тонов допустимо использовать золотой, винный, коралловый.
Модерн
Желающие видеть стильную и актуальную комнату отдыха в своей сауне, должны обратить внимание на стиль модерн. Так сложилось, что он противопоставляется классическому стилю
Отделочные материалы выбираются довольно ярких цветов, меблировка предполагает интересные несимметричные формы. Растительный орнамент внесет элементы жизни в этот мир современных и абстрактных конструкций. Некоторые считают его достаточно холодным, но это ошибочное суждение. При правильном подходе, модерн выглядит вполне уютно и настраивает на расслабление и отдых.
Основные этапы работ по отделке бани внутри
Возвести коробку бани – это еще половина дела. Необходимо подобрать качественные материалы для отделки, установить печь и выполнить правильно все внутренние работы. Малейшая погрешность на любом этапе может обернуться большими проблемами в будущем, исправить которые будет довольно сложно.
Внутренние работы можно разделить на 5 этапов:
- Теплоизоляция –от качества выполнения работ зависит сохранение тепла в парилке. Последовательность работ следующая: гидроизоляция, утепление, пароизоляция и внутренняя обшивка бани.
- Установка печи. На данном этапе лучше обратиться за помощью к профессионалам. Они подскажут место, правильно выполнят отводы. Можно купить готовую конструкцию, которая ничуть не уступает классике. К тому же ее установить можно самостоятельно.
- Монтаж электропроводки необходимо выполнить с дополнительной изоляцией.
- Внутренняя отделка.
- Установка мебели, скамей, полатей.
Создаем предбанник
Дизайн любой бани лучше начинать именно с этой ее части: это ведь так называемое лицо — то, что вы или гости будут видеть первым делом, заходя в помещение. Здесь можно отдохнуть между банными процедурами, предаться наслаждению, хлебнув глоток какого-нибудь прохладного напитка. Также в этом помещении будут и раздевалка, и шкафы, куда можно положить нужные вещи и предметы. Именно поэтому предбанник должен обладать максимальной функциональностью.
Это маленькое по своим размерам помещение должно вмещать в себя также и выход топливника, что делает возможным протапливание парилки, не открывая в нее дверь и не выпуская горячий воздух.
Дизайн бани внутри — идеи оформления небольшого по площади предбанника — на фото к этой статье. Стандартный набор предметов: прямоугольный деревянный стол, две скамьи по бокам от него, шкафчик и вешалки под полотенца и одежду. Имейте в виду, что материал и цвет мебели должны совпадать с отделкой бани.
Стили и фото лучших решений
Дизайн бани не должен быть ярким и вычурным, акцент делается на спокойной и даже умиротворенной атмосфере. В первую очередь для создания комфорта учитывают психологический аспект: помещение парилки, да и бани в целом, не отличается большой площадью, поэтому может оказывать эмоционально подавляющее воздействие. Чтобы этого не происходило, оформление помещений должно быть максимально простым и нейтральным.

Парилка с естественным освещениемИсточник vsaunu777.ru
Немного яркости интерьеру современной бани можно придать с помощью грамотно организованного освещения и функционального декора:
- Часов.
- Термометра на стене.
- Картин.
- Зеркала.
- Веников.
- Ковшей и черпаков.
- Текстиля.
Дизайн сауны и бани отличается от оформления жилых помещений
Неважно, какой стиль оформления выбран, главное – обеспечить функциональность и безопасность. Излишний декор и предметы обстановки здесь ни к чему

Комната для отдыха с гостямиИсточник fodors.com
Вот несколько вариантов оформления:
Традиционный русский стиль предполагает использование натуральной деревянной отделки. Парилку оборудуют печкой, а в предбаннике используют резной декор и пестрые половики на полу. В комнате отдыха стол украсит скатерть и самовар, плетеные корзины и короба. Мебель самая простая – стол и скамьи с вышитыми половичками
Важно, чтобы цвет деревянной мебели, стен и пола не совпадали

Дизайн бани в русском стилеИсточник pinterest.com

Красивая комната отдыхаИсточник banyabest.ru
- Стиль шале более сдержанный. Если кантри и русский стиль допускают резной декор, то здесь упор делается на женскую или мужскую энергетику интерьера. В первом случае в качестве декора для комнаты отдыха используют холодное оружие на стенах, ружья, трофей, кованый декор, как бы намекая, что эта баня принадлежит охотнику. Если хозяйка – женщина, то интерьер украшают картинами с изображением пейзажей, керамическим чайным сервизом, вышитыми скатертями и салфетками, венками из душистых трав и букетиками высушенных цветов.
- Баня в современном стиле выглядит просто и элегантно. Древесина для ее отделки должна иметь гладкую поверхность без акцента на природный рисунок. Оборудование – современное. В душевой можно установить многофункциональную кабинку. Декоративный акцент делается на освещение и подсветку. Минимум декора и максимум функциональности – это девиз современного стиля оформления.

Оформление русской бани под старинуИсточник happymodern.ru
Предлагаем фотогалерею оригинальных решений для бани.

Современная парилкаИсточник remontbp.com

Парилка, оформленная в стиле хай-текИсточник falschewimpern.org

Камень для облицовки стеныИсточник pinterest.es

Подсветка полокИсточник pinterest.com

Современное решение для баниИсточник mysamostroy.ru

Специальные светильники для баниИсточник indianplywoodcompany.com

Мраморная стенаИсточник topdizz.com

Яркое теплое освещение в желтых тонахИсточник ro.aviarydecor.com

Деревянные панелиИсточник realestateonesuccess.com
Мебель
В бане мебель не менее важна, чем отделка. Вид мебели зависит от выбранного стиля: от грубых досок, до резных украшений и современных строгих моделей.


Для бюджетных интерьеров приобретают пластиковую мебель. Наборы из цветного полимера легко переставлять на другое место, мыть, и при желании менять на новые. Надо помнить, что такие стулья становятся скользкими от влаги, поэтому в семьях с детьми, пожилыми людьми лучше отказаться от пластиковых комплектов.
Мягкая мебель в зоне отдыха занимает одно из главных мест. Диваны и кресла для бани лучше выбирать в обивке из кожи, экокожи, к/зама.
Появились современные покрытия с водоотталкивающей пропиткой: микрофибра, велюр, искусственная замша. Они представлены огромным количеством расцветок. Эти ткани не требуют особого ухода, переносят перепады влажности и температур.
Русский стиль
Обязательное правило любой гармоничной структуры – снаружи, внутри необходимо придерживаться единой стилистики. Бани в русском стиле, в основном, возводят из деревянных бревен, а потому даже современная постройка, внешне смотрится так же, как у наших прадедов – строение, из необработанной древесины, размером 4×6 метрам, с высотой, примерно, 3,5 метров.

Выдерживаем единый стиль
Чтобы считаться оригинальным русским стилем, обратите внимание на такие элементы, как:
- многоярусные полки;
- большой стол из дерева со скамьями вокруг;
- действующий камин;
- огромная кадка с водой, деревянные ковши и ведра;
- печь-нагреватель из красного кирпича;
- деревянные доски пола, веники из разных пород дерева, полотенца и листы.

Дух русского стиля
Подобных мелких и не очень деталей может быть много, но для них есть одна общая черта – все элементы дизайна русской бани, имеют природное происхождение, состоят из натуральных материалов.

Исключительно натуральные материалы
Опасно использовать синтетический или пластиковый материал, при нагревании такие полки могут выделять токсичные вещества, провоцировать ожоги, отравление.
В душевой комнате, раздевалке используйте материалы дерево, доски, натуральный текстиль, керамика. Все это создаст уютную атмосферу, а вещи, сделанные вручную, добавят теплоту, душевность.

Единство уюта и отдыха
вернуться к меню




































