Сарай и его варианты постройки
Проектирование сарая. Каждая стройка начинается с создания проекта. Начертите на бумаге, какой сарай вам нужен, а именно размер сарая, где расположен вход, наличие окна.
После того как проект готов, начинаем подсчет материала.
Пример расчётов. Периметр сарая равен 15 м ( длина первой стены + длина второй стены + длина третьей стены + длина четвертой стены), высота 2,2 м. предполагается входная дверь 2 м х 1 м, и окно, для проветривания 0,8 м х 0,8 м. Крыша односкатная, угол наклона сарая около 20, кровельный материал волновой шифер.
Для того, чтоб сарай был устойчивым и его не перекосило от времени и погодных условий, шаг между брусьями каркаса берем 1,2 м.
Варианты хозблока – подбираем для своих потребностей
Возвести хозблок своими руками после приобретения участка – следующее задание для его владельца. Почему собственными силами, ведь можно купить бытовку или заказать строительство? Причин, почему многие предпочитают строить сами, несколько. Во-первых, финансовый вопрос: после покупки участка не у каждого найдутся деньги на приобретение хозблока или оплату строительства подрядчиками.
Во-вторых, многие имеющиеся в продаже бытовки часто вызывают недовольство купивших их из-за слишком короткого срока службы. И в-третьих, если есть опыт строительства, остатки материала, можно самому построить хозблок не стандартного вида, а исходя из своих потребностей. Хозяйственно построенная бытовка прослужит долго, а опыт, приобретенный при ее строительстве, пригодится в дальнейшем.
Надежно построенный хозблок сможет послужить для различных целей
Купив несколько соток, дачники стремятся сразу построить надежный хозблок для различных целей:
- как жилье, пока не построится дом, чтобы в дальнейшем переделать для других нужд;
- хозяйственная постройка для инвентаря и другого имущества;
- как раздевалка, кладовка, санузел, летняя кухня;
- в качестве сараев для кролей, птицы, скота.
Хозблок – универсальное помещение, каждый может приспособить его под свои нужды. Если на дачном участке хозяева проводят много времени, работая на земле, то подумают о комнате отдыха, о кровати в ней, чтобы переночевать. Небольшое компактное сооружение может выглядеть как простой сарай, так и домик из сказки. Все зависит от потребностей, возможностей, приоритетов хозяина.
Монтаж кровли
После возведения стен начинается устройство крыши. Крыши могут быть односкатными, двускатными, ломаными, крестовыми, шатровыми и другими. Наиболее популярны двускатные и ломаные.
Благодаря своей простоте их легко можно смонтировать своими руками. Кроме того, конструкция этих крыш позволяет строительство мансарды.

Монтаж крыши состоит из следующих этапов:
- монтаж стропильной системы;
- устройство гидроизоляционного слоя;
- устройство теплоизоляционного слоя;
- укладка кровельного материала.
Основой крыши является перекрытие. Оно должно быть прочным и надежным. Для его устройства используются потолочные балки. Они укладываются с шагом не меньше одного метра. При укладке балок надо пользоваться уровнем, чтобы добиться общей плоскости и идеальной горизонтальности.

Затем с помощью стропил монтируется конструкция будущей крыши. Она жестко закрепляется с помощью ригелей, распорок и стоек. Сначала монтируется каркас из стропил, которые укладываются на расстоянии одного метра между собой. Затем выкладываются фронты брусом или досками.
На последнем этапе на стропила набивается обрешетка с шагом не менее 40 см. Далее устраивается гидроизоляционный и теплоизоляционный слой.

Когда каркас крыши готов и уложены все слои, можно приступать к настилу кровли. Основное назначение кровли – защита дома от осадков и внешних механических воздействий, но она также должна гармонировать с внешним видом всего дома.
Сарай, мастерская, дровяник 6×3 своими руками. — DRIVE2

Полный размер
Давно собирались построить мастерскую и небольшой дровеничек.
Полный размер
На обрезки просмаленого бруса выложил основание из бруса 150×150 внешние края которого равны размеру 5800×2800 (ушло 3 бруса).

Полный размер
Брус по периметру

Полный размер
Готовое основание
Затем на ребро поставил 7 поперечен из доски 50×150(крепил на углы)

Полный размер
Поставил стойки из доски 50×100 (высота по 2 метра), только 4 угловых и пара в районе дровенника из 50×150, перед этим закидав пол 6 метровой дюймовкой.Расстояние между стойками выбиралось и подгонялось с учетом проемов двери, окна и 8 металических панелей оставшихся от старого железного гаража(ими закрылись 2 стены).

Полный размер
Верх обвязываем цельными досками 50×100(в размер нижнего основания)

Часть дровеника делам продуваемой а мастерская 3.5 метра будет глухая.

Полный размер
Собираем 7 стропильных треугольников.На каждый треугольник ушло по 2 доски 1900мм и 1 доска 3000мм + 3 монтажные пластины и 3 гвоздя на 150.Доска все таже, 50×100
У досок 1900мм с обоих концов делаем углы по 60 градусов, В ОДНОМ НАПРАВЛЕНИИ!(составив их получим конёк а с других концов в будующем приделаем планку для крепления водосточного желоба), а у трёхметровой с обоих концов по 30 градусов В РАЗНЫХ НАПРАВЛЕНИЯХ!(это будет основание нашего треугольника).Я их делал все 7 штук одинаковыми сложив пачкой на земле.Затем установил два крайних треугольника и натянул веревку (линию конька).Разметив равное расстояние установил оставшиеся 5 штук таким образом чтоб линия конька выстроилась по веревке.
Полный размер
Натянута веревка

Полный размер
Установил остальные 5 стропил

Полный размер
Накидываем обрешетку из 6 метровой дюймовки

Полный размер
Всё готово под ондулин)

Полный размер
Ондули накрыт, дождь не страшен.

Полный размер
Муравей на новом месте)))

Окошечко примеряем стеночки внутри черновые потихоньку шьем

Полный размер
Даже для собачьей будки место нашлось

И дровишки на место убрались

Как то так выходит
В будующем будем ставить дверь, шить сайдинг ну и внутряняя отделка.По итогу на данный момент ушло:три бруса 150×150, Куб дюймовки, 1/2 куба 50×100, 1/2 куба 50×150(еще и осталось несколько досок), 1/2 куба 2метровой дюймовки некондиции(на обшивку стен), 14 листов ондулина, 4 двухметровых конька, 21 монтажная пластина и столько же гвоздей(стропила), углов 100×100×100 20шт(основание), углов 40×40 примерно 150 шт, ну и куча саморезов…Все делали из 6 метрового материала, расчитывали чтоб минимум отхода- так и вышло.Никаких пазов нигде не выбирал, обсолютно все на углах.Итог 30-35 тысяч рубликов.Собрано за двое выходных(4-5 дней), ну и конечно в конце:
Вкуснота

И красота))))
Ну вот, прошло еще немного времени:

Полный размер
Спустя ещё одни выходные:
www.drive2.ru
Варианты исполнения и материал для крыши
Задача кровли состоит в том, чтобы защитить внутренние помещения от атмосферных воздействий. Крыша не должна пропускать внутрь воду и обеспечивать ее отток. Крыша деревянного сарая не столь ответственная часть, как крыша дома, тем не менее она должна выполнять свою функцию.

Крыша небольшого строения может быть односкатной или двухскатной. Первый вариант выгодно отличается простотой изготовления, но он применим только для сараев небольшой ширины. Создание двухскатной крыши потребует больше материала и времени, но она лучше отводит воду, что скажется на долговечности сооружения в целом.

В качестве кровельного материала для небольшого сарайчика можно использовать рубероид и другие рулонные материалы. Сформировать полноценную крышу можно с помощью классического шифера или современных листовых материалов.
Стоит или нет строить самому? Мнение экспертов

Вопрос строить или не строить, хотя и напоминает Гамлетовское «Быть или не быть?» во многом может быть решен после изучения мнения экспертов, куда можно условно привлечь как и действительно профессионалов, так и тех кто может похвалиться самостоятельно возведенной бытовкой.
Профессиональные строители всегда будут против строительства такого объекта самостоятельно, это объясняется определенными трудностями работ, их трудоемкостью, необходимостью проведения нескольких операций при использовании нестандартного материала.
Для тех кто уже имеет опыт сборки таких строений и может поделиться своим, собственным опытом как положительным, так и, увы не совсем, буде уверять что это вполне возможно и даже нужно делать, ну хотя бы для того чтобы поверить в свои силы.
Истина же лежит где-то посередине. Для человека имеющего четкий план работы, умеющего обращаться с основными инструментами, ну или хотя бы держать в руках молоток – это вполне реально. Для тех, кто считает, что это нерационально вполне нормально будет купить уже готовый проект.
Чем чреват самострой. Ошибки строителей

При самостоятельном строительстве, дачной бытовки необходимо учитывать:
- документальное оформление строительства, это актуально для всех видов построек, как на земле садоводческих товариществ, так и других землях, ведь строение не висит в воздухе;
- наличие проекта, пусть даже самого простого, но с минимальными расчетами материалов, его можно в любой момент поправить, а вот без расчета материал придется постоянно докупать;
- в проекте обязательно учитывается мощность электропроводки, размещение отопительных приборов, систем обеспечения, и сделано это должно быть прежде всего профессионалами, поскольку неправильный расчет сечения кабеля может привести к замыканию проводки и пожару.
А вот профессиональные строители, как правило, грешат следующими ошибками:
- неправильное размещение строения;
- нарушение технологии строительства;
- некачественное проведение различных операций и работ;
Сборный сарай
Если у человека возникает вопрос “Из чего дешево построить сарай?”, можно предложить ему применить в строительстве объекта пластиковые или сборные сэндвич-панели.
Да, это выйдет немного дороже, чем блочное и каркасное сооружение, но у таких построек есть свои неоспоримые преимущества: они мобильны и возводятся быстро. Их можно изготовить на основе:
- пластиковых панелей;
- структурных изолированных панелей (СИП);
- сэндвич-панелей.
Подробнее стоит остановиться на таком варианте, как сараи из структурно изолированных панелей (СИП), состоящих из двух древесных слоев, между которыми размещается утеплитель. Чтобы построить такое здание, требуется для начала создать каркас, к которому далее крепят эти сэндвич-панели.
Как своими руками дешево построить сарай такого типа? Можно неплохо сэкономить, если панели сделать самостоятельно. Листы OSB, утеплитель, клей и брус из дерева — материалы, необходимые для их создания. Клеевой состав следует нанести на панель OSB, на которую после помещается утеплитель так, чтобы было свободное место по контуру изделия под стыковочный деревянный брус. Второй лист укладывать следует на утеплительный материал, который предварительно обрабатывается клеевым составом. Груз распределяется по всему периметру сверху конструкции.
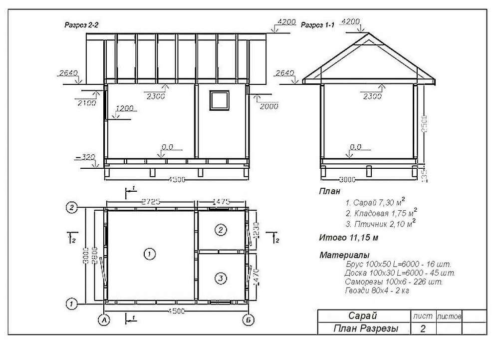
Чертеж сарая с односкатной крышей
Одной из самых важнейших построек на дачном участке является сарай. В нем всегда найдется место для хранения различных хозяйственных принадлежностей для дома, сада и огорода. А если размеры вашего сарая позволят, то можно вместить туда еще и туалетную комнату и душевой сектор. Если подойти к строительству сарая максимально серьезно, то эта работа не займет у вас много времени и сил. Есть много различных видов таких построек. Для новичков в строительном деле советуем попробовать начать с самых простых — каркасных конструкций. Правила сборки каркасного сарая приведены ниже. Для начала ознакомьтесь с ними и начинайте работу.
Выбираем местоположение для будущего сарая
Если вы желаете понять, как построить сарай своими руками, то вам помимо современных сведений стоит посмотреть проекты таких построек. Чтобы сарай прослужил вам долгое время, надо найти для него удачное место. Для выбора местоположения сарая необходимо отталкиваться от расположения других объектов на участке. Некоторым удобно, чтобы сарай располагался в самом дальнем углу территории, а кому то удобно иметь сарай возле дома. Наверняка на Вашем участке найдется место, которое не затронуто садовыми насаждениями и грядками. Вот это и есть самое рациональное место для начала строительства. До начала строительства не забудьте заранее все продумать: учитывайте все размеры будущей постройки и прочие близкие к ней данные. При этом не забудьте, что Ваш сарай должен гармонично смотреться и сочетаться с другими постройками на участке.

Что нужно для строительства сарая
Если вы определили местоположение сарая, то важно подготовить все необходимое для качественного строительства. Итак, для строительства сарая вам понадобится:
- Станок для обработки дерева. С ним работа будет легче, но можно обойтись и без него.
- Электролобзик.
- Ручная циркулярная пила.
- Шуруповерт.
- Электродрель.
- Электрический рубанок.
- Цепная пила.
- Доски.
- Бревна.
- ДВП.
- Рубероид.
- Крепежные элементы.
- Световые аксессуары.
- Клей ПВА.
- Розетки.
- Клеенка.

Как соорудить основу для сарая
Из этой статьи вы сможете узнать о том, как построить сарай своими руками. Любая стройка начинается с заливки фундамента. Чтобы постройка выдержала необходимо надежное и прочное основание.
Для строительства основания сарая можно использовать фундамент столбчатого, монолитного, ленточного и свайно-винтового типа. В основном для такой постройки выбирают столбчатый тип основания.
- Для начала вам необходимо разметить площадь фундамента. Для этого можете воспользоваться рулеткой, шнуром и различными колышками. Рулеткой измеряются ширина и длина будущей конструкции. Все параметры должны быть максимально точными.
- Чтобы установить столбы необходимо по периметру: в углах и местах пересечения перегородок вырыть небольшие ямы глубиной около 50-70 см (можно и глубже, но это зависит от промерзания грунта). Самое приемлемое расстояние между столбами — 1.2 — 1.5 м.
- Установить опоры из асбестовых труб, заполненных арматурой и бетоном или кирпичные столбы — это на Ваш выбор. После установки столбов обязательно проверьте ровность при помощи строительного уровня.
- Затем место вокруг опор необходимо засыпать смесью с песком и гравием на 150 мм высоты ямы, а остальное залить бетоном.
- Теперь надо «отдохнуть» фундаменту несколько дней. Для того чтобы основание Вашего сарая прослужило долго, перед засыпкой и бетонированием можно обработать столбы специализированной мастикой.
Советуем прочесть статью портала:Как замесить качественный раствор бетона самостоятельно

Скелет сарая из дерева
Если фундамент уже готов, то теперь начинаем сборку каркаса сарая. Перед укладкой деревянных брусков проверьте, чтобы все дерево было обработано специальным антисептиком. Это позволит дереву дольше сохраниться. Наиболее распространенным средством является пропитка с колером. Им очень удобно пользоваться и те места, которые не обработаются их будет не очень заметно.
Укладываем деревянные брусья на готовое основание. Размеры бруса выбирайте в соответствии с размерами вашей будущей постройки.
Обшивка сарая
Каркас сарая
Каркас сарая на видео-уроках и четко виден этот момент, как начинают сооружать с нижней обвязки
Важно, чтобы материалы для данной части конструкции обладали высоким качеством, поскольку на ней будет держаться все сооружение
Каркас деревянного сарая возводится следующим образом:
- На столбики опоры зафиксируйте листы рубероида для гидроизоляции конструкции;
- Выполните нижнюю обвязку из брусьев, размера 100х100 мм.;
- На основу закрепите лаги, расстояние между которыми должно составлять 500-600 мм.;
- При установке досок следует учитывать, что нужно оставлять место для оконных и дверных проемов. Для их обустройства используют материал меньшего размера. Для фиксации проемов устанавливают вертикальный брус. На них будут крепиться створки окон и двери;
- Зафиксируйте стойки на каркасе с помощью гвоздей или металлических пластин. Рекомендуемое расстояние – 600 мм. Однако шаг можно увеличить, но сделать его не более 1,5 м. – это максимальное растение между стойками;
- Выполните верхнюю обвязку так же, как и нижнюю;
- Укрепите каркас односкатного сарая укосинами. Внизу боковых столбиков зафиксируйте их, а по всему периметру закрепите дополнительные укосины, которые помогут выполнить обшивку строения.
Если выполняется каркас сарая с односкатной крышей, то после возведения конструкции следует сделать кровлю. Для этого потребуются доски, размером 50х100 мм. Чтобы сделать крышу, на ребро фиксируются доски, которые оставлены для стропил.
Длина материала должна быть больше ширины сарая, чтобы крыша выходила за пределы конструкции. Кровлю можно покрыть ондулином. Для этого фиксируется обрешетка с шагом 400 мм. и укладывается настил. После этого сарай обшивается ОСП или другим материалом, устанавливаются окна и дверь, и выполняется декорирование конструкции.
Материалы и технология постройки
Существует список подходящих для стройки материалов, каждый из которых имеет свои плюсы и минусы. Есть как дешевые варианты, обеспечивающие минимальный комфорт, так и более дорогие и редкие.
Выбор материала будет зависеть от финансовых возможностей, назначения хозпостройки, срока ее эксплуатации.
Пеноблоки
Пеноблоки можно назвать недорогой альтернативой кирпичу. Они не выделяют токсинов, не горят, хорошо сохраняют тепло внутри сарая и не допускают распространение грибков и плесени.
Сарайчик из пеноблока
Просто так ставить пеноблоки нельзя, для начала требуется залить фундамент. Также желательно провести дополнительную отделку, поскольку такие материалы смотрятся не слишком эстетично. И к тому же срок службы увеличивается в случае отделки такого материала.
Кирпичи
Один из самых надежных вариантов для постройки сарая на даче. Кирпичи долговечны, хорошо защищают от температурных перепадов и распространения плесени. Не нуждаются в отделке из-за привлекательного внешнего вида.
Сарайчик для дачи из кирпичей
Перед установкой понадобится фундамент. Если в сарае будут подолгу находиться люди – придется заняться утеплением.
Плиты OSB
Плиты osb недорогие и не нуждаются в фундаменте. Они также защищены от гниения, но требуют дополнительной покраски.
Каркасный сарайчик для дачи из ОСБ
Минусом здесь служит непривлекательный внешний вид, поскольку даже крашеный OSB выглядят не очень. Срок использования сарая из таких листов не большой. Подойдет для временной постройки.
Деревянный каркас
Деревянные каркасы имеют хорошее соотношение в цене и качестве. Создавать что-либо из них – одно удовольствие, при этом перед установкой достаточно сделать небольшой столбчатый фундамент. Отлично подойдет для дальнейшей отделки стен деревом, листами ОСБ, ЦСП, профнастилом.
Каркасный сарай из дерева
При наличии достаточного количества пиломатериала, можно стены каркасного сарая поднять деревянным брусом. После хорошей обработки древесины, такой сарай на даче прослужит достаточно долго.
Сарай для дачи из бруса
Также отделку стен каркасного сарая можно выполнить более дешевым материалом – горбылем.
Сарай из горбыля
После постройки требуется обработать все средствами от гниения, насекомых и т.д.
Металлический каркас
Для металлического каркаса нужны инструменты для работы по металлу. Из-за своей крепости, компактности и цены считается одним из лучших материалов для покупки. Из дополнительных преимуществ можно выделить отсутствие надобности в мощном фундаменте, а также легкость установки.
Каркасный сарай для дачи из металла
Для отделки стен подойдет также листы ОСБ, ЦСП, профнастила.
Контейнерный хозблок
Специфичный вариант, который не рекомендуется покупать для дома, поскольку он больше подходит для строительной площадки. Представляет собой металлический контейнер с небольшими окнами и отталкивающим внешним видом.
Сарай для дачи из металлического контейнера
Может иметь сборно-разборную конструкцию. Из плюсов можно выделить крепость, цену и быстрое перемещение за счет спецтехники. На некоторых участках хозблоки используются в качестве летней кухни, душевой, туалета и т.д.
Используется в качестве временного сарая, чаще всего остававшегося после окончания постройки дома.
Как построить хозблок: выбор места для строительства сарая на дачном участке
Определение места расположения хозяйственного блока должно учитывать санитарные и строительные нормы. Поэтому без учета плана земельного участка и составления точного чертежа просто не обойтись.
Перед возведением сарая нужно учесть следующие требования:
- Расстояние от жилого дома до птичника или объекта для содержания скота должно составлять более 12 м.
- Но при этом, если хоз. постройка имеет смежную (примыкающую) к дому стену, то расстояние между их входными дверями должно составлять не менее 7 м.
- Расстояние от забора до сарая с инвентарем должно составлять более 1 м, от забора до птичника, свинарника — не менее 4 метров.
- Сток воды с крыши должен осуществляться на участок владельца, а не на соседский участок или на проход (дорожку) между соседними участками.
На заметку! Обязательно от дома к сараю нужно сделать дорожку, которая обеспечит простоту перемещения. Нелишним будет и хорошее освещения сарая, независимо от особенностей его эксплуатации.
Обустройство бытовки
Наружные стены вагончика-бытовки обшивают вагонкой или плитами ОСБ, если предполагается отделка под покраску. В этом случае свесы по периметру крыши недостаточно велики, или само строение располагается на открытой площадке, наружные стены лучше всего зашить профилированным кровельным листом. По верхней и нижней кромке листа вырезаются вентиляционные окна, или лучше построить самостоятельные продухи для водяного пара.
Внутренняя отделка бытовки
В том случае, если здание планируется построить с последующим перепрофилированием под баню или гостевой домик, то наилучшим вариантом отделки считается облицовка стен и потолка обычной вагонкой.
После двух-трех лет эксплуатации бытовки материал темнеет, по нижней кромке может появиться темный налет сырости и даже плесени, поэтому для стен редко используют что-либо другое.
Исключением остается санузел и душевой блок бытовки. В этом случае стены и потолок лучше всего сделать на основе пластиковых панелей.
Освещение в бытовке
По правилам пожарной безопасности в обязательном порядке должны освещаться выход из помещения и место установки нагревательного прибора, печки, калорифера. Остальное помещение оборудуют освещением по собственному усмотрению. Обычно бытовку делят на две части, в которых нужно сделать плафонные светильники, — на санузел и зону отдыха.
Всю электропроводку бытовки монтируют в металлических гофрах. Все линии должны располагаться поверх облицовки стен. Место под ящик с автоматом защиты и пакетниками выбирают так, чтобы рабочая панель освещалась потолочным светильником.
Водоснабжение и канализации в бытовке
Подвод воды и сливных коммуникаций вовнутрь помещения выполняется через черновой пол вагончика. Чтобы трубы не перемерзли в зиму, под канализацию и водопровод в грунте строят кессон или коллектор, утепляют пенополистиролом и закрывают пластиковым коробом.
Для мобильных и летних вариантов вагончика можно построить подключение к воде и стоку с помощью гибких и гофрированных труб.
Характеристика
Хозблок – это небольшое строение, которое каждый использует по своему усмотрению. Изначально их возводили для того, чтобы хранить инвентарь и другие инструменты в одном месте. Однако со временем, хозблок из бруса для дачи стали использовать в качестве летней кухни, где можно немного отдохнуть от работы на приусадебном участке и даже приготовить обед. Некоторые даже умудрились устанавливать так душ, чтобы охладиться там после жаркого трудового дня.
Красивый хозблок
Хозблок может отличаться по внешнему виду и внутреннему разграничению. Например, хозблок из бруса 3х6 позволяет разделить его на 2 комнатки, одну из которых оборудовать для отдыха, а другую – для хранения вещей.
Сарай из металлических пластин
Материалы и проекты – из чего и что строить
Строительство начинается с фундамента, завершается крышей. Особого выбора в материалах тут нет. Фундамент делают ленточный или столбчатый. Для ленточного нужен песок, цемент, щебень или бетонные блоки. Столбчатый делают из кирпича или камня. В последнее время используют асбоцементные трубы, которые заливают бетоном. Покрывают хозблок обычно недорогим материалом: шифером или профнастилом.
Возведение стен нередко ставит дачника перед проблемой выбора материала. Исходить следует из нескольких факторов: стоимости, трудоемкости, теплозащиты, если в хозблоке собираются жить зимой. Дешевый материал сэкономит средства, а легкий (панели, газобетон) позволит устроить более дешевый фундамент. Крупные блоки, щиты,сип-панели, доски, профнастил для стен значительно ускорят строительство.
Разобравшись с материалом, определяемся с назначением и, соответственно, с размерами, делаем чертежи. Самая маленькая бытовка-кладовая, которая может служить и временным пристанищем, имеет размеры 3,5×2,5 м. Если рассчитываем иметь в хозблоке склад, комнатку, отделенную перегородкой, уголок для приготовления пищи, понадобятся размеры 4,5×3,0 м. В обоих случаях место для санузла найти невозможно, придется туалет и душевую кабинку устраивать во дворе. Хозблок 6×3 позволит разместить с минимальными удобствами все необходимое для проживания.
Каркас сарая из доски
Каркас сарая своими руками возводится без использования специальной техники. Он легко собирается с помощью строительных инструментов.
Чтобы возвести каркас сарая из доски, потребуется материал, размер которого составляет 100х50 мм. Строительство начинают только после полного застывания фундамента, если конструкцию ставят на опору. Первое, что делают – собирают нижнюю обвязку сарая из бруса 100х100 мм. своими руками. Далее из досок выполняют лаги для пола. Шаг между материалом должен составлять 500-600 мм. Затем фиксируют вертикальные стойки.
На заметку Доски фиксируют по всему периметру на расстоянии 500-600 мм. между собой. Для усиления конструкции в углах крепят укосины. После этого выполняется верхняя обвязка сарая.
Каркас сарая из бревна
Каркас сарая из бревна пользуется наименьшей популярностью. Это объясняется тем, что материал очень тяжелый, и возводить из него конструкцию в одиночку не получится. В этом деле потребуются помощники. Еще один недостаток бревен – высокая цена. По этой причине специалисты рекомендуют остановить свой выбор на досках или на брусе. Однако из бревен получается более надежный каркас сарая. Для возведения такого сооружения рекомендуется нанять бригаду профессиональных мастеров.
Перед возведением любой хозяйственной постройки рекомендуется выполнить чертеж каркаса сарая. Рекомендуется заказать проект у профессионалов. Существуют типовые чертежи со стандартными размерами, из числа которых можно выбрать наиболее подходящий вариант. Проекты деревянного сарая имеют доступную стоимость.
Силовой каркас сарая.
Однако схема каркаса для сарая своими руками не так сложна, как, например, чертеж дома, поэтому можно выполнить ее самостоятельно. Для этого рекомендуется воспользоваться в качестве примера чертежами из интернета. При этом, когда выполняется схема каркаса сарая, следует учитывать свои размеры конструкции.
Технология строительства сарая
Есть три способа, которые можно использовать при возведении хозяйственного помещения на дачном участке:
- каркасная технология;
- монолитное строительство;
- модульная постройка.
Самым популярным методом при возведении сараев считается каркасное строительство. Главное условие этой технологии — создание надежного каркаса из деревянных брусков или профильной трубы. Так называемый готовый скелет здания потом требуется обшить панелями, деревом или плитами. Каркасная технология чаще всего применяется, если необходимо быстро и дешево построить сарай из досок своими руками. При этом сооружение будет обладать нужной прочностью и надежностью.
Монолитное строительство — это возведение помещения из материалов в виде пенобетона, кирпича, бревенчатого сруба или газобетона. Здание, построенное по этой технологии, будет долговечным и капитальным. Хотите построить на даче сарай из блоков подешевле? Тогда вам необходимо использовать пено- или шлакоблоки.
Хозяйственное помещение, построенное модульным способом, состоит из металлических или пластиковых готовых модулей. Применяются специальные крепежные детали для соединения между собой строительных элементов. Главная особенность — мобильность сооружения, так как в будущем его можно будет разобрать и переместить.
Подведение итогов
Не важно, для каких целей построен дачный сарай, его вид должен радовать глаз. К этому делу лучше подойти с желанием и фантазией
Можно использовать любые материалы, выбор не ограничивается деревянной обшивкой, важен подход к делу. При выборе дизайна можно обойтись без помощи профессионалов, как и при изготовлении самой конструкции.
https://www.youtube.com/watch?v=PXCBmro5AAU
Но если с умом подойти к этому делу, строить с творческим подходом, то результат будет радовать хозяев и соседей еще многие годы. Чем многофункциональней будет помещение, тем лучше. Со временем его можно превратить в жилое помещение, место для летнего отдыха, подсобных работ, уютной кладовки. Пусть маленькое чудо станет достоянием дачного участка.
Как итог – про экономическую целесообразность строительства сарая «под ключ»
Если нет опыта строительных работ или попросту не хватает времени заниматься постройкой сарая, то услуга «под ключ» это то, что вам нужно. При подписании договора вашей задачей будет только выбрать подходящую конструкцию, а все остальное сделают мастера строительной компании. Это значит, что вам не придется ломать голову, где достать инструмент, как и когда приобретать стройматериалы, искать рабочих и следить, чтобы они правильно выполняли свою работу.
Специалисты строительной компании подготовят стандартный или персональный проект и построят дачный сарай. Кроме того, они смогут выполнить полную внутреннюю отделку и оборудовать полками и стеллажами. В результате вы в течение нескольких дней получаете добротную постройку с удобно организованным пространством.
Примеры красивых проектов хозпостроек смотрите на видео:
Разобравшись, сколько стоит построить сарай, можно прийти к выводу, что затраты на качественную постройку для загородного участка сложно назвать копеечными, но если работа выполнена профессионально, вложенные средства с лихвой окупятся. Удобная подсобка послужит не только самому хозяину, но и его внукам.



































