Водоснабжение для холодной и горячей воды, сантехника
Система водоснабжения — совокупность строительных конструкций, которые производят забор, очистку, снабжение воды жителям населённых пунктов. Система централизованного водоснабжения включает: источник воды, насосные сооружения, фильтры, трубопроводные магистрали, резервуары.

Водоснабжение в жилище состоит из:
- обратного клапана;
- вентилей (сливные, запорные);
- фильтров;
- гидроаккумулятора, гибкой подводки к нему;
- труб;
- реле давления;
- манометра;
- коллектора;
- санузла;
- тройника (раковина, ванная, унитаз);
- смесителей;
- предохранителей;
- водонагревателей.
Важно! Схему системы водоснабжения составляет проектировщик. От планировки строения, способа добывания (централизованное, автономное) будут отличаться её элементы. Жители частных секторов проектируют макет независимого водоснабжения, состоящего из:
Жители частных секторов проектируют макет независимого водоснабжения, состоящего из:
скважины;
- насоса;
- обратного клапана;
- гидроаккумулятора;
- автоматического устройства управления насосом;
- фильтров;
- водонагревателя;
- смесителей;
- санузла.
В ванной комнате необходимо проложить водопроводные магистрали. Не имеет значения — это централизованный источник или автономный, трубопроводы укладывают одинаковым образом.

Фото 1. Процесс прокладывания водопроводной магистрали для ванной комнаты. В стене делаются специальные каналы для труб.
Жильцы квартир пользуются централизованной системой водоснабжения. В частных домах проводят внутренние, внешние работы. Здесь придётся вложить средства, чтоб пробурить скважину, приобрести насосную установку. Трубы проходят под землёй, позаботьтесь об их утеплении или увеличьте глубину проложения. Это убережёт от замерзания воды зимой.
Автономное водоснабжение включает фильтры. После выполнения внешних работ, переходят к подведению воды в дом. Суть установочных работ такая же, как с централизованной, за исключением установки автоматики для управления насосной станцией. Насос работает на электроэнергии. Подумайте о резервуарах для запаса воды на случай отсутствия электричества.
Справка. Для удобства при проведении ремонта необходимо установить отдельные водозапорные вентили для санузла, кухни. Слив в таком случае производят не из всей сети.
Основу водопроводной конструкции составляют трубы. Определитесь с материалом, который будете использовать. Металл подходит для внутренних, внешних работ. Он долговечен, сравнительно недорогой. Единственный минус — коррозия.
Медные стройматериалы — легче, не поддаются ржавчине, выдерживаю сверхнизкие и сверхвысокие температуры, убивают микробы; минус — дороговизна. Срок службы — свыше семидесяти лет.

Фото 2. Водопроводная разводка с использованием медных труб. Конструкция из этого материала прослужит очень долго.
Полибутилен используется для частного дома. Он не подвергается ржавчине, переносит низкие, высокие температуры.
Полипропиленовые изделия подойдут для холодного, горячего водоснабжения.
Металлопластиковые стройматериалы применяют для внутренних установок в квартирах, домах. Они монтируются в стены, чтоб избежать повреждения.
Гибкую сантехническую проводку устанавливают для раковин, стиральной машины.
Пластиковые изделия при бережной эксплуатации прослужат до 50 лет.
Внимание! Водопроводные магистрали кладут ниже систем газовых, электрических коммуникаций. Трубу с горячей водой устанавливают над холодной. Для подведения горячей воды учитывайте отдалённость смесителя от прибора для нагрева (водонагреватель, двухконтурный котёл)
К обогревательному устройству подводят трубу с холодной водой, в смесителях устанавливают две трубы, идущие параллельно, для холодной и горячей подачи воды. Если точка потребления расположена очень далеко от бойлера/котла, прокладывают третью трубу для циркуляции воды в системе
Для подведения горячей воды учитывайте отдалённость смесителя от прибора для нагрева (водонагреватель, двухконтурный котёл). К обогревательному устройству подводят трубу с холодной водой, в смесителях устанавливают две трубы, идущие параллельно, для холодной и горячей подачи воды. Если точка потребления расположена очень далеко от бойлера/котла, прокладывают третью трубу для циркуляции воды в системе.
технология проектирование системы отопления водоснабжения канализации
проектирование водоснабжения
Проектирование системы водоснабжения, отопления и канализации является одной из ключевых задач при строительстве и ремонте любого здания. Работа такой системы напрямую влияет на комфорт жизни людей и экономические показатели здания
Поэтому важно грамотно спроектировать все три системы еще на стадии проектирования здания
При проектировании водоснабжения необходимо учитывать максимальное суточное потребление воды и рассчитать емкость резервуаров, установить насосы для подачи воды в нужные точки, выбрать системы очистки воды и определить диаметр трубопроводов.
Отопление также требует серьезного внимания при проектировании здания. Количество радиаторов, мощность котла, наличие дополнительных систем обогрева, например, теплый пол, все это должно быть правильно спроектировано, учитывая особенности здания и климатические условия в регионе.
Система канализации должна соответствовать не только нормам и правилам безопасности, но и удобству использования. Рассчитанная правильно система помогает избежать засорений и неприятных запахов.
Разработка таких систем требует специалистов высокой квалификации и использования современных технологий. Наша компания предоставляет услуги по проектированию водоснабжения, отопления и канализации, используя опыт и новейшие методы проектирования.
Мы проводим детальный расчет и выбираем оптимальные решения для каждого конкретного здания, учитывая особенности объекта и пожелания заказчика. Наши специалисты участвуют во всех этапах работы, начиная от разработки проектной документации и заканчивая пусконаладочными работами.
Обращаясь к нам, вы можете быть уверены в том, что ваше здание будет оснащено качественной и надежной системой водоснабжения, отопления и канализации, соответствующей всем текущим стандартам и требованиям.
Обеспечение нормальной подачи воды в любую точку строительного объекта достигается благодаря предварительному составлению проекта. Это позволяет учесть все особенности строения здания, чтобы принять эффективные решения относительно прокладки трубопроводов и установки различных систем.
Качественное проектирование водоснабжения можно заказать в нашей компании по низкой цене. Работы выполняются специалистами с большим опытом, готовый проект предоставляется через короткий промежуток времени. Оформление документации осуществляется в соответствии с действующими стандартами.
Системы водоснабжения и канализации
Такие инженерные сети, как отопление водопровод канализация, можно оборудовать только после того, как будет определен источник поступления воды.
Организация автономного водоснабжения
При отсутствии возможности подключиться к центральному водопроводу, остается два варианта организации системы водоснабжения:
- Колодец;
- Скважина.
Чтобы сделать правильный выбор, следует определиться, сколько литров воды в сутки требуется семье. Сделать это несложно. Один человек потребляется в сутки примерно 220-320 литров воды (в зависимости от обеспечения дома сантехническими приборами). Достаточно перемножить эту цифру на количество членов семьи, чтобы узнать требуемый суточный объем воды.
Колодец способен обеспечить подачу примерно 100-150 литров за один час, в то время как скважина может обеспечить подачу объема, который больше на порядок. Однако сооружение скважины обойдется намного дороже строительства колодца, поэтому домовладелец должен оценить все факторы, прежде чем выбрать вариант подачи воды.
Устойчивая работа таких систем как отопление водоснабжение канализация загородного дома обеспечивается их грамотным проектированием и монтажом. Так, в систему автономного водоснабжения рекомендуется включать мембранный бак, который можно расположить в подвальном помещении или на нижнем этаже дома.
Данный бак представляет собой емкость небольшого объема (до двухсот литров). Благодаря использованию бака удается снизить расход электроэнергии и увеличивает срок эксплуатации насоса.
Принцип работы установки прост:
- Вода накачивается в бак до заданного объема.
- После того, как уровень воды достигнет заданной отметки, реле отключит насос.
- Когда в доме открывают водопроводный кран, вода начинает поступать из бака.
- Забор из бака может продолжаться до тех пор, пока уровень воды не достигнет нижней отметки.
- После снижения уровня воды в баке реле включает насос на подачу.
Организация автономной канализации
Как уже упоминалось, монтаж систем отопления, водоснабжения и канализации должен осуществляться одновременно. Ведь пользоваться водопровод при отсутствии эффективной системы отведения стоков будет очень некомфортно.
Кроме внутренних сетей, которые можно собрать самостоятельно и обслуживать без помощи сантехника, нужно собрать наружный трубопровод и установить очистное сооружение.
Чаще всего, загородные дома оборудуют септиками или станциями глубокой биоочистки. Это оборудование выпускается промышленностью, причем в продаже есть модели разной производительности. Модификацию следует выбирать, исходя из суточного количества образуемых стоков.
Септиками принято называть многокамерные сооружения, где стоки отстаиваются и очищаются при помощи анаэробных бактерий. Основное условие эффективности работы септика – устройство полей фильтрации для доочистки воды. Установки достаточно неприхотливы, не требуют особого ухода. Примерно раз в год нужно будет очищать камеру отстойник от накопившегося осадка.
В локальных установках для биочистки используется комбинация способов очищения стоков, поэтому на выходе образуется технически чистая вода, не требующая доочистки. Такие станции являются энергозависимыми, то есть требуют подключения электропитания. Кроме того, они чаще выходят из строя, поэтому нужно быть готовым к ремонту.
Таким образом, комфортное проживание в доме требует обустройства и обслуживания внутренних систем отопления, водоснабжения и канализации. Эти работы могут быть проведены своими силами, без оплаты услуг сантехника.
Подготовка к проведению водопроводных и канализационных труб в квартирах
Приобретая квартиру в новом многоэтажном доме, любой владелец, прежде всего, столкнется с первоочередной задачей – сделать ремонт и смонтировать главные коммуникации. Как правило, в типичной новостройке будет установлена только отопительная система. Сначала предстоит монтаж водопровода и канализации.
Для этого требуется нарисовать схему разводки труб в соответствии с установкой сантехники. Нужно заранее определить, в каком месте помещения будут располагаться ванна, унитаз и необходимая бытовая техника. В этом случае целесообразно разработать проект (можно обратиться к профессиональному дизайнеру)
При этом важно помнить об удобстве использования элементов сантехники и начертить схему трубопровода правильно
Разводка водопроводных труб
проектирование систем горячее водоснабжение
Проектирование систем холодного водоснабжения
Системы холодного водоснабжения являются важным элементом комфорта и безопасности в любом жилом или коммерческом здании
Важно проектировать такие системы правильно, учитывая множество факторов для того, чтобы обеспечить высокое качество водоснабжения и предотвращать аварийные ситуации
Проектирование систем холодного водоснабжения включает в себя множество этапов, начиная от анализа и определения потребностей здания и его пользователей, выбора подходящих материалов и оборудования, и заканчивая созданием проектной документации и контролем качества выполнения работ.
Проектирование систем горячего водоснабжения
Системы горячего водоснабжения являются не менее важным элементом в жилых и коммерческих зданиях. Они нужны для обеспечения комфорта и гигиены, а также для различных технологических нужд. Корректное проектирование и установка таких систем позволяют снизить расходы на энергию, улучшить помещения и повысить их комфортность.
Проектирование систем горячего водоснабжения может включать в себя такие этапы, как анализ потребностей, выбор наиболее подходящего оборудования, проектирование и установку трубопроводов и отопительного оборудования, а также тестирование и настройку системы.
В конечном итоге, правильное проектирование систем холодного и горячего водоснабжения является важным этапом в строительстве любых зданий. Наша компания специализируется на проектировании и установке систем водоснабжения, и мы с готовностью поможем нашим клиентам создать системы, которые будут отвечать их потребностям и ожиданиям. Свяжитесь с нами, чтобы узнать больше о наших услугах.
Водопровод

Водопровод
Водопроводная система обеспечивает подачу воды к потребителям — сантехническим приборам.
О его необходимости в доме, думаю, даже не стоит и упоминать.
Водопровод можно классифицировать по способу исполнения:
- с наружной разводкой, когда все трубы и соединения расположены вдоль стен;
- внутристенные, когда трубы прокладываются в пробитых в стенах штробах, а затем прячутся под штукатуркой.
А также по используемым при его прокладке материалам:
- из стальных труб (сейчас практически не используется);
- металлопластиковый;
- пластиковый.
Водопровод служит для подачи к сантехническим приборам как холодной, так и горячей воды. (См. монтаж водопровода из полипропиленовых труб)
Производство работ
В местах пересечения с действующими и проектируемыми трубопроводами, для обеспечения сохранности стыков труб, засыпку траншеи производить песком по ГОСТ 8736-93 согласно СНиП 3.02.01-87 п.4.14. При пересечении трубопроводами проездов, обратную засыпку траншей на этих участках выполнить песком на полную глубину траншеи с послойным уплотнением.
Пересечение проектируемой канализации с существующей теплотрассой выполнено в стальном футляре ∅377х7 L=6,0м открытым способом. Пересечение проектируемого ввода водопровода с существующей канализацией и теплотрассой выполнено в стальных футлярах ∅273х6 L=10,0м и L=4,5м открытым способом.
При прокладке водопровода в стальном футляре, на концах его рабочую трубу заделать в гильзы L=0,30м, зачеканив пространство эластичным материалом (каболкой), а между футляром и гильзой заделать битым кирпичом на растворе М100. Для предотвращения деформаций труб в футляре, прокладку трубопроводов в них осуществить на опорах №17 с шагом 3 м, согласно т.м. 901-09-9.87.
При прокладке проектируемых сетей канализации в стальном футляре рабочую трубу уложить на подготовку из бетона В7,5, а межтрубное пространство заделать цементным раствором.
Заказ или создание проекта
Соблюдать данное условие нужно обязательно, так как, понадеявшись на «авось», можно не выводить сточные воды из помещения, а, наоборот, вводить их в него.
Прежде всего, это касается учета уклонов, по которым проводится укладка или замена фановых труб и углов поворотов.
В том случае, если уклон будет маленьким, то в трубе образуется засор. В том случае, если не просчитать уклон заранее, можно добиться того, что величина станет отрицательной и вода потечет обратно. Конечно, не в дом, но получиться запор, который постепенно засорится отложениями и полностью перекроет трубу.

Проект системы канализации и водоснабжения
Также важно правильно рассчитать углы поворотов. Большие воды, такие как фекальные, нельзя удалять под углами, градус которых больше 90. Если вы хотите сделать монтаж идеально, то делайте пологие повороты
Если вы хотите сделать монтаж идеально, то делайте пологие повороты.
Иногда бывает так, что углы укладки оказываются критично маленькими или же вертикальная часть фановый трубы очень высока. В таком случае лучше сделать соединение из двух отводов, расположенных под углами в 45 градусов, а не один прямой отвод.
Отопление
Отопительные системы бывают:
- водяными;
- паровыми;
- воздушными;
- электрическими.
Самая простая и надежная система – водяная. Вот как она работает: вода (теплоноситель) подвергается нагреванию в отопительном котле и затем по трубам поступает в радиаторы. Находясь в них вода, отдает свое тепло и возвращается обратно в котел. Данный процесс является цикличным.
Схема водяного отопления
Виды схем отопления
Существуют однотрубные и двухтрубные схемы отопления.
Однотрубная система отопления
Первая выглядит как кольцо с последовательно установленными радиаторами. Носитель тепла перемещается от одного отопительного прибора (радиатора) к другому и затем возвращается в котел. Проблема в том, что в каждый последующий радиатор теплоноситель попадает, теряя свою температуру. Для устранения этого недостатка приходится затрачивать больше топлива для котла.
Двухтрубная система отопления в доме
Двухтрубная схема намного экономичнее первой, поскольку к каждому из отопительных приборов подведена индивидуальная труба для подачи теплоносителя. От каждого из приборов к общему обратному контуру отведено по еще одной трубе, возвращающей теплоноситель в котел.
Что нужно знать при монтаже отопительной системы своими руками
Не забывайте делать обвязку всех составляющих системы. Например, с помощью льняных нитей. Это очень важный момент, непосредственно влияющий на качество работы и долговечность отопительной системы.
Основные правила монтажа:
- отопительные радиаторы в обязательном порядке необходимо размещать только возле окон;
- расстояние от подоконника до верха радиатора не может превышать 60 миллиметров, а от пола до нижней точки должно быть более 100 миллиметров.
- секции радиаторов во всех комнатах должны располагаться на одинаковом уровне;
- горизонтальное расположение ребер радиаторов запрещено;
- любая отопительная система должна иметь слив, который используется для обязательной замены теплоносителя.
Размещайте радиаторы возле окон
После завершения монтажных работ система заполняется теплоносителем и запускается в тестовом режиме. Обеспечивая давление, которое будет создаваться и во время дальнейшей работы системы, проверяются соединения ее элементов на предмет протеканий. При выявлении последних, система отключается, теплоноситель спускается, а неисправности удаляются.
Чаще всего проблемы возникают из-за нарушений герметичности в местах соединения между собой секций радиаторов или частей труб. Герметичность может быть нарушена из-за некачественной обвязки элементов.
Для чего требуется проектирование коммуникаций?
Проектирование коммуникаций является важным этапом строительства и обустройства жилья. Специалисты будут выявлять тепловые затраты вашего жилья, а еще оценят состояние конструкции (полы, потолки и стены), смогут подобрать строительные материалы, оборудование для прогревание воды и составят смету трат на 1 м 2 . С профессионально сделанным проектом вы сможете определиться со способом установки, размером, а также рассчитать уклон для канализации. Вкладывая средства в проектирование и монтаж коммуникаций один раз, вы сможете обеспечивать себе приятное пребывание в доме.
Схема по разводке отопления и водопровода

Во время замены старых или монтажа новых коммуникаций следует учесть особенности первоначальных строительных материалов и конструкции помещения. Эскиз разводки обязательно должен удобно вписываться в санитарный узел, а еще быть доступным для предположительного ремонта и подходить под интерьер. В квартирах разводка отопления будет спроектирована застройщиками в здании. Разводка водопровода нуждается в перепланировке.
Это можно сделать следующими способами:
- Коллекторным (отводы от раковины, ванны, унитаза будут идти отдельно, а еще они будут сходиться в коллекторной гребенке).
- Последовательным (одна из труб будет на санитарных узлах, а также отдельные вентили).
- Смешанным (некоторые приборы будут разведены через гребенку коллекторов, а остальные вне зависимости от них).
Схема разводки водоснабжения
- В туалете или ванной комнате будет находиться стояк с двумя вентилями.
- Около регулирующего клапана будет тройник, который способен питать сливной бачок.
- Далее приваривают отведение смесителя для ванной и прикрепляют его на трубы.
- Смеситель следует поставить на мойку и подключить все к водопроводу гибкими шлангами.
На фото вы увидите пример коллекторной разводной схемы для водопровода. По красным линиям будет течь горячая вода, а по синим холодная. В частном доме будет такая же схема разводки. Если санитарный узел и кухня будут размещены близко, подойдут и последовательный развод
При наличии нескольких ванных комнат, стоит обратить внимание на схему коллекторного типа. Отопительная система будет в частном сектора создаваться с нуля
Типы разведения отопления могут быть:
- Коллекторным (единый пульт управления, можно отрегулировать температурный режим радиатором, а недостатком станет большой расход материалов).
- Двухтрубные (применяют дроссели на приборы отопления, а радиаторы будут выполнять функцию перемычки между труб).
- Однотрубное, то есть барачный тип (по всему дому прокладывают трубы большого размера, а приборы отопления ставят параллельно).
Хорошая планировка, установка конструкций от инженерных сетей специалистами, использование высококачественных материалов даст шанс проконтролировать все на исправность, а также качество поставляемых услуг. Это станет залогом экономного использования, продолжительной эксплуатации и возможность быть хозяином в удобном и уютном доме.
Стоимость монтажа, примеры, цены, сметы, фото —> здесь .
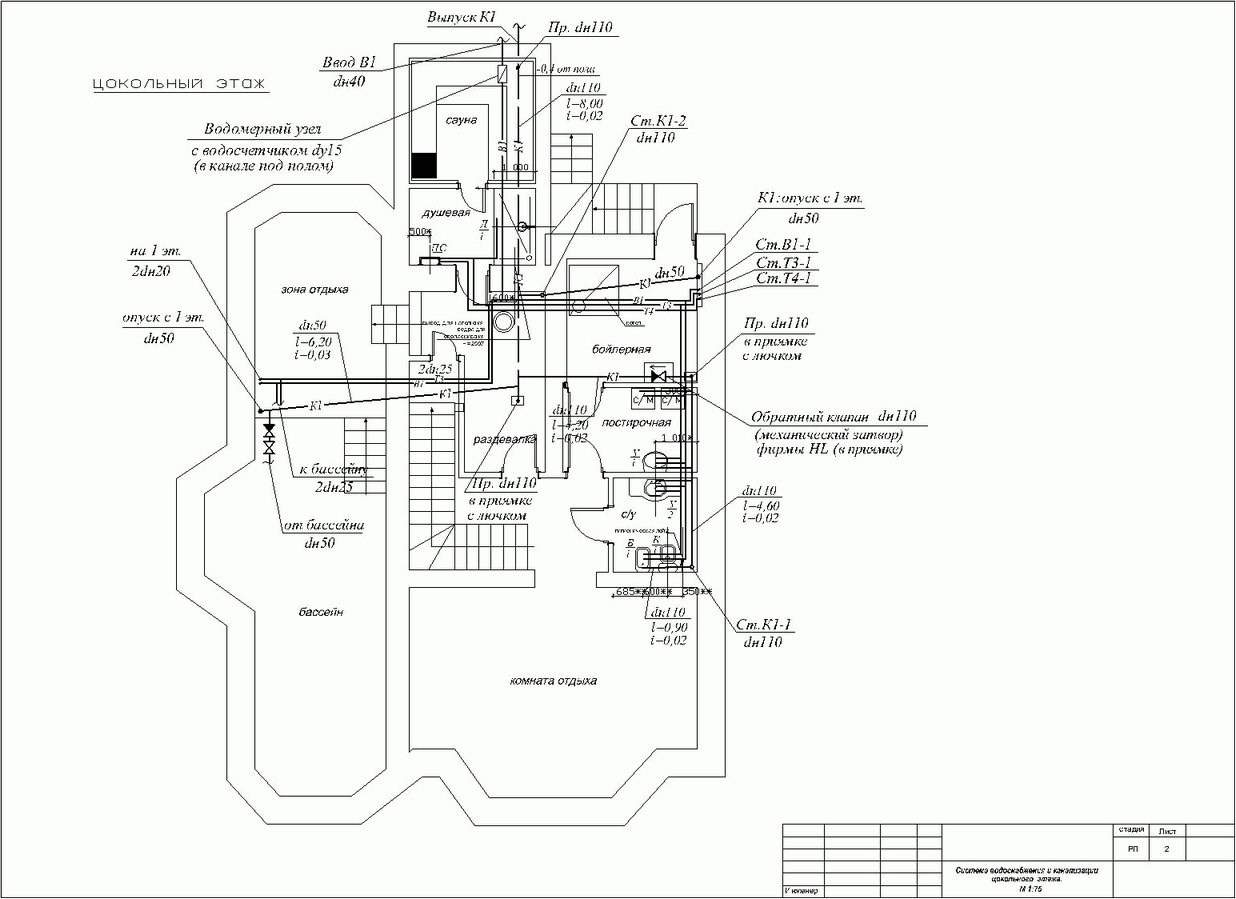
Проект автономной системы водоснабжения и канализации
Автономная система водоснабжения — ваша собственность. Вложив средства один раз, вы расходуете воду по своему усмотрению и никому ничего не платите (кроме оплаты электроэнергии, потребляемой насосом). Вода может подаваться из скважины, колодца либо из ближайшего водоема (обычно для технических нужд). Помимо исходных данных, используемых в проектировании систем ВК при подключении к магистральным трубопроводам, в этом случае необходимо получить сведения об источниках снабжения водой, о размещении отвода стоков и способе их утилизации.
Проект автономной системы водоснабжения для коттеджа учитывает глубину залегания водоносных пластов, так как она влияет, прежде всего, на мощность и производительность насосного оборудования. Рассчитываются также минимальный и максимальный объемы будущего потребления воды, и эти параметры зависят как от количества проживающих, так и от специфики самого частного домовладения (количество санузлов, наличие сауны, бассейна, необходимость в поливе и т.п.). При необходимости в состав водопроводной системы добавляется узел фильтрации и химической очистки. Решение о внесении его в проект зависит от качества воды в источнике и принимается на основании заключения экспертизы, проведенной в лаборатории СЭС или в одной из многочисленных платных лабораторий аналогичного профиля.
Проектирование систем водоснабжения и канализации (нецентрализованный вариант) ведется в соответствии с ГОСТ 21.704-2011. В состав основного комплекта документации проекта ВК включают:
- начальные сведения;
- расчет водопотребления и объема отведения сточных вод;
- поэтажный план дома со схемами подведения воды и отвода стоков;
- чертеж коммуникаций в аксонометрии;
- чертеж дренажной канализации (если необходимо);
- спецификации (необходимое оборудование, материалы);
- схема водомерного узла;
- наличие очистных сооружений и схема подведения к ним стоков.
В зависимости от расположения участка под застройку и характера грунтов на нем проект ВК для загородного дома может включать в себя септик, поля фильтрации, а также дренажную и/или ливневую канализацию.
Другие работы по инженерным системам:
- Водоснабжение и канализация в деревянных домах
- Монтаж канализации дома
- Монтаж водоснабжения дома
- Монтаж отопления дома



































