Выбор оптимальной планировки сарая по чертежам
В зависимости от того какие функции будет выполнять хозблок, определяются с его размерами:
- если в хозпостройке будет храниться только садовый инвентарь и инструменты, размера 1,5 х 1,5 м. будет вполне достаточно. Для хранения используют крючки и полочки на стенах.
- Сарай-мастерскую или кладовку для консерваций строят по больше — 2 х 3 м., также можно пристроить тамбур, чтобы тепло лучше сохранялось в холодный период.
- Если хозпостройка будет выполнять несколько функций, например: сарай — мастерская — летняя кухня, то размеры уже будут — 3 х 4 и больше.
Самое простое решение — это построить сарай прямоугольной формы с односкатной крышей.
Варианты дешевых сараев
Самым дешевым и популярным, является сарай из бруса или необрезной доски. Однако это не единственный вариант. Также для постройки хозблока используют:
- шифер (заборный или кровельный) — такое сооружение выглядит не эстетично и требует обшивки как снаружи, так и внутри;
- пластик — дешевая и мобильная постройка, но не долговечная и малофункциональная;
- пеноблок — такая постройка будет теплой и устойчивой к грызунам, но требует прочную подушку или фундамент.
Хозблоки из вышеперечисленных материалов строятся быстро (2-5дней), но в то же время сооружая такие постройки, хозяева должны задуматься чем обшить сарай снаружи для эстетического внешнего вида.
Особенности
Дачная жизнь начинается не только с благоустройства жилых помещений, но и приусадебного участка. Поэтому, чтобы обеспечить удобное размещение вещей и содержать территорию в чистоте, понадобится садовый сарай. Перед тем как построить такую бытовку, дачник должен определиться с тем, какие функции она будет выполнять. Если планируется сарай для дачи, в котором только разместятся инструменты и садовый инвентарь, то можно воздвигнуть простое строение без фундамента с окнами и хорошей крышей. В том же случае, когда хозяева хотят хранить в нем сено, заготовленные на зиму овощи и фрукты, транспортные средства и содержать птицу, то понадобится более прочная конструкция.
Для строительства хозяйственных блоков закон предусматривает специальные нормативы, поэтому их нельзя возводить без получения разрешений от санитарно-эпидемиологических служб. Кроме этого, стоит учесть, что капитальные сооружения могут затенять грядки на соседнем участке, что приведет к конфликтным ситуациям. Чтобы этого избежать, нужно соблюдать нормы размещения сарая, по которым расстояние от его границ до проезда и границ со стороны улицы должно составлять не менее 5 м. Что же касается расстояний внутри участка, то хозяйственные строения можно устанавливать от домов не менее чем 3 м, других построек – от 1 м, и от деревьев – на 4 м.
Законодательство также гласит, что каждый владелец земельного участка не может ущемлять права соседей. Поэтому размещение сарая следует планировать таким образом, чтобы он никаким образом не мешал другим дачникам. Блоки без содержания птиц и животных рекомендуется устанавливать по бытовым и санитарным нормам на расстоянии 6 м от смежных территорий. До того как регистрировать сарай, нужно также получить разрешение от противопожарных служб. Для этого представители МЧС выедут на место и сделают оценку план-схемы и сделают заключение технической характеристики объекта.
После того как вся документация будет в порядке, можно смело приступать к строительству и обустройству сарая.


Обустройство кровли и обшивка стен
Крыша сарая односкатная
Прикрепите к выставленным вертикальным опорным стойкам верхнюю составляющую каркаса сарая. Предварительно подготовьте в брусе пропилы по размеру стоек. Соединения фиксируйте уголками и саморезами.
Традиционно сараи комплектуются односкатными кровельными конструкциями. В данном случае длина деревянных стоек с одной стороны должна превышать длину противоположных опор.
Обрешетка для укладки мягкой кровли на крышу
Такое размещение в дальнейшем поспособствует эффективному отведению осадочной влаги с поверхности кровли.
Обустройте стропила кровельной конструкции из досок толщиной 4-5 см. По длине стропила должны приблизительно на 50 см превышать длину каркаса.
В местах сопряжения стропил с брусьями предварительно сделайте врубки. Уложите стропила на каркас и закрепите с помощью саморезов. Шаг установки стропил – 40-50 см.
Обработайте каркас антисептическим средством. Прикрепите к каркасу доски обрешетки. Оптимально подходят доски размерами 2,5х15 см.
Односкатная крыша
Крыша из досок требует обязательного обустройства гидроизоляционного слоя. Традиционно для влагоизоляции используется рубероид. Если планируется монтаж более красивого финишного покрытия, гидроизоляцию обустраивайте из полиэтиленовой пленки.
Финишное покрытие выбирайте на свое усмотрение. Можете уложить металлочерепицу, профлист, еврошифер и пр.
Для обшивки стен строения подойдет вагонка, также можно закрепить ДСП, доски и прочие подобные материалы. Сначала обшейте фронтальную сторону сарая, а после выполните облицовку боковых и задней стен. Доски крепите без зазоров.
Вариант конструкции односкатной крыши
При необходимости обработайте внешнюю сторону досок электрическим рубанком. Обычно подобная обработка нужна только при обшивке стен досками. Благодаря этому материал станет более привлекательным внешне, да и дождь на гладкой поверхности задерживается гораздо меньше.
При желании можете покрасить стены сарая. Для покраски таких построек лучше всего подходят масляные и водоэмульсионные составы.
Покраска сарая
Внутреннее обустройство готового сарая выполняйте на свое усмотрение. Если постройка предназначена для хранения разного рода инструментов и принадлежностей, установите по периметру удобные стеллажи и полки. Стеллажи позволяют максимально эффективно использовать имеющееся пространство и беспрепятственно получать доступ к нужным вещам.
Стеллажи и полки можете купить в готовом виде либо же сделать самостоятельно, к примеру, из досок, ДВП, остатков мебели и пр.
На этом сарай готов. Вам остается лишь подвести к нему электропроводку, если в этом есть необходимость, и установить требуемые приборы.
Готовый сарай
Удачной работы!
Чертеж сарая из блоков
Сарай из блоков — это функциональное и долговечное строение, которое можно использовать для хранения инструментов, садовой техники и прочих необходимых в хозяйстве предметов. Построить такой сарай можно своими силами, при наличии некоторых навыков строительства и подходящих материалов.
Список материалов:
- Бетонные блоки (количество зависит от планируемого размера сарая)
- Цемент для замеса раствора
- Песок
- Вода
- Древесина для обшивки крыши и дверей
- Гвозди/винты
- Кровельный материал (например, профнастил или металлочерепица)
- Металлические уголки и анкерные болты для укрепления конструкции
- Краска или антисептик для обработки древесины

Сначала необходимо выбрать подходящее место для сарая. Оно должно быть удобно расположено и иметь хороший доступ. Отметьте периметр сарая, проконтролируйте его уровень. Подготовьте основание для сарая. Выкопайте траншеи под фундамент, залейте их бетонной смесью. После того как бетон застынет, можно начинать кладку стен. Подготовьте раствор из цемента, песка и воды. Начните кладку стен с углов, выравнивая каждый ряд блоков по уровню. По мере возведения стен, устанавливайте металлические уголки для дополнительного укрепления конструкции. Используйте анкерные болты для крепления уголков к блокам.

После того как стены будут готовы, приступайте к установке крыши. Установите деревянные балки и покройте их кровельным материалом. Создайте двери из древесины и установите их на место. Также вы можете сделать и установить окна, если это необходимо. Покрасьте или обработайте древесину антисептиком для защиты от влаги и вредителей. После завершения работ, убедитесь, что сарай устойчив и надежен. Проведите внешнюю и внутреннюю отделку по своему усмотрению. Наконец, убедитесь, что сарай сухой и готов к использованию.

Бетонные блоки — основной материал для строительства сарая. Они обладают высокой прочностью, долговечностью и не требуют специального ухода.

| Производитель | Описание | Характеристики | Цена за блок |
|---|---|---|---|
| «Стройкомплект» | Бетонные блоки из высококачественного бетона с добавками. | Размеры: 390х190х188 мм, Марка по прочности: М200 | 75-85 руб. |
| «Бетонный двор» | Блоки из тяжелого бетона, идеально подходят для возведения стен. | Размеры: 390х190х188 мм, Марка по прочности: М150 | 70-80 руб. |
| «БетонСити» | Блоки из легкого бетона, применяются в небольших строениях. | Размеры: 390х190х188 мм, Марка по прочности: М100 | 65-75 руб. |
| «Бетонмастер» | Блоки с повышенной прочностью, подходят для строительства в сложных условиях. | Размеры: 390х190х188 мм, Марка по прочности: М250 | 85-95 руб. |
| «Стройматериалы 24/7» | Универсальные блоки для строительства любых построек. | Размеры: 390х190х188 мм, Марка по прочности: М200 | 75-85 руб. |






Дизайн сарая ложными «окнами» и накладными элементами
Очень красиво в дизайне сарая смотрятся ложные «окна» и накладные элементы. Для этого ярко раскрасьте рамы для картин и прикрепите к каждому из таких «окон» горшочек с ярким цветком.
Накладные элементы в дизайне сарая – это украшение хозблока при помощи панно и плетеных элементов. Подойдут даже красивые подставки под горячее, а то и снятая с другой постройки дверь, предварительно декорированная «под старину». Можно укрепить на стене живописные коряги, кованую решетку (это идеально, если нужно загородить некрасивую часть стены). «Ложную» ковку можно сделать из самого обычного резинового коврика: покрасьте его краской под медь или под чугун (можно при этом нанести еще и «патину»), а затем прибейте к стене сарая при помощи небольших гвоздиков. Решетка может быть и деревянной, если того требует стиль. Также можно закрепить на стене резные наличники – так, чтобы они образовали какую-либо композицию.
1 Фундамент под сарай – экономия и практичность
Легкие деревянные конструкции, которые будут предназначены для хранения нетяжелой садово-огородной утвари, или же будут отведены для домашней птицы, например, сарай для гусей или мелкой скотины, в монолитном фундаменте не нуждаются. Для таких конструкций вполне подойдет столбчатый фундамент, выполняемый из разных материалов. Самым главным плюсом такого фундамента является его невысокая стоимость по сравнению с монолитным вариантом, да и построить его сможет даже новичок в строительстве! При этом такой фундамент сохраняет высокие эксплуатационные характеристики.

Фундамент на столбах можно обустроить на любом ландшафте, даже на подвижных почвах. Проведение гидро- и теплоизоляционных работ при обустройстве такого основания не является необходимым мероприятием, монтаж осуществляется даже без посторонней помощи. В качестве несущего основания чаще всего создают столбы из бетона, кирпича, естественного камня, пеноблоки, иногда используют и столбики из древесины. Правда, в последнем случае столбики необходимо обжечь и обработать специальными растворами, которые снизят степень гниения, иначе строение на таком фундаменте долго не простоит.

Стены
Пожаробезопасный материал для стен сарая — металлический сайдинг и блокхаус.
Фото: металпрофильУтеплять стены сарая незачем, однако необходимо обеспечить хотя бы минимальную вандалостойкость.Для этого стойки каркаса располагают с шагом не более 1 м и используют для обшивки доски толщиной от 38 мм. Отлично подойдут для стен сарая современные материалы — металлические панели под дерево, стальные сэндвич-панели(главное преимущество металла — высокая огнестойкость), а также панели из древесно-полимерного композита. Не забудьте об окне (окнах): света, проникающего через дверной проём, может оказаться недостаточно.
Что сначала?
Ориентируемся на месте, разговариваем с соседями. Цель – найти наилучшее место для сарая: чтобы был не очень далеко, но и не торчал перед глазами и укладывался в санитарные нормы по расстояниям до источников водоснабжения и др. подверженных загрязнению объектов (жилые дома, посадки сельхозкультур, особенно корнеплодов); Вдруг по п. 1 ясности нет, строим сарай либо передвижной, либо времянку из дешевого бросового материала. Тем не менее, сарай на даче из горбыля или досок б/у возможно построить достаточно долговечным, недорого и несложно облагородить до придания ему вполне приглядного вида, см. далее; Если с местом под сарай определились сразу, выбираем тип верхнего строения с учетом возможности обзаведения домашними животными; Подбираем к «коробке» крышу; Определяем тип фундамента; Проектируем сарай с привязкой на местности
Последнее особо важно, т.к. надзорные органы с источниками загрязнений не церемонятся; Сводим (подбиваем) смету на строительство и оформление; Возможно, корректируем проект, если сарай в бюджет не вписывается; Также, возможно, рассматриваем вариант самостроя с последующим узакониванием. Если сарай заведомо укладывается в СанПиНы (Санитарные Правила и Нормы), то так выйдет дешевле и проще, чем строить изначально по проекту; Закупаем материалы, строим
Если сарай заведомо укладывается в СанПиНы (Санитарные Правила и Нормы), то так выйдет дешевле и проще, чем строить изначально по проекту; Закупаем материалы, строим.
Как быть с проектом?
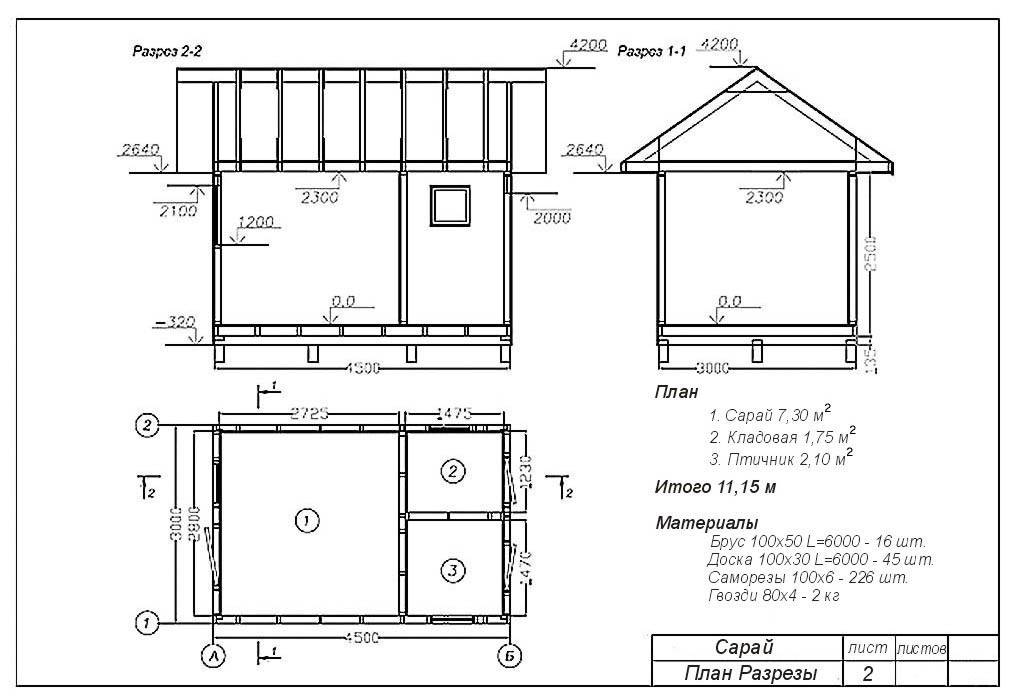
Сарай – легкое быстровозводимое не отапливаемое нежилое строение, из чего следуют важные облегчающие дело следствия. О них для строительства речь впереди, а пока нужно знать, что при оформлении/узаконивании наибольших придирок и сложностей следует ожидать по привязке на местности в соответствии с СанПиНами. Собственно проект сарая должен включать в себя листы с фасадами, план с разрезами, см. след 2 рис. и план-схему фундамента со спецификацией материалов на него, как на рис. с план-разрезами.

Лист фасадов из проекта сарая
Как правило, бесплатные проекты сараев из рунета утверждаются безо всякого и потом никто никогда не проверяет досконально, что там на самом деле построено. Похоже на проект, и ладно. Отклонения от проекта в строительстве допустимы, а в «мелкострое» для себя и без согласования можно обойтись. Но вот план-схему расположения на участке изучают очень внимательно, как и планы соседских участков и их согласия на строительство. Так что позаботьтесь собрать эти бумаги заранее, они действительны 3 года.

Лист план-разрезов из проекта сарая
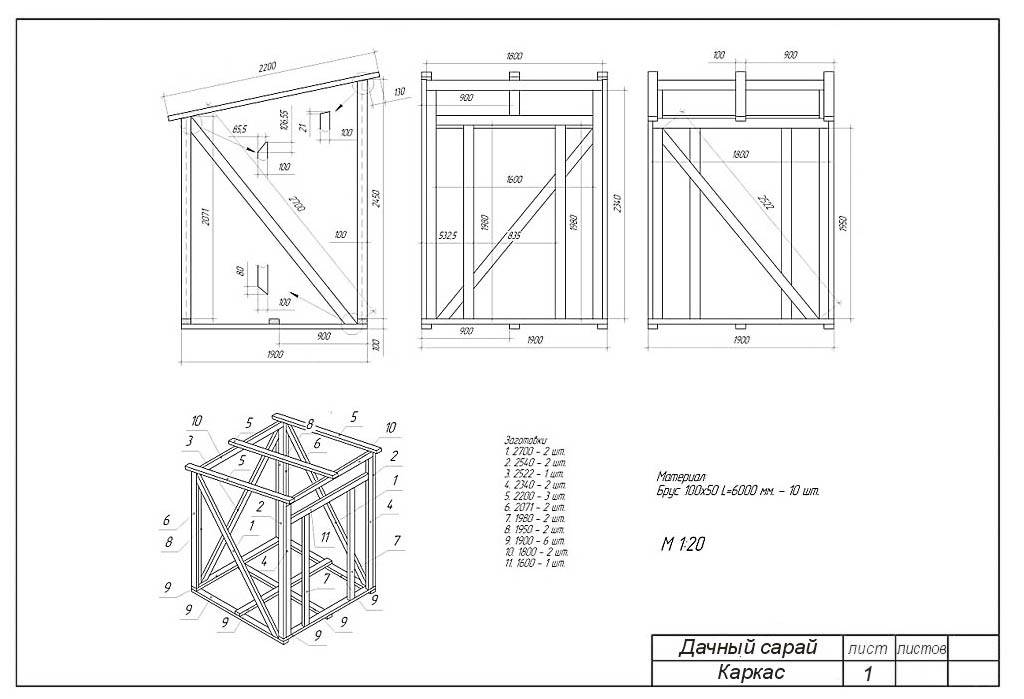
Возможно, въедливый чинуша потребует еще лист с конструкцией каркаса, т.к. нежилое-то оно нежилое, но люди туда заходят. На такой случай для образца – чертежи на рис. Кстати, это совсем неплохая сарайка для 6-соточной дачи. На крайний случай там и спать можно, улегшись по диагонали.

Каркас мини-сарая для маленького участка
О временных сараях
Добротный деревянный сарай без фундамента весит до тонны; с односкатной крышей и если строить аккуратно, но не по-купечески, можно уложиться в полтонны. Передвигать его на катках по слегам, см. рис., подваживая ломом, можно вдвоем. Чтобы поднять и поставить на основание с помощью лямок (веревок), хватит 10-12 крепких мужиков. Хотя как знать, не обойдется ли последующее угощение для этой оравы дороже аренды автокрана…

Передвижение сарая на катках
К чему это, кроме того, что спервоначала строить можно где угодно? К тому, что в таком случае проект нужен не более, чем для собачьей будки, а для нее он не нужен вовсе. Если год простоит, то потом, на фундаменте, узаконят, лишь бы в СанПиНы вписывался.
Однако тут встает вопрос уже для себя: а как на фундамент ставить? Надо бы на анкеры посадить, но не разбирать же постройку, чтобы сквозь венец их протолкнуть? Есть способ, о нем см. далее.
Обшивка сарая
Какая крыша лучше
При монтаже стропильной системы используются такие же материалы, как и для каркаса. После изготовления стропильной системы, ее укрепляют с помощью обрешетки, которую выполняют доской-дюймовкой. Не следует использовать обзол, поскольку такие доски быстро приходят в негодность.
Чтобы сделать крышу в сарае, можно установить:
- Односкатную кровлю, когда крыша опирается на противоположные стены, причем высота сторон имеет различную высоту. Односкатная кровля считается оптимальной, если длина пролета не превышает 6-ти метров.
- Двускатную кровлю, когда крыша опирается на противоположные стены на одинаковой высоте, при этом скаты крыши соединяются в верхней точке, называемой коньком. Применяется при ширине пролета, большем, чем в 6 метров.
Угол наклона скатов крыши зависит от таких факторов, как интенсивность нагрузок ветра и снега.
Например:
- Чем интенсивнее ветровые нагрузки, тем меньше делается уклон скатов.
- Чем весомее снеговые нагрузки, тем большим должен быть уклон, чтобы снег, который скапливается на крыше, быстрее сходил.
Кроме этого, необходимо учитывать рекомендации производителя кровельных материалов.
Сарай с односкатной крышей
Поскольку сараи большими не строят, то можно воспользоваться односкатной крышей, но при этом необходимо обеспечить минимальный угол наклона для конкретного вида кровельного материала.
Например:
- Для шифера потребуется не меньше 20 градусов.
- Для мягкой кровли можно обойтись и 5 градусами.
- Для профнастила этот параметр составляет 8 градусов.
- Для черепицы это не меньше 25 градусов.
Если сооружается сарай из бетонных блоков, то на противоположных стенах следует установить и закрепить опорный брус-мауэрлат. Что касается каркасных конструкций, то роль опорных брусьев выполняет верхний обвязочный брус.
Стропильные доски монтируют, начиная с противоположных стен. Шаг укладки стропил зависит от величины брусьев, поэтому для большей надежности все элементы соединяются попарно. Крепление к опорному брусу осуществляется с помощью врезки, а также с помощью металлических накладок.
Заключительный этап – монтаж кровельного материала:
- Шифер крепится гвоздями к верхней волне, металлочерепица – кровельными саморезами к нижней.
- Листы укладываются с продольным и поперечным нахлыстом.
- Для лучшей герметизации стыков применяются прокладки из ЭПДМ-резины.
- Минимальный вес кровли допустим для шифера 50 мм, для тонких листовых материалов 100 мм.
Сарай с двускатной кровлей
Сборка стропильной системы из 2-х скатов по технологии ничем не отличается. Отличия заключаются лишь в том, что формируется коньковый узел:
- С накладкой в верхней точке угла.
- С дополнительным распорным ригелем.
- С креплением стропил в точке конькового прогона.
- С примыканием к вершине конькового бруса.
Двускатная крыша хотя и сложнее, но зато она более устойчивая к ветровым нагрузкам. Кроме этого, под кровлей достаточно пространства для использования по различному назначению.
Схема сборки двускатной крыши сарая, размерами 3,5х3,65 м
про село — МНОГОФУНКЦИОНАЛЬНЫЙ САРАЙ / КАК СДЕЛАТЬ СВОИМИ РУКАМИ ЛЕГКО / сельхоз влог / ВСЁ ПО УМУ
Watch this video on YouTube
Хозблок 5х3 своими руками
Watch this video on YouTube
▲Frame house 500$\Каркасник своими руками за 30 тыс.руб
Watch this video on YouTube
№2. Определяемся с размерами сарая
Размеры сарая определяются целями его использования. Опыт многочисленных дачников позволяет говорить о минимально необходимых параметрах для разных целей использования:
- для хранения садового инвентаря (грабли, лопаты, секаторы и т.д.) подойдет постройка размерами 1,5*1,5 м, в ней можно организовать систему крючков и полочек;
- если предполагается хранить не только садовые инструменты, но и дополнительные материалы, вроде красок, удобрений и прочего, то удобно все складировать можно при размерах от 1,5*2 м;
- если предполагается хранить технику, типа газонокосилки или насоса, то лучше расширить сарай до размера 2*3 м;
- при использовании хозблока в качестве курятника или крольчатника его размеры зависят от того, какое количество животных вы планируете выращивать. Например, для 10-20 наседок достаточно сарая размером 2*3 м.
Часто сарай строится с запасом, но его размеры редко бывают больше 3*6 м.

Основание постройки
Отсутствие фундамента всё равно требует создания какой-либо опорной конструкции. Прежде всего, задача опоры для сарая состоит в том, чтобы изолировать саму постройку от грунтового основания. Для этого применяют самые различные материалы.
Важную роль играет грунтовое основание, на котором будет воздвигаться постройка. Если почва глинистая или торфяная, то лучше всего поставить домик на сваях. В качестве свай можно использовать короткие отрезки брёвен. На каменистой почве или твёрдом грунте укладывают небольшие опоры из кирпича, бетонных плиток либо других твёрдых материалов.
Выбранный участок под строительство застилают полиэтиленовой плёнкой. Плёнку засыпают слоем керамзита. Это предохранит деревянную конструкцию от проникновения влаги снизу и поставит барьер на пути перетекания холода из грунтового основания внутрь помещения в зимний период.
Точечные опоры располагают по углам сарая и между ними на расстоянии 1,5 – 2 м. Опоры должны быть выложены на щебеночной подсыпке. Все точки опоры контролируют нивелиром. Любые перепады высот между опорами ликвидируют подсыпкой.
Чтобы влага не проникала в деревянные конструкции снизу, на опоры укладывают слой гидроизоляции. Опоры просто покрывают кусками рубероида.
Этапы строительства основания постройки без фундамента
Обшивка сарая
Сарай обшивают по разным причинам:
- для презентабельного внешнего вида;
- для утепления;
- иногда, для большей устойчивости сооружения.
Черновая обшивка сарая
Черновая обшивка сарая может потребоваться, если предполагается дальнейшее утепление строения. Ее как правило делают из фанеры или досок.
При этом если предполагается, что не будет внешней либо внутренней отделки стен, то фанеру следует покрасить, а доски отшлифовать и покрыть лаком.
Обустройство кровли сарая
Крыши на сараях, как правило, делают двух видов: односкатная и двухскатная:
- для возведения односкатной крыши, при установке вертикальных стоек нужно предусмотреть, чтобы с одной стороны они были выше — это даст крыше необходимый уклон, и обеспечит хорошее водо- и снегоотведение;
- при двускатной крыши к верхней обвязке крепятся стропила, и выравнивается угол наклона.
Далее укладывается рубероид или крепятся доски. Сверху монтируется кровельный материал, для этого используют: шифер, ондулин, металлочерепицу и др.
Чем обшить сарай снаружи недорого: популярные варианты
Отделка сарая снаружи — часто это необходимая мера, а не создание эстетического вида фасада. Использование облицовочных покрытий при облагораживании внешнего вида хозпостройки, улучшает ее эксплуатационные характеристики.
При правильном выборе наружная обшивка:
- обеспечивает защиту стен сооружения от разрушающего воздействия внешних факторов, таких как: влага, температурные изменения;
- улучшает (в большинстве случаев) уровень теплоизоляции сарая, что существенно экономит средства на отоплении, если таковое есть;
- создает дополнительную звукоизоляцию, что особенно актуально если хозпостройка используется как мастерская;
- повышает уровень пожаробезопасности хозпостройки;
- поддерживает естественную циркуляцию пара и воздуха.
Для эстетического внешнего вида, после возведения сарая становится вопрос — чем обшить хозблок снаружи. Самые популярные и не дорогие виды обшивки сарая, это:
- сайдинг — бывает виниловым, металлическим или деревянным. Крепится на обрешетку или на специальные крепежи, которые поставляются вместе с материалом;
- вагонка — более дорогой материал, но в то же время и презентабельный. Материал в обязательном порядке нужно пропитывать специальными составами (антисептиками), покрывать лаком или красить;
- необрезная доска — ее распускают на доски нужного размера, которыми выполняют наружную обшивку;
- профнастил — крепится к каркасу саморезами накладывается внахлест на 15-20 см;
- прессованные блоки из соломы — кирпичами заполняются полости в каркасе, поэтому при его устройстве устанавливают промежуточные стойки;
- опилкобетон — для этого возводится ровная опалубка из листов OSB, которая монтируется на каркасе постройки. Далее послойно заливается смесь из опилок и цементного раствора в соотношении 2:1.
Какие материалы подойдут для внутренней обшивки
Прежде чем определятся с материалом и способом, как обшить сарай изнутри, следует взглянуть на условия помещения, и только потом искать подходящий материал недорого.
Остановимся на главных:
- температура и влажность внутри хозпостройки;
- периодичность нахождения людей;
- возраст сарая, нет смысла обшивать стены внутри помещения, пока не закончились процессы усадки фундамента и коробки строения.
Дешевый способ утепления сарая
Сарай можно утеплить как снаружи, так и внутри.
Для утепления пола используют керамзит. Также утеплить пол можно с помощью песка и щебня.
Стены утепляют при помощи пенопласта или пенополиуретана — это самый дешевый и простой вариант, который не требует дополнительных инструментов и навыков.
Продолжение работы – возводим каркас, собираем стропила и кровлю
Сборку каркаса начинаем с торцов, крепление стройматериала к нижней обвязке выполняем металлическими уголками. Чтобы усилить фиксацию, можно установить по диагонали подкосы из брусьев или временно скрепить доской на саморезах. Собираем лицевую часть каркаса, устанавливая вертикальные стойки, затем заднюю. Расстояние между стойками – 1,8 м. Усиливаем каркас диагональными распорками из брусьев.

Не забываем про окна и двери, оформляя в местах их установки проемы. Размер дверного проема 2×0,85 м. Устанавливаем ригели для окон: нижнюю горизонталь на высоте 80 см от рамы, верхнюю – через 1 м от нижней. Если планируем устроить внутри несколько секций, устанавливаем перегородки. Окончательно скрепляем стойки каркаса вверху брусьями.
Крышу делаем в зависимости от способа сборки каркаса. Если строение имеет переднюю и заднюю стороны разной высоты, устанавливаем на продольные брусья стен стропила, крепим к ним обрешетку. Если стены одинаковой высоты, стропила собираем на земле, а затем устанавливаем готовые наверху. Необходимый уклон создаем, подняв переднюю часть на 50 см. Но следует иметь в виду, что одному человеку поднять их не удастся, поэтому, если нет помощника, собираем наверху.
Обустройство пола, крыши
Строительство нашего сарая еще не окончено. Но осталось немного. На нижние лаги прибиваем доску, плотно укладывая, ее друг к другу. А на верхние лаги на всю длину сарая, прибиваем обрешетку с шагом в 10 см, для укладки на нее кровельного материала.
На обрешетку выстилаем плотную бумажно-масляную изоляционную бумагу, она продается во всех строительных магазинах в рулонах и имеет небольшую цену. Крепим ее с помощью строительного степлера к обрешетке.
Поверх кладем кровельный материал, я использовал шифер 1,5 м х 3 м, делая выпуски с передней и задней стенки по 25 см и укладывая листы внахлест, для исключения протекания крыши.
Шифер крепится к лагам при помощи гвоздей, на которые стоит одеть резиновую прокладку, прежде чем вбивать в кровлю, затем зашиваем фронтоны.
Как выбрать сарай для дачи: рассматриваем варианты
Зачастую вместе со строительством сарая начинается освоение участка, поэтому к этому времени необходимо уже иметь детальный план-схему, на котором будет обозначено расположение всех планируемых построек: жилой дом, баня, беседка, гараж, сарай и т.д.
Поскольку дачный участок обычно не отличается большой площадью, все хозпостройки, для экономии места, лучше объединить – построить сарай, который будет совмещать функции кладовой, туалета и душевой. Такое решение особенно оправдано на начальном этапе застройки участка.
Сарай можно разместить, например, рядом с границей участка, за домом, чтобы скрыть хозблок от посторонних взглядов. Кроме дома, дополнительную маскировку сараю можно обеспечить с помощью вертикального озеленения участка. Другой вариант – разместить сарай вблизи дома, чтобы не приходилось за каждой мелочью бегать через весь участок. Очень часто под сарай отводят место, которое по разным причинам (затененность, северная сторона, плохая почва) хуже всего подходит для посадки деревьев или выращивания садовых культур.
Рассмотрим несколько самых популярных вариантов сараев для дачи.
Как итог – про экономическую целесообразность строительства сарая «под ключ»
Если нет опыта строительных работ или попросту не хватает времени заниматься постройкой сарая, то услуга «под ключ» это то, что вам нужно. При подписании договора вашей задачей будет только выбрать подходящую конструкцию, а все остальное сделают мастера строительной компании. Это значит, что вам не придется ломать голову, где достать инструмент, как и когда приобретать стройматериалы, искать рабочих и следить, чтобы они правильно выполняли свою работу.
Специалисты строительной компании подготовят стандартный или персональный проект и построят дачный сарай. Кроме того, они смогут выполнить полную внутреннюю отделку и оборудовать полками и стеллажами. В результате вы в течение нескольких дней получаете добротную постройку с удобно организованным пространством.
Примеры красивых проектов хозпостроек смотрите на видео:
Разобравшись, сколько стоит построить сарай, можно прийти к выводу, что затраты на качественную постройку для загородного участка сложно назвать копеечными, но если работа выполнена профессионально, вложенные средства с лихвой окупятся. Удобная подсобка послужит не только самому хозяину, но и его внукам.
































