Примеры конструкций
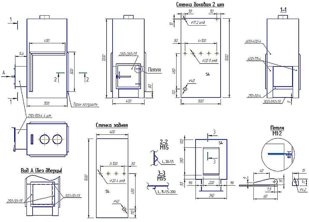
Буржуйка
Легче всего переделать под солярку печку-буржуйку. Тепловая мощность будет до 5-7 кВт при расходе топлива 300-500 мл/час. Топливная аппаратура той же конструкции практически без изменений может быть использована в более мощных отопительных котлах на дизеле, а также для запуска на отработке и керосине.
Схема доработки буржуйки под дизтопливо дана на рис. ниже. Дефлекторы не дают парам горючего остыть, прежде чем те сгорят. Кстати, дефлекторы увеличивают экономичность печи при запуске на дровах и угле. Высота бортика пламенной чаши – 60-80 мм; емкость ее не должна быть меньше емкости питательного резервуара (см. ниже). Ход печи на жидком топливе, если можно так выразиться, обратный: воздух поступает в настежь открытую дверцу топливника; поддувало закрыто. В противном случае печка становится прожорливой и быстро закоксовывается (обрастает нагаром).

Как переделать буржуйку на жидкое топливо
Питание, запуск и ход
Печь-капельница на солярке будет достаточно безопасной и проявит все свои достоинства только если топливная аппаратура собрана и налажена правильно. Выполняется питание капельной печи обязательно 2-ступенчатым, с буферным питательным резервуаром. Причина – довольно сильная зависимость частоты капели от наружной температуры и напора в подводящем трубопроводе. Напор, в свою очередь, определяется уровнем топлива в баке или степенью его наддува. Закапало реже – испаритель остыл, печка погасла, чаша переполнилась и топливо потекло наружу. Закапало чаще – капли не успевают испаряться, в чаше коптящее пламя, печка зря жрет горючку. Если нет питательного резервуара, может дойти вообще до беды: из печки потечет пылающая струя. Поэтому изготовление и запуск печей на жидком топливе с одноступенчатым питанием – занятие для оголтелых экстремалов или тех, кому терять больше нечего, а спать очень хочется.
Оба капилляра (см. рис.) выполняются из красной меди. Тут дело в смачиваемости металла топливом: по узкой трубке из другого материала оно или вовсе не просочится, или систему питания не удастся наладить. Налаживание начинают с подбора длины предохранительного капилляра диам. 1,5 мм. Объем питательного резервуара необходим 0,25-0,5 л; его высота – 7-12 см. Длину предохранительного капилляра подгоняют так, чтобы при заполненном до верха питательном резервуаре частота капели была 25-30 капель за 10 с.
Далее подгоняют питательный капилляр диам. 0,6 мм; топливо в баке должно быть залито на полный напор H. При полностью открытом игольчатом вентиле и минимально допустимой наружной температуре частота капели из топливопровода в питательный резервуар должна быть на 2-3 капли за 10 с меньше. Эту же частоту капели выставляют игольчатым краном при запуске печи при более высокой наружной температуре.
Для запуска печи в огневую чашу кладут сгорающий фитиль (см. выше). Когда он прогорит, как надо, наливают топливо в питательный резервуар и пускают капель из топливопровода. Печка будет на ходу 4-5 час; если время обогрева требуется меньшее, игольчатый вентиль прикрывают. Только от питательного резервуара ход печи продлится 1-1,5 час.

Чертежи печи с каменкой, пригодной для доработки на солярку
Для гаража
Печь на солярке и отработке для гаража
Печь на солярке для гаража должна запускаться и на отработке. Оптимальная конструкция гаражной чудо-печи показана на рис. справа; пламенная чаша под капель (выдвинута) является одновременно и емкостью для безнапорного сгорания масла. Мощность – до 5 кВт на одну колонну-дожигатель (райзер), но делать печку более чем на 2 райзера недопустимо, может взорваться! Данные конструкции:
- Материалы – квадратная профтруба 180х180х6 для лежака (камеры сгорания) и дожигателя, и 100х100х6 для райзеров.
- Длина лежака 380 мм, дожигателя 1000 мм, высота райзеров 500 мм.
- Отверстия в райзерах диаметром 10 мм на всех 4-х сторонах по 8 равномерно по оси.
- Для запуска печи на отработке питательный резервуар необходимо отсоединить, а патрубок капельницы снаружи заглушить.
- Отдельный дефлектор не нужен, им служит крышка лежака.
Жидкое котельное топливо: требования
Котлы, используемые для отопления жилых домов или же производственных помещений, расположенных в отдаленных местностях, часто работают на солярке. К дизельному топливу для нагревательного оборудования предъявляются особые требования
При выборе солярки для котла следует обращать внимание, прежде всего, на такие ее характеристики, как:
- цетановое число;
- плотность и вязкость;
- фракционный состав.
Цетановое число определяет такие важные показатели, как:
- время воспламенения топлива для котельных;
- полнота сгорания солярки;
- уровень вредных выбросов.
В конечном итоге именно цетановое число солярки влияет на эффективность работы водонагревательного оборудования. Оптимальным показателем ЦЧ для котлов считается 40-45 единиц.

От чего зависят расходы

От чего зависят расходы на тепло
Используя приемы и формулы точного технического расчета, в котором будут учитываться абсолютно весь спектр возможных теплопотерь в здании, которые возможны через стенки трубопровода, строительные конструкции, через оконные и дверные проемы, количество и размер которых определяется архитектурным проектом сооружения и т.д.
Эти характеристики индивидуальны, и пробовать привести их к общему знаменателю это только тратить свои силы и время.
Однако, специалисты считают, что если сделать предварительный расчет, в основу, которого ляжет типовое загородное строение, и на его базе, с примерными, но очень близкими к реальным значениям цифр, хозяевам загородных участков будет намного проще определиться с выбором наиболее оптимальной и приоритетной отопительной системой.
Так, например, в качестве эталона можно взять загородный коттедж, который имеет стандартную высоту потолков в помещениях – 2,2 метра.
Общую площадь коттеджа будет равняться 200 квадратных метров.
Так же нужно учесть, что для средней полосы России, не характерно использовать в загородном строительстве большие панорамные окна, стеклянные стены и светопроводящую крышу для мансард или чердачных оранжерей.
Владельца описанного коттеджа, который будет оборудован отопительной сетью, ожидают следующие денежные затраты:
- Приобретение и установка котла, приборов отопления и учета, прокладка разнообразных магистралей, монтаж и покупка запорных, регулирующих и запорных устройств;
- Ежемесячная плата за обслуживание инженерных сетей отопления;
- Периодическая покупка топлива, которое необходимо для полноценного обогрева здания;
- Стоимость укладки трубопровода будет напрямую зависеть от общей длины всего отопительного контура, цена на обслуживание – от типа используемого генератора, вырабатывающего тепловую энергию и сложность используемых инженерных коммуникаций.
Основным дорогостоящим элементом предстоящих расходов и главной составляющей всей системы отопления будет являться топливный котел, который перерабатывая определенный вид топлива и будет выдавать необходимую тепловую энергию.
Какой запас топлива нужен на сезон
Один их важнейших вопросов, который нужно решить, сколько топлива вам понадобиться на сезон. Давайте считать.
Упрощенно считается, что:
- 1 литр дизтоплива позволяет отапливать площадь до 100 метров течение часа.
- Расход котла считается, как мощность используемой горелки умноженной на 0,1.
- И как всегда, 1 кВт котла обогреют 10 кв. метров дома.
Сделаем примерный расчет, от слова пример.
Возникает логичный вопрос: Почему, по сравнению с расчетом по паспорту (выше) этот расчет выше дал совсем другие результаты и где правильный расчет?
Отвечаю: Ошибка в 72 литрах в сутки. Не один дизельный котел не будет работать 24 часа в сутки.
Как я сказал, у дизельных котлов очень серьезная автоматика. Котел 2/3суток, будет отключен, а не включен. Поэтому в расчете должно присутствовать не 24 часа работы, а 8 часов. То есть топлива на сезон нужно не 10449 литров, а 3483 литра.
Кроме этого, современные котлы имеют технологические хитрости, которые также позволяют снизить расход топлива, например, многоступенчатые горелки, горелки с турбо циркуляцией.
Еще один момент. Расчет, приведенный в начале статьи, основан на паспортных данных котлов, которые составлялись с учетом качества топлива страны производителя. Также, расход котла указанный в паспорте слегка занижен, так как подразумевает идеальное утепление дома, температуру на улице минус 10-15˚C и дается на уже прогретый дом (режим поддержания тепла).
Поэтому, правильный расчет расхода топлива на отопительный сезон будет где-то посередине между 1957,5 литров по паспорту и 3483 лира по расчету. Помним, что считал я дом в 300 метров.
Расход топлива
Главной причиной широкой распространенности котлов, потребляющих дизельное топливо, является незначительный его расход. При расчете мощности прибора следует основываться на потреблении энергии, необходимой для нагрева воды. Приблизительный расход дизельного обогревателя равен 10-ти киловаттам на литр горючего, если КПД составляет 91 процент. Стоимость дизтоплива на сегодняшний день составляет примерно 32 рублей, следовательно, именно столько будут стоить каждые 10 киловатт энергии.

А теперь сравним, сколько мощности требуется для электрических котлов. КПД у этого оборудования в среднем составляет 95 процентов. Стоимость 1-го киловатта электрической энергии равна 5-ти рублям, а значит, 10 киловатт обойдутся где-то в 50 рублей. Вывод очевиден: дизельный котел отопления расход топлива имеет примерно вдвое меньший.
Обратите внимание! Если в качестве горючего будет использоваться солярка, то расчеты должны производиться следующим образом. Мощность горелки необходимо умножить на показатель = 0,1
Это позволит рассчитать объем топлива, расходуемого за час работы. Что характерно, результат этих расчетов измеряется килограммами.
Приведем небольшой пример. Допустим, площадь отапливаемого помещения составляет 200 метров квадратных. И чтобы отопить такое помещение, понадобится дизельный котел с мощностью в 20 киловатт. Умножаем эту цифру на упомянутый выше показатель 0,1 и получаем 2. Выходит, именно столько килограммов солярки необходимо агрегату на час непрерывной работы при предельной мощности. Если же говорить о расходе за сутки, то он в данном случае будет равен 48-ми килограммам. Все просто.

Длительность сезона отопления равна в среднем ста дням за год. В течение всего этого времени отопительное оборудование будет функционировать на предельной мощности, поэтому ему потребуется количество топлива (у нас это солярка) по максимуму объема. За все сто дней котел использует 4 800 килограмма горючего.
Нормы и требования к котельной в частном доме
Советуем вам ознакомиться с нашим руководством о том какие требования необходимо соблюдать для того что бы оборудовать котельную в частном доме
Как видим, несмотря на то, что стоимость электрических и дизельных приборов разная, количество тепловой энергии в обоих случаях практически одно и то же. Выводы очевидны, говорить особо не о чем. И если вы желаете сэкономить на обогреве, то можете смело приобретать дизельный котел!
Обратите внимание! Как известно, когда дизельное топлива сгорает, в результате образуется большое количество копоти и сажи. И если толщина отложения сажи будет составлять, к примеру, 2 миллиметра, то расход горючего из-за этого увеличится примерно на 8 процентов
По этой причине рекомендуется периодически чистить отопительный прибор.
Сколько кубов дров в ЗиЛе
Интернет часто спрашивают, сколько ЗиЛ в себя вмещает кубов дров. Но хороших статей на эту тему нет. Мы решили быть первыми и ответить, сколько же помещается в 130-й.
Следует сказать, что существует несколько модификаций ЗиЛа, на которых перевозят дрова. Это может быть 131-й, бортовой 130-й, или самосвальный ЗиЛ Лодочка с маркировкой 555. А также дровца могут сложить в 554-й. Это тоже самосвал, но с обычным квадратным кузовом.
С точки зрения грузоподъемности все автомашины завода им. Лихачева одинаковые. Они берут на борт до 5 тонн груза. Если водитель не жалеет машину, то нагрузит 6,5 тонн. Исходя из веса древесины, можно сказать, что машина может увезти 7-8 кубов берёзы.
Все модели ЗиЛа имеют разные размеры платформы. Соответственно, древесины в них влезает разное количество.
Котлы паровые водотрубные КП высокого давления.
|
Котлы паровые водотрубные КП предназначены для получения пара с целью теплоснабжения технологических процессов, линий по производству пенополистирола, пропарки цистерн и ГСМ-хранилищ, животноводческих ферм и хозяйственных комплексов: тепловой обработки кормов, пастеризации молока, отопления помещений и др.
В стандартную комплектацию котла входит: котел, горелка, насос подпиточный, питательный бак для сбора конденсата, автоматика подпитки, датчик уровня воды в баке, манометры, реле давления и сухого хода, указатель уровня воды прямого действия, предохранительные клапана (2 шт.), рама, запорная регулирующая арматура.
Технические характеристики котлов паровых высокого давления:
| КП-150 | КП-250 | КП-300 | КП-500 | КП-600 | КП-800 | КП-1000 | КП-1600 | |
| Мощность системы, кВт | 100 | 175 | 205 | 335 | 400 | 550 | 680 | 1100 |
| Паропроизводительность, кг/час | 150 | 250 | 300 | 500 | 600 | 800 | 1000 | 1600 |
| Напряжение в сети, В/Гц | 220/50 | 380/50 | ||||||
| Рабочее давление, кг/см2 | До 16 | |||||||
| Температура пара, оС | До 220ºС | |||||||
| Расход топлива, | ||||||||
| Дизель, л/ч | 11 | 16.4 | 21.9 | 32.8 | 43.8 | 60 | 75 | 115 |
| Газ, м3/ч | 13.3 | 20 | 26.2 | 40.9 | 54.5 | 73 | — | — |
| Эффективность (КПД), % | 89 | 89 | 89 | 89 | 89 | 89 | 88 | 89 |
| Выход пара Ø, мм | 50 | |||||||
| Вход воды Ø, мм | 15 | |||||||
| Вытяжная труба Ø, мм | 390 | |||||||
| Масса, кг | 1350 | 1400 | 1450 | 1500 | 1550 | 1600 | 1700 | 1800 |
| Габариты (ШхДхВ), мм | 2300х1500 х2000 | 2300х1500 х2000 | 2300х1500 х2000 | 2300х1500 х2000 | 2300х1500 х2000 | 2300х1500 х2400 | 2300х1500 х2400 | 2300х1500 х2400 |
Возможна поставка котлов паропроизводительностью до 2500 кг/ч.
Внимание! Вся информация предоставлена на сайте исключительно в ознакомительных целях. Завод — изготовитель оставляет за собой право изменять конструкцию, присоединительные размеры, технические характеристики, внешний вид товара без предварительного уведомления
Какое твердое топливо лучше?
Брикеты
Брикеты — это один из видов твердого топлива, изготавливаемого путем прессовки таких материалов, как стружка, кора, древесная пыль, солома, щепа, лузга и торф.
В настоящее время на рынке продаются брикеты 3 видов:
- RUF — брикеты прямоугольной формы;
- NESTRO — в форме цилиндров со сквозным отверстием;
- Pini&Kay — граненая форма (4,6,8 граней).
RUF — брикеты прямоугольной формыNESTRO — брикеты в форме цилиндров со сквозным отверстиемPini&Kay — брикеты граненой формы (4, 6, 8 граней)
Они изготавливаются на современном европейском оборудовании и удовлетворяют требованиям технических регламентов о безопасности, за что и получили своё второе название — евродрова.
Плюсы топливных брикетов:
- изготавливаются из экологически чистого сырья. При сгорании не выделяют вредные вещества;
- удобно хранить. Благодаря особой форме и тепловой обработке не подвергаются воздействию грибков и могут долгое время храниться на улице;
- продолжительное и равномерное горение.
- высокий уровень теплотворности. В 2 раза выше, чем у дров;
- приемлемая цена;
- уровень зольности — 1-2 %.
Пеллеты
Пеллеты. Изготавливаются из того же сырья, что и брикеты. Однако процесс производства несколько отличается. На первом этапе все материалы измельчаются до состояния пыльцы, а затем высушиваются. После чего специальный механизм формирует из полученной массы мелкие гранулы цилиндрической формы. Благодаря компактному размеру пеллет стала возможным автоматизация процесса отопления дома на твердом топливе путем подачи определенного количества гранул из бункера хранения в котел.
Выделяют несколько видов пеллет:
- из твердых и мягких пород деревьев;
- торфяные;
- из подсолнечной лузги;
- соломенные.
Деревянные пеллетыТорфяные пеллетыПеллеты из подсолнечной лузгиСоломенные пеллеты
Этот вид твердого топлива больше всего подходит для эксплуатации в системах индивидуального отопления.
Преимущества топлива:
- изготавливается из экологически чистого сырья;
- можно хранить на улице — они не набухают от воздействия влаги и не защищены от образования грибка;
- обеспечивают продолжительное и равномерное горение;
- за счёт небольших размеров подходят для автоматизированных отопительных систем;
- широкий диапазон применения — печи, котлы, камины.
Дрова
Дрова. Это самый доступный и дешевый вид топлива. А в некоторых областях дрова можно добыть вообще бесплатно.
Основной недостаток этого варианта — необходимость поддержания определенного уровня влажности поленьев. Только при соблюдении этого условия дрова будут хорошо гореть. Для качественного отопления необходимо использовать породы деревьев, которые горят продолжительное время. Оптимальные варианты — береза, дуб, ясень и др. Хвойные породы не совсем подходят в качестве твердого топлива. При горении они выделяют большое количество смолы, а также имеют низкую удельную теплоту сгорания, поэтому требуют частой загрузки.
Преимуществ у дров немного, но все же они есть:
- в процессе горения выделяется минимальное количество едких веществ, а значит не наносится вред экологии;
- за счет низкого уровня содержания серы значительно снижается коррозийное воздействие;
- после прогорания образуется небольшое количество золы — примерно 2-3 % от массы.
Уголь
Уголь. Это твердое топливо также представлено несколькими видами: антрацит, каменный и бурый. Для отопительных систем чаще всего используют каменный уголь.
Основные преимущества:
- высокая теплотворность;
- удобство хранения;
- во многих городах цены на остальные виды твердого топлива значительно выше, чем на уголь;
- по сравнению с другим топливом, наполнять котел нужно в 2-3 раза реже.
Но также уголь имеет и немалое количество недостатков. При сгорании остается около 40 % золы от первоначальной массы. Это означает, что необходимо будет отвести специальное место для её хранения и продумать процесс утилизации. Дым, выделяемый в ходе горения, очень едкий. Это объясняется содержанием большого количества серы в составе угля. Попадая в атмосферу, она преобразуется в серную кислоту. Поэтому в помещении и на улице может появляться смог и неприятный запах гари. Однако производители и поставщики угля стараются бороться с этим недостатком, создавая новые модели котлов, предотвращающих попадание подобных веществ в воздух.
Недостатки котлов на жидком топливе
При выборе котла более важны недостатки котлов на жидком топливе.
- Прежде всего это затраты на обустройство топочной комнаты, строительство дымохода и установку топливного бака ёмкостью 500-3000 литров. В доме такой бак не поставишь (хотя это делают), а значит нужно место на участке. Установка большого бака тоже дело затратное и требует соблюдение технологий.
- Топочная комната, нужна, чтобы скрыть шумную работу котлов этого типа. Кроме этого, сжигание дизтоплива сопровождается нефтяными запахами.
- Большие вопросы в оборудовании бака могут быть у природоохранительных органов. Всё это дополнительные затраты.
- Современные жидкотопливные котлы стоят дорого, а затраты на топливо превосходят стоимость других видов топлива.
- Еще один подводный камень, это высокие требования к качеству топлива. Это может быть проблемой регионального (местного) значения.

Марки котлов на твердом топливе российского производства
Анализ технических характеристик поможет составить общее представление о твердотопливных котлах длительного горения. Отзывы потребителей на независимых форумах дают объективную оценку отечественных разработок.
Таблица 1. Твердотопливные котлы Zota Mix и Pellet производства завода отопительной техники и автоматики (г. Красноярск):
Таблица 1. Твердотопливные котлы Zota Mix и Pellet производства завода отопительной техники и автоматики (г. Красноярск)
- КПД котлов модельного ряда Zota Mix — 80%, Pellet — 90%;
- комбинированные стальные твердотопливные котлы Zota Mix работают на любом виде топлива (сжиженный или природный газ, электричество, жидкое топливо);
- камера сгорания и зольный ящик расположены внутри водяной рубашки;
- регулируемая заслонка дымохода, механический тягорегулятор и подсос воздуха эжектором, который установлен в топочной дверце, обеспечивают полное сгорание топлива при минимальной тяге;
- внешняя поверхность корпуса покрыта антикоррозийным полимерным составом;
- съемная дверца за передней панелью обеспечивает доступ для чистки газохода;
- возможность ремонта.
Конструкция котла Zota Mix
- нужен запас топлива и место для его хранения;
- затраты по доставке, выгрузке и складированию дров, угля, брикетов;
- снижение производительности котлов Zota Mix при использовании некачественного топлива (бурый уголь на 10÷20%, сырые дрова на 60÷70%);
- для Zota Mix — ручная загрузка топлива, очистка зольника, стенок топки, газоходов и дымового патрубка;
- обязательная подготовка котловой воды (жесткость до 2 мг-экв/л);
- установка в отдельном помещении;
- для котлов линии Zota Mix необходима установка теплоаккумулятора, дымососа, бойлера.
Таблица 2. Аппараты комбинированные твердотопливные с водяным контуром (АКТВ). Производитель ООО «Сибтеплоэнергомаш» (г. Новосибирск):
Таблица 2. Аппараты комбинированные твердотопливные с водяным контуром (АКТВ). Производитель ООО «Сибтеплоэнергомаш» (г. Новосибирск)
- бюджетный вариант твердотопливных котлов с водяным контуром для дома (цена 11000÷25000 рублей);
- компактный размер;
- водяной теплообменник охватывает топку со всех сторон (кроме фронта);
- выдвижной зольный ящик;
- монтажное гнездо для регулятора тяги;
- возможность подключения к дымовой трубе любой конфигурации;
- стальной теплообменник позволяет упрощенное подключение к отопительной обвязке (без подмеса);
- конструкция адаптирована для работы на газу и электричестве.
Котлы «Каракан» от производителя ООО «Сибтеплоэнергомаш»
- устаревшая конструкция, примитивная автоматика низкого качества;
- заявленные производителем технические характеристики (мощность, отапливаемая площадь и КПД) по отзывам потребителей не соответствуют фактическим показателям.
Таблица 3. Твердотопливные пиролизные котлы Буржуй & К от ООО «НПО «ТЭС» (г. Кострома):
Таблица 3. Твердотопливные пиролизные котлы Буржуй & К от ООО «НПО «ТЭС» (г. Кострома)
- обеспечивает стабильное горение топлива любой сортности и степени влажности;
- эффективная работа котла с одной закладки в течение 8 часов;
- экономный расход топлива;
- совместимость генератора с системами естественной или принудительной циркуляции;
- экологичный агрегат, топливо проходит цикл полного сгорания, не образуя вредных выбросов в атмосферу;
- конструкция топки обеспечивает выход на эффективный режим работы за 40 минут.
Твердотопливные пиролизные котлы «Буржуй & К»
- сложный монтаж: подключение должны производить работники специализированных предприятий, имеющих лицензию на данный вид деятельности (в противном случае гарантия от завода-изготовителя на агрегат не распространяется);
- ручная закладка топлива и чистка камеры сгорания;
- большой вес.
Установка и эксплуатация твердотопливных котлов должны производиться в соответствии с правилами пожаробезопасности
Для обогрева загородной дачи. гаража или теплицы возможно изготовление твердотопливных котлов длительного горения своими руками. Видео с материалами на эту тему можно найти в интернете. Но помните, что главным условием использования отопительного оборудования, является пожаробезопасность. А гарантировать выполнение этого условия может только сертифицированный производитель при должных условиях эксплуатации и монтажа оборудования.
https://youtube.com/watch?v=3sfw2qpCMrY
https://youtube.com/watch?v=1z6OOs3WdH4
Как рассчитать среднесуточный расход дизтоплива в котле
Простой расчет потребления топлива, выполняют по формуле, 1 кг топлива = 10 кВт. Получается, что для получения тепловой энергии в 10 кВт (достаточной для отопления жилого здания на 100 м²), надо затратить 1 кг солярки. Среднесуточное количество топлива, потребляемое дизельным котлом, соответственно составит 24 кг.
Удельная норма расхода в профессиональных условиях, высчитывается, в зависимости от мощности горелочного устройства. Формула расчета: 0,1 × производительность горелки. Вычисления затрат выполняют на весь отопительный сезон.
Делают это следующим образом:
- В течение часа, 10 кВт котел тратит 1 кг дизтоплива.
- За сутки расходуется 24 кг.
- Средний отопительный сезон длится 100 дней, при этом, половину времени, котел будет работать на 50% мощности. В результате вычислений, получается фактический расход, равный 5000 литров топлива за год.
Удельная норма расхода, может незначительно меняться, в зависимости от погодных условий. По формуле высчитываются приблизительные затраты, поэтому, небольшие расхождения нормальны.
Вызывает настороженность, когда разница в потреблении топлива увеличивается свыше 20%. Если минимальный расход для 10 кВт агрегата стал 1,25-1,5 л/час, проводят анализ системы отопления, с целью найти причину увеличенных затрат.
Как снизить расход солярки в дизельном котле
Расход дизельного топлива отопительного котла, зависит от многих факторов. Понимание причин энергозатрат и их устранение, это ключ к снижению объема сжигаемого топлива.
Уменьшить расход дизельного топлива в котле, можно следующими способами:
- Отрегулировать горелку – чаще всего, проблемы возникают, когда монтажные работы выполняются самостоятельно, либо с привлечением неквалифицированных специалистов. Для регулировки большинства видов горелок, потребуется специальное программное обеспечение. Работы сокращают топливные затраты на 10%.
- Установка комнатных термодатчиков и погодозависимой автоматики. Контроль над работой котла посредством микропроцессорной автоматики, подключенной к датчикам, устанавливаемым в комнатах жилого дома и на улице, уменьшает объем сжигаемого дизтоплива еще на 10-15%.Контроллер учитывает фактические потребности помещения в тепле и температуру окружающей среды, и подбирает оптимальную мощность работы горелочного устройства. Погодозависимая автоматика, нивелирует влияние температуры на расход топлива.
- Устранить ошибки, допущенные во время монтажа. Емкости с дизтопливом и насос, хорошо утепляют. Монтаж хранилища осуществляют исключительно в отапливаемом помещении.Если принято решение об обустройстве подземных хранилищ, емкости обязательно закапывают ниже уровня промерзания грунта. Топливопровод и трубу системы отопления (если проходит по улице или в грунте), хорошо утепляют.
- Подобрать теплогенератор, равноценный отапливаемой площади здания. Зависимость мощности и энергозатрат, особенно очевидна, если представить следующее соотношение. Для отопления 200 м² площади, потребуется уже 48 кг дизтоплива, но, при обогреве меньшего помещения (100 м²), будет наблюдать существенный перерасход, не менее 15%.
Подбор теплогенератора, его монтаж и настройку, доверяют квалифицированным специалистам. Только так, гарантированно обеспечивается экономичное сжигание дизтоплива.





































