Особенности расчетов пристройки
Чаще всего материал для стен берут такой же, как и на основном объекте. Однако, если вы решили, что пристройка к дому из пеноблоков будет лучше, как в плане износостойкости, так и с финансовой стороны, то начнем с расчетов. Для начала следует подумать, какие материалы нам понадобятся:
цемент, щебень, отсев – для фундамента;
пеноблоки – для возведения стен;
цемент, песок и клей – для скрепления пеноблоков между собой;
арматура для скрепления фундамента и стен в процессе монтажа;
балки – для опалубки фундамента и для устройства крыши;
шифер или металлочерепица.
Преимуществом пеноблока является отсутствие необходимости делать утепление пристроенной комнаты, что позволяет сэкономить и при этом не увеличивать расход топлива в зимний период. На фото показано строение из этого материала.
Как построить
Фундамент
Для этого приходится ждать не менее 6 месяцев. Возводить основание для новой конструкции из пеноблоков необходимо на таком же уровне, что и у основного строения. Тогда можно будет получить аналогичную усадку.
Строительство стен
На видео – кладка пеноблоков:
Существует еще один вариант возведения массивной конструкции. Необходимо пропилить горизонтальные ложбинки. Причем делать их нужно в установленном ряду блоков. Туда монтировать арматуру, а затем залить ее клеем.
Перемычки
Какие существуют проекты дачных домов из пеноблоков, и как подобрать нужный для себя, можно увидеть на фото в статье.
Также будет интересно узнать о том, какой фундамент для пристройки к дому из пеноблоков подходит более всего, и как его сделать: https://2gazon.ru/postroiki/zhilye/fundament/kakoj-nuzhen-dlya-doma-iz-penoblokov.html
А вот как пристроить гараж к дому из газобетона, и как это сделать правильно, поможет понять данное видео.
Типы пристроек к деревянному дому
В зависимости от типа возводимого строения подбирается материал, утеплитель, основание и окна будущего помещения. Это может быть кухня, туалет, гараж. В средней полосе России часто можно встретить теплицу, которая пристроена прямо к зданию и имеет вход из дома – это очень удобно.
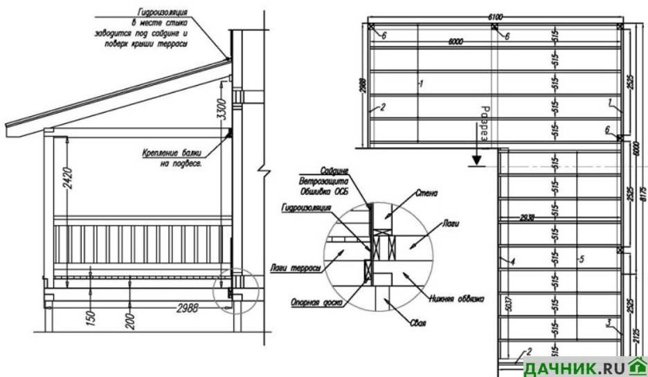
Схема соединения стропил крыши основного дома и пристройки
Осуществлять полив можно из центрального водопровода. Понятное дело, что возведение любой постройки должно быть согласовано с надзорными органами и выполнено В соответствие с техническими регламентами.
Возведение любой конструкции к зданию предполагает несколько этапов:
- Выбор места для расположения объекта;
- Расчёт размера будущей конструкции;
- Выбор материалов;
- Проверка сметы, так как нужно уложиться в бюджет;
- Расчёт коммуникаций;
- Продумывание прохода из основного дома в возведенную часть;
Продумывание расположения окон.
Конечно, возведение комнаты лучше производить из того же материала, что и сам дом, но это не всегда бывает возможным. Если дом деревянный, а новую комнату планируется сделать более массивной, то её лучше всего строить из пеноблоков.
Как рассчитать количество материалов и стоимость
Расчет стоимости материалов, его количества лучше всего выполнять по готовому разработанному проекту пристройки к дому из пеноблоков. В этом случае видны предстоящие объемы работ, можно определить общую потребность в блоках, строительных смесях, арматуре и других расходниках, которые потребуются.
Основные затраты — это покупка строительных материалов.
В простейших случаях расчет выполняется по следующей схеме:
- вычисляем объем фундамента для определения потребности в бетоне при покупке готовой смеси или песке, щебне и цементе, при самостоятельном изготовлении;
- исходя из общей площади стен за вычетом оконных и дверных проемов рассчитываем количество необходимого пеноблока;
- потребность в арматуре определяется величиной периметра стен;
- расчет кровельного покрытия и утеплителя лучше доверить представителям компании, в которой предполагается закупка.
Рассчитываем стоимость
Первое, что нужно определить, это конечную стоимость работ, которая зависит от того, закажете строительство дома в специализированной фирме или будете класть блоки. Рассматривая второй случай, Вы не будете тратить деньги на работу сторонних строителей, они пригодятся Вам, к примеру, на внутреннюю отделку.
Получить информацию о том, как кладется пеноблок, каким образом выполняется перевязка, как армируется кладка и еще многое другое, Вы можете на страницах нашего портала. Отталкиваясь от таких параметров, как размеры блока, зная, сколько их в одном метре кубическом, вы узнаете, используя калькулятор – сколько стоит дом построить из пеноблоков.
Фундамент для пристраиваемой конструкции
В качестве основания для сооружения чаще всего используют ленту или столбчатый фундамент, каждый их них обладает определёнными преимуществами и недостатками.
Ленточный фундамент
Представляет собой замкнутый контур из железобетона, возводимый под всеми несущими стенами постройки, который передаёт нагрузку от них на грунт. Он позволяет возводить деревянные, кирпичные и монолитные строения.

Рассмотрим поэтапное возведение:
- На выделенном под строение участке делается разметка с помощью колышков и веревки;
- По разметке для фундамента под пристройку к дому своими руками выкапывается траншея, зависит её глубина от залегания основания дома. Ширина нужна больше, чем толщина укладываемой стенки на 10-15 см;
- В траншею засыпается песчаный пласт в 10-12 см и утрамбовывается;
- На дно выкладывается гидроизоляция, которая выступает на поверхность почвы на 40-45 см;
- На гидроизоляцию устанавливается арматурная решётка, которая соответствует форме возводимого фундамента по ширине и высоте;
- Ленту заливают бетоном на ⅓ высоты, когда данный слой застынет, то укладывается второй на ½ оставшейся высоты;
- После заливки 2-го слоя устанавливается опалубка из древесины для возведения надземной части ленточного основания (цокольной части). Гидроизоляционный материал запускается внутрь опалубки и фиксируется к её стенкам;
- Опалубка заполняется бетонной смесью, в процессе укладки уплотняется возвратно-поступательными движениями куском арматуры или вибратором для предотвращения образования в нём пор. После заполнения всей опалубки поверхность бетона разравнивается по уровню;
- Далее бетон должен высохнуть и набрать 100%-ю прочность через 28 дней. Первые 3 дня его нужно смачивать через 2-3 часа водой. Затем он поливается 3 раза в сутки на протяжении 25 дней.
После затвердения основания опалубка снимается, поверхность покрывается снаружи материалами для гидроизоляции.

Столбчатый фундамент для пристройки к дому своими руками
Его применяют при постройке веранд и летних кухонь, обустраивают из красного кирпича либо бетона. На столбы в основном устанавливают каркас из древесины, на него настилают сам пол.
Возводится основание таким образом:
- Размечается выделенный для строительства участок. Столбы устанавливают с шагом 1,5 м;
- Для каждого столбика копается отдельная 50х50 см ямка с углублением на 50-60 см. К верху она должна расширяться на 10 см со всех сторон;
- На дно ямы насыпается подушка из слоя песка и щебёнки. Затем её дно и стенки покрываются гидроизоляцией;
- Если опоры из кирпича, то на дно ям укладывается слой раствора, на который после застывания кладётся первый ряд кирпича;
- Если опорные столбики из бетона, то в ямы устанавливают арматуру и опалубку на высоту опоры. Гидроизоляция запускается внутрь опалубки и крепится к ней;
- В установленную опалубку слоями заливают бетон. Причем каждый слой раствора должен нормально схватиться;
- Верх столбика разравнивают, бетон увлажняется водой до набора им марочной прочности;
- Опалубка демонтируется, столбы покрываются гидроизоляционным материалом (обмазываются битумной мастикой, на которую наклеивается рубероид);
- Пустоты между стенками ямы и опорой засыпаются перемешанным с щебнем грунтом, который плотно утрамбовывается.

На верх столбов укладывается рубероид для укрытия от воздействия влаги уложенных на них деревянных брусьев.
Чтобы пристроенная конструкция не отошла со временем, возводят её с небольшим наклоном в направлении дома. Уклон стенок по вертикали закладывается в 1 см на каждый метр высоты пристроя. Чаще всего уклон закладывается на этапе возведения основания.

Виды фундаментов под пристройку
Надёжность пристройки из газобетона целиком и полностью зависит от правильности выполнения примыканий к существующим конструкциям. И в первую очередь это касается фундамента – думаем, не надо объяснять, почему
Поэтому данной части строения мы уделим особое внимание
Плитный
Чтобы сделать пристройку к дому из газоблоков, нужно выяснить, каков тип основания у основного здания. С плитой всё гораздо проще: её площадь определяется путём прибавления по 15 см с каждой стороны к площади дома; высота редко превышает 40 см, так что выяснить точный параметр не проблема.
Ленточный
Чтобы выяснить точную отметку расположения подошвы глубоко заложенной ленты, следует использовать крюк, сделанный из арматурного стержня. Подкапываете монолит, зацепляете крюк за подошву, делаете засечку на уровне верха и замеряете расстояние
Важно, чтобы подошва нового фундамента оказалась на этом же уровне. В случае с лентой необходимо определить ещё и её ширину, для чего к толщине цоколя нужно прибавить 40 см. Многие из тех, кто планирует пристрой к деревянному или кирпичному дому из газоблоков своими руками, полагают, что раз возводимые стены будут иметь П-образную форму (четвёртой стеной пристройки служит стена основного строения), то и фундамент замыкать в пространственную конструкцию не надо
Это мнение ошибочное: монолитная лента, не замкнутая по контуру, при воздействии неодинаковых нагрузок может деформироваться
Многие из тех, кто планирует пристрой к деревянному или кирпичному дому из газоблоков своими руками, полагают, что раз возводимые стены будут иметь П-образную форму (четвёртой стеной пристройки служит стена основного строения), то и фундамент замыкать в пространственную конструкцию не надо. Это мнение ошибочное: монолитная лента, не замкнутая по контуру, при воздействии неодинаковых нагрузок может деформироваться.
Свайный
Если дом стоит на сваях – значит, на участке нестабильный грунт, возможно с близким расположением вод. Сделать в таких условиях жёсткий фундамент, который нужен для газобетонной кладки, достаточно сложно. Винтовые сваи для газобетона не подходят, забивные нельзя монтировать в непосредственной близости от эксплуатируемого здания из-за вибрации.
Остаётся только буронабивой тип свай, когда в пробуренное отверстие устанавливается асбоцементная трубная обсадка. Внутрь устанавливается арматура и производится заливка бетона, после чего монтируется поверхностная монолитная лента, которая объединит оголовки всех свай.
Но, другая конструкция фундамента и работает по иному, к тому же определить глубину забивки свай довольно сложно, так как она может достигать 6 и более метров. В общем, пристройка из газоблока к деревянному дому, стоящему на сваях – та ещё морока.
Преимущества пеноблоков для пристроек

Пеноблок — это строительный материал, произведенный из вспененного бетона. Структура такого блока получается пористой с множеством мельчайших ячеек. Благодаря этому материал отлично удерживает тепло, имеет малый вес. Пристройка к дому из пеноблоков происходит довольно быстро.
К основным преимуществам материала относятся:
Размер блоков. Этот показатель стандартный и в продаже можно найти только два типа с параметрами 200х200х600 мм и 200х300х600 мм, весом от 11 до 22 кг. Несмотря на сравнительно большие габариты с кладкой может справиться один человек.
Плотность материала. Она может быть от 300 до 1200 кг/куб.м. Материал по плотности выбирается в соответствии с типом возводимой конструкции. Для несущих стен необходимы самые плотные блоки, пористые идеально подходят для теплоизоляции и внутренних перегородок.
Вес. Масса постройки в целом будет значительно меньше весить в сравнении с кирпичом. Это уменьшает нагрузку на фундамент и грунт.
Теплопроводность. Пеноблок по данному показателю близок к древесине. Он практически не проводит тепло
Это важно при возведении жилых строений.
Кроме того, бетонные блоки выдерживают перепады температур, обладают морозостойкостью. Эксплуатация строения без отделки и появления признаков нарушения структуры блока может достигать 70 лет.
Выбор вида фундамента
Вид фундамента выбирают исходя из несущих особенностей грунта, экономической и практической целесообразности, времени отведенного на строительство дома.
Ленточный фундамент
Ленточный незаглубленный фундамент – это разновидность предыдущего вида. Его закладывают на скальных и крупнообломочных грунтах. Технически это цоколь, отлитый из железобетона или собранный из строительных блоков на подготовленной площадке.
Отдельной разновидностью такого основания является ленточно-свайный фундамент для дома из пеноблоков. Его особенность в том, что и лента и сваи делаются из бетона, но общие затраты материала намного меньше, чем в случае заливки классической «ленты».
Свайный фундамент
Всего насчитывается три вида свайного фундамента:
- буронабивной;
- буроинъекционный;
- винтовой.
Второй вид имеет разные варианты исполнения, хотя технология изготовления сводится к бурению скважины и заливки в нее бетонной смеси:
Буроинъекционный свайный фундамент довольно широко используют для загородного строительства на проблемных грунтах. А также такая технология нашла применение для усиления фундамента уже стоящих домов в нескольких случаях:
- когда несущие свойства грунта ухудшились в силу геологических изменений (чаще всего подъема уровня грунтовых вод);
- при надстройке еще одного этажа;
- при исправлении крена конструкции.
Недостаток этого варианта как фундамента под пеноблоки – длительный цикл созревания бетона.
Этапы возведения пристройки

Прежде чем построить из пеноблоков пристрой, нужно ознакомиться с этапами его возведения:
- проектирование;
- фундамент;
- стены и армопояс;
- перемычки для проемов;
- крыша;
- отделка.
Проектирование

Любое строительство начинается с проектирования. На данном этапе будущее строение впервые появляется на бумаге. В первую очередь рассчитывается площадь пристроя, высота стен, количество внутренних перегородок. Далее обозначаются окна и двери. По произведенным расчетам можно составить смету на строительный материал. Купить пеноблок и другой основной материал требуется заранее.
Фундамент

Основой будущего пристроя является фундамент. Тут стоит сразу отметить преимущества пеноблока перед кирпичом — он значительно легче, значит заглубление для фундамента будет меньше. Для стен достаточно 70 см. При этом учитывается тип фундамента.
Он может быть:
- ленточным;
- свайным;
- столбчатым.
Дно котлована для любого фундамента должно иметь насыпь-подушку из песка, щебня. Верх конструкции устилается гидроизоляционным материалом, например: рубемастом, рубероидом, бикростом.
Стены и армопояс

После полного высыхания фундамента можно приступать к кладке стен. Она выполняется аналогично кирпичной. Для склеивания блоков используют специальный раствор или клей. Верх всей конструкции необходимо усилить и связать воедино. Для этого подготавливают бетонный армопояс
Важно не забыть о креплении пристройки к основной стене строения. Его выполняют при помощи скоб
Перемычки для проемов

Любой пристрой имеет минимум одну дверь и одно окно. Для кладки проемов используются перемычки. Они могут быть заводскими, изготовленными из газобетона или железобетона, монолитными, стальными. При этом максимальная ширина проема не может превышать 1750 мм, а глубина опоры — 250 мм.
Крыша

Последний этап в возведении пристройки из пеноблоков — это крыша. К работам можно приступать после полного высыхания кладки и армирующего пояса. В первую очередь устанавливаются потолочные перекрытия. Для этого используют как готовые панели из бетона, так и деревянные балки и дощатый настил. Что касается кровли, то чаще всего она имеет двускатную форму. Для постройки используется стропильная система. Завершает процесс кровельный материал.
Это может быть как аналогичный с основным строением, так и совершенно другой. Монтаж кровли имеет ряд особенностей. Необходимо проследить за отсутствием протечек в стыке с домом. Избежать усадочных деформаций, которые могут в дальнейшем привести к протечкам, помогают специальные скользящие элементы. Благодаря им сохраняется подвижность полотна кровли.
Внешняя и внутренняя отделка

Готовое строение нуждается в отделке снаружи и изнутри
Особое внимание уделяется именно наружней. Это связано с защитой строительного материала от различных негативных воздействий и продления срока эксплуатации
В качестве наружней отделки используют:
- покрытие сайдингом;
- декоративные панели;
- штукатурку;
- натуральное дерево или камень;
- специальные плиты для внешней отделки.
Во время проведения внешних отделочных работ всю конструкцию можно дополнительно утеплить. Для этого используют минвату, пенопласт, стекловату, пенополистирол или аналогичный материал, которым утеплен дом из пеноблоков. Под утеплитель обязательно ложится парогидроизоляция. Она позволяет защитить материал от образования конденсата.
Внутренняя отделка может также включать в себя утепление стен. Кладка из пеноблока ровная, чаще всего не требует капитального выравнивания по маякам. Для отделки внутри пристроя используют штукатурку, гипсокартон, панели из пластика. Далее возможна финишная отделка обоями и другим декоративным материалом.
Проектирование
На этапе проектирования пристройки необходимо учесть множество важных нюансов, среди которых:
- весовая нагрузка на стены и фундамент;
- подведение коммуникаций;
- доступ в пристройку извне и прочие моменты.
Разберем эти моменты подробнее.
Что касается весовой нагрузки на фундамент, то это один из важнейших моментов. Если переоценить нагрузку, возникнут лишние траты, заключающиеся в постройке слишком мощного фундамента. А если же недооценить, то возможна деформация пристройки, и даже стен основного здания. Переделка потом обойдется довольно дорого, и будет долгой.
Предусмотрите окна в пристройке, точно установите, где они будут расположены, и в каком количестве. Иногда делают пристройки со стеклянной крышей: но такой вариант подходит только для местности, где мало зимой снега. В северных регионах в пристройке со стеклянной крышей можно всю зиму просидеть в темноте.
Продумайте доступ в пристройку. Далеко не всегда делают наружную дверь в это сооружение, чаще достаточно одного внутреннего прохода.
Продумайте, как будут заходить в пристройку коммуникации, и точно рассчитайте на этапе проекта этот важный момент.
Утепление и облагораживание строения из пеноблоков
https://youtube.com/watch?v=1KtYF3uDdJ4
Оптимальный вариант – когда пристройка будет только примыкать к основному строению (дом из дерева, кирпича, камня) при помощи деформационного шва. Но она может быть и жестко скрепленной с ним путем присоединения заведённых в кладку стальных прутьев к старому армирующему каркасу. Зазоры между сооружениями заполняют монтажной пеной. Важный момент. Если делается пристройка к деревянному дому, пену лучше не использовать. Вместо этого набейте по обеим сторонам дополнительного сооружения небольшие брусья. Они качественно закроют все щели.
Стены пристройки нужно теплоизолировать и придать им привлекательный внешний вид. Для этого подойдут декоративные пенопластовые панели, который после монтажа покрывают тонким штукатурным слоем. Снаружи пристройку из пенобетонных изделий обычно облагораживают искусственным камнем либо декоративной штукатуркой.
Как сделать окно?
Схема отделки стен из газобетонных блоков.
После укладки нескольких рядов пеноблоков стоит подумать о том, будет ли пристройка оборудована окном. Как правило, пристройки к дому из пеноблоков делаются «глухими», но исключать вариант наличия окон и дверей не стоит. Если они планировались изначально, то в ходе строительства стен необходимо обеспечить проемы для них.
В оконные проемы монтируем прямоугольник из дерева. При укладке каждого нового ряда этот оконный «муляж» крепится с блоками. Так вам будет легче и вертикальность стен контролировать, и длину блоков подбирать. По верхнему уровню оконного проема должна проходить прочная балка. Научно доказано, что пеноблок не может обеспечивать достаточную упругость и нуждается в указанном усилении. Бетонные или металлические усиливающие конструкции для этих целей успешно используются, но вариант использования балки из древесины можно считать наилучшим. Судите сами: дерево обладает минимальной теплопроводностью, что будет противостоять образованию зон холода над оконными проемами. В дальнейшем это станет гарантией того, что отделочные материалы не будут повреждаться от перепадов температур и образуемого конденсата.
Особенности пристройки у дому из пеноблока
Данный материал характеризуется количеством пустот, и чем их больше, тем значительнее он сохраняет энергосберегающие свойства, что подтверждено на строительной практике на примере пустотных кирпичей. Поры в пеноблоках распределены равномерно по каждому изделию.
Стоит отметить, что пеноблок, в отличие от стандартного газобетона, считается наиболее подходящим для возведения именно пристройки (не полноценного здания).
Фактически данный тип помещения является недорогим и рациональным методом решения проблемы по поводу недостатка полезной площади, особенно в том случае, если оно возводится собственноручно.
Преимущества и недостатки материала

Данный материал обладает повышенной прочностью и лёгкостью в работе, экологичен и не способствует сырости. Его легко класть без большого количества временных затрат.
Помимо этого, пеноблоки обладают такими положительными свойствами, как:
при монтаже не нужны профессиональные навыки;
процесс кладки пеноблоков намного меньше, нежели чем кирпича или дерева;
не горит, и отвечает абсолютно всем требованиям пожаробезопасности;
пористая структура препятствует возникновению усадки;
обладает низкой теплопроводностью и дешевизной материала;
эксплуатационный срок превышает 50 лет;
легко возводим на сложных грунтах;
прост в подгонке, легко сверлится;
имеет малый вес, что важно при проектировании и возведении фундамента.
Среди такого обилия положительных характеристик у пристройки из пеноблока имеются и отрицательные, а именно:
- повышенная гигроскопичность обуславливает необходимость в создании специальной защиты, иначе произойдёт быстрая утрата теплоизоляционных свойств;
- внешний вид, от чего в обязательном порядке требуются внешние отделочные работы.
К каким домам можно сделать такую пристройку?
Перед планированием пристройки особое внимание строителями акцентируется именно на прочности помещения. Профессионалы утверждают, что не зависимо от типа здания, возраст которого составляет более пятнадцати лет, пристройка к нему возможна только с учётом тщательного расчёта прочности помещения
Но т.к. пристройка относится к кадастровым изменениям (перепланировке), для неё требуется индивидуальный проект и согласование с местными органами в виде разрешительной документации на увеличение площади помещения с помощью строительства.
Самостоятельное проектирование – профессиональные инженеры не нужны!
Проект нового сооружения мастер-самоучка вполне может разработать своими силами. Совсем необязательно приглашать для этих целей специалистов в сфере архитектуры. Внешний облик пристройки должен соответствовать дизайну основного здания
При проектировании важно сделать следующее:
- Грамотно рассчитать нагрузку нового сооружения на грунт. От ее показателя зависит мощность и тип необходимого фундамента.
- Определиться с вариантом освещения пристройки, чтобы предусмотреть нужное количество оконных проемов и смонтировать их в оптимальных местах.
- Решить, сколько входов должно быть в пристройке. Можно запроектировать всего одну дверь, которая станет соединять основное и дополнительное сооружения. А при желании несложно сделать и два выхода (один – в дом, второй – на улицу).
- Определиться с необходимостью добавочной шумо- и теплоизоляции нового строения, проведения в него водопровода, электричества, канализации.
Пристройка из пеноблоков
Если рационально спроектировать дополнительное сооружения, учитывая все изложенное выше, у вас получится построить долговечное и удобное в использовании помещение.
Перекрытие
Пристройка из пеноблоков к дому после полного высыхания кладки перекрывается:
В данном случае можно сделать перекрытие из дерева или газобетонных плит. Что касается небольшой пристройки то, в основном, в ней делается деревянное перекрытие
При этом следует помнить, что все деревянные детали должны быть обработаны огнестойкими составами, а также составами, повышающими устойчивость деревянной конструкции против гниения и образования грибка
Деревянное перекрытие монтируется непосредственно на армопояс, поэтому очень важно, чтобы он хорошо затвердел. Основу крыши составляет также деревянная конструкция, состоящая из стропильной системы
В данном случае нужно позаботиться о том, чтобы крыша имела как можно меньший вес. Для этого в качестве кровельного материала лучше использовать легкие материалы, такие как: ондулин, металлочерепица, битумная черепица и т.д
Для этой цели подойдут современные кровельные материалы, имеющие не только небольшой вес, но и хороший внешний вид
Очень важно также хорошо состыковать новую крышу со старой, чтобы получилось одно целое, а также не было никаких подтеков. Следует помнить, что жидкость способна найти тончайшую щель и просочиться внутрь, что абсолютно недопустимо
После полного окончания строительства постройки ее необходимо утеплить и облицевать декоративным материалом. Самый простой, дешевый и доступный – это использование пенопластовых панелей с последующей шпаклевкой и покраской. Неплохой вариант – применение сайдинга как самого простого в монтаже, относительного не дорогого и долговечного отделочного материала. В качестве наружной отделки можно применить декоративную штукатурку или искусственный камень.
Не зависимо от того, делается пристройка из пеноблоков к бревенчатому дому или кирпичному. Обязательно надо нанести внешнее покрытие. Пеноблок тогда будет служить гораздо дольше. Иначе при напитывании водой он будет постепенно разрушаться.
Советы строителей
Данные советы строителей могут помочь при возведении пристройки:
- Ответственный момент на этапе возведения фундамента – его привязка и армированного пояса к уже имеющемуся фундаменту. В нём делают торцевые небольшие срезы, арматуры старого и нового фундамента заваривают или крепят с помощью прочной металической проволоки. И только после этого приступают к заливке из бетонной смеси, гравия, песка, цемента и воды. Поскольку прочность цемента стремительно утрачивается, рекомендуется приобретение цемента высокой марки с малым сроком хранения.
- Чтоб стены не дали усадку, нужно дать фундаменту выстояться и набраться прочности. И далее по поверхности фундамента прокладывается цоколь пристройки.
- Фундамент следует покрывать битумной мастикой и рубероидом с целью повышения гидроизоляционных свойств.
- При укладке следует руководствоваться методом кладки кирпичной стены, единственное отличие – размеры материалов.
- Поскольку пеноблоки гигроскопичные, их класть следует только в сухую погоду.
- Для быстрого и безопасного утепления крыши пристройки можно использовать пенополистирол.
- Не следует применять минеральную вату для наружного утепления, т.к. она быстро впитает в себя влагу и утратит свои свойства.
В завершении нельзя не отметить то, что пеноблок является довольно специфичным стройматериалом, потому его следует устанавливать не на стандартный цементный раствор, а с добавлением специального клея. Это поспособствует более точной установке элементов и минимизации швов между ними.
Фундамент
После выбора проекта пора заливать фундамент. Но для начала нужно узнать, какое основание под главным строением. Это потребуется владельцам старых домов или тем, кто купил участок с готовой постройкой. Для изучения делают шуфр (подкоп) 1х1 м. Глубина – до основания. Главное правило – заливать такой же тип фундамента, который под основным строением. Если этим пренебречь, то понадобится деформационный шов. При наличии сомнений лучше проконсультироваться со специалистом.

Рекомендуемые типы фундамента для пристройки:
- ленточный;
- столбчатый.
Первый создают методом сплошной заливки. Второй – при помощи кирпича, на отдельных опорах. Он дешевле ленточного. Глубина котлована – не глубже фундамента дома. После заливки основание укрывают гидроизолирующим материалом.

Пристроенная терраса – это отдельный вопрос. При наличии под ней фундамента достаточной прочности возводить веранду можно на террасе. При отсутствии основания придется заливать его заново.
Делаем пристройку
Может делаться пристройка из пеноблоков к деревянному дому и так же некоторые хотят сделать пристройку из пеноблоков к кирпичному дому. Принципиально эти два варианта не отличаются. Здесь будет просто разное крепление закладных на стыке.
Проект пристройки к дому из пеноблоков
В первую очередь, надо сделать проект пристройки к дому из пеноблоков и обозначить деформационный шов, его вы можете видеть на фото. Именно здесь и надо будет делать соединение и, причем, оно должно быть довольно жестким.
Преимущества, достоинства и недостатки пенобетона
Прежде, чем делать строительство пристройки к дому из пеноблоков, надо разобраться, на сколько данный материал вам подойдет. Их просто укладывать, и они относительно легкие.
Сравнивая с другими видами строительных материалов, имеют ряд преимуществ:
| Преимущества |
|
| Недостатки | При этом блоки имеют несколько недостатков:
|
К каким домам можно пристраиваться
Строительство пристройки из пеноблоков должно вестись осознанно и обдуманно. В некоторых случаях вы и не сможете применить данный материал.
- Пристроить дополнительное помещение можно только к прочному строению. По мнению некоторых специалистов, если зданию больше 15-ти лет, то необходимо произвести нужные расчеты, чтобы определить его прочность и только после этого возле данной постройки можно что-то строить.
- Если учесть, что постройка ведет к перепланировке жилья, то нужно получить разрешение на такое строительство.
- Пристройка к дому своими руками из пеноблоков будет иметь значительный вес, и после установки она не должна повести за собой основное строение.
Как сделать пристройку своими руками?
Первое, на что следует обратить внимание: правила укладки фундамента. Следует изучить фасад деревянного дома:
Определить тип фундамента и его параметры.
Узнать состояние стен, возможно, придется укреплять их.
Оценить состояние крыши – есть вероятность, что придется частично ее демонтировать.
Проверить стену для создания перехода в дом.
Определить, как будет осуществляться вход: из дома или со двора.
На фото показаны примеры строений и место расположения постройки.


Следующим этапом будет определение способа крепления строения к стене дома. Теперь можно начинать практическую сторону работы. Сначала делаем фундамент, которому следует дать время на усадку и затвердение. Через месяц можно строить стены.

Начинать строительство следует с углов, поскольку именно по ним выравнивают стену. Далее закладываем первые два ряда стен, после чего необходимо выложить арматуру. Этот способ кладки позволит добиться максимальной прочности. В таком случае вы будете уверены, что постройку не поведет. В процессе кладки следует помнить об освещенности комнаты.

Строительство жилого объекта всегда подразумевает наличие окон в нем. На фото показан пример, как оставлять место под оконные рамы. Чтобы продолжать строить стену выше окна, необходимо установить балку-перекрытие, которая будет служить для следующего ряда пеноблоков. После того, как вы завершили строительство стен, следует подумать о подходящей крыше.


































