Содержание отдельных папок раздела
Весь массив подготовленных материалов разделён по категориям, каждая из которых соответствует определённому типу строений:
категория | разработаны проекты зданий | особенности |
жилые | индивидуальные жилые дома (одноэтажные, двухэтажные) | строения состоят из комнат и вспомогательных помещений (санитарные узлы, кладовые и другие), в них постоянно или временно проживают люди |
коттеджи | ||
многоэтажные жилые дома (на 3, 4, 6, 9, 8, 10, 11, 14, 36 этажей) | ||
производственные, промышленные | заготовительный корпус завода | используются для организации производственного процесса, хранения сырья и продукции; в них устанавливается технологическое оборудование, подводятся необходимые коммуникации |
цеха: дорожных машин, механический, кузнечный, механосборочный, литейный, металлоконструкций, ЖБК | ||
контрольно-пропускной пункт | ||
производственная база мастерской | ||
производственные здания различного назначения | ||
ремонтные мастерские | ||
коммерческие, общественные | офисы | сюда входят образовательные, медицинские, сервисного обслуживания, культурно-развлекательные, торговые, спортивные строения; имеют помещения большой площади, нахождение людей ограничено по времени |
спортивная школа | ||
детские сады | ||
водноспортивный комплекс | ||
ателье модной одежды | ||
дома быта | ||
здание отдыха водителей | ||
торгово-общественные комплексы | ||
культурно-деловой центр | ||
многофункциональный гостиничный офисно-развлекательный комплекс | ||
спортзалы | ||
магазины | ||
кафе, ресторан | ||
сауна-баня | ||
ледовая арена | ||
учебный центр | ||
кинотеатр | ||
школы | ||
административные | суд | в них создаются необходимые условия для работы управленческого аппарата, сотрудников государственных, хозяйственных, общественных организаций и учреждений |
прокуратур | ||
полиция | ||
банк и др. | ||
другие | включены остальные строения, не вошедшие в другие категории (лаборатории, проектные и научно-исследовательские организации, военные объекты и т. д.) |
К наборам чертежам прилагаются текстовые дополнения, где излагаются основные сведения о сооружениях:
- общие данные;
- конструктивные решения фундамента, стен, перекрытий, кровли, внутренних элементов (окна, двери, перегородки, полы, лестницы, потолки);
- внутренние коммуникации (отопление, электроснабжение, водоснабжение, канализация, вентиляция);
- варианты утепления;
- выполнение строительных работ;
- расчёты конструкций;
- благоустройство территории.
Результаты расчётов собраны в таблицы, проиллюстрированы графиками испытаний. Также представлены проекты отдельных строительных элементов (лестницы, стропильные системы, кровли).
Приложения на IOS и Android для проектирования дома
Если вам удобнее работать на смартфоне или планшете, существуют приложения для проектирования
дома на iOS и Android. Они позволят оформить реалистичный дизайн, а затем поделиться картинкой в интернете.
Home Design 3D
Приложение для проектирования дома на телефоны с операционными системами iOS и Android.
Содержит инструменты для рисования плана участка и обустройства интерьера и экстерьера коттеджа. Вы сможете
выбрать подходящие детали из коллекции ПО и изменить их размер, цвет, высоту. Просматривать контент можно в
софте, а также отправлять друзьям в мессенджеры или социальные сети.
Возможности Home Design 3D:
- загружает снимки с ПК для отделки предметов;
- изменяет освещение в зависимости от времени суток;
- устанавливает высоту и толщину стен.
Основные этапы создания проекта дома
Этап 1. Подготовка
На этом этапе следует по максимуму учесть все, что может помешать реализации вашего плана, и предотвратить негативные сценарии.
Проведите геологическую разведку на участке под строительство, чтобы располагать информацией о характеристиках почвы и грунтовых вод и в зависимости от этого планировать фундамент и этажность. Эти работы провести своими силами не получится — если только вы сами себе не геолог. Пригласите специалиста, а потом отталкивайтесь от полученной информации
Есть метод более простой, но менее точный — обратить внимание на соседние строения: какой у них фундамент, сколько этажей? Характеристики почвы на рядом расположенных участках в 99% случаев совпадают. Однако наша редакция такой метод не рекомендует — все же «на глаз» можно всегда ошибиться
А мы с вами все-таки дом строим, а не шарлотку готовим.
Изучите нормативы. Раньше можно было строить там, где нравится, не заморачиваясь — но эти времена прошли. Сейчас лучше заранее удостовериться, что на вашем участке нет никаких ограничений по строительству, а также заложить установленные расстояния между домом и другими объектами: не менее 5 метров от проезжей части, не менее 3 метров от соседского забора.
Определите стороны света
Это важно уже с точки зрения вашего комфорта. Если окна в спальне будут выходить ровно на восток, то утреннее солнце не позволит вам поспать подольше, а окна на север в общей гостиной вынудят постоянно использовать дополнительные источники освещения.
Устройте семейный совет и совместно обсудите потребности и пожелания всех членов семьи — это станет еще одним ориентиром для создания хорошего продуманного проекта. Заранее обсудите все вместе: сколько человек будут жить в доме, нужен ли кабинет, террасы, кладовая в кухне, постирочная, гардеробная, мастер-спальня и т. д. Чтобы лишняя комната или ее нехватка вдруг не стала для кого-то сюрпризом.
Исходя из всех полученных данных, определите место расположение дома и его размер, рассчитайте этажность, ориентировку окон и количество комнат. Этот первоначальный план может существовать в бумажном варианте — подойдет даже обычный листок в клетку. А переносом эскизов в специализированную программу можно заняться позже — когда будет готов уже более детальный проект.

Как выбрать участок для строительства дома
Этап 2. Разработка архитектурной части проекта
Здесь уже нужно более детально представить себе свой будущий дом.
Определить не просто количество комнат, а площадь каждой из них.
Установить высоту потолков и удобное расположение дверей.
Выбрать тип кровли и материалы для ее создания.
Определиться с толщиной стен и материалом для будущего дома.
Чем больше цифр и характеристик вы установите на этом этапе, тем проще будет дальше.
Этап 3. Разработка отдельных конструктивных элементов
Некоторые конструктивные элементы зданий требуют особого внимания. В том числе:
фундамент
подвал (если он запланирован)
перекрытия
стены
кровля.
Для каждого из них следует начертить схемы и разрезы, максимально детально представить всю информацию, которая потребуется для строительства.
Конечно, просто «из головы» придумать тут не получится: вам нужно изучить вопрос, найти похожие проекты в интернете, пообщаться на форумах; возможно, поговорить с кем-то из знакомых, кто уже занимался строительством дома. Очень помогает информация о том, как не надо делать — часто такие осознания приходят уже после реализации проекта дома.
Этап 4. Проектирование внутренних и наружных инженерных сетей
От того, насколько грамотно проложены коммуникации, зависят комфорт и удобство проживания в вашем будущем доме
Обязательно уделите внимание проектированию следующих систем:
водопровода
водоотведения (канализации)
газоснабжения
электроснабжения
вентиляции.
В некоторых домах также проводят систему теплого пола, индивидуального отопления и так далее — о них тоже нужно подумать заранее.
Хорошая новость заключается в том, что в вопросе проектирования инженерных сетей достаточно много готовых решений — вам остается только выбрать наиболее эффективное.
Обязательно продумайте, как вы будете обслуживать все эти системы в уже построенном доме и насколько легко будет их заменить в случае необходимости.

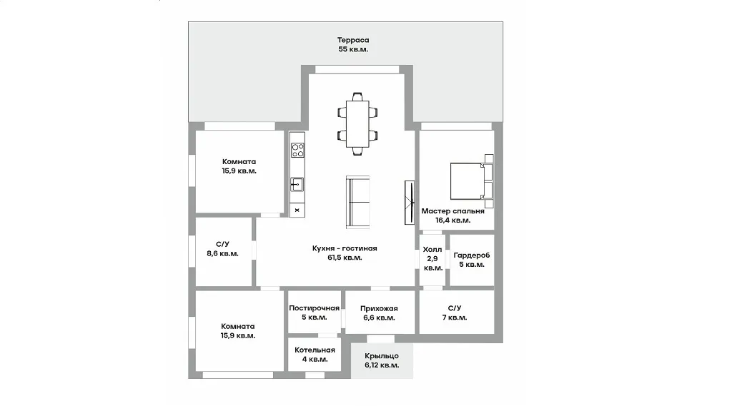
Так выглядит проект дома площадью 148,9 кв.м.: в комнатах разделены детская зона и родительская, есть выход на террасу с гостиной, предусмотрена постирочная и котельная.
Этап 5. Дизайн-проект здания
Кажется, что с этого нужно начинать — но на самом деле внешний вид дома и дизайн интерьера определяется в последний момент. Кто-то вообще решает вопросы внутренней и внешней отделки уже после того, как завершена основная часть работ — чтобы иметь возможность отталкиваться от реального бюджета.
На что обратить внимание при выборе бесплатного проекта
Выбирая для строительства бесплатный проект одноэтажного дома, необходимо помнить, что он разрабатывался под конкретные климатические условия и особенности грунта, подбирался материал, рассчитывался его вес, теплопроводные характеристики и другие параметры. Поэтому подбирая типовой чертеж, нужно обязательно выяснить, для какого региона составлялась проектная документация, какая почва была на строительной площадке, а также глубину залегания грунтовых вод.
Воплощать в жизнь готовый одноэтажный проект, необходимо строго придерживаясь предложенных чертежей и схем. Использовать исключительно предусмотренный архитектором строительный материал. В случае если эскиз разрабатывался под строительство из бруса, а вы планируете использовать газобетон, необходимо произвести глобальный перерасчет. Откорректировать придется все: от фундамента, до крыши. В этом случае проще будет заказать проект или найти новый вариант, чем привести в соответствие выбранный. Дорабатывать бесплатный проект есть смысл, если потребуется внести незначительные коррективы.
Скачать ТОР-10 проектов AutoCAD
1) 5-ти этажный жилой дом (скачать готовые проекты Автокада: АР, КЖ, КМ, кладочный план и т.д.)
Рис. 1 – Скачать проект Автокад “5-ти этажный жилой дом”.
2) Бизнес-центр: планы, фасады, характеристика здания. Скачать готовый проект AutoCAD.
Рис. 2 – Бесплатные проекты в Автокаде “Бизнес-центр”.
3) Монолитное 16-ти этажное здание (дипломный проект в Автокаде). Скачать проект жилого дома в Автокаде.
Рис. 3 – Готовый проект в Автокаде “16-ти этажное монолитное здание”.
Рис. 4 – Дипломный проект AutoCAD “16-ти этажное монолитное здание”.
4) Проект реконструкции в Автокаде административного здания. Скачать рабочие чертежи Автокада.
Рис. 5 – Готовые чертежи проекта AutoCAD “Реконструкция существующего здания администрации”.
Рис. 6 – Проекты домов Автокад. Скачать диплом “Реконструкция существующего здания администрации”.
Рис. 7 – Проект дома в Автокаде скачать “Реконструкция существующего здания администрации”.
Рис. 8 – Проекты/чертежи Автокад. Скачать диплом “Реконструкция существующего здания администрации”.
Рис. 9 – Типовой проект в Автокаде. Экономический расчет
5) Спорт-комплекс (архитектурный план). Скачать проект AutoCAD.
Рис. 10 – Проект AutoCAD “Спорт-комплекс”
6) Проект AutoCAD “Колокольня”. Скачать рабочие чертежи Автокада.
Рис. 11 – Готовый проект Автокад “Колокольня”
7) Коттедж в Автокаде: курсовая работа. Скачать проект AutoCAD.
Рис. 12 – Бесплатные проекты Автокад. Курсовой “Коттедж”
8) Проекты 6-и коттеджей в формате *.DWG. Скачать чертежи Автокада.
Рис. 13 – Коттеджи в Автокаде. Готовые проекты dwg.
9) Классический коттедж с красивым фасадом. Скачать готовый проект Автокад.
Рис. 14 – Проекты домов в Автокаде. Скачать готовые чертежи.
Рис. 15 – Дом в Автокаде. Коттедж “классический”.
Рис. 16 – Скачать проекты домов Автокад.
11) 5-ти этажный дом в Автокаде (3D модель). Скачать готовый проект Автокад.
Рис. 17 – Скачать 3D модель дома в AutoCAD.
Пример состава чертежей готового проекта
Состав чертежей готового проекта дома:
- План фундаментов дома с необходимыми габаритными размерами и глубиной заложения в грунт. В готовом проекте дома, как правило, принята расчетная глубина заложения ленточного фундамента по ЦФО равная 1200 мм.;
- План первого, второго этажа дома (если дом двухэтажный) с необходимыми размерами и наименованиями помещений, экспликация помещений с площадью в кв.м.;
- Кладочный план первого (второго) этажа с необходимыми размерами и привязками оконных и дверных проемов;
- Визуализации дома в цветном исполнении с различных ракурсов (4-5 ракурсов);
- Чертежи плоскостных фасадов дома с высотными отметками (4 стороны);
- Разрезы дома с необходимыми высотными отметками по цоколю, перекрытиям, коньку и т.д.;
- План раскладки элементов межэтажных перекрытий, ведомость перекрытий, экспликация;
- План кровли с габаритными размерами и уклоном кровельных плоскостей в градусах;
- Пояснительная записка к проекту — общие данные 1 лист.
Представленные чертежи являются доработанным эскизным проектом, содержащие необходимую информацию для следующих видов строительно-монтажных работ:
- Вынос и разбивка габаритов дома на земельном участке;
- Дальнейшая подготовка подрядчиком сметы на строительно-монтажные работы и материалы;
- Строительства дома подрядной организацией;
- Получения разрешения на строительство (уведомления о начале строительства) в отделе архитектуры муниципалитета Вашего места жительства (и)или территории на которой находится земельный участок.
Адаптация фундамента
Рекомендуемая дополнительная услуга, включающая в себя разработку чертежей привязки фундамента Вашего дома к земельному участку. Данная услуга предусматривает корректировку фундаментов готового (типового) проекта дома с учетом следующих факторов:
- глубина промерзания грунта в регионе строительства;
- наличие возможного уклона земельного участка отраженного в топографической съемке участка выполненной в масштабе 1:250 или 1:500;
- изменение типа фундаментов в зависимости от состава исходных грунтов на Вашем земельном участке или задания на проектирование.
Конструктивные чертежи (Стадия КР)
В готовом проекте, приобретаемом на нашем сайте, Вы найдете всю информацию необходимую для подрядной организации ведущей процесс строительства Вашего дома.
В случае, когда по каким-либо причинам, подрядчику необходимы дополнительные детальные чертежи конструктивных элементов дома, возможна их последующая проработка.
Перечень конструктивных элементов, разрабатываемых в части КР:
- Конструктивные решения цокольного этажа и фундаментов дома с разработкой армирующего каркаса, подсчетом количества и диаметра арматуры;
- План стропильной системы, конструктивные узлы крепления мауэрлата, стропильных ног, обрешетки подсчет бруса, сечение, утепление;
- Конструкции полов, в т. ч. системы «теплый пол, конструктивные узлы, подсчет материалов;
- Конструктивные узлы крыши;
- Конструктивные решения армированных кладочных поясов;
- Конструктивные решения вентиляционных каналов дома.
Стоимость услуги — разработка КР части проекта договорная и рассчитывается в зависимости от объема необходимой проектной проработки и сложности объемно-планировочных решений дома или хозяйственно-бытовой постройки.
Что должно быть указано в проекте дома?
Проект дома должен содержать всю необходимую информацию, необходимую для строительства дома, включая следующее:
Архитектурные планы: это детальные чертежи дома, включающие планы этажей, фасады, разрезы, планы крыши, планы фундамента и другие чертежи, необходимые для строительства дома.
Технические планы: это детальные чертежи, описывающие системы отопления, вентиляции, кондиционирования воздуха, электроснабжения, санитарно-технических узлов и других систем, необходимых для комфортного проживания в доме.
Спецификации и планировки: это документы, описывающие конструктивные элементы, используемые в доме, а также список материалов, необходимых для строительства дома.
Рабочие чертежи: это детальные чертежи, используемые рабочими при строительстве дома, такие как планы укладки кирпича, планы проведения труб и кабелей и другие чертежи.
Отчеты и расчеты: это документы, описывающие и обосновывающие выбранные проектные решения, такие как расчеты на прочность конструкций, теплотехнические расчеты и другие.
Документация на использование земельного участка: это документы, необходимые для получения разрешения на строительство на данном земельном участке, такие как кадастровый план, технический паспорт земельного участка и другие.
В проекте дома должна быть также указана информация о проектной организации, ответственном за разработку проекта, а также дата и номер разрешения на строительство.
Программы для создания проектов
Набросать первоначальный примерный чертеж можно и карандашом на салфетке — хотя лучше, конечно, маркером на доске.
Но чем больше вы будете вдаваться в детали, тем более целесообразным будет перенос «бумажного» плана в электронный. Существует огромное количество программ — любительских и профессиональных — для удобной работы с планировками и расположением объектов.
ArchiCAD (с бесплатным пробным периодом)
Профессиональное ПО для создания 3D-моделей и 2D-чертежей. Здесь можно проектировать интерьеры загородного дома, продумывать ландшафтные проекты земельного участка, даже составлять простейшие сметы. А еще выбирать мебель из большого каталога и создавать видеоролики для виртуальных прогулок по комнатам дома своей мечты.
HouseCreator (платная)
Специализированная программа для проектирования домов из бруса. Есть редакторы фундамента, сруба, стен, перекрытий и крыши; можно получить чертежи, планы и спецификации на основании загруженных данных.
Home Plan Pro (с бесплатным пробным периодом)
Чертежная программа для легкого проектирования каркасных домов. С ее помощью можно спроектировать отдельным помещения, спланировать расположение окон и дверей.
«ЛИРА-САПР» (некоммерческая и демоверсии)
Программа, предназначенная для расчета нагрузок на конструкции, предоставляет доступ к справочной информации, примерам и уже готовым проектировочным алгоритмам.
SketchUp (веб-версия для частного пользования без оплаты)
Программа для создания трехмерных моделей домов, прилегающего ландшафта, интерьера и мебели с высокой степенью точности и детализации.
«Дом-3D» (с бесплатным пробным периодом)
В каталоге программы вы найдете множество готовых моделей мебели, сможете «примерить» к проекту разные материалы.

Что лучше – построить дом или купить готовый
Где можно взять бесплатные проекты одноэтажных домов
Самый доступный и простой способ найти бесплатный типовой план в интернете и скачать его – тематические блоги, форумы, в которых люди, построившие собственный жилье, выкладывают в свободный доступ проектную документацию. Делают это люди далекие от архитектуры для того, чтобы профессионалы помогли выявить и устранить возможные ошибки, найти моменты, переделка которых позволит сэкономить, либо просто поделиться своим опытом с другими.
Огромное преимущество подобных проектов – можно увидеть реальный дом, возведенное по этим чертежам, задать вопросы хозяину, чтобы уточнить все важные моменты.
Бесплатную проектную документацию можно найти и скачать на следующих ресурсах:
- Портал «Чертежи». Содержит библиотеки учебных и рабочих планов. Здесь можно найти проекты одноэтажных домов бесплатно с чертежами, но и схемы всех инженерных коммуникаций.
- Строительный форум «Форум Хаус». Представлено много планов.
- Типовые проекты можно найти на сайтах строительных компаний, которые заинтересованы в привлечении клиентов. Это позволяет значительно сократить время на первоначальном этапе работы с клиентом.
- Библиотеки готовых чертежей содержат много проектов, которые можно скачать. Однако неточности в описаниях, отсутствие наглядной информации, необходимость использовать сторонние программы для открытия файлов, значительно усложняет изучение документации.
- Крупные производители строительных материалов заинтересованы в привлечении клиентов, поэтому на официальных сайтах компании бесплатно размещают типовые проекты одноэтажных домов с фото.
На аналогичных ресурсах представлены разные проекты, которые можно использовать для строительства дома. Перед использованием того или иного плана, скачанного из интернета, лучше проконсультироваться со специалистом, который сможет выявить ошибки и недоработки. Строительство – затратное мероприятие, поэтому лучше устранить все недочеты на этапе проектирования.



































