Студия
Модной тенденцией в наше время является квартира-студия, в которой объединено пространство кухни, комнаты и прихожей. Выбранную модель пространства можно реализовать для многоквартирных «хрущевок» любой серии застройки.


Можно также оставить отдельную прихожую, за которой находится небольшая гардеробная и санузел. Остальное пространство будет состоять из гостиной зоны, кухонной поверхности и спальни.


Разделить визуально пространство поможет декор стен и установка мебели. Возможно отделить спальню от гостиной стеллажом со встроенным телевизором, который при необходимости поворачивается в ту или другую сторону.

Для отделения кухонной зоны подойдет барная стойка или символическая круглая арка. Она не несет никакой нагрузки, кроме эстетической.
Кровать можно отделить ширмой или занавеской в тон мебели. Удачным расположением для нее будет промежуток за прихожей. Таким образом, получится незаметное спальное место, не утяжеляющее пространство.


Для интерьера больше всего подойдет скандинавский стиль
, суть которого заключается в светлом незагруженном помещении с минимумом декора. Это визуально расширит квартиру и придаст легкости вашему дому.

В итоге получается свободное пространство, не загроможденное никакими стенами. Из минусов можно отметить то, что в помещении нет изолированных комнат.
Отделка и оформление кухни
Дизайн кухни в однокомнатной хрущевке играет решающую роль. Сочный оранжевый цвет создает приподнятое настроение, обилие шкафов и ниш для хранения позволяет удобно разместить все необходимое: от сковород и кухонного комбайна до столовых приборов и стаканов.

Точечное освещение на маленькой кухне хрущевки, дополненное круглым абажуром в тон ярких фасадов, полностью исключает наличие темных и неосвещенных зон.

Дизайн кухни предусматривает, что оранжевый цвет органично приглушают светлые стены, потолок и мебель.

Небольшой круглый стол занимает минимальное пространство. За ним могут комфортно разместиться 3 человека.

Стилизованный камин на кухне создает уютную атмосферу, располагающую к общению.

Картины в квадратных рамках над обеденной зоной завершают дизайн кухни в однокомнатной хрущевке.
Советы по увеличению пространства
Стоит прислушиваться к предложению новых технологий.

В маленькие квартиры совершенно не подходят дизайны прошлого времени
Так как нынешние тенденции предлагают комфорт и компактность что очень важно для маленькой квартиры.

При нынешних технологиях можно легко подобрать мебель и в маленькую квартиру.

Для того чтоб сделать уют и комфорт в своей квартире с помощью ремонта вы можете посмотреть идеи и картики в нтеренете , а так же можете совместить различные дизайны, ну и конечно может сотворить чудеса ваша фантазия!

Из всего вышеперечисленного можно сделать такой вывод: даже в маленькой квартире размером в 30кв обязательно стоит сделать перепланировку.

Ведь именно перепланировка делает квартиру оригинальной, удобной, максимально комфортной. Что позволяет расслабиться после тяжелого трудового дня или пригласить друзей в гости.

Что представляет собой двухкомнатная хрущевка
За двадцать лет интенсивного строительства использовалось несколько проектов и серий хрущевок, квартиры строились из железобетонных панелей или кирпича, в четырех и пятиэтажном исполнении, с высотой потолков 250 и даже 270 см, но внутренняя планировка помещений придерживалась примерно одной и той же схемы.
Практически все квартиры, за исключением блочных вариантов с тремя комнатами, строились по одним и тем же характеристикам:
- Общая площадь планировки двухкомнатной квартиры в хрущевке составляла от 30 до 46 квадратов, из них 8 м2 отводились для спальной, 4,5 м2 – для кухни, остальное для зала – 14 м2, коридора и вспомогательных помещений;
- Зал в планировке всегда был проходным, то есть, чтобы попасть в наиболее удаленную спальную комнату, приходилось пересекать гостиную или зал;
- Санузел для хрущевки мог быть раздельным с ванной, но всегда располагался в одном блоке с кухней и коридором, таковы особенности планировки водных и канализационных коммуникаций.
В хрущевках любой планировки всегда отсутствовал лифт и вспомогательные помещения для обустройства электрощитовой, запорной водопроводной и газораспределительной арматуры. Все жизненно важные краны и вентили либо перенесены в подвальное помещение, либо находились на фасаде здания.

Важно! Стоит отметить, что качество строительства кирпичных хрущевок было намного выше панельных коробок. Если здания из силикатного и красного кирпича, по некоторым оценкам, могут простоять до 100 лет, то для панельных домов конструкции из железобетона теряют несущие способности через 40-45 лет эксплуатации
Большинство панельных хрущевок первого проекта находятся в аварийном состоянии из-за ошибок в планировании и недобросовестного обслуживания зданий
Если здания из силикатного и красного кирпича, по некоторым оценкам, могут простоять до 100 лет, то для панельных домов конструкции из железобетона теряют несущие способности через 40-45 лет эксплуатации. Большинство панельных хрущевок первого проекта находятся в аварийном состоянии из-за ошибок в планировании и недобросовестного обслуживания зданий.
Нужно ли согласование
Переоформление квартиры в студию выполняется лишь по проекту. В старом доме понадобится технологическое заключение о возможности перепланировки. При переносе сантехнических помещений и кухни нужны акты на проведение скрытых работ и сопровождение авторского надзора.
Если требуется, наоборот, превратить студию в уютную «однушку» либо «двушку», также создают и согласовывают проект, поскольку предполагается изменение конфигурации помещения, его разделение на стационарные зоны.
После создания проекта нужно обратиться в Жилищную инспекцию либо МФЦ для получения согласования. В течение 45 дней уполномоченные органы рассматривают заявление и выносят решение. Если не возникнет повода для отказа, выдается разрешение.
По завершению ремонтных работ комиссия составляет акт, позволяющий внести изменения в технический паспорт жилья. Затем требуется зарегистрировать право собственности на обновленную недвижимость.
При перепланировке категорически запрещено:
- обустройство дверей в туалет и ванну из комнаты либо кухни;
- снос стен между газифицированной кухней и комнатой без установки раздвижных перегородочных элементов либо проемов с плотно закрывающимися дверьми;
- разрушение несущих стенок;
- перенос вентканалов;
- демонтаж подоконника без установки на его место стеклянных раздвижных фальш-стенок или однодверного стеклопакета в пол.
Нельзя переносить кухонную и санитарную зону без учета требований законодательства РФ и Правительства Москвы (либо региональных органов власти).
Монохромная квартира, в которой все поместилось
Дизайн однокомнатной квартиры в Текстильщиках (Москва) имеет скандинавские «корни». Ее хозяин Сергей — специалист отдела продаж. Использовать рационально каждый сантиметр квартиры — такая задача была поставлена дизайнеру.
Планировка.
Лишние перегородки здесь были не нужны, но совсем от них отказываться не стали. Для спального места сделали нишу из легких блоков, а вход на кухню перенесли из центра квартиры к окну. На месте входа сделали мини-кабинет. Рабочее место от гостиной отделяет небольшая ниша.
На кухне площадью 4,9 кв. м хозяин хотел вместить посудомоечную машину. Бытовую технику использовали только узкую: посудомойка шириной 45 см, холодильник — 55 см, варочная панель — на три конфорки. Столешницу завели под окно — тут можно и готовить, и есть, и работать.
Проем между кухней и гостиной — 80 см, чтобы можно было легко вставить дверь, например, при продаже. Кухня с газовой плитой, без двери квартиру будет не продать. Сегодня за безопасностью следит газовый контроллер.
По сути спальня и гостиная находятся в одной комнате, но за изножьем кровати всегда можно опустить широкую рулонную штору и спрятаться от гостей или отгородиться от света уличных фонарей. Размеры спальни предопределила мебель: ширина спальни равна ширине кровати из ИКЕА, длина — гардеробу, примыкающему со стороны прихожей. Гостиная зонирована с помощью углового дивана у окна. Для спальни там было слишком шумно — квартира находится на втором этаже, окна выходят на дорогу.
Хранение.
Большинство вещей поместилось в угловой шкаф, купленный в ИКЕА. Он состоит из нескольких модулей и расположен вдоль стены прихожей и вдоль перегородки спальни. В центре — секция со скошенными углами, здесь хранится пылесос и другой объемный инвентарь. Кроме того, небольшие шкафы и полки устроены в изголовье кровати. Места хранения есть еще под кроватью с подъемным механизмом и под сидением дивана.
Тот же фокус, что и с узкой техникой на кухне, повторили в ванной: подвесной унитаз Hatria — один из самых маленьких, что можно встретить в продаже. И глубина стиральной машины — всего 37 см. Благодаря этому удалось втиснуть полноценную ванну 120 см.
Хрущевка 1 комнатная размеры. Планировки серий домов раннего строительства
Итак, какие же разновидности малометражек существовали в Советском Союзе и существуют по сей день? Первая, и самая популярная серия жилья возводилась под номером 1-464. Все квартиры этой серии оборудованы балконами и небольшими кладовыми, но в подъездах отсутствует лифт и мусоропровод. В таких домах были двухкомнатные, трехкомнатные и однокомнатные квартиры. На площадке четыре двери. Начиная с 1963 года на протяжении четырех лет активно строились малометражки серии 1-335. Здесьуже больше на 4 см, а размер столовой зоны достигает 6,2 квадрата. Даже планировка 1-комнатной хрущевки этой серии предполагает наличие. На площадку выходят четыре двери, максимальный размер — трешки. Четырехкомнатных квартир в типовых домах не было.
Освещение
Хорошее освещение поспособствует зрительному увеличению комнаты, поэтому так важно не перекрывать окна мебелью или декоративными элементами. Для классического оформления оконного проёма можно сочетать тюль с более плотными шторами — это обеспечит хорошее освещение в дневное время и темноту в ночное
Если места у окна не слишком много, можно заменить шторы более компактными рулонными или использовать жалюзи.
Помимо естественного света важно обеспечить комнату хорошей системой освещения. Внешний вид осветительных приборов может быть практически любым — главное, чтобы он соответствовал общему стилю интерьера, а размер светильников не был слишком крупным
Желательно использовать сразу несколько моделей приборов, распределяя их по функциональным зонам.
Чтобы комната при включенном свете казалась больше, весь её потолок должен равномерно освещаться мягким светом без затенённых уголков. Ламп с холодным свечением в таком интерьере советуют избегать. Помимо основного освещения в спальной зоне располагают ночник, а в рабочем уголке — настольную лампу. На кухне необходимо обеспечить яркий свет в зоне готовки.
Радикальные меры по расширению пространства
Не всегда удается визуально расширить пространство, используя лишь известный прием «просторная квартира – белая квартира». К тому же, не всем комфортно в окружении белых стен и белой мебели и всего белого даже несмотря на то, что этот цвет имеет множество красивых оттенков. Поэтому физические способы по увеличению полезной площади все-таки берут верх в большинстве случаев.

Возможных вариантов всего два:
- Снос перегородок. Самым приятным моментом является то, что все перестенки в однокомнатных хрущевках не являются несущими. В очень редких случаях это не так. Поэтому у вас есть полная свобода действий, и вы не рискуете обрушить целое здание из-за неумелой перепланировки. Отсутствие перестенков моментально сделает жилище более просторным и светлым и откроет новые возможности по расстановке мебели и разделению на необходимые зоны. Но не забывайте, что любые работы должны быть узаконены соответствующими инстанциями. Ведь без нового технического паспорта вам не удастся в будущем продать перепланированное жилье;
- Совмещение с балконом. В первом пункте мы подчеркивали, что практически все однушки имеют балкон не просто так. Ведь это бесценные дополнительные метры к общей площади помещения. Да, вам вряд ли удастся увеличить размер комнаты более чем на 4 кв.метра, но согласитесь, при общей площади в 30 квадратов – это настоящий бонус, которым обязательно нужно воспользоваться! Появившееся пространство можно использовать как угодно в зависимости от того, примыкает оно к кухне или к гостиной. Для того, чтобы сделать это место комфортным, следует провести работы по утеплению всех его поверхностей и установить качественные стеклопакеты. Кстати подобное совмещение также относиться к перепланировке и требует наличия всех разрешающих документов. Особенно, если планируется панорамное остекление.
Да, вам придется посетить множество учреждений, прежде чем вы согласуете все работы, но результат будет того стоить. А если вы обратитесь за помощью в строительные организации, которые разработают дизайн-проект, то в большинстве случаев получение всех разрешений они возьмут на себя, что значительно ускорит начало работ и побережет ваши нервы.
Обязательно хорошо подумайте, прежде чем совмещать кухню с гостиной. Во-первых, если вы используете кухню часто и по назначению, то это может быть не совсем удобно. С характерными запахами поможет справиться мощная вытяжка, а вот с сопутствующими звуками – нет. Во-вторых, по закону нельзя объединять газифицированную кухню и жилое помещение. Даже дверь нельзя демонтировать. Если на кухне есть газ, то придется либо отказаться от идеи совместить ее с комнатой, либо отрезать газ и покупать электрическую плиту. Это достаточно сложно, дорого и не во всех случаях возможно. Зато есть альтернатива – поставить раздвижные перегородки. Так и формальности будут соблюдены, и пространства станет больше.

Студия со спальней-гостиной
Авторы интерьера – дизайнеры из Buro Brainstorm. Здесь реализовано несколько идей, которые идеально подходят для небольшой квартиры.
Чтобы обстановка казалась светлее и больше, стены окрашены в светло-серый, а в качестве рельефных акцентов выбран белый кирпич. Спальня отделена стеклянной стеной и шторами, поэтому хозяева могут визуально объединять помещение или, наоборот, уединяться. Мойка на кухне находится у окна: это помогло выиграть несколько полезных сантиметров для хранения.
Ещё один приём, которыми воспользовались архитекторы, – занижение подоконника. Это позволило получить ещё одно посадочное место и сделать обстановку уютнее за счёт увеличения количества естественного света.
Смотреть проект полностью «Дизайн маленькой хрущевки 30 кв м»
Любую, даже самую компактную, хрущёвку можно превратить в привлекательное и удобное пространство. Большинство таких квартир нуждаются в перепланировке и увеличении кухни, но конечный результат того стоит.
Трехкомнатная хрущевка: изменение расположения комнат
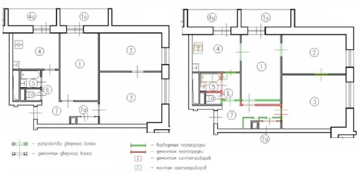
Хрущевки серии 11-57.3.2 отличаются очень маленькими размерами туалета и ванной комнаты. Исходя из этого, переделка квартиры просто необходима, если учесть, что на планете уже 3-е тысячелетие и наличие современной сантехники и бытовой техники указывают на такую необходимость. Чтобы оптимизировать жилое пространство, необходимо убрать простенок между ванной и туалетом. Часть коридора, которая примыкает к санузлу, отгораживается стеной, где располагают двери в санузел. Единственная проблема – это усиление гидроизоляции в этой части, где раньше находился коридор.

Первоначальная планировка не позволяла установить шкаф. В небольшом отрезке коридора, который отошел под ванную, был небольшой шкаф, но его размеры настолько малы, что позволяет в него прятать лишь малогабаритные вещи. Поэтому, приходится подвинуть стену одной из спален, чтобы на освободившееся место поместился гардероб.
Для объединения кухни и гостиной, необходимо избавиться от части стены. При этом, необходимо провести усиление соответствующих несущих стен и перекрытия. Поскольку плита на кухне газовая, то нужны двери. Как вариант, можно установить раздвижные.
Возможен и другой вариант ремонта, позволяющий увеличить площадь санузла, а также превратить какую-нибудь комнату в гостиную-столовую, из которой возможен выход на кухню. Заодно, нужно сформировать две спальни.

Для этого, удаляются простенки между ванной и туалетом, а часть коридора изымается под санузел. Теперь вход в кухню будет со стороны гостиной, с противоположной стороны гостиной формируется вход во вторую спальню.

Что касается дверного блока, размещенного во второй спальне, то его необходимо демонтировать, а проем заложить.
Следующий вариант перепланировки рассчитан на то, чтобы увеличить полезную площадь санузла и кухни. Что касается санузла, то его расширяют классическим способом: удаляют перегородку между ванной и туалетом, а также подравнивают стенку. Кухня расширяется за счет комнаты. Такое решение позволяет сформировать место для отдыха, где можно установить диван и телевизор.
Получается, что можно таким образом разделить проходные комнаты. Хотя площадь и уменьшилась, зато они стали более функциональными. На освободившихся площадях можно разместить гардеробные комнаты.
Как подобрать и расставить мебель?
В однокомнатной квартире необходимо уместить всю основную мебель так, чтобы комната не казалась загромождённой. Для этого стараются выбирать предметы простых и правильных форм не слишком большого размера. Чтобы решить сразу несколько задач разом, можно приобрести мебель с потайными областями для хранения или раскладные модели. Днём удобный диван может служить местом для сидения, а ночью превращаться в полноценную альтернативу кровати.
Раздвижной стол выручит в случае прихода гостей, а табуретки при необходимости могут превратиться в оригинальную замену журнального или кофейного столика. Модульные шкафы и навесные конструкции помогут сэкономить место и сформировать наиболее удобную систему хранения. Выбирая шкаф, лучше остановиться на модели-купе, благодаря более компактным дверцам он займёт меньше места. Облегчить интерьер позволят модели со стеклянными или зеркальными створками.
Помимо основного шкафа или комода можно предусмотреть области для хранения в любых возможных предметах — если кухню и гостиную разделяет барная стойка, её нижнюю часть можно превратить в тумбочку. Вместо стульев или табуретов можно использовать пуфы с полостью и пр.
Мебель в маленькой комнате также стараются выдерживать в светлых тонах. Отдельные предметы могут служить яркими акцентами интерьера, но переусердствовать с их количеством не стоит
Выбирая, где поставить мебель, важно учитывать особенности комнаты. Не стоит перекрывать шкафами и стеллажами проёмы — в дверях они будут затруднять проход, а у окна — перекрывать свет
Расположение мебели должно соответствовать областям зонирования. Если в зале присутствует отдельное спальное ложе, для него выделяют место у окна, наиболее удалённое от дверного проёма. Можно зрительно отделить его шторой, передвижной перегородкой или иным способом зонирования.
Чтобы мебель не мешала перемещению по комнате, обычно её сосредотачивают вдоль стен. Кроме того, следует располагать мебель так, чтобы к ней можно было легко подойти. Постоянно пользоваться шкафом, перекрытым диваном или столиком, будет неудобно.
Угловые модели дивана, кухонного гарнитура или шкафов помогут эффективней задействовать свободное пространство. Технику можно повесить на стену или установить на вместительных тумбах.
Дизайн гостиной в однокомнатной хрущевке
В интерьере гостиной комнаты преобладают четкие геометрические формы, призванные зонировать пространство. Игра контрастов белого и сапфирного синего подчеркивает строгость линий.

Зона отдыха находится у окна. Мягкий диван с обилием подушек и удобное кресло, расположенные напротив телевизионной панели, способствуют расслабленному времяпрепровождению. Изогнутая лампа на высокой ножке создает дополнительное освещение.

Декоративные ниши со сквозными полками у входа делают пространство легким. Гостиная в однокомнатной хрущевке кажется больше за счет использования встроенного шкафа с зеркальной поверхностью, украшенной рисунком.

Стена за диваном декорирована модульной картиной на морскую тематику, которая также нашла отражение в отделке диванных подушек.


Дизайн однокомнатной хрущевки 31 кв. м. изначально предполагал светлый пол и стены, которые создают воздушность, наполняя гостиную воздухом и светом.
Дизайн однокомнатной хрущевки без перепланировки
Обустройство квартиры без перепланировки базируется на использовании многофункциональных элементов мебели, отсутствии резких цветовых контрастов и единому стилю всей квартиры. Больше всего трудностей при обустройстве может доставить однокомнатная угловая хрущевка. Дизайн такой квартиры требует не только рационального использования пространства, но и создания дополнительных источников тепла.

Создание в квартире полноценной спальни обеспечивает высокую степень комфорта. Чтобы иметь место для приема гостей, можно попытаться совместить кухню с балконом.

Но так как это редкость, обустроить кухню нужно с максимальной рациональностью и экономией свободного пространства. Для удобства можно разместить небольшой мягкий уголок.
Проживание в домах с типовым проектом квартир – обычное явление для всей территории России. И самый распространенный из них — «хрущевка», знаменитая своей маленькой кухней, низкими потолками и комнатушками, больше напоминающими клетки. Осуществление перепланировки – реальная возможность улучшить свое жилье, сделать его современным и более комфортным. Перепланировка 1 комнатной хрущевки 55 фото идей дизайна на нашем сайте.


Проблема, которая возникает сразу перед началом перепланировки – это небольшая площадь таких квартир. Все-таки, как ни крути, потолки не поднимешь, а комнату больше никак не сделаешь. Но выход, как всегда есть! Заключается он в сносе перегородок и освобождении единого большого пространства.

Дизайн однокомнатной квартиры перепланировка хрущевки, в большинстве случаев объединяется пространство кухни и самой большой комнаты, однако объединение должно быть не полным. Для наилучшего раззонирования подходит арка, барная стойка. Но, если полного объединения избежать не удалось, пространство можно разделить разным напольным покрытием, цветом стен, расстановкой мебели. Перепланировка однокомнатной хрущевки 30 кв м фото ниже:


Стену маленькой комнаты можно перенести так, чтобы поместилась только двухспальная кровать. Это будет только место для отдыха, а основное времяпровождение будет осуществляться в большой просторной комнате, увеличенной еще больше за счет переноса стены меньшей комнаты. Этот вариант идеально подходит для проживания одного-двух людей, не имеющих детей.

Перепланировка 1 комнатной хрущевки — появление ребенка обуславливает обустройство отдельной комнаты и для него.
- Этого можно добиться переоборудованием «кабинета» в детскую спальню.
- За счет «отчуждения» небольшого пространства спальной комнаты (если площадь позволяет) или большой комнаты, увеличенной за счет кухни, коридора и одной и более комнат.
- Туалет рационально объединить с ванной, установив душевую кабину вместо громоздкой ванной.
- В таком случае в санузле можно разместить еще стиральную машину и мебель для бытовых принадлежностей.
- Для переноса сантехнических приборов может понадобиться частичный или полный перенос водопроводных и канализационных труб.
Перепланировка однокомнатной квартиры хрущевки фото:


Ни в коем случае нельзя ломать несущие стены, определение на вид которых не всегда удается и профессионалу, системы вентиляции, газовые трубы. В этом случае вам придет на помощь специальная организация, имеющая лицензию на проведение подобного рода экспертизы. Самопроизвольная перепланировка довольно часто заканчивается плачевно и грозит обрушением конструкций жилых помещений и гибелью людей.

Варианты оформления дизайна и интерьера в однокомнатной хрущевке
При грамотном подходе дизайн в однокомнатной хрущевке, где минимум пространства, может представлять максимум удобства жильцам этой малометражки.

Все под рукой и лаконично
Чтобы этого эффекта добиться, нужно знать некоторые общие правила:
- Визуально увеличить пространство.
- Правильно оформить потолок.
- Выбрать оптимальную цветовую палитру стен.
- Мебель и аксессуары.
- Каждой вещи – свое место.
Дизайн-проект 1 комнатной хрущевки наилучшим образом привлекает предметы средних пропорций, потому что предметы дизайна крупных размеров визуально создают атмосферу нагромождения.

Проект: спальня-гостиная-рабочий кабинет
Несколько способов зонирования
Возникает необходимость выделения различными способами зон в жилом помещении:
- цветовыми методами;
- осветительными приборами;
- применением соответствующих материалов;
- использованием ширм и перегородок.

Вариант зонирования гостиная-спальня
Потолочные конструкции
- На дизайн однокомнатной хрущевки оказывает влияние цвет потолка. Здесь не следует устраивать многоуровневые варианты потолка, декоративная отделка тоже не приветствуется.
- Для зрительного увеличения высоты комнаты рекомендуется наклеивать обои до соприкосновения с потолочной поверхностью.

Увеличение пространства за счет потолочной конструкции
Освещение и цветовая палитра
- Оригинально меняется пространство при искусственной подсветке, установленной вдоль стен комнаты.
- Все эти нюансы играют в пользу дизайна квартиры однокомнатной хрущевки.
- Светлые тона вообще зрительно расширяют полезную площадь и добавляют света.

Влияние цветовой палитры и осветительных приборов на зонирование помещения
- Учитывая это обстоятельство, можно прекрасно сыграть на цветовой палитре, создавая дизайн в однокомнатной хрущевке и планируя отделочные работы.
Роль шкафа купе с зеркалами
Иллюзию большого просторного пространства создаст стена, смонтированная из зеркал.
Шкафы с зеркальными дверями от пола доверху в дизайн проекте однокомнатной квартиры хрущевка решат сразу задачу увеличения площади и при этом зрительно скрывает наличие области для хранения вещей.

Шкаф-купе в интерьере в хрущевке
Какую роль играет мебель в проекте
Меблировка в дизайн проекте однокомнатной квартиры-хрущевки рассматривается отдельным вопросом:

Мебель должна быть удобной и функциональной
Многофункциональная мебель снимает напряжение с перегрузкой полезной площади
При покупке мебели стоит обратить внимание на складывающиеся, навесные предметы, стеклянные детали. Раскладной диван или кресло-кровать заменить нечем
Продумать использование угловой мебели. Подвесные предметы дизайна экономят площадь. Минимизировать количество покрывал, ковриков, подушечек, текстиля. Минимум мелких аксессуаров.
Планировка 1 комн хрущевки. Оформление и дизайн хрущевки 1-комнатной квартиры
Иметь 1-комнатную квартиру небольших размеров в доме, построенном в хрущевскую эпоху, гораздо лучше, чем не иметь совсем никакой жилплощади. Если есть небольшая квадратура, то и дизайн хрущевки 1-комнатной квартиры может стать самым современным и радовать владельца своим уютом. Чудесным преобразованиям устаревшего жилья способствует желание хозяев производить перемены и наличие материалов для превращения, например, неуютной маленькой хрущевки в квартиру — студию. За дверью прихожей получается общее пространство без кладовок.
Однокомнатная хрущевка – это не приговор
Есть особенности обустройства помещения с малой площадью:
- Грамотно создать проект.
- Определить способы зонирования.
Проект может представлять собой простую схему, на которой четко обозначено расположение мебели, размещение жизненно важных зон в квартире таким образом, чтобы жилое пространство визуально расширилось.
Пространство расширили за счет балкона
Проект, перепланировка, дизайн однокомнатной квартиры хрущевки, связанный со смещением стен, необходимо согласовать с компетентными органами и получить их разрешение на переоборудование.
Несколько советов по перепланировке
Не менее важным фактором является количество членов семьи, которым предстоит проживать в квартире:
- В семье с детьми нужно обязательно выделить детский уголок со спальным местом.
Проект гостиной с детской
- Квартира-хрущевка (однокомнатная), дизайн которой разрабатывается, может стать на несколько квадратных метров больше, если произвести объединение кухни с гостиной, а санузел совместить.
Соединение кухни-гостиной
- Дизайнеры предлагают интересное решение проблемы путем создания общего функционального пространства для спальни, гостиной зоны со столовой.
Гостиная-спальня
Таким образом, однокомнатная квартира и дизайн хрущевки изменится до неузнаваемости.
Глянцевый потолок в интерьере
Визуально расширить жилое пространство и повысить комфортность поможет дизайн-проект 1 комнатной хрущевки, в котором учтены такие нюансы, как светлые оттенки на стенных и потолочных поверхностях, а также использование зеркальных, стеклянных и глянцевых плоскостей.
Варианты по созданию комфортного жилья
Нельзя забывать о стиле, в данном случае самым подходящим является минимализм.
Простой лаконичный стиль
Элегантно будет выглядеть дизайн хрущевки однокомнатной квартиры при:
- минимальном наборе мебели и всевозможных аксессуаров;
- использовании простого отделочного материала и светлой цветовой палитре.
Когда планировка закончена, пора приступать к созданию функционального пространства:
- Приличный шкаф-купе получится из хрущевской кладовки, а замена ванной небольшой душевой кабиной немного расширит санитарную комнату.
Шкаф-купе из обычной кладовки
- Объединив зал и кухню посредством сноса внутренней стенки, можно выиграть в пользу кухни, где с удовольствием занимается любимым делом хозяйка.
Таким образом, дизайн для однокомнатной хрущевки становится удобным для всей семьи.
- Телевизор, с помощью которого разделили спальню и гостиную, теперь можно поворачивать в любую сторону, раздвижной обеденный стол небольших размеров – в случае необходимости легко разложить.
- В санузле вполне вмещается душевая, унитаз, стиральная машина и умывальник.
Для разделения на функциональные зоны нет необходимости возводить стены. Достаточно предметы мебели поставить в соответствии с задуманным планом.
Варианты оформления дизайна и интерьера в однокомнатной хрущевке
При грамотном подходе дизайн в однокомнатной хрущевке, где минимум пространства, может представлять максимум удобства жильцам этой малометражки.
Все под рукой и лаконично
Чтобы этого эффекта добиться, нужно знать некоторые общие правила:
- Визуально увеличить пространство.
- Правильно оформить потолок.
- Выбрать оптимальную цветовую палитру стен.
- Мебель и аксессуары.
- Каждой вещи – свое место.
Дизайн-проект 1 комнатной хрущевки наилучшим образом привлекает предметы средних пропорций, потому что предметы дизайна крупных размеров визуально создают атмосферу нагромождения.
Проект: спальня-гостиная-рабочий кабинет


































