Расстановка мебели
Важным моментом в процессе планировки является расположение мебели в однокомнатной квартире с ребенком.
Стоит оснастить свою квартиру только самым необходимым:
диван, который может разместить большое количество гостей днем, а также отлично заменить кровать для взрослых ночью;
телевизор на небольшой специальной тумбе или настенной полке;
ковер отлично завершит общую картину интерьера, поможет при зонировании (можно использовать различные ковры в каждой из зон), позволит маленьким детям играть прямо на полу;
детские кровати (обратите внимание на двухъярусные, чердаки, подиумы, трансформеры, прячущиеся в дневное время в стене);
стол и ноутбук;
пространство для хранения вещей обязательно должно быть оборудовано так, чтоб оно позволяло вместить в себя как можно больше вещей.
Существует масса вариантов меблировки помещения с использованием минимального количества предметов.
Если ваш выбор пал все-таки на раздельные кровати или маленькие диванчики для каждого ребенка, то никогда не ставьте их вплотную. Согласно даосской практике фэн-шуй, самым удачным вариантом расположения двух раздельных кроватей является параллельная расстановка у противоположных стен, также можно разместить их перпендикулярно в углу комнаты.
В виде рабочего места может быть использована одна сплошная столешница, за которой смогут поместиться дети
Уделите внимание освещению
Не стоит отделять детскую зону от гостиной с помощью громоздких шкафов. Их лучше расставить по периметру комнаты. Для функционального зонирования следует использовать более легкие конструкции.
Отведите детской зоне место ближе к окну и дальше от проходов и коридора. Так дети смогут спокойно ложиться спать и встать по своему режиму, а взрослые лишний раз не будут тревожить их сон и отвлекать от интересных занятий.
Дизайн однушки с 2 детьми предполагает компактное размещение всевозможных объектов мебели в доме. Наиболее просто воплотить это в детской. Для нее существуют целые мебельные комплексы, что упростит задачу планировки зоны для ребят. Одним из вариантов может быть выбор цельной конструкции, где внизу будет размещаться рабочее место или небольшая гардеробная, а над ним – кровать. Также существуют рабочие уголки со встроенными шкафчиками и полками.
Наличие ограничений: почему важно получить разрешение на перепланировку
Преимущество предварительного получения разрешения на перепланировку заключается том, что собственник уже на этапе подготовке получает информацию о том, что преобразования можно будет зарегистрировать. Дело в том, что существуют некоторые преобразования которые узаконить невозможно в принципе, и если это выяснится уже после проведения работ, нужно будет привести все к исходному виду, что связано с определенными расходами.
Собственно, в такой ситуации оказываются владельцы жилья, которые приняли решение объединить с комнатой балкон, сделать из однокомнатной квартиры «двушку» путем возведения капитальной глухой перегородки или совместить с жилым пространством кухню, где установлена газовая плита. Нельзя также перенести санузел или расширить его за счет жилой зоны. Даже незначительные изменения в систему подачи газа запрещены категорически. Кроме того, для каждого типа жилья в разных регионах могут быть дополнительные ограничения.
О запретах и возможностях лучше узнать заранее, проще всего это сделать путем заказа проекта перепланировки в лицензированной проектной компании. Инженеры проведут оценку и проконсультируют относительно возможности реализовать задуманное с технической точки зрения и с точки зрения законодательных норм и правил.
Процесс согласования затратный и довольно-таки утомительный, но успешное прохождение этой процедуры станет дополнительной гарантией властей. Если в доме что-нибудь произойдет, например, с коммуникациями, никто не обвинит вас в том, что причиной аварии стала ваша перепланировка. Выдавая разрешение, принимая работу и фиксируя информацию в Росреестре, власти одновременно берут на себя ответственность за последствия вашей перепланировки.
Примеры освещения в разделенных комнатах
Подсветка является отличным вариантом зонирования комнаты. Для обеденного сегмента подойдут подвесные светильники. Для спального места подойдут бра, создающие спокойную атмосферу и приглушенный свет. Для зоны релакса подойдет светодиодная лента
Для усиления эффекта важно не только грамотно подобрать подходящий осветительный прибор, но и правильно настроить интенсивность света

Кровать желательно расположить поближе к окну.
Можно установить осветительные приборы, яркость которых можно регулировать. Это удобно и можно менять их интенсивность в течение дня. Для разграничения рабочих зон подойдут также специальные подвесы.

Уникальный дизайн помещения действительно будет радовать глаз.
Своими силами или с помощью профессионалов?
Если при ограниченном временном ресурсе имеется достаточно денег, которые можно направить на достижение идеального результата, нет смысла тратить энергию на самодеятельность. Лучше сразу обратиться в одну из компаний «полного цикла», которая возьмет на себя ответственность за все и сразу: разработку дизайнерского плана, составление сметы, согласование, выполнение всех работ и даже за доставку и установку мебели.
Поскольку перепланирование однокомнатной квартиры является трудоемким процессом, требующим технических и правовых знаний, хорошего вкуса, а также безупречного пространственного мышления, для многих семей оказывается более правильным решением немного отложить работы и даже при скромном бюджете привлечь квалифицированных специалистов. Тем более что путешествия по инстанциям и исправление допущенных ошибок может обойтись намного дороже.
Перепланировка однушки в двушку без перепланировки
Стеклянные перегородки имеют много достоинств
Превратить квартиру из однушки в двушку без перепланировки – это самый простой вариант, не требующий существенных материальных и физических затрат.
Если комната небольшая и в ней только одно окно, есть только один способ – разделить зоны при помощи раздвижных систем, которые будут закрываться только при необходимости. Все остальное время перегородки должны быть открытыми, дабы во второе помещение тоже проникал дневной свет.
Раздвижные системы для разделения зон в однокомнатной квартире
Разноуровневые полы для отделения спальной зоны от гостиной
Чтобы придать комнатам большую видимость разделения, можно сделать разноуровневые полы. При такой перепланировке придется отказаться от всех излишеств обстановки и некоторых декораций, не несущих функциональности. Но такие жертвы ничто по сравнению с тем, что жильцы в распоряжение получат еще одну комнату.
Даже то, что одна комната окажется проходной, не должно вызывать негативное настроение. Некоторые двушки и трешки изначально имеют совмещенные помещения. Зато такая перепланировка не требует разрешения у муниципальных властей.
Поскольку интерьер любой квартиры предполагает наличие шкафов, их можно установить так, что они будут выполнять функцию ширмы. При выборе мебели следует отдавать предпочтение конструкциям высотой до самого потолка. Для обеспечения звукоизоляции заднюю стенку шкафа придется обшить шумопоглощающим материалом. Отличным вариантом для этой цели являются пробковые плиты – легкий и экологически безопасный материал.
Шкаф до потолка может стать отличной ширмой для разделения комнаты
Перепланировка однокомнатной квартиры — правила и советы
Никаких работ по перепланировке осуществляться не должно без разрешения соответствующих организаций. Следует сказать, что придется посетить несколько организаций и собрать некоторое количество разрешающей документации. Процесс трудоемкий, но при получении разрешения все труды окупятся после завершения всех работ, более удобной планировкой.
Но не всегда возможно осуществить перепланировку, поскольку каждая квартира — это ячейка, часть конструкции целого многоэтажного дома, необходимо убедиться в том, что стена которую вы собираетесь демонтировать, не имеет отношения к цельности дома — проще говоря она не должна быть опорой для верхних этажей или крыши.
Перепланировка однокомнатной квартиры фото
Затевая такие грандиозные работы, помните о том, что они потребуют значительного вашего времени, а так же денег. Одним отпуском скорее не обойтись, поэтому лучше для таких работ найти опытную бригаду, а можно обратиться в специализированную фирму, которая займется и получением разрешения и всеми ремонтными работами. Правда за все услуги придется выложить дополнительные денежные знаки, зато вы сами будете свободны.
Перед обращением в инстанции за получением разрешения, конечно же вам необходимо понимать, что вы собираетесь демонтировать и какую планировку вы собираетесь получить в результате проведенных работ. Для этого учитывайте собственные потребности и потребности семьи и конечно же количество членов семьи, их возраст, пол и др. Стоит отметить, что если семья из 3-х человек в однокомнатной квартире еще может как то ужиться, но если человек больше лучше все же направить все усилия не на перепланировку, а на увеличению квадратных метров!
Дизайн проект перепланировки однокомнатной квартиры фото
Объединение помещений
Вариантов слияния отдельных помещений в однокомнатной квартире немного: это может быть объединение с кухней, лоджией, и, возможно, частью коридора. Снос перегородок легко превратит наскучившую однушку в модную студию, добавив, кроме нескольких метров свободной площади, еще больше естественного света и воздуха.
Совмещение с кухней
Достаточно удобное решение, позволяющее во время готовки общаться с гостями, смотреть телевизор или наблюдать за детьми, играющими в комнате. Визуально разграничить зоны можно с помощью отделки, мебели, разноуровневого пола, фигурных потолков. Очень часто между кухонной и гостевой частью устанавливается барная стойка островного типа, высокий обеденный стол или диван.


Объединение комнаты с лоджией
Этот способ дает возможность увеличить полезный метраж и открыть доступ солнечному освещению. На получившемся участке можно обустроить рабочее место, сделать мини-столовую или мягкий уголок для отдыха. Единственная проблема, с которой придется столкнуться – вопрос утепления, ведь сама по себе лоджия относится к холодным помещениям.



Рабочее место в интерьере однушки с ребёнком
Сегодня можно выбрать из множества вариантов оформления рабочего места наиболее удобный под конкретные параметры
Для школьника особенно важно выделить рабочую зону для занятий за компьютером и выполнения домашних заданий. Не стоит забывать о необходимости отвести пространство для второго младшего ребенка, который с удовольствием займется за столом другими видами деятельности: рисованием, настольными играми, собиранием пазлов и т
д.
Если взрослым тоже требуется рабочая зона, то располагать ее на детской территории крайне не рекомендуется. Дети ложатся спать раньше и позже просыпаются, в то время как у родителей могут возникнуть обстоятельства, требующие, например, засидеться за компьютером дольше обычного.




Разделение на две комнаты
Превратить однокомнатную квартиру в полноценную двухкомнатную получится разве что при наличии большой площади и, желательно, нескольких окон. Оставлять часть жилья без естественного освещения и вентиляции не рекомендуется – это ухудшает микроклимат, поэтому находиться в таком помещении будет некомфортно.
Постройка внутренних стен возможна и в том случае, когда есть желание разделить на более закрытые зоны просторную студию. При этом лучше использовать тонкие материалы, например, гипсокартон, древесностружечные плиты, фанеру, пластик, стекло. Двери к подобным вариантам подойдут облегченные, сдвигающиеся в сторону по принципу купе.



Зонирование пространства
Компромиссным решением между трудоемкой перепланировкой однокомнатной квартиры и старым неудобным интерьером является зонирование. При этом не придется разрушать стены, менять коммуникации или начинать новое строительство. Проявив креативный подход, дизайн можно преобразить с минимальными затратами финансов, времени и усилий.
Перегородки
Самый быстрый и удобный способ разделения пространства на функциональные участки. Они обладают маленьким весом, легко монтируются и снимаются, достаточно свободно пропускают воздух и свет. Многообразие фактур, расцветок, материалов и стилей внутренних перегородок действительно впечатляет. Одни только типы конструкций включают частичные и полные (на всю стену от пола до потолка), стационарные и мобильные, раздвижные, распашные, слайдеры, конструкции-жалюзи и другие необычные варианты.
Для зонирования однокомнатных квартир чаще используются самые легкие решения: полупрозрачные или ажурные ширмы из стекла, акрила, ткани, дерева; стильные японские шторы; компактные гипсокартонные проемы. Последние нередко оформляются в виде стеллажей или стенок с окошками, в которых монтируется дополнительная подсветка и расставляется декор.



Обустройство подиума
Один из лучших дизайнерских приемов для эффективного заполнения места в компактной однушке. Второй уровень пола идеально подходит для расположения спальной зоны, небольшого детского уголка, установки шкафа-купе. Внутри конструкции вполне можно спрятать выдвижную кровать или оборудовать несколько ящиков для хранения вещей (обуви, зимней одежды, игрушек, постельных принадлежностей и т. д.). Подиум легко комбинируется с любыми перегородками, хотя и без них он будет смотреться достаточно стильно.



Как разработать и узаконить проект
Если вы решили модернизировать свое жилье, не стоит экономить время, бюджет на согласовании данных работ. Обычно это «выходит боком». Во-первых возникнут проблемы при продаже. Во-вторых, по незнанию, вы случайно можете убрать несущую конструкцию или ослабить ее, что приведет к трещинам в здании или разрушениям.

Для разработки проекта перепланировки однокомнатного жилья, согласования, проверки вашего варианта, обратитесь в департамент архитектуры или другим специалистам, которые имеют соответствующее право.
Более подробную информацию по узакониванию перепланировки можете изучить в данной статье.
Нужно ли согласование
Переоформление квартиры в студию выполняется лишь по проекту. В старом доме понадобится технологическое заключение о возможности перепланировки. При переносе сантехнических помещений и кухни нужны акты на проведение скрытых работ и сопровождение авторского надзора.
Если требуется, наоборот, превратить студию в уютную «однушку» либо «двушку», также создают и согласовывают проект, поскольку предполагается изменение конфигурации помещения, его разделение на стационарные зоны.
После создания проекта нужно обратиться в Жилищную инспекцию либо МФЦ для получения согласования. В течение 45 дней уполномоченные органы рассматривают заявление и выносят решение. Если не возникнет повода для отказа, выдается разрешение.
По завершению ремонтных работ комиссия составляет акт, позволяющий внести изменения в технический паспорт жилья. Затем требуется зарегистрировать право собственности на обновленную недвижимость.
При перепланировке категорически запрещено:
- обустройство дверей в туалет и ванну из комнаты либо кухни;
- снос стен между газифицированной кухней и комнатой без установки раздвижных перегородочных элементов либо проемов с плотно закрывающимися дверьми;
- разрушение несущих стенок;
- перенос вентканалов;
- демонтаж подоконника без установки на его место стеклянных раздвижных фальш-стенок или однодверного стеклопакета в пол.
Нельзя переносить кухонную и санитарную зону без учета требований законодательства РФ и Правительства Москвы (либо региональных органов власти).
Популярные варианты перепланировки однушек
Идея 1. Кухня вместе с гостиной
Перепланировка квартиры в этом случае предполагает соединение гостиной с кухней, таким образом можно получить дополнительное свободное пространство. Для зонирование пространства можно установить стеклянную перегородку.

Идея 2. И диван и… кровать
При желании иметь одновременно кровать и диван в однокомнатной квартире-студии следует расположить их друг напротив друга. Сегодня существуют современные кровати, монтирующиеся в стену.

Идея 3. Проходная кухня или кухня-ниша
В квартире-студии либо однокомнатной квартире можно обустроить проходной вариант кухни в коридоре, либо на ее месте, но сместив немного в сторону от входа. Таким образом, больше места освободится для мебели. Обычно такое дизайнерское решение подразумевает мини-кухню с гарнитуром не больше 1,8 м.

Идея 4. Перегородки из стекла
Чтобы зонировать «однушку», стоит использовать стеклянные перегородки, которые пропускают световой поток и смотрятся практически незаметно. Они не утяжеляют и не загромождают пространство
Это очень важно. Такая ошибка в маленькой квартире недопустима





Встроенные системы для хранения вещей решают вопрос размещения вещей и при этом не загромождают пространство.



Идея 10. Сделать двушку из однокомнатной квартиры
Чтобы результат превзошел ожидания, следует придерживаться некоторых приемов:
- пространство разделите стеклянными блоками – так получите две функциональные и естественно освещенные зоны. Прочный материал идеален для установки перегородок в квартире;
- перегородка из гипсокартона сделает одну зону глухой, комната лишится естественного освещения. Такая перегородка сгодится для спальни, где искусственный свет будет смотреться даже лучше. Для этого стоит использовать бра, светильники и торшеры;
- зонирование мебелью – это декоративный вариант перепланировки с отсутствием тепло- и звукоизоляции.
Если высота потолков в квартире больше 2,5 метров, можно соорудить «второй этаж», например, для детской. Оптимальным вариантом для лестницы будут ступени из тумбочек, где можно разместить игрушки, книги, детские вещи.
В однокомнатной квартире хорошо выглядит зонирование разноцветными обоями и текстилем.

Идея 11. Сделать из однушки трешку
При наличии фантазии однокомнатную квартиру реально переоборудовать в трехкомнатное пространство. Однако такой ход выполним для помещений, площадью от 40 кв.м. Для функциональности перепланировки обычно необходимо сносить стену кухни. Так помещение будет квадратным, что расширит возможности для работы дизайнера. Идеальным будет решение об угловом расположении комнат.
В однокомнатной «трешке» будут спальня, детская и гостиная. В центральной зоне разместится гостиная, соединяющая все комнаты в единое пространство. Чтобы оно получилось воздушным и легким, двери из проекта стоит исключить. Стеновые перегородки поднимать рекомендуется не выше, чем на 1,4 метра. На кухне – можно использовать стол-трансформер, а в ванной – компактную душевую кабинку.

Идея 12. Делаем студию
Квартиры-студии сегодня становятся весьма актуальными. Это современный вид жилья, где перегородками выступают ширмы, полочки и стойки. Если придумать невысокую гипсокартонную стену, она сделает помещение уютнее.
Зону для приготовления пищи и гостиную можно разделить аркой. В такой перепланировке обязательно используют разное напольное покрытие: в гостиной – ламинат, в кухне – плитку. Гостевую зону лучше расположить около окна. Сюда стоит разместить диван, шкаф, кресла, столик и телевизор. На кухне следует установить барную стойку.




Что можно и чего нельзя делать при перепланировке 1 комнатной квартиры

Начать разработку вашего проекта перепланировки нужно с планировки квартиры из технического паспорта (техпаспорта квартиры), который нужно взять в БТИ. Здесь вы увидите все зоны и стены и сможете трезво оценить свои возможности.
- Мокрая зона (ванная, туалет) не может выходить в жилую зону. Здесь речь идет о том, что ваша ванная и туалет не могут быть над чьей-то спальней, жилой комнатой или кухней! Тем не менее если ваша квартира находится на первом этаже или под вами нет жилых помещений, вы можете это сделать.
- Расположение кухни над жилым пространством запрещено! Если же ваша квартира находится на первом этаже или над офисом, то такой план все-таки может быть согласован. Правда, можно расширить кухню за счет лоджии или балкона.
- Размещать водные радиаторы отопления на балконах и лоджиях нельзя.
- Конечно же, нельзя сносить несущие стены и колонны, а также добавлять розетки, ниши и проемы в них. Пробивка даже самых маленьких проемов возможна лишь после согласования проекта перепланировки. Особенно строго это запрещается в панельных домах. Здесь даже малейший урон несущей стене может повлечь за собой полный или частичный обвал здания.
- Нельзя совмещать кухню с любым другим помещением (кроме лоджии), если сюда проведен газ. Нужны перегородки с определенной огнестойкостью, например, стеклянные.
- При этом можно расширять мокрую зону (ванную и туалет) за счет коридоров и кладовых. Объединять две мокрые зоны в одну тоже можно.
- Еще можно устраивать на лоджии и по всему дому теплый электрический пол.
- Вы также можете совместить кухню с любой другой смежной жилой комнатой.
- Можно утеплять лоджию (после согласования!) и присоединять ее к кухне, жилой комнате или спальне.
- Можно объединять свою прихожую с частью общего коридора (после согласования!).

Теперь вы знаете, что такое перепланировка однокомнатной квартиры и какими способами её легче всего переделать для достижения максимального уровня комфорта.
Подготовка и планирование: все самое необходимое
С изменением помещений, потребуется согласование и регистрация изменений, создание нового техпаспорта и внесение обновлений в реестр. Если вы проигнорируете эту процедуру, то столкнетесь с огромными проблемами.

Стены
Итак, что нужно делать?
- Узнайте, какие стены в доме несущие.
- Сделайте профессиональный проект.
- Утвердите в соответствующих инстанциях этот проект.
Окна
В соответствии с установленными положениями все жилые помещения должны иметь естественный солнечный свет, если вы будете делать перегородку, то не забывайте об этом.
Итак, весь процесс пошагово:
- составьте проект;
- внесите все уточнения;
- выберите материал для перегородки (зачастую используют гипсокартон – самый быстрый способ сделать перегородку).

Действия, предпринимаемые для узаконивания перепланировки
Для того чтобы сделать кардинальную перепланировку на законных основаниях, необходимо произвести следующие действия:
- Составить черновой проект, обозначив на нём удаляемые или переносимые перегородки, расположение новых стен, дверных проёмов.
- Обратиться в архитектурный отдел местной администрации для согласования. Здесь специалисты определят возможность выполнения того или иного действия, посоветуют, как лучше сделать перепланировку квартиры, произведут необходимые расчёты. В итоге домовладелец получит согласованный проект.
- Собрать пакет документов, в который входят свидетельство на право собственности, технический и кадастровый паспорта на квартиру, заявление на перепланировку и согласованный проект, который подаётся в надзорные органы.
- После этого, в установленный законом срок владелец получает разрешение и производит перепланировку в точном соответствии с проектом. Отступать от него нельзя.
- По окончании ремонта документы подаются в бюро технической инвентаризации (БТИ), специалист приходит в квартиру и проверяет соблюдение проекта.
Результатом всех этих действий становится получение нового технического паспорта от БТИ с внесёнными изменениями в планировку. Предлагаем ознакомиться с некоторыми проектами подобной перепланировки.
1 из 6
ФОТО: anapa.media
ФОТО: sakhexpo.ru
ФОТО: pinterest.co.kr
ФОТО: lesh-84.ru
ФОТО: vip-1gl.ru
ФОТО: remont.spb.ru
Различные способы
Перепланировка 2-х комнатной квартиры может стать длительным и проблемным процессом, если выбрать неправильный подход и сэкономить на материалах
Важно продумать этапы ремонта и соотнести задуманный проект с возможностями для двухкомнатной квартиры по габаритам и финансовым затратам
Вариации по перепланировке:
- увеличение числа комнат;
- объединение близлежащих зон.
Проекты двухкомнатной квартиры зачастую предполагают небольшую спальню, зал, коридор и кухню. За счет зала можно увеличить кухню (студия), выделить вторую спальную зону и гардеробную, либо еще одну комнату при площади двухкомнатной квартиры 65-70 кв.м. Коридор можно объединить со второй спальней, расширив ее.
Из двушки в трешку
Исходя из площади помещений и расположения несущих стен возможна перепланировка двухкомнатной квартиры в трехкомнатную. Наиболее простой вариант – это в большой комнате установить матовое стекло, за которым будет находиться дополнительная спальня, а оставшуюся территорию семья может использовать как гостиную – общую зону отдыха. Происходит зонирование с помощью этого вида стекла, которое пропускает свет и в тоже время создает обособленное пространство.
Перепланировка двушки в 3-х комнатную, при наличии детей, предполагает появление одинаковых по размерам спален и переносе зоны отдыха. При этом используется пространство между кухней и гостиной зоной (коридор). Второй вариант будет смотреться более выгодно, но также придется выбирать – или пользоваться в одной из спален лишь искусственным освещением, или поставить перегородку. Для двух детских своеобразным барьером могут послужить книжные полки во всю высоту потолка со стеклянной перегородкой посередине. Такая конструкция нуждается в надежном креплении к полу и потолку одновременно.
Перепланировка из двушки в трешку позволяет обустроить рабочий кабинет или цветник. Неплохим вариантом будет утепленный балкон или лоджия. Предварительно продумайте тип отопления в зимний период (возможен электрообогрев) и проведение розеток, освещения. Это отличный пример перепланировки двухкомнатной квартиры.
Объединение комнат
Малогабаритная двухкомнатная квартира для одного-двух жильцов может побудить к созданию одной, но большой комнаты или расширению гостиной за счет спальни. В таком случае перепланировка двухкомнатной квартиры предполагает перенос смежной стены на расстояние, которое позволяют окна.
Вам будет интересно: Лучшие способы перепланировки кухни: увеличение и функциональное использования пространства
Проемы в стенах
В панельных домах, кроме хрущевок, к сожалению, чаще всего почти все стены являются несущими, что затрудняет процесс перепланировки. Чтобы вырезать или расширить имеющиеся проемы в несущих конструкциях и не создать угрозы жизни другим жильцам, следует согласовать проект с жилищно-коммунальными инстанциями, а также доверить выполнение работ профессиональным строителям. Они усилят проем в несущей стене металлоконструкциями.
Кирпичные дома, в которых работы по сносу или перепланировке внутренних стен более простые, также должны иметь соответствующее заключение проектировщиков дома. Но получить его гораздо проще ввиду равномерного перераспределения общей нагрузки ригелем перекрытия на стены, что практически нивелирует возможность аварийных ситуаций. А использование металлоконструкций при работе в данном помещении не позволит трещинам распространиться на стенах дома.
Перепланировка однокомнатной квартиры в двухкомнатную

Если вам хочется переделать вашу однокомнатную квартиру в двухкомнатную, то у нас есть для вас несколько очень удобных и практичных вариантов. Правда, помните, что перепланировка однокомнатной квартиры как таковая стоит от 600 тысяч рублей (проект, согласование, работы по монтажу и демонтажу, утеплению лоджии) плюс сам ремонт без мебели (500-1000 тысяч рублей).

Но ведь вы можете взять эти 1-1,5 млн рублей и добавить к стоимости квартиры, чтобы просто совершить сделку обмена или купли-продажи.
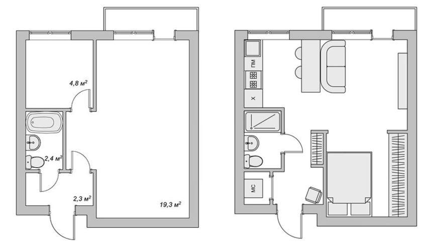
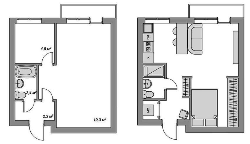
Перепланировка однушки в двушку с отдельной кухней

Самый популярный вариант перепланировки однушки в двушку подразумевает расположение спальни у окна в жилой комнате и гостиной – в той же комнате, только в зоне без окна. Между ними ставится стеллаж, стеклянная или гипсокартонная перегородка. Таким образом вы получаете гостиную без окна, но отдельную спальню. При этом в кухне может быть оставлен диванчик.

То же самое можно сделать с квартирой с нишей, если оставить диван у окна, а спальное место – в нише. Эту планировку нельзя назвать двухкомнатной, но все-таки она более удобна, чем традиционные варианты.

Также вы можете поставить зону с диваном у окна, а спальню оставить без окна, но поставить витражную или гипсокартонную перегородку между этими пространствами. Во всех этих вариантах кухня остается «целой и невредимой», с той же самой планировкой. Правда, лучше присоединить лоджию к комнате или кухне.
Перепланировка из однокомнатной в двухкомнатную с отдельной спальней без окна

Если вам точно нужна самая настоящая отдельная спальня, то есть еще один вариант перепланировки однушки в двушку. Так как кухню нельзя располагать в гостиной, а спальню нельзя располагать в кухне, вариантов остается не так уж много.
Здесь вы разделяете жилую комнату на гостиную (у окна) и спальню (в нише), но объединяете коридор, кухню и ту зону гостиной у окна, чтобы сделать из 42-метровой квартиры двухкомнатную. Перегородка между спальней и гостиной может быть стеклянной, деревянной, гипсокартонной, тканевой.

Посмотрите, как выглядит такая перепланировка с тканевой перегородкой на фотографии выше. Вы получаете отдельную спальню, стильную и красивую, которая при этом может быть легко спрятана от посторонних глаз.
Перепланировка из однушки в двушку с кухней без окна

Данная перепланировка однушки в двушку подходит лишь для гостиной, в которой было два окна. Одно окно отдается спальне, другой – непосредственно гостиной, а кухня остается на своем прежнем месте, но присоединяется к гостиной. Она может быть как с окном, так и без, как было в вашей изначальной планировке. При этом помните, что можно установить кухню в коридоре или прихожей. Если вы живете на последнем этаже, то спальню можно разместить в кухне.
Вот так может выглядеть ваша квартира, если в коридоре вы поставите кухню, присоедините к ней гостиную, при этом в кухне сделаете спальню (напоминаем еще раз – только на верхнем этаже дома).
Если же при вашей гостиной был длинный коридор, то кухня в нем может разместиться вот так:

На планировке ниже перепланировка произведена интересным образом. Кухня разделена на кухню и спальню (последний этаж дома!), спальня получила присоединенную лоджию, кухня – выход и присоединение к коридору. Гостиная (жилая комната) осталась на прежнем месте, так же, как и ванная.
Еще один вариант кухни-гостиной, который выглядит очень современно и стильно. Такую перепланировку можно сделать на первом этаже дома, если под вашей жилой комнатой не находится жилое помещение.
Перепланировка однушки с нишей

Данная перепланировка законодательно возможна, только если вы живете на первом этаже, и под вашей жилой комнатой нет жилых помещений. Тогда в своей нише вы можете расположить кухню, а спальню перенести в вашу кухню. Правда, определить его придется как «кабинет», а не «жилую комнату» (что отразится на жилой площади квартиры в техпаспорте), так как спальню под чьей-то кухней официально сделать нельзя.

Отличный вариант перепланировки однушки с нишей можно увидеть ниже. Ниша делится на гардеробную и спальню. Гардероб примыкает к коридору, а спальня – к гостиной. Кухня объединяется с гостиной, при этом кладовая остается на месте.

Если вы объединяете кухню, комнату с нишей и коридор, то вы можете продублировать объемы ниши с помощью декоративных перегородок. Все это будет смотреться очень стильно и современно.
Заключение
Нужно понимать, что перепланировка однокомнатной квартиры (причем — независимо от размера) в двухкомнатную, или другие изменения — это обыденное явление, соответственно непреодолимых трудностей с этим обычно не возникает. Для того, чтобы сделать перепланировку квартиры, нужно составить проработанный план с описанием изменений (комментарии) и чертежами. Его надо узаконить у государственных инспекторов из разных инстанций (пожарная служба, архитекторы, газовая служба и т.д). После этого можно заниматься строительно-монтажными работами. Чтобы план прошел проверки, он должен соответствовать всем требованиям закона и мельчайшим нюансами. Легче всего достигнуть этого, обратившись к услугам профессионалов, которые составят план, помогут его узаконить и осуществят авторский надзор.
Любые вопросы по проектированию, можете задать нашему эксперту: Володин Александр
+7 (906) 225-54-00
Spb-plan@mail.ru
https://vk.com
































