На какие виды работ требуется разрешение?
Коротко о важном
В данном пункте мы дадим краткие ответы на самые распространенные вопросы, возникающие у граждан нашей страны, имеющих приватизированное жилье, в рамках темы «Перепланировка помещений».
Вопрос 1: Можно ли сделать перепланировку в не приватизированной квартире?
Ответ: Внесение изменений в конструкцию возможно при наличии разрешительных документов. Более подробно о процессе перепланировки в не приватизированном жилье мы расскажем во второй половине статьи.
Вопрос 2: В каком порядке нужно оформлять перепланировку — до ее совершения или после?
Ответ: Если вносимые изменения относятся к простым (о них мы рассказывали в предыдущем пункте), то можно оформить процедуру по окончанию работ. Если же планируется перепланировка с изменениями в несущих конструкциях и прочими сложными вмешательствами, то необходимо предварительное согласование.
Вопрос 3: У квартиры несколько собственников и один из них противится внесению каких-либо изменений в конструкцию жилого помещения. Можно ли произвести перепланировку без его участия?
Ответ: Не стоит начинать ремонт, пока не все собственники с ним согласны. В противном случае, ждите судебных разбирательств.
Вопрос 4: Какие виды перепланировки в хрущевках наиболее популярны?
Ответ: Довольно часто россияне осуществляют именно перепланировку хрущевок. Фото таких проектов можно найти в интернете. Как правило, изменения касаются объединения туалета и ванной, присоединения лоджии к комнате, переноса кухни.
Вопрос 5: Если квартира расположена на верхнем этаже, можно ли присоединить чердак?
Ответ: Если жители дома подпишут согласие на проведение подобных работ, то можно. Само собой, данную процедуру нужно проводить в законном порядке.
Вопрос 6: Возведение тамбурной двери в подъезде может быть отнесено к планировке?
Ответ: Так как указанные действия будут производиться вне жилого помещения, то узаконить их нельзя. Соответственно и перепланировкой это не назовешь. Кстати, установить тамбурные двери можно только заручившись согласием общего собрания жильцов.
Мебель
Вид и расстановка мебели зависит от стиля помещения. Но перед тем как выбрать стиль интерьера необходимо запомнить несколько правил использования мебели:
- предпочтение стоит отдать многофункциональным элементам, но не слишком большого размера;
- если используется шкаф в спальне для вещей, то в нем должны присутствовать выдвижные шкафчики, полки с большой вместимостью;
- кровать для спальни лучше применять с внутренним пространством, чтобы туда также можно было убрать белье и вещи;
- в зале можно установить средний диван светлого цвета, который будет служить разделением помещения на зоны;
- если в комнатах устанавливаются пуфики, то стоит приобретать изделия с наличием внутреннего места для складывания вещей;
- в кухне можно установить небольшие шкафчики с дверцами наверху, а снизу лучше отдать предпочтение шкафам с полками, в которых можно будет хранить тяжелую посуду;
- не забывайте, что применение модульных разборных конструкций поможет намного сэкономить место комнат.
Как перестроить «однушку» в хрущевке?
При всей ограниченности пространства «однушки» есть множество достаточно удачных вариантов перепланировки, вот некоторые из них:
Можно немного расширить площадь санитарного узла за счет перемещения стенки в сторону жилого помещения и в зону прихожей, которая при этом, конечно, уменьшается. Таким образом, гардеробную из прихожей придется переместить в зону помещения спальни. Зато в этом случае стиральная машина легко располагается там, где ей положено быть, и ее работа не причиняет дискомфорт жильцам.
Неплохая идея для перепланирования однокомнатной квартиры в «хрущевке» – это объединение кухни с коридором. Двери в жилое помещение передвигаются подальше от входа, что позволяет максимально задействовать полезную площадь и расширить пространство коридора так, что при желании там можно установить даже встроенный шкаф.
Превращение малогабаритного жилища в достаточно комфортную квартиру-студию – также очень распространенный вариант, который, впрочем, подходит не всем. В объединенном помещении существенно повышаются возможности зонирования пространства, и можно отдельно выделить спальное место, чтобы оно было изолированным. Квартиры-студии имеют множество достоинств и недостатков.
Многие владельцы небольших квартир в домах хрущевской постройки в борьбе за дополнительное пространство отказываются от ванной, заменив ее небольшой душевой кабиной. Это дает новые возможности для оптимизации полезного пространства. Еще одно оптимальное решение – замена традиционных распашных дверей современными раздвижными моделями или даже функциональной «гармошкой».
Особенности хрущевок
Главной отличительной чертой хрущевки является то, что почти в 100 процентах случаев внутри квартиры не имеется несущих конструкций. В процессе перепланировки тем не менее требуется соблюдать нормы законодательства, а также санитарно-гигиенических положений.
Даже в том случае, когда осуществляется вмешательство в не несущие конструкции, имеется вероятность нарушить нормы права. Многие собственники убеждены в том, что если ремонт не касается несущих конструкций – согласовывать его не требуется, однако это заблуждение.
Все коррективы должны быть отражены в соответствующей документации, согласованы с Жилищной инспекцией. Говоря относительно перепланировки санузлов, требуется учесть, что это не должно затронуть жилые помещения, то есть туалет нельзя соединять с ними.
Однокомнатная квартира
В связи с тем, что однокомнатные квартиры чаще всего приобретаются молодыми людьми – проводят перепланировку в виде объединения помещения кухни с комнатой, в результате получается квартира – студия. Могут снести перегородку, которая отделяет прихожую.
Неизменным должно оставаться то, что санузел находится в одном и том же месте. Перенос таких помещений в многоквартирных домах запрещен.
Также изменить конфигурацию можно за счет того, что объединяется кухня и коридор, дверной проем в комнату переносится дальше от входа, за счет этого функционал помещения повышается.

Как узаконить перепланировку? Фото:yakapitalist.ru
В последнее время распространенным способом увеличения жилого пространства стало – утепление лоджии или балкона. Убирают в этой ситуации часть стены, которая расположена под окном, остальное – трогать нельзя.
Переделка в двухкомнатной
Двухкомнатные квартиры, построенные во времена Хрущева также не редкость. Перепланировка в таком случае может быть в виде разделения смежных комнат и обустройства третий комнаты. Собственники зачастую устанавливают дополнительную перегородку, которая отделяет комнату от коридора.
В итоге получается помещение, обладающее обширными размерами, его можно использовать в кладовую либо сделать гардероб. Затем переходят ко второму помещению, оно узкое и длинное. Разбить его можно с помощью гипсокартона и устроить гостиную и спальню.
Есть возможность переделать двушку в современную квартиру-студию. Хозяину придется постараться добиться разрешения на перенос входной двери. Санузел объединяют, частично сносят перегородку, за счет чего объединяются кухня и гостиная.
Как изменить расположение комнат в трехкомнатной
Основным минусом таких квартир является то, что размер ванной и туалета небольшой. Ремонт делается для того, чтобы объединить два этих помещения, увеличив площадь за счет снесенной перегородки. Часть примыкающего коридора отгораживают стеной, где возводят дверной проем.
Также проблемным моментам является то, что некуда поставить шкаф, поэтому в одной комнате переносится стена и делается гардероб. Для объединения гостиной и кухни разрушают часть стены. Кроме того усиливаются прилегающие несущие конструкции.
Еще один вариант – убрать простенки, выровнять стену и объединить столовую и кухню.
Четырехкомнатной
С увеличением количества комнат в такой квартире плюсов больше не становится, так как санузел остается небольшим, зачастую комнаты имеют проходное значение. Когда комнаты имеют форму, напоминающую квадрат – переустроить их намного проще.
Особенности перепланировки хрущевки, представлены в этом видео:
Как правило, оставляют две отдельные комнаты обособленными, а остальные две объединяют и делают из них единую гостиную и столовую.
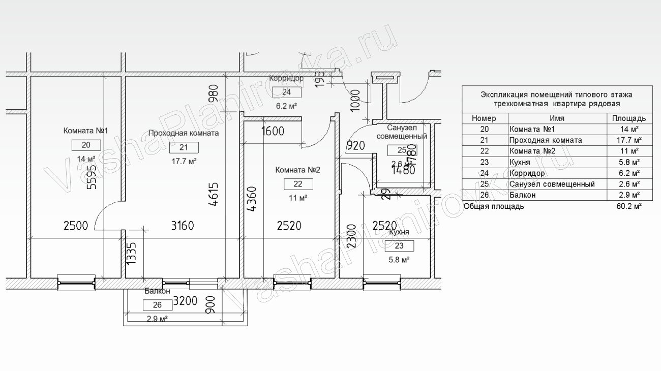
Перепланировка 3-комнатной квартиры с длинным коридором. Способы изменения пространства
Изменить пространство трёхкомнатной (56 или 58 кв. м.) квартиры можно, воспользовавшись интересными решениями.
Уменьшение прихожей. Если в прихожей есть небольшой шкаф для верхней одежды, нижняя открытая полка для обуви и зеркало, то достаточно лишь 2–3 квадратных метров пространства. Большая прихожая требует перемещения стены кухни или прилегающей к ней комнаты в сторону входа в квартиру.
Повторное разграничение двух спален . Три комнаты – это гостиная и две спальни. Вы можете сделать перегородку между спальнями не прямой, а в виде линии, отдалённо напоминающей «кусок зигзага». Обе спальни, расположенные торцами друг к другу, как бы «вклиниваются» одна в другую. Длина перегородки удлиняется на метр и более. Это позволяет разместить два одинаковых небольших шкафа-купе или шифоньера.
Соединение кухни с гостиной (залом). Кухню с гостиной можно соединить лишь в квартирах, где не менее двух жилых комнат. Одна из них – как минимум одна спальня – должна остаться изолированной. Это не только защитит вас от кухонных запахов, возникающих при приготовлении еды, но и частично обезопасит жильцов при утечке газа. Впрочем, утечки газа и так быть не должно.
Соединение ванной с туалетом . Как правило, ванная и туалет не располагаются врозь – они соседствуют друг с другом, иначе водопровод и канализация были бы значительно усложнены, что потребовало бы больших затрат на строительство дома. Снести между ними перегородку можно – гидроизоляция пола и стен, отделяющих туалет и ванную от кухни, прихожей, жилых комнат и кладовки, вряд ли нарушится.
Снос перегородки между ванной и туалетом позволит заменить ванну на душевую (или меньшую ванну на большую). А также расположить в совмещённом санузле стиральную машину, которая прежде работала на кухне.
Соединение гостиной с одной из спален . Вторая спальня при этом останется нетронутой.
Соединение двух спален в одну большую – вариант для немногодетных семей, которым достались трёхкомнатные квартиры (например, по наследству).
Перенос перегородки между спальнями в сторону одной из них. Меньшая спальня превратится в детскую, большая – во взрослую. Актуально, когда в семье один ребёнок.
Разделение гостиной на «взрослую» и «детскую» зоны. Часто используется раздвижная перегородка или даже штора, стенка из небьющегося стекла.
Достоинство такого решения – тонкая перегородка не затрагивает ни один из имеющихся квадратных метров.
Соединение кухни с одной из двух спален. Данная спальня в этом случае ликвидируется, а кухня превращается в намного более просторный блок, в котором приятно и свободно работать. Стеснённость в действиях пропадает.
Ликвидация прихожей . Вариант, приближающий трёхкомнатную квартиру к домашней студии. Применяется крайне редко.
Несущие стены в 3 комнатной хрущевке. Серия К-7 (1950-е)
Серия К-7 (К – каркасный) — одна из первых серий индустриального домостроения. Спроектирована В.П. Лагутенко на базе французской панельной 5-тиэтажки по каркасно-панельной схеме (части каркаса — колонны и ригели — являются неотъемлемой частью панели). Квартиры имеют достаточно крупные для “хрущёвок” кухни, раздельные санузлы и комнаты.
А. 1-й, 2-й и 3-й стереотипы разрушены – что все “хрущёвки” имеют совмещённый санузел и очень маленькую кухню, а все комнаты в многокомнатных квартирах – смежные, т.е., “трамвайчиком”.
Отличались отсутствием балконов (предусмотренных проектом, например, на 4-этажных домах модификации К-7-3-3 в 1-м и 2-м микрорайонах Зеленограда, но в подавляющем большинстве от них отказались для удешевления конструкции) и глухими торцами домов. Дом представлял собой прямоугольный параллелепипед без выступающих деталей. Панели этих домов в большинстве случаев облицованы белым или красным квадратным неглазурованым кафелем со стороной около 5 см . Дома подобного и похожих типов получили в народе название «хрущобы». Выступающие элементы панелей (колонны и ригели) по углам комнат , низкие шумо- и теплоизоляция . В домах отсутствуют лифты , мусоропровод есть в 3-й (не всегда) и в 5-й модификациях серии. Отопление, холодное и горячее водоснабжение — централизованные . В основном, дома этой серии строили с 1-, 2- и 3-комнатными квартирами (небольшая часть – с 4-хкомнатными), по 3 квартиры на этаже. Высота потолка — 2,48 м (по другим сведениям 2,59 м). Вертикальный шаг — приблизительно 2,85 м.
Сейчас подлежат сносу. В Москве в Северо-Западном административном округе последний дом серии К-7 снесли 22 июня 2017 г., остались 3 дома в Новой Москве, в посёлке Знамя Октября (поселение Рязановское).
В Ленинграде дома этой серии строили под псевдонимом «ОД», 2 из них высотой 9 этажей.
Б. Вот и 4-му стереотипу конец – что все “хрущёвки” 5-этажные. На самом деле, были (хотя их было мало) и 9-тиэтажные.
Перепланировка 2-х комнатной хрущевки вагончик. Дизайн 2х комнатной хрущевки: проекты, перепланировка, лучшие фото идеи дизайна
Миллионы людей живут в малогабаритных квартирах с типовой планировкой. Мечтая о современном и удобном жилье, одни владельцы задумываются о переезде. Другие же устраивают ремонт в хрущевке 2-х комнатной, фото которой после проведенных работ едва ли выдает время постройки дома. Благодаря огромному ассортименту строительных материалов и безграничным вариациям готовых дизайнерских решений, сегодня можно реализовать любые желания. Главное не пренебрегать советами специалистов.
Отличия хрущевской двушки от других квартир
Хрущевки — первые многоэтажные дома массовой застройки. Во времена СССР квартиры в них раздавали практически бесплатно, что решило вопрос острой нехватки жилья. Небольшая площадь, проходные комнаты, неудобное расположение дверей отличает их от “сталинок” и других домов. Есть и другие, не менее значимые недостатки: низкая шумоизоляция, невысокие потолки, маленькие прихожая и кухня, отсутствие балкона на первом этаже. На нынешнем рынке такая недвижимость мало ценится.
Несмотря на очевидные минусы, плюсы здесь тоже есть. В каждом жилище времен Хрущева Н. С. предусмотрены кладовки. Санузел обычно совмещен, что экономит место. А варианты дизайна таких помещений безграничны. Зачем покупать типовую мебель и жертвовать большой ванной, если даже в советской двушке реально осуществить любые идеи?
Преимущества перепланировки
Снести межкомнатные перегородки — самое простое решение. В зависимости от того, каким планируется дизайн двухкомнатной хрущевки, объединяются комната и кухня, прихожая и зал, кладовка и спальня. Если ванная и туалет разделены, стену между ними стоит убрать. В результате увеличится полезное пространство, жилище визуально станет больше.
Перед сносом стен необходимо проконсультироваться со специалистом и обратиться в соответствующие службы для получения разрешения.
Убирать допускается только ненесущные опоры или необдуманные действия приведут к трагедии. Ломать всю стену не обязательно, иногда достаточно сделать широкую арку. Такой способ уместен для организации обеденной зоны в комнате, ведь маленькая кухня не позволит установить большой стол и стулья. Варианты ремонта 2-х комнатной квартиры зависят только от количества доступных финансов и фантазии.
3 комнатная хрущевка
Такие дома строились с конца 1950-х по 1980-е гг. За это время они были доработаны, видоизменены. Планировка прежних трехкомнатных домов была не очень удобной. Потолки низкие, комнаты очень маленькие, стены пятиэтажных панельных домов плохо утеплены, комнаты небоскребов смежные и с небольшой площадью.
В конце 1970-х началось активное строительство 9-ти этажных хрущевок в рамках специальной программы площадью 53 кв. Начали улучшать кирпично-панельные дома, потолки достигли 2,64 мА за счет снятия нагрузки с внутренних перегородок, появилась возможность перепланировать помещения прямоугольной формы.

Дом, построенный в 60-х годах прошлого века, изначально задумывался как временное жилище. Из-за невысокого уровня комфорта их часто перестраивают.
Хрущевка 3х комнатная имеет свои особенности:
- В трехкомнатной квартире хрущевки низкие потолки — от 240 до 265 см.
- Небольшие размеры и малая площадь жилого помещения. Средняя площадь трехкомнатной квартиры составляет около 57 квадратных метров.
- Одна из комнат — открытая гостиная в хрущевке.
- Узкие коридоры.
- Санузлы часто совмещают. Если ванная и туалет раздельные, то у них крайне маленькая площадь.
- Кухня занимает не более 6 кв.
- В коридорах и кухнях есть встроенные антресоли для хранения вещей. Иногда бывает небольшой шкаф.
- Небольшой открытый балкон с видом на гостиную. Реже встречаются варианты с большими балконами.
- Во многих квартирах есть временные тонкие перегородки. Их часто сносят для улучшения планировки.
Большинство хрущевок плохо звукоизолированы. В этих домах нет лифтов, а лестничные пролеты узкие и тесные.
Схемы типичных планировок
В рамках программы маломощного жилищного строительства спроектировано и построено 10 различных серий.
Наиболее популярны следующие:
- К-7 — жилье с раздельным санузлом, изолированными комнатами и относительно большой кухней.
- 1-335 — недорогие каркасные панельные дома. Практически все дома этой серии уже снесены.
- АМ-5 — корпус большей площади.
- 1-464 — с проходными комнатами.
- 1-477 — одна из самых популярных разновидностей хрущевок. Отличается хорошей тепло- и звукоизоляцией.
Дома строились из обычного кирпича, но чаще всего из белого песчаника, внутренние перегородки — гипсобетон толщиной 80 мм. Несущие стены в таких домах бывают внешними и внутренними продольными. Эта серия не подлежит утилизации.

Существует 3 варианта типовой трехкомнатной хрущевки:
- Хрущевка 3-х комнатная «распашонка» — это жилище, в котором большая жилая площадь и 2 поменьше. Кажется, что 1 большая гостиная разделена на 2 отдельные комнаты. Окна таких квартир выходят на разные стороны дома.
- Хрущева, 3 комн., Сделана по «Книге». Он состоит из 2 больших смежных квартир и третьей, отдельной, меньшей по размеру.
- Планировка Трешки хрущевки «Трамвай» или «Прицеп»: все помещения выстроены в одну линию, 2 из них проходные.
- Хрущевка 3 х комнаты площадью 60 кв.м с тремя изолированными жилыми зонами.
В спальне может быть небольшой шкаф. Его легко трансформировать в небольшую гардеробную.
Перепланировка в хрущевке: основные особенности
Чтобы хоть немного расширить пространство и иметь возможность как-то интересно оформить жилье, часто несколько зон объединяют, устраивая перепланировку. Главное препятствие на пути к благоустройству интерьера — необходимость согласования проекта в БТИ, сбор пакета документов и согласование изменений — дело хлопотное.
Опять же, БТИ вправе вам отказать. Вот почему многие владельцы небольших квартир сносят стены, не рекламируя их.








Самый популярный вариант реконструкции — это перепланировка кухни и прихожей. Как правило, коридор сокращают, создав там кладовую. Комнату и кухню объединяют в одну зону, убрав кирпичную стену. Иногда хозяева останавливаются на масштабной переделке и объединяют все комнаты в квартире с кухней, разделяя пространство лишь визуально.
Вход в санузел осуществляется из коридора. Такой вариант возможен только в том случае, если в доме нет газа. При наличии между кухней и комнатой должна быть хотя бы одна раздвижная перегородка.

В чем преимущество такой реконструкции? В первую очередь появляется возможность рационально распределить квадратные метры между кухней и гостиной. При необходимости кухня может занимать до половины соседнего помещения, что делает эту зону более комфортной без особого ущерба для других помещений.
Совмещение туалета и ванной комнаты также расширяет творческое пространство: ванну можно переместить под стеной, оставив унитаз на месте, тем самым создав более логичный вид помещения.
Перепланировка хрущевки в 2023 году. Нюансы перепланировки хрущёвки из двух комнат
Прежде всего следует выяснить, какие действия можно выполнять, а какие нет. В некоторых случаях потребуется разрешение соответствующих органов для согласования и утверждения нового плана квартиры.
Законная перепланировка допускает следующее:
- объединение туалета и ванной, присоединение к ним части коридора;
- увеличение площади комнаты за счёт прихожей;
- совмещение жилого помещения и кухни с электрической плитой в одно пространство;
- перенос дверных проёмов в стенах, которые не являются несущими;
- демонтаж антресолей, встроенных стенных шкафов;
- удаление части стены, выходящей на балкон или лоджию после остекления и утепления.





ПЕРЕПЛАНИРОВКА ХРУЩЁВКИ 45 кв. м. Сделал большую гардеробную и удобную кухню!
Существует также список действий, которые запрещены в процессе переоборудования.
- В домах, оборудованных газопроводом, объединять кухню с жилыми комнатами.
- Увеличивать площадь кухни за счёт соседних помещений (спальни, зала, прихожей и санузла).
- Проводить полный демонтаж стены дома, выходящей на балкон.
- Разрушать вентиляционные короба.
- Вести работы, блокирующие доступ к инженерным коммуникациям.
- Объединять квартиры, расположенные на соседних этажах, путем нарушения целостности перекрытий.
- Возводить дополнительные пристройки, которые планируется сделать частью квартиры на первом этаже.
Кроме того, не следует использовать для постройки межкомнатных перегородок слишком тяжёлые материалы.
В домах, которые входят в реестр аварийных зданий, запрещены любые виды перепланировки.
Делаем проект перепланировки хрущевки 2 комнаты
Сделать дизайн-проект квартиры самостоятельно довольно просто, если у вас есть все необходимые замеры и хорошая программа для дизайна. Для примера мы выбрали простую русскую программу Дизайн Интерьера 3D, поскольку ее легко освоить даже человеку, не имеющему опыта в проектировании. С ее помощью вы сможете воссоздать точный план своей квартиры или дома, рассчитать затраты на ремонт и посмотреть, как будет выглядеть готовый результат в 3D. Визуализация в трехмерной реальности позволит учесть все недостатки плана еще на стадии проектирования.
Выберите для себя наиболее удобный планировщик из рейтинга лучших программ для дизайна интерьера.
Итак, давайте начнем.
Скачайте программу бесплатно и установите на свой ПК. Далее нужно выбрать опцию «Создать новый проект», начать с нуля. Здесь все просто. Помещаем курсор мыши на сцену и начинаем чертить. Размеры комнат будут отражаться автоматически. Их можно скрыть, нажав на иконку внизу экрана. Также можно загрузить в конструктор готовый план и по нему отрисовать чертеж.

После того, как будет готов шаблон, поочередно открываем разделы «Добавить дверь», «Добавить окно». Понравившийся вариант помещаем на сцену и выбираем нужное местоположение. Объекты можно переносить и вращать при помощи желтой кнопки.

Допустим, вы воссоздали реальный план своего жилища. Теперь переходим к основному – модификации. У нас получилась классическая «книжка» с проходной комнатой. А мы хотим снести часть стены, продлить прихожую и изолировать одну из комнат.
Для этого нажмите на нужную стену, чтобы она подсветилась зеленым цветом. Затем правой кнопкой мыши вызовите контекстное меню и примените команду «Удалить»
Важно: функция демонтажа одной стены работает, только если стена не является частью комнаты. Иными словами, все стены нужно чертить через опцию «Добавить перегородку»

Теперь активируйте эту опцию и начертите новые границы комнаты.

Переместите дверь большей комнаты на новое место, перетянув ее мышкой. Для уменьшения размера дверного блока перейдите во вкладку «Свойства» и задайте новые параметры высоты и ширины. Добавить дверь в меньшую комнату можно при помощи одноименной опции.

Обратите внимание, что можно изменить не только размеры объекта, но и его цвет, материал и даже модель

По этому же принципу выполняется аналогичная работа согласно вашей идее: объединение кухни с жилой комнатой, слияние санузлов, присоединение балкона к спальне и т.п. Все зависит от изначального типа планировки вашей квартиры.
Что еще можно сделать в программе Дизайн Интерьера 3D? Выполнить отделку пола и потолка, установить напольное покрытие и расставить мебель. Для трансформации любого помещения нужно сначала выделить его щелчком мыши. Затем перейти в знакомую нам вкладку «Свойства» и выбрать часть квартиры, с которой будем работать.
Например, мы хотим покрыть полы паркетом. Открываем раздел «Пол», щелкаем по параметру «Материалы» и из открывшегося каталога выбираем понравившийся вариант. Точно так же прорабатываем стены и потолок. Для каждого помещения можно выбрать разные отделочные материалы и их масштаб.

Теперь пора заняться расстановкой мебели. В программной базе вы найдете мебель для гостиной, детской, спальни, ванной комнаты, кухни, тренажерного зала и т.п. Есть даже человеческий манекен и растения в кадках.

Вся мебель является трансформируемой. Вы можете менять ее размеры, чтобы органичнее вписать в помещение, экспериментировать с материалом обивки, цветом, а также поворачивать под разными углами. Напоследок добавьте освещение и элементы декора.

Переключитесь в режим 3D, чтобы оценить плоды своих усилий. Вы можете вращать модель под разными углами, делать некоторые стены невидимыми и совершить виртуальный тур внутри дома, активировав режим «Вид изнутри».

Перепланировка трехкомнатной хрущевки
Главный недостаток трехкомнатной хрущевки — мизерная площадь ванной и туалета. Квартиры переделывают в основном ради увеличения метража санузла. Ванную и туалет объединяют, добавляя площадь бывшего коридора, который ранее был частью прихожей и вел к кухне. Придется заново отделывать уже совмещенный санузел, так как дополнительная зона не имеет нужной гидроизоляции. Дверной проем, ведущий на кухню, делают в соседней с ней комнате, которая раньше была изолирована. Теперь это помещение станет проходным. Однако, допускается вариант объединения двух пространств, так как это не нанесет серьезного ущерба трешке. В совмещенном помещении обустраивают кухню и гостиную, разделенные барной стойкой.
Анализ, планирование и расчеты: с чего начинается перепланировка
Во время планирования переделок стоит всегда учитывать состав семьи и потребности каждого из домочадцев. Стоит многократно все продумать, выверить нюансы и лишь после этого приниматься за дело. Нередко оказывается так, что фото перепланировки, найденное в свободном доступе, кажется исключительно привлекательным, но вариант не подходит для конкретной семьи. Поэтому любое готовое решение можно рассматривать только как возможный вариант, но не как руководство к действию. В любом случае, стоит опираться на идеи успешно согласованных перепланировок, очень здравым решением будет привлечение профессиональных дизайнеров-проектировщиков.
При планировании изменений стоит учитывать дизайнерские моменты, элементы зонирования и освещения. Кроме того, стоит понять, придется ли принимать радикальные меры (и выделять значительные средства), например, менять газовую печку на электрическую плиту или официально переоформлять жилое пространство в техническое.




































