Бюджетный вариант: крыльцо из досок
Построить крыльцо из досок своими руками — прекрасный способ улучшить внешний вид вашего дома и придать ему индивидуальность. Более того, вы сможете сэкономить, не прибегая к услугам профессионалов. Даже если у вас нет большого опыта в строительстве, следуя этой инструкции, вы сможете построить качественное деревянное крыльцо.
Список инструментов и материалов:
- Доски (для ступеней и боковых панелей).
- Брус (для рамы и поддержки).
- Гвозди или винты.
- Дрель или отвертка.
- Пила (лучше выбрать циркулярную, но в принципе подойдет любая).
- Уровень.
- Рулетка и карандаш.
- Лак или антисептик для обработки дерева.
- Песок и гравий (для подготовки основания).

Выберите место для крыльца. Убедитесь, что оно ровное и достаточно прочное для поддержки конструкции и людей, которые будут по ней ходить. Если земля мягкая, придется сделать основание из песка и гравия. С помощью рулетки измерьте и отметьте размеры вашего крыльца. Обычно ширина ступени составляет от 90 до 120 см, высота — около 15 см, глубина — от 30 до 40 см. Определите, сколько вам понадобится досок и бруса. Сначала вы пилите бруса для создания рамы крыльца и поддерживающих элементов, затем доски для ступеней и боковых панелей.

Соберите раму из бруса, соединяя их гвоздями или винтами. Убедитесь, что рама ровная с помощью уровня. В случае необходимости подкорректируйте. В зависимости от размера крыльца, вам может потребоваться несколько поддерживающих брусов, которые устанавливаются в раму перпендикулярно направлению ступеней. Прикрепите доски к раме, начиная с нижней ступени и поднимаясь вверх. Убедитесь, что каждая ступень крепко закреплена. Прикрепите доски сбоку крыльца для дополнительной поддержки и эстетики. Когда крыльцо полностью собрано, обработайте его лаком или антисептиком, чтобы защитить дерево от погодных условий и продлить его срок службы.





Как рассчитать габариты лестницы
Чтобы выполнить чертеж для сборки конструкции и оценить, сколько материалов потребуется, выполните следующие измерения и расчеты:
- Ширина определяется размерами террасы или крыльца и вашим удобством. Для семейной пары можно ориентироваться на расстояние около 70 см, для большой семьи его можно увеличить до 130 см и более. Для большей жесткости конструкции такой ширины стоит предусмотреть установку третьего косоура в центре.
- Чтобы замерить высоту будущей лестницы, приложите длинную доску к площадке крыльца или террасы, убедитесь в горизонтальности с помощью уровня и сделайте несколько измерений от доски до земли. Если обнаружится сильный уклон, его можно будет скомпенсировать своими руками позже при подготовке площадки.
- С учетом оптимальной высоты подступенка в 15-20 см и толщины выбранной доски определите число ступеней. Их ширина должна составлять 25-35 см. Зная, что комфортный угол наклона должен быть 45° и менее, можно вычислить длину марша и косоуров, освежив в памяти школьный курс геометрии.

Эксклюзивный дизайн лестницы на крыльцо
Закрытое крыльцо деревянного дома. Конструктивные особенности
Деревянное крыльцо для частного дома — небольшая пристройка к фасаду здания.
Варианты устройства:
открытая площадка со ступеньками — простая конструкция без перил (идеально подходит для маленького одноэтажного дачного домика);
частично закрытая площадка с невысокими перилами;
закрытое крылечко — конструкция, состоящая из лестницы, площадки, перил и навеса. Закрытое крылечко помогает сохранить тишину в доме и повысить уровень теплоизоляции.
Плюсы деревянного крыльца
Неоспоримым преимуществом деревянных конструкций является простота обработки пиломатериала. Также стоит отметить ряд положительных моментов:
- большой выбор моделей деревянных конструкций;
- низкий показатель теплопроводности (навесы из дерева помогают повысить показатель теплоизоляции здания);
- древесина не требует дополнительной декоративной отделки;
- простота и скорость строительства (отсутствует потребность в усиленном фундаменте);
- при необходимости ремонта не нужно демонтировать всю конструкцию, можно заменить лишь отдельную ее часть.
Минусы деревянного крыльца
Древесина как натуральный материал подвержен разрушению под воздействием влаги, грибка или плесени. Поверхность ступеней из дерева очень быстро истирается, рассыхается под воздействием прямых солнечных лучей. Особо стоит отметить высокую степень возгорания конструкций из бруса и досок.
Все вышеперечисленные недостатки легко исправляются. Для этого необходимо регулярно пропитывать деревянные поверхности специальными защитными и антипирентными составами.
Выбор древесины
В сравнении с известными строительными заготовками, традиционно применяемыми для обустройства лестниц, дерево относится к экологически чистым природным материалам, не теряющим своих качеств и после обработки. По традиции все конструктивные элементы строений, эксплуатируемые снаружи зданий (на улице), изготавливаются либо из ели и сосны, либо из лиственницы.
Каждый из этих древесных материалов имеет свои особенности, а именно:
- ель и сосна, например, отличаются низкой плотностью и нуждаются в обработке специальными составами, защищающими их структуру от разложения;
- с другой стороны, сосновый материал легче поддается обработке, а стоимость его несколько ниже;
- в отличие от ели и сосны лиственница имеет довольно высокий показатель плотности и более устойчива к гниению. К ее недостаткам следует отнести высокую стоимость и труднодоступность.
Какой выбрать материал для изготовления лестниц на крыльцо из дерева своими руками, каждый пользователь решает самостоятельно (в зависимости от своих предпочтений и финансовых возможностей).
Подготовительные работы
Расчет наклона марша.
При желании можно сделать уютную веранду или террасу вместо крыльца, где можно будет отдохнуть. Это станет неким переходным помещением между домом и улицей.
При составлении чертежей следует помнить, что размеры объекта определяются исходя из возможностей (как финансовых, так и физических), а не норм (которых нет). Форма и тип конструкции зависят от вкуса и ландшафтного дизайна, а не каких-либо других факторов.
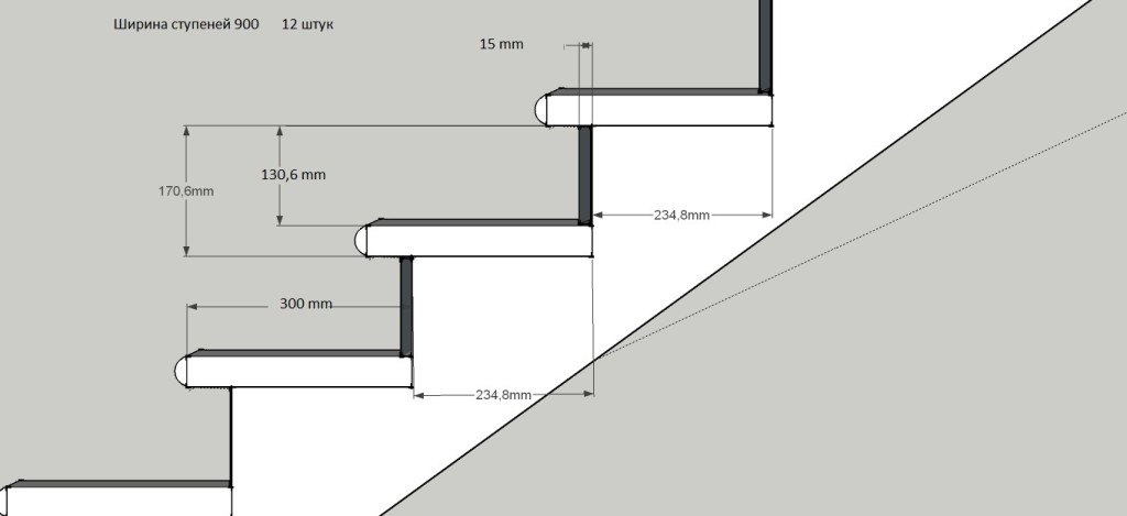
Стоит отметить, что некоторые размеры для конструкции все-таки следует выдержать. Например, многовековым опытом проверено, что высота ступеньки не должна превышать 18-20 см, а ширина ступени (поступь) должна быть в пределах 30 см. Если высота ступенек будет больше, чем приведенная, а ширина меньше, то могут возникнуть неудобства в ходе эксплуатации.
Установка стоек для площадки.
Далее, когда чертежи созданы, следует закупить материал. Доски, брус и другие деревянные материалы надо приобретать с минимальным 10% запасом, поскольку часть материала утратится при «разделке», размеры досок и бруса определяются чертежами. Когда все необходимые материалы куплены, производят их порезку на детали (опоры, тетиву/косоур, ступеньки и т.д.).
Детали следует обработать для защиты от негативных факторов. В первую очередь, дерево обрабатывают антигрибковой (анисептической) пропиткой, после чего дают возможность высохнуть. Когда дерево высохнет, его обрабатывают грунтовкой (аквастопом) и опять сушат. На завершающем этапе дерево покрывают лаком или специальной краской. Лак более красиво выглядит, однако краска требует меньше внимания и ухода при эксплуатации.
10 вариантов ступенек для винтовой лестницы: примеры изготовления
Как сделать лестницу в саду своими руками
Перед тем, как сделать лестницу в саду, нужно провести подготовительные работы, заложить фундамент. Обычно это хорошо утрамбованный и выровненный песок — песчаная подушка. Для ступеней из крупных плит, а также для вымощенных ступеней песчаная подушка подходит идеально. При использовании более мелких деталей, например клинкера для мощения, необходим бетонный фундамент. Он придаст камням необходимую устойчивость и одновременно предотвратит проседание ступеней. Бетонный фундамент потребуется также в случае рыхлого грунта.
Для строительства лестницы в саду своими руками подойдут только материалы с нескользкой, устойчивой, текстурированной поверхностью. Это могут быть древесина, гравий, бетонные плиты, кирпичи, тротуарная плитка. Практично сочетание различных материалов, например подступенки из кирпича или бетонных блоков, а сами ступени — из каменных плит.
Кирпичная кладка.
Лестницы на участке своими руками могут быть сделаны из старых кирпичей или кирпичей с грубым покрытием.
Они чрезвычайно прочны и долговечны, когда уложены на цементной основе. При устройстве такой лестницы на основание укладывают щебень слоем 10-15 см и трамбуют. Затем наносят раствор толщиной 2 см и на него укладывают кирпичи плашмя или на ребро. Кирпичи скрепляют раствором, а швы затирают сухим цементом. Через неделю лесенкой можно пользоваться.
Из бетонных плит.
Бетонные плиты идеальны для сооружения ступеней. Их укладывают на утрамбованную песчано-гравийную подушку или — для надежности — на цементно-песчаный раствор (пропорция 1:4) толщиной 25-30 мм.
В качестве под ступеней можно использовать кирпич или клинья из тонких фрагментов плит. Между плитками можно оставить промежутки и высадить в них почвопокровные растения.
Каменная лестница.
Если вы не боитесь трудностей и готовы расстаться с кругленькой суммой ради красивой лесенки, вымостите ступени плитами натурального камня.
Обычно используют твердый камень, который обкалывают с помощью молотка и зубила, добиваясь приблизительно одинаковой толщины. Пока бетон еще сырой, из сланца, разделенного на тонкие плитки, выкладывают подступенки.
Из брусчатки.
Брусчатку укладывают на слой подсыпки толщиной 1 5-20 см, который состоит из смеси цемента и песка (1:10).
Перед тем, как сделать лестницу на участке из брусчатки, подсыпку следует утрамбовать, а верхний слой (3-5 см) — только выровнять. В качестве бордюра можно выложить 2-3 ряда камней контрастного оттенка, уложенных на бетон.
Из бревен и гравия.
При изготовлении лесенки вовсе не обязательно проявлять чудеса инженерной мысли и выкладывать замысловатые мощеные ступени или отливать их из бетона.
Простую и удобную лестницу можно быстро соорудить из деревянных бревен и гравия. Для каждой ступени положите бревно, выровняйте его положение и зафиксируйте крепкими колышками, вбив их в землю с двух сторон. Разместите бревно на колышках так, чтобы они поддерживали его, затем заполните ступень грунтом. Тщательно утрамбуйте грунтовый слой и сверху покройте его мелким гравием или щебенкой. Гравий можно положить не на уплотненный грунт, а укрепить на бетонном основании. В этом случае бетонная стяжка крепко-накрепко зафиксирует все элементы лестницы.
Вместо бревна можно использовать шпалы. Они не нуждаются в пропитке. А вот остальную древесину, используемую при строительстве лестницы, лучше пропитать.
Требования к маршу с поворотом
Принцип, которому должна отвечать любая строительная конструкция в доме – это, прежде всего, безопасность. Но также сооружение должно быть и комфортным в своём использовании. Забежные лестницы являются одной из сложных конструкций, которые полностью должны соответствовать этим двум принципам. Стоит выделить основные технические требования, которые свойственны именно этому типу конструкции.
Главное в монтаже забежных лестниц – это пропорции. Ступеньки лестницы должны располагаться на чётко одинаковом расстоянии друг от друга на всём лестничном пролёте. Обычно расстояние между ними начинается со 100 мм и не превышает 160 мм.


Большое внимание уделяется глубине забежной поступи. Специалисты рекомендуют примерное расстояние на узких участках 100 мм. В центральной части размеры глубины должны составлять примерно 200 мм, а на широких участках параметры глубины ступеньки не должны превышать 400 мм.
Для любой лестницы необходимо обязательно предусмотреть качественные ограждения
Забежная конструкция не является исключением из правил. Обычно высота лестничных ограждений колеблется в диапазоне от 900 мм до 1200 мм.
В центральной части размеры глубины должны составлять примерно 200 мм, а на широких участках параметры глубины ступеньки не должны превышать 400 мм.
Для любой лестницы необходимо обязательно предусмотреть качественные ограждения. Забежная конструкция не является исключением из правил. Обычно высота лестничных ограждений колеблется в диапазоне от 900 мм до 1200 мм.


- В забежных конструкциях параметры ширины лестничного марша должны начинаться от 900 мм. В принципе, данный параметр будет зависеть от конструктивных и индивидуальных особенностей отдельной модели лестницы. При необходимости такой показатель можно и увеличить.
- Для высоты свободного прохода для человека устанавливается диапазон 1900–2000 мм. Это тоже индивидуальный показатель, который задаётся в зависимости от роста человека. Взяв показатель роста к нему необходимо добавить 100 мм. Это и будет оптимальным параметром для высоты прохода.


- Угол наклона забежной лестницы не должен превышать 45 градусов. Этот показатель является максимальным углом наклона. Самый удобный и оптимальный угол составляет примерно 30 градусов.
- В среднем количество ступенек на забежных лестницах колеблется от 15 до 18 штук.
- Забежная лестница должна выдерживать большой вес, быть устойчивой и выполненной из износостойких и прочных материалов.
- Примерное нависание поступи на таких лестницах не должно превышать 5 мм.


При учёте всех вышеперечисленных технических требований к забежной лестнице конструкция будет безопасной и комфортной для своего назначения. А также стоит отметить основные требования ГОСТа, предъявляемые к данному виду лестниц, а именно:
- глубина забежной ступени не должна превышать 40 см;
- минимальная глубина забежной ступени должна составлять 10 см;
- глубина центра забежной ступени должна составлять около 20 см;
- высота перекрытия над лестницей не должно быть менее двух метров.



Какую отделку использовать?
Стены и потолок есть далеко не у всех конструкций, зато пол — обязательно присутствует в каждой. О нем и поговорим. Отделка пола крыльца должна обладать следующими качествами:
- Долговечность. Обеспечивается за счет устойчивости к грязи, пыли, механическим воздействиями, кислотам, жирам и т.д. Например, необработанное дерево быстро «вышаркивается», ему требуется дополнительная защита.
- Безопасность. При выпадении осадков или после мытья, крыльцо не должно быть скользким — этим грешат некоторые лакокрасочные материалы, а также глянцевая плитка и керамогранит.
- Практичность. Будьте уверены: на горизонтальной поверхности у двери будет много пыли, грязи, песка. Не надейтесь на чудо, учтите этот момент заранее и сделайте так, чтобы загрязнения было легко удалять. Например, залить водой из шланга и просто смыть.
Для отделки крыльца со ступенями подойдет:
- дерево (требует регулярной обработки после укладки);
- террасная доска из древесно-полимерного композита (декинг отлично моется, долго служит, не скользит);
- плитка (существует специальная для ступеней, из обычных выбирайте нескользящую, желательно уличную);
- камень (дорого, но эстетическое удовольствие обеспечено);
- керамогранит (дешевле камня, надежнее плитки).
На фото крыльцо с деревянном полом
Требования к фундаменту
Крыльцо из дерева ставится на отдельный фундамент, привязывать его к существующему ленточному под дом нет надобности. Под конструкцию можно использовать два типа фундаментов: столбчатый или заливной армированный плиточный. Оба по несущим характеристикам и эксплуатационным показателям равнозначны.

Крыльцо установлено на столбчатый фундамент
Главная задача фундаментов под крыльцо – держать небольшой вес. Что касается вспучивания, то бороться с этим явлением экономически нецелесообразно. Выше мы уже говорили, что для ликвидации негативных последствий площадка крыльца располагается ниже плоскости открывания дверей. Столбчатый фундамент обойдется немного дешевле, но с ним больше проблем во время устройства. Нужно выдерживать плоскость всех столбиков по горизонтали, после застывания бетона поправлять несущую поверхность по водяному уровню, делать опалубку и т. д.

Классический бетонный фундамент
Если есть возможность, то лучше залить армированную бетонную плиту толщиной примерно 5–10 см. Плита, кроме всего прочего, исключит прорастание под крыльцом растений. Бороться с ними придется постоянно, а добраться к ним сложно из-за небольшой высоты сооружения.

Крыльцо своими руками
Что нужно сделать для подготовки к монтажу
Несколько простых шагов позволят вам сделать деревянную лестницу гораздо надежнее.
Для установки лестницы на первый этаж вам понадобятся:
- доски и брусья – основной материал конструкции;
- пила для их обработки;
- шуруповерт с саморезами для установки,
- строительный уровень;
- компоненты для цементного раствора или крупные камни;
- материалы для обработки древесины: наждачная бумага, антигрибковое средство, лак или краска.
Так как фундамент первого этажа обычно не заходит настолько далеко, чтобы его хватило на всю длину лестницы, необходимо своими руками заложить отдельное основание для нее. В местах, где дерево будет соприкасаться с почвой, сделайте трехслойную изоляцию: слой песка, затем щебень и цементный раствор. Под опорные балки для перил можно подложить камни. Это не только защитит древесину от гниения, но и позволит конструкции не просесть ниже уровня первого этажа под собственным весом.
Подготовьте детали: заготовки для ступеней и подступенков прямоугольной формы, при необходимости – отрезки бруса для балясин и поручней перил. Аккуратно выполнить косоуры можно, сделав разметку с помощью лекала из картона, фанеры или оргалита. Обработайте все деревянные заготовки и расположите необходимые инструменты и материалы в доступном месте.

Черновые ступени
Бетон
Этот материал отличается гораздо большей прочностью и долговечностью, не требует дополнительных вложений в течение долгого периода времени. Пластичный материал открывает большую свободу в выборе форм самого крыльца и его ступеней, позволяет сделать лестницу необычного вида.
Бетон хорошо поддается облицовке. При этом можно использовать плитку, керамику, мозаику или применить цветные пигменты.
Но для создания такого строительного шедевра потребуются специальные навыки и соблюдение технологии работ. Если доверить работу непрофессионалам, то велика вероятность быстрого разрушения крыльца из-за трещин или неравномерной усадки. Тот же результат можно получить при использовании некачественного материала.
Типы лестниц на косоурах
Изделия имеют несколько классификаций. Так по количеству косоуров, используемых при монтаже, лестницы бывают:
- Одинарные. Все ступени размещаются на одном косоуре, располагаемом посередине конструкции. Поскольку нагрузка на опорный элемент в таком случае высокая, косоур изготавливается из металла;
- Двойные. Этот типа лестниц встречается чаще всего. Опорные элементы располагаются по краям конструкции;
- Тройные. В изделии, помимо боковых косоуров устанавливается дополнительный опорный элемент посредине проступей. Такая конструкция позволяет предупредить чрезмерный прогиб ступеней и их повреждение при размещении на них большого веса.

Двойная деревянная лестница на косоурах Для лестниц с большой шириной ступеней, количество косоуров может быть больше трех.
По своей форме косоуры могут быть:
- Гребенчатыми или зигзагообразными. Косоур такого типа сбоку имеет вид ступеней. Обычно деталь изготавливается из цельного листа древесины;
- Кобылки. Чаще всего этот вид конструкции используется при сооружении одинарной косоурной лестницы. На каждый гребень косоура устанавливаются специальные широкие пластины или доски, именуемые кобылками. Они являются дополнительной опорой для проступи. Обычно кобылки изготавливаются для деревянных лестниц на металлических косоурах.
Деревянные конструкции со стандартной шириной ступеней чаще всего оснащаются двойными или тройными гребенчатыми косоурами. При этом сами лестницы, по своей форме могут быть маршевыми или винтовыми.
Что такое косоур?
Боковые наклонные доски, к которым крепятся ступени, называются тетивами. Ступеньки в них могут вставляться в специальные пазы, вырезанные в тетиве, крепиться на шурупах, шкантах, шпильках или специальных стальных крепежах.
Но чаще всего изготавливаются лестницы, тетивы которой имеют вырезы. на которые ложатся ступени. Такая разновидность тетивы называется косоуром.
Лестницы с одним косоуром встречаются редко. Чаще всего ступени крепятся на двух или (в случае, если ширина пролета достаточно велика и составляет от 1,2-1,5 м) на трех опорах.
Лестница на трех косоурах
Все косоуры подразделяются на два основных вида:
• обычные ступенчатые ; имеют вырезы треугольной формы, размещаемые на равном расстоянии друг от друга; существенным недостатком такого метода является истончение деревянной балки после ее разрезания;
• с «кобылками». небольшими брусками (шкантами) для поддержки ступеньки, которые вставляются в прорези косоуров; достаточно сложная, но более прочная конструкция.
Косоур с кобылками
Косоур – самый сложный элемент конструкции, поэтому его размеры и ширину вырезов следует вымерять с особой тщательностью. Для облегчения процесса можно воспользоваться трафаретом, изготовленным из куска фанеры или толстого ровного картона.
Горизонтальные вырезы для ступенек в косоуре должны быть равными проступи (ширине ступени). Размер вертикального разреза равен подступенку (высоте ступени).
Важно! При замере размеров косоура или тетевы следует учесть, что проступь первой ступеньки должна стать продолжением площадки. Чтобы опорные балки не прогибались под весом проходящих по лестнице людей, доски, из которых будут изготавливаться тетевы или косоуры, должны быть достаточно толстыми – от 60 мм при ширине от 30 см
Они выполняются из качественного дерева твердых пород (ели, сосны, клена, дуба или бука), не имеющего трещин и сучков
Чтобы опорные балки не прогибались под весом проходящих по лестнице людей, доски, из которых будут изготавливаться тетевы или косоуры, должны быть достаточно толстыми – от 60 мм при ширине от 30 см. Они выполняются из качественного дерева твердых пород (ели, сосны, клена, дуба или бука), не имеющего трещин и сучков.
Более прочными и надежными являются косоуры, изготовленные из металлического профиля. Для этого можно использовать стальные уголки .
Косоуры из швеллера
Материалы для крыльца
Вроде бы всё просто – крыльцо деревянного дома также должно быть из дерева и самая уместная – отделка крыльца доской. Однако не всё так однозначно, ведь оно расположено в одном уровне с цоколем. Тогда не лучше ли отделку крыльца выполнить «в тему» к нему. Далее уже внимательно – под разные отделочные материалы основание должно быть соответствующее.
Довольно часто цоколь облицован натуральным камнем – «дёшево и сердито». Неплохо будет дальше поддержать природный стиль, поэтому для боковых стенок будет вполне уместной отделка крыльца камнем. Ещё предпочтительней выложить эти стенки из камня – так будет даже надёжней, потребуется меньше бетонных работ.
Совсем другое дело если на ступени и площадку возле дома планируется укладка плитки. Скорей всего не многие сочтут уместным, возле деревянного дома создавать объёмную железобетонную конструкцию. Придётся на столбах сколотить палубу, огородить её, навязать арматуру и забетонить. Кроме этого потребуется сделать металлические ступени для крыльца и отлить в них стяжку. Получается, что отделка крыльца плиткой сравнительно дорогое удовольствие, но оно стоит того – плитка в разы прочнее деревянного настила.
Крыльцо из дерева своими руками
Новички в строительстве при постройке деревянного крыльца часто допускают ошибки, и они, как ни странно, у всех идентичные. Вот основные три из них:
Следует запомнить, что деревянное крыльцо состоит из нескольких элементов:
- фундамент;
- опоры;
- ступени;
- навес.
Важно: площадка крыльца должна располагаться на 5-10 см ниже входной двери. Это необходимо для того, чтобы дверь беспрепятственно открывалась/закрывалась даже после разбухания при дождливой погоде
Опоры для деревянного крыльца
Подготовленные деревянные «столбы» перед установкой в ямки необходимо обработать с одного края любым защитным средством – это предотвратит процессы гниения.
Обратите внимание: многие обрабатывают деревянные опоры битумной мастикой, но это не совсем правильно. Дело в том, что под таким защитным покрытием древесина «не дышит» и процесс гниения просто начинается изнутри изделия
Косоуры и тетива

Прежде всего, нужно запомнить рекомендуемые размеры ступеней:
- ширина каждой должна быть 25-30 см, но допускается вариативность размеров в пределах 2 см;
- высота каждой ступени – 15-18 см.
Раскроенные косоуры крепят одной стороной к опорным столбам с помощью саморезов, а другой конец просто устанавливают на заранее подготовленную бетонную площадку.

Конкретно для косоуров существуют следующие правила монтажа ступенек:

Обратите внимание: все фрагменты будущего деревянного крыльца нужно крепить на саморезы, но если желаете добиться большей надежности, устойчивости конструкции, то до момента «насадки» проступенек и ступенек обработайте их столярным клеем. На этом сборка крыльца заканчивается, но можно ведь установить и перила с балясинами – от этого конструкция только выиграет
На этом сборка крыльца заканчивается, но можно ведь установить и перила с балясинами – от этого конструкция только выиграет.
Балясины и перила
Не стоит проявлять чудеса столярного мастерства или идти специально обучаться на специальность столяр – балясины разных форм и размеров можно приобрести в торговых точках. Конечно, придется их подготовить перед тем, как устанавливать на крыльцо.
Во-первых, осмотрите каждую балясину и перила на предмет идеальной шлифовки – не забывайте, что вам нужно будет постоянно опираться на эти фрагменты деревянного крыльца, так что сделайте их абсолютно гладкими с помощью мелкой наждачной бумаги.
Во-вторых, старайтесь выбрать балясины и перила без трещин и сколов, но если они все-таки обнаружились при ближайшем рассмотрении, то обработайте их специальной шпатлевкой и после высыхание затрите наждачной бумагой.
В-третьих, в балясинах необходимо с двух торцов просверлить небольшие отверстия глубиной 5-10 мм под размер используемого шканта – именно таким образом и будут крепиться рассматриваемые элементы.

Дальше все просто:
Перила насаживаются на уже установленные балясины таким же образом – с помощью шкантов.
Проект деревянного крыльца
«Правильные» ступени
Чтобы разобраться, как правильно смонтировать ступеньки крыльца, особенно своими руками, вначале необходимо рассчитать лестничный марш по длине и по количеству ступеней. Главное помнить, что по СНиП количество ступенек крыльца не может превышать 18 штук
Чтобы вложиться в эти нормы, должна быть правильно рассчитана высота ступени
При расчетах так же важно не упустить расстояние до потолка над головой и ширину самого лестничного проема. Для удобства, ширина лестницы должна соответствовать 1 метру
Меньшие размеры могут препятствовать удобному передвижению или переноске мебели.
Чертежи, схемы, размеры ширина, фотографии, цена и расчет онлайн проема для ступеней на 2 этаж
Схемы и чертежи прямых, винтовых поворотных лестниц, размер ступеней и лестничных проемов, а также расход материала или предположительную стоимость, можно получить бесплатно благодаря онлайн-программам в интернете
Это важно, не только когда лестница конструируется собственноручно, но и при условии заказа всех работ. Прежде всего, по бесчисленным фотографиям в интернете следует определиться с конфигурацией и материалом будущей лестницы. До начала вычислений, нужно выяснить параметры конструкции, а для этого надо знать точные размеры, с которыми будет работать программа
До начала вычислений, нужно выяснить параметры конструкции, а для этого надо знать точные размеры, с которыми будет работать программа.
Ширина лестницы выбирается самостоятельно исходя из размеров помещения. Для прямых маршей наиболее приемлемой считается ширина 80–120 см. Диаметр винтовой лестницы зависит от проема второго этажа, но нежелателен менее двух метров.
- Высота от пола, с учетом его отделки, до потолка.
- Высота перекрытия второго этажа.
- Предположительная длина лестничного проема. Эта величина может быть неизменной, если она продиктована размерами помещения, или находящейся поблизости дверью. Но лучше, когда допустимо увеличение длины, если угол наклона конструкции будет уменьшен.
Будет ли лестница поворотной и насколько: 90 или 180°.
Предполагаются площадки или будут забежные ступени.
Будет лестница на тетивах или косоурах, деревянных либо металлических.
Количество и габариты ступеней, с указанием их высоты, глубины, высоты подступей, размером выступа и толщиной ступени, длину марша, величину площадок и забежных ступеней, угол наклона марша, параметры для тетив и косоуров с необходимыми чертежами предложит программа. Также будет указан процент отклонения от формулы удобства и рекомендации для изменений длины лестничного проема и размера ступеней.

Схема винтовой лестницы
Имея все данные, с помощью других сервисов, можно выяснить расход материалов для каждого косоура, тетивы, центральной опоры и общую площадь ступеней.

Расчет ступеней винтовой лестницы
После этого возможно рассчитать стоимость монтажных, отделочных работ и материалов, для чего следует указать породу древесины для всех деревянных частей. Доставка материалов не входит в калькуляцию. Необходимо учитывать, что стоимость будет весьма приблизительной, но и она поможет сориентироваться с материальными возможностями. Если сумма значительно выше намеченной, то стоит рассмотреть другие проекты.
Поскольку сервисы программ отличаются, не все из них выдают чертежи и схемы. Но совершенно несложно найти ту, которая предложит максимальную информацию. Полученные при вычислениях данные лучше сверить в нескольких сайтах.
Варианты лестницы на второй этаж в частном доме: как сделать полувинтовую, винтовую, круговую деревянную, металлическую лестницу эконом класса своими руками – видео, проем для ступенек на 2 этаж – чертежи, схема, размеры (ширина), фото, цена, расчет онлайн
Типовые ошибки при заказе лестниц
Типичная ошибка тех, кто приходит к нам заказывать лестницу в том, что приходят они заказывать уже в готовый дом, где для лестницы оставлено место, не привязанное к возможности подниматься по этой лестнице. Обычно оставляют проем 1,5х1,5 метра и считают, что в такой проем можно вписать комфортную и удобную лестницу. Это самообман. В такой проем можно вписать толькомалоудобную и не очень красивую лестницу, но подниматься по ней все-таки будет можно. Но очень часто приходится переделывать проемы.
Первая рекомендация для тех, кто хочет сделать лестницу — проект лестницы необходимо увязывать с проектом дома. То есть с самого начала заложить лестницу в проект и не так, как это делает большинство архитекторов — чертит символ, обозначающий лестницу, а потом оказывается, что начерченный символ к лестнице никакого отношения не имеет, поскольку вписать её в оставленное место просто невозможно. А вся беда в том, что сейчас архитекторов стало так много, а людей умеющих проектировать лестницы так мало, что это, как правило, не сочетается. Лестницу должен проектировать специалист. И делать это надо на самой начальной стадии изготовления дома.
Есть огромный контингент застройщиков, которые не нанимают никакого архитектора, а проектируют все сами. Бывают тут и вполне толковые проекты, которые осуществляются с минимальными переделками, но бывают и проектные ошибки. Это вполне объяснимо — многие просто не представляют, как проектировать лестницу. Для них можно дать другой совет — обратиться в фирму, которая впоследствии будет изготавливать лестницу. Там непременно помогут.
На какой стадии нужно обращаться?
Лучше это сделать на стадии проектирования. Например, мы при таком обращении саму лестницу проектировать не будем, но обязательно подскажем какой надо оставить проем, где должны проходить балки и как надо сделать опоры. К сожалению, мы такие консультации даем тогда, когда дом уже построен, в результате приходится что-то переделывать.
Поэтапная нарезка деталей
Для изготовления крыльца необходимо нарезать детали по размерам. Края готовых деталей должны строго соответствовать углу 90 градусов, это облегчит работу при последующей сборке и подгонке деталей между собой.
Доски для боковин несущего каркаса

- 1050х150х40 мм = 3 шт.
- 800х150х40 мм = 3 шт.
- 550х150х40 мм = 3 шт.
В досках боковин несущего каркаса по разметке сверлятся отверстия диаметром 5 мм, это делается для удобства сборки и для того, чтобы концы досок не расщеплялись при вкручивании в них саморезов.

На внешних краях длинных сторон деталей, для придания изделию более красивого вида, нужно снять фаску, сделать это можно либо рубанком, либо грубой наждачной бумагой.

Вертикальные стойки из брусков
Стойки связывают несущие каркасы, они делаются из брусков сечением 40х40 мм, для того, чтобы несущая способность всей конструкции была надёжной. Необходимо проследить, чтобы в материале для их изготовления было как можно меньше крупных сучков.
- 450х40х40 мм = 6 шт.
- 300х40х40 мм = 3 шт.
- 150х40х40 мм = 3 шт.

Ступени
- 1300х300х40 мм = 4 шт.
- 1300х110х40 мм = 2 шт.
- 1300х150х40 мм = 1 шт.

По периметру всех сторон внешних частей деталей снимается фаска, по разметке сверлятся отверстия диаметром 5 мм.


































