Естественная приточно-вытяжная вентиляция. Как работает естественная вентиляция?
Схема работы и требования к воздухообменным сетям
Параметры кондиционирования
Техническое задание
На этапе проектирования вентиляции первым делом нужно составить техническое задание, прописав требования к объемам и функциям воздухообмена в каждой части помещения. В зависимости от назначения комнаты, параметры вытяжной системы могут меняться.
Чтобы успешно и правильно реализовать монтаж, нужно следовать таким принципам:
- Жилые комнаты, спортивные залы или гостиные. Эти помещения нуждаются в бесперебойной подаче свежего воздуха, т. к. в них постоянно находятся люди. Оптимальный объем определяется числом проживающих или присутствующих людей. Также могут предъявляться требования к микроклимату, а именно к температуре и влажности входящих потоков.
- Ванная, прачечная и уборная. Здесь должна присутствовать естественная вентиляция, которая будет выводить отработанный воздух при работе механических систем.
- Кухня. Эта часть помещения считается технической и характеризуется постоянным повышением влажности. К тому же на кухне скапливаются запахи газа и продуктов питания, поэтому их нужно быстро и эффективно выводить наружу. Для таких целей используется многофункциональная принудительная вытяжка.
- Коридор и прихожая. Задача вытяжки в такой части дома заключается в свободном перемещении воздушных масс и сбалансированном воздухообмене.
- Кладовка. Помещение оснащается естественной вытяжкой.
- Бойлерная или топочная. Эти комнаты требуют регулярного выведения продуктов горения посредством естественной вентиляции, то есть через трубу.
Также автономные вентиляционные системы должны присутствовать в рабочих помещениях, таких как гараж и мастерская. Мощность и рабочие параметры оборудования определяются площадью и назначением комнаты.
Вытяжка для кухни и зонта
Заодно с приточной вентиляцией решил сделать и “правильную” вытяжку для кухни.
- в качестве вытяжного вентилятора поставил Systemair К 160M на 500м3/час
- перед вентилятором стоит глушитель длиной 1 м
- перед глушителем — простой фильтр, чтобы ловить жир с кухонного зонта и обратный клапан подпружиненный
- все собрано 150 трубой, на этот раз пластиком
- родной вентилятор из кухонной вытяжки не включается
Параллельно собрал 125 трубой естественную вытяжку из кухни, так же с обратным клапаном, который подпружинен в открытом состоянии (при включении вытяжного вентилятора обратный клапан закрывается). Отвод от естественной вытяжки сделал в кладовку и уменьшил сечение.
Все собрано в кладовке, которая граничит с кухней.
Результат мне понравился. Шума от вытяжки практически нет, даже на максимуме.
Мощность вентилятора впечатляет, мелкий песок, который был в трубе засосал как пылесос.
И главное, благодаря глушителям, я перестал слышать рабочих с верхнего этажа (звук шел через вентиляционную шахту).
Фото монтажа:
Дополнительно в туалете поставим маленький глушитель и ирисовый клапан для регулировки потока.
Без регулировки тяга была такая, что зимой на туалете невозможно сидеть — сдувает. После ирисового поставил обратный клапан.
Распределение воздуха
Вентиляция должна непросто подавать внутрь определенное количество воздуха. Ее цель – это доставка этого воздуха непосредственно туда, где в нем есть необходимость
Во внимание при планировании распределения воздушных масс принимаются такие показатели:
- суточный режим их применения;
- годичный цикл использования;
- поступление тепла;
- скопления влаги и ненужных компонентов.
Любое помещение, где люди находятся постоянно, заслуживает поступления приточного воздуха. А вот если здание используется для общественных нужд или решения административных задач, примерно половину его можно направлять в соседние помещения и в коридоры. Там, где отмечается повышенная концентрация влаги или выделяется много тепла, требуется вентилировать области конденсации воды на ограждающих элементах. Недопустимо перемещение воздушных масс из участков с повышенным загрязнением в места с менее засоренной атмосферой. Температура, скорость и направление движения воздуха не должны способствовать появлению туманного эффекта, конденсации воды.
Виды
Что включает проект
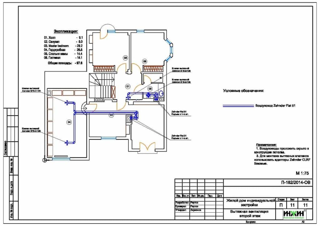
пример проекта вентиляции частного дома
Расчет вентиляции предусматривает определение того, хватит ли производительности систем для забора воздуха извне и пропускной возможности естественных воздуховодов для обеспечения пространства требуемыми по нормативу объемами свежего воздуха.
Проект должен составляться квалифицированными специалистами, так как для этого нужны специфические знания и навыки. Для определения интенсивности перетоков воздушных масс требуется не только расчет сечения воздуховодов, но и учет периметра у воздуховода.
Этапы проектирования
Формула расчета необходимого воздухообмена
Первым этапом расчета системы вентиляции помещения является определение необходимых объемов поступающего воздуха. На данном этапе необходимо знать, для приточной системы следует в дальнейшем закупать оборудование или же для монтажа вытяжки. Также требуется составить схему конвекции воздуха в помещениях.
На втором этапе проектирования вентиляции нужно определить диаметры воздуховодов с обоснованием, сможет ли требуемый расход воздуха пройти сквозь совокупное сечение патрубков.
И наконец, следует определить необходимую мощность вентиляции, от которой и зависит интенсивность замены воздушных масс в помещениях. Этот показатель как раз и характеризуется коэффициентом кратности.
Расчет естественной вентиляции

Естественный конвекционный воздухообмен в доме происходит из-за наличия в помещениях обогревательных элементов, из-за чего холодный воздух, нагреваясь, поднимается к потолку, заставляя более холодный (остывший) воздух ниспадать к полу. Там он снова нагревается, и цикл повторяется.
Если в комнате открыть окно, то более теплый верхний слой воздуха выйдет в атмосферу, а его место займет более холодный уличный. Таков обычный механизм проветривания. Кроме того, воздух циркулирует и между помещениями дома, перетекая в комнаты с большей интенсивностью конвекции.
Дома, в которых предусмотрена конвекционная система вентиляции, обязательно должны быть оснащены шахтами естественной вытяжки (согласно нормативу – минимум 1 шахта на 72 м2 общей площади квартиры или одного этажа дома, кроме санузлов).
Рассчитать вентиляцию в данном случае означает правильно определить размеры межкомнатных отдушин или даже площади щелей под дверями, через которые будет циркулировать воздух по дому/квартире.
Грамотно рассчитанная система естественной конвекции никогда не приведет к появлению сквозняков в доме, а в комнатах всегда будет свежий воздух и нормальная влажность. Добиться этого можно только при помощи высококвалифицированных специалистов-разработчиков и использовании специальных программ.
Расчет вытяжной и приточной вентиляции
Главным отличием приточной вентиляции от вытяжной является неспособность первой качественно проветрить помещение, удалив из него, к примеру, остатки ядовитых газов. Расчет вентиляции, в которой воздух принудительно только подается в помещение, а наружу он выходит уже в пассивном режиме, например, через капитальную вентиляционную шахту, строится на определении объемов воздуха, которым требуется снабдить все помещения дома или квартиры.
Для этого нужно учесть количество человек, которые пользуются каждой комнатой, а также площадь самих помещений.
Вытяжная вентиляция удаляет использованный воздух из помещений. Методика расчета такой системы подразумевает определение объемов и интенсивности межкомнатных перетоков воздуха, то есть расчет совокупного сечения отдушин и щелей, чтобы воздушные массы, которые затягиваются в помещение извне, перед тем, как попадут в вытяжной вентилятор, смогли бы сначала обновить атмосферу во всех комнатах.
И наконец, расчет приточно-вытяжной вентиляции. Как рассчитать систему вентиляции, обеспечивающую и искусственное нагнетание воздуха, и искусственное отведение? В сущности, это и не нужно.
Главное, чтобы объем поступающего во все комнаты воздуха был равен объему выводимого. А это легко сбалансировать подбором мощности и производительности вентиляторов. И если площадь сечения воздуховодов будет одинаковой, то проект можно считать исполненным.
Однако здесь возникают проблемы изменения этой самой производительности вентиляторов. Со временем все агрегаты, которые работают непрерывно, изнашиваются. Во всех вращающихся узлах, к примеру, выходят из строя подшипники.
Поэтому именно при монтаже приточно-вытяжной вентиляции крайне важно использовать высококачественное нагнетающее оборудование и обеспечить его сервисным обслуживанием. Только так можно сохранить баланс притока свежего и отведения отработанного воздуха
Цена вентиляции и кондиционирования в частном доме под ключ (за м2)
Данные для примерного определения стоимости под ключ системы кондиционирования и вентиляции приводятся в таблице:
| Вид вентиляции / Вариант исполнения | Econom | Standart | Premium |
| Общеобменная вентиляция под ключ | ~ 3 000 руб. | ||
| Кондиционирование на базе оборудования канального типа | 1 200 руб. | 2 100 руб. | 3 300 руб. |
| Кондиционирование на основе мультизональных систем, vrf и vrv | ~ 3 000 руб. | ||
| Кондиционирование на базе оборудования Чиллер-Фанкойл | По результату выполнения проекта | ||
| На основе бытовых кондиционеров | 700 руб. | 1500 руб. | 1900 руб. |
Если Вы только планируете строительство, то об обеспечении своего дома притоком здорового свежего воздуха стоит задуматься с самого начала. Не повторяйте ошибок тех, кто, увлекаясь внешним оформлением и проектированием систем отопления и канализации, забывает о главном: комфортно в новом доме мы будем ощущать себя только при соблюдении определенных параметров воздухообмена (санитарных норм здоровья):
- Гармоничный баланс между количеством вытяжного и приточного воздуха (обеспечивает применение приточно-вытяжной вентиляции);
- Комфортная температура воздуха: летом оптимальная температура 22–24°С, зимой – соответственно 18–22°С (обеспечивают кондиционеры, отопительные приборы);
- Строгий баланс относительной влажности воздуха: летом – 30–60%, зимой – 30–45% (обеспечивают увлажнители в зимнее время и осушение с помощью кондиционеров летом)
- Подвижность воздушной массы: лето – не более 0,2 м/с, зимой – не более 0,1–0,15 м/с.
ВЫВОД: когда система кондиционирования отсутствует, вентиляция и отопление должны обеспечивать необходимые параметры воздуха — зимой температура должна находиться в пределах 18–24°С, допустимая относительная влажность не опускаться ниже 30%, а скорость движения воздушных масс ограничена значением 0,2 м/с.
Состав проектной документации
По окончании работ заказчик получает готовый проект, который включает в себя документы:
- Обложка проекта и титульный лист;
- Необходимые лицензии и сертификаты на проведение проектных и монтажных работ;
- Техническое задание на создание вентиляционной системы;
- Пояснительная записка:
- Основные технические решения для вентиляционных систем:
- Расход тепла и установочная электрическая мощность вентиляционного оборудования;
- Характеристики вентиляционной системы (габариты, энергопотребление и т.п.);
- Таблица расчётов воздухообмена в помещениях;
- Расчёт основного оборудования для вентиляции при помощи программных продуктов производителя оборудования;
- Схема расположения основного оборудования вентиляции в венткамерах;
- Схема размещения воздухораспределителей и пультов;
- Схема расположения воздуховодов, вентиляционных магистралей и прочих элементов;
- Спецификация оборудования вентиляции;
- Аксонометрические схемы системы вентиляции.
Разработка проектной документации ведётся в системах автоматизированного проектирования – копию проекта в электронном виде мы предоставляем и заказчику.
Ключевые моменты требований
Среди всех ограничений особо важно санитарное направление, а также противопожарные требования к системам вентиляции. Их несоблюдение может привести к крайне печальным последствиям, и соответствие установленным параметрам контролируют строго
Санитарно-гигиенические требования системам вентиляции выдвигаются соответствующими инстанциями, а инспекция контролирует, чтобы:
- объем приточных масс превышал вытягиваемые на 10-15%;
- воздух подавался в точки с наименьшим его загрязнением, а удалялся в первую очередь из мест с наибольшим;
- не происходило перегревание или переохлаждение людей в помещениях;
- уровень шумов, вибрации не был больше допустимого;
- показатели микроклимата (влажность, скорость движения аэромасс, температура) были на уровне норм.
Пять основных заблуждений относительно вентиляции
- В загородном доме вентиляция не нужна. Можно просто открывать окна, двери и форточки.
- Вентиляция занимает полезное пространство дома, шумит и неэстетично выглядит.
- Деревянные дома «дышат самостоятельно» и не нуждаются в оснащении дополнительным вентиляционном оборудовании.
- Чем больше помещение, тем больше в него надо подавать воздуха.
- Вентиляция – это то, на чём можно сэкономить.
На самом деле:
1. Грамотно устроенная вентиляция необходима в любом доме (коттедже, квартире). Регулярный воздухообмен в помещении решает такие задачи:
- Снижает концентрацию углекислого газа, выдыхаемого человеком;
- Удаляет избыточную влажность.
- Устраняет:
- кухонные запахи;
- табачный дым;
- стойкие запахи загрязнения;
- вредные выделения современных стройматериалов и бытовой химии.
Проветривание при помощи окон и форточек может решить проблему лишь отчасти, и то – летом. Причем, дело это довольно хлопотное и некомфортное: сквозняки вызывают простудные заболевания; с улицы в дом попадает гарь, машинные выхлопы, а также пыль и пыльцы – сильнейшие аллергены. Не доставляют удовольствия и проникающие извне шумы, а в летнее время – насекомые. А зимой такое проветривание превращается в существенный удар по бюджету, т.к. 50% тепла уходит на улицу, что сводит “на нет” всякую энергоэффективность.
2. Использование системы гибких воздуховодов делает системы воздухораспределения невидимыми: всё оборудование располагается внутри стен, а снаружи – только вентиляционные решётки, которые, как раз, могут стать эффектным элементом декора. Что же касается шума, то современные установки бесшумны.
3. Миф про «дышащие дома» прочно прижился на просторах интернета, однако, с потребностью человека в свежем здоровом воздухе, он ничего общего не имеет. Те, кто ввели это понятие в обиход, имели в виду тот факт, что древесные строительные материалы не накапливают внутри влагу. Что же касается человека, то его потребности в свежем воздухе составляют от 25 м³/ час. Причем, в зависимости от вида деятельности, (например, при активном занятии спортом) и количества людей, находящихся в помещении, приток свежего воздуха должен быть значительно больше. А такой приток свежего воздуха ни один “дышащий дом” не обеспечит.
4. На самом деле наблюдается обратная зависимость. Чем меньше помещение, тем оно более требовательно к вентиляции, поскольку объём воздуха небольшой, и он быстро расходуется. Поэтому небольшие по площади помещения с низкими потолками нуждаются в дополнительном притоке свежего воздуха (естественная вентиляция, когда воздухообмен осуществляется за счет разницы температур, атмосферного давления снаружи и внутри квартиры, определенной силы и направления ветра, – крайне неэффективна!)
5. Мы дышим каждый день 24 часа в сутки, и от того, каким будет воздух, попадающий в наш организм, напрямую зависит наше самочувствие. А экономить на своем здоровье крайне невыгодно!
Состав проектной документации
По окончании работ заказчик получает готовый проект, который включает в себя документы:
- Обложка проекта и титульный лист;
- Необходимые лицензии и сертификаты на проведение проектных и монтажных работ;
- Техническое задание на создание вентиляционной системы;
- Пояснительная записка:
- Основные технические решения для вентиляционных систем:
- Расход тепла и установочная электрическая мощность вентиляционного оборудования;
- Характеристики вентиляционной системы (габариты, энергопотребление и т.п.);
- Таблица расчётов воздухообмена в помещениях;
- Расчёт основного оборудования для вентиляции при помощи программных продуктов производителя оборудования;
- Схема расположения основного оборудования вентиляции в венткамерах;
- Схема размещения воздухораспределителей и пультов;
- Схема расположения воздуховодов, вентиляционных магистралей и прочих элементов;
- Спецификация оборудования вентиляции;
- Аксонометрические схемы системы вентиляции.
Разработка проектной документации ведётся в системах автоматизированного проектирования – копию проекта в электронном виде мы предоставляем и заказчику.
Для чего нужно техобслуживание вентиляционных установок
Во всех сложных механических системах со временем могут возникать неисправности и регулировки. Это также относится к системам с принудительной циркуляцией воздуха. Техническое обслуживание вентиляционных установок (ТОУ) проводится для предотвращения серьезных поломок и восстановления сниженной производительности. Если устройство эксплуатируется в течение длительного времени, в нем появляются признаки неисправности:
- Снижается производительность системы. Снижается воздухообмен, параметры микроклимата в помещении не поддерживаются. Одной из причин является засорение впускных воздушных фильтров.
- Впускные воздушные фильтры засоряются, что приводит к уменьшению поступления воздуха. Атмосфера в Москве и крупных городах России насыщена частицами пыли.
- Повышенный шум и вибрация во время работы из-за изношенных подшипников, ремней привода вентилятора.
- Неприятный запах в помещениях из-за скопления грязи в воздуховодах и образования плесени.
- Утечка воды из дренажной системы из-за засорения или утечки.
- Сбои автоматики, приводящие к неправильному включению (отключению) агрегата, нарушению режимов работы.
При обслуживании установок вентиляции и кондиционирования воздуха часто выявляются скрытые дефекты и причины, по которым установки нуждаются в регулировке или замене:
- перемещение промышленных технологических установок;
- изменения нагрузки на систему;
- изменения в здании;
- изменения в требованиях к качеству воздуха и т.д.
Использование приточного клапана
Приточный клапан может быть установлен в современный оконный блок или в наружную стену помещения. В первом случае возможна его самостоятельная установка или покупка оконных систем, уже имеющих такое устройство в своей конструкции.
ПОЛЕЗНАЯ ИНФОРМАЦИЯ: ГКЛ «Gyproc»: виды и характеристики материала
Что касается установки приточного клапана во внешней стене помещения, то она также не представляет особой сложности и может быть выполнена своими силами. Такой клапан монтируется над батареей отопления или под потолком. В первом случае появляется возможность несколько повысить температуру поступающего в квартиру воздуха в зимний период.
Для повышения эффективности функционирования такого клапана может использоваться вентилятор. В тех местностях, где средняя температура зимой опускается до низких значений, используют электрический подогрев воздуха в приточных клапанах.
С внешней стороны стены отверстие для забора воздуха закрывается решеткой, что позволяет избежать попадания в него пыли, мелкого мусора, насекомых и т. д.
Принцип работы системы
Самая простая вентиляционная система строится с учётом законов физики, которые изучали в средней школе. Известно, что более тёплый воздух стремится подняться вверх, а более холодный – опуститься вниз. В соответствии с упомянутым законом физики старый, более тёплый воздух, нужно забирать из-под потолка погреба, а новый, более свежий, подавать в нижнюю часть помещения.
ФОТО: stroyday.ruИллюстрация принципа естественной вентиляции
Естественная вентиляция
Воздухообмен, который происходит в помещении без применения технических средств, вызывающих движение воздуха, называется естественной вентиляцией. В этом случае побудительной силой являются только законы природы, а человек только управляет направлением потоков воздуха.
Человек участвует в организации потока воздуха. В потолке погреба, желательно в противоположных углах, нужно проделать два сквозных отверстия. В эти отверстия вставляются две трубы: одна – для притока свежего воздуха, вторая – для удаления отработанного. Вот здесь нужно чётко соблюдать правила.
Трубы должны иметь одинаковый диаметр, тогда вентиляция будет равномерной, а приток будет равен оттоку. И абсолютный запрет: выходная труба не должна иметь диаметр меньший, чем у входной. Трубы должны быть установлены как можно дальше друг ото друга. Тогда уличный воздух будет протягиваться через всё помещение погреба.
Вход в вытяжную трубу следует делать на расстоянии 100–200 мм от плоскости потолка. Тогда на потолке не будут образовываться застойные зоны из тёплого воздуха, он весь будет засасываться в трубу.
Верхний конец этой трубы должен быть выше самой высокой точки крыши погреба не менее чем на полтора метра. Нижний конец приточной трубы должен находиться над полом на высоте 250– 300 мм. Каждая труба должна по всей своей длине иметь постоянный диаметр. Никакие сужения и расширения не допускаются. И очень желательно, чтобы трубы имели меньше поворотов и изломов, в идеале желательны прямые трубы.
Верхний, уличный конец приточной трубы, располагается низко над землёй. Для защиты от проникновения в погреб грызунов его следует закрыть решёткой. А чтобы туда не заливали дожди и не сыпал снег, на верхние концы обеих труб нужно сделать зонтики или дефлекторы. Последний вариант предпочтительнее для вытяжной трубы, так как он увеличивает разрежение. Уличный конец вытяжной тубы следует утеплять во избежание образования конденсата.
ФОТО: stroyday.ruСхема расположения труб при устройстве естественной вентиляции
Принудительная вентиляция
Если требуется увеличить воздухообмен, то вентиляцию нужно делать принудительной. Это значит, что поток воздуха будет двигаться в системе не за счёт разности разрежений на входе и выходе, а за счёт встроенного вентилятора. Простейшим вариантом такой системы является встраивание вентилятора в вытяжной канал. Устройство хорошей правильной вытяжки гарантирует отсутствие влажности и сырости в погребе. Он создаёт более глубокое разрежение, в систему засасывается больше воздуха. Мощность вентилятора определяется объёмом обслуживаемого помещения. Если помещения имеют большой объём, а конфигурация воздуховодов очень отличается от прямолинейной, то потребуется два вентилятора – на притоке и на вытяжке воздуха. Параметры такой системы – диаметры труб, мощности вентиляторов и пр. должны рассчитывать специалисты.
ФОТО: stroyday.ruМаломощный вентилятор в системе вентиляции погреба
Расчет теплового баланса помещения.
Составление теплового и влажностного баланса для кондиционируемого помещения производится общеизвестными методами, принятыми в отопительно-вентиляционной технике. Здесь должны быть учтены все факторы, влияющие на изменение состояния воздушной среды помещения.
Для составления теплового баланса помещения необходимо определить все поступления и потери тепла в помещении.
В помещениях различного назначения действуют две основные категории тепловых нагрузок:
- тепловые нагрузки, возникающие снаружи помещения (наружные);
- тепловые нагрузки, возникающие внутри зданий (внутренние).
Наружные тепловые нагрузки представлены следующими составляющими:
- теплопоступления или теплопотери в результате разности температур снаружи и внутри здания через стены, потолки, полы, окна и двери. Разность температур снаружи здания и внутри него летом является положительной, в результате чего имеет место приток тепла снаружи во внутрь помещения; и наоборот – зимой эта разность является отрицательной и направление потока тепла меняется;
- теплопоступления от солнечного излучения через застекленные площади; данная нагрузка проявляется в форме ощущаемого тепла; солнечное излучение всегда создает положительную нагрузку как летом, так и зимой. Летом эта нагрузка должна быть компенсирована, а зимой она незначительная и интегрируется с теплом, вырабатываемым установкой искусственного климата;
- наружный вентиляционный воздух и проникающий в помещения воздух (за счет инфильтрации) может иметь также различные свойства, которые, однако, почти всегда контрастируют с метеорологическими требованиями помещений: летом горячий и влажный (в некоторых широтах наоборот – сухой) наружный воздух существенно влияет на работу установки, охлаждающей и осушающей воздух; зимой холодный и сухой (или наоборот -влажный) наружный воздух должен быть подогрет и увлажнен. И только в промежуточный период между двумя этими временами года наружный воздух может в какой-то мере быть использован в форме бесплатного охлаждения помещений.
Следует отметить, что наружные тепловые нагрузки могут обладать различными свойствами, то есть могут быть положительными и отрицательными в зависимости от времени года и времени суток. Внутренние тепловые нагрузки в жилых, офисных или относящихся к сфере обслуживания помещениях слагаются в основном из:
- тепла, выделяемого людьми;
- тепла, выделяемого лампами и осветительными приборами, электробытовыми приборами: холодильниками, плитами и т. д. (в жилых помещениях);
- тепла, выделяемого работающими приборами и оборудованием: компьютерами, печатающими устройствами, фотокопировальными машинами и пр. (в офисных и других помещениях);
В производственных и технологических помещениях различного назначения дополнительными источниками тепловыделений могут быть:
- нагретое производственное оборудование;
- горячие материалы, в том числе жидкости и различного рода полуфабрикаты;
- продукты сгорания и химических реакций.
Все перечисленные внутренние тепловые нагрузки являются всегда положительными, и поэтому в летний период они должны быть устранены, а зимой за их счет снижается нагрузка на установки обогрева.
Виды вентиляции: приточная и вытяжная
Задача вентиляции — обновлять воздух. Взамен удаляемого из помещения воздуха с улицы должен поступать свежий. Поэтому любая система вентиляции состоит из двух частей — приточной и вытяжной. Конструктивно эти две части вентиляционной системы различаются.
Движение воздуха через приточную и вытяжную вентиляцию
Вытяжная вентиляция представляет собой, как правило, одну или несколько вертикальных труб, через которые отработанный воздух выводится из помещения на улицу. В такой схеме воздух движется под действием естественной разности давлений на концах трубы (естественная вентиляция). В вентканал может устанавливаться вентилятор, обеспечивающий эффективную работу системы с заданной производительностью (принудительная вентиляция). Привычные всем вентиляционные решетки под потолком санузла или кухни — это как раз вытяжная вентиляция.
Одно из оптимальных мест для размещения вентилятора — на крыше. Такое решение имеет несколько преимуществ:
вентилятор работает одновременно на все вентиляционные каналы, подключенные к нему;
шум от вентилятора не проникает в помещение;
для ремонта и замены к вентилятору есть свободный доступ.
Крышные вентиляторы марки VILPE устанавливаются на воздуховоды диаметром 125 мм, способны работать в диапазоне температур от -40 °C до + 80 °C и позволяют регулировать воздухообмен от 0 до 400 м³/час.
Приточная вентиляция обеспечивает поступление в помещение свежего воздуха с улицы. Конструктивно это могут быть специальные отверстия в рамах окон, отверстия в стенах, или более сложные решения с очисткой и подогревом (охлаждением) входящего воздуха.
Исторически сложилось так, что приточной вентиляции уделяется недостаточно внимания. Дома строились без обособленной приточной вентиляции, потому что через неплотности деревянных рам, через щели в дверных косяках и через форточки в помещение проникало достаточно воздуха для нормальной работы вентиляции.
С широким распространением пластиковых окон, отличающихся высокой герметичностью, возникла проблема: вытяжная вентиляция перестала функционировать с должной эффективностью. Как следствие, воздух в помещениях стал застаиваться и насыщаться избыточной влагой.
Чтобы решить эту проблему, дома начали оборудовать приточной вентиляцией. В простейшем случае это горизонтальный канал в наружной стене рядом с окном, закрытый специальным клапаном. Фильтры, установленные в клапане, не пропускают в помещение пыль и насекомых. Поступающее через клапан количество воздуха регулируется.
![]() | ![]() |
Описанные выше приточные клапана дешевы, просты в установке, не требуют для работы электропитания. Однако они не способны тщательно очищать воздух. Более сложные модели приточных клапанов, например, марки Marley оборудованы сменными фильтрами, задерживающими не только уличную пыль, но и цветочную пыльцу.
Серьезный недостаток указанных приточных клапанов в том, что они никак не влияют на температуру проходящего через них воздуха. Из-за этого зимой в морозы их приходится просто закрывать, чтобы не выстудить помещение холодным воздухом, поступающим снаружи.
Чтобы проветривать и освежать воздух в комнате в любую погоду понадобится бризер, например Tion 3S Standard. Этот компактный прибор устанавливается вместо приточного клапана. Он забирает воздух с улицы, тщательно очищает его, при необходимости подогревает до заданной температуры и подает в помещение. Бризер заменяет открытую форточку, а в режиме рециркуляции фильтрует воздух в комнате.

Значительное энергопотребление в режиме подогрева воздуха (например, 1,45 кВт для модели Tion 3S Standard) — существенный недостаток бризера. К тому же свежий воздух, закачиваемый с улицы, вытесняет через вытяжную вентиляцию теплый отработанный воздух, что увеличивает теплопотери дома. Для снижения энергопотребления и уменьшения теплопотерь через вентиляцию служат рекуператоры — о них расскажем ниже.
Согласование и разрешение на монтаж кондиционера: получать или нет
При открытии собственной климатической фирмы, оказывающей услуги по продаже и монтажу СКВ, у многих возникает вопрос, нужно ли разрешение на установку кондиционера в том или ином помещении. От компании требуют наличия лицензии, дающей право проводить строительно-монтажные работы.
Монтаж кондиционера на кронштейны
Единственное исключение здесь могут составить здания, признанные историческими памятниками или памятниками архитектуры, строения, которые находятся на центральных улицах города и представляют собой историческую ценность. В таком случае придется согласовывать установку кондиционера с соответствующими службами (для начала нужно обратиться в БТИ или управляющую компанию).
Как показывает судебная практика, при возникновении спорных ситуаций у не имеющих разрешительные документы могут возникнуть проблемы. К примеру, зимой на внешний блок сплит-системы упала сосулька после очистки крыши работниками управляющей компании. Владелец обращается в суд и требует компенсации за материальный ущерб. Судья может как удовлетворить требованиям истца, так и решить вопрос в пользу ответчика, ссылаясь на то, что монтаж кондиционера приравнивается к реконструкции здания с нарушением целостности его фасада, а также напомнить о необходимости согласования подобных мероприятий со всеми участниками долевой собственности многоквартирного дома и уполномоченными органами местного самоуправления.
Признаки плохой работы системы вентиляции
Иногда система вентиляции работает недостаточно хорошо. Чтобы определить продуктивность работы системы, необязательно быть специалистом
Обратите внимание на следующие внешние признаки:
- образуется конденсат на окнах;
- появляется плесень на стенах;
- спертый воздух в помещении;
- запахи очень долго выветриваются;
- ощущение сырости в помещении;
- ткани, обивка мебели и постельное белье кажутся влажными;
- в квартиру проникают запахи от соседей.
Если вы стали замечать некоторые из этих явлений, значит, вентиляционная система работает некорректно. При возникновении подобных признаков в новом, недавно построенном доме необходимо полностью пересмотреть вентиляционную систему. Возможно, в проектировании вентиляции были сделаны серьезные ошибки. Их необходимо исправить, пока в доме не стали распространятся плесневые грибы из-за высокого уровня влажности.
Устройство вентиляции в помещениях
Принцип работы систем естественной вентиляции
Основные требования к естественной вентиляции касаются разницы климатических и микроклиматических условий снаружи и внутри здания. Особое влияние оказывает атмосферное давление и температура воздуха. Этим и отличаются естественная и искусственная вентиляция. Принудительная система обеспечивает необходимую скорость движения воздуха за счет специального оборудования. Пассивный воздухообмен же, работает только от естественных условий.
Любая схема естественной вентиляции, функционирует за счет физических законов, без которых ее расчет и монтаж невозможны. Решив начать установку приточных или вытяжных воздуховодов или каналов, следует знать, что:
- теплый воздух легче холодного, поэтому он скапливается под потолком комнаты;
- холодный воздух оседает внизу;
- холодные потоки вытесняют теплые.
Кроме знаний о том, как работает вентиляция, необходимо разбираться и в проектировании самой системы. Ведь кроме естественных сил, скорость и сила тяги могут изменяться в зависимости от размеров конструктивных элементов и их расположения.
При помощи пассивного воздухообмена, можно обеспечить свежим прохладным воздухом помещение любой площади. Главное, провести правильный расчет и монтаж определенной схемы. Отчасти функционирование естественной вентиляции зависит от площади сечения воздуховодов и отдельных каналов. К тому же такая вентиляция в частном доме своими руками затрачивает меньше сил и времени, чем любой другой тип.
Подведем итоги
Типовой проект вентиляции небольшого жилого дома включает в себя полный расчёт и подбор оборудования. Его можно заказать в готовом виде или отдельно для интересующих помещений: как пример, вентиляция котельной или цокольного этажа.
Пример проекта вентиляции дома
Компания «Мега.ру» выполнит проекты вентиляции любой сложности. Наши специалисты строго следуют всем актуальным требованиям стандартов качества, а также индивидуальным пожеланиям клиента. Мы работаем на территории Москвы и в соседних регионах.
С нашими тарифами на работу вы можете ознакомиться на странице «Цены». А, чтобы получить более подробную информацию, перейдите в раздел «Контакты» и свяжитесь с нами любым, указанным там, способом.
Заключение
В каждом конкретном случае создается уникальный по своей сущности проект, который не может быть похож на предыдущие работы разработчиков. Проект создается под ряд целей и задач, которые ставит перед организацией заказчик. Проектирование инженерных систем как внешних, так и внутренних — задача не из простых, поэтому ими должны заниматься исключительно профессионалы. Каждый этап разрабатывается отдельной группой специалистов, которые и будут ответственными за качество выполненных работ. При правильном групповом подходе в итоге должен получиться грамотный проект, который будет обладать множеством преимуществ.




































