Какие инструменты и материалы потребуются
Для изготовления дачной мебели из металла потребуется профиль, лента или труба из металла, поперечным размером не менее 25 мм. Общая длина заготовки определяется габаритами лавки. Кроме того, нужно будет запастись материалом для отделки сидения и спинки, обычно для этого используется рейка из мягких пород древесины. Отделку крепят на основе из металла с помощью обычных болтов или винтов с гайкой.
В список инструментов входят:
- Сварочный инвертор с электродами для сваривания тонкого металла;
- Болгарка с отрезным и зачистным дисками;
- Струбцины;
- Электродрель;
- Строительная рулетка.
Кроме того, нужно будет запастись наждачной бумагой, химическим средством для удаления ржавчины и хорошей алкидной эмалью черного или медно-коричневого цвета.
Виды лавочек-трансформеров с навесом
Самый популярный вид лавочек-трансформеров представляет собой складную конструкцию, которая в разложенном состоянии превращается в комплект из двух скамей и стола. Стационарные навесы, как правило, устанавливают именно над лавочкой-трансформером.
Остальные виды трансформеров выглядят очень оригинально, но проигрывают предыдущему варианту в функциональности: в разложенном состоянии одни образуют только набор мест для сидения или место для сидения и маленький столик. Виды трансформеров необычной конструкции:
- Трансформер-конструктор. На каркасе из металлических труб крепятся деревянные элементы, которые можно свободно поворачивать. В сложенном состоянии мебель представляет собой обычную садовую лавку, в разложенном – комплект из двух широких мест для сидения, широкое кресло и небольшой столик или набор из узких кресел и столика между ними.
- Трансформер-«цветок». Принцип конструкции напоминает предыдущий вариант – деревянные элементы свободно вращаются на оси. В сложенном состоянии это длинная лавочка без спинки, в разложенном – удобная скамейка со спинкой, которую можно закрепить под любым углом.
Как правило, необычные трансформеры не оборудуют встроенными навесами, но их можно установить в любом месте, в том числе и под стационарным навесом. Преимущество оригинальных конструкций в их декоративности и мобильности. Такую мебель устанавливают не только на открытом воздухе. Отсутствие громоздкого навеса позволяет превратить эти лавочки в мебель для дачного или загородного дома.
Инструкция по изготовлению лавочки со спинкой (скамейки)
Вне зависимости от конкретных габаритов скамьи, порядок его изготовления остается неизменным. Рассмотрим его поэтапно.
Этап 1: подготовка инструментов и материалов
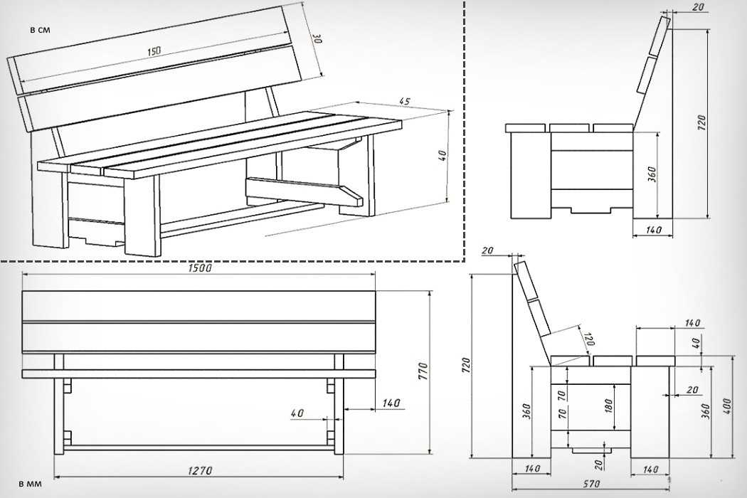
Чтобы сделать скамейку на 3 человека длиной 150 см, шириной 45 см и высотой 40 см, необходимо подготовить:
- деревянные доски (150х14 см, толщиной 4 см) – 3 заготовки для сиденья и 2 для спинки;
- 2 заготовки, выполняющие функции опор и держателей для спинки (высотой 72 см, шириной 14 см, толщиной 4 см);
- 2 заготовки для передних опор скамьи (длиной 36 см, высотой 14 см, толщиной 4 см);
- 5 бруса для усиления конструкции скамейки (4 шт. – 7х4 см, длиной по 55 см и 1 шт. – 2х2 см, длиной 120 см);
- карандаш, уровень с линейкой, рулетка;
- электрический лобзик для раскроя древесины (или пила, болгарка с диском по дереву);
- электрорубанок для шлифовки поверхностей досок, наждачная бумага;
- грунтовка, лак и кисть.
Пример чертежа, который вмещает в себя все перечисленные элементы и их размеры, представлен ниже:

Этап 2: выбор способа соединения
Сборка конструкции зависит от того, какие крепежные элементы планируется использовать для этого:
- саморезы по дереву;
- мебельные болты, гайки, шайбы;
- гвозди;
- деревянные шканты + столярный клей.
При выборе способа соединения элементов деревянной конструкции нужно учитывать, какую нагрузку она должна будет выдерживать.
При использовании болтов потребуется подготовить также дрель и сверло, диаметр которого несколько больше сечения выбранных болтов. Благодаря этому они смогут легко войти в подготовленные для них отверстия. Если диаметр отверстия будет больше, чем диаметр шляпки болта и гайки, то можно воспользоваться шайбами.
Если правильно использовать шканты и в достаточном количестве, то конструкция будет крепкой:

В нашем примере для соединения деталей скамьи будут применяться саморезы. Их шляпки при вкручивании нужно слегка утапливать:

Саморез должен входить под прямым углом к поверхности, в которую он вкручивается.
Этап 3: сборка элементов скамейки
Конструкция собирается в такой последовательности:
- Если нет досок нужных размеров, раскроить древесину на заготовки, используя электролобзик или торцовочную пилу. Каждый полученный элемент тщательно обработать, а заготовки для спинки и сиденья отшлифовывать. По торцам досок пройтись электрорубанком, в идеале придавая им закругленную форму.
- На полученных деталях провести необходимые измерения и отметить карандашом те места, в которых будут находиться крепежные элементы. В этих местах просверлить отверстия, ориентируясь на чертежи скамьи.
- Длинным задним опорам скамьи, которые также выступают каркасом для спинки, придать правильный угол наклона. Для этого на 2 деревянных заготовках длиной 72 см нанести разметку. Прежде всего, отметить высоту скамейки – 36 см. Этот участок доски не нужно обрабатывать. На остальном отрезке надо сделать срез в 10-20°. На второй ножке сделать такой же срез, иначе скамейка получится перекошенной.
- Собрать ножки конструкции, выдержав между передними и задними элементами «окно» в 29 см. Соединять их брусом, который нужно раскраивать на всю ширину скамьи (55 см). По возможности стоит сделать двойную обвязку – сверху и снизу:
Подготовленные 2 боковины соединить между собой с помощью досок, предназначенных для сидения. Их можно прикрутить к верхним брусьям обвязки саморезами или прочими крепежными элементами. Если используются болты, то для большей эстетичности скамьи их можно маскировать – перед началом соединения в местах прохождения болтов с помощью специальной коронки высверлить небольшие углубления.
За счет этого при сборке изделия шайбы погрузятся в подготовленные под них ниши, которые в дальнейшем надо закрыть смесью из клея ПВА и мелкой древесной стружки. Альтернативный вариант – вырезать из дерева округлые элементы, которыми можно будет закрыть отверстия.- Для усиления конструкции с помощью брусьев по ножкам можно сделать нижнюю обвязку. 2 заготовки длиной 150 см следует прикрутить к передним и задним опорам. При нехватке пиломатериала можно 1 поперечину прикрепить к нижним брусьям обвязки.
- В конце закрепить спинку скамейки с помощью саморезов (чтобы крепёж не ржавел – «утопите» его шляпку в древесину):
Этап 4: финишная отделка скамейки
Собранную скамью нужно пропитать средством для защиты от гниения – антисептиком с проникающим действием. Большинство таких препаратов содержат смолы и различные добавки. Работать с ними обязательно нужно в перчатках и защитных очках.
По завершении пропитки скамейку остается покрыть водостойким лаком в несколько слоев или обычной масляной краской.
Как сделать подобную деревянную лавку со спинкой для дачи, показано и в следующем видео:
Металлические садовые скамейки своими руками: чертежи и фото, характеристика
Несмотря на то что данный вид конструкций относится к разряду металлических, в большинстве случаев на фото скамеек из металла своими руками, которые встречаются в интернете, изображены изделия комбинированного типа. В них каркасная часть изготовлена из металла, а в качестве материала для сидения и спинки используется древесина.
Удачное применение металлических элементов в скамейках для сада
Таким образом не только удешевляется строительство скамейки, но и сама конструкция становится более практичной и комфортной, так как деревянное сидение, в отличие от металлического, не раскаляется под солнцем.
Преимущества скамейки своими руками из металла перед изделиями из других материалов
Металлические опоры лишены тех недостатков, которые присущи каркасным частям скамеек из других материалов:
чугун – самый тяжелый вид конструкций, который пригоден для установки исключительно в парковых зонах (изделия характеризуются высокой стоимостью, декоративностью и сложной технологией изготовления);
Яркая и креативная конструкция скамейки
- бетон – скамейки имеют большой вес и сопровождаются целым рядом трудностей в процессе установки на участке;
- камень – изделия имеют высокую стоимость и существенно ограничены в вопросах дизайна;
- древесина – несмотря на красоту, доступность и малый вес, опоры в данных конструкциях достаточно быстро приходят в непригодность, поскольку материал чрезвычайно уязвим перед влиянием погодных и климатических условий, а также негативных факторов окружающей среды (грибки, насекомые, плесень).
Оригинальная металлическая скамейка, выполненная из спинки старой кровати
Нередко для создания металлического каркаса в качестве сырья применяется сталь. Именно этот материал считается наиболее подходящим для скамеек и лавок, предназначенных для установки на участках дачного типа и придомовых территориях загородных коттеджей. Сталь практически не подвержена влиянию коррозийных процессов, разрушению. Она предлагает множество вариантов исполнения дизайна за счет применения метода декоративной ковки.
Сочетание металла и дерева в оригинальном исполнении
Особенности создания необычных конструкций
Профильные трубы также применяются для создания декоративных элементов, которыми можно дополнить готовую скамью или лавку. Если вы приняли решение создать уникальную конструкцию – вам потребуется добавить к общему списку необходимых инструментов еще несколько пунктов.
Для формирования стального декора потребуется применение:
слесарных тисков;
Металлическая конструкция является чудесным оформлением дерева в саду
- инструментария для сгибания труб;
- мини-станка, именуемого «Улиткой».
Чтобы получить симметричные изгибы труб рекомендуется использовать плаз. Основой для его изготовления служит кусок фанерного листа. Поверх него следует нанести контурную часть декоративного элемента, который вы хотите получить. Для создания изящных и ровных изгибов следует использовать возможности паяльной лампы, которая размягчает материал и делает его податливым для сгибания. Для этого достаточно воздействовать лампой на необходимый участок.
Необычная детская скамейка из металла в форме бабочки
Наполненные трубы для сгибания необходимо поместить на станок, уложив их между упором и выступом, расположенным в центре. После чего можно приступать к работе. Процесс загибания труб при этом осуществляется вручную.
Скамейка с надежным каркасом из металла прослужит долгие годы
Чертежи с размерами лавочек и скамеек из профильной трубы
Прежде чем браться за изготовление чего-то аналогичного, неплохо было бы найти или разработать чертежи, по которым будет идти вся работа.
Подбирая чертеж нужно ориентироваться на свои личные требования. Материал подбирают так, чтобы конструкция справлялась с возможными максимальными нагрузками, помещалась в отведенное место, ну и просто нравилась.
Размер деталей каркаса необходимо соотносить с отделочным материалом, в качестве которого чаще применяются брусья, рейки и доски, но может быть использован и пластик и ДПК.
Некоторым нравятся полностью металлические изделия, но они не так удобны, ведь металл хорошо проводит тепло и будет сильно раскаляться под солнцем или промерзать зимой.
Скамейки со спинкой из металла для дачи
Зная размеры отделки, рассчитываются параметры основных частей скамейки (спинки и сидения), задается их форма. Данные также вносятся в чертежи.
Схема простейшей скамейки
Следует предусмотреть способы соединения деталей – под какими углами будут врезаться торцы и так далее.
Чертежи других вариантов скамейки:
Эскиз и чертежи
Перед началом работы необходимо составить чертеж. Сначала рекомендуется ознакомиться с ассортиментом кованых деталей, из которых можно будет изготовить каркас скамейки. Можно взять за основу какие-либо завитки или прямые детали, в зависимости от выбранного стиля будущего изделия. Затем нужно определиться с размерами.
Зная форму и размеры кованых деталей, которые могут быть использованы для изготовления скамейки своими руками, можно составить карандашный эскиз или нарисовать его на компьютере.
Скамейка состоит из:
- опоры или ножек;
- подлокотников;
- сиденья;
- спинки;
- креплений.
На основании эскиза и чертежей нужно определить — какие именно кованые и деревянные элементы понадобятся и в каком количестве.
Как сделать скамейку своими руками
Создать лавку для сада своими руками можно имея некоторые навыки работы. Начинать нужно с чертежа, чтобы определиться с конструкцией и материалами. Если это первый опыт по изготовлению мебели, то стоит использовать дерево. Самый простой вариант — скамейка садовая со спинкой. Подробный чертеж можно отыскать в интернете, определиться с размерами и рассчитать количество материалов:
- брусья для опоры;
- доски для спинки и сиденья;
- элементы для крепежа.
Важно выполнить монтаж, соблюдая точность соединения деталей, чтобы избежать перекосов и поломки мебели. Деревянные части обрабатывают специальной пропиткой или вскрывают слоем защитного лака. Если имеется большой опыт работы с деревом, можно соорудить комплект мебели
Он состоит из стола и двух лавочек. Каждый предмет собирается отдельно, а затем элементы соединяются в одно изделие при помощи брусков по два с каждой стороны. Столешницу закрепляют на крестообразных ножках. Чтобы конструкция приобрела устойчивость, первыми фиксируют скамейки, а потом точно посредине — стол. И вот, вы уже владелец удобного уголка для общей трапезы на свежем воздухе
Если имеется большой опыт работы с деревом, можно соорудить комплект мебели. Он состоит из стола и двух лавочек. Каждый предмет собирается отдельно, а затем элементы соединяются в одно изделие при помощи брусков по два с каждой стороны. Столешницу закрепляют на крестообразных ножках. Чтобы конструкция приобрела устойчивость, первыми фиксируют скамейки, а потом точно посредине — стол. И вот, вы уже владелец удобного уголка для общей трапезы на свежем воздухе.
Лавочка садовая дает прекрасный повод реализовать творческие замыслы. Для изготовления необычного вида изделий подойдут, к примеру, обрезки пластиковых труб. Закрепляя их при помощи соединительных элементов и жидких гвоздей, можно создать уникальные вещи. Интересным решением, которое порадует и детей, и взрослых, станет деревянная скамейка в виде качелей. Полет фантазии может подсказать и другие решения, но, в первую очередь, нужно помнить о сохранении удобства и безопасности.
Интересные варианты скамеек
Есть много конструкций со своими отличиями. Чтобы выбрать конкретную, нужно продумать, где лучше поставить скамейку, прикинуть, сколько есть места. Разобраться, для чего ее использовать и определить, нужны ли дополнительные элементы и какие. Интересные решения:
- Скамейка из дерева со столиком. Самый частый вариант – небольшой столик посередине, можно делать его откидным. Использовать для зоны отдыха или обеденной зоны в беседке или под навесом, подбирать размеры по ситуации. Для подвижных частей выбирать металлические соединения.
- Банкетка для дачного участка. Обычно небольшого размера – на 2-3 человека, без спинки, с простым оформлением. Сиденье может быть жестким, а может быть мягким, подушки лучше сделать съемными, чтобы убирать в непогоду. Собирать из дерева, металла или разных материалов.
- Скамейка-диван для дачи. Ставить в углу, она имеет Г-образную или даже П-образную форму. Если конструкция стационарная, собирать по месту, крепить к стенам или другим поверхностям. Или сделать диван сборным, чтобы переносить его, если понадобится. На сиденье, спинку сшить подушки, которые привязывать лентами или тесемками.
- Конструкция из профильной трубы. Сварить из профилированной трубы каркас, закрепить сверху доску или бруски для сиденья и спинки. Скамейки легкие, их нужно обязательно красить, а на нижнюю часть приклеить куски резины, чтобы металл не стоял на земле, а также не царапал пол. Подлокотники сделать или деревянными, или из выгнутой трубы.
- Скамья с отсеком для хранения. Сделать опоры в виде коробов, в которые складывать нужные вещи. Или собрать опорную часть в виде большого сундука, открывать при поднятии сиденья. Использовать для садового инструмента, кухонных принадлежностей или детских игрушек. При необходимости сделать отдельные отсеки для разных предметов.
- Вариант с клумбой. Сбоку или посередине сделать отсек под грунт, чтобы посадить цветы или декоративные растения. Насыпать землю прямо в короб или подобрать контейнер, чтобы при необходимости вынимать его и переставлять на зиму в помещение или под навес. Сажать в такой отсек не очень большие растения, чтобы они не заняли много места, когда разрастутся.
- Скамейка вокруг дерева. Делать конструкцию вокруг ствола большого дерева, чтобы отдыхать в тени. Собирать четырехугольные или шестиугольные варианты, первые проще, вторые удобнее, занимают меньше места. Делать с отступом от дерева, чтобы не повреждать ствол. Делать со спинкой или обойтись без нее. Скамьи бывают переносными.
- Стол-скамейка для пикника. В конструкции есть столешница со скамьями с двух сторон. Собирать изделие как единое целое, чтобы упростить переноску. Можно сделать такой вариант для беседки или под навес, использовать лучше твердые породы дерева, чтобы материал быстро не начал темнеть и трескаться.
Создаем декоративную скамейку
Чтобы лавочка послужила не только местом для отдыха, но и украшением вашего участка, рекомендуется комбинировать ее с цветниками.
Рассмотрим, как сделать такую лавочку со спинкой своими руками. Для самого простого варианта вам понадобится два прочных деревянных ящика. Они послужат не только опорой, но и емкостью для высадки цветов.
Между ящиками закрепляется сидение из шлифованных обработанных досок. Установите изделие возле стены дома. На стене закрепите несколько досок, которые послужат спинкой.
Вместо деревянных ящиков можно использовать бетонные тумбы, либо выложить опоры из кирпича, камня. Такое изделие имеет больший срок службы и выглядит более привлекательно.
Чертежи и размеры скамейки из металла своими руками
Особенности конструкции изделия зависят от индивидуальных требований и определяются на этапе проектирования. Профилированная труба довольно часто применяется для изготовления металлоконструкции лавки. Спинка и сиденье скамейки обшиваются планками из древесины.
На проектном этапе необходимо продумать особенности крепления деревянных планок и схему разделки заготовок профильной трубы. В зависимости от взаимного расположения элементов, торцы заготовок могут резаться под различными углами.
Разрабатывая эскиз, руководствуйтесь следующими рекомендациями:
- ширина опорной части скамейки должна быть в интервале 40–60 см;
- высота спинки 50 см над уровнем сиденья обеспечит достаточную площадь для опоры;
- расстояние от низа скамейки до опорных планок сиденья должно составлять 40–50 см.
Можно изготовить скамейку, имеющую спинку.

Чертёж содержит все необходимые размеры
Она более трудоёмка в изготовлении. Однако, присев на такую скамейку, можно максимально расслабиться и насладиться отдыхом.
Возможен вариант самостоятельного изготовления небольшой лавки. Изделие имеет традиционную конструкцию. Устройство опорного каркаса требует минимального количества материалов и отличается простотой.

Изделие отличается простотой конструкции
Скамейка из строительных блоков и брусков
Материал для садовых скамеек
Дерево, металл, камень, пластик, лоза – самые востребованные материалы для изготовления скамеек. Рассмотрим подробнее.
Древесина
Самый популярный материал. Во все века предметы из натурального дерева смотрелись стильно и дорого. Дерево особенно ценят за экологическую чистоту и длительный срок службы. Самая прочная древесина – тик. Ее использовали раньше при строительстве кораблей. Также спросом пользуются дуб, сосна, орешник.
Древесина часто используется при самостоятельном изготовлении садовых скамеек
Даже выполненные несколько грубовато, деревянные модели смотрятся весьма эффектно. Очень стильно дополняют ландшафт скамейки вокруг дерева. Особенно, если «основа» имеет толстый ствол и богатую крону. Так получается полноценная беседка.
Скамейки из металла
Популярность этого материала объясняется предельно просто – долговечность. И кованые скамейки с изящными вензелями, и легкие алюминиевые, и очень тяжелые чугунные модели прослужат вам долгие годы при правильном уходе. Например, алюминий, вопреки расхожему мнению, достаточно прочный материал. Скамейки, выполненные из этого металла, смотрятся очень эффектно.
Небольшой вес – несомненный плюс скамейки из алюминия
Чугунные скамейки часто можно увидеть в общественных местах, причем, некоторым из них уже более ста лет, хотя по внешнему виду так и не скажешь. Ажур кованых скамеек ни с чем не спутаешь. В сочетании с другими коваными элементами, они буквально преображают ваш загородный участок, наполняют его атмосферой стиля и красоты.
Скамейки из качественного чугуна отличаются прочностью и долговечностью
Кстати, не стоит думать, что кованые скамейки подходят только к английскому или французскому стилю. Модели выполняются разного размера и формы.
Камень
Каменные скамейки всегда выглядят монументально. Конечно, лучше, если такая модель будет установлена в просторном саду. И, несмотря на то, что они не очень удобны, все же пользуются неизменным спросом. Такие скамейки красноречиво свидетельствуют о статусе обладателей загородного дома.
Скамейка на гранитных опорах будет жить вечно, но стоит такая конструкция довольно дорого
Пластик
Мебель из этого материала появилась несколько десятилетий назад и стремительно завоевала популярность. Главное, за что ценят предметы из пластика – доступная цена и практичность. Например, можно не задумываясь оставлять на улице под дождем пластиковые лавочки, не переживая, что с ними что-нибудь случится. Кроме этого, вы без труда перенесете такую мебель в другой конец сада, ведь она практически ничего не весит.
Пластиковые скамейки не боятся воды, но выглядят дешево и впишутся далеко не в каждый ландшафт
Плетеные скамейки
Смотрятся необыкновенно стильно и уютно, но главный их недостаток – недолговечность, особенно это относится к изделиям из ивовых прутьев. Их используют только под навесом.
Мебель из ивовой лозы мила, воздушна и изящна
В последнее время появились оригинальные скамейки из ротанга. Этот материал намного прочнее ивы, и изделия из него служат гораздо дольше. «Недостатком» считается высокая стоимость такой мебели: ведь у нас ротанг не растет, а импортировать такие предметы повседневного обихода очень дорого. Но и в этой ситуации есть выход из положения – скамейки из хуларо (или синтетического ротанга). Материал изготавливается на основе каучука и имеет множество синтетических добавок, так что по прочности не уступает натуральному ротангу. Скамейки из хуларо очень удобны, а моют их, поливая прямо из шланга. Производители предлагают такие скамейки в разном цветовом исполнении, а также с разными рисунками плетения.
Мебель из ротанга значительно прочнее и надежнее ивовых изделий
Пожалуй, сложно представить себе загородный участок, на котором не было бы садовых скамеек. Ведь они нужны и для комфортного времяпрепровождения, и для создания целостной картины ландшафтного дизайна. Какую именно модель выбрать, решать только вам.
Выбор материалов для скамеек
При изготовлении металлической лавочки или ее каркаса, необходимы профильные трубы. Форма выбирается произвольной, сечение может быть прямоугольное или квадратное. Плоское очертание труб позволит без труда осуществить присоединение отдельных элементов конструкции. Более высокий показатель прочности у низколегированной и углеродистой стали.

Помимо профильных труб, также понадобится:
- краска, лак или любое другое финишное покрытие;
- антисептик;
- грунтовка;
- эмаль против ржавчины;
- саморезы;
- винты;
- деревянные бруски.
Расчеты материалов
Среднего размера скамейка потребует приобретения 12 м профильной трубы, сечение которой составит 30х30 мм. Если у изделия спинки не будет, то примерный список покупок будет выглядеть таким образом:
- По 2-3 м две заготовки, которые понадобятся для крепления опор и сиденья.
- По 45 см шесть отрезков для изготовления небольших фрагментов модели.
- По 60 см шесть элементов профиля для изготовления опор прямоугольной формы.
Деревянные заготовки также понадобятся. Среди них следует приобрести:
- Болты с плоскими шляпками (16х2 шт.).
- 8 брусочков с шириной в 6 см.

При условии оснащения лавочки спинкой, помимо приведенного выше перечня следует приобрести доски толщиной в 0,35-0,33 см и 8 м профильной трубы, с сечением 25х25 мм. Трубы будут использоваться для создания каркаса под будущую лавочку. А сама конструкция будет состоять из таких элементов:
- для спаивания двух опор понадобится две гнутые полосы металла длиной в 45 см;
- пятки под опоры (4 шт.) 40х40 мм, подойдут и обычные металлически пластины;
- для передних фиксаторов под опоры понадобится 2 металлических отрезка по 20 см;
- под передние опоры используются 2 металлических элемента по 40 см;
- для задних опор и спинки понадобится 2 гнутые детали по 80 см с размахом изгиба в 10 см;
- основание под сидение требует наличия двух отрезков по 35 см;
- между опорами будут размещаться поперечные перекладины – расстояние составит 1,5-1,55 м.

Для создания места для сидения под изделие со спинкой потребуется:
- болты и гайки с округлыми головками в количестве 50 шт.;
- деревянные заготовки по 1,7 м длиной (ширина 0,3-0,6 см);
- Доски в размере 3 шт. длиной 1,7 м, толщина которых составит 0,25 см, а ширина 0,6 см.
Какие инструменты нужны

Для изготовления лавочки или скамейки из профильной трубы понадобится:
- керном;
- маркеры;
- рулетка;
- наждачная бумага;
- машинка для шлифования;
- электрический лобзик;
- набор молотков;
- сварочный аппарат;
- набор электродов диаметров в 3мм и толщиной 2 мм;
- электрическая дрель;
- шлифовальная угловая машинка.
Трубогиб пригодится тем мастерам, которые приняли решение создавать конструкцию из изогнутых труб. Шаблон металлического закругленного профиля также пригодится. Для этого используется лист плотной фанеры, который позволяет изолировать отдельные элементы.
Изготовление скамеек: шесть несложных проектов
Никогда не прогадаете, выбрав для работы дерево – мягкий, податливый в обработке и одновременно прочный, способный служить не один десяток лет материал. Из древесины можно создать элементы различной формы и размера, фигурные вставки, объемные и миниатюрные детали.
Если возникают трудности с составлением эскиза, можно воспользоваться готовым чертежом садовой скамейки.
Все детали вырезаются согласно размерам на чертеже
Эта скамейка традиционна для городских парков, похожие экземпляры можно встретить на речных вокзалах, возле театров или торговых центров – в тех местах, где приходится проводить некоторое время в ожидании. Преимущество данного варианта – простота подготовки деталей и быстрота сборки. Для работы потребуются толстые брусья для опоры (3 большие и 3 поменьше), бруски или доски для сидения и спинки.
Цвет деталей можно изменить, используя пропитку или лак более темного оттенка
Данная модель является переносной – ее всегда можно переставить на другое, более удобное место. Чтобы она всегда стояла ровно и не качалась, при монтаже опор необходимо следить за точным расположением деталей – даже небольшое несоответствие вызовет перекос изделия.
Свежие записи
Сиреневые многолетники, которые красивы, компактны и не вытесняют другие растенияПочему при покупке саженцев не стоит верить продавцам на слово и как по 3 признакам самим определить возраст растенияРассада помидоров стала фиолетовой или белесой: почему изменился цвет и как спасти растения
В конце работы – а это касается любого изделия из древесины, находящегося на улице, – все деревянные части нужно обработать специальной пропиткой от плесени или покрыть лаком, также содержащим защитные компоненты. Обработанная древесина не поддается влаге, дольше служит и выглядит как новая в течение длительного времени.
Этот вариант более основательный, чем предыдущий. Скамья с прямоугольным сиденьем и такой же спинкой отлично смотрится на фоне дома, построенного из любого материала – дерева, кирпича, камня.
Схема сборки подлокотников и спинки скамейки в классическом стиле
Для разнообразия можно изменить цвет, подобрать оттенок, более близкий дачным постройкам. Спинка такой скамьи – настоящая находка для любителей пофантазировать и воплотить свои идеи в древесине. Прямые вертикальные бруски можно заменить планками, расположенными крест-накрест.
На такой скамье могут легко поместиться несколько человек
Верхняя горизонтальная перекладина неплохо бы смотрелась, если ее покрыть изящной резьбой или цветным орнаментом. Подлокотники и ножки также могут быть фигурными – но это все зависит от желания и умения мастера. Чтобы сделать такую скамейку для дачи, потребуется всего несколько вечеров, а наслаждаться отдыхом на ней можно не один год.
Садовый комплект для отдыха всей семьей состоит из удобного столика и двух зафиксированных скамей.
Удобный и практичный столик с парой скамеек пригодится на любой даче
Все крупные части (стол, лавочки) собираются по отдельности, а затем собираются в единое целое при помощи 4 нижних брусков – по 2 с каждой стороны.
Схема сборки всего комплекта
Стол представляет собой столешницу с ножками, установленными крест-накрест.
Схема сборки стола
Лавочки собираются легко, из брусков или досок различной длины.
Схема сборки лавочки
На последнем этапе сначала фиксируют скамейки – для придания конструкции устойчивости, затем – стол, ровно посередине.
Первоначальная сборка – соединение лавочек
Простой с виду, но удобный столик станет местом сбора семьи и друзей по вечерам – для общения, вечернего чаепития, отдыха.
Такой столик с лавочками можно разместить прямо на газоне




































