Соединение листов
Существует несколько способов соединения листов сотового поликарбоната между собой. Наиболее удобный путь состыковать 2 соседних листа — использование разъемного пластикового HCP профиля.
Разъемный HCP профиль
Нижняя половинка называется базой, а вторая крышкой. Эти профиля унивесальны и позволяют соедниять
листы от 6 до 16 мм толщиной.

На базу с двух сторон устанавливаются 2 листа и сверху место стыка прихлопывается крышкой. На рисунке можно видеть места фиксации в виде защелок. Сам профиль может висеть в воздухе, либо крепиться к несущей конструкции. Такое соединение значитеьно облегчает монтаж, потому что не нужно вставлять в поликарбонатный лист в паз профиля.
В частности производитель сотового поликарбоната Polygal рекомендует применять именно такие профили.
Термическая обработка
Способность гнуться, сохранять изгиб и не деформироваться при этом обеспечивается достаточным показателем текучести. При повышении температуры текучесть увеличивается в некоторой степени, то есть, листам можно придать не только изгиб, но и сложную форму. Обрабатывается и монолитный, и сотовый поликарбонат.
- Для полимера оптимальной температурой нагрева считается 150–190 С. Чтобы провести формовку дома, потребуется обустройство печи с нижним и верхним нагревательными ТЭНами.
- Листы предварительно просушиваются – помещаются в печь при температуре 115 С.
- Сушка продолжается около 2,5 часов. Материал сличается готовым, если после высушивания и нагревания образца до 200 С на нем не появляются пузыри.
- Для формования поликарбонат прогревается до 180–220 С, а затем укладывается на матрицы – шаблон формы.
- Листы нагреваются с обеих сторон.

В зависимости от особенности последней стадии формовки различают три вида.
- Вакуумное – листы, закрепленные на раме, прогреваются, затем укладываются в форму, откуда удаляется воздух. Вакуумная формовка редко используется в домашних условиях, так как требует дополнительного оборудования, и предназначена для получения тонкого сложного рельефа – посуда, маски, игрушки.
- Формовка давлением – в этом случае процесс просушивания можно игнорировать, а сразу нагревать материал до 200 С. Затем лист помещается в форму и под собственным весом принимает требуемый вид. Таким образом изготавливают простые сферические элементы своими руками.
- Механическое усилие – материал придавливается отрицательной частью матрицы.

Влияние радиуса изгиба на прозрачность поликарбоната
Радиус изгиба является одним из ключевых параметров, влияющих на прозрачность поликарбоната. Прозрачность материала зависит от того, как свет проходит через поверхность, и радиус изгиба может оказывать значительное влияние на этот процесс.
При изгибе поликарбоната с малым радиусом изгиба свет может неоднородно преломляться, что может привести к появлению оптических искажений и потере прозрачности материала. Это происходит из-за того, что при большом огибании поверхность поликарбоната подвергается большему напряжению и деформации.
Для достижения наилучшей прозрачности поликарбоната рекомендуется использовать большой радиус изгиба. Это позволяет снизить напряжение на поверхности материала и уменьшить влияние оптических искажений. Также, при большом радиусе изгиба поликарбонат сохраняет свою прочность и устойчивость к ударам, что делает его идеальным материалом для прозрачных конструкций, таких как ограждения, навесы и витрины.
Преимущества
Благодаря великолепным качествам, данный материал становится все более популярным. Его используют в разных сферах жизнедеятельности. Листы карбоната применяют при строительстве площадок для отдыха, крыши для малых построек, козырьков над балконами. Срок службы его более 10 лет. Поликарбонат – это прозрачный, легкий и прочный пластиковый материал. На даче из него строят теплицы и беседки, как показано на фото.
- Благодарясвоейструктуре, материалоченьпрочный, поэтомуоннашелприменениевразличныхсферахстроительства;
- Легкость. Пластиковыелистывнесколькоразлегчеобыкновенногостекла. Этодаетвозможностьработатьснимдаженавысоте;
- Материалпрозрачный. Монолитныйполикарбонат, пропускаетпочти90 % дневногосвета. Авотвторойвидэтогоизделия — сотовый, намногохужепропускаетсвет;
- Листыобладаютгибкостью. Ихможносогнутьподлюбымуглом, приэтомсоздаваяразныеформы;
- Нетребуетсложнойобработки. Изделиеможнорезатьиобрабатыватькраяподручнымиинструментами;
- Можетвыдержатьтемпературныйрежимот — 40градусовдо +120градусов. Этоещеоднодостоинстводанногоматериала: егоможноприменитьвовнутреннихчастяхздания, гдеимеетсявысокаятемпература;
- Непропускаетшумы.
На сегодняшний день существует два вида поликарбоната — это монолитный и сотовый. Они становятся очень популярными в современном строительстве. Чтобы понять, как можно согнуть листы, например, под прямым углом, сначала посмотрим, чем отличается один вид от другого.

Сотовый поликарбонат
Можно ли гнуть поликарбонат
Производить гибку монолитного поликарбоната можно, ведь этот полимерный пластик обладает множеством положительных характеристик:
- относительно небольшим весом;
- прозрачностью;
- высокой степенью гибкости;
- широким рабочим диапазоном температур (-40 до +120 градусов);
- высокими звукоизоляционными свойствами;
- поддается искривлению как в разогретом, так и в холодном состоянии;
- не вызывает сложностей в обработке;
- не образует сколов при нарушении целостности поверхности.
В отличие от стекла монолитные плиты по показателям прочности существенно превосходят его. Толщина листа составляет 2-20 мм. Если сравнивать с сотовым, то по весу монолит тяжелее, но и стоит он дороже. Чаще всего его применяют для обустройства городской инфраструктуры.
Листы сотового пластика более тонкие, их толщина варьируется в пределах 16-42 мм, они выделяются высокими показателями тепло- и шумоизоляции, хорошей прозрачностью. Учитывая, что на его изготовление расходуют меньше исходного сырья, себестоимость низкая. Благодаря таким качествам сотовый прозрачный пластик активно используется для перекрытия тепличных помещений, парников, навесов.
Преимущества
Благодаря великолепным качествам, данный материал становится все более популярным. Его используют в разных сферах жизнедеятельности. Листы карбоната применяют при строительстве площадок для отдыха, крыши для малых построек, козырьков над балконами. Срок службы его более 10 лет. Поликарбонат – это прозрачный, легкий и прочный пластиковый материал. На даче из него строят теплицы и беседки, как показано на фото.
- Благодарясвоейструктуре, материалоченьпрочный, поэтомуоннашелприменениевразличныхсферахстроительства;
- Легкость. Пластиковыелистывнесколькоразлегчеобыкновенногостекла. Этодаетвозможностьработатьснимдаженавысоте;
- Материалпрозрачный. Монолитныйполикарбонат, пропускаетпочти90 % дневногосвета. Авотвторойвидэтогоизделия — сотовый, намногохужепропускаетсвет;
- Листыобладаютгибкостью. Ихможносогнутьподлюбымуглом, приэтомсоздаваяразныеформы;
- Нетребуетсложнойобработки. Изделиеможнорезатьиобрабатыватькраяподручнымиинструментами;
- Можетвыдержатьтемпературныйрежимот — 40градусовдо +120градусов. Этоещеоднодостоинстводанногоматериала: егоможноприменитьвовнутреннихчастяхздания, гдеимеетсявысокаятемпература;
- Непропускаетшумы.
На сегодняшний день существует два вида поликарбоната — это монолитный и сотовый. Они становятся очень популярными в современном строительстве. Чтобы понять, как можно согнуть листы, например, под прямым углом, сначала посмотрим, чем отличается один вид от другого.
Минимальный радиус изгиба сотового поликарбоната
При изготовлении листов сотового пластика производители соблюдают определенные типовые нормы. Так, стандартные размеры ячеистого полимера составляют 2,1х6 либо 2,1х12 м, а монолитного – 2,05×3,05 м. Примечателен тот факт, что сотовый и литой лист отличаются показателями минимального градуса искривления, а также толщиной листов и весом. Чем меньше толщина синтетического материала, тем сильнее сгибается (скручивается) он. Загнуть монолитный поликарбонат можно в любом направлении – и вдоль, и поперек.
Во избежание повреждения синтетических панелей во время транспортировки необходимо не превышать ограничительный барьер при скручивании материала. Иначе вероятность того, что полимер лопнет, составляет почти 90%. Получаются следующие показатели:
- радиус изгиба поликарбоната толщиной 4 мм – 700 мм (можно разместить рулон в салоне автомобиля);
- радиус искривления синтетического материала толщиной 6 мм – 1050 мм (перевозка возможна уже на крыше автомобиля);
- радиус изгиба поликарбоната толщиной 8 мм – 1400 мм (можно транспортировать только на крыше авто, в прицепе, грузовом автомобиле);
- радиус изгиба поликарбоната толщиной 10 мм – 1750 мм (перевозка возможна на крыше авто, в прицепе, грузовом автомобиле);
- радиус искривления плит толщиной 16 мм – 3000 мм (транспортировать можно на грузовой машине и только в горизонтальном положении);
- радиус скручивания полимерных листов толщиной 20 мм – 4500;
- радиус сворачивания сотового изделия толщиной 25 мм – 5000;
- радиус искривления ячеистых листов толщиной 32 мм – 6400.
По большому счету по характеристике искривления монолитного полимера и ячеистого показатели очень схожи, но литой пластик скручивается лучше и в любую сторону. Но он проигрывает пустотелому материалу по весу, что накладывает определенные ограничения при использовании его в конкретных конструкциях и сооружениях.
Преимущества
Благодаря великолепным качествам, данный материал становится все более популярным. Его используют в разных сферах жизнедеятельности. Листы карбоната применяют при строительстве площадок для отдыха, крыши для малых построек, козырьков над балконами. Срок службы его более 10 лет. Поликарбонат – это прозрачный, легкий и прочный пластиковый материал. На даче из него строят теплицы и беседки, как показано на фото.
- Благодарясвоейструктуре, материалоченьпрочный, поэтомуоннашелприменениевразличныхсферахстроительства;
- Легкость. Пластиковыелистывнесколькоразлегчеобыкновенногостекла. Этодаетвозможностьработатьснимдаженавысоте;
- Материалпрозрачный. Монолитныйполикарбонат, пропускаетпочти90 % дневногосвета. Авотвторойвидэтогоизделия — сотовый, намногохужепропускаетсвет;
- Листыобладаютгибкостью. Ихможносогнутьподлюбымуглом, приэтомсоздаваяразныеформы;
- Нетребуетсложнойобработки. Изделиеможнорезатьиобрабатыватькраяподручнымиинструментами;
- Можетвыдержатьтемпературныйрежимот — 40градусовдо +120градусов. Этоещеоднодостоинстводанногоматериала: егоможноприменитьвовнутреннихчастяхздания, гдеимеетсявысокаятемпература;
- Непропускаетшумы.
На сегодняшний день существует два вида поликарбоната — это монолитный и сотовый. Они становятся очень популярными в современном строительстве. Чтобы понять, как можно согнуть листы, например, под прямым углом, сначала посмотрим, чем отличается один вид от другого.

Можно ли гнуть поликарбонат
Производить гибку монолитного поликарбоната можно, ведь этот полимерный пластик обладает множеством положительных характеристик:
- относительно небольшим весом;
- прозрачностью;
- высокой степенью гибкости;
- широким рабочим диапазоном температур (-40 до +120 градусов);
- высокими звукоизоляционными свойствами;
- поддается искривлению как в разогретом, так и в холодном состоянии;
- не вызывает сложностей в обработке;
- не образует сколов при нарушении целостности поверхности.
В отличие от стекла монолитные плиты по показателям прочности существенно превосходят его. Толщина листа составляет 2-20 мм. Если сравнивать с сотовым, то по весу монолит тяжелее, но и стоит он дороже. Чаще всего его применяют для обустройства городской инфраструктуры.
Листы сотового пластика более тонкие, их толщина варьируется в пределах 16-42 мм, они выделяются высокими показателями тепло- и шумоизоляции, хорошей прозрачностью. Учитывая, что на его изготовление расходуют меньше исходного сырья, себестоимость низкая. Благодаря таким качествам сотовый прозрачный пластик активно используется для перекрытия тепличных помещений, парников, навесов.
Монолитный поликарбонат в качестве кровли: точный расчет
Из монолитного поликарбоната получаются эффектные и надежные кровли для беседок и террас. Для односкатной и двухскатной крыши монолитный поликарбонат крайне рекомендовано ставить не менее 5 мм, и это при шаге стропил от 50 до 70 см. Если взять параметры поменьше, тогда снег сможет повредить крышу. Конечно, сам лист он не проломит, но рискует вырвать его из профилей и креплений.
Особой усиленной обрешетки под легкий поликарбонат не нужно, но учитывайте, что крыше также необходимо выдерживать снеговую нагрузку вашего региона. При этом стандартный профилированный поликарбонат сможет выдержать до 300 кг на 1 кв.метр.
Мы подготовили для вас специальные таблицы, которые помогут вам точно рассчитать возможную нагрузку на такие листы:
Потому на крышу беседки или террасы ставят все-таки 5-миллиметровый, но при этом регулярно счищают снег и не дают образовываться сосулькам на краях крыши. Ведь рассчитать запас прочности в таком случае не просто.
В принципе, если предпочесть монолитным сотовые листы, в плане нагрузки это ничего не решит. Ведь здесь играет роль не локальная прочность листа, когда снег падает на тот же козырек лавинообразно, а тот момент, что вес снега выдавливает лист из крепежных профилей и повреждает его при этом в тех местах, где находится крепление.
Если же речь идет об арочной крыше, для нее нужен поликарбонат толщиной от 4,6 до 8 мм. А вот в случае с плоской даже поликарбонат в 8-10 мм здесь не выдержит крепкой русской зимы с тоннами снега.
Сразу отговорим вас: если монолитный поликарбонат вам нужен для обустройства небольшой беседки ил навеса, все равно не берите слишком тонкий. От 2 до 5 мм он будет вгибаться и выгибаться от ветра.
Преимущества
Благодаря великолепным качествам, данный материал становится все более популярным. Его используют в разных сферах жизнедеятельности. Листы карбоната применяют при строительстве площадок для отдыха, крыши для малых построек, козырьков над балконами. Срок службы его более 10 лет. Поликарбонат – это прозрачный, легкий и прочный пластиковый материал. На даче из него строят теплицы и беседки, как показано на фото.
- Благодарясвоейструктуре, материалоченьпрочный, поэтомуоннашелприменениевразличныхсферахстроительства;
- Легкость. Пластиковыелистывнесколькоразлегчеобыкновенногостекла. Этодаетвозможностьработатьснимдаженавысоте;
- Материалпрозрачный. Монолитныйполикарбонат, пропускаетпочти90 % дневногосвета. Авотвторойвидэтогоизделия — сотовый, намногохужепропускаетсвет;
- Листыобладаютгибкостью. Ихможносогнутьподлюбымуглом, приэтомсоздаваяразныеформы;
- Нетребуетсложнойобработки. Изделиеможнорезатьиобрабатыватькраяподручнымиинструментами;
- Можетвыдержатьтемпературныйрежимот — 40градусовдо +120градусов. Этоещеоднодостоинстводанногоматериала: егоможноприменитьвовнутреннихчастяхздания, гдеимеетсявысокаятемпература;
- Непропускаетшумы.
На сегодняшний день существует два вида поликарбоната — это монолитный и сотовый. Они становятся очень популярными в современном строительстве. Чтобы понять, как можно согнуть листы, например, под прямым углом, сначала посмотрим, чем отличается один вид от другого.

Как сделать укрытие из поликарбоната своими руками
Самостоятельное изготовление любых навесов из поликарбоната, требует определенных навыков. Перед тем, как построить нужную конструкцию, место ее расположения тщательно вымеряется. Размеры всех деталей, высота крыши, шаг между отдельными профилями рассчитывается, исходя из погодных условий в регионе строительства – средним количеством выпадающего снега, скоростью ветра.

Навесы должны поддерживать общую дизайнерскую идею, гармонично сочетаться с имеющимися постройками.
Выбор места, разработка проекта с чертежами
После выбора места постройки, создается подробный проект сооружения со всеми размерами, указанием мест крепления шайб, схемой обрешетки и расположением соединительных профилей
Важно правильно спроектировать систему вентиляции – без нее под такой крышей будет слишком душно и влажно

Проект навеса из поликарбоната с размерами.
Стандартный чертеж навеса, предполагает наличие четырех и более опорных столбов, ограждения, обрешетки. На опорную конструкцию укладываются листы поликарбоната. Схему лучше сделать в трех видах: спереди, сбоку, сверху.
Подготовительные работы
В ходе подготовительных работ рассчитывается, приобретается нужное количество материала, элементы крепежа, инструменты (шуруповерт, дрель, уровень, циркулярная пила, строительный нож и др.). Если сооружается пристройка к зданию, нужно нанести разметку – отметив расположение козырька.

Обычно строят навес из поликарбоната во дворе дома. Поэтому возводить опоры нужно только с одной стороны, ведь с другой обычно капитальная стена.
Устройство фундамента с опорами, площадки для навеса
Фундамент обычно сооружается из кирпича, бетона. Саму площадку выравнивают, покрывают керамогранитом, половыми досками, заливают бетоном, оставляют кирпичной. После на закладные детали монтируются стойки будущего каркаса – их строгая вертикальность, перпендикулярность относительно фундамента постоянно проверяется при помощи уровня и отвеса. Когда опоры установлены, из бруса или металлических профилей создаются горизонтальные или наклонные балки, на которые будет крепиться поликарбонат.

Для крыши изогнутой формы нужно выбрать сотовый поликарбонат небольшой толщины. Он более гибок и податлив по сравнению с другими видами.
Укладка поликарбоната
Важно правильно расположить поликарбонатные листы, с учетом ребер жесткости конструкции и положения защитной пленки. Во время монтажа желательно избегать чрезмерного напряжения полимерного изделия, его скручивания, сгиба, других вариантов деформирования. При закручивании саморезов, монтировании креплений, важно следить, чтобы не образовались трещины, ведущие к деформации, разрушению конструкции
При закручивании саморезов, монтировании креплений, важно следить, чтобы не образовались трещины, ведущие к деформации, разрушению конструкции. Конструкция возводится при помощи опор, формы воплощают в себе все фантазии оборудующего владельца от простых до эксклюзивных дизайнерских решений

Конструкция возводится при помощи опор, формы воплощают в себе все фантазии оборудующего владельца от простых до эксклюзивных дизайнерских решений.
Режут полимерные листы прямо в защитной пленке – снимать ее разрешается только после готовности всего навеса. Панели монтируются защитными сторонами к солнцу, отверстия сверлят только между ребрами жесткости. Чтобы изделие вышло максимально герметичным, на нем не собиралась грязь, применяют уплотнители из силикона. Торцы рекомендуется оформить алюминиевой изоляцией, стыки всех деталей – специальными герметиками.
Декорирование постройки
Декоративные элементы навесной конструкции выбираются по своему усмотрению. Это кованые решетки, подвесные фонари, светодиодная лента или гирлянда. По краям сооружения подвешиваются кашпо с живыми ампельными растениями, крепятся ажурные резные элементы, если это предусмотрено стилистикой. Установка на площадке (широком крыльце) изящных лавочек, добавит сооружению комфорта.

Несмотря на светопропускающую способность, поликарбонат фильтрует и защищает от ультрафиолетового излучения.
H-образный профиль
Также для соединения сотовых плит используется более дешевый H-образный HP профиль, однако, этот способ более трудоемкий, особенно в арочных конструкциях. Дело в том, что при изгибе паз профиля уменьшается, что усложняет процесс состыковки HP профиля и листа. Профиль не крепится к несущей конструкции.

Вместо пластиковых профилей может применяться и алюминиевые системы крепления – профиль крышка 6-метровой длины с двумя продльными резинками и профиль-база той же длины с двумя резинками вдоль рейки.

Алюминиевый профиль-крышка для поликарбоната в разрезе
Часто алюминиевый профиль база не используется, а листы сотового поликарбоната прижимаются к каркасу через крышку. Если говорить о ценах, то разъемный пластиковый профиль стоит примерно в 2 раза дороже по сравнению с H-образным профилем. Цены на разъемный профиль крышка-база и на алюминиевый профиль крышка примерно равны.
Закрепление на несущем каркасе
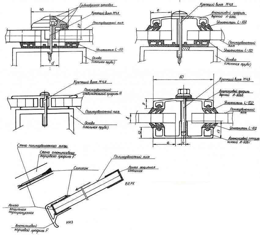
На несущую конструкцию сотовый поликарбонат крепится резинометаллическими спейсерами или поликарбоантными термошайбами с использованием саморезов. Например, для закрепления в металл листов толщиной от 4 до 8 мм подойдут саморезы длиной 32 мм и диаметром 6 мм и резинометаллические шайбы спейсеры. Длина самореза зависит от сечения несущего каркаса.

Отверстия в плите должны быть на 2-3 мм больше чем диаметр самого самореза. Разница будет служить в качестве теплового зазора. Также при загручивании саморезов нужно регулировать силу зажима и не допускать продавливания листа.
Сотовый
Это облегченный пластиковый материал. Изделие создано из 2-3 листов, соединенных специальными перемычками, как показано на фото. Между пластинами образуются особые пустоты.
1 кв. м. листа весит около 800 грамм.
И тот и другой вид данного материала больше похож на кровельное железо по свойствам. У поликарбоната достаточно прочности, чтобы при изгибе под углом он мог сопротивляться изменениям. Поликарбонат отличается от других пластмассовых и пластиковых материалов тем, что его можно согнуть даже в холодном виде. В то время, как другие материалы для сгиба под углом 90 градусов, нужно греть. Для работы с карбонатом обязательно нужно учитывать радиус изгиба в холодном состоянии, который допустим, согласно нормам. Такие данные вы сможете уточнить у продавца.
Для того, чтобы согнуть лист, нужно поместить его в тиски, после чего можно руками гнуть его под углом, как показано на фото. Благодаря прекрасным качествам, изделие без проблем гнется, и вы сможете придать ему нужную форму. Хорошая прочность карбоната даже под давлением не разрушает материал. Он не ломается и не дает трещины, остается ровным и таким же прочным.
Если вы работаете с сотовым изделием, знайте, что его можно изогнуть лишь вдоль сотовых ячеек, как показано на фото. Тем не менее, данные виды материалов нельзя согнуть на такой угол, как металлические листы. В этом случае не поможет уменьшить радиус изгиба даже нагревание изделия. Поэтому, нагревать карбонат для того, чтобы создать угол 90 градусов нет смысла.
Листы поликарбоната, которые обладают достаточно хорошими строительными качествами, часто применяют при изготовлении теплиц, козырьков и др.
Как крепить поликарбонат к металлическому каркасу
Если для фиксации выбран точечный способ, то проще всего выполнить крепление на отдельных секциях крыши до установки на металлический каркас. Таким способом собирают небольшие фрагменты теплиц или временных навесов.

Отдельные панели с уже установленными листами поликарбоната стыкуют быстросъемными муфтами или хомутами.

Как крепить сотовый поликарбонат к металлическому каркасу
Точеный способ крепления позволяет достаточно гибко подбирать места для установки саморезов. Обычно крепеж вворачивается в древесину обрешетки, но если каркас собран без подслоя, то можно использовать металлические хомуты из стальных или алюминиевых полос, как это делается при сборке ограждения
Важно, чтобы между кромками оставался зазор не менее 4 мм на каждый метр длины покрытия
Если остов крыши собран в виде плоских скатов, то более удобным будет использование специальной рейки. В первую очередь на каркас крепится монтажный профиль-рейка. Листы сотового поликарбоната фиксируются струбциной на металлических трубах, после этого закладывается и фиксируется саморезами прижимная планка.

Торцы сотового поликарбоната пришиваются к металлическому каркасу с помощью точечного крепежа. Потребуется лишь уложить дополнительную ленту прокладки под верхнюю и нижнюю кромку пластика. Разумеется, сотовый лист укладывается так, чтобы каналы располагались в продольном направлении относительно ската.
На верхнем торце сотового полотна наклеивается полимер-алюминиевая лента, по нижнему краю устанавливают заглушки с дренажными отверстиями конденсата. Один из вариантов монтажа поликарбоната на металлический каркас приведен на видео:
Как крепить монолитный поликарбонат к металлическому каркасу
Работать с литым поликарбонатным пластиком и сложнее, и проще. С одной стороны, монолитный карбонат очень прочный, и при правильной укладке жесткость металлического каркаса возрастает в разы. С другой стороны, материал легко царапается, и самое главное – монолит не прощает ошибок при подготовке металлического основания. Если сотовую панель можно подогнуть или поддавить креплением, то с монолитным полотном требуется максимальная точность, прежде всего, в выравнивании опорной поверхности.
Если нет опыта работы с литым поликарбонатным листом, то лучше всего использовать специализированный двухручьевой профиль. С его помощью можно закрепить пластик неограниченной толщины и ширины, как монолитный, так и сотовый материал.

Данный тип крепления монолитного поликарбоната к металлическому каркасу стоит недешево, поэтому применяется для литых пластиков или сотовых арок большой кривизны.
Конструктивно узел состоит из жесткого алюминиевого основания с приподнятыми боковыми кромками — полками. На кромках уложен П-образный металл-резиновый или силиконовый уплотнитель. Верхняя прижимная планка также оборудована ленточным уплотнением.
При креплении пластика кромки монолитного поликарбонатного листа фиксируются прижимом саморезом к нижней части профиля. При этом литое полотно сохраняет возможность отклоняться на несколько градусов относительно осевой линии кровли. Это решение обеспечивает герметичность стыка даже при избыточной нагрузке, но если смежные кромки двух листов уложены с разницей более 1 мм, обеспечить герметичность соединения не удастся.
Использование в конструкции соединительного профиля силикона и резины в значительной степени упрощает монтаж монолитного поликарбоната на металлический каркас и одновременно делает его уязвимым. Фирменные сорта уплотнителей хорошо противостоят солнечному ультрафиолету и выдерживают низкие температуры. Но даже в этом случае производители рекомендуют перед сборкой и в процессе последующего обслуживания обрабатывать резину силиконовым маслом в аэрозоле.

Сотовый материал из-за канальной структуры оказывается намного более пластичным, поэтому потеря упругости резины практически не влияет на прочность кровли, уложенной на металлический каркас.



































