Выбор подходящего проекта
Беседка возле бани под единой кровлей сильно меняет вид строения. Так же изменяются его функциональные способности. Поэтому перед составлением проекта следует изучить виды таких строений, которые имеют свои положительные стороны.

Закрытая беседка с баней
Закрытый тип – капитальная стройка, имеющая не только крышу и единый пол, но и стены, окна, панорамные вставки. При добавлении в данное строение камина, бассейна, строение переходит в раздел зимнего домика для отдыха, гостевого дома.
Баня с беседкой закрытого типа
Проект бани с беседкой составляется и таким образом: две стены являются съёмными для жаркого времени года. Таким образом веранда станет открытым вариантом. В это время как капитальные стены строятся со стороны постоянно дующих ветров. В капитальной стене устанавливается камин, шашлычная с печкой или же барбекю. Вместо снятых или отведенных, при разводной системе, стенах вешаются москитные сетки или же легкая ткань.
Баня с комфортным местом для отдыха на дачном участке
Полы в бане с прилегающей площадкой делаются из натурального дерева на лагах. Для этого приобретается лиственница, сосна.
Открытая прилегающая площадка с баней
Здесь беседка является лёгким строением, без стен. Открытая площадка с баней находится под общей крышей и имеет один пол. Крыша устанавливается на опоры. Это экономный вариант, не требующий больших затрат. Данная площадка предназначена только для отдыха в теплый период. Если же будет непогода с сильным ветром и дождем, тогда она станет непригодной для отдыха и времяпровождения. Однако можно между балками натянуть клеёнку, москитную сетку, ткань от насекомых. В светлое время суток ткань собирается красивыми воланами у опоры, держащей крышу.
Открыты площадка для отдыха под одной крышей с баней
Баня с беседкой, соединённая одной крышей
В основном крытый переход от бани к площадке для отдыха делается в нескольких случаях:
- Баня уже возведена.
- Участок позволяет сделать данные переходы и установить беседку недалеко от дани.
- Нет желания соединять беседку с баней, потому что не каждому гостю надо знать, что там за строение.
Переход делается на мелкоуглублённом фундаменте с армированием.

Сложность состоит в создании крыши
Поэтому особое внимание следует уделить стропам, чтобы не было протеканий. Крыша создается в несколько уровней, что является затратным. Она имеет множество углов и наклоны
Она имеет множество углов и наклоны
Размер бани 4 на 5 метров, при этом переход 1.5х2 метра, беседка имеет 6 граней по два с половиной метра. Возле беседки делается хранилище для дров
Она имеет множество углов и наклоны. Размер бани 4 на 5 метров, при этом переход 1.5х2 метра, беседка имеет 6 граней по два с половиной метра. Возле беседки делается хранилище для дров.
Баня с беседкой в восемь граней
Полностью обустроенная сауна со всеми необходимыми помещениями. Размер 5 на 9 метра. Стройматериал пеноблок, сверху штукатурка.

Внутри сауна обшивается лакированным деревом. Возле стены монтируется шашлычная, покрытие является двускатным с одной стороны, а восьмигранным с другой. Отдельного перехода в данном случае нет. Это уменьшает расход материалов.
Удлиненная двускатная крыша для объединения бани и беседки
Для этого используются оцилиндрованное дерево, стропы являются едиными. Строение выполняется по индивидуальным размерам. Крыша на беседке подпирается стойками.
Удлиненная двускатная крыша для объединения бани и беседки
В беседке устанавливается печь, что позволяет готовить различные блюда, а также очень удобно делать консервацию на зиму.
Односкатная крыша для сауны и беседки
Это простой вариант установки бани с беседкой под одну крышу. Такой вариант кровли позволяет упростить весь процесс строительства и сэкономить на стройматериалах, а также денежные средства.

Даже если размеры строения 2.6 на 2 метра, то это позволит поместить там всё необходимое: мангал, хранилище для дров и небольшой столик со стульями или креслами.
Баня и площадка для отдыха с мангалом
Проект бани с беседкой и барбекю – выгодное решение, если есть желание сделать площадку для принятия гостей, а также празднования каких-либо дат. К бане возможна пристройка не только беседки, но там же размещается и мангал. При этом беседка делится на функциональные зоны. В одной части идет приготовление блюд, в другой части беседки расположен столик с уютными креслами, диванами или же стульями.

Выбор кровельного материала
Подходящие решения:
- Рулонные материалы;
- Шифер;
- Битумная черепица.
Крышу бани и навес беседки следует надежно защитить от протечек и разрушающего влияния сильных ветров. Кровлю обычно делают твердой. Иногда реализовывают варианты с дерном и щепой. Многое зависит от природных условий: в ветреных местах наклон скатов должен составлять менее 45 градусов, при этом совсем малым этот показатель не делают — тоже из-за ветра. По этой же причине следует выбирать твердые материалы. В обстановке с минимальной ветровой нагрузкой часто кладут рулонное покрытие. Из рубероида, к примеру, делают плотный ковер в несколько слоев. Материал подходит для бань из легких стройматериалов. Чтобы монтировать кровлю не на металлическую обрешетку, а на деревянный настил, придется отказаться от металлопрофиля. Следует помнить, что твердое покрытие прослужит дольше, иногда в несколько раз. Металл лучше приспособлен для выдерживания снеговой массы.
Проекты угловых бань с беседкой
При выборе проекта, ориентируйтесь на расположение бани на участке
Если место под строительство отведено в углу, имеет смысл обратить внимание на проекты угловых бань
Проект угловой бани 6х6 м
Таким образом можно рациональней использовать пространство на участке. Кроме того, угловое расположение строения позволяет расширить площадь беседки или веранды, пристроенной к бане.
Проект угловой бани с террасой 7,6х10,7 м
Вот и все нюансы проектирования бань из бревна, которыми я хотел поделиться. После подготовки проекта вы можете рассчитать необходимый объем пиломатериалов и других материалов, которые потребуются в процессе строительства.
https://youtube.com/watch?v=A7prN5yT29U
Варианты использования совмещенной бани с беседкой
В целом вариант объединения бани с беседкой под одну крышу стал популярным в связи с тем, что такая постройка вариативна, предоставляет своему собственнику сразу же несколько вариантов по использованию этого здания.
Баню с беседкой можно использовать как:
- Дом-баню – лучше всего строить такую постройку еще при покупке земельного участка, после чего активно ее использовать. Эта постройка не нуждается в больших финансовых вложениях, но предоставляет своему хозяину почти полноценное жилье с комфортными условиями. Пока строиться основной дом, проводится его отделка, укладка фундамента и т.д., то можно спокойно жить и отдыхать в этой пристройке, ожидая сооружения большого частного дома.
- Гостевой домик. Гости – это всегда хорошо, ведь они дарят хорошее настроение, создают атмосферу и ощущение праздника. Родственники, друзья или иные гости могут подарить не только праздник, но и некоторое стеснение, дискомфорт. Данная постройка поможет справиться с ним, полностью исключив неудобство. Если предусмотреть здесь гостевые комнаты, то хозяева и гости будут жить отдельно, не стесняя при этом, друг друга.










Имея собственное жилье, каждый человек чувствует себя гораздо удобнее, комфортнее и раскрепощенное. Да, возможно оно маленькое, не совсем уютное и лишь временное, но здесь можно переждать этап стройки основного дом. Это еще одна причина, почему баня в стиле гостевого домика становится идеальным типом постройки, оценить функциональную нагрузку которого сполна практически невозможно.
Наличие на участке такой постройки сделает автономность гостей и собственников участка оптимальной, что особенно актуально в случаях, когда между хозяевами и гостями большая разница в возрасте. В этом случае одни хотят тишины и покоя, другие же, наоборот, в этот период времени любят шумно отдохнуть и погулять, при этом, не создавая дискомфорт другим. Сооружать на участке отдельный гостевой дом – дорого, не практично и неоправданно, так как такая постройка отнимет много свободного пространства.










Также нельзя забывать о том, что эта постройка в первую очередь является баней и лишь потом ее жилым продолжением, основной центр постройки – парная комната. В связи с этим все остальные помещения должны подстраиваться под нее, быть надежными и защищенными от перепадов температуры и излишней влаги. Нужно защитить жилые комнаты от возможной сырости, соорудить современную систему вентиляции.
Вариант гостевого домика с баней не используется круглогодично, поэтому нужно предусмотреть рациональную систему отопления, способную в кратчайшие сроки создать комфортные температурные условия для неожиданных гостей. Баня-дом должна иметь небольшую кухню и санузел, поэтому ее реализации сложнее и финансово не выгоднее в сравнении с «чистой» баней-беседкой.












Лучшие материалы для строительства бани и беседки под одной крышей
Традиционным материалом, идеально подходящим как для строительства бани, так и для обустройства беседки, считается натуральная древесина. Этот материал достаточно доступен, удобен в обработке и относительно недорогой по сравнению с другими.

Традиционно для строительства бани используют натуральную древесину
Изначально для строительства бани чаще всего использовали цельное бревно. Впоследствии на рынке появились и другие производные материалы древесины, которые стали использоваться при строительстве. С их помощью стало возможным существенно сократить бюджет на постройку без потери качества. Рассмотрим несколько наиболее распространенных из них:
- оцилиндрованное бревно – натуральный материал, который в первую очередь характеризуется своей универсальностью. Отличается высокой степенью унификации, поскольку изначально каждый элемент соответствует идеально заданным параметрам. Работать с этим материалом легко, а стоимость вполне соответствует всем имеющимся характеристикам;
- деревянный брус – материал, основой для которого также является древесина. Для его изготовления может быть использован один из двух способов: обработка цельного бревна или использование клеевого способа. Этот материал отлично подходит для строительства бани, универсален и удобен в процессе работы.
Для строительства бань используют не только древесину и производные из нее. Сегодня для этой цели все чаще применяют пеноблоки или кирпичи. Эти материалы отличаются по стоимости и способу монтажа, так что каждый владелец может подобрать подходящий для себя, ориентируясь на собственные возможности и желания.

Стоимость постройки из древесины значительно ниже, чем из камня или кирпича
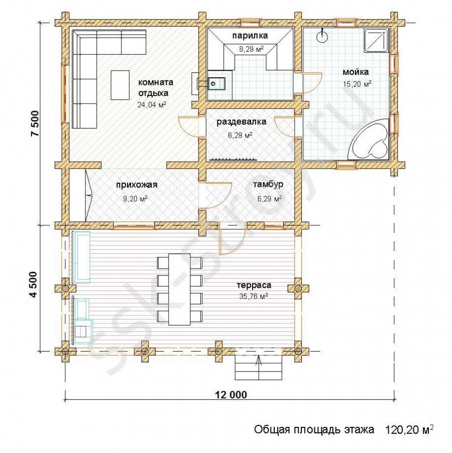
Различные варианты планировки бани с террасой и печью
Основные помещения комплекса для отдыха – предбанник, парная, помывочная (душевая), и просторная гостиная (зона отдыха). Планировка, размер и перечень комнат, терраса, а также форма крыши зависит от предпочтений хозяев.
Распространённый вариант – открытая терраса, вплотную примыкающая к предбаннику. В тёплое время года такие комплексы используются как летние кухни, на открытой территории размещается печь для барбекю, цветущие растения, мебель для отдыха. С наступлением зимы открытая площадка теряет свою функциональность.
Застеклённая веранда, дополняющая проект бани с беседкой, часто дополняется камином или печью. В итоге получается не просто баня вместе с дополнительным пространством – создаётся полноценная постройка для отдыха, размещения гостей для временного проживания в любой сезон.

Застеклённая веранда с печью, отделанной натуральным камнемИсточник nasha-besedka.ru
Варианты размещения веранды
Пристройка бани с зоной барбекю под одной крышей с основным помещением – более сложный технологически, но быстрый и экономичный вариант создания комплекса для отдыха. Чаще всего терраса имеет общую стену с баней, а также фундамент и крышу, возведение обеих построек происходит одновременно.
Видео описание
Пример одного из проектов на видео:
Стропильная система для бани с беседкой под удлинённой двускатной крышей
Стропильная система представляет собой соединения деревянных балок, на которые после постройки будет крепиться кровля (черепица, ондулин, металлический профиль). Оптимальный вариант кровли для бани с беседкой – двускатная крыша, обеспечивающая естественное стекание осадков, простая и удобная в монтаже.

Двускатная крыша перед установкой утеплителяИсточник megapolis-sc.ru
Стропила изготавливаются из досок шириной 50 мм и длиной до 150 мм, которые будут соединяться ригелями и затяжками, сделанными из досок 50х100 мм. Количество досок зависит от габаритов готовой постройки, стандартное расстояние между стропилами – 80 см. Нижнюю часть стропильной системы составляет мауэрлат – прочные доски, крепящиеся к верхним венцам (верхним частям стен) помещения бани.

Крепление стропил к мауэрлату: принципиальная схемаИсточник indeco.ru
Готовая стропильная система снабжается обрешёткой – тонкими досками, на которые и закрепляется кровельный материал.
Этапы строительства
Подготовительный этап состоит в исследовании грунта для определения глубины залегания фундамента. Кроме этого, необходимо закупить инструменты для работы с деревом и проведения измерений.
Выбор материалов для работы зависит от доступного бюджета, климатических условий и предпочтений хозяев. Традиционно, баня с беседкой и барбекю возводится из оцилиндрованного бревна, однако существуют варианты из кирпича и пеноблоков.

Баня из пеноблоков с печью и верандой в процессе строительстваИсточник 9ban.ru
Проектирование будущего комплекса включает выбор варианта размещения парилки, помывочной, предбанника и гостиной. Кроме этого, необходимо определиться с расположением бани с верандой: под одной крышей в качестве пристройки к помещению или возведённой отдельно.

Классическая баня с пристроенной открытой верандойИсточник remontik.org
После этого происходит закладка фундамента, возведение стен, кровли, подключение коммуникаций и отделочные работы. В зависимости от выбранного материала, отделку проводят сразу после завершения строительства (постройки из пеноблоков) или выжидая время на «усадку» (при использовании оцилиндрованного бревна).
Видео описание
Примеры проектов бань с беседкой под одной крышей на видео:
И как может выглядеть баня с беседкой под одной крышей, фото покажет наглядно:

Вариант постройки для владельцев просторных участков: обширная терраса, зона отдыха и печьИсточник rinnipool.ru

Оригинальная отделка бани искусственным камнем и открытая терраса – вариант для тёплого климатаИсточник banya-ili-sauna.ru

Типовой проект бани из оцилиндрованного бревна: просторная веранда и небольшое крыльцоИсточник nasha-besedka.ru

Баня из камня с круглой пристроенной беседкойИсточник womanadvice.ru

Банный комплекс из оцилиндрованного бревна с беседкойИсточник master-sruboff.ru

Баня с мансардой – традиционный вариант для базы отдыхаИсточник katalogturbaz.ru

Экономичный вариант для небольшого участкаИсточник remoo.ru
Интересные идеи для создания собственного проекта бани с беседкой под одной крышей
Несмотря на наличие большого количества разнообразных проектов, способных удовлетворить любые требования, строго придерживаться заданной планировки не обязательно. Допустимо проявить собственную фантазию, и с учетом имеющихся данных, разработать индивидуальный проект. Вот несколько интересных идей для этого:
- баню с беседкой можно совместить с дополнительными строениями, расположенными на участке. Например, отлично смотрится небольшой гостевой домик, который в летнее время станет автономной территорией, пригодной для жизни приезжающих друзей или родственников;
- беседку можно разделить на две зоны, каждая из которых может выполнять свою роль. Одна половина пространства может быть обустроена под столовую, а вторая использоваться в качестве поленницы. Конечно, такой вариант планировки подходит в том случае, если площадь, отведенная под беседку, имеет достаточно большие размеры;
- совсем не обязательно устанавливать барбекю непосредственно в самой беседке. Для этой цели можно присоединить еще один небольшой участок, над которым будет находиться навес. Так все необходимое будет расположено рядом, при этом экономя пространство.

Баня с застекленной беседкой
Проявив фантазию можно достичь куда больших результатов в создании проекта, идеально подходящего для имеющихся условий. Далеко не всегда типовые проекты могут соответствовать индивидуальным пожеланиям и особенностям территории, на которой будет расположено строение.
Обратите внимание! Если оборудовать беседку смежно с печью, то это позволит комфортно использовать все имеющееся пространство и в холодное время года. Однако, в этом случае стоит заранее продумать расположение всех предметов относительно друг друга
Все плюсы комбинации
- широкий функционал решения — можно использовать и в качестве бани, и в качестве площадки для летнего отдыха;
- единый стиль оформления — все элементы сооружения выполнены из одних материалов и визуально дополняют друг друга;
- серьезная экономия — объединение нескольких функциональных элементов под одной крышей позволяет снизить затраты на дорогие строительные материалы, по подсчетам специалистов экономия может составить от 15 до 30 процентов;
- повышенный комфорт — попарился в банке и сразу вышел на свежий воздух на беседку, а там еще и барбекю — разве не прелесть?;
- быстрое возведение — конечно, в итоге все будет сильно зависеть от ваших финансов и погодных условий, но в целом проекты такой бани реализуются куда быстрее, чем раздельные постройки;
- все для отдыха — всегда приятно знать, что у вас есть возможность избежать городской суеты и предаться максимальному релаксу в компании близких вам людей, коллег или друзей;
- 2 зоны отдыха — под крышей и снаружи, по сути, это позволяет вам свободно передвигаться по довольно просторной территории, что очень удобно, если собралась внушительная по численности компания.
Нет никаких сомнений, что такая баня — не просто перспективная, а очевидно выигрышная идея, но только при одном условии — если вы действительно продумали проект от начала до конца. А для этого нужно учесть и качество используемых материалов, и нюансы размещения помещений, и характер оформления отдельных элементов.
Это интересно: Электропечи для бани — особенности выбора
Виды парилок
В парилке на человека воздействуют сухой или влажный пар и высокая температура. Организм реагирует на это учащенным дыханием, усиленным потоотделением, активной работой всех органов. Именно поэтому после посещения бани возникает ощущение легкости, освобождения от накопившейся усталости.
Несмотря на общий принцип, лежащий в основе парных, в мире достаточное количество их разновидностей:
- Финская сауна — сухой разогрев камней осуществляется дровами, электрическими ТЭНами. Компактный вариант — инфракрасные излучатели, которые поднимают температуру поверхностей. После принятия процедуры переходят в помывочную.
- Традиционная русская парная — печь-каменка нагревается до высокой температуры при сжигании дров. Для увлажнения воздуха раскаленные камни периодически поливают водой, настоями трав, квасом. Для массажа используют березовые, можжевеловые, рябиновые, дубовые и даже бамбуковые веники. Подходят для этой цели травы и кустарники, богатые эфирными маслами.

Финская сауна — сухой разогрев камней осуществляется дровами
- Турецкий хаммам — тепло подается от нагретого трубопровода, проходящего в стенах по периметру помещения. Температура не превышает 55°, что комфортно для людей, плохо переносящих жару. Пар выделяется через специальные каналы на высоте 1,5 м. В отделке преобладают мрамор, натуральный камень и плитка.
- Японская баня — купель в виде бочки, наполненная нагретой до 45° водой с добавками эфирных масел, солей, вытяжек из трав. Человек сидит внутри на скамье на протяжении 15 мин, затем следует массаж и прогревание в емкости, наполненной смесью горячих опилок из кедра и гальки. Популярность таких парилок растет.

Традиционная русская парная

Современный Дизайн квартиры-студии. 150+ Фото Идей для интерьера
Особенности
В проектировании банного мини-комплекса с беседкой следует продумать соединения и распределение нагрузки. От фундамента зависит качество постройки и срок эксплуатации. Среди всех вариантов основания самым востребованным стало ленточное. Оно подходит и для маленьких, и для больших конструкций. Крышу строения делают легкой, ведь являющаяся беседкой часть здания слабо или вообще не выполняет несущую функцию. При этом не существует каких-либо ограничений в плане формы. Бани обычно строят из дерева или бруса, и во втором случае возможно самостоятельное возведение. В случае с деревянными строениями энергоэффективность повышать не обязательно. Важным моментом в планировании здания и помещений является расположение мебели и приспособлений внутри. Учитывая влияние влажного и теплого воздуха, понадобится хорошая вентиляция и гидроизоляция.
Типология
Как и веранды, беседки можно поделить на открытые и закрытые.
Первая разновидность имеет кровлю, но не стены, вместо которых у нее опоры крыши и легкое ограждение по периметру, часто символическое.
Вторые более основательны, имеют остекление и могут использоваться в непогоду и холодное время года, если имеется возможность их обогрева — переносными или стационарными обогревателями (печь для еды тоже обогреватель).

Проект бани с открытой беседкой. Фото Теплокрепость
Фундамент тоже может стать критерием различения: часть из них обходится без него, их опоры стоят на земле, часть все же ставится на хоть какой-то фундамент, часто столбчатый или винтовой, но массивная кирпичная постройка потребует и более основательного фундамента.
ВАЖНО! Необходимость в фундаменте определяется нагрузкой на грунт, то есть весом постройки и несущей способностью грунта. Мобильные и стационарные — первые допускают сборку и разборку, установку в нужном месте участка, вторые строятся без возможности разборки и перемещения
Мобильные и стационарные — первые допускают сборку и разборку, установку в нужном месте участка, вторые строятся без возможности разборки и перемещения.
По форме они тоже весьма разнообразны — прямоугольные и квадратные, в виде многогранников и круглые, а также в виде сектора круга (веер).
Материал для их построения тоже варьируется в широких пределах — от сварной металлической конструкции до кирпичного строения с остеклением, от легкого тента до бетонного купола. Годятся все материалы, которые используются при возведении зданий.
Стили также могут разниться от современных до классических, а также иметь характерные признаки того или иного национального стиля — китайские, к примеру.

Проект кирпичной бани с гаражом и беседкой. Фото Теплокрепость
Отдельно обозначим созданные для того, чтобы быть увитыми растениями — это либо перголы, либо обычные беседки с решетками для опоры вьющимся растениям. Их отличие в том, что тень или перегородка создается с помощью растительности, а не строительных материалов.
Пожарная безопасность
При возведении единого комплекса необходимо в первую очередь продумать комплекс мер по обеспечению пожарной безопасности при использовании в беседке открытого источника огня. Основными правилами обустройства должны стать:
- Размещение уличной печки в максимально закрытом от ветра месте. Обеспечить более ровное горение поможет и выведенный дымоход.
- Размещение источника огня подальше от выхода из предбанника. Такое решение обеспечит безопасный проход в оба помещения.
- Установление ширины беседки не менее 4 метров. Соблюдение этого условия позволит избежать задымления помещения и даст возможность беспрепятственно проходить к печке.

Красивые бани с беседкой фото-примеры оригинальных совмещенных построек
Баня, совмещенная с беседкой (фото представлены ниже) – максимально комфортное сооружение, которое выполняет сразу несколько функций. В зависимости от конструкции павильона, его можно превратить в обычную зону отдыха и приготовления пищи, в гостевой домик или летнюю кухню.
Об устройстве бани много сказано в других статьях, поэтому мы остановимся на планировках беседок. Это могут быть:
- Открытые конструкции (крыша бани образует навес) иногда такие конструкции называют бельведер – постройка без стен, с опорными стойками и крышей. Также открытыми беседками являются сооружения, с ажурными или плетеными боковыми перилами.
- Полуоткрытые– с одной или двух сторон присутствуют стены.
- Закрытые павильоны – полностью закрытые помещения, они могут быть оснащены панорамным остеклением, открывая рамы можно получить открытую или полуоткрытую конструкцию. При закрытых рамах беседка превращается в удобный гостевой домик или комнату отдыха.
Форма пристраиваемого павильона может быть различной, в зависимости от того, какую форму имеет баня, терраса впереди может быть квадратной, полукруглой, многоугольной, прямоугольной, сложной формы. Визуально оценить, как выглядит тот или иной проект бани с беседкой, фото реальных примеров поможет лучше всего.
Типы бань с беседками
Баня с беседкой может быть построена в разных вариантах. В качестве основных выделяют:
Открытого типа. Беседка исполняется так, что у нее и бани один пол и кровля, при этом для беседки сооружаются несущие конструкции, могут устанавливаться перила и бордюры.


Закрытого – единое здание, несущие стены строятся и для беседки, важным элементом будет остекленение. Рассматриваемый тип станет комфортным местом для расслабления и в холодные времена года. Баня с беседкой закрытого типа имеет монолитный вид.

Полуоткрытого или комбинированного типа. Вариация представляет собой компромисс предыдущих двух. Строят одну или несколько несущих стен, например, для защиты от ветра. В стену может быть встроен камин.

Данный тип может быть реализован и таким способом: строится закрытая беседка совместно с баней, при этом конструкция стен беседки позволяет при необходимости их убрать – задвинуть или отсоединить, превратив закрытую беседку в открытую. Удобно сделать этот вариант в виде бани с беседкой и барбекю.

Также беседки можно расположить в нескольких модификациях по отношению к самой бане.
Так, например, баня с беседкой под одной крышей имеет:
- одноуровневые крыша и пол;
- общую стену с крышей и полами на разных уровнях;
- два отдельных строения рядом, объединённые общим переходом.

Последний вариант представляется довольно оригинальным и функциональным решением, исключающим пагубное воздействие влаги на строй материалы.

Интересным вариантом будет пристройка к основному зданию бани беседки в форме шестигранника. В такой конструкции можно удобно разместить санузел, печь для готовки и т.д.

С формой строения можно поэкспериментировать, например, на просторах Интернета есть фото бани с беседкой в виде бочки.

Возможен и такой проект бани с беседкой, как двухэтажный вариант – надстройка второго этажа бани. Можно сделать помещение для дров и для барбекю. Эта вариация может использоваться и в качестве дачного домика или полноценного жилого помещения.

Можно также использовать такое строение в качестве дополнительной комнаты для гостей. При этом не нужно забывать, в чем основное предназначение бани. Поэтому основной комнатой должна оставаться парная. Остальные – приложением к ней.

Баня с беседкой: оцениваем преимущества
Лестница с красивыми перилами, балкончик, терраса или беседка не только добавят индивидуальности строению бани, но и значительно добавят ему функциональности. Со стороны баня с беседкой выглядят как очень просторная и большая беседка. Совмещенная постройка займет меньше места, чем два отдельных строения. Кроме того, не будет необходимости прокладывать садовые дорожки, чтобы соединить все строения на участке – это дополнительная экономия средств плюс высвобождение площади участка. Кроме экономии площади, имеются и другие преимущества совмещения бани с беседкой:
- дуэтная постройка будет оформлена в едином стилевом решении
- сокращение расходов на возведение за счет обустройства общей крыши, обвязки и стен, цельного фундамента. Кроме того, такое архитектурное решение обеспечит дополнительную прочность строению
- беседка летом может использоваться еще и как летняя кухня , при этом нет необходимости в прокладывании дополнительных коммуникаций и инженерных сетей
- в беседке можно установить мангал или печь для барбекю
- возможность продолжить отдых на воздухе, просто выйдя из раздевалки, но для этого надо грамотно подобрать место – оно должно быть достаточно хорошо укрыто от посторонних взглядов, обеспечивая достаточно приватности отдыхающим

Совмещение бани с беседкой имеет ряд преимуществ
Крышу для бани с беседкой обычно возводят в виде конверта, пол – приподнимают по уровню и выполняют из натуральной древесины (такой пол очень комфортный, по нему приятно ступать босыми ногами). Для устройства пола в беседке, совмещенной с баней, используют особую доску – террасную , которую укладывают с небольшими зазорами. Следует проследить, чтобы она была тщательно отполирована и не имела острых граней.
По варианту исполнения беседки подразделяют на три типа:
открытая беседка – такие сооружения имеют с баней общий пол и кровлю, а сама беседка имеет опоры, которые могут объединяться бордюрами или перилами, обозначая границы беседки. Это самый экономически выгодный вид беседки, поскольку нет необходимости в возведении капитальных стен и проведении остекления, с минимальными затратами можно получить достаточно большую площадку, защищенную крышей. Правда, открытая беседка не спасет от ветра и не очень эффективно укроет от дождя, так что такой вариант больше подойдет для сезонной бани

Баня с открытой беседкой
закрытая беседка – фактически, это уже капительное строение, со стенами и, как правило, большим остеклением. Если на такой веранде есть камин (мангал), то даже при минимальном утеплении она будет достаточно комфортна даже зимой, уже не говоря про весенне-осенний период. Закрытая веранда практически становится еще одним полноправным помещением бани. При этом зачастую проектом предусмотрено, что одна-две стенки делаются съемными (открывающимися), поэтому летом закрытая беседка легко преобразуется практически в открытую – получается достаточно универсальный вариант

Закрытая беседка, как еще одно полноправное помещение бани

Закрытая беседка с панорамным остеклением
полуоткрытая беседка – компромиссный вариант, при котором возводятся одна-две капитальных стены. Часто стены устанавливают со стороны господствующих ветров, чтобы чувствовать себя на веранде более комфортно и защищено. Еще вариант – стена возводится вместе с камином.

Полуоткрытая беседка, как компромиссный вариант
На рис. 1. приведен проект компактной бани с беседкой. Для дополнительной экономии площади бани и повышения пожаробезопасности, топка печи выведена на улицу. Окна в парной и помывочной небольшие – для сокращения теплопотерь. Привлекательно выглядит и полукруглая беседка.




































