Материалы и принципы изготовления
При самостоятельном изготовлении кормушки для коз необходимо придерживаться одного правила – чем проще, тем лучше. Простые кормушки проще мыть, они долговечнее, снижен риск травмировать животное.
Материал можно взять любой подходящий – обрезки труб, куски пиломатериалов, старые бочки. При проектировании необходимо учесть размер поголовья. Чем больше коз – тем крупнее должна быть кормушка.
Общий принцип расчёта размеров – все животные должны быть способны питаться одновременно, не мешая друг другу. Иначе более сильные особи будут оттеснять от еды более слабых, что приведет к похудению, ухудшению здоровья и уменьшению надоя последних.
Типовые размеры таковы: на козленка до полугода требуется 15-20 см длины, для взрослого животного от 30 до 40. Делать кормушку длиннее необходимого не нужно. Это приведет к ненужной трате материала и неэкономному расходу площади козлятника.
Необходимые инструменты
Поскольку самодельные кормушки изготавливаются из подручных материалов, то и инструмент нужен самый обычный, столярный:
- молоток,
- киянка,
- всевозможные ножовки по дереву и по металлу, стамеска,
- лобзик,
- рубанок.
Также может понадобиться рулетка для измерения длины и ширины материалов, маркер для разметки. Разумеется, необходимы будут гвозди, саморезы, дюбели, уголки и пр.
Научный опыт
На базе Ставропольского НИИЖК был проведен опыт по эффективности использования кормушек для коз различной конструкции. Работа преследовала выявление лучшей модели, а также изучение свойств кормушки, разработанной на базе этого научного института.
Было сформировано 3 группы маток, по 6 голов в каждой. Животные всех групп находились в одинаковых условиях, но кормление их осуществлялось из кормушек разных конструкций. Животные 1 группы поедали корма из экспериментальной навесной кормушки, входящей в комплект нового технологического оборудования для содержания коз, крепящейся в кормовом проходе на щитовом оборудовании. Матки 2 группы поедали сено из яслей для овец, расположенных посередине клетки, 3 группы – из двухсторонней металлической кормушки для коз старого образца, расположенной в центре клетки.
Рацион кормления животных всех групп был одинаковый и состоял из 2,0 кг сена и 300 г концентратов. Дача сена производилась в соответствии с утвержденным распорядком дня:
- утром — в 7 ч. 15 мин. – 1,0 кг/гол;
- вечером – в 16 ч. 45 мин. – 1,0 кг/гол.
Под каждую кормушку было постелено брезентовое полотно для удобства учета потерянных остатков. Остатки сена (потерянные и несъеденные в кормушках) учитывались ежедневно путем их взвешивания на электронном канторе два раза в день – до утреннего и вечернего кормления. На 3-й день эксперимента проводился учет затрат рабочего времени при раздаче сена в кормушки разных типов. При этом учитывалось время, затраченное на ручную раздачу сена утром, раздачу сена вечером, чистку кормушек от остатков. Поедаемость сена из кормушек разных конструкций представлена в таблице.
Поедаемость сена козами из кормушек разных конструкций и затраты времени при проведении технологических операций
| Показатели | Экспериментальная кормушка | Ясли | Классическая кормушка |
| Дано сена, кг | 12 | 12 | 12 |
| Потери сена + остаток в кормушках за сутки, кг | 3,32±0,92 | 2,89±0,61 | 3,22±0,12 |
| Фактически съедено за сутки, кг | 8,92±0,38 | 9,57±0,45 | 8,96±0,47 |
| Фактически съедено за сутки, кг | 8,92±0,38 | 9,57±0,45 | 8,96±0,47 |
| Время ручной заправки сена одной кормушки, с | 30 | 65 | 60 |
| Чистка кормушки от остатков корма, с | 20 | 90 | 95 |
В результате проведенного эксперимента установлено, что фактическая поедаемость козами сена из экспериментальной навесной кормушки составила 74,3%, из «классической» козьей кормушки – 74,6%, а из яслей – 79,8%. При этом время, затраченное работником на раздачу корма и очистку кормушки от несъедобных остатков, при обслуживании экспериментальной навесной кормушки было значительно ниже. Так, раздача сена происходила в 2 раза быстрее, а очистка кормушки — в 4,5 и 4,8 раза, по сравнению с другими вариантами кормушек.
Таким образом, испытание экспериментальной навесной кормушки, при скармливании сена молочным козам, показало, что по поедаемости и потерям сена кормушка не уступает существующим аналогам
Использование новой кормушки позволяет значительно снизить затраты труда, что особенно важно при интенсивной технологии в молочном козоводстве. Для уменьшения потерь сена из экспериментальной навесной кормушки предлагается уменьшить ширину ячеек фронтального щита, что требует проведения дополнительных экспериментальных исследований
Детская кроватка
Козы сочетают в себе две взаимоисключающих черты характера. Они очень неряшливы, но в то же время и чрезвычайно брезгливы. Во время еды животные часто роняют на пол сено, но ни в коем случае не поднимут его. Без специального приспособления большая часть кормов приходит в негодность, поэтому необходимо изготовить такое устройство, которое сведет к минимуму потери еды.
Прекрасным вариантом может стать старая детская кроватка. Следует внести несколько дополнительных штрихов и отличная кормушка под сено, корнеплоды и веточки будет готова.
Дно кроватки следует покрыть сеткой с мелкими ячейками. Выпавший корм останется на дне изделия и его можно будет использовать повторно.
Кроватки обычно снабжены колесиками, а это позволит перемещать кормушку по всей площади козлятника, а в теплое время года выкатывать во двор и подкармливать молодняк.
Опытные фермеры отмечают, что на свежем воздухе у козьего стада развивается хороший аппетит, так что передвижная конструкция станет идеальным вариантом для подкормки животных. Можно оснастить мобильную кормушку навесом на случай неожиданно начавшегося дождя.

Для загонов и стойла
Чаще всего в небольшом козлятнике встречаются кормушки на 1 или максимум 5 коз, но для фермерских хозяйств удобнее использовать рядовые ясли. Они располагаются в один длинный ряд, чаще всего под стенкой для экономии места. Но конструкция может быть и двухсторонней.
Оптимальный вариант для большого поголовья – откидные конструкции, благодаря которым упрощается процесс уборки хлева. Для строительства простой кормушки для стойла используются металлические трубы или древесина. Конструкции могут быть самые разнообразные.



Для летнего загона фермеры строят переносные конструкции. Их же потом устанавливают в зимний козлятник.

Главное в изготовлении всех моделей – создание основы-каркаса и перекладин/сетки.
Как переделать неудачные модели
Если расстояние между рейками в яслях очень большое, и сама конструкция расположена низко, коза может разбросать корм и испортить сеновал, что приведет к нерациональному использованию пищевых продуктов.
Переделать неудачные ясли очень просто:
- Приделать прочные ножки высотой 30-40 сантиметров, чтобы снизить риск переворачивания изделия.
- Приколотить больше реек, увеличив их частоту.
Такие мероприятия помогут сохранить до 30-35% терявшегося ранее корма.
В конструкции ячеечного типа коза может повернуть голову набок и застрять рогами. В результате такая неприятность может привести даже к удушью и смерти. Чтобы обеспечить безопасность скота, удобство для фермера, не занимать много площади, рекомендуют снизить глубину кормушки, увеличив ширину проемов.
Доски необходимо раздвинуть до расстояния, равного длине морды самого крупного животного из вашего стада. Это число должно быть равным расстоянию от кончика носа до края рога у самой массивной козы, к этому числу нужно прибавить 7-10%, чтобы оставить запас для большей уверенности. Для подстраховки рекомендуется заранее изучить все чертежи кормушки.

Основные критерии выбора кормушки
При проектировании различных приспособлений для кормления животных важно соблюдать некоторые требования, игнорирование которых приведет к снижению продуктивности. Прежде всего, любое изделие должно быть комфортным и безопасным, удобным в использовании и мытье, а также бюджетным и быстро изготавливаемым
Удобство и безопасность
Процесс кормления не должен представлять опасности для животных и персонала фермы
Важно обеспечить быстрое поступление кормов к животным, что позволит значительно сократить время на кормление всего поголовья – для таких целей хороши автокормушки
Самодельная автокормушка с зерном
Особенно часто кормушки с автоматической подачей устанавливают на крупных сельскохозяйственных фермах. Однако владельцы небольших подсобных хозяйств желают упростить себе жизнь и часто изготавливают современные варианты кормушек своими руками.
Независимо от разновидности кормушки, в ней не должно присутствовать:
- узких отверстий между прутьями, в которых может застрять голова животного;
- торчащих гвоздей, арматуры;
- других опасных острых предметов.
Желательно обеспечить каждой козе отдельное кормовое место — это поможет избежать конфликтов между особями, повысить их общую продуктивность.
Кормушка с фиксатором, не позволяющим козе просунуть голову слишком далеко
Простота изготовления
При изготовлении кормушки своими руками необходимо выбирать наиболее простую конструкцию. Оптимальным будет вариант, на который не придется затрачивать большое количество денежных средств и сил. При этом готовое изделие должно получиться надежным.
Важный момент! Опытные фермеры советуют выбирать изделия, которые можно будет легко очищать от загрязнений. Желательно отказаться от вариантов с несколькими проемами, крышкой (за исключением вариантов для травы).
Чем проще кормушка, тем проще ее чистить
Сохранность кормов
Большинство кормушек имеют простую конструкцию, но главным минусом является то, что из них часто высыпается корм. Он попадает на пол, а затем смешивается с подстилкой и загрязнениями, что влечет за собой потери для фермера и дискомфорт для животных. Козы – довольно чистоплотные и брезгливые существа, и никогда не станут употреблять такой корм.
Кормушка должна подходить по размеру к стандартному тюку сена
Именно поэтому козоводы стараются ставить кормушку в специальное корыто – так сено, любой веточный корм будет осыпаться в емкость. В это корыто можно насыпать и концентрированные корма, различные мешанки для коз.
Не стоит допускать того, чтобы козы могли спокойно проникать в свои кормушки и вытаптывать корм. Именно поэтому для них изготавливают конструкции высотой не ниже полутора метров.
Животные не должны иметь возможности вытаптывать корм
Козлята могут легко залазить в кормушку через узкие щели между прутьями. Именно поэтому для них предусматривают специальную конструкцию в виде ящика с замочными скважинами.
Кормушка для маленьких козлят
Ясельного типа
Пошаговая инструкция
Ясли для коз своими руками можно сделать из самого дешевого материала – деревянных реек или досок. На изготовление потребуется всего пара часов, а такая конструкция будет служить годами.
Изготовление состоит из следующих этапов:
- Сделать нижний каркас из более широких досок. Размеры каркаса определяются поголовьем. К нижней части необходимо присоединить ножки из брусков.
- Дно изготавливают из плотно прилегающих друг к другу досок и прибивают к основному каркасу. Лучше брать ДСП или деревянный щит, а не фанеру. Она применима как материал только в том случае, если ее толщина достигает семи миллиметров и больше.
- Верхний каркас и боковые рейки нужно соединить, хорошо спилив и затупив края гвоздей, чтобы животные не поранились.
Такая кормушка больше всего подходит для сена или слегка пожухшего разнотравья.

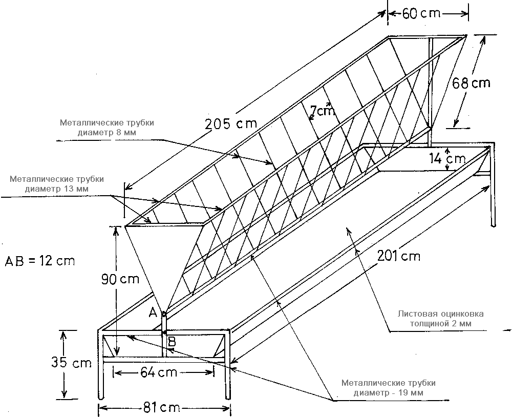
Из арматуры
Ясли из арматуры прослужат дольше деревянных, отличаются более высокой надежностью. К тому же капризные или непослушные козы не смогут перевернуть и сбросить со стены даже пустую кормушку из-за ее значительного веса. Однако для изготовления яслей такого типа необходимы элементарные навыки работы со сварочным аппаратом.
Пошаговая инструкция:
- Поддон изготавливается из листовой оцинковки толщиной два миллиметра – в него будет падать корм. Ножки для каркаса изготавливают из металлических прутьев 18-19 миллиметров в диаметре.
- Боковые стенки яслей в форме треугольников также можно выполнить из листа металла, размеры треугольника выбирают в зависимости от количества животных и предполагаемого объема пищи.
- Две верхние и одна нижняя рейки, образующие основу решетчатой части яслей, делают из металлических труб диаметром 12-13 миллиметров. Сами ячейки должны состоять из мягкой проволоки или арматуры толщиной не более восьми миллиметров.
Сваривать все элементы можно в любом порядке, однако часто рекомендуют «идти» в направлении снизу: скачала каркас, затем ножки, основа для решетки и сама решетка.

Классические кормушки
Они считаются самыми универсальными конструкциями, подходящими для использования самых разных кормов.
Нельзя использовать приспособление для неподходящего корма. Из кормушки ясельного типа зерно будет высыпаться, а в кормушке, выполненной как бункер, будет застревать сено.
Безопасность конструкции
Хозяину коз в первую очередь нужно позаботиться о безопасности кормушки. Необходимо учитывать следующие факторы:
голова должна беспрепятственно входить (и выходить) в отверстие конструкции;
вместе с тем, прорезь нельзя делать настолько широкой, чтобы животное могло просунуть в свободное пространство конечности или же полностью разместиться в кормушке;
от верхней и от нижней части прорези должно оставаться до 5 сантиметров с обеих сторон после того, как животное засунет в кормушку голову;
рассчитывать ширину отверстия нужно индивидуально
Важно учитывать, есть ли в стаде рогатые особи;
в случае совместного содержания козлят и маток, необходимо сделать проемы в два «этажа» — верхний для взрослых, а нижний — для молодых животных;
особое внимание следует уделить покрытию кормушки – не рекомендуется покраска или пропитка древесины. Козы могут грызть деревянные детали, а вместе с ними в желудок попадут кусочки лакокрасочных изделий;
устанавливать конструкцию следует в таком месте, где животные спокойно могут встать в ряд, и каждая особь получит доступ к пище.. Кормушка должна гарантировать 100% безопасность животных, удобство во время питания и не допускать потери или порчи корма
Кормушка должна гарантировать 100% безопасность животных, удобство во время питания и не допускать потери или порчи корма.
Материалами для изделия могут стать:
- куски труб;
- старые железные емкости;
- обрезки пиломатериалов.
Следующим моментом, требующим особого внимания, считается поголовье коз. Чем больше животных, тем масштабнее должна быть кормушка. Можно вместо одной крупной, изготовить несколько маленьких. В любом случае, особи должны питаться одновременно, не оттесняя друг друга. Недостаток места приведет к конфликтам: сильные животные будут отталкивать более слабых. Недополучая пищу, часть коз похудеет и уменьшат надой.
Стандартные размеры
Для каждой молодой особи полугодовалого возраста требуется до 20 сантиметров пространства при подходе к кормушке, для взрослых особей – от 30 до 40 сантиметров. Высота проема в кормушке должна быть более полуметра.
Каждое животное должно быть обеспечено собственным местом.
Пошаговая инструкция
Изготовление простейшего варианта кормушки займет всего несколько часов:
- Этап первый. Нужно сделать нижний каркас, размеры которого зависят от количества животных.
- Второй этап. Дно конструкции формируется из досок или толстой фанеры.
- Этап третий. Приколачиваются боковые рейки, а на них крепится верхний каркас.
Изделие необходимо проверить на прочность. Животные не должны иметь возможности опрокинуть даже пустую кормушку. В случае необходимости надо либо утяжелить кормушку, либо прикрепить конструкцию к стене козлятника.
Рекомендуется с помощью сварки быстро приварить каркас из железных труб или арматуры. Такая конструкция имеет несколько положительных качеств:
- срок службы изделия измеряется десятилетиями;
- кормушка настолько тяжелая, что животные не смогут ее перевернуть.
Правда, есть и недостатки – отдельные элементы конструкции сложно зачистить, а это сделать необходимо, чтобы животные не поранились, когда начнут кушать корм.
Варианты кормушек
Номер 1

Первый вариант кормушки для коз отличается своей практичностью. Его может сделать каждый человек, потратив при этом минимум сил и финансов. Также стоит отметить конструкционную простоту, позволяющую, не имея особых строительных знаний, сделать простое, но надёжное сооружение.
Главным конструкционным элементом кормушки, которую мы будем делать является простая детская кроватка. По факту, данный аксессуар — уже готовая кормушка.
Что такое кроватка для детей? Это деревянный короб с множеством прутьев. Последние будут идеально ограничивать доступ коз к еде. Подобный вариант кормушки идеально подходит для складирования сена и веточек деревьев.
Само собой, кормушку для коз из детской кроватки можно использовать и для корнеплодов, но для этого нужно будет кое-что дополнительно сделать. Закройте дно листом фанеры. Также можно использовать мелкоячеистую сетку. Но первый вариант всё же лучше.

Стоит признать, что кормушка для коз имеет ряд весомых преимуществ, помимо того, что её крайне просто сделать, к таковым относят:
- Мобильность конструкции. При необходимости вы сможете переместить конструкцию в любое место стойла. Для большего удобства к ножкам лучше приделать небольшие колёсики.
- В летнее время кормушку из кроватки можно без проблем выкатить во двор и сделать из неё таким образом главный источник для подкормки молодняка.
- При необходимости конструкцию можно дополнить второстепенными элементами. К примеру, на лето не помешает сделать навес, который будет защищать коз от дождя.
Как видите, кормушка для коз из детской кроватки удобна и практична, к тому же, чтобы её сделать понадобится не более 10—20 минут.
Номер 2

Главный недостаток предыдущего варианта кормушки для коз, заключается в том, что для его создания нужна детская кроватка. Вариант номер 2 лишён подобного недостатка. Просто сделайте всё по инструкции, приведённой ниже, и вскоре вы получите кормушку своей мечты.
Вначале выберите угол себе по вкусу. Здесь же прибейте две доски. Одна должна крепиться над другой (на полу). Поднимитесь на расстояние в 90 сантиметров и прибейте ещё одну доску. Таким образом вы сделаете каркас будущего сооружения.
Длина досок напрямую зависит от количества животных, которых вы будете содержать. Если в стаде более 5 особей лучше всего сделать две кормушки такого типа, в противном случае козам может быть тесно.
Штакетник прибивается так, чтобы образовалась решётка. После этого можете считать, что вы сделали кормушку для коз своими руками. В общем, на воплощение проекта в жизнь уходит порядка часа-полтора. При некоторой сноровке можно уложиться и в более узкий временной диапазон.
Обычно подобные резервуары для сена приходятся по душе животным. Объяснить подобный феномен непросто, но факт на лицо. Натуральный материал и удобное расположение в комнате станут залогом хорошего аппетита и быстрого роста ваших питомцев.
Номер 3

Чтобы воплотить данную задумку в жизнь, вам нужно будет запастись четырьмя деревянными брусками. Также нужно найти восемь длинных реек. Желательно, чтобы они были максимально тонкими.
В данной конструкции бруски сыграют роли углов. Рейки станут основной и основными элементами каркаса. В результате нехитрых манипуляций у вас получится конструкция в форме прямоугольника.
Рейки нужно прибить к брускам. Причём прибивать нужно как к верхней, так и к нижней части. Свободное пространство закрывается мелкоячеистой металлической сеткой. Дно делается из листов фанеры. Также для этой цели вполне подойдёт ДВП.

Габариты конструкции зависят от размеров поголовья. Немалую роль играет само помещение. В маленькой комнатке делать огромный резервуар для корма просто не рентабельно.
Номер 4

Для создания конструкции такого типа вам понадобятся следующие элементы:
- Два листа ДВП 70х80.
- Три листа 60х150.
- Два деревянных бруска.

При необходимости ДВП можно заменить простой фанерой. Перед началом работы не помешает сделать чертёж. В самой конструкции бруски прибиваются к листу на полтора метра. Таким образом вы сделаете пол.
Для сооружения кормушки можно использовать и доски, сделав в них соответствующие выемки и приколотив к несущим брускам

После нужно прибить к торцам листы поменьше. В результате вы получите боковые стенки. В двух последних листах из вашего комплекта нужно будет прорезать окошки. Через них животные будут доставать еду.

Три вида кормушек с размерами для грубых и комбинированных кормов для коз показаны на рисунке ниже

Требования к кормушкам
Сохранность корма
Некоторые модели кормушек неспособны крепко удержать пищу, из-за чего она падает на пол и смешивается с навозом. В этом случае козы не станут поднимать даже свои любимые лакомства. Поэтому можно поставить под кормушку чистое корыто: в него будет падать корм, и туда же есть смысл засыпать комбикорма и концентраты. Такая двухуровневая кормушка очень экономит место в хлеву.
Нужно защищать конструкцию так, чтобы коза не залезала в кормушку с ногами и не выбрасывала из нее еду. Поэтому необходимо делать щели в корпусе, которые позволят животным только просунуть голову. Для взрослых особей можно размещать «столовую» на высоте около 1,3-1,5 метров. Такой вариант неприемлем для козлят: невысокие «детские» кормушки должны оборудоваться мелкими отверстиями.

Простота конструкции
Негласный закон техники: чем сложнее устройство, тем быстрее оно сломается. Как ни странно, это правило применимо и для обустройства козьего сарая. Кормушка должна быть простой, чтобы обеспечивать низкую трудоемкость при изготовлении, простоту эксплуатации и чистки, удобство для животных.
При этом простая конструкция более надежна, поэтому не придется тратить время или средства на ремонт уже существующего инвентаря. Самый доступный и эргономичный вариант – подвесные ясли. В этом случае козы будут зубами доставать солому или сено, почти не контактируя мордой с основной массой пищи.

Безопасность
Обеспечение безопасности скоту – самое важное требование при обустройстве хлева. Животное не должно застревать между прутьями, царапаться или ударяться об острые углы конструкции
В некоторых случаях коза может даже задохнуться в тесном отверстии, поэтому очень важно изготовить кормушку правильных размеров.
Каждое животное должно иметь свое место для кормежки, чтобы не возникали конфликты, а прием пищи осуществлялся одновременно. На крупных фермах оснащение большими сенниками затруднено, поэтому нужно стремиться к соотношению: на 100 голов соорудить 78 кормомест.
Также необходимо предусмотреть безопасность для человека при чистке и эксплуатации кормушек. Нельзя допускать торчащих гвоздей, обломков арматуры или крупных щепок, о которые можно пораниться. Размеры «столовой» должны позволять размещать тюки или рулоны сена целиком, чтобы свести к минимуму усилия и экономить время на обслуживание сарая. Особенно это актуально для крупных ферм, где в ряде случаев приходится вводить полную механизацию обслуживающих процессов.

Необходимые инструменты
Поскольку самодельные кормушки изготавливаются из подручных материалов, то и инструмент нужен самый обычный, столярный:
- молоток;
- киянка;
- всевозможные ножовки по дереву и по металлу;
- стамеска;
- лобзик;
- рубанок.
Также может понадобиться рулетка для измерения длины и ширины материалов, маркер для разметки. Разумеется, необходимы будут гвозди, саморезы, дюбели, уголки и пр. Если пищевую ёмкость будет необходимо покрасить или залакировать, то понадобятся кисти и лакокрасочные смеси. Но обычно этого делать не рекомендуется. Иногда в процессе создания кормушки может понадобиться сетка-рабица для перегородок, тогда пригодятся плоскогубцы и кусачки по металлу.Знаете ли вы? Козье молоко ещё в начале ХХ века было признано лучшим заменителем грудного молока. Также оно содержит иммуноглобулины, помогающие бороться с болезнями, даже с туберкулёзом.
Технология изготовления
Чтобы создать кормушку необязательно быть профессиональным плотником и обладать многими строительными навыками. Но всё-таки некоторые базовые умения не помешают.
Перед тем как приступить к работе нужно определиться с типом конструкции и чертежами.
Для маленьких козлят
Если вы собираетесь обустроить место кормления для маленьких козлят, то лучшим решением станет пластиковая или металлическая бочка.
Для изготовления нужно взять:
- ПВХ бочку объёмом 100 литров.
- Ножовку по металлу.
- Кладочную сетку с размером ячейки в 10 сантиметров — 2×1 м.
- Маркер и рулетки для разметки.
Бочку необходимо разметить на две равные части поперек окружности
Затем нужно отступить по 20 сантиметров от крышки и дна, проделав на боковой поверхности радиальные отметки на половину ёмкости (важно, чтобы они были диаметрально противоположными сверху и снизу). В итоге требуется распилить ножовкой конструкцию, чтобы из бочки получилось две кормушки
Многофункциональные ясли
Ещё одна модель будет актуальной для сарая. Она представляет собой многофункциональные ясли для коз. Своими руками такую конструкцию изготовить очень просто. Необходимо закрепить на деревянной раме сетку рабицу, которую затем прикрепляют к стене для создания самого простого варианта яслей, куда вскоре можно будет укладывать солому или сено. Чтобы снизить количество отходов, достаточно поставить ящик под кормушку.
Простой деревянный вариант
Чтобы реализовать такую задумку достаточно взять четыре деревянных бруска, а также восемь длинных реек
Важно выбирать самые тонкие изделия
Бруски выполняют роль угловых элементов, а рейки используются в качестве основы и ключевых элементов каркаса. Подобные нехитрые манипуляции позволят получить красивую прямоугольную конструкцию.
Рейки прибиваются к брускам, при этом прибывают их как к верхней, так и к нижней части. Свободное место закрывают мелкоячеистой металлической сеткой. Дно кормушки делают из фанеры или качественного ДВП.
Размеры конструкции определяются размерами поголовья. Немалую роль играет и само помещение. В маленькой комнатке использовать большие резервуары нецелесообразно.
Главный недостаток подобной конструкции заключается в том, что козы без труда могут перепрыгнуть через бортик.
Особые модели
Если вы выращиваете взрослых коз, то кормушка для козы своими руками (чертежи и схемы можно найти в интернете) должна быть более крупной. Однако если в поголовье присутствуют козлята, то им не тяжело будет пролезть через промежуток в 15−20 сантиметров, поэтому необходимо учесть эту особенность.
Однако можно попытаться модифицировать имеющийся вариант, правильно обустроив ясли. Для этого следует взять широкие доски 20 сантиметров или 2 по 10. С их помощью следует заместить старые рейки с промежутком в 10 сантиметров.
Дальше потребуется сделать вырез в верхней части, расширив проёмы для взрослых особей. По каждой стороне вырезаются ещё по 5 сантиметров на высоту 30−40 сантиметров от верхней планки. Это позволит козам с лёгкостью просунуть голову в верхнее окошко, опустив шею через узкую щель в 10 сантиметров. Однако молодняку через такие проёмы пробраться будет проблематично.
Для козы с козлятами
Чтобы одновременно кормить и коз, и козлят сеном, специалисты придумали универсальные ясли с перекладинами из сплошных досок, в которых вырезаны неравномерные отверстия – нижняя щель предназначена для малышей, верхняя – мам.

Но есть и другие варианты, которые желательно ставить в козлятнике с козлятами.

Бокс для сушки и гранул
После родов самка требует усиленного питания, как и сами козлята, поэтому необходимо кормить гранулированными и рублеными кормами. Такой короб можно построить самостоятельно. Что для этого надо – фанера, прозрачный пластик/оргстекло, крепёжные материалы.
Схема:

Процесс строительства включает такие этапы:
- Вырежьте из фанерного листа 2 боковые стенки, переднюю, днище и крышку.
- Заднюю стенку сделайте из оргстекла.
- Соедините все детали бокса в один каркас так, чтобы передний элемент находился под углом в 45°.

Металлический раздатчик
Существует оптимальный вариант раздаточных кормушек из металла – стальной конусообразный. Он может быть переносным или навесным.

Этапы изготовления:
- Приварите сварочным аппаратом 4 стальных листа – 2 по ширине, 2 по длине, но так, чтобы получился конус. В нижней части оставьте щель для подачи сена или другого корма. Учтите, что продукты не должны застревать в разрезе и слишком сильно пересыпаться. Поэтому угол соединения с 2-х сторон составляет от 15 до 18°.
- Изготовьте поддон с ножками.
- К нему приварите раздатчик.
Козоводы советуют с одной стороны раздатчика сделать решётчатую стенку, благодаря которой лакомиться сеном сможет и мать-коза.
Для каких коз потребуется построить кормушку?
В деревенских хозяйствах и на фермах коз держат из-за полезных для человека качеств. Все виды животных делятся на четыре категории:
- производящие молоко;
- дающие как молочные продукты, так и мясо;
- мясные;
- породы, разводимые для получения шерсти и пуха.
В России, в Украине и Белоруссии особой популярностью пользуются именно те породы, которые дают максимальное количество молока. Не менее популярны и пуховые виды, ведь знаменитый оренбургский платок – изделие из козьего пуха.
А вот на Ближнем Востоке, в Средней Азии и в Африке больше популярны породы, дающие мясо и шерсть.
Молочные животные
Самки этого вида характеризуются объемным выменем и коротким шерстяным покровом. Наиболее продуктивными считаются козы:
- молочной русской породы;
- тоггенбургской;
- менгрельской;
- нубийской;
- валлийской;
- камерунской породы.
Мясные виды
У этих коз масса тела намного больше, чем у особей других видов. К примеру, самец мясной породы может весить до 1,5 центнера. Практически все молоко маток этих пород идет на вскармливание молодняка. У них короткая и жесткая шерсть. Бывают как безрогие виды, так и представители с массивными, крепкими рогами.
Среди мясных выделяют следующие виды:
- бурская;
- греческая;
- бенгальская порода;
- шанси.
Молочно-мясные породы
Содержать таких животных одинаково выгодно с финансовой точки зрения для получения как мясной, так и молочной продукции. К самым популярным следует отнести породы:
- нубийская;
- камерунская;
- сирийская;
- кико;
- немецкая пестрая;
- англо-нубийская;
- калахари и др.
Подобные породы в России встречаются на отдельных фермах или крестьянских хозяйствах. Промышленного распространения эти виды в стране не получили.
Козы, дающие шерсть и пух
К группе животных, выдающих большое количество шерсти, относятся следующие виды:
- оренбургский;
- горно-алтайский;
- таджикский;
- придонский;
- ангорский;
- советский шерстяной;
- мараш.
Все они имеют качественную и прочную шерсть.
К пуховым относятся такие виды:
- кашмирский;
- камерунский карликовый;
- волгоградский;
- киргизский;
- туркменский;
- уулын бор.
После того как оренбургский платок из шерсти коз завоевал популярность в Европе, французские селекционеры закупили в России местных коз и попытались получить такой же прочный и нежный пух. Однако попытка не увенчалась успехом. Секрет тончайшего пуха лежал в суровых морозных уральских зимах и рационе питания уральских коз. Пух был необходим животным для сохранения тепла, а умеренный климат европейской страны этому никак не способствовал. Во Франции российские козочки переродились и превратились в обычных животных с грубым пухом.
Французы, в XVIII-XIX веках были вынуждены импортировать несколько тысяч тонн оренбургского пуха, который у них ценился выше кашмирского. В Западную Европу по сей день осуществляется импорт оренбургского пуха.
Все перечисленные породы коз нуждаются в удобной и качественной кормушке. Ее можно изготовить самостоятельно, следуя подробным инструкциям.
https://youtube.com/watch?v=E0Gv772WSLM
Основные виды кормушек и требования к ним

Соблюдение безопасности – основное требование при изготовлении кормушек. Нужно подумать, как правильно сделать, чтобы козы не получили травм:
- животные не должны пролазить в кормушки;
- не должно быть торчащих прутьев, гвоздей или других частей, способных нанести увечья;
- козы могут застрять;
- краски и другие покрытия должны быть безопасными.
Чем проще конструкция кормушки, тем лучше. Это правило нужно учитывать и при строительстве, и при будущей эксплуатации. Сделать кормушку можно из любых подручных материалов – доски, старые бочки, металлические трубы. Но вам следует продумать, какой тип корма вы будете использовать. Если у вас большое поголовье, то целесообразно применять кормушки под хорошие объемы – рулоны на 400-600 кг. Для их закладывания используются специальные погрузчики. В загонах устанавливаются специальные цилиндрические кормушки под размер рулона, процесс дачи корма для огромного поголовья составляет минуты.
В маленьком хозяйстве лучше использовать тюки по 20-30 кг или рассыпное сено. В таком случае вам подойдет любой тип навесных кормушек или стоячих бункерных
Важно, используя корм в тюках, удалять веревки, так как козы их часто поедают, что ведет к закупорке
Неправильный тип кормушки не позволит сэкономить на кормах. Если не поместить под ясли корыто, то будет большая потеря сена и веток, которые затаптываются животными, смешиваются с навозом. Также в это корыто задается комбикорм, корнеплоды, мешанки, зерно. Что позволяет экономить на площади и числе кормушек.
Любой тип кормушек должен иметь оградку из жердей. Промежуток между ними позволяет просунуть голову козе, чтобы взять корм, но предупреждает проникновение самого животного. Если вместе с дойными животными содержатся козлята, то щели должны быть различной ширины – делаются окошки с промежутком в 20 см на высоте 60 см от пола, а ниже опускается прорезь в 10 см. Молодняк может просунуть голову в маленькую прорезь, а взрослая коза сначала сует голову в окошко, а затем опускает ее ниже.


































