Как выбрать?

- Материал. Корпус изготовляют из материалов с высокими показателями жароустойчивости. Предпочтительна сталь толщиной не менее 2 мм. Для повышения устойчивости к ржавлению внешнюю сторону обрабатывают термостойкой краской. Высокая стоимость нивелируется длительным сроком эксплуатации.
- Конструкция. Максимально простая. Это облегчит обслуживание и не создаст лишних проблем. Предпочтительны модели со съёмным дном. Решение упростит очистку от грязи. Выбирают крышку с деревянной ручкой. Решение минимизирует риски получения ожогов при добавлении древесины.
- Как реализована подача дыма в камеру. Выделяют модели с верхним и нижним размещением эжектора. Предпочтительны модели первого типа.
- Автономность. Любители активного отдыха часто берут в походы, на рыбалку и охоту дымогенератор. Для них востребованы компактные модели с ручным розжигом. Они без труда поместятся в рюкзаке или сумке.
- Производительность. Характеристика влияет на максимальный допустимый размер коптильного шкафа, который можно подключить к устройству. Востребованы модели с возможностью изменения объёма дыма. Они универсальные и совместимы со многими емкостями.
- Комплектация. В наборе с генератором должны быть: трубка из термоустойчивого материала (силикон), болты для крепления, трафареты и зажигалка. Это избавит от хлопот, связанных с поиском дополнительных деталей. Наличие информативной инструкции и брошюры с несколькими рецептами станет дополнительным преимуществом.
Создание оборудования для копчения
Если есть аппарат для сварки, навыки работы с ним, при наличии металлических компонентов и желания такое оборудование изготавливается за несколько часов. Для начала нужно найти чертежи дымогенератора для холодного копчения. Своими руками их можно не разрабатывать, а отыскать оптимальные варианты с помощью интернета.
Укрупненно этот агрегат состоит из таких компонентов:
- Тепловой модуль.
- Топливо (уголь, газ, дрова, но чаще всего щепа и опилки).
- Система дымоотвода и подачи в камеру копчения.
Для создания тяги сверху компрессором нагнетается воздух. Подойдёт старый холодильный либо от аквариума. Второй предпочтительнее из-за возможности регулировки воздушного потока. Выходящий дым невысокой температуры. В результате тления открытого огня нет, поэтому не требуется частое добавление новой порции горючего.
Материалы для изготовления
Удешевление генератора возможно за счёт имеющихся обрезков различных металлических изделий. Всего потребуется несколько деталей:
- Труба круглая. Длина её около 1 метра, диаметр 80 — 0 миллиметров. От размеров этого компонента зависит, сколько топлива уберётся в устройство и какое время пройдёт до закладки следующей порции. Здесь нужно прийти к компромиссу между массой генератора и возможностью удобного обслуживания с максимальной производительностью.
- Труба квадратного сечения с длиной стороны не менее 80 миллиметров.
- Трёхчетвертная труба от 30 сантиметров.
- Труба в одну четверть дюйма произвольного размера.
- Сетка или пластина с ячеёй 2—3 миллиметра.
- Арматура для ножек. Подойдёт любой пруток или пластина. Главное, чтобы аппарат устойчиво стоял на поверхности.
- Компрессор производительностью полтора- два литра. Коррекция выхода воздуха предпочтительна.
- Штуцеры для стыковки труб.
Этапы сборки
Если для изготовления дымогенератора своими руками для коптильни найти круглую трубу не получится, её можно заменить квадратной аналогичного размера. Такой вариант имеет небольшое преимущество в удобстве присоединения отходящих каналов. В самой большой трубе делаются прорези по диаметру на расстоянии двух сантиметров. Это будет низ генератора дыма. В них вставляется и крепится по сторонам кусок сетки, вырезанный по сечению корпуса.
На противоположной стороне приваривается труба на 3 / 4 дюйма. Напротив — штуцер, с помощью которого подключается компрессор
Важное условие — чёткое расположение обоих компонентов на одной прямой
Самое хитрое расположение у тонкой трубы. Сквозь штуцер, внутрь корпуса, она должна заходить на 1 сантиметр в трёхчетвертной отвод. Эта конструкция будет подавать воздух из компрессора и обеспечивать тягу, поддерживающую тление опилок. Для обустройства циркуляции дыма и воздуха в плотно набитом опилками корпусе на неё нужно одеть пружину большего диаметра. Это такой своеобразный рыхлитель, через витки которого и будут проходить потоки воздуха.
Для крышки необходим кусок железа на 1, 5 — 2 сантиметра шире, чем сечение корпуса. Для удобства нужно изготовить ручку. Её можно приварить или сделать съёмной. Средняя часть может быть деревянной. Она не сгорит ввиду низкой температуры корпуса. Чтобы крышка не съезжала, на небольшом расстоянии от края, надо приварить пруток или металлическую полоску по её периметру или радиусу.
Принцип работы самодельного приспособления
Корпус забивается стружкой, щепой или опилками. Вся масса поджигается. После начала активного тления включается компрессор, и крышка устанавливается на место. Если всё правильно собрано, подключено, топливо сухое — начнётся активное выделение дыма и процесс копчения. Вот и весь принцип работы.
Дымогенератор с внешним охлаждением
Основные элементы конструкции дымогенератора
Устройство дымогенератора для копчения не являет из себя сложную систему и состоит из таких элементов:
Корпус — ёмкость цилиндрического или квадратного профиля. Лучшим материалом считается нержавеющая сталь, но бывают агрегаты из других металлов и сплавов. Назначение корпуса – складирование щепы для и место самого тления
В качестве корпуса могут быть использованы: труба, термос, а именно его внутренняя ёмкость, огнетушитель и д. п. Оптимальными размерами корпуса считаются: 10 см в ширину и 40-50 см по высоте.
- Дымоход. Крепиться к корпусу и обеспечивает отвод дымовой смеси от эжектора в коптильную камеру. Надёжная фиксация элемента к корпусу обеспечивается сварным швом или резьбовым соединением;
- Эжектор, как инструмент для создания хорошей тяги;
- Компрессор. Дымогенератор для холодного копчения, сделанный своими руками обязан иметь средство для улучшения тяги и смешивания воздуха с выработанным дымом внутри корпуса, то есть эжектор. А в свою очередь для питания эжектора отлично подойдёт обычный компрессор для небольших аквариумов (до 6 л/мин) с опцией регулировки подачи воздуха. Он присоединяется к штуцеру подачи воздуха эжектора.
Допускается использование самодельных компрессоров из пластиковых бутылок и кулера от компьютера.
Различные приспособления для дымогенератора
Для повышения качества дыма подойдёт дымогенератор с дополнительными приспособлениями.
Устройство инжектора дымогенератора
Самой ответственной и сложной частью аппарата является эжектор. От его изготовления и настройки зависит качество и количество дыма и работа всей установки.
Принцип действия этого устройства следующий:
- поток воздуха, двигающийся по дымоходу, создаёт внутри него пониженное давление;
- низкое давление в трубе дымохода затягивает дым из дымогенератора и создаёт дополнительную тягу через нижние отверстия.
Таким образом, работа эжектора усиливает поступление дыма в коптильную камеру, тление щепы и интенсивность дымовыделения.
Конструкция и самостоятельная сборка эжектора
Изготовить это приспособление можно из водопроводного тройника. Средняя часть подключается к источнику дыма, одна из крайних — к коптильной камере, а в противоположную вкручивается пробка с трубкой от компрессора. Температура сравнительно невысокая, поэтому материал пробки может быть любым: пластмасса, резина или металл.
Трубка для подачи воздуха в эжектор берётся диаметром 6-10 мм и такой длины, чтобы заходить в дымоход на 8-10 см
Важно обеспечить соосность сопла и дымохода. Для этого оно должно плотно входить в пробку — в резиновую вставляется, а в металлическую вкручивается на резьбе
Кулер для дымогенератора
В холодном копчении используется дым комнатной температуры, а из генератора он выходит до 120°С, особенно при нижнем подключении дымохода. Для снижения его температуры устанавливается охладитель, или кулер.
Это цилиндрическая или квадратная камера размером, аналогичным корпусу дымогенератора. Попадая в эту камеру, дым замедляет движение и остывает. Для большей эффективности вход в охладитель делается сверху, а выход — снизу.
При остывании из дыма выделяется конденсат, который скапливается на дне кулера, поэтому дополнительно к нему необходимо установить сборник конденсата.
Принцип действия и схема работы кулера показаны на картинке.
Фильтр для дымогенератора
Для улучшения качества дыма его следует очистить от смол, копоти и других веществ. Для этого в дымоход устанавливается фильтр.
Конструктивно это расширение дымохода, наполненное стальными стружками или металлическими мочалками для мытья посуды. Это расширение может быть выполнено в виде дополнительной камеры с крышкой для замены фильтра или трубой большего диаметра, чем дымоход. В этом случае для замены стружки дымоход придётся подвергать частичной разборке.
Принцип действия показан ниже.
Компрессор для дымогенератора холодного копчения
Один из важных узлов дымогенератора — компрессор. Он направляет поток воздуха через эжектор. Этот поток переносит дым в коптильню, создаёт разрежение в камере сгорания и дополнительную тягу.
Самостоятельное изготовление компрессора
Самый простой компрессор можно сделать из компьютерного кулера и пластиковой бутылки:
- в дне бутылки вырезается отверстие, соответствующее диаметру кулера;
- в него вставляется вентилятор и закрепляется скотчем;
- в крышке проделывается отверстие для соединительной трубки;
- трубка вставляется в крышку, и место соединения также обматывается скотчем;
- кулер подключается к любому источнику питания =12 В.
Самостоятельное изготовление компрессора
Жидкость для генератора дыма своими руками
Кроме дымогенераторов, предназначенных для копчения продуктов, есть устройства, создающие дым на театральной и концертной сценах.
В этих аппаратах дым вырабатывается при попадании специального раствора на нагреватель и его испарении, то есть это не дым, а пар.
Состав может быть разным, например:
- глицерин – 15%;
- спирт – 10%;
- дистиллированная вода – 75%.
Естественно, пар от такого раствора не годится для копчения продуктов.
Дымогенератор в домашних условиях своими руками
Как это работает
Коптильня с дымогенератором, построенная своими руками очень мобильна и компактна. В нерабочем состоянии ее можно хранить в гараже, подвале, даже шкафу. Это в зависимости, от того, что используется в качестве, собственно, коптильни. Для камеры можно использовать любой металлический ящик подходящего размера. Если готового нет, то своими руками его можно сделать без особых проблем.
Для домашнего копчения оптимальны размеры — 1,0 / 0,6 / 0,6 м (В/ Ш / Г). Сверху ящик закрывается крышкой с вмонтированным термометром и несколькими мелкими (0,3 -0,5 мм) отверстиями для создания тяги. Верхняя часть коптильни в рабочем состоянии должна находиться выше дымогенератора — это создает дополнительную природную тягу, и, даже, при остановке вентилятора, дым будет поступать в камеру без задержек.

Теперь необходимо все собрать:
- Устанавливаем генератор на несгораемое основание — металлический стол, бетонную плиту или пол, керамическую плитку. Это нужно сделать из соображений пожарной безопасности. Помимо того, что дымогенератор довольно сильно нагревается, из него могут выпасть кусочки горящей щепы.
- В дымогенератор загружаем приблизительно 0,5 – 1 л сухой щепы, опилок, стружек лиственных деревьев (хвойные для копчения не используются) и плотно закрываем его крышкой.
- Подсоединяем патрубок компрессора и соединяем дымоход с коптильной камерой.
- Поджигаем топливо через боковое отверстие.
- Включаем вентилятор.
- Процесс копчения начался. Тройник с вентилятором выполняет роль инжектора. В трубе дымохода создается разрежение, которое вызывает втягивание дыма из генератора, и довольно ощутимый воздушно-дымовой поток направляется в сторону коптильного шкафа. Одновременно образуется приток воздуха в топку извне, сквозь боковые отверстия в дымогенераторе. Горение поддерживается само по себе и вмешательства человека не требуется.

Ключи темы
1. фото дымогенератор 2. дымогенератор картинки 3. дымогенератор фото 4. дымогенератор для холодного копчения из трубы 5. фото дымогенератора для коптильни 6. устройство дымогенератора для холодного копчения чертежи 7. чертеж дымогенератора с размерами 8. дымогенератор из огнетушителя для холодного копчения 9. дымогенератор холодного копчения фото 10. дымогенератор своими руками из огнетушителя 11. чертеж дымогенератора из трубы 12. фото дымогенератора 13. чертежи дымогенератора холодного копчения с размерами 14. дымогенератор для холодного копчения своими руками чертеж 15. дымогенератор из огнетушителя своими руками 16. чертеж дымогенератора меркель 17. дымогенератор для холодного копчения из огнетушителя 18. чертежи дымогенераторов 19. дымогенератор для холодного копчения своими руками фото 20. дымогенератор для холодного копчения чертежи с размерами 21. дымогенератор из огнетушителя 22. дымогенератор для холодного копчения чертежи фото 23. устройство дымогенератора для копчения своими руками 24. дымогенератор для копчения из огнетушителя 25. дымогенератор улитка 26. чертежи дымогенераторов для холодного копчения 27. чертежи дымогенератора холодного копчения 28. схема дымогенератора для холодного копчения 29. устройство дымогенератора для холодного копчения своими руками 30. коптильня из огнетушителя своими руками 31. дымогенератор для холодного копчения своими с чертежами 32. дымогенератор для холодного копчения фото 33. чертежи дымогенератора для коптильни 34. чертежи дымогенератора для холодного копчения 35. схема дымогенератора для холодного копчения своими руками 36. дымогенератор для холодного копчения чертеж 37. чертеж дымогенератора для холодного копчения своими руками 38. дымогенератор холодного копчения чертеж 39. самодельный дымогенератор для коптильни холодного копчения чертежи 40. чертеж дымогенератора для холодного 41. дымогенератор для холодного копчения схема чертеж 42. схема дымогенератора своими руками 43. генератор холодного дыма чертеж 44. чертежи дымогенератора 45. лучший дымогенератор для холодного копчения своими руками 46. дымогенератор своими руками чертежи и фото 47. сделать самому дымогенератор для копчения 48. самодельная коптильня с дымогенератором 49. дымогенератор для холодного копчения своими руками чертежи 50. дымогенератор для холодного копчения чертежи
Дымогенератор для копчения своими руками : конструктивные элементы
Самостоятельное изготовление такого устройства не заставит себя долго ждать. В конструкцию дымогенератора входит несколько основных элементов, которые необходимо подготовить перед началом сборки. Рассмотрим их подробнее.
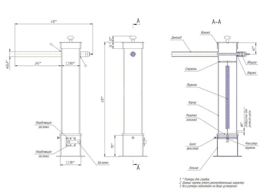
В первую очередь вам понадобится трубка (металлическая). Его форма может быть круглой или квадратной. Первый вариант предпочтительнее. Это связано с тем, что круглое сечение увеличивает расход дыма и не препятствует его транспортировке. Труба дымогенератора для коптильни должна иметь диаметр от 100 до 140 мм. Это основной элемент конструкции, через который образуется и перемещается дым.
Далее нужно подготовить трубки к сборке эжектора. В этом случае выбираются изделия меньшего диаметра. Еще один важный элемент дизайна — пружина. Он находится внутри камеры. Эта часть помогает поднимать дым от нижних слоев чипсов к верхним.
Обязательным элементом дымогенератора для холодного дыма является компрессор. Это устройство необходимо для подачи воздуха в эжектор. Наличие градусника не считается обязательным. Однако специалисты все же рекомендуют оснащать самодельный прибор термометром. Это позволит вам следить за изменением температуры внутри камеры дымообразования и избежать перегрева.

Конструкция дымогенератора основана на корпусном элементе, который может быть круглым или цилиндрическим
Все вышеперечисленные детали можно приобрести в хозяйственных магазинах. Для сборки дымогенератора также необходимо приобрести такие инструменты, как болгарку, сварочный аппарат.
Из чего можно изготовить камеру для коптильной камеры

Коптильная камера в самодельном дымогенераторе может быть изготовлена из различных материалов.
Чтобы коптильная камера на участке была красивой, ее часто делают в виде домика с водосточной трубой.
Высота трубки регулирует тягу.
Интерьер может быть отделан деревом (паркетом). Очистить камеру из нержавеющей стали удобнее. Для коптильни подойдет деревянная бочка.
Цены на деревянные доски
строительная доска
На коптильной камере установлен специальный термометр с внешним датчиком для контроля температуры копчения.
Основная часть конструкции также сделана из отходов, пригодных для:
- старый холодильник (корпус);
- корпус стиральной машины;
- газовый баллон;
- изготовлен из каркаса, который завернут в толстую пленку.
Каждый использует доступные предметы и материалы.
Не рекомендуется делать фотоаппарат из кирпича. Может замораживать, впитывать запахи, смолу. В коптильной камере может скапливаться влага.
Правила использования дымогенератора: фото и эксплуатационные особенности
После окончания монтажа дымогенератора нужно проверить его эффективность. Использовать данный прибор довольно просто. Рассмотрим, как правильно эксплуатировать дымогенератор, изготовленный в домашних условиях.
Вначале нужно загрузить в конструкцию щепу. Количество топлива может быть разным. Как правило, его суммарный вес составляет около 0,7-0,8 кг. Важный момент заключается в выборе породы дерева, применяемого для получения дыма, необходимого для копчения. Категорически нельзя использовать хвойные деревья, так как они при нагреве выделяют смолы, которые испортят продукты, загруженные в коптильный аппарат. Для копчения рекомендуется подбирать дрова и опилки, изготовленные из лиственных и фруктовых пород деревьев (например, дуб, клен или яблоня).
Технология использования данного устройства подробно объясняется в соответствующих видео. Дымогенератор после наполнения опилками необходимо закрыть, а затем нужно присоединить дымоходную трубку к коптильному резервуару. Аппарат может прикрепляться непосредственно к камере. В таком случае его просто устанавливают на свое место – вплотную к стенке коптильни.

После окончания монтажа всех необходимых составляющих дымогенератора, нужно проверить его работоспособность
Для того чтобы поджечь опилки, нужно открыть боковую дверцу. После их розжига включается компрессор, перегоняющий воздух. После выполнения всех вышеуказанных манипуляций начинается процесс копчения. Остается только выждать нужное время, которое потребуется для того, чтобы приготовить продукты в коптилке.
Дымогенератор без компрессора
Дымогенератор без компрессора, представляющий собой металлический ящик с опилками, с выводом дыма через трубу, используется при холодном копчении. Сама коптильня в этом случае располагается с одной стороны, а очаг на который устанавливается дымогенератор находится с другой стороны. В этом случае сложно проследить за температурным режимом и приходится часто добавлять топливо, но есть и другой вариант дымогенератора, лишенный этих недостатков — это дымогенератор с электрической спиралью от плиты. При ее нагревании опилки тлеют, выделяя дым, а блок управления позволяет контролировать температуру.
Возможные доработки и усовершенствования
Дымогенератор из трубы со временем может быть модернизирован на основе практического применения и с учетом обнаруженных недоработок. Чтобы улучшить функциональность этой конструкции, сделать ее более простой и удобной в обслуживании придется кое-что доработать и усовершенствовать.

Зольник
Дымогенератор из трубы можно усовершенствовать, сделав для него зольник. Тогда не надо будет думать о металлической подставке для конструкции, к тому же такое усовершенствование не позволит просыпаться золе сквозь сетку.
Кроме этого некоторые мастера делают в зольнике шибер, что дает возможность почти полного перекрытия воздушного подсоса. Наличие же этого элемента в корпусе такого эффекта не дает, поскольку кислород поступает сквозь сетку.
Для изготовления зольника потребуется отрезок трубы, который будет немного больше в сечении корпусной трубы. При ее отсутствии придется воспользоваться сваркой. К отрезку приваривается днище, а по периметру к корпусу – тонкая металлическая полоска. Его необходимо вставить в зольник, к которому приварить подставки (ножки).

Регулируемая тяга
При плохой регулировке интенсивности горения, а в простейших конструкциях такое случается часто, можно внести кое-какие изменения, например, сделать поддувало, которое будет регулироваться:
- Привариваем отрезок (10-15 см) круглой трубы чуть повыше, где крепится стека (нижняя часть корпуса).
- Просверливаем точно друг против друга отверстия.
- Берем пруток, по размерам проходящий в эти два отверстия (по длине он должен превосходить диаметр трубы на 20 см).
- Вырезаем из металлического листа (3 мм) круг, который по диаметру немного уступает внутреннему диаметру трубы.
- Сгибаем пруток в форме ручки и вставляем готовый элемент в отверстия.
- Привариваем металлический круг.

На этом процесс изготовления регулируемой заслонки заканчивается. Теперь можно поворачивать ее, тем самым регулируя количество поступления кислорода.
Сборник для конденсата
При холодном методе копчения во время работы генератора дыма выделяется конденсат, что доставляет проблемы, особенно при невысокой уличной температуре. Устранить подобное явление можно, если соорудить специальное устройство для сбора конденсата.
Процесс несложный, однако потребуются сварочные работы:
- Опустить выходную трубку дымового генератора.
- Установить конденсатный сборник в нижней точке, приварив к нему две трубы друг напротив друга.
- Труба опять поднимается вверх с противоположной стороны и направляется в шкаф для копчения.

Подобная доработка позволит большей части конденсата оседать в сборнике, сложностей станет меньше.
Особенности
Учитывая, что холодное копчение может длиться от 10 часов до нескольких суток, важно обеспечить постоянное поступление дыма, чтобы не было надобности открывать дверцы коптильни. Для этого могут применяться самые часто встречающиеся виды дымовых генераторов:
- лабиринтные;
- спиралевидные.
Дымогенератор лабиринтного типа ‒ это короб небольшого размера квадратной или прямоугольной формы со сторонами от 20 до 50 см в зависимости от размеров коптильни. Внутри этого короба в форме змейки находятся 3-4 перегородки, что обеспечивает последовательное тление на протяжении долгого времени
Важно укладывать опилки так, чтобы они не выступали за верхний край перегородок, иначе возможно воспламенение или быстрое сгорание опилок

Обязательно отделяйте мелкой сеткой или перфорированным металлом перегородки и наружный короб. Так не произойдет рассыпание опилок, но при этом будет свободный доступ воздуха, что обеспечит непрерывный процесс тления.

Дымогенератор спирального типа схож по конструкции с лабиринтным типом, но сетка в таком случае укладывается в виде спирали. Между ее витками засыпают опилки или щепу. В начале спирали их поджигают и ставят в коптильню.
Для того чтобы процесс тления происходил хорошо, необходимо сделать несколько отверстий внизу емкости для подачи и циркуляции воздуха. Размер коптильни определяет, какого размера и в каком количестве будут отверстия внутри короба.

Преимущества готовых вариантов
Сделать генератор самому – задача непростая. Для этого нужны определенные навыки, материалы, время. Поэтому многие не решаются пойти на такой шаг, а покупают готовый электрический дымогенератор. Такие устройства очень популярны, поскольку обладают такими достоинствами:
- высокая производительность;
- малый расход электроэнергии, который сравним с уровнем потребления включенной лампы накаливания;
- в термокамере осуществляется очищение дыма, в результате чего смолистые вещества оседают на стенках, а затем удаляются;
- обеспечивается полное сгорание опилок;
- удобство обслуживания;
- высокая надежность устройства.
Все это обеспечивает востребованность приборов и высокую результативность процедуры. Далее рассмотрим несколько моделей готовых вариантов.




































